| Федеральное агентство по образованию
Государственное образовательное учреждение
высшего профессионального образования
«Кузбасский государственный технический университет»
Кафедра строительных конструкций
МАЛОЭТАЖНЫЙ ЖИЛОЙ ДОМ
Методические указания
по выполнению курсовой работы № 1 по архитектуре
для студентов специальностей
290300 «Промышленное и гражданское строительство»,
290800 «Водоснабжение и водоотведение»,
291500 «Экспертиза и управление недвижимостью»
| |
Составитель И. В. Захарова
Утверждены на заседании кафедры
Протокол № 7 от 25.05.2004
Рекомендованы к печати
методической комиссией
по специальности 290300
Протокол № 24 от 16.06.2004
Электронная копия находится
в библиотеке главного корпуса
ГУ КузГТУ
|
КЕМЕРОВО 2005
1. ОБЩИЕ УКАЗАНИЯ
Курсовая работа № 1 по архитектуре является первой проектной работой по специальности. На примере проектирования малоэтажного жилого дома студенты получают профессиональные знания и навыки по следующим разделам:
- основы функционального проектирования квартиры;
- методика проектного процесса;
- разработка архитектурно-планировочных и конструктивных решений;
- грамотное графическое оформление чертежей.
Курсовая работа выполняется карандашом на 5-6 листах ватмана формата A3 (297´420 мм). На каждом листе вычерчивается рамка и угловой штамп по форме 1. Листы сшиваются в альбом.
Состав курсовой работы:
1) планы первого и второго этажа (мансарды) в М 1:100;
2) продольный и поперечный разрезы здания в М 1:100;
3) главный и боковой фасады в М 1:100;
4) план фундаментов в М 1:100;
5) план междуэтажного перекрытия в М 1:100;
6) план кровли в М 1:200;
7) план стропил в М 1:100;
8) конструктивный разрез по стене здания в М 1:20 или М 1:25.
Если в задании представлен двухквартирный дом с симметричным планом, то допускается вычерчивание совмещенных планов, например: плана первого и второго этажей, плана фундаментов и плана перекрытий, плана стропил и плана кровли.
В расчетную часть курсовой работы входят:
- расчет толщины наружных стен по СНиП II-3-79* «Строительная теплотехника» [1]. Методика и примеры расчета также подробно изложены в [5];
- подсчет технико-экономических показателей (ТЭП) жилого дома по СНиП 2.08.01-89 «Жилые здания» [2].
Забиваем Сайты В ТОП КУВАЛДОЙ - Уникальные возможности от SeoHammer
Каждая ссылка анализируется по трем пакетам оценки: SEO, Трафик и SMM.
SeoHammer делает продвижение сайта прозрачным и простым занятием.
Ссылки, вечные ссылки, статьи, упоминания, пресс-релизы - используйте по максимуму потенциал SeoHammer для продвижения вашего сайта.
Что умеет делать SeoHammer
— Продвижение в один клик, интеллектуальный подбор запросов, покупка самых лучших ссылок с высокой степенью качества у лучших бирж ссылок.
— Регулярная проверка качества ссылок по более чем 100 показателям и ежедневный пересчет показателей качества проекта.
— Все известные форматы ссылок: арендные ссылки, вечные ссылки, публикации (упоминания, мнения, отзывы, статьи, пресс-релизы).
— SeoHammer покажет, где рост или падение, а также запросы, на которые нужно обратить внимание.
SeoHammer еще предоставляет технологию Буст, она ускоряет продвижение в десятки раз,
а первые результаты появляются уже в течение первых 7 дней.
Зарегистрироваться и Начать продвижение
Эти расчеты должны быть приведены на одном из графических листов.
2. ОБЩИЕ ТРЕБОВАНИЯ К ЖИЛИЩУ
2.1. Учет социальных требований
при проектировании квартиры
При проектировании индивидуальной квартиры должны быть решены задачи обеспечения оптимальных условий проживания семьи и всех процессов ее жизнедеятельности: семейное общение и возможность обособления членов семьи, активный и пассивный отдых, воспитание детей, ведение домашнего хозяйства, поддержание личной гигиены и т. д.
Размер и площади квартиры определяются прежде всего числом человек, на которое она рассчитана. Для простой семьи, состоящей из двух поколений, необходимо в составе квартиры предусмотреть одну общую комнату, свободную от спальных мест. Исходя из этого для семьи из четырех человек нужна квартира из четырех комнат, т. е. число комнат в квартире должно быть не менее количества членов семьи (К=N). Наряду с этим для многодетных семей или семей с детьми одного пола применяется и формула К = N – 1. Естественно, что по мере роста обеспеченностью жилой площадью отдельных категорий населения в настоящее время применяются и формулы K = N + 1 и K = N + 2.
СНиП 2.08.01-89 «Жилые здания» устанавливает верхние пределы общей площади квартир в зависимости от числа комнат (табл. 1). Следует отметить, что в настоящее время эти нормы могут служить ориентиром при строительстве типового социального жилья, в то время как при строительстве элитного и индивидуального жилья площади квартир, как правило, намного больше.
Таблица 1
Верхние пределы общей площади квартир, м2
| Тип поселения
|
Число комнат (типы квартир)
|
| 1
|
2
|
3
|
4
|
5
|
6
|
| А
|
Б
|
А
|
Б
|
А
|
Б
|
А
|
Б
|
А
|
Б
|
А
|
Б
|
| Город, поселок
|
28
|
36
|
44
|
53
|
56
|
65
|
70
|
77
|
84
|
95
|
96
|
108
|
| Село
|
38
|
44
|
50
|
60
|
66
|
76
|
77
|
89
|
94
|
104
|
108
|
118
|
Примечание. В жилых домах, проектируемых для климатических подрайонов IА, IБ, IГ, IД, допускается увеличивать площадь квартир не более чем на 10 %.
2.2. Планировочная структура
и функциональное зонирование квартиры
Комфортность квартиры определяется не только составом и площадями помещений, но и логикой их расположения в общей планировочной структуре.
Основным принципом планировочной организации квартиры является ее функциональное зонирование
, т. е. четкое выявление групп помещений разного назначения и объединение их в зоны: индивидуальную
(личные жилые комнаты), коллективную
(общая комната, столовая) и зону обслуживания
(кухня, туалеты, прихожая, коридоры).
Обязательное условие при этом – независимость функционирования индивидуальной и коллективной зон, т. е. каждая зона должна иметь связь с прихожей. Один из вариантов функционального зонирования квартиры приведен на рис. 2.2.
Сервис онлайн-записи на собственном Telegram-боте
Попробуйте сервис онлайн-записи VisitTime на основе вашего собственного Telegram-бота:
— Разгрузит мастера, специалиста или компанию;
— Позволит гибко управлять расписанием и загрузкой;
— Разошлет оповещения о новых услугах или акциях;
— Позволит принять оплату на карту/кошелек/счет;
— Позволит записываться на групповые и персональные посещения;
— Поможет получить от клиента отзывы о визите к вам;
— Включает в себя сервис чаевых.
Для новых пользователей первый месяц бесплатно.
Зарегистрироваться в сервисе
2.3. Элементы квартиры
Основными элементами пространственной организации квартиры являются помещения, которые по характеру использования разделяются на две группы:
- жилые помещения
(спальни и общая комната);
- подсобные помещения
(личной гигиены, хозяйственные, коммуникационные и помещения для хранения вещей).
Общая комната
, в зависимости от количества комнат в квартире, может иметь площадь от 16 до 20-25 м2
. Минимальная ширина общей комнаты – 3,2 м. Наиболее удобной считается комната с соотношением ширины и глубины от 1:1 до 1:1,75.
Спальни
проектируют, как правило, трех типов: жилая комната для одного человека (не менее 8 м2
), жилая комната для двух членов семьи (минимум 12 м2
), спальня для супружеской пары (13-15 м2
, что позволяет разместить в ней детскую кроватку). Минимальная ширина спален: для одного человека – 2,25 м, для двух человек – 2,5 м. Но с точки зрения удобства размещения мебели оптимальной считается ширина не менее 3 м. Все спальни проектируются непроходными и по возможности группируются в одной зоне квартиры, рядом с санузлами.
Кухонные помещения
, в зависимости от величины квартиры, проектируют в виде кухни с эпизодическим приемом пищи или в виде кухни-столовой.
Кухня с эпизодическим приемом пищи
площадью не менее 7 м2
имеет полный состав оборудования и ограниченное место для приема пищи. При этом вход в кухню устраивается из передней.
Кухня-столовая
имеет рабочую зону и зону приема пищи для всех членов семьи. Минимальный предел площади – 8 м2
(в семье из 2-3 человек). Для более крупных семей площадь кухни-столовой должна быть 10-12 м2
. В рабочей зоне кухни размещается фронт оборудования шириной 600 мм, в который входят плита, мойка, рабочий стол, холодильник, шкафы разного назначения.
Санитарно-гигиенические помещения
могут быть совмещенными или раздельными. Совмещенные санузлы применяются только в однокомнатных квартирах или в больших квартирах при наличии второго санузла (в нем вместо ванны может быть душевая кабина размером 90´90 см). Ванная комната оборудуется ванной и умывальником. Уборные проектируют двух типов: только с унитазом, если она размещается рядом с ванной, а в случае значительного удаления от ванной комнаты в уборной предусматривается умывальник. Ширина уборной должна быть не менее 0,8 м, глубина – не менее 1,2 м. Вход в уборную допускается только из коридора или прихожей. Ванная комната может быть проходной в кухню или спальню, с основным входом со стороны передней.
Примеры различных санитарно-бытовых помещений даны на рис. 2.1.
Передняя
, или прихожая
, служит местом хранения одежды, обуви, хозяйственных и спортивных принадлежностей и одновременно центром коммуникаций в квартире. В современных нормах площадь передней не нормируется. Размеры ее должны устанавливаться в зависимости от величины квартиры, но во всех случаях ширина прихожей должна быть не менее 140 см. Прихожая оборудуется встроенными шкафами и антресолями.
Коридоры
в квартире должны иметь ширину не менее 110 см, коридор в кухню может быть шириной 80 см.
Летние помещения
включают в себя: балконы с выносом плиты 90-105 см; лоджии (заглубленные или частично заглубленные в стены) с выносом плиты 120-150 см; открытые террасы и остекленные неотапливаемые веранды. Высота ограждения балконов и лоджий – 105 см. Площади летних помещений нормируются и должны составлять не более 15 % общей площади квартиры. Площадь веранды в сельских домах может составлять до 20 % от общей площади.

Рис. 2.1. Планировочные схемы санузлов и размеры санитарного оборудования

Рис. 2.2. Пример функционального зонирования квартиры:
1 – общая комната; 2 – спальни; 3 – столовая; 4 – прихожая, кухня, санузел
2.4.
Особенности малоэтажной усадебной застройки
Основными типами усадебных домов являются одноквартирный, двухквартирный и блокированный. Индивидуальные дома имеют чаще всего тот же состав помещений, что и квартиры в многоэтажных домах, главным образом меняется их количество и площади соответственно имущественному положению владельца.
Четырех-, пятикомнатные дома, помимо жилых комнат, кухни-столовой, санитарных и подсобных помещений, имеют встроенный или пристроенный гараж с мастерской, иногда сауну. В домах из 6-7 комнат часто предусматривают кабинет, гостевую комнату, встроенный или пристроенный гараж на две машины с мастерской, иногда зимний сад. В больших особняках получает дополнительное развитие состав жилых комнат (библиотека, каминная, бильярдная, детская игровая, гостевые спальни, комнаты для прислуги и др.), при сауне предусматривают бассейн и тренажерный зал.
3. МЕТОДИКА ПРОЕКТИРОВАНИЯ
Первый этап проектирования – изучение задания и рекомендуемой литературы. Работа над литературой должна сопровождаться зарисовками и выписками необходимых сведений.
На втором этапе разрабатываются эскизы чертежей здания. Эскизы выполняются на миллиметровой бумаге от руки или по линейке с обязательным соблюдением масштаба. Цель эскизирования – выбор наиболее рационального объемно-планировочного и конструктивного решения здания и взаимная увязка всех конструктивных решений друг с другом.
Проектирование следует начать с выбора конструктивной схемы здания и назначения основных размеров между разбивочными осями.
3.1. Выбор конструктивной схемы здания
Малоэтажные здания проектируются чаще всего по бескаркасной конструктивной схеме, т. е. основными несущими конструкциями здания являются капитальные стены. Стены в зависимости от воспринимаемой нагрузки могут быть несущими, самонесущими или ненесущими (рис. 3.2).
Несущие стены
служат опорой для плит перекрытия, собирают все нагрузки от перекрытий и передают их на фундаменты.
Самонесущие стены
несут только свой собственный вес, также
передавая его на фундамент. Плиты перекрытий на самонесущие стены не опираются. Несущие и самонесущие стены называют также капитальными
, поскольку они представляют собой несущий остов здания, опираются на фундамент и их разрушение приводит к обрушению всего здания.
Ненесущие стены
используются в каркасных зданиях и навешиваются на колонны каркаса. Вес стен передается на колонны, а через них – на фундаменты колонн. Собственно под ненесущими (или, как их еще называют, навесными) стенами фундаментов нет.
Для разделения помещений внутри здания используются перегородки
, которые не являются основными несущими конструкциями и опираются на плиты перекрытий. Перегородки, в отличие от капитальных стен, можно передвигать в плане на любое место.
В зависимости от расположения в плане несущих и самонесущих стен в бескаркасных зданиях различают три основные конструктивные схемы:
- с продольными несущими стенами;
- с поперечными несущими стенами;
- с продольными и поперечными несущими стенами.
Виды основных конструктивных схем бескаркасных зданий приведены на рис. 3.1.
3.2. Привязка конструктивных элементов к разбивочным осям
Расположение в плане здания несущих и самонесущих стен отмечается координационными осями
. Именно эти оси фиксируются на строительной площадке при разбивке здания, поэтому их называют еще разбивочными.
В соответствии с принятой в строительстве Единой модульной системой (ЕМС), все расстояния между разбивочными осями должны быть кратны основному строительному модулю М = 100
мм или укрупненному модулю ЗМ = 300 мм. Это делается в целях унификации, т. е. уменьшения количества типоразмеров строительных конструкций.
Расположение конструктивных элементов здания по отношению к разбивочным осям называется привязкой
. Разбивочные оси всегда совпадают с гранями конструкций перекрытия, т. е. привязка стен к осям показывает величину опирания плит перекрытия на стены.
Правила привязки капитальных стен
(рис. 3.1):
1) привязка самонесущих стен «нулевая», т. е. разбивочная ось совпадает с внутренней гранью стены;

| Рис. 3.1. Конструктивные схемы зданий:
а – с продольными несущими стенами;
б – с поперечными несущими стенами;
в –с продольными и поперечными
несущими стенами
|
Рис. 3.2. Типы стен:
а – несущая стена;
б – самонесущая стена; в – ненесущая (навесная) стена
|
2) внутренние несущие стены имеют осевую привязку, т. е. геометрическая ось стены совпадает с разбивочной осью;
3) привязка наружных несущих стен от внутренней грани стены до оси выполняется не менее половины толщины внутренних несущих стен. Унифицированные размеры привязок для кирпичных стен – 200 мм, крупнопанельных – 100 мм, деревянных – 50 мм.
3.3. Разработка планов здания
Выбрав конструктивную схему здания и зафиксировав положение разбивочных осей, можно переходить к компоновке помещений на плане здания в соответствии с требованиями к планировке квартиры, изложенными в разделе 2 настоящих методических указаний. При этом перегородки можно произвольно перемещать на плане, добиваясь наилучших пропорций комнат и соответствия площадей всех помещений нормативным требованиям.
Особое внимание следует обратить на правильный расчет и размещение в плане лестничной клетки
. При расчете лестниц следует учитывать следующие требования (см. рис. 3.3):
1) ширина маршей внутриквартирных лестниц должна быть не менее 90 см;
2) ширина лестничных площадок - не менее ширины маршей;
3) ширина проступи должна быть не менее 250 мм, а сумма размеров проступи и подступенка составляет 450 мм;
4) общепринятые уклоны лестниц – 1:2; 1:1,25; 1:1,5; 1:1,75;
5) в плане лестницы между маршами необходимо оставлять зазор не менее 100 мм для пропуска пожарного шланга.
В лестницах малоэтажных зданий допускается применять так называемые забежные ступени
, имеющие треугольную форму в плане. Виды внутриквартирных лестниц приведены на рис. 3.4.
На первом этапе эскизирования все стены изображают одной линией. После увязки взаимного расположения всех помещений можно переходить к привязке стен к разбивочным осям и детальной проработке планов.
Толщина наружных стен
рассчитывается по СНиП II-3-79* «Строительная теплотехника». Методика теплотехнических расчетов в курсовом проектировании также подробно изложена в [5].
Толщина стен должна быть кратна размерам кирпича (380, 510, 640 или 770 мм). Внутренние несущие стены из кирпича выполняются толщиной 380 мм, а перегородки – 120 мм. Если стены выполнены

Рис. 3.3. Расчет лестничной клетки

Рис. 3.4. Минимальные габаритные размеры разных видов лестничных клеток (рассчитаны на высоту этажа 3,0 м, размер проступи – 250 мм, размер подступенка – 200 мм)
из других материалов, их толщина также должна определяться с учетом размеров элементов, выпускаемых промышленностью. После определения толщины стен их привязывают к разбивочным осям здания (см. п. 3.2).
Особое внимание следует обратить на вентиляционные и дымовые каналы, которые размещают во внутренних стенах, примыкающих к кухне и санузлу. Каналы выкладывают из кирпича толщиной 380 мм. Сечения каналов кратны 1/2 кирпича (со швами): 140´140, 140´270 мм.
Размеры оконных и дверных проемов
также унифицированы и подбираются в соответствии с ГОСТ 66.29-80 или по учебникам.
Площадь оконных проемов
в свету должна составлять не менее 1/8 от площади пола помещения. Расстояние от поперечных стен и перегородок до окна внутри помещения не должно превышать 1,5 м. Высота подоконника над уровнем пола – минимум 800 мм. В кирпичных стенах толщиной 510 мм и более оконные и дверные проемы выполняются с четвертями. Четверти
размером 65´120 мм в плане образуются за счет выпуска 1/4 кирпича на боковых откосах проемов по наружной грани стен и защищают двери и окна от продувания.
При размещении дверей и их открывании следует учитывать удобство эксплуатации помещений и расстановки мебели. Входная дверь всегда открывается наружу, а внутренние двери – внутрь комнат. При входе в дом обязательно устраивают тамбур
глубиной не менее 1,4 м. Ширина крыльца при входе должна быть не менее 1,2 м, а уклон наружных ступеней – 1:2. Над входной дверью и крыльцом должен быть выполнен козырек
.
3.4. Разработка планов перекрытий
Длина несущих конструкций перекрытия равна расстоянию между разбивочными осями. Выбор материала и конструкций перекрытия определяется пролетом несущих стен. Перекрытия малоэтажных зданий могут быть безбалочными (из железобетонных плит) или балочными (по деревянным или железобетонным балкам).
Безбалочные перекрытия
выполняются из сборных железобетонных плит с круглыми пустотами толщиной 220 мм, опирающихся непосредственно на несущие стены. Длина плит – от 4800 до 6300 мм с шагом 300 мм, ширина – 1000, 1200, 1500, 1800 мм (рис. 3.5).
Деревянные перекрытия
состоят из деревянных балок и доща-
Рис. 3.5. План безбалочного перекрытия

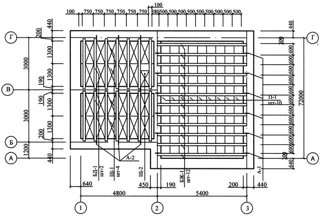
Рис. 3.6. План перекрытия по деревянным и железобетонным балкам (БД – балка деревянная, БЖ – балка железобетонная, Щ – щит наката, П – плита, А – анкеры)
тых щитов межбалочного заполнения. Деревянные балки перекрывают пролет до 4,8 м, высота балки должна составлять от 1/10 до 1/20 перекрываемого пролета, ширина балки принимается 60-120 мм. Для опирания межбалочных щитов к боковым сторонам балок прибивают черепные бруски сечением 40´50 мм. Шаг балок принимают от 600 до 1500 мм, что определяет ширину щитов заполнения. Длина деревянных щитов определяется длиной досок (до 2 м).
Перекрытия по железобетонным балкам
состоят из железобетонных балок таврового сечения и межбалочного заполнения в виде сплошных легкобетонных плит или пустотелых камней-вкладышей (керамических или из легкого бетона). Длина балок – от 2,4 до 6,4 м (через 200 м), опирание на несущую стену – не менее 150 мм. Концы балок заанкеривают в стену. Шаг балок определяется размером межбалочного заполнения и может быть 600, 800 и 1000 мм.
Примеры маркировочных планов перекрытий даны на рис. 3.6.
3.5. Разработка планов фундаментов
По конструктивному решению фундаменты малоэтажных зданий могут быть ленточные и столбчатые. Располагаются фундаменты под всеми несущими и самонесущими стенами, а также под столбами, печами, каминами и вентиляционными каналами.
Ленточные фундаменты
представляют собой непрерывную ленту под всеми капитальными стенами и могут быть монолитными (выполненными непосредственно на строительной площадке) и сборными, из элементов заводского изготовления.
Столбчатые фундаменты
устраивают под отдельные опоры или под стены, если глубина заложения превышает 2 м. В этом случае столбчатые фундаменты располагают под всеми углами и пересечениями стен, а также под простенками. Расстояние между отдельными фундаментами не превышает 6 м. По верху столбов укладывают железобетонные фундаментные балки
, по которым возводят стены.
Материал фундаментов: бутовый камень, бутобетон, бетон (монолитный и сборный).
Толщину
бутовых и бутобетонных лент принимают шире толщины стены на 80-100 мм, т.к. обрез такого фундамента не всегда получается ровным. Толщину сборных фундаментов принимают равной толщине фундаментных блоков: 300, 400, 500, 600 мм, при этом стена может быть на 40-50 мм шире фундамента. Длина блоков – 1200, 2400 и 800 мм. Для уменьшения давления на грунт фундаменты выполняют с уширенной подошвой
в виде одного или двух уступов высотой 300-400 мм и шириной 150-250 мм. В сборных фундаментах для уширения подошвы применяют армированную фундаментную плиту-подушку шириной от 600 до 1600 мм (через 200 мм), высотой 300 мм. Длина плит 1200 и 2400 мм.
Глубина заложения фундамента
(т. е. расстояние от поверхности земли до подошвы фундамента) принимается, в соответствии со СНиП 2.02.01-83 «Основания зданий и сооружений» [4], в зависимости от глубины сезонного промерзания грунта
.
При пучинистых грунтах глубина заложения под наружные стены принимается не менее расчетной глубины сезонного промерзания грунта , определяемой по формуле
,
| где
|
– нормативная глубина промерзания, определяемая по карте сезонного промерзания грунтов;
|
| |
– коэффициент, учитывающий влияние теплового режима сооружения, принимаемый: для наружных фундаментов отапливаемых сооружений – по табл. 2, для наружных и внутренних фундаментов неотапливаемых сооружений – 
|
Таблица 2
| Особенности сооружения
|
Коэффициент при расчетной среднесуточной температуре воздуха в помещении, примыкающем к наружным фундаментам, °С
|
| 0
|
5
|
10
|
15
|
20 и более
|
| Без подвала с полами,
устраиваемыми:
|
|
|
|
|
|
| по грунту
|
0,9
|
0,8
|
0,7
|
0,6
|
0,5
|
| на лагах по грунту
|
1,0
|
0,9
|
0,8
|
0,7
|
0,6
|
| по утепленному цокольному
перекрытию
|
1,0
|
1,0
|
0,9
|
0,8
|
0,7
|
| С подвалом или техническим подпольем
|
0,8
|
0,7
|
0,6
|
0,5
|
0,4
|
Глубина заложения под внутренние стены
не зависит от глубины промерзания грунта и принимается равной 0,5 м.
3.6. Разработка плана кровли и плана стропил
В малоэтажных зданиях применяются, как правило, чердачные скатные крыши
по деревянным стропилам с обрешеткой. Уклон
крыши принимается в зависимости от материала кровли и района строительства. Минимальные уклоны стальных кровель – 14°, черепичных – 27°, из волнистых асбестоцементных листов – 18°. В районах с большим снеговым покровом следует принимать уклоны кровель более 30°.
Формы чердачных крыш определяются очертаниями здания в плане и стремлением к архитектурной выразительности. Крыши могут быть односкатными, двускатными (наиболее часто применяемые), четырехскатными (шатровыми, вальмовыми, полувальмовыми) и многоскатными.
Водоотвод
с кровли может быть неорганизованный или организованный. При организованном водостоке количество водосточных труб принимают из расчета 1-1,5 см2
сечения трубы на 1 м2
кровли. Оптимальное расстояние между водосточными трубами – 15-20 м. Вынос карниза кровли при неорганизованном водостоке должен быть не менее 500 мм, при организованном – не менее 300 мм.
Несущие конструкции крыши состоят из стропил
, выполненных из бревен, брусьев или досок. Выбор схемы стропил крыши производится в зависимости от ширины здания и характера расположения внутренних стен (опор), в соответствии с планом кровли.
При наличии в плане здания внутренних несущих стен применяются наслонные стропила
, основные несущие элементы которых
– стропильные ноги – работают как наклонно положенные балки, верхним концом опирающиеся на коньковый прогон, а нижним – на мауэрлат наружных стен. Максимальная длина стропильных ног – не более 6,5 м. Если промежуточных опор в здании нет, то применяются висячие стропила
, представляющие собой простейший вид стропильной фермы, где наклонные стропильные ноги передают распор на горизонтальную затяжку.
Сечение элементов стропил принимается конструктивно, по аналогии с типовыми деталями и данными учебников. Во избежание выпадения конденсата и промерзания утеплителя на чердачном перекрытии необходимо обеспечить сквозное проветривание чердака через слуховые окна
. Особое внимание следует уделить расположению мауэрлатов, прогонов, стоек, проработке узлов и увязке сопряжений отдельных элементов крыши между собой.

Рис. 3.7. Стропильные конструкции малоэтажных зданий: а – наслонные стропила (поперечный разрез); б – висячие стропила; в – план стропил; г – продольный разрез по наслонным стропилам
Шаг стропил принимается от 1000 до 1500 мм, в зависимости от веса кровли и материала обрешетки. На плане стропил показывают мауэрлаты, стропильные ноги, диагональные (накосные) ребра, прогоны, ригели, кобылки, слуховые окна. Если накосные ребра имеют пролет более 6 м, то для их опирания применяют шпренгели, которые тоже показывают на плане.
Элементы стропильных систем даны на рис. 3.7.
3.7. Разработка чертежей разрезов здания
Продольный и поперечный разрезы выполняются в масштабе 1:100. На плане этажа намечаются линии разрезов. Их маркировка наносится в плане за размерными линиями. Стрелками обозначают направление взгляда.
Разрезы должны проходить через наиболее важные элементы здания: лестничную клетку, подвальные помещения, через оконные и дверные проемы. Для этого иногда линию разреза делают ломаной, с обозначением поворота на плане.
Составление чертежа разреза начинают с нанесения продольных разбивочных осей и привязки к ним толщины стен. Затем проводят горизонтальную линию, соответствующую уровню пола первого этажа и принимаемую за «нулевую» отметку. От этой линии производят отсчет всех вертикальных размеров вверх и вниз. Вверх от «нулевой» отметки откладывают отметку пола второго этажа (+2.800 или +3.000), а вниз – отметку уровня поверхности грунта (не менее –0.500). Затем идет детальная проработка разреза по конструктивным элементам. При составлении разрезов необходимо уточнить:
- основные вертикальные отметки: высоту до подоконников, высоту оконных и дверных проемов, отметки полов и потолков, карнизов и коньков крыш и т. д.;
- конструкцию и глубину заложения фундаментов под внутренние и наружные стены, вид цокольной части, конструкцию пола первого этажа и отмостки;
- конструкцию лестничной клетки в соответствии с разбивочным чертежом;
- конструкцию перемычек над оконными и дверными проемами, попавшими в разрез;
- опирание элементов перекрытий (плит, балок) и элементов стропильной системы на стены;
- конструкцию стропильной системы и сопряжение отдельных элементов друг с другом;
- выход на крышу вентиляционных каналов и дымовых труб и их высоту по отношению к коньку.
3.8. Разработка фасадов
В курсовой работе выполняется два фасада: главный (со стороны главного входа) и боковой (любой, по выбору).
Фасады вычерчиваются в увязке с планами и разрезами здания. Одновременно может происходить корректировка расположения оконных и дверных проемов в плане здания, уклонов крыши и пр. При изображении фасадов тщательно прорисовываются все необходимые детали здания: карнизы, балконы, обрамление и переплеты окон, рисунок дверных полотен, крыльца с перильными ограждениями и козырьками, слуховые окна, трубы.
3.9. Разработка конструктивного разреза по стене здания
Конструктивный разрез выполняется в масштабе 1:20 или 1:25 по той стене здания, на которую опираются стропильные ноги. Эскизы отдельных узлов и деталей целесообразно выполнять в процессе подбора основных конструкций здания, с тем чтобы затем их легко можно было соединить в одном разрезе по стене.
Разрез выполняется от подошвы фундамента до карниза. При этом повторяющиеся элементы (например, конструкцию оконного заполнения) можно показывать только один раз, делая разрывы по высоте.
В конструктивный разрез по стене жилого дома должны войти следующие узлы:
1) фундамент от подошвы до верхнего обреза;
2) отмостка вокруг здания шириной не менее 500 мм;
3) цокольная часть здания;
4) пол первого этажа на лагах по грунту;
5) окно с железобетонными перемычками и детально проработанным заполнением деревянными переплетами с двойным или тройным остеклением;
6) междуэтажное перекрытие в сечении с опиранием на стену и конструкцией пола;
7) утепленное чердачное перекрытие с пароизоляцией, утеплителем и стяжкой;
8) карнизный узел с конструкцией кровли.
Особое внимание следует обратить на привязку стены к разбивочной оси. От этого зависит вид сечения по перекрытиям, которые опираются на 200 мм только на несущие стены, а к самонесущим стенам примыкают. Соответственно многопустотное перекрытие может быть изображено либо в продольном, либо в поперечном сечении. Изменяется также вид надоконных перемычек: в самонесущих стенах используются железобетонные балочные перемычки сечением 120×140 мм, а в нагружаемой части несущих стен – усиленные перемычки сечением 120×220 или 120×290 мм.
Состав всех многослойных конструкций, как вертикальных, так и горизонтальных, должен быть вынесен на «флажках».
4. ПРАВИЛА ОФОРМЛЕНИЯ ЧЕРТЕЖЕЙ
Планы этажей
вычерчивают с расчетом расположения секущей плоскости в 2 м от уровня пола каждого этажа. Все элементы оборудования и лестниц, расположенные ниже секущей плоскости, вычерчивают видимыми линиями. Элементы лестниц, расположенные выше секущей плоскости, не вычерчивают, а лестничный марш пересекают диагональной линией.
Контуры капитальных стен обводят толстой сплошной линией толщиной 0,8-1 мм. Все остальные элементы обводят тонкой сплошной линией толщиной 0,3-0,5 мм. Самые тонкие линии – размерные (тонкие сплошные 0,1-0,2 мм) и линии разбивочных осей (тонкие штрихпунктирные). Оси на всех чертежах обозначают кружком диаметром до 10 мм. Вертикальные оси слева направо маркируют цифрами, горизонтальные оси снизу вверх – большими буквами русского алфавита, исключая буквы Е, З, Й, О, Ъ, Ы, Ь.
Слева и внизу от чертежа плана наносят три размерные линии. Первая линия – размеры проемов и простенков на наружной стене; вторая – расстояния между разбивочными осями; на третьей размерной линии проставляют общие габаритные размеры здания. Первая линия должна отстоять от стен на 10-15 мм, следующие на 5-7 мм друг от друга.
Внутри планов проставляют цепочки размеров по внутренним граням стен помещений, показывают толщину внутренних перегородок и стен (с привязкой к разбивочным осям).
Площади
указывают в правом нижнем углу помещений с точностью до 0,1 м2
(без надписи «м2
», проставляют только цифры). Назначение помещений обозначают либо надписью на самом чертеже (при масштабе 1:100 и более), либо помещения нумеруют и рядом с чертежом дают их экспликацию.
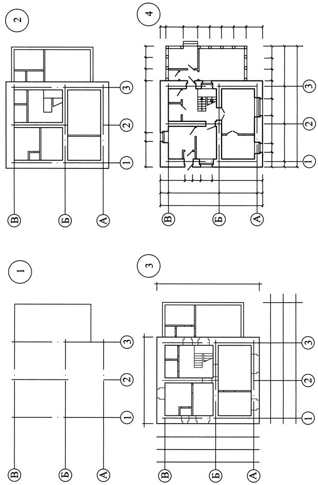
Порядок вычерчивания плана здания приведен на рис. 4.1.
Конструктивные планы
(фундаментов, перекрытий, стропил), так же как и планы этажей, должны иметь слева и внизу три размерные линии, при этом на первой размерной линии проставляют шаг несущих конструкций (балок, стропил) или размеры отдельных элементов (плит перекрытия, фундаментных блоков). Кроме того, на конструктивных планах при помощи выносных линий выполняют маркировку всех элементов, а на плане фундаментов указывают также отметки подошвы фундамента.
На разрезах
(рис. 4.2) наносят координационные оси, проходящие по несущим и самонесущим стенам. Наносят размерные цепочки между осями (по горизонтали) и размерные габариты деталей несущих капитальных конструкций (по вертикали). Размерные линии по вертикали снабжены отметками относительных высот от уровня чистого пола первого этажа, принимаемого за нулевую отметку (±0.000).
Фасады
обводят тонкими линиями толщиной 0,3-0,5 мм. На чертежах фасадов наносят только крайние разбивочные оси. За пределами фасада (обычно слева) ставят отметки уровня земли и основных элементов фасада, при необходимости дополняемые вертикальными размерными цепочками (рис. 4.3).
На плане кровли
должны быть показаны слуховые окна, дымовые и вентиляционные трубы, парапеты, направление стока атмосферных вод. Указывают вынос карниза, расстояния между крайними разбивочными осями, а также между осями в местах перепадов высот и изломов в плане. Наружные грани стен обозначают пунктирной линией, а линии конька, карниза, ендов и ребер – тонкой сплошной линией толщиной 0,3-0,5 мм. При устройстве организованного водоотвода показывают водоприемные воронки и желоба для отвода воды.
На конструктивном разрезе по стене
обязательно показывают: привязку фундамента и стены к разбивочной оси, размеры всех конструктивных элементов, толщину слоев в многослойных конструкциях. Состав полов, отмостки, перекрытия и кровли выносят на «флажках», все детали подписывают на выносных линиях. Высотные отметки проставляют так же, как на разрезах по зданию. Материал конструктивных элементов, попавших в сечение, обозначают в соответствии с ГОСТ 2.306-68*.
Подробно правила выполнения чертежей приведены в справочниках по строительному черчению [13, 14].
5. ПОДСЧЕТ ТЕХНИКО-ЭКОНОМИЧЕСКИХ ПОКАЗАТЕЛЕЙ
В соответствии с требованиями СНиП 2.08.01-89 «Жилые здания» [2], для оценки экономичности объемно-планировочных решений подсчитываются следующие технико-экономические показатели (ТЭП):
1) этажность и число квартир;
2) площадь квартир
, м2
;
3) общая площадь квартир , м2
;
4) площадь жилого здания , м2
;
5) площадь застройки , м2
;
6) строительный объем , м3
;
7) планировочный коэффициент ;
8) объемный коэффициент .
Для точного подсчета ТЭП необходимо сначала определить площади отдельных помещений жилого дома.
Площадь отдельных помещений
определяется с точностью до десятых долей м2
по их размерам, измеряемым между отделанными поверхностями стен и перегородок на уровне пола, т. е. от габаритных размеров помещения следует отнять по 15 мм с каждой стороны на внутреннюю штукатурку стен (всего по 30 мм). Площадь, занимаемая печью, в площадь помещения не включается. Площадь под внутриквартирной лестницей при высоте от пола до низа выступающих конструкций 1,6 м и более включается в площадь помещения. Для мансардных помещений учитывается их площадь с высотой наклонного потолка не менее 1,6 м.
1. Этажность здания
включает в себя все надземные этажи, в том числе мансардный и цокольный, если верх его перекрытия находится выше средней планировочной отметки земли не менее чем на 2 м.
2. Площадь квартиры
определяется как сумма площадей жилых комнат и подсобных помещений без учета лоджий, балконов, веранд, террас и холодных кладовых, тамбуров.
3. Общая площадь квартиры
определяется как сумма площадей их помещений, встроенных шкафов, а также летних помещений, умноженных на понижающие коэффициенты: для лоджий – 0,5, для балконов и террас – 0,3, для веранд и холодных кладовых – 1.
4. Площадь жилого здания
определяется как сумма площадей всех этажей здания, измеренных в пределах внутренних поверхностей наружных стен, а также площадей балконов и лоджий.
5. Площадь застройки
определяется как площадь горизонтального сечения по внешнему обводу здания на уровне цоколя, включая выступающие части, проезды под зданием, а также площадь под зданием, расположенным на столбах.
6. Строительный объем здания
есть сумма строительного объема надземной части (выше отметки ±0.000) и подземной части (ниже отметки ±0.000).
Строительный объем надземной части
здания определяется как произведение площади застройки на высоту от уровня чистого пола первого этажа до верха засыпки чердачного утеплителя, без учета портиков, террас, балконов, объема проездов и пространства под зданием на опорах (в чистоте).
Строительный объем подземной части
определяется как произведение площади застройки на высоту от уровня чистого пола подвала до отметки ±0.000 без учета подпольных каналов.
7. Планировочный коэффициент
определяется как отношение площади квартиры к общей площади:
.
8. Объемный коэффициент
– отношение строительного объема к общей площади квартиры:
.
| 
|
Рис. 4.1. Порядок вычерчивания плана здания
|
| 
|
Рис. 4.2. Порядок вычерчивания разреза здания
|
| 
|
Рис. 4.3. Порядок вычерчивания фасада здания
|
СПИСОК РЕКОМЕНДУЕМОЙ ЛИТЕРАТУРЫ
1. СНиП II-3-79*. Строительная теплотехника. – М.: Минстрой России, 1995.
2. СНиП 2.08.01-89. Жилые здания / Госстрой СССР. – М.: ЦИТП Госстроя СССР, 1990.
3. СНиП 23-01-99. Строительная климатология / Госстрой России. – М.: Госстрой России, 2000.
4. СНиП 2.02.01-83. Основания зданий и сооружений / Госстрой СССР. – М.: Стройиздат, 1985.
5. Теплотехнический расчет ограждающих конструкций: Метод. указания по выполнению теплотехнического расчета ограждений в курсовом и дипломном проектировании для студентов направления 550100 «Строительство» / Сост.: И.В. Захарова; Кузбасс. гос. техн. ун-т. – Кемерово, 2002.
6. Архитектура гражданских и промышленных зданий: Гражданские здания / А.В. Захаров, Т.Г. Маклакова, А.С. Ильяшев и др.; Под общ. ред. А.В. Захарова. – М.: Стройиздат, 1993.
7. Архитектура гражданских и промышленных зданий. Т. III. Жилые здания / Под ред. К.К. Шевцова. – М.: Стройиздат, 1983.
8. Архитектурные конструкции гражданских зданий / С.Б. Дехтяр, Л.И. Армановский, В.С. Диденко, Д.В. Кузнецов. – Киев: Будивэльнык, 1987.
9. Архитектурные конструкции гражданских зданий / В.С. Волга, Л.И. Армановский, С.Б. Дехтяр и др. – Киев: Будивэльнык, 1988.
10. Конструкции гражданских зданий: Учеб. пособие для вузов / Т.Г. Маклакова, С.М. Нанасова, Е.Д. Бородай, В.П. Житков; Под ред. Т.Г. Маклаковой. – М.: Стройиздат, 1986.
11. Маклакова Т.Г. Проектирование жилых и общественных зданий / Т.Г. Маклакова, С.М. Нанасова, В.Г. Шарапенко. – М.: Высш. шк., 1998.
12. Шерешевский И.А. Конструирование гражданских зданий. – Л.: Стройиздат, 1981.
13. Будасов Б.В. Строительное черчение / Б.В. Будасов, В.П. Каминский. – М.: Стройиздат, 1990.
14. Русскевич Н.Л. Справочник по инженерно-строительному черчению. – Киев: Будивэльнык, 1987.
Составитель
Ирина Викторовна Захарова
МАЛОЭТАЖНЫЙ ЖИЛОЙ ДОМ
Методические указания
по выполнению курсовой работы № 1
по архитектуре для студентов специальностей
290300 «Промышленное и гражданское строительство»,
290800 «Водоснабжение и водоотведение»,
291500 «Экспертиза и управление недвижимостью»
Редактор О. А. Вейс
Подписано в печать 20.05.2004. Формат 60×84/16.
Бумага офсетная. Отпечатано на ризографе. Уч.-изд. л. 1,6.
Тираж 206 экз. Заказ
ГУ КузГТУ. 650026, Кемерово, ул. Весенняя, 28.
Типография ГУ КузГТУ. 650099, Кемерово, ул. Д. Бедного, 4а.
|