| Федеральное агентство по образованию Российской Федерации
Бийский технологический институт (филиал)
Государственного образовательного учреждения
высшего профессионального образования
«Алтайский государственный технический университет
имени И. И. Ползунова»
Г.И. Куничан, О.Р. Светлова, Л.И. Идт, Т.Н. Смирнова, Н.С. Левина
Основные требования при выполнении курсовой работы по дисциплине «Машиностроительное черчение»
Методические рекомендации по организации самостоятельной работы студентов специальностей 170104, 240706, 260601, 160302, 151001
Бийск 2009
УДК 515,(075.8)
Рецензент: Легаев А.И., каф. МАХиПП
Куничан, Г.И. «Основные требования при выполнении курсовой работы по дисциплине «Машиностроительное черчение»»: Методические рекомендации по организации самостоятельной работы студентов специальностей 170104, 240706, 260601, 160302, 151001 / Г.И. Куничан, О.Р. Светлова, Л.И. Идт, Т.Н. Смирнова, Н.С. Левина
Алт. гос. техн. ун-т, БТИ. – Бийск:
Изд-во Алт. гос. техн. ун-та, 2009. – 22 с.
В методических рекомендациях представлены сведения о содержании, организации выполнения, оформлении курсовых работ (проектов) по дисциплине «Машиностроительное черчение». Методические указания предназначены для студентов всех форм обучения.
УДК 515,(075.8)
Рассмотрены и одобрены
на заседании кафедры
технической графики.
Протокол № 56 от 08.12.2009 г.
Ó Куничан Г.И., Светлова О.Р., Идт Л.И., Смирнова Т.Н., Левина Н.С.
ÓБТИ АлтГТУ, 2009
ВВЕДЕНИЕ
Курсовое проектирование является одним из важнейших видов подготовки будущего специалиста. Это, также, основной вид самостоятельной работы студента в учебном семестре. В завершение выполнения курсовой работы (проекта) студент защищает ее, приобретая опыт публичного представления собственной конструкторской разработки.
В методических рекомендация по курсовому проектированию приведены основные сведения по организации выполнения курсовой работы (проекта) по разделу «Машиностроительное черчение и инженерная графика». Изложены требования по оформлению пояснительной записки и чертежей. Приведены примеры выполнения заданий на курсовое проектирование. Изложены рекомендации к выполнению отдельных частей курсового проекта. Настоящие методические рекомендации разработаны в соответствии с требованиями СТП 12400-2004.
Забиваем Сайты В ТОП КУВАЛДОЙ - Уникальные возможности от SeoHammer
Каждая ссылка анализируется по трем пакетам оценки: SEO, Трафик и SMM.
SeoHammer делает продвижение сайта прозрачным и простым занятием.
Ссылки, вечные ссылки, статьи, упоминания, пресс-релизы - используйте по максимуму потенциал SeoHammer для продвижения вашего сайта.
Что умеет делать SeoHammer
— Продвижение в один клик, интеллектуальный подбор запросов, покупка самых лучших ссылок с высокой степенью качества у лучших бирж ссылок.
— Регулярная проверка качества ссылок по более чем 100 показателям и ежедневный пересчет показателей качества проекта.
— Все известные форматы ссылок: арендные ссылки, вечные ссылки, публикации (упоминания, мнения, отзывы, статьи, пресс-релизы).
— SeoHammer покажет, где рост или падение, а также запросы, на которые нужно обратить внимание.
SeoHammer еще предоставляет технологию Буст, она ускоряет продвижение в десятки раз,
а первые результаты появляются уже в течение первых 7 дней.
Зарегистрироваться и Начать продвижение
График самостоятельной работы студентов приведен в Приложении А. Календарный график сдачи индивидуальных работ и текущего контроля по неделям семестра приведен в Приложении Б.
1 СТРУКТУРА ТЕКСТОВОЙ И ГРАФИЧЕСКОЙ ДОКУМЕНТАЦИИ
Выполненная курсовая работа (проект) должна состоять из текстовых (пояснительная записка и спецификации) и графических документов.
На курсовое проектирование студентам выдается два задания:
а) деталирование сборочного чертежа;
б) создание сборочного чертежа по чертежам, входящих в него деталей.
Деталируемые изделия должны быть представлены в графическом виде. Размер форматов зависит от размеров и сложности детали.
Графические документы, представляющие собой сборочный чертеж, должны быть выполнены на формате А2 или А1, в зависимости от сложности и размеров сборочного узла. Спецификации должны быть выполнены для всех разработанных в ходе курсового проектирования сборочных единиц. Спецификации должны соответствовать ГОСТ 2.108.
2 СТРУКТУРА ПОЯСНИТЕЛЬНОЙ ЗАПИСКИ И ТРЕБОВАНИЯ К ЕЁ ОФОРМЛЕНИЮ
2.1 Структура пояснительной записки
Пояснительная записка курсовой работы (проекта) должна включать в свой состав следующие структурные элементы:
‑ титульный лист.
‑ задание на проектирование;
‑ описание работы сборочного узла;
‑ список использованных источников.
2.2 Содержание и оформление структурных элементов пояснительной записки
2.2.1 Титульный лист
Титульный лист является заглавным листом пояснительной записки, он содержит сведения согласно Приложению В и оформляется на бланке формата А4. Перенос слов на титульном листе не допускается. Точка в конце заголовка не ставится.
3 ТРЕБОВАНИЯ К ОФОРМЛЕНИЮ ПОЯСНИТЕЛЬНОЙ ЗАПИСКИ
3.1 Обозначение документов курсовой работы (проекта)
Курсовые работы (проекты) должны оформляться в соответствии с требованиями государственных стандартов. Все разработанные в ходе курсового проектирования конструкторские документы должны соответствовать стандартам Единой системы конструкторской документации (ЕСКД).
Курсовым работам (документам) присваивается обозначение. Оно проставляется на титульном листе, листах пояснительной записки и на всех чертежах графической части работы, имеющих основные надписи. Обозначение документа состоит из центральной цифровой части, предшествующей и последующей буквенных групп. Например:
КП 04.240706.300 СБ; КП 04.240706.000 ПЗ.
Сервис онлайн-записи на собственном Telegram-боте
Попробуйте сервис онлайн-записи VisitTime на основе вашего собственного Telegram-бота:
— Разгрузит мастера, специалиста или компанию;
— Позволит гибко управлять расписанием и загрузкой;
— Разошлет оповещения о новых услугах или акциях;
— Позволит принять оплату на карту/кошелек/счет;
— Позволит записываться на групповые и персональные посещения;
— Поможет получить от клиента отзывы о визите к вам;
— Включает в себя сервис чаевых.
Для новых пользователей первый месяц бесплатно.
Зарегистрироваться в сервисе
Предшествующая цифровой части буквенная группа КР (КП) обозначает вид учебного документа – курсовая работа (курсовой проект).
Первая группа цифр (04) обозначает вариант задания курсового проекта. Вариант задания, как правило, соответствует двум последним цифрам номера зачётной книжки студента для студентов заочного обучения, для студентов дневной формы обучения соответствует номеру в списке группы.
Вторая группа из шести цифр (240706) обозначает шифр специальности в соответствии с перечнем специальностей (направлений подготовки) высшего профессионального образования (таблица 1).
В третьей группе (300) первая цифра (3) указывает номер сборочной единицы (первого порядка) с первого по девятый. При обозначении документа сборочной единицы указывается цифровая группа от 100 по 900. В учебных чертежах для указанных выше дисциплин и в пояснительной записке третья цифровая группа – 000.
При обозначении документа детали указывается цифровая группа типа 305, 507, 608, в которой первая цифра – номер сборочной единицы (первого порядка), вторая и третья цифры от 01 по 99 – номер детали. Например: КП 04.240706.305 – чертеж пятой детали, входящей в состав третьей сборочной единицы первого порядка.
Последующая буквенная группа обозначает код (шифр, марку) не основного конструкторского документа по ГОСТ 2.102, например:
ПЗ – пояснительная записка;
СБ – сборочный чертеж.
Таблица 1 – Программы высшего профессионального образования
| ОКСО
|
Наименование
|
| 240901
|
Биотехнология
|
| 151001
|
Технология машиностроения
|
| 160302
|
Ракетные двигатели
|
| 260601
|
Машины и аппараты пищевых производств
|
| 240706
|
Автоматизированное производство химических предприятий
|
| 170104
|
Высокоэнергетические устройства автоматических систем
|
| 200106
|
Информационно-измерительная техника и технологии
|
| 190603
|
Сервис транспортных и технологических машин и оборудования (автомобильный транспорт)
|
| 240701
|
Химическая технология органических соединений азота
|
| 240702
|
Химическая технология полимерных композиций, порохов и твердых ракетных топлив
|
| 260204
|
Технология бродильных производств и виноделие
|
3.2 Оформление текста пояснительной записки. Общие требования
Текст пояснительной записки должен быть выполнен аккуратно литературным и технически грамотным языком на одной стороне листа, с применением печатающих и графических устройств вывода ЭВМ (ГОСТ 2.004). При использовании рекомендуется использование гарнитуры шрифта Times New Roman (для текстового редактора Microsoft Word) или GOST type A (для графического редактора КОМПАС). Размер шрифта должен быть 14 пунктов, межстрочный интервал – полуторный. При редактировании документа желательно активировать сервисную функцию «Автоматическая расстановка переносов».
Текст пояснительной записки оформляют на листах, имеющих рамку и основную надпись в соответствии с ГОСТ 2.104; ГОСТ 2.105; ГОСТ 2.106. На первой странице первого раздела основной части пояснительной записки (первая страница литературного обзора) выполняется основная надпись формы 2 по ГОСТ 2.104 (для текстовых конструкторских документов). На последующих листах пояснительной записки выполняются основные надписи формы 2а (для текстовых конструкторских документов). Примеры заполнения основных надписей в пояснительной записке приведены на рисунке 1.
| 
|
Рисунок 1 – Пример оформления листов пояснительной записки
|
| 
|
4 СОДЕРЖАНИЕ ГРАФИЧЕСКИХ
ДОКУМЕНТОВ
4.1 Содержание графических документов для задания «Деталирование»
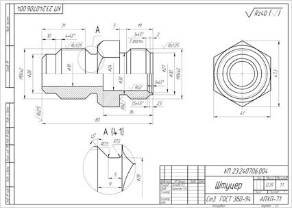
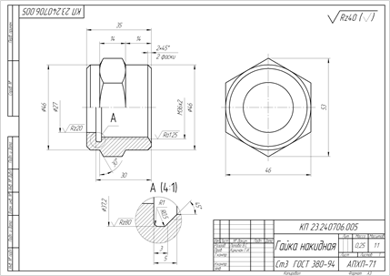
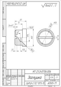
К графическим документам относятся чертежи деталей и их 3D-модели. Графическая часть курсовой работы должна состоять из двенадцати листов, на которых должны быть представлены:
– рабочие чертежи шести указанных деталей узла (рисунки 2 и 3);
– 3D-модели шести указанных деталей.
| 
|
| Рисунок 2 – Пример оформления чертежа
|
| 
|

|
| 
|

|
| 
|

|
| Рисунок 3 – Альбом 2D-деталей
|
4.2 Содержание графических документов для задания «Создание сборочного чертежа»
К графическим документам относятся: сборочный чертеж, альбом 3D-моделей деталей, входящих в сборочный узел, а также 3D-сборка с вырезом и в разборе.
На диске создается папка с названием узла. В ней папка «3D сборка», включающая в себя альбом 3D-моделей и 3D сборочный чертеж, и папка «2D-сборка», содержащая сборочный чертеж, спецификацию и пояснительную записку, например:

На рисунке 4 представлен пример оформления первого раздела папки «3D-сборка» («Альбом 3D-деталей»).
4.3 Оформление графических документов
Графические документы должны быть выполнены с применением графических устройств вывода ЭВМ, на листах стандартных форматов с основной надписью в правом нижнем углу по ГОСТ 2.104.
При выполнении чертежей должны быть соблюдены правила, установленные стандартами ЕСКД. Основные требования к чертежам установлены ГОСТ 2.109. Оформление чертежей, то есть формат, масштаб, линии, чертежные шрифты должны выбираться согласно ГОСТ 2.301; ГОСТ 2.302; ГОСТ 2.303; ГОСТ 2.304. Изображения, виды, разрезы и сечения выполняются по ГОСТ 2.305.
Графические обозначения материалов на чертежах и нанесение размеров необходимо выполнять в соответствии с требованиями ГОСТ 2.306, ГОСТ 2.307. Обозначение шероховатости поверхности на рабочих чертежах деталей и эскизах выполняются по ГОСТ 2.309. Нанесение на чертежах (эскизах) обозначений покрытий, термической и других видов обработки – по ГОСТ 2.310. Изображение резьбы на чертежах выполняется по ГОСТ 2.311. Обозначение швов сварных соединений и условные изображения по ГОСТ 2.312; неразъемные соединения – ГОСТ 2.313. Изображения условные крепёжных деталей по ГОСТ 2.315. Технические требования, надписи и таблицы по ГОСТ 2.316.
Деталирование ‑ это процесс выполнения рабочих чертежей деталей, входящих в изделие, по сборочному чертежу изделия. Это не простое копирование изображений детали из сборочного чертежа, а работа творческая. Порядок выполнения рабочего чертежа детали по сборочному чертежу изделия аналогичен выполнению чертежа детали с натуры. При этом формы и размеры детали определяются при чтении сборочного чертежа.
|
|
|
|
|
|
|
|
|
| Рисунок 4 – Альбом 3D-деталей
|
Наименование детали и ее обозначение определяются по спецификации сборочного чертежа, а марка материала ‑ по описанию, приложенному к учебному сборочному чертежу.
Расположение детали относительно фронтальной плоскости проекций, т. е. ее главный вид, выбирается исходя из общих требований, а не из расположения ее на сборочном чертеже. Число и содержание изображений детали может не совпадать со сборочным чертежом.
На рабочем чертеже должны быть показаны те элементы детали, которые или совсем не изображены, или изображены упрощенно, условно, схематично на сборочном чертеже. К таким элементам относятся:
- литейные и штамповочные скругления, уклоны, конусности;
- проточки и канавки для выхода резьбонарезающего и шлифовального инструмента;
     - внешние и внутренние фаски, облегчающие процесс сборки изделия, и т.п.
Гнезда для винтов и шпилек на сборочных чертежах изображаются упрощенно, а на рабочем чертеже детали гнездо должно быть вычерчено в соответствии с ГОСТ 10549-74. Размеры детали определяются путем замеров (если они не нанесены на чертеже) по сборочному чертежу. При этом нужно следить, чтобы сопрягаемые размеры не имели расхождений. Размеры конструктивных элементов (фасок, проточек, уклонов и т. д.) нужно назначать по соответствующим стандартам, а не по сборочному чертежу.
Размеры шпоночных пазов, шлицев, гнезд под шпильки и винты, центровых отверстий и др. должны быть взяты из соответствующих стандартов на эти элементы. Диаметры отверстий для прохода крепежных изделий (винтов, болтов, шпилек) должны проставляться с учетом характера сборки.
Шероховатость поверхностей деталей определяется по техническим требованиям, описанию, условиям работы изделия и данной детали в изделии.
Чтобы оценить и проставить на чертеже шероховатость поверхностей детали, нужно определить, сопряженной или свободной является данная поверхность, каков характер эксплуатационных требований к ней и др. Для типовых деталей практикой рекомендуются некоторые границы пределов параметров шероховатости:
– рабочие поверхности зубчатых колес имеют шероховатость, отвечающую ;
– привалочные поверхности корпусов, пазы, канавки и проточки – ;
– рабочие поверхности поршневых цилиндров – ;
– отверстия под болты, винты, штифты – .
Обозначение сборочного чертежа и спецификации соответствующей сборочной единицы должно быть одинаковым. Для различия обозначения чертежа и спецификации сборочному чертежу присваивают шифр «СБ», проставляемый в конце обозначения, а спецификации шифр не присваивается. Сборочному чертежу, совмещенному со спецификацией, буквенный шифр «СБ» не присваивается.
Чертеж общего вида (шифр ВО) определяет конструкцию изделия, взаимодействие его основных частей и поясняет принцип работы изделия. Этот чертеж должен содержать изображение изделия (виды, разрезы, сечения), текстовую часть и надписи, необходимые для понимания конструктивного устройства изделия, взаимодействия его составных частей, принципа работы. На чертежах общего вида указываются габаритные, установочные и присоединительные размеры, номера всех сборочных единиц и деталей в соответствии со спецификацией, технические требования к изделию (информация о применении покрытий, методах сварки и т.п.), необходимые для последующей разработки рабочих чертежей.
По сборочному чертежу определяется соединение деталей в сборочные единицы и мелких сборочных единиц в крупные. Правила оформления сборочных чертежей установлены ГОСТ 2.301-68 – ГОСТ 2.321-84. Сборочный чертеж должен содержать:
– изображение сборочной единицы, дающее представление о расположении и взаимной связи составных частей, соединяемых по данному чертежу;
– сведения, обеспечивающие возможность сборки и контроля сборочной единицы;
– размеры, предельные отклонения и другие параметры и требования, которые должны быть проконтролированы или выполнены по сборочному чертежу;
– указания о характере сопряжения и методах его осуществления, если точность сопряжения обеспечивается при сборке (подбор деталей, их установка и т.д.);
– указания о способе выполнения неразъемных соединений (сварных, паяных и др.);
– номера позиций составных частей, входящих в изделие;
– основные характеристики изделия;
– габаритные размеры, определяющие внешние или внутренние очертания изделия;
– присоединительные размеры, по которым изделие присоединяется к другим изделиям;
– установочные размеры, по которым изделие устанавливается на месте монтажа;
– необходимые справочные размеры и т.п.
При изображении изделия на сборочном чертеже помимо видов могут применяться разрезы и сечения, поясняющие форму и расположение деталей, входящих и изделие.
Таким образом, сборочный чертеж содержит изображение сборочной единицы и другие данные, необходимые для ее сборки (изготовления) и контроля.
Чтение сборочного чертежа ‑ это процесс определения конструкции, размеров и принципа работы изделия по его чертежу. Можно рекомендовать такую последовательность чтения сборочного чертежа изделия:
– по основной надписи определить наименование изделия и масштаб изображения;
– по изображениям выяснить, какие виды, разрезы, сечения выполнены на чертеже, и назначение каждого из них;
– прочитать технические требования на чертеже и проставленные размеры;
– по спецификации определить название каждой детали, определить изображение ее на чертеже;
– установить способы соединения деталей между собой и их взаимодействие, определить пределы перемещения подвижных деталей;
– последовательно для каждой детали, входящей в сборочную единицу, выяснить ее геометрические формы и размеры, т. е. определить конструкцию детали;
– мысленно представить внешние и внутренние формы изделия в целом и разобраться в его работе;
– определить порядок разборки и сборки изделия, т. е. порядок отделения одной детали от другой, как это делается при демонтаже изделия.
На рисунке 5 представлено 3D-изображение сборки с вырезом ¼ части и с разнесением компонентов, а на рисунке 5 приведен пример оформления сборочного чертежа обратного двойного клапана.
| 
|
|
|
| Рисунок 5 – 3D-сборка с вырезом и с разнесением компонентов
|
| 
|
| Рисунок 6 – Пример оформления сборочного чертежа
|
4.4 Составление спецификации
Спецификация выполняется на отдельных листах формата А4 на каждую сборочную единицу. Листы спецификации брошюруются в конце пояснительной записки. Спецификация выполняется в соответствии с ГОСТ 2.108-68. По стандарту спецификация состоит из восьми разделов, для курсовых и дипломных проектов рекомендуется только четыре: "Документация", "Сборочные единицы", "Детали", "Стандартные изделия" (рисунок 7).
В раздел "Документация" вносят документы, составляющие основной комплект конструкторских документов (при курсовом и дипломном проектировании – сборочный чертеж, чертеж общего вида, схемы, расчетно-пояснительная записка).
В разделах "Сборочные единицы" и "Детали" запись изделий осуществляется в порядке возрастания цифр, входящих в их обозначения.
В разделе "Стандартные изделия" вначале записываются изделия по государственным, затем по отраслевым стандартам (нормалям). Запись производится по однородным группам (например, крепежные изделия, электрохимические изделия и т.п.), в пределах каждой группы – в алфавитном порядке наименования изделий, в пределах каждого наименования – в порядке возрастания обозначения стандартов, а в пределах обозначения каждого стандарта – в порядке возрастания основных параметров или размеров изделия (диаметр болтов и т.п.).
Графы "Формат" и "Зона" в чертежах курсовых и дипломных проектов можно не заполнять. В графе "Поз." указывается порядковый номер составных частей изделия в последовательности записи их в спецификацию (такие же номера позиций проставляются на чертежах сборочных единиц).
В графе "Обозначение" указывается обозначение (шифр) чертежа составных частей изделия. В разделе "Стандартные изделия" эту графу не заполняют.
В графе "Наименование" указывают наименование изделий. Для стандартных изделий – наименование и условное обозначение в соответствии со стандартом, например:
Болт П2М56 × 4,6g × 160.02.C.029 ГОСТ 18126-72.
В графе "Кол." указывают количество составных частей на одно разрабатываемое изделие. В графе "Примечание" размещают, если необходимо, дополнительные сведения: отраслевые нормали, покрытия деталей и т.д.
| 
|
| Рисунок 7 – Пример оформления спецификации
|
5 Рекомендуемая литература
1. Боголюбов, С.К. Черчение / С.К. Боголюбов – 2 изд., испр. – М.: Машиностроение, 1989. – 336 с.: ил. (247 шт.)
2. Левицкий, В.С. Машиностроительное черчение / В.С. Левицкий – М.: Высшая школа, 1988. – 351 с.: ил (145 шт.)
3. Мерзон, Э.Д. Машиностроительное черчение / Э.Д. Мерзон, И.Э. Мерзон, Н.В. Медведовская – М.: Высшая школа, 1987. – 335 с.: ил.
4. Фролов, С.А. Машиностроительное черчение / С.А. Фролов, А.В. Воинов, Е.Д. Феоктистова – М.: Машиностроение, 1981
5. Стандарты ЕСКД.
6. Кудрявцев, Е.М.: Компас – 3D V8: Наиболее полное руководство /Е.М. Кудрявцев. – М.: ДМК Пресс, 2006
7. Потемкин, А.Е. Твердотельное моделирование в системе КОМПАС-3D /А.Е. Потемкин – СПб.: БХВ-Петербург, 2004. – 512 с.: ил.
8. Куничан, Г.И. Создание 3D-модели простой геометрической формы: методические рекомендации по выполнению лабораторных и практических работ в системе КОМПАС-ГРАФИК для студентов специальностей 240901, 151001, 160302, 260601, 240706, 170104, 200106, 190603, 240702, 220501 / Г.И. Куничан, Т.Н. Смирнова; Алт. гос. тех. ун-т, БТИ. – Бийск. Изд-во Алт. гос. тех. ун-та, 2008. – 32 с.
9. Герасимов, А.А. Самоучитель Компас-3D V8 / А.А. Герасимов – СПб.: БХВ-Петербург, 2006. – 544 с.: ил.
6 Перечень государственных стандартов и
образовательных стандартов Алт ГТУ, используемых в
учебной дисциплине
В настоящих методических рекомендациях использованы следующие стандарты:
ГОСТ 2.004-88 ЕСКД. Общие требования к выполнению конструкторских и технологических документов на печатающих и графических устройствах вывода ЭВМ;
ГОСТ 2.102-68 ЕСКД. Виды и комплектность конструкторских документов;
ГОСТ 2.103-68 ЕСКД. Стадии разработки;
ГОСТ 2.104-68 ЕСКД. Основные надписи;
ГОСТ 2.105-95 ЕСКД. Общие требования к текстовым документам;
ГОСТ 2.106-96 ЕСКД. Текстовые документы;
ГОСТ 2.108-96 ЕСКД. Спецификация;
ГОСТ 2.109-73 ЕСКД. Основные требования к чертежам;
ГОСТ 2.119-73 ЕСКД. Эскизный проект;
ГОСТ 2.120-73 ЕСКД. Технический проект;
ГОСТ 2.301-68 ЕСКД. Форматы;
ГОСТ 2.302-68 ЕСКД. Масштабы;
ГОСТ 2.303-68 ЕСКД. Линии;
ГОСТ 2.304-81 ЕСКД. Шрифты чертежные;
ГОСТ 2.305-68 ЕСКД. Изображения-виды, разрезы, сечения;
ГОСТ 2.306-68 ЕСКД. Обозначения графические материалов и правила их нанесения на чертежах;
ГОСТ 2.307-68 ЕСКД. Нанесение размеров и предельных отклонений;
ГОСТ 2.308-79 ЕСКД. Указание на чертежах допусков форм и расположения поверхностей;
ГОСТ 2.309-73 ЕСКД. Обозначение шероховатости поверхностей;
ГОСТ 2.310-68 ЕСКД. Нанесение на чертежах обозначений покрытий, термической и других видов обработки;
ГОСТ 2.311-68 ЕСКД. Изображения резьбы;
ГОСТ 2.312-72 ЕСКД. Условные изображения и обозначения швов сварных соединений;
ГОСТ 2.313-82 ЕСКД. Условные изображения и обозначения неразъемных соединений;
ГОСТ 2.315-68 ЕСКД. Изображения упрощенные и условные крепежных деталей;
ГОСТ 2.316-68 ЕСКД. Правила нанесения на чертежах надписей, технических требований и таблиц;
ГОСТ 2.605-68 ЕСКД. Плакаты учебно-технические. Общие технические требования;
ГОСТ 7.1-2003 СИБИД. Библиографическое описание документа. Общие требования и правила составления;
ГОСТ 7.12-93 СИБИД. Библиографическая запись. Сокращения слов на русском языке. Общие требования и правила;
ГОСТ 7.32-2001 СИБИД. Отчет о научно-исследовательской работе. Структура и правила оформления;
ГОСТ 8.417-2002 ГСИ. Единицы физических величин;
ГОСТ 25.346-89 ЕСДП. Основные нормы взаимозаменяемости. Общие положения, ряды допусков и основных отклонений;
ГОСТ 25.347-82 ЕСДП. Основные нормы взаимозаменяемости. Поля допусков и рекомендуемые посадки;
СТП 12400-2004 Образовательный стандарт высшего профессионального образования АлтГТУ. Курсовой проект (курсовая работа). Общие требования к содержанию, организации выполнения и оформлению.
Приложение А
График аудиторных занятий и самостоятельной работы студентов
| Наименование вида работ
|
Номер недели
|
| 1
|
2
|
3
|
4
|
5
|
6
|
7
|
8
|
9
|
10
|
11
|
12
|
13
|
14
|
15
|
16
|
17
|
| IV семестр
|
| СРС
|
Х
|
Х
|
Х
|
Х
|
Х
|
Х
|
Х
|
Х
|
Х
|
Х
|
Х
|
Х
|
Х
|
Х
|
Х
|
Х
|
Х
|
| Графич. работы
|
Х
|
Х
|
Х
|
Х
|
Х
|
| Контрольные работы
|
Х
|
УЧЕБНО-МЕТОДИЧЕСКАЯ КАРТА ДИСЦИПЛИНЫ
| № не- дели
|
№
темы
|
Занятие (номер)
|
Самостоятельная работа
|
Форма контроля
|
| практические
|
Содержание
|
Часы в т.ч. с ПК
|
| IV семестр
|
| 1
2
3
|
7
|
1
2
3
|
Рабочие чертежи шести деталей
|
10
|
Защита чертежей
|
| 4
5
6
|
8
|
4
5
6
|
Аксонометрия
двух деталей
|
5
|
Защита чертежей
|
| 7
8
9
10
|
9
10
|
7
8
9
9
|
Выполнение сборочного чертежа
|
20
|
Защита чертежей
Контрольная работа
Заключительное тестирование
|
| № темы
|
Содержание дисциплины
|
Объем в часах
|
| 7
|
Деталирование сборочной единицы. Последовательность чтения сборочной единицы. Нанесение на чертеж надписей, технических требований, таблиц. Применение графического редактора при выполнении 2D-чертежей
|
15
|
| 8
|
Сборочный чертеж. Ознакомление со сборочной единицей. Паспорт сборочной единицы (схема сборки, пояснительная записка к сборочному чертежу), спецификация. Нанесение позиций. Основная надпись чертежа сборочной единицы, простановка размеров. Условности и упрощения, применяемые при вычерчивании сборочного чертежа. Применение графического редактора при выполнении 3D-чертежей и 3D-сборок
|
16
|
| 9
|
Кинематические схемы. Пневматические схемы.
Гидравлические схемы
|
2
|
| 10
|
Строительное черчение. Ознакомление со строительным чертежом
|
2
|
| ИТОГО
|
35
|
Приложение Б
ГРАФИК УЧЕБНОГО ПРОЦЕССА СТУДЕНТОВ 2
КУРСА
факультета Химической технологии и машиностроения
группы АПХП
в 4
семестре
20___/20___ уч. года Теоретические знания _____________ недель
| Виды и объемы аудит. Занятий по уч. плану, ч.
|
Виды и объемы самостоятельной работы, ч.
|
| Наименование дисциплины
|
Л
|
ЛР
|
П
|
Н
|
К-П
|
Всего за семестр
|
Подготовка к очередным занятиям
|
Подготовка к текущему контролю
|
Выполнение индивидуальных заданий
|
Всего за семестр
|
| Л
|
ЛР
|
П
|
Н
|
К
|
КР
|
КО
|
К-П
|
К-Р
|
Р
|
РЗ
|
| Инженерная графика (IV)
|
35
|
35
|
ВСЕГО часов в неделю аудиторных занятий – в IV семестре ч.
ВСЕГО часов в неделю самостоятельной работы – в IV семестре 2
ч.
Общая недельная загрузка – в IV семестре 2
ч.
| Наименование дисциплины
|
Календарный график сдачи индивидуальных работ и текущего контроля по неделям семестра
|
Заканчивается ли дисциплина в данном семестре
|
Форма проверки знаний
|
Примечание
|
| 1
|
2
|
3
|
4
|
5
|
6
|
7
|
8
|
9
|
10
|
11
|
12
|
13
|
14
|
15
|
16
|
17
|
18
|
Да
Нет
|
Зач.
|
Экз.
|
| IV семестр
|
| П
|
| РЗ
|
Х
|
Х
|
Х
|
Х
|
Х
|
| Кр
|
Х
|
| КР
|
УСЛОВНЫЕ ОБОЗНАЧЕНИЯ:
П – практические занятия
Кр – контрольная работа
Л – лекция
Р-З – расчетно-графическое задание
КР – курсовая работа
Приложение В
Форма и пример заполнения титульного листа

Содержание
| Введение
|
3
|
| 1
|
Структура текстовой и графической документации
|
3
|
| 2
|
Структура пояснительной записки и требования к её оформлению
|
3
|
| 2.1 Структура пояснительной записки
|
3
|
| 2.2 Содержание и оформление структурных элементов пояснительной записки
|
4
|
| 2.2.1 Титульный лист
|
4
|
| 3
|
Требования к оформлению пояснительной записки
|
4
|
| 3.1 Обозначение документов курсовой работы (проекта)
|
4
|
| 3.2 Оформление текста пояснительной записки. Общие требования
|
5
|
| 4
|
Содержание графических документов
|
7
|
| 4.1 Содержание графических документов для задания «Деталирование»
|
7
|
| 4.2 Содержание графических документов для задания «Создание
сборочного чертежа»
|
9
|
| 4.3 Оформление графических документов
|
9
|
| 4.4 Составление спецификации
|
15
|
| 5
|
Рекомендуемая литература
|
17
|
| 6
|
Перечень государственных стандартов и образовательных стандартов Алт ГТУ, используемых в учебной дисциплине
|
17
|
| Приложение А. График аудиторных занятий и самостоятельной работы студентов
|
19
|
| Приложение Б. График учебного процесса студентов 2 курса группы АПХП
|
20
|
| Приложение В. Форма и пример заполнения титульного листа
|
21
|
|