| ФЕДЕРАЛЬНОЕ АГЕНСТВО ПО ОБРАЗОВАНИЮ
Государственное образовательное учреждение высшего
профессионального образования
«БРАТСКИЙ ГОСУДАРСТВЕННЫЙ УНИВЕРСИТЕТ»
ТЕХНОЛОГИЯ ДЕРЕВООБРАБАТЫВАЮЩИХ
ПРОИЗВОДСТВ
Учебно-методическое пособие по дипломному проектированию
для студентов специальности 250403 «Технология деревообработки» всех форм обучения
Издательство Братского государственного университета
Братск 2009
УДК 674.05
Технология деревообрабатывающих производств. Учебно-методическое пособие по дипломному, проектированию для студентов специальности 250403.65 всех форм обучения
В.С.Кузнецов, С.В. Денисов, И.Н.Челышева , С.Н. Трошкин
А.В. Мазаник, А.В. Новосёлов, Л.И.Сергеева, С.Х. Симонян,
А.А. Симикова. – Братск.: ГОУ ВПО «БрГУ», 2009. - с.
Учебно-методическое пособие предназначено для студентов всех форм обучения специальности 250403.65 "Технология деревообработки"
В пособии кратко излагается содержание дипломного проекта, определены цели и задачи дипломного проектирования, наиболее характерные темы дипломных проектов деревообрабатывающей отрасли промышленности. Приводится примерный порядок работы студента при дипломном проектировании, порядок оформления, утверждения и защиты дипломного проекта. Приводится перечень необходимой для проектирования учебной, нормативно-справочной и методической литературы.
Рецензенты
СОДЕРЖАНИЕ
Введение........................................................................................ 6
1. Цель и задачи дипломного проектирования............................ 7
2. Порядок работы над дипломным проектом............................ 7
3. Организация защиты проектов................................................. 9
4. Тематика дипломного проектирования................................. 10
5. Состав дипломного проекта................................................... 13
5.1. Рекомендуемая структура расчетно-пояснительной записки и графической части дипломного проекта........................................................................................ 15
5.2. Вариант структуры технологической части по производству пиломатериалов 18
5.3. Вариант структуры технологической части по деревообработке 19
Забиваем Сайты В ТОП КУВАЛДОЙ - Уникальные возможности от SeoHammer
Каждая ссылка анализируется по трем пакетам оценки: SEO, Трафик и SMM.
SeoHammer делает продвижение сайта прозрачным и простым занятием.
Ссылки, вечные ссылки, статьи, упоминания, пресс-релизы - используйте по максимуму потенциал SeoHammer для продвижения вашего сайта.
Что умеет делать SeoHammer
— Продвижение в один клик, интеллектуальный подбор запросов, покупка самых лучших ссылок с высокой степенью качества у лучших бирж ссылок.
— Регулярная проверка качества ссылок по более чем 100 показателям и ежедневный пересчет показателей качества проекта.
— Все известные форматы ссылок: арендные ссылки, вечные ссылки, публикации (упоминания, мнения, отзывы, статьи, пресс-релизы).
— SeoHammer покажет, где рост или падение, а также запросы, на которые нужно обратить внимание.
SeoHammer еще предоставляет технологию Буст, она ускоряет продвижение в десятки раз,
а первые результаты появляются уже в течение первых 7 дней.
Зарегистрироваться и Начать продвижение
5.4. Вариант структуры технологической части по производству фанеры 20
5.5. Вариант структуры технологической части по производству мебели 20
5.6. Вариант структуры технологической части по сушке и гидротермической обработке древесины..................................................................................................... 21
6. Методические рекомендации по выполнению отдельных разделов 22
6.1. Общая часть.................................................................... 22
6.2. Технологическая часть................................................... 23
6.3. Конструкторская часть................................................... 23
6.4. Научно-исследовательская часть................................... 24
6.5. Строительная часть......................................................... 25
6.6. Охрана труда................................................................... 26
6.7. Безопасность жизнедеятельности.................................. 27
6.8. Экологическая часть....................................................... 28
6.9. Экономическая часть...................................................... 29
7. Требования к оформлению дипломных проектов................. 30
7.1. Оформление текстовых документов дипломного проекта 30
7.2. Основные правила оформления графических документов 36
7.3. Оформление таблиц........................................................ 45
7.4. Оформление диаграмм................................................... 49
7.5. Правила выполнения основной надписи («штампа») графических и текстовых документов 52
7.6. Основные правила выполнения чертежей дипломных проектов, связанных с технологией производства............................................................................... 53
7.7. Общие требования к чертежам всех частей дипломного проекта 55
7.8. Оформление чертежей разрезов зданий........................ 57
7.9. Особенности оформления чертежей технологии производства 58
8. Список рекомендуемой литературы по технологии деревообрабатывающих производств 59
8.1.- по технологии лесопильных производств.................... 59
8.2. - по технологии изделий из древесины.......................... 59
8.3. - по гидротермической обработке древесины............... 60
8.4. - по технологии клееных материалов (фанеры)............ 60
8.5. - по технологии защитно-декоративных покрытий...... 62
8.6. - по технологии производства плитных материалов (ДСтП, ДВП и др) 62
Сервис онлайн-записи на собственном Telegram-боте
Попробуйте сервис онлайн-записи VisitTime на основе вашего собственного Telegram-бота:
— Разгрузит мастера, специалиста или компанию;
— Позволит гибко управлять расписанием и загрузкой;
— Разошлет оповещения о новых услугах или акциях;
— Позволит принять оплату на карту/кошелек/счет;
— Позволит записываться на групповые и персональные посещения;
— Поможет получить от клиента отзывы о визите к вам;
— Включает в себя сервис чаевых.
Для новых пользователей первый месяц бесплатно.
Зарегистрироваться в сервисе
8.7.- по научным исследованиям.......................................... 63
8.8. - по безопасности жизнедеятельности.......................... 63
8.9. - по конструкторской части ДП...................................... 64
8.10 – по охране труда........................................................... 65
8.11 – по экономике.............................................................. 65
8.12. Перечень, периодических изданий для использования в дипломном проектировании 66
8.12.1. Журналы.......................................................... 66
9. Электронные адреса сайтов по деревообработке в Интернете 66
9.1. OSB и MDF плиты........................................................... 66
9.2. Пропитки антисептики, огнезащитные пропитки и другие средства защиты древесины и дерева..................................................................................................... 66
9.3. Биоэнергетика.................................................................. 67
9.4. Комплексное использование древесины........................ 67
9.5. Оборудование для переработки круглых лесоматериалов 67
9.6. Малоэтажное домостроение........................................... 67
9.7. Наполнители и модификаторы клеев в деревообработке 68
9.8. Технология клееных материалов и плит........................ 68
9.9. Защитно-декоративная отделка древесины................... 68
9.10. Современные клеи в деревообработке......................... 68
9.11. Оборудование лесопиления.......................................... 69
9.12. Производство фанеры................................................... 69
9.13. Сушка древесины.......................................................... 69
9.14. Производство клееного бруса...................................... 69
9.15. Деревообрабатывающее оборудование....................... 69
ПРИЛОЖЕНИЕ 1. Примерное содержание отзыва руководителя дипломного проекта 70
ПРИЛОЖЕНИЕ 2. Примерное содержание рецензии на дипломный проект 71
ПРИЛОЖЕНИЕ 3 Основные размеры формы 1 и 3................. 73
ПРИЛОЖЕНИЕ 4 Образец заполнения формы 1 и 3............... 74
ПРИЛОЖЕНИЕ 5 Основная надпись первого листа текстового документа 75
ПРИЛОЖЕНИЕ 6 Образец заполнения первого листа спецификации 76
ПРИЛОЖЕНИЕ 7 Образец второго листа спецификации........ 77
ПРИЛОЖЕНИЕ 8 Образец спецификации оборудования........ 78
ПРИЛОЖЕНИЕ 9 Образец содержания дипломного проекта. 79
ПРИЛОЖЕНИЕ 10 Условные изображения подъемно-транспортного
оборудования (ГОСТ 21.112)..................................................... 80
ПРИЛОЖЕНИЕ 11 Пример выполнения чертежа дипломного проекта 82
Список использованных источников......................................... 83
ВВЕДЕНИЕ
Современный инженер должен быть специалистом высокой квалификации, обладающим хорошей теоретической и практической подготовкой. Он должен уметь читать, разрабатывать и оформлять техническую документацию (чертежи, расчеты, таблицы, описания, инструкции и т.д.), необходимую и достаточную для реального изготовления спроектированного изделия.
Дипломный проект является завершающим этапом подготовки студентов ВУЗа к самостоятельной практической работе на предприятиях деревообрабатывающей промышленности. В процессе дипломного проектирования студент должен проявить творческую инициативу, самостоятельность, показать глубокие теоретические знания и способность решать конкретные производственные задачи.
Учебно-методическое пособие составлено применительно к тематике дипломного проектирования по технологии деревообрабатывающих производств, учитывает тематику и особенности дипломных проектов непосредственно связанных с этими производствами. Оно поможет правильно определить объем необходимых материалов для дипломного проекта и разработать достаточно полный проект современного технологического процесса, пригодный к внедрению в конкретных условиях отдельного предприятия.
В учебно-методическом пособии приводится подробная структура дипломного проекта с кратким пояснением возможных вариантов разработки отдельных обязательных и дополнительных его разделов.
Данное пособие не подменяет учебную и другую техническую литературу. Дипломник обязан самостоятельно подобрать для работы над проектом материал и творчески на высоком уровне решить поставленные перед ним задачи на основе достижений современной науки и техники.
1. ЦЕЛЬ И ЗАДАЧИ ДИПЛОМНОГО ПРОЕКТИРОВАНИЯ
Дипломное проектирование является завершающим и самым важным этапом процесса обучения. Целью дипломного проектирования является:
- систематизация, закрепление и углубление теоретических знаний;
- практическое применение полученных знаний при решении конкретных научных, технических, экономических, социальных и производственных задач;
- развитие навыков ведения самостоятельной работы при решении поставленных вопросов;
- овладение методикой проведения теоретических и экспериментальных исследований и способами обработки полученных результатов;
- выяснение подготовленности студентов для самостоятельной работы в условиях современного производства, прогресса науки и техники.
В дипломном проекте должны разрабатываться актуальные производственные задачи с учетом условий производства и перспективы его развития, а принимаемые в проекте решения должны быть реально выполнимы и иметь максимальную экономическую эффективность. Для этой цели все проектные решения должны разрабатываться с учетом последних достижений в области технологии, техники и организации лесопильных, деревообрабатывающих, мебельных и других производств.
2. ПОРЯДОК РАБОТЫ НАД ДИПЛОМНЫМ ПРОЕКТОМ
Дипломный проект выполняется на основе изучения и анализа научно-технической литературы по проблемам, решаемым в проекте. После изучения литературных источников студент разрабатывает план мероприятий по выполнению поставленных в проекте задач. За принятые в дипломном проекте решения и за правильность всех данных отвечает студент - автор проекта.
Получив задание на дипломное проектирование, студент должен:
Ознакомиться с объектом реконструкции или строительства. Изучить состояние вопроса.
Ознакомиться с научно-технической литературой по теме выданного задания.
Ознакомиться с передовыми прогрессивными мировыми достижениями в соответствующей области технологии. Изучить и проанализировать опыт работы аналогичных предприятий, оценив достоинства и недостатки технологических процессов.
Наметить мероприятия по совершенствованию (реконструкции) или проектированию современного технологического процесса.
Разработать генплан предприятия и планы цехов (участков).
Провести необходимые технологические и конструкторские расчеты с разработкой графического материала.
Выполнить необходимые расчеты в разделах «Охрана труда», «БЖД», «Экология»
Выполнить технико-экономические расчеты.
Сделать выводы по проекту.
Законченный дипломный проект, подписанный студентом и консультантами, представляется для проверки руководителю. После просмотра и одобрения дипломного проекта, руководитель подписывает его и составляет свой письменный отзыв. Далее дипломный проект в полном объеме представляется на нормоконтроль, где все графические и текстовые материалы проходят тщательную проверку на правильность их оформления и соответствия требованиям, ЕСКД и СПДС. Нормоконтроль проводит, как правило, преподаватель выпускающей кафедры, назначенный деканом факультета ответственным за нормоконтроль. При неудовлетворительном ходе дипломного проектирования или при значительном отставании от календарного графика заведующий кафедрой может принять решение о недопуске дипломника к защите, как несправившегося с заданием. Этот вопрос рассматривается на заседании кафедры с участием руководителя.
Дипломный проект или его часть, выполненная не в соответствии с требованиями ЕСКД и ЕСТД, возвращается студенту на исправления и доработку. Дипломный проект, прошедший нормоконтроль, вместе с письменным отзывом руководителя проекта, представляется студентом заведующему выпускающей кафедрой.
Заведующий кафедрой на основании представленных материалов решает вопрос о допуске студентов к защите. Дипломный проект, допущенный к защите, направляется заведующим кафедрой на рецензию к ведущим специалистам соответствующих производств. После получения результатов рецензии, студент допускается для защиты дипломного проекта в Государственную аттестационную комиссию (ГАК).
3. ОРГАНИЗАЦИЯ ЗАЩИТЫ ПРОЕКТОВ
К защите дипломных проектов допускаются студенты, выполнившие все требования учебного плана, программ обучения и успешно сдавшие государственный экзамен по специальности. До начала защиты дипломного проекта в ГАК представляются следующие документы:
I. Справка декана факультета о выполнении студентом учебного плана и полученных им оценках;
2. Отзыв руководителя;
3. Рецензия на дипломный проект.
Защита дипломных проектов может проводиться, как в ВУЗе, так и на предприятиях, для которых тематика защищаемых проектов представляет практический интерес. Защита проекта проводится на открытом заседании ГАК и не должна превышать для каждого проекта 30 минут, при этом, на доклад студенту предоставляется не более 10-15 минут. По окончании доклада члены комиссии задают вопросы, как по теме проекта, так и по общетехническим областям знаний.
В своем докладе студент должен кратко и четко доложить содержание основных разделов проекта, выделить оригинальность принятых решений с их обоснованием. Заканчивать доклад следует анализом технико-экономических показателей.
К докладу следует готовиться заблаговременно, написать текст доклада и выучить его, однако пользоваться текстом доклада во время защиты не рекомендуется.
После окончания защиты проекта зачитываются отзыв руководителя и рецензия, затем студенту предоставляется заключительное слово для ответа на замечания по проекту.
По результатам защиты дипломного проекта выставляется оценки "отлично", "хорошо", "удовлетворительно", "неудовлетворительно". Студентам, защитившим дипломный проект на положительную оценку, решением ГАК присваивается квалификация инженера по специальности 250403 «Технология деревообработки». Проекты могут быть рекомендованы к внедрению, опубликованию или участию в конкурсе. За особые успехи в учебе и защиту проекта с оценкой "отлично" студенты могут быть рекомендованы для продолжения обучения в аспирантуре.
В том случае, если защита дипломного проекта признается неудовлетворительной, ГАК устанавливает, может ли студент представить к повторной защите тот же проект с соответствующей доработкой, или же обязан разработать новую тему.
4. ТЕМАТИКА ДИПЛОМНОГО ПРОЕКТИРОВАНИЯ
Темы дипломных проектов должны быть определены и утверждены приказом ректора до начала преддипломной практики. Часть практики посвящается сбору конкретных материалов в соответствии с темой дипломного проекта. В процессе сбора материалов дипломник уточняет перечень мероприятий, которые требуется провести, для повышения эффективности данного производства или проектирования нового и в соответствии с этим, окончательно утверждается тема дипломного проекта.
По специальности 250403.65 «Технология деревообработки» могут разрабатываться различные, в зависимости от вида производств, дипломные проекты, причем одни из них предусматривают проектирование новых, другие - реконструкцию действующих цехов, заводов или участков, совершенствование технологических режимов и рекомендаций, полученных по выводам научно-исследовательских работ.
В зависимости от вида производства тематика дипломных проектов может быть следующей:
4.1. Технология лесопильного производства
- Проект лесопильного цеха на базе .......... ..... завода (комбината, предприятия).
- Проект участка по переработке тонкомерной древесины на ..... заводе (комбинате, предприятии).
- Проект лесопильного цеха на базе фрезернобрусующих станков.
- Проект лесопильного цеха по переработке крупномерного сырья.
- Проект двухрамного лесопильного цеха.
- Проект лесопильного цеха на базе круглопильных станков.
- Проект лесопильного цеха на базе ленточнопильных станков.
- Проект реконструкции лесопильного цеха _______с организацией участка автоматизированной сортировки досок на...........заводе (комбинате, предприятии).
- Проект реконструкции лесопильного цеха на базе ленточнопильных и фрезернопильных станков на ..... заводе (комбинате, предприятии).
- Проект реконструкции _ потока лесопильного цеха на ............ завода (комбината).
4.2. Технология изделий из древесины
- Проект технологии производства корпусной мебели на ........ предприятии (заводе).
- Проект реконструкции цеха по производству столярно-строительных изделий на...................... предприятии (заводе).
- Проект технологии изготовления ламинированных дверных блоков.
- Проект технологии изготовления клееных погонажных изделий.
- Проект технологии изготовления деревянных евроокон...............
- Проект реконструкции сушильного цеха ........... завода (комбината, предприятия).
- Проект технологии производства клеёной паркетной доски на ..... завода (комбинате, предприятии).
- Проект участка сортировки и отгрузки сухих пиломатериалов..... завода (комбината, предприятия).
- Проект технологии производства ламинированной паркетной доски.
- Проект технологии производства комплектов деревянных домов из оцилиндрованных бревен на ............. заводе (комбинату, предприятии).
- Проект технологии производства дверных блоков щитовой конструкции.
- Проект технологии производства дверных блоков рамочной конструкции.
- Проект технологии производства ламинированных дверных блоков.
- Проект технологии производства строганых изделий из древесины.
- Проект технологии производства клееных деревянных
конструкций (КДК).
- Проект технологии производства щитовых деревянных домов.
- Проект технологии производства стенового клееного бруса.
4.3. Технология клееных материалов и плит
- Проект реконструкции цеха (участка) лущения ( подготовки сырья, сушки, доработки шпона, склеивания фанеры, обработки фанеры, ламинирования фанеры и т.п.) на .......заводе (комбинате).
- Проект совершенствования технологии изготовления фанеры на ............ заводе (комбинате).
- Проект цеха по производству строганного шпона на ...... заводе (комбинате).
- Проект реконструкции участка по производству щепы (стружки, формирования пакетов и прессования ДСтП, обработки ДСтП, ламинирования плит и др. участков) на ....... заводе (комбинате).
- Проект технологии производства фанеры (ДСтП, ДВП, арболита, ЦСП, древесных пластиков, ламинирования, каширования или облицовывания плитных материалов, строганного шпона, клеёных балок из шпона и др. древесных материалов) на базе ..... завода (комбината).
- Проект участка ребровой фанеры (оригинальных комбинированных фанерных плит, облицовывания, ламинирования фанеры или плит и др. древесных материалов) на ......... заводе (комбинате).
- Исследование технологии (или отдельных её составляющих) фанеры (ДСтП, ДВП, композиционных материалов, процесса облицовывания, ламинирования и др. процессов).
4.4. Сушка и гидротермическая обработка древесины
- Проект реконструкции сушильного цеха на ........ заводе (комбинате, предприятии).
- Проект сушильного отделения деревообрабатывающего цеха .
- Проект сушильного цеха с годовым объёмом сушки.......тыс. м3 фактических пиломатериалов.
- Проект участка сушки и сортировки экспортных пиломатериалов
- Проект участка антисептирования пиломатериалов на ........ заводе (комбинате, предприятии).
- Проект цеха гидротермической обработки древесины в производстве фанеры.
- Проект сушильного цеха мощностью ___ т.м3 условных пиломатериалов в год.
Приведенная выше тематика является примерной, и выбирается с учетом конкретных условий того предприятия, где разрабатывается проект.
В современных условиях наибольший эффект при наименьших затратах позволяет получить реконструкция предприятий. В этой связи наиболее целесообразно реконструировать действующие предприятия с использованием современной техники и технологии.
Там, где отсутствует объект реконструкций, либо реконструкция экономически нецелесообразна, допускается написание дипломных проектов по проектированию новых предприятий, цехов и участков. Проектирование должно быть обосновано и осуществляться при наличии сырьевой базы, строительной площадки и возможности реализации выпускаемой продукции.
При проектировании крупного объекта (лесопильно-деревообрабатывающий завод или группа цехов) возможна выдача комплексного задания для нескольких студентов с обязательным разграничением сферы проектирования для каждого из них. В этом случае группа студентов-дипломников работает над решением одной крупной задачи, при этом каждый дипломник самостоятельно разрабатывает проект выделенного ему для проектирования участка производства.
5. СОСТАВ ДИПЛОМНОГО ПРОЕКТА
Дипломный проект состоит из расчетно-пояснительной записки объемом 110-130 страниц машинописного текста и графической части из 8-9 чертежей.
Расчетно-пояснительная записка последовательно содержит:
обложку, титульный лист, задание на проектирование, содержание, текст пояснительной записки, список использованной литературы, приложения.
Задание на дипломное проектирование составляется руководителем отдельно для каждого дипломника. В задании указываются: тема проекта, исходные данные к проекту, содержание глав расчетно-пояснительной записки, перечень листов графического материала, состав консультантов по проекту, календарный план выполнения частей проекта с указанием даты представления законченного проекта.
Основная цель задания - дать основное направление и схему работы над проектом. Все конкретные технические решения дипломник принимает самостоятельно с учетом новейших достижений науки и техники с соблюдением современных экономических и социальных требований.
В состав расчетно-пояснительной записки дипломного проекта по специальности 250403.65 могут входить следующие части: общая, технологическая, транспортная, конструкторская, исследовательская, строительная, энергетическая, охрана труда, безопасность жизнедеятельности, экологическая часть и экономическая.
Учитывая специфичность темы отдельных дипломных проектов, содержание и последовательность частей проекта может меняться в зависимости от конкретных условий. Некоторые части могут быть сокращены до минимума за счет более подробной проработки других разделов, либо отсутствовать вообще.
Все части дипломного проекта должны быть взаимосвязаны. Принятые проектные решения в технологической, конструкторской и строительной частях, должны быть проанализированы в разделах охраны труда и безопасности жизнедеятельности и обоснованы при расчете экономической части проекта.
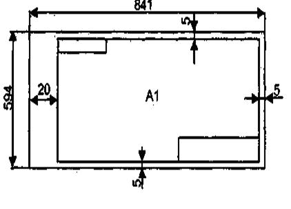
Графическая часть, выполняется на формате А1(594x841) и должна содержать 8-9 чертежей из следующего перечня:
1) генплан предприятия - I лист;
2) чертежи изделия: общий вид, разрезы, узлы, детали – 1- 2листа;
3) схема технологического процесса изготовления изделий – 1лист;
4) планировка оборудования цеха (участка) существующего технологического процесса - I лист,
5) планировка оборудования цеха (участка) технологического процесса после реконструкции - I лист,
6) поперечный и продольный разрезы здания цеха с указанием элементов строительной конструкции -1 лист;
7) исследовательская часть: диаграммы, графики, таблицы –
2-4 листа;
8) конструкторская часть: общий вид, узлы, детали, разрезы –
1-3 листа,
9) проект пневмотранспортной или аспирационной установки –
I-2 листа;
10) технико-экономические показатели - I лист.
Таблица 4.1
Объём разделов пояснительной записки
| Разделы проекта
|
Количество страниц
|
Количество графических листов
|
Трудоём-
кость в %
|
| Общая часть
|
10-20
|
-
|
10
|
| Технологическая часть
|
40-60
|
3-4
|
50
|
| Конструкторская часть
|
10-15
|
1-3
|
20
|
| Исследовательская часть
|
20-25
|
2-4
|
30-40
|
| Строительная часть
|
10-20
|
1-2
|
10-15
|
| Охрана труда
|
15-20
|
1-2
|
10-15
|
| Безопасность жизнедеятельности
|
10-15
|
-
|
10
|
| Экологическая часть
|
5-10
|
-
|
5
|
| Экономическая часть
|
10-15
|
1
|
15-20
|
5.1. Рекомендуемая структура расчетно-пояснительной записки дипломного проекта
Введение
1. ОБЩАЯ ЧАСТЬ
1.1. Характеристика предприятия
1.1.1. Географическое местоположение предприятия
1.I.2. Состав предприятий по цехам и основным участкам :
1.1.3. Номенклатура и объем выпускаемой продукции в натуральном и ценностном выражении.
1.1.4. Режим работы предприятия
I.I.5. Условия обеспечения проектируемого (реконструируемого) производства основными и вспомогательными материалами, электроэнергией, паром, водой и т.п.
1.2. Отходы производства и их утилизация
2. ТЕХНОЛОГИЧЕСКАЯ ЧАСТЬ
2.1. Описание и анализ технологического процесса применения существующей техники на предприятии, в России и за рубежом. Выявление недостатков и обоснование необходимости реконструкции (проектирования) цеха. Технико-экономическое обоснование принятых решений.
2.2. Выбор типа и разработка конструкций изделий
2.2.1. Технические условия на изделия
2.3. Проектируемый режим работы предприятия (цеха)
2.4. Расчетная программа предприятия (цеха)
2.5. Разработка схемы технологического процесса (2-3 варианта) проектируемого изделия
2.6. Выбор и расчет потребного количества основных и вспомогательных материалов на изделия и программу Спецификация узлов и деталей. Разработка раскройных карт. Спецификация и расчет потребности материалов. Сводная спецификация материалов на программу.
2.7. Баланс перерабатываемой древесины и древесных материалов, расчет количества отходов и их анализ. Утилизация отходов.
2.8. Составление пооперационных технологических карт по оптимальному варианту
2.9. Выбор оборудования
2.9.1. Выбор, расчет технологического оборудования,
техническая характеристика оборудования
2.9.2. Выбор вспомогательного и транспортного оборудования.
2.10. Режимы обработки, склеивания, облицовывания.
2.11. Расчет производственных и вспомогательных площадей. Разработка плана цеха с расстановкой технологического оборудования и организацией рабочих мест.
2.12. Описание проектируемого технологического процесса.
2.13. Расчет потребности в инструментах и приспособлениях.
3. КОНСТРУКТОРСКАЯ ЧАСТЬ
3.I.. Обоснование выбора объекта конструкторской разработки. Обзор и анализ.
3.2. Принципиальная схема, принцип работы конструкции, приспособления и т.п.
3.3. Силовые и кинематические расчеты.
3.4. Расчеты деталей и узлов на прочность, жесткость, расчет мощности привода.
4. ИССЛЕДОВАТЕЛЬСКАЯ ЧАСТЬ
4.1.Наименование темы и обоснование исследования.
4.2. Состояние исследуемого процесса.
4.3. Цели и задачи исследования.
4.4. Теория вопроса (рабочая гипотеза).
4.5. Общая методика проведения исследований.
4.6. Частные методики выполнения работ.
4.7. Экспериментальные данные (журнал исследований).
4.8. Математическая обработка экспериментальных данных.
4.9. Результаты исследования (графики, таблицы, пояснения и т.д.).
4.10. Выводы и рекомендации.
5. СТРОИТЕЛЬНАЯ ЧАСТЬ.
5.1. Расчет площади цеха.
5.2 Расчет площадей складов и бытовых помещений.
5.3. Расчет площади вспомогательных помещений.
5.4. Выбор проектируемого типа здания цеха, его конструкции и
размеров. Краткая характеристика здания. Архитектурные решения
5.5. Укрупненный расчет сметной стоимости строительных работ.
6. ОХРАНА ТРУДА
6.I. Анализ вредных и опасных производственных факторов в проектируемом (реконструируемом) производстве.
6.2. Противопожарная безопасность и расчет первичных средств пожаротушения.
6.3. Анализ травматизма (при реконструкции).
6.4. Инструкция по охране труда для оператора нового (реконструируемого) оборудования (рабочего места).
6.5. Расчёт освещения.
6.6. Расчет заземления оборудования
6.7. Расчет вентиляции или тепловых завес.
6.8. Расчет потребности в индивидуальных средствах защиты работающих.
6.9 Расчет звукоизолирующих конструкций.
7. БЕЗОПАСНОСТЬ ЖИЗНЕДЕЯТЕЛЬНОСТИ
7.1. Анализ объекта проектирования. Состояние БЖД при чрезвычайных ситуациях (ЧС)на объекте проектирования.
7.3. Разработка мероприятий по защите работающих на предприятии от ЧС техногенного, природного характера и применения средств массового поражения.
7.4. Решение задач по оценке и прогнозированию последствий ЧС.
8. ЭКОЛОГИЧЕСКАЯ ЧАСТЬ
8.1. Анализ экологической ситуации на реконструируемом предприятии.
8.2 Анализ видов, количества и точек образования экологически вредных отходов.
8.3. Мероприятия по очистке сточных вод, очистки удаляемого из цеха воздуха от древесной пыли и устранению других вредностей.
9. ЭКОНОМИЧЕСКАЯ ЧАСТЬ
9.I. Расчет капитальных вложений
9.2. Расчет себестоимости продукции
9.2.1. Расчет стоимости сырья, основных и вспомогательных материалов.
9.2.2. Расчет стоимости электроэнергии, пара, воды и сжатого воздуха.
9.2.3. Расчет численности работающих и фонда заработной платы.
9.2.4. Расчет расходов по содержанию и эксплуатации оборудования
9.2.5. Смета цеховых расходов.
9.2.6. Расчет общезаводских и внепроизводственных расходов.
9.2.7. Калькуляция себестоимости продукции.
9.2.8.. Расчет себестоимости продукции деревообработки.
9.3. Расчет прибыли (прироста прибыли)
9.4. Определение экономической эффективности проектных решений.
9.8. Выводы по проекту
11. ЗАКЛЮЧЕНИЕ
12. СПИСОК ИСПОЛЬЗОВАННОЙ ЛИТЕРАТУРЫ
ПРИЛОЖЕНИЯ
Приведенная выше структура проекта составлена применительно к тематике дипломного проектирования по технологии изделий из древесины и учитывает особенности связанные непосредственно с этими видами производств. Кроме того, данная структура является примерной и может меняться в зависимости от целей и задач, поставленных в дипломном проекте. Для других производств структура проекта может существенно измениться применительно к конкретному заданию, причем отдельным разделам может быть уделено значительное внимание (технологическая, исследовательская и др. части), а часть разделов допускается сократить или вообще исключить (строительная, энергетическая, транспортная или др. части). Ниже приведены примеры вариантов структур технологической части дипломного проекта для различных производств (технологических процессов)
5.2. Вариант структуры технологической части
по производству пиломатериалов
2.1. Анализ существующей техники и технологии. Анализ существующих передовых технологий и оборудования, используемых в лесопилении в России и за рубежом. Технико-экономическое обоснование по проекту.
2. 2. Спецификация пилопродукции и анализ возможности ее выполнения.
2. 3 Выбор способа раскроя сырья.
2. 4. Технические условия на сырье и пилопродукцию
2. 4. Выбор и расчет поставов
2.4.1. Составление плана раскроя сырья.
2.4.2. Посортный состав пиломатериалов.
2.5. Расчет баланса древесины и коэффициента сортности
2.6. Выбор и расчет головного оборудования
2.6.1 Расчет производственной мощности лесопильного цеха.
2.7. Расчет производительности технологического и транспортного оборудования
2.8. Расчет площадей склада сырья и склада пиломатериалов
2.9. Выбор и расчет оборудования для подготовки режущего инструмента.
2.10 Расчет потребности режущего инструмента
2.11 Утилизация отходов
5.3. Вариант структуры технологической части по деревообработке
2.1. Анализ существующей техники и технологии. Анализ существующих передовых технологий и оборудования, используемых в производстве..................в России и за рубежом. Технико-экономическое обоснование по проекту.
2.2. Выбор изделия и описание конструкции.
2.3. Технические условия на...............изделие
2.4. Расчетная программа выпуска изделия.
2.5. Структурная схема технологического процесса. Описание технологического процесса.
2.6. Составление технологических карт на детали и
сборочные единицы.
2.7.Выбор, расчет технологического, вспомогательного и транспортного оборудования.
2.8. Расчет потребного количества оборудования и
рабочих мест.
2.9. Режимы обработки, склеивания, облицовывания .
2.10 Ведомость оборудования.
2.11 Расчет основных и вспомогательных материалов.
2.12 Выбор и расчет оборудования для подготовки режущего инструмента.
2.13 Расчет потребности режущего инструмента.
2.14 Утилизация отходов.
2.15 Управление качеством продукции.
5.4. Вариант структуры технологической части по производству фанеры
2.1. Анализ используемой на предприятии техники и технологии. Анализ существующих передовых технологий и оборудования, используемых в производстве фанеры в России и за рубежом.
2.2. Выбор оборудования и описание проектируемого технологического процесса.
2.3. Характеристика продукции, сырья, основных и вспомогательных материалов в производстве фанеры.
2.3.1. Технические условия или ГОСТ на продукцию.
2.3.2. Требования, предъявляемые к сырью.
2.3.3. Требования, предъявляемые к материалам.
2.4. Проектируемый режим работы цеха (предприятия).
2.5. Продукция предприятия (цеха).
2.6. Расчёт потребного количества сырья на программу.
2.7. Расчёт потребного количества основных и вспомогательных материалов.
2.8. Баланс сырья. Основные технико-экономические показатели.
2.9. Выбор и обоснование режимов производства фанеры.
2.10. Расчёт потребного количества технологического оборудования.
2.11. Расчет вспомогательного и транспортного оборудования.
2.12 Расчет производственных и вспомогательных площадей.
2.13 Расчёт расхода пара, воды и электроэнергии.
5.5. Вариант структуры технологической части по производству мебели
2.1.Выбор изделия и описание конструкции
2.2.Технические условия на готовую продукцию
2.2.1.Технические требования к сырью
2.2.2.Требования к материалам и комплектующим изделия
2.2.3.Требования к упаковке. транспортированию и хранению готовой продукции
2.3.Структурная схема технологического процесса
2.4.Описание предполагаемого технологического процесса предприятия
2.5.Отходы производства и их утилизация
2.6.Структурная схема управления
2.7.Составление технологических карт на детали и сборочные единицы
2.8.Выбор, расчет технологического, вспомогательного и транспортного оборудования.
2.9. Расчет потребного количества оборудования и рабочих мест.
2.10. Режимы станочной обработки, склеивания, облицовывания.
2.11. Ведомость оборудования
2.12. Расчет норм расхода основных материалов. Баланс сырья.
2.12.1.Расчет норм расхода плитных материалов
2.12.2.Расчет количества древесных отходов
2.13. Расчет производственных и вспомогательных площадей.
2.14. Расчет потребности в электроэнергии, воде, паре и сжатом воздухе.
2.15. Расчет потребности режущего инструмента.
2.16. Расчет потребности в оборудовании для подготовки инструмента
2.17. Управление качеством продукции.
5.6 Вариант структуры технологической части по сушке и гидротермической обработке древесины
2.1. Анализ оборудования и технологических процессов сушильных цехов.
2.2. Характеристика материала подлежащего термообработке.
2.3. Характеристика высушенного материала.
2.4. Технологический расчет камеры и цеха.
2.5. Тепловой расчет камеры и цеха.
2.6 Аэродинамический расчет сушильной камеры.
2.7. Выбор и характеристика технологических и контрольных операций камерной сушки древесины.
2.8. Выбор обоснование и характеристика режимов сушки (гидротермической обработки).
2.9. Выбор и расчет потребного оборудования сушильного цеха (участка).
2.10. Описание технологического процесса сушильного цеха (участка).
2.11. Расчет производственных и вспомогательных площадей.
2.12. Расчет потребности в электроэнергии, воде и паре.
6. МЕТОДИЧЕСКИЕ РЕКОМЕНДАЦИИ ПО ВЫПОЛНЕНИЮ ОТДЕЛЬНЫХ РАЗДЕЛОВ
Расчетно-пояснительная записка начинается с введения, где кратко характеризуется состояние и перспективы развития той подотрасли промышленности, к которой относится тема проекта. Здесь также обосновывается необходимость разработки данного проекта с учетом задач, поставленные перед деревообрабатывающей промышленностью. Во введении четко формулируется актуальность темы, цель проекта и его практическое значение для развития данного предприятия и отрасли.
Цель проекта может быть сформулирована следующим образом: создание механизированного и автоматизированного производства, повышение комплексного использования сырья на базе передового оборудования; повышение эффективности производства за счет применения высокопроизводительного оборудования; улучшение условий труда за счет повышения уровня механизации; создание новой технологии и разработка технологического процесса. Введение излагается обычно на 2-3 страницах.
6.1. Общая часть
Эта часть является основной для решения ряда последующих вопросов, решаемых в проекте. Общая часть должна содержать все основные материалы, собранные в период преддипломной практики, которые потребуются для решения поставленной цели.
В общей части излагаются: краткая характеристика предприятия и участка проектирования; производственная программа; характеристика сырьевой базы и способы доставки сырья и материалов; номенклатура вырабатываемой продукции и ее реализация; транспортные связи; условия обеспечения предприятия рабочей силой, энергией, паром, водой; описание существующего технологического процесса.
На основании критического анализа собранного материала делается обоснование целесообразности реконструкции или строительства цеха. При этом указываются краткие технико-экономические соображения по проекту с указанием конкретных мероприятий. Принятые решения анализируются с точки зрения технической возможности их осуществления, экономической целесообразности внедрения и социальной значимости. Допускается анализ технологии и мероприятий по устранению недостатков переносить в технологическую часть. Объем общей части 10-20 страниц.
6.2. Технологическая часть
Технологическая часть является основным обстоятельно разрабатываемым разделом дипломного проекта. Здесь подробно прорабатываются все вопросы, касающиеся обеспечения эффективной работы цеха, участка или потока; наличия сырьевой базы, разработка и расчет технологического потока с выбором технологического и транспортного оборудования, синхронизации операций в производственном процессе, складирование и сбыт готовой продукции, использование или утилизации отходов, инструментального хозяйства и т.п. При проектировании технологической части дипломник должен изучить типовые проекты, опыт работы действующих предприятий, литературные материалы, в том числе периодические издания по деревообрабатывающим производствам и, на основании этого, принять и обосновать решение по изменению или усовершенствованию технологического процесса,
В основе изложения технологической части главным является максимальная конкретизация расчетной и описательной части с обоснованием принятых решений. Следует ограничивать описание элементарных понятий и явлений, а при необходимости делать ссылку на литературные источники, где имеется более подробная информация по данному вопросу.
Принятые в технологической части решения, произведенные расчеты схемы и чертежи являются исходными данными для разработки других частей проекта. В свою очередь, мероприятия, разработанные в других частях проекта, должны быть учтены и отражены в технологической части. Именно это обеспечивает органическую связь всех частей проекта и способствует комплексному решению поставленной задачи. Объем технологической части - 40-60 страниц.
6.3. Конструкторская часть
Цель конструкторской части дипломного проекта - разработка отдельных узлов или модернизация, существующих приспособлений или механизмов, улучшающих производственный процесс. В любом случае разработка должна сопровождаться технологическими, кинематическими, прочностными расчетами и чертежами. В качестве объекта реконструкции или проектирования нового не стандартного, обычно выбирают межстаночные механизмы со специфическими требованиями данного технологического процесса (конвейеры, питатели, подъёмники, ваймы), а так же приспособления для выполнения той или иной технологической операции, узел или деталь для нового механизма.
Не следует в конструкторской части давать расчеты известных, а тем более стандартных деталей и механизмов (редукторов, лебедок, грузоподъёмных механизмов).
Конструкторская разработка обычно предусматривает повышение производительности оборудования и технологического потока, либо улучшение условий труда работающих.
Конструкторская часть дипломного проекта выполняется в соответствии с заданием на дипломное проектирование по методическим указаниями при консультации специалиста кафедры или руководителя дипломного проекта.
Общий объем конструкторской части - 10-15 страниц пояснительной записки и 1-3 чертежа графической части (общий вид оборудования, узел и деталировка).
6.4. Научно-исследовательская часть
Будущие инженеры обязаны владеть методологией научных исследований, а также методикой организации и проведения экспериментов и представления готовых результатов.
Современное состояние и особенно перспективы развития деревообрабатывающей промышленности немыслимы без использования научно-исследовательских разработок. Часто при написании дипломного проекта возникают отдельные вопросы, которые требуют проведения теоретических и экспериментальных исследований. В этом случае выполняется научно-исследовательская часть. Глубина проработки научно-исследовательской части зависит от важности решаемых задач.
При планировании эксперимента необходимо учитывать ряд требований предъявляемых к исследуемым факторам. Необходимо определиться с методами исследования и способами обработки результатов данных при планировании многофакторных исследований. Исследовательская часть должна содержать:
построенную матрицу планирования многофакторного эксперимента (в натуральном и нормализованных обозначениях факторов), включая значение выходной величины, вычисленные коэффициенты регрессии математической модели, записанных в нормализованных обозначениях факторов; оценку значимости коэффициентов регрессии и окончательный вариант уравнения регрессии;
проверку адекватности регрессионной модели.
В случае необходимости допускается значительно сокращать другие части проекта за счет проведения серьезных исследований.
Существующие методы исследований, планирование экспериментов и способы обработки полученных результатов подробно излагаются в специальной учебной литературе [ 8.7. ].
Полученные результаты должны быть представлены в виде таблиц или графических зависимостей.
Объем исследовательской части 20-30 страниц пояснительной записки и 1-2 чертежа графической части.
6.5.
Строительная часть
Выполняется в случае проектирования новых цехов или реконструкции зданий при необходимости изменения технологии производства и размещения нового оборудования.
В строительной части приводится характеристика промышленной площадки и климатические условия района (средние максимальные и минимальные температуры), продолжительность холодного периода, данные о розе ветров и т.п. С учетом этого в дипломном проекте необходимо разработать компоновку зданий и сооружений на генплане или внести изменения в существующий генплан при разработке проекта реконструкции. Правильное взаимное расположение зданий, дорог, сооружений, складов, противопожарных объектов и т.п. должно быть тесно связано с производственным процессом и должно учитывать санитарно-технические нормы.
Выбор типа зданий в соответствии со спецификой производства -основной вопрос строительной части, причем расположение колонн и размеров пролетов должны быть согласованы с размещением оборудования и ходом технологического процесса. Кроме того, в строительной части проекта необходимо привести:
- расчет площади складских, бытовых и административно-хозяйственных помещений;
- конструктивные решения отдельных, частей зданий и сооружений, расчет вида конструкций и расчет элементов зданий, сооружений и дорожных покрытий;
- планы зданий, совмещенные с технологическими решениями, фасады зданий, разрезы по лестницам, подъемникам, световым фонарям, причем все планы этажей должны иметь разбивочные оси и отметку уровня пола и перекрытий.
Объем строительной части 10-20 страниц пояснительной записки и 1-2 чертежа графической части.
6.6. Охрана труда.
Этот раздел включает в себя вопросы, отражающие законодательный, инженерный, медицинский, экологический и эстетический аспекты охраны труда. Особое внимание уделяется нормализации санирно-гигиенических условий труда на рабочих местах. К санитарно-гигиеническим условиям относятся все элементы производственной среды, в.которой протекает трудовой процесс: метеорологические условия, чистота воздушной среды, разного рода производственные излучения, магнитные поля, освещение, производственный шум, вибрация. Чистота воздушной среды характеризуется степенью ее загрязнения; т.е. содержанием в воздухе производственных помещений вредных веществ в виде пыли, газов, аэрозолей, паров ( древесная пыль, пыль лакокрасочных покрытий, ацетон, сольвент, фенол, формальдегид, поры кислот, щелочей, аммиака и т.д.),
Метеорологические условия на рабочих местах и в производственных помещениях можно улучшить совершенствованием приточно-вытяжной вентиляции и кондиционированием воздуха.
Освещение рабочих мест должно быть равномерным, недопустимо мерцание света. Действующие нормы искусственного освещения (СНиПII-4-79) предусматривают различный уровень освещенности для различных по точности зрительных работ.
Шум один из значимых вредных факторов, действующих в различных производствах. Снижение уровня шума осуществляется за счет применения кожухов, кабин, экранов.
Вибрация также, являясь неблагоприятным гигиеническим фактором, может быть снижена до норм виброизоляцией, вибропоглащением или вибродемпфированием.
В данном разделе возможно:
1) привести краткую характеристику технологического процесса и оборудования с точки зрения выявления потенциальных опасностей и вредностей и предложить мероприятия по обеспечению безопасности труда. Особое внимание уделить электробезопасности;
2) разработать и дать подробную характеристику профилактическим мероприятиям по предотвращению пожаров (огнестойкие перегородки, проходы, проезды, взрывобезопасное исполнение электродвигателей и другого оборудования, чистота территории, наличие пожарной сигнализации, аварийного освещения, путей эвакуации);
3) провести анализ имеющихся средств тушения пожара (пожарное депо, автонасосы, сеть наружного противопожарного водопровода, пожарные гидранты, сплинкерные и дренчерные установки, первичные средства пожаротушения, естественные и искусственные водоемы).
4) Составить инструкцию по охране труда оператора или рабочих станочников обслуживающих вновь вводимое в технологический процесс (или подлежащее усовершенствованию) оборудование.
Часть дипломного проекта «Охрана труда» выполняется в соответствии с заданием на дипломное проектирование по методическим указаниями при консультации преподавателя кафедры по охране труда.
Объем части «Охрана труда» 15-20 страниц пояснительной записки и 1-2 чертежа графической части.
6.7. Безопасность жизнедеятельности
Задачей выполнения раздела «Безопасность жизнедеятельности» дипломного проекта является закрепление и расширение знаний, полученных при изучении курса гражданской обороны, разработка организационных и инженерно-технических мероприятий ГО (ИТМ ГО), обеспечивающих надёжность (устойчивость) работы проектируемого или реконструируемого предприятия (в дальнейшем объекта экономики - ОЭ) и жизнедеятельность работников и их семей в экстремальных условиях.
Экстремальные условия для работы ОЭ могут возникать при резких колебаниях температуры, нагрузок, воздействия избыточного давления, вредных излучений, загрязнения окружающей среды и могут приводить к катастрофическим последствиям.
Чрезвычайные ситуации возникают не только в военное, но и в мирное время в результате внешних природных (стихийные бедствия) воздействий, производственной или иной деятельности человека.
Крупные производственные аварии и стихийные бедствия зачастую бывают настолько разрушительными, что выделяющаяся при этом энергия, характер и степень разрушений, ущерб сравнимы или даже превосходят энергию взрыва ядерного боеприпаса мощностью в 1 Мт.
Степень повреждений при прочих равных условиях будет зависеть от заблаговременной подготовки ОЭ к работе в экстремальных условиях.
В этом разделе по заданию руководителя выполняется:
- описание понятий и определение производственных аварий и катастроф, молниезащита объектов, оценка пожарной ситуации производственных помещений;
- описание структуры формирования гражданской обороны на предприятии;
- разработка мероприятий по защите работающих от стихийных бедствий и катастроф, средств массового поражения.
Эта часть дипломного проекта выполняется в соответствии с заданием на дипломное проектирование по методическим указаниями и при консультации преподавателя БЖД.
Объем части БЖД 10-15 страниц пояснительной записки.
6.8. Экологическая часть
В дипломном проекте большее внимание должно быть уделено выбору и разработке мероприятий по охране окружающей среды - воздушного бассейна, водоемов, почвы, растительного мира, для этой цели разрабатываются экологически полноценные технологии, обеспечивающие выпуск конечной продукции с нанесением минимального вреда окружающей природе. В связи с тем, что практически любое производство предполагает появление неизбежных отходов, следует разработать способы и подобрать средства их утилизации. Поэтому в данном разделе необходимо дать подробное описание отходов, способов и средств с улавливания, очистки, нейтрализации и обезвреживания.
В разделе должны быть предусмотрены мероприятия по предотвращению загрязнения водоемов, прилегающих территорий и населенных пунктов. Следует учесть розу ветров при взаимном расположении вредных производств на промышленной площадке и предусмотреть санитарно-защитные зоны с зелеными насаждениями.
Эта часть дипломного проекта выполняется в соответствии с заданием на дипломное проектирование по методическим указаниями при консультации преподавателя кафедры по экологии.
Объем этой части 5-10 страниц пояснительной записки.
6.9. Экономическая часть.
В экономической части ДП обосновывается эффективность от внедрения проекта при реконструкции предприятия или строительстве нового. Кроме того наглядно показывает умение будущих специалистов анализировать существующие технические и технологические решения, обобщать передовой опыт и на этой основе формировать проектные решения, обеспечивающие в реальных условиях производства получение экономического эффекта. Обосновывая свои проектные решения, студент-дипломник должен показать его преимущества, раскрыть народнохозяйственное значение практического его использования.
Экономическая часть дипломного проекта выполняется в соответствии с заданием на дипломное проектирование по методическим указаниями при консультации экономиста кафедры «Экономики и организации промышленных производств».
Исходные данные для расчета технико-экономических показателей принимаются в соответствии с материалами технологической, конструкторской и другими частями проекта. Основные разделы экономической части носят расчетно-аналитический характер и оформляются в виде таблиц с краткими пояснениями. Примерный перечень разделов и таблиц, последовательность их выполнения приведены по ходу расчетов в методических указаниях [10]
После оформления всех расчетов делаются выводы об эффективности проекта (1-2с).
Для защиты дипломного проекта на одном из демонстрационных листов отображаются технико-экономические показатели строительства (реконструкции) предприятия (цеха). Демонстрационный лист выполняется на листе ватмана со штампом в правом нижнем углу формата А1. Лист обязательно подписывает консультант по экономической части.
Объем экономической части 10-15 страниц пояснительной записки и 1 лист графической части.
7. ТРЕБОВАНИЯ К ОФОРМЛЕНИЮ ДИПЛОМНОГО ПРОЕКТА
7.1. Оформление текстовых документов дипломного проекта
7.1.1 Общие требования
Дипломный проект должен включать следующие материалы в указанной последовательности:
Пояснительная записка – обложка, титульный лист, задание на специальном бланке, содержание, введение, разделы проекта, заключение, список использованных источников, приложения.
В пояснительной записке дипломных проектов, имеющих графическую часть, в приложении помещают спецификации и другие виды документов (например, ведомости материалов). Допускается оформление спецификаций в виде самостоятельного документа - альбома спецификаций.
текстовые документы, содержащие текст, разбитый на графы (спецификации, ведомости и т.д.), выполняются на отдельных листах специальных бланков (см. приложения).
Текстовые документы выполняются одним из способов:
- машинописным - через два интервала. Шрифт высотой не менее
2,5 мм;
- рукописным - основным чертежным шрифтом по ГОСТ 2.304 с высотой букв и цифр не менее 2,5 мм;
- с применением печатающих устройств вывода ПК по соответствующим стандартам.
Описки и графические неточности допускается исправлять подчисткой или закрашиванием белой краской и нанесением на том же листе исправленного текста рукописным способом. Повреждения листов, помарки не допускаются.
Материал пояснительных записок дипломных проектов по оформляется на одной стороне белой нелинованной бумаги формата А4 (210x297 мм.)
На всех листах пояснительных записок дипломных проектов (кроме титульного и листов задания) наносят основные надписи и рамки по ГОСТ 2.104. (Рис.7.1)

Рис.7.1 Схема расположения рамок и основных надписей текстовых документов: а - первый (титульный) лист; б - второй лист; в -последующие листы текстовых документов
Межстрочный интервал в рукописных и машинописных документах должен быть 8-10 мм, а абзацный отступ - 12-15 мм. Все листы документа, выполненные на отдельных листах, включая иллюстрации и приложения, нумеруются по порядку, начиная с титульного (номер на нем не ставится). Номер листа проставляют арабскими цифрами в соответствующих полях основных надписей, а при их отсутствии - на расстоянии 10 мм от верхнего
правого края листа.
Полное наименование изделия в основной надписи, на титульном листе и при первом упоминании в тексте документа должно быть одинаковым с наименованием его в основном конструкторском документе. В последующем тексте допускается употреблять сокращенное наименование. Наименования в тексте документа и иллюстрациях должны быть одинаковыми.
Сокращения слов в тексте и подписях под иллюстрациями не допускаются. Исключение составляют сокращения, установленные соответствующими стандартами. Допускается, для общепринятых понятий при первом упоминании, давать полное наименование и сокращение в скобках, а затем пользоваться сокращенным.
В тексте документа перед обозначением параметра дают его пояснение, например: сопротивление изгибу – σи
7.1.2. Построение текстовых документов
Текст документа при необходимости разделяют на разделы, подразделы и пункты. Разделы нумеруются в пределах документа арабскими цифрами с точкой, "ВВЕДЕНИЕ", "ЗАКЛЮЧЕНИЕ" и "ПРИЛОЖЕНИЯ" не нумеруются. Номера подразделов состоят из номеров разделов и подразделов, разделенных точкой. В конце также ставят точку. Выше изложенное смотри на примере: Каждый раздел рекомендуется начинать с нового листа.
Разделы и подразделы должны иметь заголовки, которые записываются симметрично тексту. Заголовки разделов пишутся прописными буквами, подразделов - строчными (кроме первой прописной). Короткие заголовки помещают в центре страницы, длинные начинают с абзацного отступа. Если в заголовке несколько предложений, их разделяют точкой. В конце заголовка точку не ставят. Переносы слов в заголовках не допускаются. После заголовка (если он стоит в конце страницы) должно быть помещено не менее 2-х строк текста. Подчеркивания и переносы в заголовках не допускаются.
Расстояние между заголовком и предыдущим текстом должно быть не менее 15 мм, заголовком и последующим текстом - не менее 10 мм.
В начале документа большого объема помещают содержание, которое включает перечень разделов, подразделов, пунктов, приложений с указанием номера страницы.
Расположение текста и заголовков на листе смотри в приложении
7.1.3. Оформление формул, иллюстраций, приложений
Формулы в тексте документа выделяют свободными строками и помещают в следующем порядке: формула, экспликация, расчет. В экспликации значения символов и числовых коэффициентов даются с новой строки в той последовательности, в какой они приведены в формуле. Первая строка расшифровки начинается со слова "где" без двоеточия после него.
Если в документе более одной формулы, то их нумеруют арабскими цифрами. Номер состоит из номера раздела и порядкового номера формулы, разделенных точкой, например: «(2.3)», помещается на уровне нижней строки формулы и заключается в круглые скобки на расстоянии 10 мм от края листа. При ссылке в тексте указывается номер формулы в скобках, например: «в формуле (2.1)»;
Расчет дается после экспликации. Числовые значения записываются в порядке их следования в формуле.
Результат указывается после знака "=" с указанием единиц величины, стоящей в левой части формулы, например:
(2.1)
где σ - напряжения при изгибе, кг/см2;
Мизг - изгибающий момент в сечении, кг∙см;
Wx - момент сопротивления в сечении, см3.

кг/см2.
Если в тексте документа приводится ряд цифровых величин одной размерности, единицу измерения указывают после последнего числа, например: 1,50; 1,75; 2,0 м.
Все иллюстрации в документе именуются рисунками и размещаются сразу после ссылки на них в тексте или на отдельном листе того же формата. Номер рисунка сострит из номера раздела и порядкового номера, разделенных точкой, например: "Рис. 1.1», "Рис. 2.1". Ссылки на иллюстрации дают по типу "рис. 1.1", а на ранее упомянутые - "см. рис. 3.2". Допускается нумерация рисунков и формул в пределах всего документа.
Рисунки должны иметь наименования, а в случае необходимости, поясняющие данные (подрисуночный текст). Номер рисунка и подрисуночный текст располагают под рисунком. Для небольших рисунков, размещаемых непосредственно в тексте после ссылки на них, наименование можно не приводить. Наименование рисунка помещают над ним, поясняющие данные - под ним. Ниже поясняющих данных в середине строки помещают номер рисунка.
Рисунки выполняются на компьютере, карандашом, тушью. В дипломных проектах применение цветной пасты или фломастеров не допускается. В пояснительных записках курсовых проектов допускается при выполнении диаграмм использовать не более 3-х цветов в пределах всего документа. Приложения оформляются как продолжение данного документа, на последующих его листах или в виде отдельного документа, как правило, на листах формата А4. Каждое приложение должно начинаться с нового листа.
Нумерация листов документа и приложений - сквозная.
В правом верхнем углу пишут слово "Приложение" и указывают его номер, например: "Приложение 2".
Рисунки, таблицы, формулы нумеруют в пределах каждого приложения, например: "Рис. П.2.1" (рисунок первый второго приложения). Ссылки в тексте на приложения, таблицы, рисунки должны содержать номер приложения, например:"... приведены в приложении 2","... на рис. П.1.1","... в табл. П.2.2" и т.д. В содержании перечисляются все приложения. Оформление приложений в виде самостоятельного документа выполнять в соответствии с ГОСТ 2.105.
7.1.4. Составление содержания и списка использованных источников
На первом листе документа, а при необходимости на последующих листах помещают содержание.
В содержание включаются заголовки всех разделов и подразделов, а также "Введение", "Заключение", "Список использованных источников", "Приложения", которые не нумеруются.
Заголовки приводятся в той форме, в которой даны в тексте.
Все заголовки содержания пишут с прописной буквы. Все заголовки одной ступени рубрикации начинаются от одной вертикали. Заголовки последующей ступени смешаются на три знака вправо.
В содержании указывают номера страниц, на которых помещены заголовки разделов и подразделов. Последнее слово заголовка соединяется отточием с номером страницы. Номера страниц ставят ближе к правому краю листа по одной вертикали.
В приложении 9 приведен пример содержания дипломного проекта.
В конце текстового документа, перед приложениями помещают "Список использованных источников".
Группировка литературы в списке источников может быть выполнена в алфавитном порядке или в порядке упоминания в тексте.
Каждый включенный в список источник нумеруется арабской цифрой с точкой.
При ссылке на литературный источник в тексте документа указывается его номер, заключенный в квадратные скобки, например; "... в соответствии с [4]".
Библиографическое описание литературных источников производится в соответствии с ГОСТ 7. 1-2003
ПРИМЕР ОФОРМЛЕНИЯ СПИСКА ИСПОЛЬЗОВАННЫХ ИСТОЧНИКОВ
1. Лыков А.В. Тепломассообмен: Справочник,- М: Энергия, 1978.- 480 с.
2. Савельев И.В. Курс общей физики. Т.1. Механика. Молекулярная физика: Учеб. пособие для студентов втузов.- 2-е изд. перераб.- М.: ВШ, 1982.- . 432 с.
3. Дедков В.К. Надежность сложных технических систем: Учеб. пособие.-Акад. нар. хоз-ва.- М., 1984.- 120 с.
4. Проектирование трансмиссий автомобилей: Справочник / Под ред. А.И. Гришевича.- М.: Машиностроение, 1984.-258 с.
5. Иванов А.И., Федоров С.А. Технологическое проектирование автотранспортных предприятий: Метод, указания.-Братск, БрИИ, 1988.- 45 с.
6.Техническая эксплуатация автомобилей: Учебник для вузов / Под ред. Г.В. Крамаренко.- М.: Транспорт, 1983.- 488 с.
7. Положение о ТО и ремонте подвижного состава автомобильного транспорта / Минавтотранс РСФСР.- М.: Транспорт, 1988.- 72 с.
8. Гжиров Р.И. Краткий справочник конструктора.- Л.: Машиностроение. Ленингр. отделение, 1983.- 484 с.
9. ГОСТ 20226.82 /СТ СЭВ 2794-80/. Подшипники качения. Заплечики для установки подшипников качения. Размеры.- Взамен ГОСТ 20226-74; Введ. 01.01.83.-М.: Изд-во стандартов, 1983.-44 с.
10. ГОСТ 2.301-68 и др. Общие правила выполнения чертежей: Сборник Введ.01.01.71.- М.: Изд-во стандартов, 1984.- 230 с.
7.2. Основные правила оформления графических документов
Перед началом разработки графических документов необходимо выбрать форматы и масштабы чертежей, соответствующие ЕСКД ГОСТ 2.301 «Форматы» и ГОСТ 2.302 «Масштабы».
7.2.1. Форматы. Масштабы
В соответствии с ГОСТ 2.301 рекомендуется применять следующие основные форматы листов чертежей (табл.7.1 и 7.2):
Таблица 7.1
Размеры основных форматов чертежей
| Обозначение формата
|
АО
|
А1
|
А2
|
A3
|
А4
|
| Размеры сторон формата, мм
|
1189x841
|
594x841
|
594x420
|
297x420
|
297x210
|
В некоторых обоснованных случаях разрешается применять дополнительные (производные) форматы, установленные ГОСТ 2.301.
Предельные отклонения сторон формата составляют: для размеров до 150 мм - ± 1,5 мм; для размеров от 150 до 600 мм - + 2 мм; при размерах свыше 600 мм - + 3 мм.
Таблица 7.2
Размеры производных форматов
| Кратность
|
Формат
|
| АО
|
А1
|
А2
|
A3
|
А4
|
| 2
|
1189x1682
|
-
|
-
|
-
|
-
|
| 3
|
1189x2523
|
841x1783
|
594x1261
|
420x891
|
297x630
|
| 4
|
-
|
841x2378
|
594x1652
|
420x1189
|
297x841
|
| 5
|
-
|
-
|
594x2102
|
420x1486
|
297x1051
|
| 6
|
-
|
-
|
-
|
420x1783
|
297x1261
|
| 7
|
-
|
-
|
-
|
420x2080
|
297x1471
|
| 8
|
-
|
-
|
-
|
-
|
297x1682
|
| 9
|
-
|
-
|
-
|
-
|
297x1892
|

Рис. 7.2 Схема оформления формата А1

Рис.7.3 Примеры деления формата А1 на меньшие форматы
ГОСТ 2.302 устанавливает масштабы изображений и их обозначение на чертежах всех отраслей промышленности и строительства.
Масштаб - это отношение линейных размеров изображения предмета на чертеже к его действительным размерам.
Масштабы изображений на чертежах должны выбираться из ряда, приведенного в табл. 7.3.
Таблица 7.3
Масштабы изображений
| Масштабы уменьшения
|
1:2; 1:40;
|
1:2,5; 1:50;
|
1:4;
1:75;
|
1:5; 1:100;
|
1:10; 1:15; 1:20; 1:200; 1:400; 1:500
|
1:25;
|
| Натуральная величина
|
1:1
|
| Масштабы увеличения
|
2:1;
|
2,5:1;
|
4:1;
|
5:1;
|
10:1; 20:1; 40:1; 50:1;
|
100:1
|
При проектировании генеральных планов крупных объектов допускается применять масштабы 1:1000; 1:2000; 1:5000; 1:10000; 1:20000; 1:25000; 1:50000.
В необходимых случаях допускается применять масштабы увеличения (100п):1, где п - целое число.
Масштаб, указанный в предназначенной для этого графе основной надписи чертежа, должен обозначаться по типу: 1:1; 1:2; 2:1 и т.д., а в остальных случаях - по типу М 1:1; М 1:2; М 2:1 и т.д.
7.2.2. Линии. Шрифты чертежные
Начертания и основные назначения линий на чертежах установлены ГОСТ 2.303. Толщина сплошной основной линии S должна быть в пределах от 0,6 до 1,4 мм в зависимости от величины и сложности изображения, а также от формата чертежа. Толщина линий должна быть одинакова для всех изображений на данном чертеже, вычерчиваемых в одинаковом масштабе.
Сплошные тонкие линии, сплошные волнистые, штриховые, штрих-пунктирные тонкие и сплошные тонкие линии с изломами должны иметь толщину от S/З до S/2. Толщина разомкнутых линий (линий сечений) должна составлять от S до 1,5S.
Все надписи на чертежах должны выполняться от руки основным шрифтом с наклоном в соответствии с ГОСТ 2.304., либо на ПК.
7.2.3. Условные обозначения и изображения на чертежах
На чертежах применяют условные обозначения и изображения, установленные в государственных стандартах.
Условные обозначения и изображения применяют без разъяснения их на чертежах и без указания номера стандарта. Исключение составляют условные обозначения, в которых предусмотрительно указывается номер стандарта, например: отверстие центровое С 12, ГОСТ 14034. Если в государственных стандартах нет соответствующих условных обозначений, то применяют условные обозначения, установленные в отраслевых стандартах с обязательными ссылками на них.
Допускается применять условные обозначения и изображения, не предусмотренные в государственных и отраслевых стандартах. В этих случаях условные обозначения разъясняют на поле чертежа. Для этого на свободном месте чертёжа пишут заголовок "Условные обозначения". Рекомендуется применять упрощенные графические обозначения оборудования, которые имеются в учебниках, учебных пособиях или на чертежах проектных организаций.
7.2.4. Общие сведения о чертежах
В дипломных проектах выполняются чертежи различного вида.
Чертежи расположения технологического оборудования, технологических трубопроводов, планы и фрагменты планов зданий; разрезы, фасады зданий; установочные чертежи различных видов оборудования, планировки складов; общие виды нестандартного оборудования, предназначенного для конструкторской разработки, генпланы предприятий относятся к чертежам проектной документации на строительство. Они оформляются в соответствии с ГОСТами СПДС (ГОСТ 21.1101; 21.401) с учетом соответствующих стандартов системы ЕСКД. (Основные требования к их оформлению даны в разделах 7, 8, 9).
К чертежам расположения технологического оборудования составляют спецификацию оборудования (см. раздел 3.11).
Конструкторские чертежи изделий, подлежащих изготовлению на предприятиях по этим чертежам, оформляются в соответствии с требованиями ГОСТов ЕСКД.
Изделием (по ГОСТ 2.101) называется любой предмет или набор предметов производства, подлежащих изготовлению на предприятии. Устанавливаются следующие виды изделий:
детали;
сборочные единицы;
комплексы;
комплекты.
В состав конструкторских чертежей на изделие, выполняемых в учебных работах, входят:
сборочный чертеж - содержит изображение сборочной единицы и другие данные, необходимые для ее сборки;
чертеж общего вида - определяет конструкцию изделия, взаимодействие частей и поясняет принцип работы изделия;
чертеж детали - содержит изображение детали;
габаритные чертежи - содержат контурное (упрощенное) изображение изделия с габаритными, установочными и присоединительными размерами.
Сборочные единицы, комплекты и комплексы, т.е. изделия, состоящие из 2-х и более составных частей, называются специфицированными, к ним составляют спецификацию по ГОСТ 2.108-68 (см. раздел 3.9; 3.10). Заполнение спецификации - сверху вниз.
Детали - не специфицированные изделия.
7.2.5 Оформление конструкторских чертежей изделий
Конструкторские чертежи изделий должны быть выполнены в соответствии с требованиями стандартов ЕСКД.
Общие требования к таким чертежам даны в ГОСТ 2.109.
Виды, разрезы, сечение выполняются согласно ГОСТ 2.305
Нанесение размеров предельных отклонений, допусков и посадок выполняется по ГОСТ 2.307
Обозначения шероховатости поверхности на чертежах деталей указаны в ГОСТ 2.309
Нанесение видов обработки на чертежах - ГОСТ 2.310, обозначение швов сварных соединений - ГОСТ 2.312
Чертежи общего вида выполняются по ГОСТ 2.305, ГОСТ 2.118, ГОСТ 2.119, ГОСТ 2.120.
Чертежи деталей, габаритные и сборочные чертежи выполняются по ГОСТ2.109. Габаритным чертежам присваивается шифр "ГЧ", сбороч- ным - "СБ", чертежам общего вида - шифр "ВО". Шифры проставляются в основной надписи (штампе) чертежа.
Аксонометрические проекции выполняют по ГОСТ 2.31,7.
Кроме изображения предмета, чертежи могут содержать:
текстовую часть, состоящую из технических требований и технических характеристик;
надписи с обозначением изображений;
таблицы с размерами и другими параметрами, техническими требованиями и т.п. Правила нанесения надписей, технических требований и таблиц на черте же изделий указаны в ГОСТ 2.316.
На этих чертежах выполняют основную надпись в соответствии с требованиями ГОСТ 2.104 и ГОСТ 2.109. Основная надпись помещается в "штампе" чертежа. Пример выполнения ее дан в приложении 4
7.2.6 Особенности чертежей общих видов
Чертеж общего вида отображает конструкцию изделия, способы соединения и взаимодействие его составных частей. По такому чертежу можно выяснить форму тех деталей, на которые потребуется выполнить отдельные чертежи для последующего изготовления. Чертежи общего вида выполняют в соответствии с требованиями ГОСТ 2.119; ГОСТ 2.120; ГОСТ 2.305.
Чертеж общего вида должен содержать:
изображение изделия (виды, разрезы, сечения); наименование и обозначение составных частей изделия.
Наименование составных частей указывают либо на полках линий-выносок, проведенных от каждой сборочной единицы или детали, либо в таблице, размещаемой на том же листе, что и чертеж. При наличии таблицы на полках линий выносок указывают номера позиций частей изделия. Таблицу можно размещать на отдельных листах формата А4.
При выполнении чертежа рекомендуется соблюдать последовательность:
на листе определенного формата наносится внутренняя рамка, в правом нижнем углу - основная надпись (штамп чертежа, см. приложение 3);
над основной надписью оставляют место шириной 185 мм для размещения текстовой части (технической характеристики, технических требований и т.п.) и таблиц.
на чертеже проставляются габаритные, присоединительные, установочные и другие необходимые размеры;
если на чертеже приводятся только технические требования или техническая характеристика, то заголовок над ними не пишется. Заголовки пишутся (но не подчеркиваются) в случае, когда на чертеже приводятся техническая характеристика и технические требования.
Текстовую часть и таблицы можно продолжить слева от основной надписи. Таблица составных частей изделия состоит из граф.: «Поз.», «Обозначение», «Наименование», «Кол.», «Доп. указания». Графы, которые не заполняются, можно исключить.
Техническую характеристику и требования записывают пунктами со сквозной нумерацией или можно оформлять в виде таблицы. Если на чертеже две и более таблиц, то над каждой таблицей справа пишут «Таблица» с порядковым номером (без знака «№»).
7.2.10. Составление спецификации на изделие
Спецификацию на изделие составляют в соответствии с ГОСТ 2.108. Спецификацию выполняют на отдельных листах на каждую сборочную единицу по формам 1 и 1а, см. приложение 6 и 7. Допускается совмещение спецификаций со сборочным чертежом. При этом спецификацию располагают над основной надписью и заполняют ее в том же порядке и по той же форме. Такому совмещенному документу присваивается обозначение основного конструкторского документа.
Спецификации в общем случае состоят из разделов, которые располагают в такой последовательности: документация; комплексы; сборочные единицы; детали; стандартные изделия; прочие изделия; материалы; комплекты. Наименование каждого раздела указывают в виде заголовка в графе "Наименование" и подчеркивают тонкой линией.
В раздел "Документация" вносят документы, составляющие основной комплект конструкторских документов специфицируемого изделия, кроме его спецификации.
В разделе «Комплексы", "Сборочные единицы" и "Детали" вносят комплексы, сборочные единицы и детали, непосредственно входящие в состав специфицируемого изделия. Запись указанных изделий производят в алфавитном порядке сочетания букв кодов организаций-разработчиков и далее в порядке возрастания цифр, входящих в обозначение.
В раздел "Стандартные изделия" записывают изделия, примененные по государственным стандартам; республиканским стандартам; отраслевым стандартам;
стандартам предприятий (для изделий вспомогательного производства). В раздел "Прочие изделия" вносят изделия, примененные не по основным конструкторским документам (по техническим условиям), за исключением стандартных изделий.
В раздел "Материалы" вносят все материалы, непосредственно входящие в специфицируемое изделие. Последовательность записи материалов по видам определена в пункте 10 ГОСТ 2.108. В этот раздел не записывают материалы, необходимое количество которых не может быть определено конструктором по размерам элементов изделий и вследствие этого устанавливается технологом (лаки, краски, клей, смазки, замазки, припои, электроды). Указания о применении таких материалов дают в технических требованиях на поле чертежа. После каждого раздела спецификации необходимо оставлять несколько свободных строк для дополнительных записей. Допускается резервировать и номера позиций, которые проставляют в спецификацию при заполнении резервных строк.
7.2.11. Заполнение граф спецификации на изделие
В графе "Формат" указывают форматы документов, обозначения которых записывают в графе "Обозначение". Если документ выполнен на нескольких листах различных форматов, то в графе проставляют "звездочку", а в графе "Примечание" перечисляют все форматы в порядке их увеличения. Для документов, записанных в разделах "Стандартные изделия", "Прочие изделия" и "Материалы", графу не заполняют. Для деталей, на которые не выпущены чертежи, в графе указывают БЧ.
В графе "Зона" указывают обозначение зоны, в которой находится номер позиции записываемой составной части (при разбивке поля чертежа на зоны по ГОСТ 2.104).
В графе "Поз." указывают порядковые номера составных частей, непосредственно входящих в специфицируемое изделие в последовательности записи их в спецификации. Для разделов "Документация" и "Комплекты" графу не заполняют.
В графе "Обозначение" указывают: в разделе "Документация" - обозначение записываемых документов (шифр документов); в разделах "Комплексы", "Сборочные единицы", "Детали" и "Комплекты" - обозначения (шифр) основных конструкторских документов на записываемые в эти разделы изделия. Для деталей, на которые не выпущены чертежи, - присвоенное им обозначение (шифр). В разделах "Стандартные изделия", "Прочие изделия" и "Материалы" - графу не заполняют. Если для изготовления стандартного изделия выпущена конструкторская документация, то в графе "Обозначение" указывают шифр чертежа.
В графе "Наименование" указывают: в разделе "Документация" - только наименование документов на данное изделие, например: "Сборочный чертеж", "Габаритный чертеж"; в разделах "Комплексы", "Сборочные единицы", "Детали", "Комплекты"- наименование изделий в соответствии с основной надписью (штампом) на основных конструкторских документах этих изделий. Для деталей, на которые не выпущены чертежи, указывают наименование и материал, а также размеры, необходимые для изготовления; в разделе "Стандартные изделия" - наименование и условные обозначения изделий в соответствии со стандартами на эти изделия; в разделе "Материалы" - обозначения материалов, установленные в стандартах, или ТУ на эти материалы.
Для записи ряда изделий и материалов, отличающихся размерами и другими данными и примененных по одному и тому же документу, допускается общую часть наименования этих изделий или материалов записывать на каждом листе спецификации один раз в виде общего наименования (заголовка).
Под общим наименованием записывают для каждого из указанных изделий и материалов только их параметры и размеры.
В графе "Кол." указывают: для составных частей изделия, записываемых в спецификацию, количество их на одно специфицируемое изделие; в разделе "Материалы" - общее количество материалов на одно специфицируемое изделие с указанием единиц измерения. Допускается единицы измерения записывать в графе "Примечание" в непосредственной близости от графы "Кол."; в разделе "Документация" - графу не заполняют; в графе "Примечание" для деталей, на которые не выпущен чертеж, указывают массу.
Для документов, выпущенных на двух и более листах различных форматов, указывают обозначение форматов, перед перечислением которых проставляют знак звездочка, например: * А4, A3; в графе "Материал" для деталей, на которые не выпущены чертежи, указывают обозначения материалов, установленные в стандартах на эти материалы.
В графе "Примечание" указывают дополнительные сведения об изделиях, записанных в спецификацию.
7.2.12 Составление и оформление спецификации оборудования
Спецификация оборудования (СО) выполняется в соответствии с ГОСТ 21.110. В дипломных проектах СО выполняется к чертежам, содержащим схемы и планы расположения технологического, сантехнического или другого оборудования, предусмотренного в проекте и обозначенного на этих чертежах. Спецификация составляется на отдельных листах. Форма спецификации приведена в прил. 8.
В общем случае спецификация состоит из нескольких разделов.
В СО, выполняемую в объеме курсового и дипломного проекта, достаточно включать 2 раздела:
оборудование и материалы, поставляемые заказчиком (в спецификации для дипломных проектов эту надпись можно заменить на "Поставляемое оборудование");
оборудование, имеющееся на" предприятии и используемое при реконструкции - "существующее оборудование".
Наименование каждого раздела указывают в виде заголовка в графе 2 спецификации и подчеркивают.
При заполнении граф СО указывают: в графе 1 - позиции оборудования, обозначенные на чертежах, к которым составляется спецификация;
в графе 2 - наименование оборудования, техническую характеристику; в графе3 - тип, марку оборудования;
в графах 4, 5, - код единицы измерения, завода-изготовителя, оборудования по общесоюзному классификатору;
в графе 6 – единицу измерения;
в графе 7 - количество единиц оборудования;
в графе 8 - массу единиц оборудования.
В СО, составленных в объеме курсовых и дипломных проектов, графы 4, 5, допускается не заполнять.
Спецификации присваивают самостоятельное обозначение, соответствующее основному комплекту чертежей по ГОСТ Р 21.1101, например: ТХ.; СО; ОВ.СО, и проставляют в основной надписи на листах спецификации.
На первом листе спецификации ставят «штамп» по форме 5, на последующих листах — по форме 6 (см. прил. 8).
7.3. Оформление таблиц
Цифровой материал, как правило, оформляют в виде таблиц (табл. 4.1) по ГОСТ 2.105-79. Над правым верхним углом таблицы помещают надпись "Таблица..." с указанием порядкового номера таблицы. Нумеруются таблицы в пределах раздела арабскими цифрами. Допускается нумерация в пределах всего документа. Если имеется заголовок таблицы, он помещается ниже слова "Таблица..." и пишется строчными буквами (кроме первой прописной).
Если строки или графы таблицы не умещаются на лист, таблицу делят на части. Отдельные части могут располагаться на разных листах или на одном листе.
Если часть таблицы переносится на другую страницу, то на первой странице, в головке таблицы, графы нумеруются. На второй странице головка не повторяется, а дается только нумерация граф, с обязательным соблюдением ширины последних..
Если части таблицы помещаются на одном листе, то они располагаются либо рядом, либо одна под другой.
Тематический заголовок помещают только над первой частью таблицы.
При переносе над первой частью таблицы пишут слово "Таблица" и ее порядковый номер. Над другими частями пишется "Продолжение табл. ..." Заголовки граф в таблице начинают с прописных букв, а подзаголовки - со строчных, если они составляют одно предложение с заголовком. Если подзаголовки имеют самостоятельное значение, то их начинают с прописных букв. В головке таблицы единицы физических величин пишут отдельной строкой после запятой (см. табл. 7.4).
Таблица 7.4
Заголовок таблицы
| Наименование детали
|
Размеры, мм
|
Масса, кг
|
| длина
|
ширина
|
высота
|
Высота строк таблиц должна быть не менее 8 мм.
При необходимости к таблицам даются примечания. Если примечание только одно, то после слова "Примечание" ставится точка, а текст его начинается на той же строке. Если примечаний несколько, то они записываются по следующему образцу:
Примечание: 1. _______________________________
2. _______________________________
Таблица 7.5
Размеры болтов, мм
| d
|
1,6
|
2
|
2,5
|
| i
|
0,35
|
0,4
|
0,45
|
| di
|
0,6
|
2
|
2,5
|
| s
|
3,2
|
4/5
|
5
|
| H
|
1,1
|
1,4
|
1,7
|
Продолжение табл. 7.5.
| d
|
1,6
|
2
|
2,5
|
| R
|
0,1
|
0,1
|
0,1
|
| d1
|
-
|
-
|
-
|
| d2
|
-
|
-
|
-
|
| l2
|
-
|
-
|
1
|
Графу "№ п/п" в таблицу не включают. При необходимости нумерации показателей, параметров или других данных в боковине таблицы порядковые номера указывают в графе перед их наименованием (табл. 7.6).
Если цифровые данные в графах таблицы имеют различную размерность. ее указывают в заголовке каждой графы.
Когда в таблице помещены графы с параметрами преимущественно одной размерности, но есть показатели с другими размерностями, над таблицей помещают надпись о преобладающей размерности, а сведения о других размерностях дают в заголовках (табл. 7.7).
Таблица 7.6.
| Наименование
параметра
|
Норма для типа
|
| Р-25
|
Р-75
|
Р-150
|
Р-300
|
| 1. Пропускная
способность, м3\мин
|
2,5
|
7,5
|
15,0
|
30,0
|
| 2. Масса, кг, не более
|
100
|
300
|
600
|
200
|
Основные параметры
Размеры, мм Таблица 7.7.
| Условный проход
|
D
|
L
|
L1
|
L
2
|
Масса,
кг
|
| 50
|
160
|
180
|
-
|
-
|
160
|
| 80
|
195
|
210
|
525
|
600
|
170
|
| 100
|
215
|
230
|
-
|
-
|
190
|
Слова "более", "не более", "менее", "не менее" следует помещать рядом с наименованием соответствующего параметра или показателя (после размерности) в боковике таблицы (см. табл. 7.6) или в заголовке графы.
| Наименование отливки
|
Положение оси вращения
|
| Гильзы цилиндрические
|
Горизонтальное
|
| То же
|
«
|
| «
|
«
|
Повторяющийся в графе текст, если он состоит из одного слова, допускается заменять кавычками. Если повторяющийся текст состоит из двух и более слов, то при первом же повторении его заменяют словами "то же", а далее кавычками (табл. 7.8.). Таблица 7.8
Положение оси вращения
Ставить кавычки вместо повторяющихся цифр, марок, знаков, математических и химических символов не допускается. Если цифровые данные в таблице не приводятся, то в графе ставят прочерк (табл. 7.7).
Единицы измерения угловых величин (градусы, минуты, секунды) при отсутствии горизонтальных линий в таблице указывают только в первой строке таблицы (табл. 7.10). При наличии в таблице горизонтальных линий единицы измерения угловых величин проставляют во всех строках. Цифры в графах таблиц, как правило, располагают так, чтобы классы чисел во всей графе были точно одно под другим.
Числовые величины в одной графе должны иметь одинаковое количество десятичных знаков ( табл. 7.9), числовые значения неоднородных величин пишут посередине граф (см. табл. 7.6).
Таблица 7.9
Параметры зенкеров
| Диаметр зенкера
|
С
|
С1
|
N
|
N
1
|
N2
|
| От 10 до 11
|
3,17
|
0,45
|
-
|
3.00
|
0,25
|
| Св.11 " 12
|
4,85
|
1,30
|
0,44
|
3,84
|
-
|
| "12 "14
|
5,00
|
2,30
|
4,20
|
7,45
|
1,45
|
Для сокращения текста заголовков и подзаголовков граф отдельные понятия заменяют буквенными обозначениями, если они пояснены в тексте или приведены на иллюстрациях, например: D - диаметр, Н - высота, L - длина.
При указании в таблицах последовательных интервалов значений величин, охватывающих все величины ряда, перед величинами пишут "от", "св.", "до" Пределы размеров указывают от меньших к большим. (см. табл. 7.9).
Таблица 7.10
Угловые параметры
| α
|
β
|
| 2° 10'30"
3 27 45
5 00 30
|
5° 30'
8 25
10 30
|
7.4. Оформление диаграмм
Графики, отражающие функциональную зависимость двух или нескольких величин, называются диаграммами. При вычерчивании диаграмм нужно соблюдать требования, указанные в ГОСТ 2.319 "Правила выполнения диаграмм".
При построении диаграммы значения независимой переменной откладывают по горизонтальной оси.
Если на диаграмме необходимо указать направления возрастания величин, координатные оси должны заканчиваться стрелками (рис.7. 4).

Рис. 7.4 График зависимости продолжительности отверждения смолы от температуры нагрева

Рис. 7.5 Водопоглощение (Wi) и водопоглощение (W2
) натуральной и модифицированной древесины березы: 1 - водопоглощение; 2 - влагопоглощение; а - натуральная древесина; б - модифицированная древесина
Направления возрастания величин можно указывать в виде самостоятельных стрелок, расположенных параллельно осям координат (рис. 7.4-7.5).
Масштаб шкалы значений откладываемой величины может быть различным для каждого направления координат (см. рис. 7.4).
Координатные оси, как шкалы значений изображаемых величин, должны быть разделены на графические интервалы одним из способов:
координатной сеткой (см. рис. 7.5);
делительными штрихами (см. рис. 7.4);
сочетанием координатной сетки и делительных штрихов.
Диаграммы без шкал следует выполнять во всех направлениях в линейном масштабе изображения.

Рис. 7.6. Изменение модуля упругости древесностружечных плит
На диаграмме переменная величина обозначается наименованием, символом или математическим выражением (см. рис. 7.4-7.6).
Единицы физических величин должны быть нанесены одним из способов, показанных на рис. 7.4-7.6.
Допускается на одной диаграмме изображать несколько функциональных зависимостей. При этом линии графического образа и координатные оси со значением переменных величин изображаются, как показано на рис. 7.4-7.6.
Диаграмма может иметь наименование и поясняющую часть (см. рис. 7.4-7.6).
Символы и номера у линии должны быть разъяснены на свободном поле диаграммы (см. рис. 7.4) или под рисунком (см. рис. 7.5), или в тексте.
Оси шкал и оси координат следует выполнять основной линией толщиной S, линии координатной сетки и делительные штрихи - сплошной тонкой линией толщиной S/2. Изображение функциональной зависимости (линии графического образа) выполнять линией толщиной 2S.
Пучок линий графического образа, выходящих или пересекающихся в одной точке, не следует доводить до точки пересечения, за исключением крайних (см. рис. 7.5).
Изображение диаграммы в текстовом документе является одним из видов рисунков; снабжается наименованием, пояснительной надписью и порядковым номером (см. подраздел 7.1.3.).
7.5. Правила выполнения основной надписи («штампа») графических и текстовых документов
Основная надпись чертежа выполняется в правом нижнем углу листа в соответствии с ГОСТ 211101 по форме 3 или в соответствие с ГОСТ 2.104 по форме 1 (приложение 4)
Форма 3 применяется на чертежах, которые относятся к чертежам проектной документации (генпланы, строительные чертежи, зданий и сооружений, технологических планировок, схем, плакатов).
Форма 4 применяется на чертежах изделий, выпускаемых предприятиями и в конструкторских чертежах.
В приложениях показаны размеры при вычерчивании формы 3 и 1 основной надписи («штампа») чертежа и образцы заполнения граф основной надписи чертежа.
Основная надпись по форме 5 и 6 (приложение. 5) выполняется на листах текстового документа.
Форма 5 выполняется на первом листе текстового документа, форма 6 - на последующих листах текстового документа. (приложение 6 и 7)
В пояснительных записках дипломных проектов форма 5 выполняется на 1-ом листе содержания, на всех последующих - форма 6.
В приложении 6 и 7 показаны размеры при вычерчивании формы 5, 6 основной надписи текстовых документов и образцы заполнения граф.
Заполнение граф основной надписи («штампа»), кроме графы 1, затруднений не вызывает, поэтому порядок заполнения графы 1 в чертежах проектов зданий и сооружений, а также текстовых документов показан в примере 1.
Пример 1
. ДП-250403.65 -13-09-ТX
а б в г д
где а - шифр вида учебной работы;
б - код специальности;
в- номер дипломного проекта по приказу;
г – текущий год;
д - обозначение документа (чертежа или текстового документа) для дипломных проектов (см. пункт 7 .6), для других видов учебных документов - пункт 1.2.
7.6. Основные правила выполнения чертежей дипломных проектов, связанных с технологией производства
7.6.1. Общие сведения
Документ, в соответствии с которым строится или реконструируется объект проектирования (цех, участок, предприятие), называется рабочим проектом.
Чертежи рабочего проекта очень разнообразны, к ним относятся:
- чертежи технологической части проекта, которые включают в себя планы расстановки технологического оборудования, чертежи общих видов оборудования, чертежи схем технологических трубопроводов (пневмотранспорт, разводка трубопроводов подачи краски и т.п.) и другие;
- чертежи строительной части проекта. Эти чертежи поступают на строительную площадку, и по ним ведется производство строительно-монтажных работ зданий и сооружений;
- чертежи сантехнической части проекта для выполнения и монтажа сантехнического оборудования и т.д.
Все чертежи рабочего проекта группируются в основные комплекты в зависимости от их содержания. Каждому комплекту присваивается самостоятельное обозначение в соответствии с ГОСТ Р 21.1101 (пункт 7.6.2). Например, архитектурным чертежам зданий и сооружений присваивают марку АР. Чертежам генерального плана - марку ГП. Чертежам, связанным с технологией производства, присваивают марку ТХ.
Таблица 7.11
Марки основных комплектов рабочих чертежей по ГОСТ Р 21.1101
| Наименование основного комплекта
|
Марка
|
| 1
|
2
|
| 1. Генеральный план и сооружения транспорта
|
ГТ
|
| 2. Генеральный план
|
ГП
|
| 3. Технология производства
|
ТХ
|
| 4. Воздухоснабжение внутреннее
|
ВС
|
| 5. Автоматизация
|
А...
|
| 6. Технологические коммуникации
|
ТК
|
| 7. Электрическое освещение внутреннее
|
ЭО
|
| 8. Силовое электрооборудование
|
ЭМ
|
| 9. Теплоснабжение
|
ТС
|
Продолжение табл. 7.11
| 1
|
2
|
| 10. Системы связи
|
СС
|
| 11. Конструкции железобетонные
|
КЖ
|
| 12. Конструкции металлические деталировочные
|
КМД
|
| 13. Конструкции деревянные
|
КД
|
| 14. Архитектурно-строительные решения
|
АС
|
| 15. Архитектурные решения
|
АР
|
| 16. Отопление, вентиляция и кондиционирование воздуха
|
ОВ
|
| 17. Внутренние водопровод и канализация
|
ВК
|
| 18. Наружные сети водоснабжения и канализации
|
НВК
|
7.6. 2 Обозначение чертежей дипломного проекта
Чертежи дипломного проекта также разбиваются на группы в соответствии с разрабатываемыми частями: технологической, строительной, экономической и т.п.
Чертежам и текстовым документам дипломного проекта присваиваются соответствующие обозначения, которые указываются в графе 1 основной надписи (см. раздел 7.5.):
- Пояснительная записка ПЗ
- Спецификация оборудования СО
- Общий вид изделия, узлы ВО
- Сборочный чертеж узла
или изделия СБ
- Генеральный план ГП
- Чертежи технологии производства ТХ
- Архитектурные решения АР
- Архитектурно-строительные
решения АС
- Теоретический чертеж ТЧ
- Чертежи раздела охраны труда ОТ
- Экономические показатели
проекта ЭП
Обозначения чертежей, на которых изображены схемы, должны состоять из буквы, определяющей вид схемы, и цифры, обозначающей тип схемы по ГОСТ 2.701 (тобл.7.12)
Таблица 7.12
Обозначения чертежей схем
| Виды схем
|
Типы схем
|
| Электрическая - Э
|
Структурная - 1
|
| Технологическая - Т
|
Функциональная - 2
|
| Гидравлическая - Г
|
Принципиальная - 3
|
| Пневматическая - П
|
Соединений (монтажа) - 4
|
| Кинематическая - К
|
Общая - 6
|
| Автоматизации - А
|
Расположение - 7
|
| Подключения - 5
|
Если на чертежах выполнены таблицы, рисунки, эти чертежи целесообразно обозначать ТЧ, т.е. теоретический чертёж.
7.7. Общие требования к чертежам всех частей дипломного проекта
При оформлении графической части диплома нужно руководствоваться не только общими требованиями ГОСТов системы ЕСКД, но и учитывать соответствующие требования ГОСТов системы СПДС (система проектной документации на строительство) а также требования СТП БрИИ 01.03-89.
Правила выполнения рабочих чертежей проектной документации на строительство даны в ГОСТ Р 21.1101, основные положения которого см. ниже:
- при нанесении размеров размерные линии ограничиваются засечками. Длина засечки 2 - 4 мм, угол наклона к размерной линии 45°;
- размерную линию диаметра окружности или радиуса, а также углового размера ограничивают стрелками см. рис 7.7;
Рис. 7.7
- сокращение слов на чертежах разрешается в соответствии с ГОСТ 2.316;
- каждому зданию и сооружению присваивают самостоятельную систему координационных осей и наносят по левой нижней стороне плана здания штрих-пунктирными линиями. Маркируют координационные оси арабскими цифрами вдоль длинной стороны здания и прописными буквами (кроме 3, Й, О, X, Ы, Ъ) - вдоль короткой стороны здания, которые проставляют в кружках d 6 ÷ 12 мм. Размер шрифта для координационных осей и позиций на 1-2 номера больше, чем для размерных чисел этого чертежа;
- если в здании производится установка дополнительных колонн, расположенных между координационными осями (реконструкция, установка оборудования), обозначение этих колонн производится в соответствии со схемой приведённой на рис. 7.8;
- отметки уровней (глубины, высоты) элементов конструкций, оборудования, трубопроводов производят в соответствии с рис. 7.9, отсчет уровня отметки производят от отметки, условно принятой за нуль;
- номера позиций проставляют на линиях-выносках или в пределах контура предмета в нижнем правом углу. При вычерчивании фасадов зданий и сооружений над изображением фасада пишут: Фасад 1-12, с указанием крайних осей, между которыми он расположен;
- изображения видов, разрезов, сечений конструкторских чертежей должны отвечать требованиям ГОСТ 2.305. Рис. 7.8

Рис. 7.9
7.8. Оформление чертежей разрезов зданий
При выполнении разреза положение секущей плоскости выбирают так, чтобы в разрез попали наиболее сложные участки соединения технологического оборудования и строительных конструкций.
Расположение секущей плоскости (линии разреза) может быть прямой или ломаной линией.
Разрезы обозначают арабскими цифрами. Направление взгляда для разрезов принимают по плану - снизу вверх и справа налево.
Изображение - только до оси симметрии, симметричного изображения не допускается.
В названиях разрезов зданий и сооружений указывают название соответствующей секущей плоскости.
Пример: Разрез 1 - 1.
На чертежах разрезов наносят и указывают: координационные оси здания и расстояние между крайними осями, отметки уровня земли, чистого пола, площадок, низа несущих конструкций одноэтажных зданий, уровня головки рельсов подъемно-транспортного оборудования.
Нанесение отметок уровней производится в соответствии с рис. 7.9
На планах зданий высотные отметки наносят в прямоугольниках.
Уровень чистого пола первого этажа здания принимают за нулевую отметку 0.000. Все отметки выше нулевой указывают со знаком + (плюс), ниже нулевой со знаком – (минус).
7.9. Особенности оформления чертежей технологии производства
К чертежам технологии производства относятся:
- чертежи расположения оборудования и технологических трубопроводов;
- установочные чертежи технологического оборудования;
- чертежи общих видов оборудования индивидуального изготовления (нестандартного), предназначенного для конструкторской разработки.
При выполнении чертежей технологии производства соблюдают все правила раздела 7, см. прил. .
На схемах и чертежах изображают оборудование и трубопроводы в виде упрощенных контурных очертаний в масштабе чертежа или условными графическими изображениями сплошной толстой основной линией.
Рекомендуется применять графические изображения оборудования, которые применяются в учебниках, учебных пособиях или на чертежах проектных организаций.
Строительные конструкции изображаются в виде упрощенных контурных очертаний сплошной тонкой линией.
К чертежам расположения оборудования относятся планы, разрезы, сечения, фрагменты планов. Рекомендуется выполнять в масштабах 1:50, 1:100, 1:200. -
Фрагменты планов и разрезов в масштабах 1:10,1:25.
На чертежах указывают и обозначают: технологическое оборудование; места складирования заготовок и продукции; трубопроводы и их элементы;
подъемно-транспортное оборудование и рельсовые пути (условные изображения см. приложение 10);
каналы и лотки для прокладки труб;
места обслуживания оборудования;
координационные оси здания (сооружения) и расстояние между ними;
отметки полов этажей, площадок;
привязку оборудования, трубопроводов к координационным осям или элементам конструкций зданий. Допускается взаимная привязка оборудования; величину условного прохода (Ду) труб. Направление потока продукта на вводах, выводах и разветвлениях; оборудованию, изображенному на чертежах, присваивают номера позиций. Нумерация ведется по ходу технологического процесса.
К чертежам расположения технологического оборудования выпускается спецификация оборудования (ТХ СО, см. пункт 3.11).
8. СПИСОК РЕКОМЕНДУЕМОЙ ЛИТЕРАТУРЫ
8.1. - по технологии лесопильно-деревообрабатывающих производств
- Калитеевский Р.Е. Лесопиление в 21 веке. Технология, оборудование, менеджмент.- Спб.: ПРОФИКС, 2005.-480с.
- Волынский В.Н., Пластинин С.Н. Первичная обработка пиломатериалов на лесопильных предприятиях. –М.: Риэл-пресс,-256с.
- Справочник по лесопилению /Ю.А.Варфоломеев и др.; Под ред.Копейкина.- М.: Экология, 1991.-495с
- Аксёнов П.П., Макаров Н.С., Прохоров И.К. и др. Технология пиломатериалов: Учебник для ВУЗов. 2-е перераб. И доп.-М.: Лесная промышленность, 1976.-480 с.
- Справочник по лесопилению /Под ред.С.М.Хасдана.- М.: Лесная промышленность, 1980.- 424с.
- Аксёнов П.П. Теоретические основы раскроя пиловочного сырья. – М.: Лесная промышленность, 1960. – 216 с.
- Песоцкий А.Н., Ясинский В.С. Проектирование лесопильно-деревообрабатывающих производств. - М.: Лесн.пром-ть, 1976.- 258 с.
- Челышева И.Н., Трошкин С.Н. Технология лесопильно-деревообрабатывающего производства: Методические указания Братск: БрГТУ, 2001.-101с.
8.2. - по технологии изделий из древесины
- Тарасенко В.М., Вихрева В.В. Оборудование мебельного производства. – М: Лесная пром-сть, 1986,-304 с.
- Кряков В.М., Гулин В.С., Берелин А.В. Современное производство мебели. . – М: Лесная пром-сть, 1986,-264 с.
- Радчук Л.И. Технология изделий из древесины: Учебное пособие по курсовому проектированию. – М.: МГУЛ, 2006. -167 с.
- Мамонтов Е.А., Стрежнев Ю.Ф. Проектирование технологических процессов изготовления изделий деревообработки: Учебное пособие. – СПб.: «ПрофиКС», 2006.- 584 с.
- Филонов А.А., Гарин В.А. Технология изделий из древесины: Учебное пособие.- М.: МГУЛ 2005. – 162 с.
- Мишков С.Н. Расчёт материалов в производстве изделий из древесины. - М.: МГУЛ 2005. – 140 с.
- Мишков С.Н. Технология изделий из древесины . Размерный анализ конструкции изделия. Учебное пособие. - М.: МГУЛ 2004. – 140 с.
- Васильева И.В., Найман В.С., Шамарин Ю.А. Основные требования стандартов к оформлению конструкторской документации: Учебное пособие. - М.: МГУЛ 2007. – 59 с.
- Справочник мебельщика. Под ред. Бухтиярова В.П.
3-е издание переработанное. - М.: МГУЛ 2005. – 600 с.
8.3. - по сушке и гидротермической обработке древесины.
- Серговский П.С. Гидротермическая обработка и консервирование древесины: Учеб.для вузов.- 4-е изд. перераб. и доп..- М.: Лесн.пром-сть, 1987.- 359с
- Акишенков СИ. Проектирование лесосушильных камер и цехов: Учебн.пособие по курс.и дипл.проект.(спец.26.02,17.04).- СПб.: ЛТА, 1992.- 88с
- Богданов Е.С. и др.Справочник по сушке древесины.- 4-е изд. перераб.и доп..- М.: Лесн.пром-ть, 1990.- 303с
- П.В.Соколов,Г.Н.Харитонов,С.В.Добрынин Лесосушильные камеры.- 3-е изд.,перераб.и доп..- М.: Лесн.пром-сть, 1987.- 180с
- Шубин Г.С. Проектирование установок для гидротермической обработки. – М: Лесн.пром-сть, 1983.- 271с
- Голенищев А.Н., Добрынин С.В. и др. Сушка и защитная обработка древесины. – М: Лесн.пром-сть, 1984.- 80с
- Бывших М.Д., Фёдоров Н.И. Защитная обработка древесины. – М: Лесн.пром-сть, 1981.- 144с
8.4. - по технологии клееных материалов (фанеры)
- Шмидт А.Б. Атлас строительных конструкций из клееной древесины и водостойкой фанеры: Учеб. пособие для вузов.- М.: АСВ, 2002.- 291с.
- Калугин А.В. Деревянные конструкции: Учеб. пособие для вузов.- М.: АСВ, 2003.- 224с.
- Деревянные конструкции и детали/ В.М.Хрулев, К.Я.Мартынов, С.Б.Лукачев, Г.М.Шутов. - 2-е изд., перераб. и доп..- М.: Стройиздат, 1983.- 288с..-(Справ.строителя)
- Справочное пособие по производству фанеры/ Ю.В.Васечкин, А.Д.Валягин, В.П.Сергеев и др. - М.: Экология, 1993.- 281с.
- Зыков Ф.И. Основы технологии и оборудование в производстве лущеного шпона и сырой спичечной соломки: Учебн. пособие.- М.: Экология, 1991.- 159с.
- Азаров В.И. Технология связующих и полимерных материалов: Учеб. пособие для вузов.- М.: Лесн. пром-сть, 1985.- 216с.
- Бывших М.Д. Материалы фанерно-спичечного производства: Учебник для вузов.- М.: Лесн.пром-ть, 1984.- 224с.
- Васечкин Ю.В. Практикум по технологии и оборудованию фанерного производства: Учеб.пособие.- М.: Лесн.пром-ть, 1986.- 104с.
- Веселов А.А. Использование древесных отходов фанерного и спичечного производства.- М.: Лесн. пром-ть, 1987.- 158с..-(Рацион.использование древесины)
- Доронин Ю.Г. Синтетические смолы в деревообработке: Справочник/ Ю.Г.Доронин, С.Н.Мирошниченко, М.М.Свиткина.- 2-е изд., перераб.и доп..- М.: Лесн.пром-ть, 1987.- 220с. Хранение:
- Ковальчук Л.М. Производство деревянных клееных конструкций.- 2-е изд.,перераб.и доп..- М.: Лесн.пром-ть, 1987.- 247с.
- Куликов В.А. Технология клееных материалов и плит: Учебник для вузов.- Л.: Лесная промышленность, 1984.- 343с. Хранение:.
- Справочник по производству фанеры/ А.А.Веселов, Л.Г.Галюк, Ю.Г.Доронин и др. - М.: Лесн. пром-ть, 1984.- 431с. Хранение: БФ-19экз.
- Куликов В.А. Технология клееных материалов и плит: Учеб. пособие для спец.0902,1720/ В.А.Куликов, Л.М.Сосна, В.А.Егоров.- Л.: ЛТА, 1986.- 80с.
- Варанкина Г.С. Технология клееных материалов (производство фанеры): Метод. указ. к курс. проектированию. - Братск: БрГТУ, 2002.- 41с.
- Волынский В.Н. Технология клеёных материалов: Учеб. пособие.- Архангельск: Изд-во АрхГТУ, 1998.- 299с.
- Кондратьев В.П. Синтетические клеи для древесных материалов: Химия и технология. Оборудование. Методы получения. Физико-технические свойства. Способы модификации. Условия применения /В.П.Кондратьев, В.И.Кондращенко. - М.: Научный мир,2004.-520с.- 2экз.
- Васечкин Ю.В. Технология производства клееных материалов и плит /Пособие по дипломному проектированию. – Л.: ЛТА, 1975. – 84 с.
8.5. - по технологии защитно-декоративных покрытий
- Рыбин Б.М. Технология и оборудование защитно-декоративных покрытий древесины и древесных материалов: Учебник для вузов. - М.: МГУЛ, 2005.-568 с.
- Бугай Б.М. Технология отделки древесины. – М.: Лесная пром-ть, 1973.- 304 с.
- Бухтияров Б.М. Технология отделки изделий из древесины. – М.: Лесная пром-ть, 1973.-319 с.
- Онегин В.И. Формирование лакокрасочных покрытий древесины. – Л.: Ленинградский университет, 1983. – 148 с.
- Тупицин Ю.С., Мирошниченко С.И., Ноткин М.М. Процессы и оборудование для отделки древесных плитных материалов. – М.: Лесная пром-ть, 1983. – 252 с.
8.6.- по технологии производства плитных материалов
(ДСтП, ДВП и др.)
- Роффаэль Э. Выделение формальдегида из древесностружечных плит/ Пер.с нем.;Под ред.А.А.Эльберта.- М: Экология, 1991.- 158с.
- Азаров В.И. Технология связующих и полимерных материалов: Учеб. пособие для вузов.- М.: Лесн. пром-сть, 1985.- 216с.
- Гордиенко В.В. Обработка древесностружечных плит давлением.- М.: Лесн.пром-сть, 1987.- 119с.
- Делимов А.И. Экономика и планирование производства древесных плит.- 3-е изд., перераб.и доп..- М.: Лесн.пром-ть, 1978.- 200с.
- Доронин Ю.Г. Синтетические смолы в деревообработке: Справочник/ Ю.Г.Доронин, С.Н.Мирошниченко, М.М.Свиткина.- 2-е изд., перераб.и доп..- М.: Лесн.пром-ть, 1987.- 220с.
- Модлин Б.Д. Изготовление стружки для древесностружечных плит.- М.: Лесн.пром-ть, 1988.- 150с.
- Отлев И.А. Справочник по древесностружечным плитам.- М.: Лесн. пром-ть, 1983.- 239с.
- Отлев И.А. Технологические расчеты в производстве древесностружечных плит.- М.: Лесн. пром-ть, 1979.- 240с.
- Справочник по производству древесностружечных плит/ И.А.Отлев и др..- 2-е изд., перераб. и доп..- М.: Лесн. пром-ть, 1990.- 380с.
- Карасев Е.И. Прессы непрерывного действия для древесных плитных материалов: Учеб. пособие для вузов/ Е.И.Карасев, М.В.Кохреидзе, А.А.Никитин.- М.: МГУЛ, 1997.- 45с.
- Карасев Е.И. Оборудование предприятий для производства древесных плит: Учебник для вузов.- М.: МГУЛ, 2002.- 319с.
- Тришин С.П. Технология и оборудование древесных плит и пластиков: Учеб. пособие по курс. проектированию. - М.: МГУЛ, 2002.- 92с.
- Модлин Б.Д. Производство древесностружечных плит: Учебник.- 4-е изд., перераб. и доп. - М.: Высш. школа, 1977.- 216с.
- Волынский В.Н. Технология стружечных и волокнистых древесных плит: Учеб. пособие для вузов/В. Н. Волынский.-Таллин:Дезидерата,2004.-192с.
- Кондратьев В.П. Синтетические клеи для древесных материалов: Химия и технология. Оборудование. Методы получения. Физико-технические свойства. Способы модификации. Условия применения /В.П.Кондратьев, В.И.Кондращенко. - М.: Научный мир,2004.-520с.
- Евдокимов М.И., Ковальчук Т.А., Твердохлебова В.Н. Технология древесных плит и пластиков: Методические указания к курсовому и дипломному проектированию для студентов специальности 26.02.00 всех форм обучения. – Красноярск: КГТА, 1996. – 56 с.
- Пучков Б.В. Использование древесных отходов для производства плит: Учеб. пособие для вузов/Б.В.Пучков.-2-е изд.-М.:МГУЛ,2005.-56с.- 15экз.
8.7. - по научным исследованиям
- Пижурин А.А., Пижурин В.А. Основы научных исследований: Учебник для вузов. – М.: Лесная пром-ть 2005.
8.8. - по безопасности жизнедеятельности
- Белов С.В. и др. Безопасность жизнедеятельности: учебник для вузов - М.: Высшая школа. 2005,- 448 с.
- Ткачук К.Н. Безопасность труда в промышленности. Справочник. - М.: Высшая школа. 1982.
- Акимов Ы.А., Воробьёв Ю.Л., Фалеев М.И. Безопасность жизнедеятельности. БЖД в ЧС природного и техногенного характера: Учебное пособие. – М.: Высшая школа, 2007,-592 с.
- Атаманюк ВТ. и др. Гражданская оборона: Учебник для вузов - М.: Высшая школа. 1987.
- Петров Н.Н. Человек в Чрезвычайных ситуациях. Челябинск. 1995, -352 с
- Корсаков ГА Расчет Чрезвычайных ситуаций. Учебное пособие. С-Петербург -1997.
- Атаманюк В Г, Ширшов Л Г., Акимов НИ. Гражданская оборона Учебник для ВТУЗов. -М: Высшая школа. 1986
- Шубин Е.П., Боровский Ю.В. Гражданская оборона. Учебник для студентов пед.институтов. -М: «Просвещение».- 1991.
- Остроух Ф.Й. Строительство быстровозводимых убежищ и противопожарных укрытий.- М.: Энергоатомиздат. 1983.
- Каммерер Ю.Ю и др. Защитные сооружения гражданской обороны:устройство и эксплуатация.-М.: Энергоатомиздат. 1985.
8.9. - по конструкторской части ДП.
- Кутуков Л.Г. Конструкции и расчет деревообрабатывающего оборудования. – М.: Лесная пром-сть, 1985. – 263 с.
- Маковский М.В. Проектирование деревообрабатывающих машин. – М.: Лесная пром-сть, 1982. – 304 с.
- Чернилевский Д.В. Курсовое проектирование деталей машин и механизмов: Учебное пособие. – М.: Высш. шк., 1980. – 238 с.
- Анурьев В.И. Справочник конструктора-машиностроителя. Т. 1. 2. 3. – М.: Машиностроение, 1980. – 1844 с.
- Силаев А.Б. Грузоподъёмные и транспортные устройства в деревообрабатывающей промышленности. – М.: Лесная промышленность, 1978. – 303 с.
- Спиваковский А.О., Дьячков В.К. Транспортирующие машины. – М.: Машиностроение, 1968. – 503 с.
- Конвейеры: Справочник / Под ред. Ю.А. Пертена. – Л.: Машиностроение, 1984. – 366 с.
- Машины непрерывного транспорта: Справочник / Под общ. ред. В.И. Плавинского. – М.: Машиностроение, 1969. – 718 с.
- Перегрузочные устройства: Справочник / Под ред.
Ю.П. Лайкина, А.Р. Малковича. – Л.: Машиностроение, – 1984. – 224 с.
- Кузнецов В.С. Пневматический транспорт на деревообрабатывающих предприятиях. Аспирационные установки: Учебное пособие.- Братск: ГОУ ВПО «БрГТУ»,2004.-152 с.
- Кузнецов В.С., Поскребышев В.А. Технология деревообработки: Учебное пособие. – Братск: ГОУ ВПО «БрГУ», 2009. – 174 с.
8.10 – по охране труда.
- Щербаков А.С., Никитин Л.И. Охрана труда в лесном хозяйстве, лесной и деревообрабатывающей промышленности.- М.: Лесная пром-сть, 1982. – 340 с.
- Назаренко Е.С., Казанцев В.А. Пожарная безопасность деревообрабатывающих предприятий: Справочник. – М.: Лесная пром-сть, 1990. – 272 с.
- Ефимцев Ю.А. Средства индивидуальной защиты работников лесного хозяйства: Справочник. – М.: Агропромиздат, 1989. – 240 с.
- Сборник новых инструкций по охране труда для рабочих лесной промышленности. – М.: Лесная пром-сть, 1989. – 472 с.
- Охрана воздушной среды на деревообрабатывающих предприятиях /О.Н.Русак, В.В.Молохов, Ю.А. Яковлев, В.П.Щёголев. – 2-е изд. перераб. и доп. – М.: Лесная пром-сть, 1989. – 240 с.
8.11. – по экономике
- Грузинов В.П. Экономика предприятия и предпринимательство. - М: СОФИТ, 1994.- 308с.
- Рузавин Г.И .Мартынов В.Т. Курс рыночной экономики.- М.: Банки и биржи, ЮНИТ, 1995.- 201 с.
- Сергеев И.В. Экономика предприятия: Учеб.пособие. -2-е изд., перераб. и доп. - М.: Финансы и статистка, 2001. - 304с.
- Синицина З.М., Воронин Э.М. Экономические вопросы в дипломных проектах: Методические указания для студентов специальности 26.02.- Воронеж, 1993.-37 с.
- Четыркин Е.М. Методы финансовых и коммерческих расчетов- 2-е изд., испр. и доп.- М.:"Дело ЛТД", 1995.- 320 с.
- Экономика деревообрабатывающей промышленности: Учебник для вузов / Е.К. Алтунова, Б.И. Павлов, П.С. Шайтор и др.- М.: Экология. 1991.-325 с.
- Экономика предприятия: Учебник для вузов / В.Я.Горфинкель. Е.М. Купряков. - М.: Банки и биржи: ЮНИТИ, 1996.- 367 с.
- Экономика предприятия: Учебник / под ред. О.И. Волкова. - 2-е изд., перераб. и доп. - М.: ИНФРА-М, 200. - 520 с.
- Экономика предприятия / В.М. Семенов.- М.: Центр экономики и маркетинга, 1996,-184 с.
- Экономические расчеты в дипломных проектах: Методические указания для студентов специальности 250303.65 «Технология деревообработки» / Е.В.Трусевич.-Братск: ГОУ ВПО»БрГУ».2005-25 с.
8.12. Перечень, периодических изданий для использования в дипломном проектировании.
8.12.1. Журналы
- Деревообрабатывающая промышленность
- ЛЕСПРОМ информ
- ЛЕС и бизнес
- ДЕРЕВО.RU
- Лесной эксперт
9. Электронные адреса сайтов по деревообработке и др. производств
9.1. OSB и MDF плиты.
- www.spon-a.ru/page 260800
- www.dvs.ru/i_shop/r31101/r31106
- www.smittrade.ru/catalogeu/building_materials/4
- www.antares-2004.narod.ru/osb_har.html
- www.izolit.com.ua/building/lamber/osb-3/properties
- www.innovatsia.ru/osb
- www.evanty.ru/katalog1/korpysnaya_mebel/materially/plity_mdf
- www.metadynea.ru/production/MDF/mdf-info/
- www.shkafy-kupe.ru/articles/materials/mdf
9.2. Пропитки антисептики, огнезащитные пропитки и другие
средства защиты древесины и дерева
- http://www.know-house.ru/info_new.php?r=fireproof2&uid=1#up
- http://www.bafus.ru/impregnating/
- http://www.tm-fenix.ru/ognezashitniesostav.html
- http://www.remmers.ru/catalog/msub28.htm
- www.seneg.ru Антисептики для древесины, огнезащитные составы
- www.antiseptik.com Антисептики. Пропитка древесины
- www.brevna.ru Защита древесины от синевы, плесени, гниения, УФ
- www.library.stroit.ru/articles/zaschita Защита древесины от гниения
- www.rgost.ru/gost ГОСТ по защите древесины в электронном варианте
9.3. Биоэнергетика
- http://www.wood-pellets.com/cgi-bin/cms/index.cgi?pid=229
- http://www.lesprominform.ru/newsite/main/28g-09.php?lang=ru
9.4. Комплексное использование древесины
- www.rusbio.biz/ru/nb2006_41.shtml
- www.sbras.ru/HBC/hbc.phtml?9+276+1
- http://www.spbpromstroy.ru/105/04.php
- http://www.derewo.ru/?p=14&t=114
9.5. Оборудование для переработки круглых лесоматериалов
- http://dora-plus.lestrade.ru/production. – Пилорама ленточная
- www.energosfera.grandkomi.ru/biblio_ - Основные типы оборудования для продольного раскроя круглого леса.
- http://www.vsz.ru/product/lesoproduct/der_ - Линия ЛАПБ-2М.
- http://www.rwt.ru/to.asp?show=t0007_2 – Линия ЛАПБ-4
9.6. Малоэтажное домостроение
- www.stroi-tehnologil.ru Малоэтажное строительство деревянных домов и коттеджей.
- exe.by/cataiog/site/3633 Деревянные дома, коттеджи, малоэтажное домостроение.
- www.mbschool.ru Все о строительстве домов.-
- www.wood/ru/ru/lovewsid-12985/html Оборудование принимаемое для строительства дома из дерева.
- www.homeplans.ru Преимущества строительства дома из дерева.
- www.smart –build.ru Технология малоэтажных строительства домов.
- www.proxima.com.ua Щиты перекрытий деревянные для малоэтажных домов.
- www.belhouse.net Каркасные дома, каркасное щитовое строительство домов.
- www.zakazdomov.ru Стены из деревянных панелей.
9.7. Наполнители и модификаторы клеев в деревообработке.
- http://www.toolland.ru/catalog.asp
- http://www.kleeff.ru/
- http://globsite.narod.ru/derevo/klei/sintetich.htm
- http://libb.ru/24/
- http://moikompas.ru/compas/kley
- http://www.proxima.com.ua/articles/articles.php?clause=259
9.8. Технология клееных материалов и плит
1. www.newchemistry.ru
2. http://www.vniidrev.balabanovo.ru/dr021.htm
3. http://www.swisspan.ru/technology/technology/8.htm
4. http://www.kolmaks.ru/catalog/?parent_id=17
5. http://www.bronepol.ru/Y7/detail.php?ID=6631
9.9. Защитно-декоративная отделка древесины
1. http://websofa.ru/
2. http://native.diarchy.ru/tech/wood/ton_1.html
3. http://native.diarchy.ru/tech/wood/ton_2.html
4. http://native.diarchy.ru/app.html#4
9.10. Современные клеи в деревообработке
- www.kleeff.ru/
- www.monplezir.chat.ru/pasting.htm
- www.globaledge.ru
- www.rigel-ag.ru
- www.svprom.info
9.11. Оборудование лесопиления
1. http://www.stanki.ru/woodwork/cat
2. http://www.karasaw.ru/
3. http://www.dobo.ru
9.12. Производство фанеры
- http://www.belfanera.ru
- http://www.1wb.ru
- http://www.borisovdrev.ru
9.13. Сушка древесины
- http://aero.scron.com/kamery_sushki-paero.html
- http://www.lesosushil
- http://www.intervesp-stanki.ru/item/rf-woodmax.htm
- http://www.wood-work.ru/catalogue/kamery/aero/eq.htm
- http://yourcommentit.ru/articles/category/1/message/586/
- www.lesosushilki.ru
- www.bryansk.ru/lesosushilki
- www.bryansk.ru/termotex
9.14. Производство клееного бруса
- http://www.stankispb.ru/tehnologiya/?page_id=16
- http://beam.timber-house.ru
- http://ivecodom.ru/content/view/19/1
- http://www.stankocenter.ru/tehnologi_stroiteln_brus.html
- http://www.ruswood.ru
- http://www.prostor.ru
9.15. Деревообрабатывающее оборудование
- http://www.globaledge.ru
- http://www.lmp29.ru
- http://www.elo.ru
- http://www.ecodrev.ru
- http://www.stanki.ru
- http://lipstanok.lipetsk.ru
ПРИЛОЖЕНИЕ 1
ПРИМЕРНОЕ СОДЕРЖАНИЕ ОТЗЫВА РУКОВОДИТЕЛЯ
ДИПЛОМНОГО ПРОЕКТА.
Отзыв должен содержать оценку проделанной работы по всем разделам проекта. При этом характеризуется логичность изложения и грамотность составления пояснительной записки, качество графической части и органическая связь представленных в проекте материалов.
В отзыве следует охарактеризовать степень самостоятельности студента при работе над проектом, оценить его теоретическую и практическую подготовку, способность решать конкретные производственные и конструкторские задачи на базе последних достижений науки и техники.
Следует оценить глубину патентно-информационного поиска по решаемой проблеме и умение работать с литературными источниками и Интернетом.
Для дипломников дневной формы обучения следует оценить ритмичность работы как в период преддипломной практики, так и в процессе работы над проектом.
В заключении следует оценить соответствие проекта требованиям ЕСКД и ЕСТД, и сделать вывод о целесообразности присвоения дипломнику квалификации инженера деревообработки.
Проект оценивается на "отлично", "хорошо" или "удовлетворительно" и, в случае целесообразности, рекомендуется к внедрению в производство или участию в конкурсах.
ПРИЛОЖЕНИЕ 2
ПРИМЕРНОЕ СОДЕРЖАНИЕ РЕЦЕНЗИИ НА ДИПЛОМНЫЙ ПРОЕКТ.
Рецензию на дипломный проект рецензент дает только на основании письменного поручения Братского государственного университета.
В вводной части рецензии кратко характеризуется состав и объем проекта, дается заключение о степени соответствия выполненного проекта заданию на проектирование, об актуальности темы и представленных разработок в свете современного состояния и перспектив развития отрасли, науки и техники.
В рецензии указываются недостатки, имеющиеся по мнению рецензента в разделах проекта, характеризуются общетехническая и специальная подготовка дипломника.
В заключении указывается, соответствует ли уровень выполненной работы требованиям, предъявляемым к инженеру деревообработки, высказывается мнение рецензента об оценке дипломного проекта, "отлично", "хорошо", "удовлетворительно" или "неудовлетворительно", о том, заслуживает ли дипломник присвоения квалификации инженера деревообработки
Объем рецензии – 2-3 стр. рукописного или 1-2 стр. машинописного текста.
Рецензия подписывается рецензентом с указанием даты, места работы, должности и скрепляется печатью предприятия или организации.
Далее рецензент кратко оценивает основные разделы проекта, высказывая свое мнение о том, насколько квалифицированно автор проекта подошел к оценке существующего на предприятии технологического процесса, анализу его хозяйственной деятельности, использования механизмов и оборудования, применению тех или иных форм организации труда.
. Оценивается правильность подхода автора проекта к обоснованию выбираемой системы машин и технологии их применения, расчета потребности рабочих, основного и вспомогательного оборудования, ГСМ, электроэнергии и т.д.
Рассматривается соответствие рекомендаций проекта современным требованиям в области комплексного использования древесины, охраны труда, окружающей среды.
Высказывается мнение об актуальности конструктивных разработок проекта, правильности выполнение инженерных расчетов, качестве графической части проекта.
Отмечаются положительные стороны проекта, практическая значимость отдельных его процессов и целесообразность их использования (внедрения) производственными, проектными или научными организациями.
ПРИЛОЖЕНИЕ 3 Основные размеры формы 1
Форма 1 применяется в комплектах чертежей изделий, выпускаемых предприятием и в конструкторских чертежах.
Основные размеры формы 3

Форма 3 применяется в комплектах чертежей предприятий (генпланы, строительные чертежи зданий и сооружений, технологических планировок, схем, плакатов).
ПРИЛОЖЕНИЕ 4
Образец заполнения формы 1
Образец заполнения формы 3
ПРИЛОЖЕНИЕ 5
Основная надпись первого листа текстового документа

Основная надпись последующих листов текстового документа

ПРИЛОЖЕНИЕ 6
Образец заполнения первого листа спецификации
ПРИЛОЖЕНИЕ 7
Образец второго листа спецификации

ПРИЛОЖЕНИЕ 8
Образец спецификации оборудования

ПРИЛОЖЕНИЕ 9
Образец содержания дипломного проекта
Содержание
Введение............................................................................................ 3
1. Технико-экономическое обоснование.....................................8
1.1. Характеристика предприятия..........................................8
1.2. Характеристика выпускаемой продукции......................9
1.3. Состав предприятия........................................................10
1.4. Технико-экономическое обоснование дипломной работы..................................................................................................17
2. Состояние вопроса....................................................................18
2.1. Снижение энергоемкости процесса сушки древесных частиц...................................................................................................18
2.2. Снижение пожароопасности процесса сушки древесных частиц...................................................................................................21
3. Научно-исследовательская часть.............................................27
3.1. Разработка норм расхода топлива на сушку древесных частиц...................................................................................................27
3.2. Исследование фактической влажности древесных частиц до и после сушки.....................................................................28
4. Технологическая часть..............................................................44
4.1. Обоснование исходных данных для расчета................44
4.2. Тепловой расчет сушильной установки........................45
4.3. Описание технологического процесса сушки древесных частиц..................................................................................................74
5. Охрана труда.............................................................................77
6. Охрана окружающей среды.....................................................87
7. Безопасность жизнедеятельности............................................89
8. Экономическая часть................................................................94
Заключение..................................................................................110
Список использованных источников........................................113
Приложения:................................................................................115
Приложение 1...............................................................................115
Приложение 2...............................................................................116
ПРИЛОЖЕНИЕ 10
Условные изображения подъемно-транспортного оборудования
(ГОСТ 21.112
)

Продолжение приложения 10

ПРИЛОЖЕНИЕ 11
Пример выполнения чертежа дипломного проекта

СПИСОК ИСПОЛЬЗОВАННЫХ ИСТОЧНИКОВ
ГОСТ 2.101-68' ЕСКД. Виды изделий.- М.: Изд-во стандартов, 1984.- 343 с.
ГОСТ 2.101-68* ЕСКД. Виды и комплектность конструкторских документов,- М,: Изд-во стандартов, 1984.- 343 с.
ГОСТ 2.101-68* ЕСКД. Основные надписи.- М.: Изд-во стандартов, 1984.- 343 с.
ГОСТ 2.105-79. ЕСКД. Общие требования к текстовым документам.- М.: Изд-во стандартов, 1984.-343 с.
ГОСТ 2.108-68' ЕСКД. Спецификация.- М: Изд-во стандартов, 1984,- 343 с.
ГОСТ 2.109-73* ЕСКД. Основные требования к чертежам,- М.: Изд-во стандартов, 1984,- 343 с.
ГОСТ 2.118-73. ЕСКД. Техническое предложение,- М.: Изд-во стандартов, 1984.- 343 с.
ГОСТ 2.1 19-73. ЕСКД. Эскизный проект.- М: Изд-во стандартов, 1984.- 343 с.
ГОСТ 2.120-73. ЕСКД. Технический проект.- М: Изд-во стандартов, 1984.- 343 с.
ГОСТ 2.301-68* ЕСКД. Форматы.- М: Изд-во стандартов, 1983,- 215 с.
ГОСТ2.302-68* ЕСКД. Масштабы.- М.: Изд-во стандартов, 1983.- 215 с.
ГОСТ 2.303-68*. ЕСКД. Линии.- М.: Изд-во стандартов, 1983,- 215 с.
ГОСТ2.305-68 . ЕСКД. Изображения - виды, разрезы, сечения,- М: Изд-во стандартов. 1983,- 215 с.
ГОСТ 2.306-68*. ЕСКД. Обозначения графических материалов и правила их нанесения на чертежах.- М: Изд-во стандартов, 1983.- 215 с.
ГОСТ 2.307-68 . ЕСКД- Нанесение размеров и предельных отклонений.- М.: Изд-во стандартов, 1983,-215 с.
ГОСТ 2.309-73 . ЕСКД. Обозначение шероховатостей поверхностей.- М.: Изд-во стандартов, 1983.-215 с.
ГОСТ 2.310-68. ЕСКД. Нанесение на чертежах обозначений покрытия.- М.: Изд-во стандартов, 1983.-215 с.
ГОСТ 2.311-68*. ЕСКД. Изображение резьбы.- М.: Изд-во стандартов. 1983.- 215 с.
ГОСТ 2.312-72. ЕСКД. Условные изображения и обозначение швов сварных соединений.- М.: Изд-во стандартов, 1983.- 215 с.
ГОСТ 2.316-68*. ЕСКД. Правила нанесения на чертежах надписей, технических требований и таблиц,- М.: Изд-во стандартов, 1983.- 215 с.
ГОСТ 2.317-69*. ЕСКД. Аксонометрические таблицы.- М.: Изд-во стандартов, 1983.- 215 с.
ГОСТ 2.319-81. ЕСКД. Правила выполнения диаграмм.- М: Изд-во стандартов, 1983,-215 с.
ГОСТ 2.701-84. ЕСКД. Схемы. Виды и типы. Общие требования к выполнению.- М: Изд-во стандартов, 1984- 15 с.
ГОСТ Р 21.1101-92. СПДС. Основные требования к рабочей документации.- М.: ПЩПП, 1993.- 51 с.
ГОСТ 21.401-88. СПДС. Технология производства. Основные требования к рабочим чертежам.-М: Изд-во стандартов, 1988.-17 с.
ГОСТ 21.110-82. СПДС. Спецификация оборудования.- М.: Изд-во стандартов, 1982.- 5 с.
ГОСТ 21.112-87*. СПДС. Подъемно-транспортное оборудование. Условные изображения.- М: Изд-во стандартов, 1988.- 8 с.
СТП БрИИ 01.03.89. - Стандарт предприятия. Оформление текстовых учебных документов. - Братск, 1989.-25 с.
Ермолина Т.В. МУ для студентов факультета технологии и оборудования деревообрабатывающих производств.- Красноярск.: СТИ, 1989.- 48 с.
|