Банк рефератов содержит более 364 тысяч рефератов, курсовых и дипломных работ, шпаргалок и докладов по различным дисциплинам: истории, психологии, экономике, менеджменту, философии, праву, экологии. А также изложения, сочинения по литературе, отчеты по практике, топики по английскому.
Реклама
Полнотекстовый поиск
Всего работ:
364139
Теги названий
Реклама
VisitTime.ru помогает быстро организовать онлайн-запись клиентов и держать расписание под контролем.
📅 Настройте услуги и длительность приёма, откройте свободные окна — и клиенты запишутся сами в пару кликов.
🕒 Вы избегаете накладок, меньше тратите времени на переписки и звонки, а автоматические напоминания повышают явку.
💡 Отличное решение для мастеров, студий и сервисных команд, которым важны порядок и стабильная загрузка.
Начать пользоваться сервисом



Разделы
Авиация и космонавтика (304)
Административное право (123)
Арбитражный процесс (23)
Архитектура (113)
Астрология (4)
Астрономия (4814)
Банковское дело (5227)
Безопасность жизнедеятельности (2616)
Биографии (3423)
Биология (4214)
Биология и химия (1518)
Биржевое дело (68)
Ботаника и сельское хоз-во (2836)
Бухгалтерский учет и аудит (8269)
Валютные отношения (50)
Ветеринария (50)
Военная кафедра (762)
ГДЗ (2)
География (5275)
Геодезия (30)
Геология (1222)
Геополитика (43)
Государство и право (20403)
Гражданское право и процесс (465)
Делопроизводство (19)
Деньги и кредит (108)
ЕГЭ (173)
Естествознание (96)
Журналистика (899)
ЗНО (54)
Зоология (34)
Издательское дело и полиграфия (476)
Инвестиции (106)
Иностранный язык (62791)
Информатика (3562)
Информатика, программирование (6444)
Исторические личности (2165)
История (21319)
История техники (766)
Кибернетика (64)
Коммуникации и связь (3145)
Компьютерные науки (60)
Косметология (17)
Краеведение и этнография (588)
Краткое содержание произведений (1000)
Криминалистика (106)
Криминология (48)
Криптология (3)
Кулинария (1167)
Культура и искусство (8485)
Культурология (537)
Литература : зарубежная (2044)
Литература и русский язык (11657)
Логика (532)
Логистика (21)
Маркетинг (7985)
Математика (3721)
Медицина, здоровье (10549)
Медицинские науки (88)
Международное публичное право (58)
Международное частное право (36)
Международные отношения (2257)
Менеджмент (12491)
Металлургия (91)
Москвоведение (797)
Музыка (1338)
Муниципальное право (24)
Налоги, налогообложение (214)
Наука и техника (1141)
Начертательная геометрия (3)
Оккультизм и уфология (8)
Остальные рефераты (21692)
Педагогика (7850)
Политология (3801)
Право (682)
Право, юриспруденция (2881)
Предпринимательство (475)
Прикладные науки (1)
Промышленность, производство (7100)
Психология (8692)
психология, педагогика (4121)
Радиоэлектроника (443)
Реклама (952)
Религия и мифология (2967)
Риторика (23)
Сексология (748)
Социология (4876)
Статистика (95)
Страхование (107)
Строительные науки (7)
Строительство (2004)
Схемотехника (15)
Таможенная система (663)
Теория государства и права (240)
Теория организации (39)
Теплотехника (25)
Технология (624)
Товароведение (16)
Транспорт (2652)
Трудовое право (136)
Туризм (90)
Уголовное право и процесс (406)
Управление (95)
Управленческие науки (24)
Физика (3462)
Физкультура и спорт (4482)
Философия (7216)
Финансовые науки (4592)
Финансы (5386)
Фотография (3)
Химия (2244)
Хозяйственное право (23)
Цифровые устройства (29)
Экологическое право (35)
Экология (4517)
Экономика (20644)
Экономико-математическое моделирование (666)
Экономическая география (119)
Экономическая теория (2573)
Этика (889)
Юриспруденция (288)
Языковедение (148)
Языкознание, филология (1140)

Реферат: Рассматриваются области применения горизонтальных дренажных скважин и метод лучевого дренажа. Предложенный способ и устройство для сооружения горизонтальных

Название: Рассматриваются области применения горизонтальных дренажных скважин и метод лучевого дренажа. Предложенный способ и устройство для сооружения горизонтальных
Раздел: Остальные рефераты
Тип: реферат Добавлен 02:19:51 20 октября 2011 Похожие работы
Просмотров: 215 Комментариев: 7 Оценило: 0 человек Средний балл: 0 Оценка: неизвестно     Скачать

Кузькин В.С., к.т.н., Пономаренко Ю.В., к.т.н., Изотов А.А., к.т.н.,

Тимошков И.А., к.т.н., Кузькин Т.В. (ФГУП ВИОГЕМ)

ПУТИ СОВЕРШЕНСТВОВАНИЯ ТЕХНИЧЕСКИХ СРЕДСТВ И ТЕХНОЛОГИЙ СООРУЖЕНИЯ ГОРИЗОНТАЛЬНЫХ

ДРЕНАЖНЫХ СКВАЖИН

Реферат

Рассматриваются области применения горизонтальных дренажных скважин и метод лучевого дренажа. Предложенный способ и устройство для сооружения горизонтальных дренажных скважин в обводненных песках с противодавлением на пласт позволяет увеличить длину скважин.

Горизонтальные дренажные скважины, метод лучевого дренажа, обводненные пески, противодавление на пласт, способ, устройство.

Опытными работами института ВИОГЕМ и других организаций установлено, что горизонтальные дренажные скважины являются наиболее совершенными дренажными устройствами, применяемыми при решении многих инженерных задач, связанных с осушением полезных ископаемых, понижением уровней грунтовых вод на подтопленных территориях, при сооружении лучевых водозаборов, при борьбе с оползневыми явлениями и бестраншейной прокладке подземных коммуникаций и других целей [1, 2].

В России ведущей организацией, занимающейся разработкой технических средств и технологиями сооружения горизонтальных скважин, теоретическими расчетами их работы в различных гидрогеологических условиях является институт ВИОГЕМ. Исследования по данному направлению он начал с середины 60-х годов ХХ столетия и продолжает в настоящее время.

Одним из важнейших его достижений является создание метода лучевого дренажа, включающего в себя комплекс технических средств по проходке шахтных колодцев и сооружению горизонтальных скважин. В институте впервые в мире был разработан и реализован принцип бурения скважин под защитой обсадной колонны, в котором как защитная, так и внутренняя колонны оснащены индивидуальными породоразрушающими инструментами и каждая из колонн имеет индивидуальный привод, благодаря чему в зависимости от литологического состава горных пород могут быть установлены режимы бурения, в наибольшей степени отвечающие гидрогеологическим условиям. Принцип предусматривает перекрытие торца внешней колонны и установку в ней практически любых типов фильтров. Принцип предусматривает также возможность сооружения скважин с использованием вместо защитной фильтровой колонны. Разработки защищены рядом авторских свидетельств и патентов [3, 4, 5, 6].

Реклама

В последние годы для прокладки технологических трубопроводов в различных гидрогеологических условиях, в том числе и в обводненных грунтах, широкое применение находит так называемый метод горизонтального направленного бурения (ГНБ). Сущность способа заключается в сооружении скважины со сложной траекторией ее оси. Сначала скважина бурится под наклоном 10о -20о вниз, потом выполаживается до горизонтального положения, а на завершающем этапе с помощью отклоняющего породоразрушающего инструмента скважина полого под углом 5-10о переводится в наклонное положение с выходом забоя на дневную поверхность. Бурение скважин небольшого диаметра (до 200 мм) осуществляется прямым ходом с использованием колонны бурильных труб, изготовленных из высокопрочных сталей с прямой промывкой скважины высококачественным буровым раствором из монтмориллонитовых глин, обработанных полимерами, например, полиакриламидом. Для бурения скважин под трубопроводы большего диаметра скважину расширяют до нужного диаметра расширителями обратного хода.

Благодаря наличию технологических наклонных участков скважины, применению глинистых растворов, удельный вес которых γр ≥1,05¸1,08 гс/см3 , в скважине всегда поддерживается избыточное гидростатическое давление, которое выше пластового давления грунтовых вод. За счет этого избыточного давления, структурных свойств раствора обеспечивается устойчивость стенок скважины.

Способ разработан в США, и первая скважина, сооруженная с его применением, была пройдена в Калифорнии. В 1986 г. 85% всех переходов под дорогами было сооружено методом ГНБ.

В России начало внедрение бестраншейной технологии прокладки трубопроводов относится к концу 80-х годов ХХ века. В настоящее время в России создано общество бестраншейных технологий (РОБТ), ее филиалы находятся в Казани, Нижнем Новгороде, Новомосковске, Калининграде, Воронеже, Краснодаре и др. регионах (всего 34 региона).

Длина сооружаемых скважин в России достигает до 1000 м.

Для сооружения горизонтальных дренажных скважин, которые работают в режиме самоистечения жидкости, данный способ неприменим. Применение метода горизонтального направленного бурения для прокладки технологических трубопроводов в условиях плотной городской застройки и промышленных зон также ограничено из-за необходимости наличия сравнительно больших монтажных площадок для размещения бурового оборудования, площадки для укладки полностью смонтированного и подготовленного к протаскиванию трубопровода.

Реклама

Развитие метода бурения горизонтальных дренажных скважин большой протяженности с противодавлением на пласт при осушении горных пород методом лучевого дренажа нашло решение и в России.

Реализация способа сооружения горизонтальной дренажной скважины в обводненных песках осуществляется комплексным устройством, включающим механические и гидравлические элементы, обеспечивающие проведение этого процесса в режиме превышения давления промывочной жидкости над давлением пластовых вод.

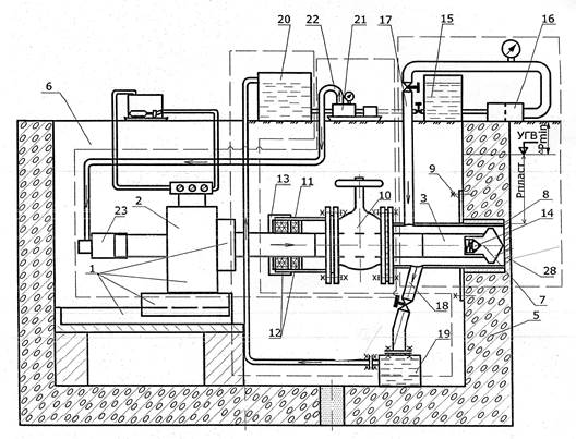
Устройство и способ иллюстрируются рис.1.

Устройство для сооружения горизонтальной дренажной скважины включает буровую установку 1 с пультом управления, вращатель 2, бурильную колонну, составленную из штанг 3 и буровой инструмент 4.

В отверстии, выполненном в крепи 5 вертикальной выработки 6 по оси 7 сооружаемой горизонтальной дренажной скважины, установлен кондуктор 8.


Рис. 1. Способ и устройство для сооружения горизонтальных дренажных скважин из шахтных стволов с противодавлением на пласт.

1-буровая установка с пультом управления; 2-вращатель; 3-бурильные штанги; 4-буровой инструмент; 5-крепь; 6-шахтный ствол; 7-ось скважины; 8-кондуктор; 9-фланец; 10-задвижка; 11-герметизатор; 12-герметизирующие элементы; 13- нажимная втулка; 14- обратный клапан; 15-резервная емкость; 16- подкачивающий насос; 17-подводящий трубопровод; 18- отводящий трубопровод; 19-накопительная емкость для бурового шлама; 20-сливная емкость; 21-буровой насос; 22-нагнетательный трубопровод, 23-сальник-вертлюг.

Кондуктор 8 закреплен в крепи 5 фланцем 9. На кондукторе 8 установлена задвижка 10, на которой закреплен корпус герметизатора 11, а на штанге 3 бурильной колонны установлены герметизирующие элементами 12 с нажимной втулкой 13, обеспечивающими герметизацию кольцевого пространства между штангами 3 и внутренней поверхностью корпуса герметизатора 11, благодаря чему исключается свободный отток структурированной промывочной жидкости из скважины. На конце последней штанги 3 бурильной колонны в месте соединения с буровым инструментом 4 в виде долота, размещен обратный клапан 14, установленный с возможностью перекрытия внутренней полости бурильной колонны, составленной из штанг 3.

Замкнутая гидравлическая система обеспечения и поддержания давления промывочной жидкости в сооружаемой скважине выше давления пластовых грунтовых вод на периоды сооружения горизонтальной дренажной скважины и установки в ней фильтров представлена сочетанием трех самостоятельных гидравлических линий.

В состав гидравлической линии обеспечения поддержания избыточного давления структурированной промывочной жидкости в сооружаемой скважине при наличии ее потерь входит резервная емкость 15, подкачивающий насос 16, используемый в частном примере для заполнения резервной емкости 15, подводящий трубопровод 17 с запорными элементами, которые связаны с кондуктором 8, причем высота расположения резервной емкости 15 над уровнем пластовых грунтовых вод составляет не менее 3-5 м, что обеспечивает поддержание требуемого избыточного давления структурированной промывочной жидкости в сооружаемой скважине при наличии ее потерь.

В состав гидравлической линии отводящей входит кондуктор 8, отводящий трубопровод 18 с запорными элементами, накопительная емкость 19 для сбора бурового шлама и сливная емкость 20, которую располагают на высоте не менее чем 3-5 м над уровнем пластовых грунтовых вод.

В состав гидравлической линии нагнетательной, обеспечивающей подачу промывочной жидкости к буровому инструменту 4 и вынос бурового шлама включен буровой насос 21, нагнетательный трубопровод 22, сальник-вертлюг 23 бурового агрегата 1, штанги 3 бурильной колонны и обратный клапан 14, который обеспечивает сохранение заданного давления в скважине при рассоединении штанг 3 во время наращивания и извлечения бурильной колонны.

При бурении скважин снижение давления устраняют восполнением потерь путем подачи структурированной промывочной жидкости из резервной емкости 15 по подводящему трубопроводу 17, связанным через запорные элементы с кондуктором 8.

После бурения скважины до проектной глубины из нее удаляют весь буровой шлам и извлекают буровую колонну. После выхода бурового инструмента из задвижки 10 ее закрывают, перекрывая сечение скважины. Бурильную колонну демонтируют, а герметизатор 11, выполняющий функцию герметизатора бурильной колонны, меняют на герметизатор 11, выполняющий функцию герметизатора фильтровой колонны из внешнего герметизирующего элемента и внутреннего герметизирующего элемента в виде скользящего пакера, который устанавливают в первую секцию фильтра. Внутренний герметизирующий элемент крепят к крепи 5. Открывают задвижку 10 и подают фильтр в сооружаемую скважину. После подачи одного фильтра наращивают второй и так до посадки всей фильтровой колонны, закрывают задвижку 10 и начинают освоение готовой скважины постепенной заменой структурированной промывочной жидкости на чистую воду путем снижения давления сначала до давления пластовых грунтовых вод, а затем до рабочего.

После освоения скважины задвижка 10 снимается, на кондукторе устанавливается водовыпуск, все гидравлические линии, буровое оборудование демонтируется, скважина сдается в эксплуатацию.

Литература:

1. Ю.В.Пономаренко, В.Е.Анпилов, Лучевой дренаж застроенных территорий. М.: Недра, 1989.

2. П.А.Анатольевский, Г.А.Разумов. Горизонтальные скважины. М.: Недра, 1970.

3. Ф.С.Малацковский, В.Г.Королев, И.В.Якименко. Устройство для бурения горизонтальных и наклонных скважин. А.С.№332208 (Б.и.№10, 1972)

4. В.С.Кузькин и др. Способ сооружения горизонтальной и наклонной дренажной скважины, установка для его ревализации. Патент РФ №2233373 (Б.И. №27, 2004).

5. Справочник. Бестраншейные технологии в России. М.: 2006.

6. В.С.Кузькин, Ю.В.Пономаренко, А.А.Изотов и др. Способ и устройство для сооружения горизонтальной дренажной скважины в обводненных песках. Патент РФ №2382866 (Б.И.№6, 2010).

Оценить/Добавить комментарий
Имя
Оценка
Комментарии:
Хватит париться. На сайте FAST-REFERAT.RU вам сделают любой реферат, курсовую или дипломную. Сам пользуюсь, и вам советую!
Никита00:32:39 06 ноября 2021
.
.00:32:38 06 ноября 2021
.
.00:32:34 06 ноября 2021
.
.00:32:32 06 ноября 2021
.
.00:32:30 06 ноября 2021

Смотреть все комментарии (7)
Работы, похожие на Реферат: Рассматриваются области применения горизонтальных дренажных скважин и метод лучевого дренажа. Предложенный способ и устройство для сооружения горизонтальных

Назад
Меню
Главная
Рефераты
Благодарности
Опрос
Станете ли вы заказывать работу за деньги, если не найдете ее в Интернете?

Да, в любом случае.
Да, но только в случае крайней необходимости.
Возможно, в зависимости от цены.
Нет, напишу его сам.
Нет, забью.



Результаты(294402)
Комментарии (4230)
Copyright © 2005 - 2024 BestReferat.ru / реклама на сайте