| КАФЕДРА ИНЖЕНЕРНОЙ И КОМПЬЮТЕРНОЙ ГРАФИКИ
|
|
| для студентов всех специальностей инженерного потока
заочного факультета
|
|
|
московская ГОСУДАРСТВЕННАЯ АКАДЕМИЯ
ПРИБОРОСТРОЕНИЯ И ИНФОРМАТИКИ
|
| Т.А.САХАРОВА
ИНЖЕНЕРНАЯ
ГРАФИКА
|
| МЕТОДИЧЕСКИЕ УКАЗАНИЯ
К КОНТРОЛЬНЫМ РАБОТАМ в
|
НЕКОТОРЫЕ ПРАВИЛА ОФОРМЛЕНИЯ ЧЕРТЕЖЕЙ
1. Штрих-пунктирные и штриховые линии должны начинаться и оканчиваться штрихами, а не промежутками. Точки штрих-пунктирных линий выполняются в виде коротких штрихов (~1 мм).
2. Концы осевых линий должны выступать за пределы изображения не более чем на 3...5 мм.
3. Расстояние размерной линии от параллельной ей линии контура или другой размерной линии должно быть 7...10 мм.
4. Необходимо избегать пересечения размерных и выносных линий между собой. Для этого меньшие размеры наносят ближе к изображению, а бόльшие дальше от него.
5. При нанесении нескольких параллельных размерных линий размерные числа над ними следует располагать в шахматном порядке.
6. Размерные числа наносят над размерной линией (или слева от вертикальной размерной линии) возможно ближе к ее середине.
7. Форма и размеры стрелок, ограничивающих размерные линии, должны соответствовать приведенному чертежу. Величина стрелок должна быть приблизительно одинаковой для всех размерных линий. Высота размерных чисел 3,5 мм.
8. Выносные линии должны выходить за концы стрелок размерных линий на 2...3 мм.
9. При указании размера диаметра перед размерным числом ставится знак Æ, высота которого равна высоте цифр размерных чисел. Знак представляет собой окружность диаметром 6/10 высоты цифры, пересеченную чертой под углом 60° к размерной линии.
10. При нанесении размера радиуса перед размерным числом ставят прописную букву R.
11. При нанесении размеров на элементах призматической формы, имеющих квадратные основания, применяют знак □
12. Все линии чертежа должны быть черными: линии видимого контура - сплошные толстые; линии построения, выносные, размерные и линии штриховки - сплошные тонкие.
13. Как правило, размеры следует наносить вне контура изображения.
14. На изображении, включающем разрез, размеры, относящиеся к внешним
очертаниям, наносят со стороны вида, а размеры внутренних очертаний – со стороны
Забиваем Сайты В ТОП КУВАЛДОЙ - Уникальные возможности от SeoHammer
Каждая ссылка анализируется по трем пакетам оценки: SEO, Трафик и SMM.
SeoHammer делает продвижение сайта прозрачным и простым занятием.
Ссылки, вечные ссылки, статьи, упоминания, пресс-релизы - используйте по максимуму потенциал SeoHammer для продвижения вашего сайта.
Что умеет делать SeoHammer
— Продвижение в один клик, интеллектуальный подбор запросов, покупка самых лучших ссылок с высокой степенью качества у лучших бирж ссылок.
— Регулярная проверка качества ссылок по более чем 100 показателям и ежедневный пересчет показателей качества проекта.
— Все известные форматы ссылок: арендные ссылки, вечные ссылки, публикации (упоминания, мнения, отзывы, статьи, пресс-релизы).
— SeoHammer покажет, где рост или падение, а также запросы, на которые нужно обратить внимание.
SeoHammer еще предоставляет технологию Буст, она ускоряет продвижение в десятки раз,
а первые результаты появляются уже в течение первых 7 дней.
Зарегистрироваться и Начать продвижение
разреза.
15. Размеры должны быть по возможности равномерно нанесены на всех имеющихся на чертеже изображениях предмета. Не рекомендуется оставлять какое-либо изображение хотя бы без одного размера. Однако повторение одного и того же размера предмета на разных его изображениях не допускается.
16. Размер диаметра цилиндра предпочтительно наносить на его образующих, а не на том изображении, где цилиндр проецируется в окружность.
17. Размерные числа всегда указывают в миллиметрах без обозначения единиц измерения.
- 1 -
УКАЗАНИЯ К ОТДЕЛЬНЫМ ЗАДАНИЯМ
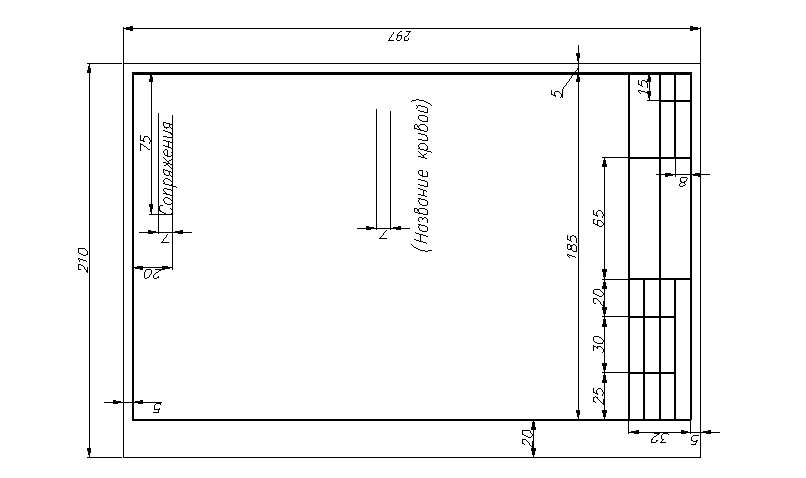
ЛИСТ 1
Геометрические построения
Лист выполняется на формате А4 (210 х 297 мм).
Пример выполнения и компоновка листа приведены на стр. 3.
Сопряжением
называется плавный переход с помощью дуги прямой линии в дугу окружности или одной дуги в другую. Общая точка двух сопрягаемых линий называется точкой сопряжения. Центр дуги перехода называется центром сопряжения.

Точка сопряжения лежит на перпендикуляре, опущенном из центра дуги на сопрягаемую прямую (точка А) или на линии, соединяющей центры сопрягаемых дуг (точки В, С, D, Е, F).
Для выполнения сопряжений при помощи некоторой дуги необходимо иметь три элемента построения: радиус дуги перехода, центр сопряжения и точка сопряжения.
В данной работе радиусы сопряжений заданы, необходимо определить центры и точки сопряжения. Линии построения этих точек при обводке чертежа следует обвести тонкой черной линией.
Лекальная кривая
. Перед вычерчиванием заданной кривой (эллипс, парабола и др.) необходимо по рекомендованной литературе ознакомиться с ее определением, свойствами и способом построения. Когда будет построено необходимое число точек, следует соединить эти точки тонкой плавной линией от руки и лишь после этого подобрать лекала. Для получения плавной кривой надо подогнать участок лекала к возможно бόльшему числу точек, обвести часть кривой, не доводя ее до последней подобранной точки. Подобрать новый участок лекала, который должен касаться части уже обведенной кривой.
Линии построения точек кривой обвести тонкой черной линией.
- 2 -

- 3 -
ШРИФТЫ ЧЕРТЕЖНЫЕ
по ГОСТ 2.304-81(СТ СЭВ 851- 78 – СТ СЭВ 855-78)
ШРИФТ ТИПА Б С НАКЛОНОМ
Устанавливаются следующие размеры шрифтов:
2,5 3,5 5 7 10
| Параметры
шрифта
|
Обозна-чение
|
Относительный размер
|
Размер в мм
|
| Размер шрифта -
высота прописных букв
высота строчных букв
|
h
|
(10/10)h
|
1,8
|
2,5
|
3,5
|
5,0
|
7,0
|
10,0
|
14,0
|
20
|
| c
|
(7/10)h
|
1,3
|
1,8
|
2,5
Сервис онлайн-записи на собственном Telegram-боте
Попробуйте сервис онлайн-записи VisitTime на основе вашего собственного Telegram-бота:
— Разгрузит мастера, специалиста или компанию;
— Позволит гибко управлять расписанием и загрузкой;
— Разошлет оповещения о новых услугах или акциях;
— Позволит принять оплату на карту/кошелек/счет;
— Позволит записываться на групповые и персональные посещения;
— Поможет получить от клиента отзывы о визите к вам;
— Включает в себя сервис чаевых.
Для новых пользователей первый месяц бесплатно.
Зарегистрироваться в сервисе
|
3,5
|
5,0
|
7,0
|
10,0
|
14
|
| Расстояние между буквами
|
a
|
(2/10)h
|
0,35
|
0,5
|
0,7
|
1,0
|
1,4
|
2,0
|
2,8
|
4
|
| Минимальный шаг строк
|
b
|
(17/10)h
|
3,1
|
4,3
|
6,0
|
8,5
|
12,0
|
17,0
|
24,0
|
34
|
| Минимальное расстояние между словами
|
e
|
(6/10)h
|
1,1
|
1,5
|
2,1
|
3,0
|
4,2
|
6,0
|
8,4
|
12
|
| Толщина линии шрифта
|
d
|
(1/10)h
|
0,18
|
0,25
|
0,35
|
0,5
|
0,7
|
1,0
|
1,4
|
22
|
| Ширина букв
|
g
|
Зависит от размера шрифта и определяется
по начертанию букв на вспомогательной сетке
(стр. 9 и 10)
|
14 20 28 40
ЦИФРЫ
 Применяется при
необходимости отличать от буквы « з » кириллицы
- 4 -
РУССКИЙ АЛФАВИТ (КИРИЛЛИЦА)

ЛАТИНСКИЙ АЛФАВИТ
ЗНАКИ
ГРЕЧЕСКИЕ БУКВЫ

АЛЬФА БЕТА ГАММА ДЕЛЬТА ТЭТА ЛАМБДА

ПИ СИГМА ТАУ ФИ ОМЕГА
ЛИСТ 2
По двум данным видам построить третий вид.
Задание выполняется на листе формата А3 (420 х 297 мм).
Заданные фигуры являются многогранниками, грани которых - плоские многоугольные фигуры, расположенные параллельно или перпендикулярно какой-либо плоскости проекций, т.е. грани являются плоскостями уровня или проецирующими.
При выполнении задания:
1. Перечертить заданные два изображения (главный вид и вид сверху). При этом в большинстве случаев вычерчивание следует начинать с вида сверху (с горизонтальной проекции).
2. Построить третий вид фигуры (вид слева) путем построения профильных проекций отдельных ее элементов (вершин, ребер, граней).
 3. Нанести размеры, используя для этого и третий вид, но не забывая, что не допускается повторять размеры одного и того же элемента на разных изображениях. Не рекомендуется наносить размер от штриховых линий.
- 6 -
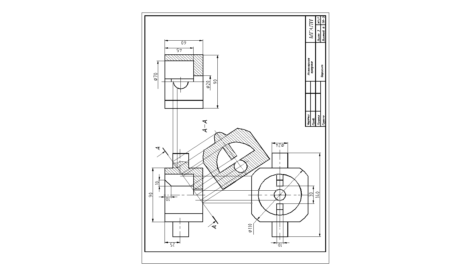
ЛИСТ 3
По двум данным видам построить третий, выполнить разрезы и построить натуральный вид наклонного сечения
Пример оформления листа приведен на стр. 12.
Задание выполняется на листе формата А3.
Перед выполнением этого задания необходимо ознакомиться с разделом "Разрезы" ГОСТ 2.305-68, а также с некоторыми условностями и упрощениями, допускаемыми при выполнении разрезов.
Основные сведения о разрезах
Чертеж должен давать полное представление как о внешней, так и о внутренней форме фигуры. Если внутреннюю форму изобразить штриховыми линиями, чтение чертежа затрудняется, особенно, если внутреннее строение предмета сложное. Чтобы избежать этого, для выявления внутренней формы фигуры применяют способ разрезов.
Способ разрезов
состоит в том, что фигуру мысленно рассекают мнимой плоскостью, часть фигуры, ближайшую к наблюдателю, мысленно отбрасывают, а оставшуюся часть проецируют на плоскость, параллельную секущей плоскости.

Разрезом
является изображение того, что расположено в секущей плоскости (сечения), и того, что становится видным за секущей плоскостью в результате разреза.
- 7 –
Мысленное рассечение предмета, принятое для данного изображения (разреза), не влечет за собой изменения других изображений, то есть разрезы, выполненные на различных изображениях данного предмета, друг от друга не зависят.
| Если при соединении половины вида и половины разреза на ось симметрии прое- цируется ребро призмы или пирамиды, то в этом случае изображается не половина, а больше или меньше половины разреза так, чтобы ребро спроецировалось видимой ли- нией. При этом границей вида и разреза является сплошная волнистая линия, рас-
положенная слева от оси, если ребро вну-
три, и справа от оси, если ребро снаружи.
|
|
 Разрезы располагают на местах основных видов, если от этого не страдает ясность внешней формы предмета. Фронтальный разрез располагают на месте вида спереди, горизонтальный - на месте вида сверху и профильный - на месте вида слева. В противном случае разрезы располагают на свободном поле чертежа, применяя установленные стандартом обозначения. С целью уменьшения объема графических работ и экономии площади чертежа рекомендуется соединять половину вида и половину соответствующего разреза в одном изображении, если оно проецируется в виде симметричной фигуры. При этом линией, разделяющей вид и разрез, служит в общем случае
ось симметрии (тонкая штрих-пунктирная линия).
Разрез, как правило, располагают справа от вертикальной оси и вниз от горизонтальной оси симметрии.
| В общем случае границы секущей плоскости обозначают толстыми штрихами с перпенди-
кулярными к ним стрелками, указывающими направление взгляда.
Около стрелок со стороны внешнего угла
наносят одну и ту же прописную букву рус-
ского алфавита (начиная с А), всегда рас-
положенную в горизонтальной строке неза-
висимо от положения секущей плоскости.
Высота букв должна быть больше высоты
размерных чисел (шрифт 7).
Над разрезом помещают надпись, состо-
ящую из букв, обозначающих секущую плос-
кость, и написанных через тире (напри-
|
|
 Внутренний контур предмета изображается на разрезе сплошными толстыми линиями, при этом соответствующие им штриховые линии на виде не наносят.
мер, А-А ). Надпись не подчеркивают.
Если разрез расположен на месте одного из основных видов, а плоскость разреза совпадает с плоскостью симметрии предмета, секущую плоскость не обозначают и разрез не надписывают.
Штриховка фигуры сечения должна иметь наклон 45° к линиям рамки чертежа. Линии штриховки
наносят с наклоном вправо или влево, но в одну и ту же сторону на всех разрезах и сечениях, относящихся к данной фигуре на данном чертеже.
- 8 -
При выполнении разрезов необходимо применить условности, установленные стандартом.
1. Тонкие стенки типа ребер жесткости (их поперечный размер значительно меньше двух других) в продольном разрезе показывают рассеченными, но не штрихуют, отделяя от основной части предмета сплошной основной линией (это не применяется в аксонометрии!
).
2. Допускается изображать в разрезе отверстия, расположенные на круглом фланце, когда они не попадают в секущую плоскость(отверстие «выкатывают» в плоскость разреза).
| Натуральный вид наклонного сечения указанной в задании плоскостью стро-
ится проецированием на дополнительную плоскость, параллельную заданной.
Фигуру мысленно разделяют на элементарные геометрические тела и строят сечения каждого из этих тел сначала по внешнему контуру, затем – по внутреннему.
Сечение располагают в наиболее удобном месте чертежа, причем при необходимости его можно повернуть. К надписи повернутого сечения добав-
ляется знак , представляющий собой окружность диаметром min 5 мм со стре-
лкой слева. Угол между линиями стрелки 90°.
|
|
Показанная здесь картинка только иллюстрирует наклонное сечение, но не относится к листу 4, где строится аксонометрия неусеченной
фигуры.
При нанесении размеров следует выполнять рекомендации, данные на стр.1.
Как правило, размеры следует наносить вне контура изображения. Размеры, относящиеся к внешним очертаниям, наносят на стороне вида, а размеры внутренних очертаний - на стороне разреза.
- 9 ---- 
-10 -
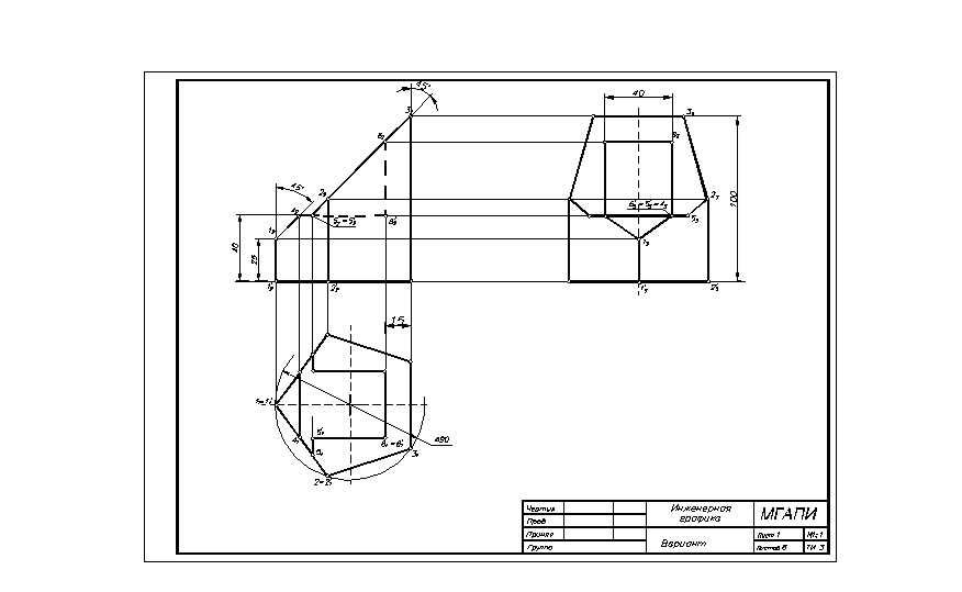
ЛИСТ 4
Построить аксонометрию с разрезом
фигуры, заданной к листу 3.
Пример оформления листа приведен на стр. 13.
Задание выполняется на листе формата А3. Вид аксонометрического изображения (изометрия или диметрия) указан в задании листа 4.
Для упрощения аксонометрию строят по приведенным коэффициентам, т.е. в изометрии по всем осям принимают коэффициент искажения равным 1, в диметрии по осям X и Z-1, по оси Y - 0,5. При этом изображение получается увеличенным в изометрии в 1/0,82 =1,22 раза и в диметрии - в 1/0,94 = 1,06 раза.
Построение начинают с аксонометрического изображения основных осей фигуры.
В диметрии удлиненные предметы располагают так, чтобы длинная сторона предмета была параллельна оси X или Z, т.е. без сокращения вдвое. Следует избегать применения изометрической проекции при изображении квадрата, деталей с квадратными гранями, отверстиями и т.п., так как такое изображение не обладает наглядностью.
Проекции многоугольников в аксонометрии строят по координатам вершин. - 11 –
Окружность в аксонометрии проецируется в эллипс. При вычерчивании эллипсов необхо- димо правильно выбрать направление их осей. Аксонометрическая ось, перпендикулярная к плоскости, в которой лежит окружность, называется свободной осью.
В прямоугольных аксо- нометрических изображениях (и в изометрии, и в диметрии) малая ось
эллипса всегда параллельна свободной
аксонометрической оси
, а большая ось эллипса ей перпендикулярна.
Построение эллипса начинают с определения его центра и направления большой и малой осей. Затем находят концы большой и малой осей (по приведенным ниже формулам) и четыре точки, являющиеся концами диаметров, параллельных аксонометрическим осям (проецируются без искажения). Как правило, полученных восьми точек достаточно для вычерчивания эллипса. Его обводят сначала от руки, а затем по лекалу.

Для выявления внутренней формы в аксонометрии делают вырез одной четверти предмета, ближайшей к наблюдателю. В этом случае вычерчивание можно начать с контуров сечения, как показано ниже.

- 12 -
Следует хорошо усвоить, как выбирается направление штриховки сечений в аксонометрических проекциях. Если на комплексном чертеже штриховка наносится под углом 45° к основным линиям чертежа, то в аксонометрических проекциях этот угол (как и все другие) искажается и направление линий штриховки определяется прямыми, отсекающими на аксонометрических осях равные отрезки. При этом следует помнить, что в диметрии размеры отрезков, параллельных оси Y , сокращаются вдвое.
Штриховка в изометрии штриховка в диметрии
- 13 -
ЛИСТ 5
Построить проекции и натуральный вид сечения фигуры
плоскостью
Задание выполняется на листе формата А3.
Пример выполнения листа приведен на стр. 15.
Задана фигура, представляющая собой сложное тело, ограниченное несколькими поверхностями. Линия сечения фигуры заданной плоскостью состоит из отдельных ли- ний пересечения этой плоскости с каждой из поверхностей. Строить проекции линии сечения надо последовательно: сначала построить линию пересечения плоскости с одной поверхностью, затем - с другой и т.д. Например, сначала построить линию
пересечения плоскости с внешней поверхностью, затем – с внутренней.
Построив три проекции заданной фигуры, следует изобразить секущую плос- кость L или å, указанную в задании. Так как заданная секущая плоскость - проецирующая, одна проекция линии сечения известна: она совпадает с проекцией плоскости (L2
или å 1
). Две другие проекции линии сечения строят из условия принадлежности ее заданным поверхностям.
В примере, приведенном на стр. 15, заданная фигура ограничена снаружи прямым круговым цилиндром и двумя плоскостями (верхним и нижним основаниями). Внутри - углубление, ограниченное треугольной пирамидой.
Цилиндр пересекается плоскостью L по эллипсу. Так как цилиндр является горизонтально проецирующим (все образующие перпендикулярны горизонтальной плоскости П 1
), то все точки, лежащие на поверхности цилиндра, проецируются в одну и ту же окружность и проекция эллипса совпадает с этой окружностью. Остается построить третью проекцию эллипса - на плоскости П 3
.
Построение следует начать с опорных точек, лежащих на уже имеющихся на чертеже линиях. Точка 1 - на левой образующей цилиндра (фронтальный очерк).
На профильной проекции эта образующая проецируется на ось, следовательно, и
профильная проекция точки 1 также лежит на оси (13
).
Точки 2 и 3 - на профильном очерке цилиндра. Профильные очерковые образу- ющие цилиндра на фронтальной плоскости проецируются на ось цилиндра. Точка пе-
ресечения плоскости L с осью является фронтальной проекцией точек 2 и 3.
Точки 4 и 5 - на окружности верхнего основания цилиндра.
Затем надо построить две-три промежуточных точки (точки 6 и 7). Полученные точки соединяют тонкой линией, а затем обводят с учетом видимости. На профильной проекции участки эллипса 2-4 и 3-5 – невидимые, т.к. при взгляде слева половина
цилиндра, расположенная справа от вертикальной оси (от точки 2 до точки 3) не
видна.
В сечении пирамиды и призмы плоскостью получается многоугольник, вершинами которого являются точки пересечения ребер и сторон основания с плоскостью.
В рассматриваемом примере точки 8 и 9 являются точками пересечения тре- угольного основания пирамиды с плоскостью L, точка 10 - пересечение переднего ребра с пл. L, а точка 11 - пересечение левого ребра пирамиды с плоскостью L.
Горизонтальные проекции точек 8, 9, и 11 определяются проведением линий связи.
Профильные проекции точек 10 и 11 – так же.
Для построения горизонтальной проекции точки 10 надо измерить ее координату Y на профильной проекции и отложить этот размер на ребре от оси X.
- 14 –
Для построения профильных проекций всех остальных точек надо брать их координа-
ты Y на горизонтальной проекции и откладывать их на профильной, как это показано для точки 6.
Плоскость верхнего основания фигуры пересекается с плоскостью L по отрезкам 4-8 и 9-5.
Натуральный вид фигуры сечения строят проецированием на дополнительную плоскость П 4
, параллельную секущей плоскости. Плоскость П 4
(на чертеже - ось Х1
) может быть расположена на произвольном расстоянии от секущей плоскости. Положение оси Х1
следует выбирать так, чтобы натуральный вид сечения был расположен на свободном месте поля чертежа. При недостатке места допускается частичное наложение фигуры сечения на имеющиеся изображения.
Ось Х1
|| L2
. Для построения натурального вида эллипса от всех точек эллипса (1-7) провести линии связи ^ Х1
. На этих линиях связи отложить от оси Х1
расстояния точек, измеренные от оси X вдоль оси У на горизонтальной или профильной проекциях.
Таким же образом построить проекции точек на пирамиде (8-11). Соединить полученные точки, обвести толстой линией и заштриховать сечение под углом 45° к оси Х1
.

- 15 –
ЛИСТ 6
Построить проекции линии пересечения поверхностей
Примеры оформления листа приведены на стр. 16 и 17.
Задача решается на листе формата А4.
Точки на линии пересечения следует находить либо с помощью вспомогательных секущих плоскостей (пример I), либо используя свойство проецирующих поверхностей (пример 2).
Последовательность выполнения листа
1.Установить, какие поверхности заданы, как они расположены относительно плоскостей проекций, и выбрать способ решения задачи
2.Найти точки на линии пересечения: сначала опорные
(очерковые, экстремальные, другие характерные точки), затем - две-три произвольные точки.
3.Соединить полученные точки плавной кривой сначала тонко простым карандашом, затем - красным, с учетом видимости кривой. Если одна из заданных поверхностей гранная,
линия пересечения имеет точки излома,
лежащие на ребрах гранной поверхности.
Если заданные поверхности каса-
ются друг друга, то в точке касания
линия пересечения как бы сама себя пе-
речеркивает, и не надо стремиться сде-
лать в этой точке плавный переход.
4.Обвести очерки поверхностей с
учетом видимости.
Выделить поверхности цветом: закрасить
каждую поверхность своим цветом блед-
ных тонов так, чтобы были видны все ли-
нии построения и обозначения точек.
При обводке обозначить все опор-
ные точки и две произвольные, обведя
их линии построения тонкой черной
линией.
Пример 1.
Пересекаются конус и тор,
оси которых перпендикулярны горизонталь-
ной плоскости проекций, а фронтальные
очерки лежат в одной плоскости.
Опорные точки: 1 – точка пересечения
фронтальных очерковых образующих;
2 и 3 – точки пересечения окружностей
оснований тора и конуса, лежащих в од-
ной горизонтальной плоскости.
Произвольные точки A, B, C, D и другие
находят с помощью вспомогательных гори-
зонтальных плоскостей Г, Г', Г'' и т.д.,
перпендикулярных осям поверхностей и
рассекающих каждую из поверхностей по своей окружности. Радиус окружности измеряется вдоль секущей плоскости от оси поверхности до ее очерка.
Видимость кривой: на горизонтальной проекции вся кривая – видимая, т.к. при взгляде сверху и тор, и конус видны полностью.
-16-
На фронтальной проекции видимая часть кривой, лежащая на передних половинах тора и конуса (точки 2, C, А, 1) закрывает точно такую же
невидимую часть кривой, лежащую на невидимых половинах этих поверх-
ностей (точки 3, D, B).
Пример 2.
Пересекаются цилиндр и пирамида. Плоскость основания пира- миды параллельна горизонтальной плоскости проекций. Ось цилиндра пер-
пендикулярна фронтальной плоскости (цилиндр фронтально проецирующий и весь проецируется в окружность), поэтому фронтальная проекция линии пересечения цилиндра и пирамиды совпадает с частью окружности,в кото- которую проецируется цилиндр. Эту часть сразу можно обвести толстой красной линией. Горизонтальные проекции точек, принадлежащих линии пересечения, находят из условия принадлежности их поверхности пирами- ды. Опорные точки линии пересечения:1 и 2 - точки пересечения ребра пирамиды с цилиндром (точки излома линии пересечения) – очевидные(оп-ределяются проведением линии связи); 3 и 4 - точки пересечения нижней образующей цилиндра с гранями пирамиды; 5 и 6 - точки пересечения го- ризонтальной очерковой образующей цилиндра с пирамидой (в этих точках меняется видимость горизонтальной проекции линии пересечения).
Произвольные точки: А, В, С, D.
Опорные точки 3…6 и все произвольные точки определяют с помощью пря- мых, принадлежащих граням пирамиды и параллельных сторонам основания.
| От каждой грани получается своя кривая – часть эллипса. Видимыми участками их будут только те, что лежат на верхней половине цилиндра(точки 5, А, 1 и 6).
|
|
ЛИТЕРАТУРА 1. Лагерь А.И., Колесникова Э.А.,Инженерная графика, 1985 г.
2. Чекмарев А.А., Инженерная графика, 2000 г.
|