| Л.И.Шмурнова, Т.В. Тимофеева, А.И. Кухарчук
МЕТОДИЧЕСКИЕ УКАЗАНИЯ
К ВЫПОЛНЕНИЮ КУРСОВОЙ РАБОТЫ
«АРХИТЕКТУРНО-СТРОИТЕЛЬНЫЕ ЧЕРТЕЖИ
ГРАЖДАНСКИХ ЗДАНИЙ»
Для студентов 2-го курса
специальностей «Строительство» и «Архитектура»
Группа ____________________________
Студент ___________________________
Преподаватель _____________________
Москва
Издательство Российского университета дружбы народов
2009
У т в е р ж д е н о
РИС Ученого совета
Российского университета дружбы народов
Шмурнова Л.И., Тимофеева Т.В., Кухарчук А.И.
Методические указания к выполнению курсовой работы «Архитектурно-строительные чертежи гражданских зданий». Для студентов II курса специальности «Строительство» и «Архитектура». –М.: Изд-во РУДН, 2009. –18 с.
В методических указаниях даны рекомендации по оформлению и вычерчиванию планов, фасадов и разрезов зданий. Приведены отдельные справочные сведения из ГОСТов ЕСКД и СПДС. Даны некоторые практические указания по выполнению курсовой работы.
Подготовлены на кафедре начертательной геометрии и черчения.
Издательство Российского университета дружбы народов, 2009 г.
Введение
Строительные чертежи зданий и сооружений составляются по общим правилам ортогонального проецирования. При их выполнении необходимо руководствоваться требованиям ЕСКД (Единая система конструкторской документации) и СПДС (Система проектной документации для строительства), которые дополняют друг друга. Так, выполняя архитектурно-строительные чертежи, необходимо учитывать особенности и условности
, отличные от принятых в машиностроительных чертежах:
1. в наименовании и обозначении изображений (видов и разрезов);
2. в простановке размеров;
3. в изображении толщины линий видимого контура.
Из всего множества инженерно-строительных чертежей данные методические указания предусматривают изучение основных архитектурно-строительных чертежей: планов, фасадов, разрезов. Из планов же будем рассматривать лишь планы этажей.
Содержание и оформление работы.
Курсовая работа включает в себя выполнение архитектурно-строительных чертежей: плана первого этажа здания, фасада, поперечного разреза и узла, которые выполняется на листах формата А-1. При этом план первого этажа и фасад выполняются в масштабе 1:100, разрез в масштабе 1:50, узел в масштабе 1:10.

Рис.1. Расположение изображений на листе.
Забиваем Сайты В ТОП КУВАЛДОЙ - Уникальные возможности от SeoHammer
Каждая ссылка анализируется по трем пакетам оценки: SEO, Трафик и SMM.
SeoHammer делает продвижение сайта прозрачным и простым занятием.
Ссылки, вечные ссылки, статьи, упоминания, пресс-релизы - используйте по максимуму потенциал SeoHammer для продвижения вашего сайта.
Что умеет делать SeoHammer
— Продвижение в один клик, интеллектуальный подбор запросов, покупка самых лучших ссылок с высокой степенью качества у лучших бирж ссылок.
— Регулярная проверка качества ссылок по более чем 100 показателям и ежедневный пересчет показателей качества проекта.
— Все известные форматы ссылок: арендные ссылки, вечные ссылки, публикации (упоминания, мнения, отзывы, статьи, пресс-релизы).
— SeoHammer покажет, где рост или падение, а также запросы, на которые нужно обратить внимание.
SeoHammer еще предоставляет технологию Буст, она ускоряет продвижение в десятки раз,
а первые результаты появляются уже в течение первых 7 дней.
Зарегистрироваться и Начать продвижение
ГОСТ Р21.1101-92 (СПДС) устанавливает единые формы, размеры и порядок заполнения основных надписей на чертежах студенческих курсовых работ и дипломных проектов.

Рис.2. Основная надпись на листах чертежей зданий.
В графе 1 – название кафедры, обозначение курсовой работы (КР), номер варианта. Шрифт прописной, размер 7.
В графе 2 – наименование проекта, работы. Шрифт прописной, размер 5.
В графе 3 – наименование задания. Шрифт прописной, размер 5.
В графе 4 – наименование изображений, помещенных на данном листе. Шрифт прописной, размер 3,5.
В графе 5 – У (учебные чертежи).
В графе 6 – порядковый номер листа. На документах, состоящих из одного листа, графу не заполняют.
В графе 7 – общее количество листов КР.
В графе 8 – номер группы, название ВУЗа. Шрифт строчный, размер 5.
В графе 9 – снизу вверх – «Студент», «Принял», «Консультант». Шрифт строчный, размер 3,5
. В графах 10,11,12соответственно фамилия, подпись, дата.

Рис.3. Пример заполнения основной надписи на листах архитектурно-строительных чертежей.
При выполнении архитектурно-строительных чертежей желательно применять узкий архитектурный шрифт, который отличается простотой, четкостью очертаний и легкостью чтения (см. рис. 4).

Рис.4. Архитектурный (узкий) шрифт.
Ширина букв берется в пределах от 1/4 до 1/8 высоты. Расстояние между буквами не меньше, чем половина их ширины. В заголовках расстояние между буквами в словах увеличивается до 4/5 высоты буквы. Толщина обводки букв составляет 1/15 – 1/20 их высоты.
Вначале все чертежи выполняются карандашом в тонких линиях. После проверки чертежей преподавателем работа обводится тушью. Студенты специальности «Архитектура» выполняют отмывку фасада.
Приступая к выполнению работы, необходимо ознакомиться с данными индивидуального задания.
В задании даны схематические чертежи планов, фасад, разрез здания, привязка оконных и дверных проемов, расположение лестничной клетки и санитарно-технического оборудования. В приложении к графической части указаны материалы и толщина несущих наружных, внутренних стен, перегородок, размеры оконных и дверных проемов. На разрезе указаны высотные отметки кровли, междуэтажного перекрытия, глубина подошвы фундамента.
Наименования фасада, плана этажа, разреза располагаются над изображением и не подчеркиваются.
Вычерчивание плана
I-го этажа здания.
Выполнение графической части курсовой работы рекомендуется начинать с вычерчивания плана первого этажа.
План этажа здания
– это горизонтальный разрез, выполненный на уровне оконных и дверных проемов. План здания дает представление о форме здания в плане и взаимном расположении отдельных его помещений.
Сервис онлайн-записи на собственном Telegram-боте
Попробуйте сервис онлайн-записи VisitTime на основе вашего собственного Telegram-бота:
— Разгрузит мастера, специалиста или компанию;
— Позволит гибко управлять расписанием и загрузкой;
— Разошлет оповещения о новых услугах или акциях;
— Позволит принять оплату на карту/кошелек/счет;
— Позволит записываться на групповые и персональные посещения;
— Поможет получить от клиента отзывы о визите к вам;
— Включает в себя сервис чаевых.
Для новых пользователей первый месяц бесплатно.
Зарегистрироваться в сервисе
Последовательность вычерчивания плана
.
1. Проводят продольные и поперечные координационные
оси. Эти оси проходят по несущим конструкциям (колоннам и капитальным стенам), т.е. в тех местах, где будут расположены фундаменты. Вертикальные оси обозначают арабскими цифрами слева направо, а горизонтальные снизу вверх буквами русского алфавита (кроме букв Ё, Й, О, З, Ц, Ч, Щ, Ъ,Ь,Ы) в кружках диаметром 8-12 мм. Пропуски в цифровых и буквенных (кроме указанных) обозначениях не допускаются.

Рис.5. Фрагмент схемы здания.

Рис.6. Фрагмент плана здания.
2. Вычерчивают контуры наружных и внутренних несущих стен и колонн (если они имеются). При этом оси проходят по контуру стены, либо смещены внутрь стены на 100 мм, либо проходят посередине стены. Наружные и внутренние несущие стены имеют толщину в 2 или 1,5 кирпича соответственно. Это означает, что 2 или 1,5 кирпича (по длине) укладываются поперек стены (см. рис.7,8)
В курсовой работе предусмотрено выполнение стен из модульного кирпича с размерами 288
х 138
х 63
и толщиной растворного шва t = 12
мм.
Тогда толщина стены в два кирпича составит:
288 +12 +288=588 мм.
Толщина стены в 1,5 кирпича составит:
288 +12 +138=438 мм

Рис.7 Стена в 2 кирпича Рис.8 Стена в 1,5 кирпича
3. Вычерчивают оконные и дверные проемы по наружным стенам
. По условию задания эти проемы должны быть выполнены с четвертями.
Четверть
– это выступ в верхних и боковых частях проемов кирпичных стен, уменьшающий продуваемость и облегчающий крепление дверных и оконных блоков.
Проемы с четвертями выполняются в зданиях, где люди могут находиться вблизи проемов окна.

Рис.9. Четверть для модульного кирпича.
В задании указаны размеры дверных и оконных блоков. На схеме плана первого этажа дана привязка середины оконных и дверных (наружных) проемов. На плане первого этажа необходимо проставить цепочку размеров оконных и дверных проемов вдоль контура всего здания с учетом четвертей. и привязать эти проемы к координационным осям.
Пример. Задана ширина оконного блока b=1812 мм. На плане необходимо указать размер с учетом четверти: 1812-75х2=1662
ОК-1

Рис. 10. Размеры окна с учетом четверти
Вычерчивают контуры перегородок
. Толщина перегородок указана в тексте задания. Если на схеме плана не указана привязка перегородок, можно воспользоваться линейным масштабом. Необходимо указать в какую сторону открываются двери. По противопожарным требованиям наружные двери
открываются на улицу
, а двери в квартиру – внутрь квартиры. Двери на плане должны быть показаны в открытом положении под углом 30˚ (см. рис.11 ).
4. Вычерчивают санитарно-технические приборы,
оборудование кухонь, вентиляционные каналы. Последние располагают во внутренних стенах. (см. рис.12,13).
5. Вычерчивают лестничные марши и площадки
. На плане лестничной клетки первого этажа изображают цокольный (нижний) марш и половину нижнего основного марша по диагонали (так условно показывают, что данный марш попадает в разрез). На плане второго этажа лестничные марши изображаются полностью, т.к. здание двухэтажное. Направление подъема показывают стрелкой.

Рис.11. Условные изображение на плане и на разрезе
а) окон, б) дверей.

Рис. 12. Условные обозначения элементов сантехнических устройств.

Рис. 13. Условные обозначения элементов вентиляции.
6. Проставляют размеры. На плане этажа по внешнему контуру проставляют три замкнутые размерные цепочки:
а) размеры простенков, оконных и дверных проемов (расстояние от первой размерной цепочки до наружной стены берут не менее 15-20 мм, чтобы не затруднять чтение чертежа);
б) расстояние между координационными осями;
в) расстояние между крайними координационными осями.
Размеры на строительных чертежах наносят согласно ГОСТ 2307-68 с учетом требований ГОСТ 21.1501-92. Так, вместо стрелок применяют засечки
в виде короткого штриха, проведенного основной
линией контура с наклоном вправо под углом 45˚ к размерной линии. При недостатке места засечки можно заменить точками.

рис.14. Размеры засечки.
Если в задании имеется несколько одинаковых по размеру оконных и дверных проемов, проставляют размеры всех
, независимо от их числа.
Внутри здания на плане необходимо показать размеры помещений между внутренними контурами стен и перегородок, толщину стен и перегородок и указать площадь отдельных помещений в квадратных метрах с двумя десятичными знаками. Площадь пишется в правом нижнем углу и подчеркивается (см. рис.6).
ВЫЧЕРЧИВАНИЕ РАЗРЕЗА.
Разрезом
называют изображение здания, выполненные секущей фронтальной или профильной плоскостью.
Секущая плоскость должна проходить по наиболее важным частям здания (по лестничной клетке, оконным и дверным проемам и т.д.). Поэтому иногда выполняют ступенчатый разрез. Следует иметь ввиду, что плоскость разреза проходит по ближайшим к наблюдателю маршам (см. рис. 16 ).
Направление секущей плоскости на разрезе указано на плане 1-го этажа. На самом разрезе делается надпись: РАЗРЕЗ 1-1 или РАЗРЕЗ А-А. При выполнении разреза секущую плоскость не проводят по колоннам, вдоль стен, перегородок, балок покрытий и перекрытий.
Последовательность вычерчивания разреза.
1. Проводят вертикальные
модульные координационные оси
несущих стен в соответствии с планом и направлением разреза.
2. Намечают контуры стен и перегородок.
Вычерчивают горизонтальные линии уровня земли, подошвы фундамента, чистого пола этажей, низа плит покрытия верхнего этажа, верха чердачного перекрытия, контур кровли, оконные и дверные проемы.
Пол первого этажа междуэтажных и чердачных перекрытий вычерчивают одной сплошной основной линией, независимо от числа слоев в их конструкциях.
3. Высота внутренних помещений и основных наружных конструктивных элементов указана в числовых отметках. За отметку 0,000 в строительстве условно принята отметка уровня чистого пола 1-го этажа.
Отметка
– это расстояние по высоте от нулевого уровня. Измеряется в метрах с тремя десятичными знаками после запятой. Все элементы, расположенные ниже уровня пола 1-го этажа (подвальные помещения, фундаменты и т.д.), имеют отметку со знаком минус, а выше уровня пола 1-го этажа – со знаком плюс. При необходимости отметки сопровождаются соответствующими надписями: Ур.ч.п. – уровень чистого пола, Ур.з. – уровень земли.
4. Вычерчивают лестницу.
Лестницы, служащие для повседневной эксплуатации, называются основными.
Внутренние основные лестницы состоят из маршей
и лестничных площадок
. Лестничные марши состоят из ступеней, которые опираются на наклонные балки, называемые косоурами
. Ступени состоят из проступи
и подступенка
. Высота ступени (подступенок
) должна быть не более
170 мм, а ширина ступени (проступь) не менее
260 мм.

Рис.15. Размеры отметок и примеры простановки отметок.
Графическая разбивка лестницы.
1. Уклоны маршей обычно принимают равными 1:2. Ширину проступи примем равной 300 мм, а высоту подступенка – в пределах от 150 до 170 мм. При этом ширину первой и последней ступени каждого марша, которые называются фризовыми
, берут в пределах 220-260 мм.
2. Ширина лестничных площадок приведена в индивидуальном задании. Расстояние Е
от плоскости стены до первой ступени должно быть не менее 1200 мм. Поэтому в зданиях с высотой этажа 3,6 м ширину фризовых ступеней принимаем равной 250 мм, а при меньшей высоте этажа ширину фризовых ступеней – 300 мм.
Между маршами должно быть расстояние 100-200 мм – промежуток, необходимый для пропуска пожарного шланга.
В основу графической разбивки лестницы берут высоту этажа и определяют уровень промежуточной площадки (на половине высоты этажа). Проводят вертикальные линии по числу ступеней в плане. Расстояние между линиями равны ширине ступени и составляет 300 м
На рис.16 показан пример разбивки двухмаршевой лестницы в здании с высотой этажа Н =3.1 м. Высота каждого марша равна Н/2=1.55 м. Количество подступенков в одном марше равно 1550/155=10.

Рис16. Графическая разбивка лестницы
Число проступей получается на единицу меньше, т.к. ширина верхней фризовой ступени включается в ширину площадки. Заложение марша (длина его горизонтальной проекции) равно
d=300(n-1)=300х9=2700 мм.
3. Проставляют следующие размеры:
· отметки уровня земли, чистого пола, этажей и площадок;
· отметки низа несущих конструкций покрытия;
· отметку низа опорной части заделываемых в стену элементов конструкций (балконов, козырьков и т.д.)
· отметки верха стен, карнизов;
· размеры и привязку (по высоте) оконных и дверных проемов в наружных стенах;
· толщину стен и их привязку к координационным осям.
РАЗРЕЗ 1-1

Рис. 17. Пример выполнения разреза здания.

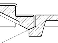
Рис. 18. Варианты выполнения узла лестничной клетки.
ФАСАДЫ.
Фасад –
это проекция здания на вертикальную (фронтальную) плоскость.
Фасад дает представление о внешнем виде здания. Фасад здания, выходящий на центральную улицу называется главным
. Фасад может быть торцевым или дворовым. Над фасадом дается соответствующая надпись типа «Фасад 1-6» в соответствии с крайними осями слева направо (см. рис.19.) Фасад должен быть простым и красивым. В некоторых случаях на чертеже может быть показана фактура стен (материал, из которого сделана отделка стен).
На фасаде показывают:
· крайние координационные оси здания;
· отметки уровня земли, входных площадок, верха стен, низа и верха проемов и расположенных на разных уровнях элементов фасадов (козырьков, выносных тамбуров);
· оконные и дверные переплеты, ограждения балконов (если таковые имеются), вентиляционные и дымовые трубы на крыше.
На фасадах, выполненных с отмывкой, отметки не проставляют.
После выполнения карандашом и проверки преподавателем чертежи необходимо обвести тушью. Толщина обводки дана в табл.1.
Таблица 1.
| Линии обводки для чертежей планов и разрезов, мм
|
Толщина линий, в мм, в масштабе
|
| 1:200
|
1:100
|
1:50
|
| Линия земли
Каменные и деревянные элементы, попадающие в сечение
Линии проемов, ворот, дверей, окон
Рисунок коробок переплетов и полотен ворот, дверей и окон
|
0,5
0,4…0,5
0,3
0,2
|
0,7
0,6…0,7
0,4
0,2
|
0,8
0,8
0,4
0,2…0,3
|
| Линии обводки для чертежей фасадов, мм
|
Толщина линий, в мм, в масштабе
|
| 1:200
|
1:100
|
1:50
|
| Линия земли
Каменные и деревянные элементы, попадающие в сечение
Линии проемов, ворот, дверей, окон
Рисунок коробок переплетов и полотен ворот, дверей и окон
|
0,6
0,3…0,4
0,3
0,2
|
0,8
0,4…0,5
0,4
0,2
|
0,8
0,5..0,6
0,4
0,2…0,3
|

Рис. 19. Примеры выполнения фасадов.
|