| Методические указания предназначены для выбора задач контрольных работ по дисциплине «Сопротивление материалов» для студентов-заочников специальностей 280103 и 280104.
Содержат также рабочую программу по дисциплине «Сопротивление материалов», которая соответствует государственному образовательному стандарту.
Методические указания рассмотрены и одобрены кафедрой инженерно-технологических дисциплин, организации и управления
деятельностью по предупреждению ЧС на предприятиях НГК
СОДЕРЖАНИЕ
1. Цель и задачи дисциплины ...................................................................... 4
2. Содержание дисциплины ......................................................................... 4
3. Виды работ с распределением времени ................................................ 10
4. Перечень лекционных занятий .............................................................. 11
5. Перечень практических занятий ............................................................ 12
6. Перечень тем, которые студент должен проработать самостоятельно 12
7. Перечень лабораторных работ ............................................................. 13
8. Перечень контрольных работ по сопротивлению материалов ............ 13
9. Библиографический список ................................................................... 13
10. Приложение. Методические указания и контрольные задания ......... 14
1. Цель и задачи дисциплины
1.1. Курс сопротивление материалов – наука о прочности, жесткости и ус- тойчивости отдельных элементов конструкций (сооружений и машин). Инже- неру любой специальности часто приходится производить расчеты на прочность. Неправильный расчет самого незначительного, на первый взгляд, элемента может повлечь за собой очень тяжелые последствия – привести к раз- рушению конструкции в целом. При проведении расчетов на прочность необ- ходимо стремиться к сочетанию надежности работы конструкции с ее стоимостью, добиваться наибольшей прочности при минимальном расходе ма- териала. Необходимо улучшать качество проектных решений, применяя новые конструкционные материалы с повышенной прочностью.
Цель дисциплины состоит в том, чтобы научить будущих инженеров пра-вильно выбрать конструкционные материалы и конструктивные формы, обес-печить высокие показатели надежности, долговечности и безопасности напряженных конструкций и узлов оборудования, создать эффективные и эко-номичные конструкции.
Забиваем Сайты В ТОП КУВАЛДОЙ - Уникальные возможности от SeoHammer
Каждая ссылка анализируется по трем пакетам оценки: SEO, Трафик и SMM.
SeoHammer делает продвижение сайта прозрачным и простым занятием.
Ссылки, вечные ссылки, статьи, упоминания, пресс-релизы - используйте по максимуму потенциал SeoHammer для продвижения вашего сайта.
Что умеет делать SeoHammer
— Продвижение в один клик, интеллектуальный подбор запросов, покупка самых лучших ссылок с высокой степенью качества у лучших бирж ссылок.
— Регулярная проверка качества ссылок по более чем 100 показателям и ежедневный пересчет показателей качества проекта.
— Все известные форматы ссылок: арендные ссылки, вечные ссылки, публикации (упоминания, мнения, отзывы, статьи, пресс-релизы).
— SeoHammer покажет, где рост или падение, а также запросы, на которые нужно обратить внимание.
SeoHammer еще предоставляет технологию Буст, она ускоряет продвижение в десятки раз,
а первые результаты появляются уже в течение первых 7 дней.
Зарегистрироваться и Начать продвижение
1.2. Задачи изучения дисциплины. Изучив дисциплину, студент должен:
1.2.1. Иметь представление о поведении прочностных конструкционных материалов при действии внешних нагрузок, перепадов температур во времени, способах измерения различных параметров, определяющих напряженно-деформированное состояние конструкций, составление расчетных моделей и возможности их изменения с целью получения детальной информации, конст-рукции большинства испытательных машин, методике получения статистиче-ских данных о свойствах материалов и назначении прочностных нормативных значений. Сравнивать варианты расчетных схем, отыскивать оптимальные ре-шения, связывать воедино инженерную подготовку задачи, расчет и проектиро-вание, учитывая профиль будущей специальности.
1.2.2. Знать и уметь использовать способы определения напряжений и де-формаций для стержней, методы расчеты статически неопределимых систем в упругой стадии работы.
1.2.3. Иметь опыт расчета стержней на простые и комбинированные виды нагружения.
2. Содержание дисциплины
2.1. Введение
Определение дисциплины “Сопротивление материалов” как раздела меха-ники деформируемого твердого тела. Ее связь с курсами “Теория упругости и пластичности”, “Строительная механика” и другими общеинженерными и спе-циальными дисциплинами. Достижение отечественной науки в обеспечении механической надежности.
2
2.2. Основные понятия
Внешние силы и их классификация: поверхностные, объемные и сосредо-точенные, статические и динамические. Реальные объекты и их расчетные схе-мы: стержень, пластина, оболочка и массивное тело. Основные свойства деформируемого твердого тела: упругость, пластичность, хрупкость, релакса-ция и ползучесть.
Внутренние силы и метод их изучения (метод сечений). Главный вектор и главный момент внутренних сил. Внутренние силовые факторы в поперечном сечении стержня. Продольная и поперечные силы, крутящий и изгибающие моменты. Напряжение полное, нормальное и касательное. Определение равно-действующей внутренних сил через напряжения. Перемещения и деформации. Основные принципы сопротивления материалов.
2.3. Растяжение и сжатие прямого стержня
Продольные силы. Дифференциальные зависимости между продольными силами и нагрузкой. Напряжения в поперечных сечениях. Продольные и попе-речные деформации. Закон Гука. Модуль упругости и коэффициент Пуассона. Определение осевых перемещений сечений. Потенциальная энергия упругой деформации. Расчет простейших статически неопределимых систем при растя-жении и сжатии. Нормальные и касательные напряжения на двух взаимно-перпендикулярных площадках. Закон парности касательных напряжений. По-нятие о чистом сдвиге. Закон Гука для сдвига. Связь между упругими постоян-ными. Температурные и монтажные напряжения. Напряжения от собственного веса. Понятие о стержне равного сопротивления. Концентрация напряжений. Контактные напряжения.
Сервис онлайн-записи на собственном Telegram-боте
Попробуйте сервис онлайн-записи VisitTime на основе вашего собственного Telegram-бота:
— Разгрузит мастера, специалиста или компанию;
— Позволит гибко управлять расписанием и загрузкой;
— Разошлет оповещения о новых услугах или акциях;
— Позволит принять оплату на карту/кошелек/счет;
— Позволит записываться на групповые и персональные посещения;
— Поможет получить от клиента отзывы о визите к вам;
— Включает в себя сервис чаевых.
Для новых пользователей первый месяц бесплатно.
Зарегистрироваться в сервисе
2.4. Механические свойства материалов при растяжении и сжатии
Опытное изучение механических свойств материалов при растяжении и сжатии. Диаграммы растяжения и сжатия пластичных материалов. Основные механические характеристики материала: предел пропорциональности, предел упругости, предел текучести и предел прочности (временное сопротивление). Особенности деформирования и разрушения пластичных материалов при рас-тяжении и сжатии. Пластические деформации. Линии скольжения. Понятия об истинной диаграмме растяжения и сжатия. Разгрузка и повторное нагружение. Наклеп. Диаграммы растяжения и сжатия хрупких материалов и их основные механические характеристики. Особенности разрушениях хрупких материалов при растяжении и сжатии. Понятие о ползучести, релаксации и длительной прочности.
3
2.5. Расчеты на прочность и жесткость при растяжение и сжатии
Выбор предельного состояния в зависимости от свойств материала, усло-вий работы и назначения конструкции. Расчет по допускаемым напряжениям. Коэффициент запаса. Технико-экономические факторы, влияющие на норма-тивный коэффициент запаса. Три рода задач при расчете на прочность: провер-ка прочности, подбор сечений и определение допускаемой нагрузки. Проверка прочности стержней по методу разрушающих нагрузок и методу продольных состояний. Подбор размеров поперечных сечений из условия жесткости.
2.6. Геометрические характеристики поперечных сечений
Статический момент сечения. Осевой, полярный и центробежные моменты инерции. Осевые моменты инерции для прямоугольника, треугольника, круга и кольца. Зависимость между моментами инерции для параллельных осей. Зави-симость между моментами инерции при повороте координатных осей. Главные оси инерции. Главные моменты инерции. Вычисление моментов инерции сложных профилей. Радиус инерции.
2.7. Плоское напряженное состояние
Понятие о плоском напряженном состоянии в точке. Общий случай плос-кого напряженного состояния. Вывод зависимости между напряжениями и уг-лом наклона площадки. Определение главных напряжений в точке. Экстремальные касательные напряжения.
2.8. Сдвиг
Напряжения и деформации при сдвиге. Закон Гука при сдвиге. Модуль сдвига. Зависимость между константами для идеально упругого изотропного тела. Понятие о расчетах на прочность заклепочных и сварных соединений.
2.9. Расчеты на кручение
Внешние силы, вызывающие кручение прямого стержня. Эпюры внутрен-них крутящих моментов. Кручение прямого стержня кругового поперечного се-чения. Касательные напряжения и угол закручивания. Жесткость поперечного сечения при кручении. Расчет на прочность и жесткость вала кругового и коль-цевого поперечного сечения. Потенциальная энергия упругой деформации. Статически неопределимые системы при кручении. Основные результаты тео-рии кручения стержней некругового поперечного сечения.
2.10. Расчеты при прямом поперечном изгибе
Типы опор. Определение реакции в опорах. Классификация видов изгиба. Нахождение внутренних силовых факторов в поперечных сечениях балок при изгибе. Поперечные силы, изгибающие моменты. Дифференциальные зависи-
4
мости между внутренними силовыми факторами и внешней распределенной нагрузкой. Эпюры внутренних силовых факторов. Зависимость между изги-бающим моментом и кривизной изогнутой оси балки. Нормальные напряжения чистого изгиба. Жесткость поперечного сечения балок при изгибе. Касательные напряжения изгиба сплошного сечения (формула Д.И. Журавского). Касатель-ные напряжения балок прямоугольного и кругового сечений. Условия прочно-сти при изгибе. Подбор сечения. Рациональные формы поперечных сечений балок. Главные напряжения при изгибе. Расчет прочности балки на совокуп-ность напряжений по высоте сечения. Касательные напряжения тонкостенных балок. Потенциальная энергия упругой деформации при изгибе. Концентрация напряжений при изгибе.
2.11. Понятие о пространственном напряженно – деформированном
состоянии
Составляющие вектора напряжений и их обозначение на координатных площадках трехмерного тела. Понятие о главных напряжениях в трехмерном теле. Экстремальные значения касательных напряжений. Компоненты дефор-мации. Объемная деформация. Закон Гука при пространственном напряженном состоянии. Удельная потенциальная энергия и ее составляющие – энергия из-менения объема и энергия изменения формы.
2.12. Гипотезы прочности
Назначение гипотез прочности. Понятие об эквивалентных напряжениях. Хрупкое и вязкое разрушение в зависимости от вида напряженного состояния. Современная трактовка развития трещин и наступления пластических дефор-маций. Гипотеза прочности при хрупком состоянии материала наибольших нормальных напряжений. Гипотеза наибольших деформаций (удлинений). Ги-потеза наибольших касательных напряжений – пластичное состояние материа-ла. Гипотеза удельной энергии формоизменения – пластичное состояние материала. Гипотеза разрушения Мора для материалов с различными предела-ми прочности при растяжении и сжатии. Общие сведения о новых гипотезах прочности для изотропных и анизотропных материалов.
2.13. Определение перемещений при изгибе
Линейные и угловые перемещения. Дифференциальное уравнение оси изо-гнутого стержня и его интегрирование. Постоянные интегрирования и гранич-ные условия для их определения. Начальные параметры. Универсальное уравнение упругой линии балки. Теорема Кастилиано. теоремы взаимности ра-бот и перемещений. Интеграл Мора. Способ Верещагина.
2.14. Расчет статически неопределимых систем при изгибе по методу сил
Степень статической неопределимости. Идея метода сил. Основная систе-ма. Канонические уравнения. Определения коэффициентов. Перемещения в
5
статически неопределимых системах. Статическая и деформационная проверки. Расчет простейших плоских и плоско-пространственных рам.
2.15. Сложное сопротивление
Общий случай действия внешних сил стержень. Внутренние силовые фак-торы и их эпюры в плоских и пространственных ломаных стержнях. Характер-ные случаи комбинированного нагружения стержня: косой изгиб, внецентренное действия продольной силы, изгиб с кручением. Нормальные на-пряжения при косом изгибе и их эпюры. Силовая и нулевая линии. Наибольшие напряжения. Определение перемещений. Нормальные напряжения при внецен-тренном действии продольной силы. Эпюры нормальных напряжений. Силовая и нулевая линии. Ядро сечения. Расчет на прочность вала при изгибе в двух плоскостях. Расчет на прочность вала при совместном растяжении (сжатии) и изгибе с кручением. Статическая прочность вала при изгибе с кручением (гипо-тезы: максимальных касательных напряжений и удельной энергии формоизме-нения). Кручение и срез. Расчет пружин с небольшим шагом витка. Вывод формулы для осадки пружины. Расчет рессоры.
2.16. Расчет сжатых стержней на устойчивость
Устойчивые и неустойчивые формы равновесия. Формула Эйлера для кри-тической силы. Влияние способов закрепления концов стержня на критическую силу. Пределы применимости формулы Эйлера. Эмпирические формулы для определений критических напряжений. Практическая формула для расчета на устойчивость. Рациональные формы сечений сжатых стержней. Понятие о про-дольно-поперечном изгибе.
2.17. Расчеты при некоторых динамических нагрузках
Понятие о динамической нагрузке и коэффициенте динамичности. Подъем и опускание груза с ускорением. Использование принципа Даламбера. Удар об упругую систему с одной степенью свободы. Расчет по балансу энергии. Про-дольный и поперечный удары по стержню. Приближенный учет массы стержня при ударе. Внезапное приложение нагрузки. Напряжения во вращающемся сплошном диске постоянной толщины (расчет циркулярной пилы).
2.18. Расчет на прочность при колебаниях
Свободные колебания с одной степенью свободы. Вынужденные колеба-ния системы с одной степенью свободы. Резонанс. Динамический коэффици-ент. Колебания упругих конструкций с многими массами. Понятие о приближенных методах расчета собственных частот: способ Релея, способ Рит-ца и способ Бубнова-Галеркина. Примеры расчета на прочность и жесткость при колебаниях.
6
Понятие о средствах борьбы с вибрациями деталей машин и элементов конструкций: уравновешивание (балансировка), отстройки от резонанса, введе-ние демпферов, применение виброизолирующих покрытий. Пассивная и актив-ная виброизоляция.
2.19. Основы расчета на прочность при напряжениях, переменных
во времени
Возникновение и развитие усталостных повреждений. Механизм усталост-ного разрушения. Кривая усталости (Велера) при симметричном цикле. Предел выносливости. Диаграммы предельных напряжений и амплитуд цикла. Факто-ры, влияющие на предел выносливости. Определение коэффициента запаса прочности при симметричном цикле. Определение коэффициента запаса при асимметричном цикле напряжений. Практические меры повышения сопротив-ления усталости. Понятие о накоплении повреждений. Принцип линейного суммирования повреждений и его применение для оценки долговечности. Рост трещин при циклическом нагружении.
2.20. Изгиб и растяжение (сжатие) плоского кривого стержня
Понятие о кривом стержне большой и малой кривизны. Эпюры внутрен-них силовых факторов. Нормальные напряжения в поперечном сечении при чистом изгибе в главной плоскости. Эпюры нормальных напряжений. Опреде-ление положения нулевой линии для некоторых видов поперечных сечений стержня. Нормальные напряжения от продольной силы.
2.21. Изгиб балок на упругом основании
Понятие о балках на упругом основании и их свойства. Условия контакта подошвы балки и упругого основания. Дифференциальное уравнение оси изо-гнутой балки на сплошном упругом основании и его интегрирование. Гранич-ные условия. Метод начальных параметров. Случай бесконечно длинных балок.
2.22. Расчет сосудов, корпусных конструкций и трубопроводов
Безмоментная теория тонкостенных осесимметричных оболочек вращения. Уравнения равновесия. Определение меридиональных и окружных напряже-ний. Расчеты на прочность. Краевые эффекты в цилиндрических оболочках.
Задача Ламе. Применение формул Ламе к расчету толстостенных цилинд-ров, нагруженных внутренним и (или) внешним давлением. Предельные воз-можности однослойных цилиндров, нагруженных внутренним давлением. Понятие о расчете цилиндров.
2.23. Экспериментальные методы исследования деформаций и напряжений
Измерение деформаций тензометрами. База тензометра. Тензометры меха-нические. Тензометры омического сопротивления (проволочные датчики). По-нятие о тензометрической розетке при исследовании плоского напряженного
7
состояния. Поляризационно-оптический метод исследования напряжений. По-нятие о моделировании. Краткие сведения о специальных экспериментальных методах (метод хрупких лаковых покрытий, метод муаровых полос и гологра-фической интерфепометрии).
2.24. Основные понятия механики разрушения
Связь механики разрушения с физикой твердого тела. Разрушение мате-риала в конструкции. Механизм вязкого и хрупкого разрушения. Критические температуры хрупкости. Механика разрушения тел с трещинами. Тип особен-ности поля напряжений вблизи вершины трещины. Коэффициент интенсивно-сти напряжений. Энергетическая концепция хрупкого разрушения. Понятие об устойчивом росте трещины. Допускаемые размеры трещины в напряженных элементах конструкций. Примеры расчетов на прочность деталей с трещинами.
2.25. Расчеты за пределами упругости
Общее представление о поведении материала за пределами упругости. Ос-новные гипотезы. Диаграмма деформирования и ее схематизация. Упругопла-стические деформации статически определимых и статически неопределимых систем при растяжении (сжатии). Определение допускаемой нагрузки. Упруго-пластический изгиб и кручение стержней. Разгрузка и остаточное напряжение. Понятие о расчете по разрушающим нагрузкам. Дополнительные резервы на-дежности в статически неопределимых системах.
Заключение
Современные проблемы определения напряжений, деформаций и переме-щений при расчете инженерных конструкций на прочность, жесткость, устой-чивость, колебания и надежность с применением численных методов и компьютерного моделирования.
3. Виды работ с распределением времени
Курс II
Семестр 4
Всего часов – 54 ч.
Лекционные занятия – 28 ч.
Практические занятия – 26ч.
Экзамен – 1 (4 семестр)
8
4. Перечень лекционных занятий
| Лекционные занятия
|
Тема
|
Количество часов
|
| 1
|
Введение. Метод сечений. Понятие о напряжениях и деформациях
|
2
|
| 2
|
Растяжение и сжатие прямого стержня. Вывод формул для напряжений и деформаций
|
2
|
| 3
|
Механические свойства материалов при растяже-
нии и сжатии. Расчеты на прочность и жесткость.
Статически неопределимые задачи. Геометриче-
ские характеристики сечений
|
4
|
| 4
|
Кручение стержней кругового и трубчатого сечений
|
2
|
| 5
|
Изгиб балок. Вывод формул для нормальных и ка-сательных напряжений. Расчеты на прочность
|
4
|
| 6
|
Определение перемещений при изгибе. Статиче-
ски неопределимые системы при изгибе.
Метод сил
|
4
|
| 7
|
Сложное сопротивление. Косой изгиб. Внецен-тренное растяжение и сжатие
|
4
|
| 8
|
Напряженно-деформированное состояние. Теории прочности
|
2
|
| 9
|
Совместное действие растяжения – сжатия, изгиба и кручения. Статический расчет валов
|
2
|
| 10
|
Устойчивость элементов конструкций
|
2
|
9
| 5. Перечень тем для практических занятий
|
| Практические занятия
|
Тема
|
Количество часов
|
| 1
|
Расчеты на прочность и жесткость при растяжении
и сжатии
|
6
|
| 2
|
Статически неопределимые задачи при растяжении
и сжатии
|
2
|
| 3
|
Геометрические характеристики плоских сечений
|
2
|
| 4
|
Расчеты на прочность и жесткость при кручении
|
6
|
| 5
|
Расчеты на прочность при изгибе
|
2
|
| 6
|
Определение перемещений при изгибе
|
2
|
| 7
|
Расчеты на прочность при комбинированном нагружении
|
6
|
Контрольные работы выполняются по следующим темам: растяжение и сжатие стержня, сдвиг, кручение, теория напряженного состояния и теории прочности, изгиб прямых стержней, сложное сопротивление.
9. Библиографический список
1. Дарков А.Д. Сопротивление материалов. Методические указания и кон-трольные задания для студентов-заочников всех специальностей техни-ческих высших учебных заведений, кроме строительных /А.В. Дарков, Б.Н. Кутуков. – 14-е изд. – М.: Высш. шк, 1985. – 56 с.
10
2. Дарков А.В. Сопротивление материалов /А.В. Дарков, Г.С. Шпиро. – М.: Высш. школа, 1989. – 734 с. (а также последующие издания).
3. Степин П.А. сопротивление материалов. Учебник для немашинострои-тельных специальностей вузов / П.А. Степин. 7-е изд. – М.: Высш. шко-ла, 1983. – 303 с.
10. Приложение
Методические указания и контрольные задания заимствованы из государственных методических ука-заний [1, 2], которые утверждены Учебно-методическим управлением по выс-шему образованию и рекомендованы для отделений безотрывной формы обучения технических университетов.
Для студентов специальностей 280103 и 280104 число контрольных определяется учебным графиком.
11
МЕТОДИЧЕСКИЕ УКАЗАНИЯ И КОНТРОЛЬНЫЕ ЗАДАНИЯ
ДЛЯ СТУДЕНТОВ-ЗАОЧНИКОВ
1, Каждый студент-заочник выполняет то количество контрольных работ, которое предусмотрено учебным графиком.
Контрольные задания приводятся десяти типов. Все задачи каждого типа даны в десяти вариантах. Обязателен для выполнения тот тип контрольного задания, который соответствует последней цифре личного номера (шифра) студента, и тот вариант, который соответствует предпоследней цифре шифра.
Работы, выполненные с нарушением этих указаний, не засчитываются.
12
2. Не следует приступать к выполнению контрольных заданий, не изучив соот-ветствующего раздела курса и не решив самостоятельно рекомендованных за-дач. Если основные положения теории усвоены слабо и студент обратил мало внимания на подробно разобранные в курсе примеры, то при выполнении кон-трольных работ возникнут большие затруднения. Несамостоятельно выполнен-ное задание не дает возможности преподавателю-рецензенту вовремя заметить недостатки в работе студента-заочника. В результате студент не приобретает необходимых знаний и оказывается неподготовленным к экзамену.
3. Не рекомендуется также присылать в институт сразу несколько выпол-ненных заданий. Это не дает возможности рецензенту своевременно указать студенту на допущенные ошибки и задерживает рецензирование.
4. В заголовке контрольной работы должны быть четко написаны: номер кон-трольной работы, название дисциплины, фамилия, имя и отчество студента (полностью), название факультета и специальности, учебный шифр, дата от-сылки работы, точный почтовый адрес. Необходимо также указывать год изда-ния методических указаний, по которым выполнялась контрольная работа.
5. Каждую контрольную работу следует выполнять в особой тетради или на листах, сшитых в тетрадь нормального формата, чернилами (не красными), четким почерком, с полями в 5 см для замечаний рецензента.
6. Перед решением каждой задачи надо выписать полностью ее условие с чи-словыми данными, составить аккуратный эскиз в масштабе и указать на нем в числах все величины, необходимые для расчета.
7. Решение должно сопровождаться краткими, последовательными и грамот-ными, без сокращения слов, объяснениями и чертежами, на которых все вхо-дящие в расчет величины должны быть показаны в числах. Надо избегать многословных пояснений и пересказа учебника; студент должен знать, что язык техники – формула и чертеж. При пользовании формулами или данными, от-сутствующими в учебнике, необходимо кратко и точно указывать источник (ав-тор, название, издание, страницу, номер формулы).
8. Необходимо указывать единицы всех величин и подчеркивать окончательные результаты.
9. Не следует вычислять большое число значащих цифр, вычисления должны соответствовать необходимой точности. Нет необходимости длину деревянного стержня в стропилах вычислять с точностью до миллиметра, но было бы ошиб-
кой округлять до целых миллиметров диаметр вала, на который будет насажен шариковый подшипник.
10. По получении из института контрольной работы студент должен исправить в ней все отмеченные ошибки и выполнить все сделанные ему указания. В случае требования рецензента следует в кратчайший срок послать ему выпол-ненные на отдельных листах исправления, которые должны быть вложены в соответствующие места рецензированной работы. Отдельно от работы исправ-ления не рассматриваются.
13
ЗАДАЧИ ДЛЯ КОНТРОЛЬНЫХ РАБОТ
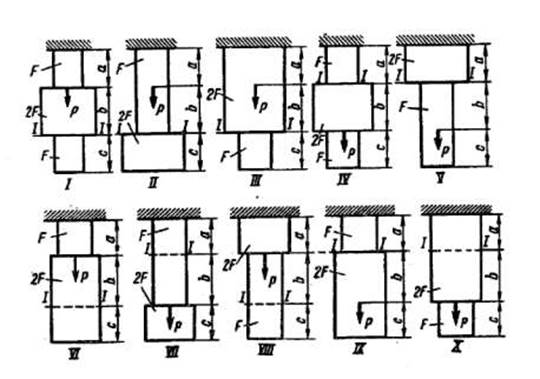
Задача 1
Стальной стержень переменного сечения (E
= 2⋅105
МПа) находится под действием продольной силы Р. Построить эпюры продольных сил, нормальных напряжений и перемещений (рис. П.1). Проверить прочность и жесткость Данные взять из табл. П.2.

Рис. П.1
14
Таблица П.2
| № варианта
|
F, см2
|
a
|
b
|
c
|
P, H
|
H,
кН
|
105
β
|
Напряжение, МПа
|
| м
|
σ x
|
σ y
|
τ x
|
| 1 2 3 4 5 6 7 8 9 0
|
11 12 13 14 15 16 17 18 19 20
|
2,1 2,2 2,3 2,4 2,5 2,6 2,7 2,8 2,9 3
|
2,1 2,2 2,3 2,4 2,5 2,6 2,7 2,8 2,9 3
|
1,1 1,2 1,3 1,4 1,5 1,6 1,7 1,8 1,9 2
|
1100 1200 1300 1400 1500 1600 1700 1800 1900 2000
|
110 120 130 140 150 110 120 130 140 150
|
5 4 3 2 1 5 4 3 2 1
|
10 20 30 40 50 60 70 80 90 100
|
10 20 30 40 50 60 70 80 90 100
|
10 20 30 40 50 60 70 80 90 100
|
15
Задача 2
К стальному валу приложены три известных момента: М1
,
M2
, M3
(рис. П. 5). Требуется: построить эпюры крутящих моментов, касательных напряжений и углов закручивания; проверить прочность и жесткость.

Таблица П.З
| №
стро-
ки
|
Схе-
|
Расстояния, м
|
Моменты, Н • м
|
| ма по
рис.
П.5
I
|
а
|
Ь
|
с
|
M1
,
|
M2
,
|
M3
,
|
[τ], МПа
|
| 1
|
1,1
|
1,1
|
1,1
|
1100
|
1100
|
1100
|
35
|
| 2
|
II
|
1,2
|
1,2
|
1,2
|
1200
|
1200
|
1200
|
40
|
| 3
|
III
|
1,3
|
1,3
|
1,3
|
1300
|
1300
|
1300
|
45
|
| 4
|
IV
|
1,4
|
1,4
|
1,4
|
1400
|
1400
|
1400
|
50
|
| 5
|
V
|
1,5
|
0,5
|
1,5
|
1500
|
1500
|
1500
|
55
|
| 6
|
VI
|
1,6
|
0,6
|
1,6
|
1600
|
600
|
1600
|
60
|
| 7
|
VII
|
1,7
|
0,7
|
1,7
|
1700
|
700
|
1700
|
65
|
| 8
|
VIII
|
1,8
|
0,8
|
1,8
|
1800
|
800
|
1800
|
70
|
| 9
|
IX
|
1,9
|
0,9
|
1,9
|
1900
|
900
|
1900
|
75
|
| 0
|
X
|
2
|
2
|
2
|
2000
|
1000
|
2000
|
80
|
Задача 3
Жесткий брус прикреплен к шарнирно-неподвижной опоре и к двум пружи-нам с
одинаковым средним диаметром витков D и С одинаковым диаметром круг-лой проволоки d (рис. П.6). Пружина 1 имеет т
витков, пружина 2 – n витков. Требуется: 1) найти усилия и напряжения в обеих пружинах; 2) найти осадки обеих
пружин; 3) установить, при каком отношении витков т/п
усилия в обеих пружинах равны между собой; 4) найти усилия, напряжения и осадки при найденном отношения т/п
и заданной величине т
(или и). Данные взять из табл. П.4.
Таблица П.4
| № строки
|
Схема по рис. П. 6
|
D d
|
Число витков
|
P, H
|
| см
|
m
|
n
|
| 1 2 3 4 5 6 7 8 9 0
|
11
12
13
14
15
6
7
8
9
10
|
1,1 1,2 1,3 1,4 1,5 1,6 1,7 0,8 0,9 1
|
11
12
13
14
15
6
7
8
9
10
|
11
12
13
14
15
6
7
8
9
10
|
110 120 30 40 50 60 70 80 90 100
|
17
Задача 4
Для заданных двух схем балок (рис. П.8) требуется написать выражения Q
и М
для каждого участка в общем виде, построить эпюры Q
и М,
найти М
max
и подобрать: а) для схемы (а) деревянную балку круглого поперечного сечения при [σ]=
8 МПа; б) для схемы (б) стальную балку двутаврового поперечного сечения при [σ]=180 МПа. Данные взять из табл. П.6.
18
Задача 5
Для балки, изображенной на рис. П. 11, требуется: 1) найти изгибающий момент на левой опоре (в долях gl
2
); 2) построить эпюры Q
и М
. Данные взять из табл. П.8.
Указания. Для ответа на первый вопрос нужно выбрать основную систе-му в виде свободно лежащей на двух опорах балки и составить уравнение де-формаций, выражающее мысль, что суммарный угол поворота на левой опоре от заданной нагрузки и от опорного момента равен нулю.

Рис. П.11
20
Можно также решить задачу иначе, составив два уравнения: 1) уравнение статики в виде суммы моментов всех сил относительно правой опоры; 2) урав-нение метода начальных параметров, выражающее ту мысль, что прогиб на правой опоре равен нулю. Из этих двух уравнений можно найти изгибающий момент и реакцию на левой опоре ( M
0
и Q
0
).
При построении эпюры прогибов надо учесть, что упругая линия балки обращена выпуклостью вниз там, где изгибающий момент положительный, и выпуклостью вверх там, где он отрицательный.
Задача 6
Определить прогиб свободного конца балки переменного сечения (рис. П.12). Данные взять из табл. П.8.
21

Рис. П. 12
22
|