| МИНИСТЕРСТВО СЕЛЬСКОГО ХОЗЯЙСТВА
И ПРОДОВОЛЬСТВИЯ РЕСПУБЛИКИ БЕЛАРУСЬ
ГЛАВНОЕ УПРАВЛЕНИЕ ОБРАЗОВАНИЯ, НАУКИ И КАДРОВ
УЧРЕЖДЕНИЕ ОБРАЗОВАНИЯ
«БЕЛОРУССКАЯ ГОСУДАРСТВЕННАЯ
СЕЛЬСКОХОЗЯЙСТВЕННАЯ АКАДЕМИЯ»
Мелиоративно-строительный факультет
ПРАВИЛА ПОСТРОЕНИЯ, ИЗЛОЖЕНИЯ
И ОФОРМЛЕНИЯ ДИПЛОМНЫХ ПРОЕКТОВ
МЕТОДИЧЕСКИЕ УКАЗАНИЯ ПО ДИПЛОМНОМУ
ПРОЕКТИРОВАНИЮ
Для студентов специальности 1-74 05 01 – мелиорация и
водное хозяйство
Горки 2008
МИНИСТЕРСТВО СЕЛЬСКОГО ХОЗЯЙСТВА
И ПРОДОВОЛЬСТВИЯ РЕСПУБЛИКИ БЕЛАРУСЬ
ГЛАВНОЕ УПРАВЛЕНИЕ ОБРАЗОВАНИЯ, НАУКИ И КАДРОВ
УЧРЕЖДЕНИЕ ОБРАЗОВАНИЯ
«БЕЛОРУССКАЯ ГОСУДАРСТВЕННАЯ
СЕЛЬСКОХОЗЯЙСТВЕННАЯ АКАДЕМИЯ»
Мелиоративно-строительный факультет
ПРАВИЛА ПОСТРОЕНИЯ, ИЗЛОЖЕНИЯ
И ОФОРМЛЕНИЯ ДИПЛОМНЫХ ПРОЕКТОВ
МЕТОДИЧЕСКИЕ УКАЗАНИЯ ПО ДИПЛОМНОМУ
ПРОЕКТИРОВАНИЮ
Для студентов специальности 1-74 05 01 – мелиорация и
водное хозяйство
Горки 2008
МИНИСТЕРСТВО СЕЛЬСКОГО ХОЗЯЙСТВА
И ПРОДОВОЛЬСТВИЯ РЕСПУБЛИКИ БЕЛАРУСЬ
ГЛАВНОЕ УПРАВЛЕНИЕ ОБРАЗОВАНИЯ, НАУКИ И КАДРОВ
УЧРЕЖДЕНИЕ ОБРАЗОВАНИЯ
«БЕЛОРУССКАЯ ГОСУДАРСТВЕННАЯ
СЕЛЬСКОХОЗЯЙСТВЕННАЯ АКАДЕМИЯ»
Мелиоративно-строительный факультет
ПРАВИЛА ПОСТРОЕНИЯ, ИЗЛОЖЕНИЯ
И ОФОРМЛЕНИЯ ДИПЛОМНЫХ ПРОЕКТОВ
МЕТОДИЧЕСКИЕ УКАЗАНИЯ ПО ДИПЛОМНОМУ
ПРОЕКТИРОВАНИЮ
Для студентов специальности 1-74 05 01 – мелиорация и
водное хозяйство
Горки 2008
Одобрено методической комиссией мелиоративно-строительного факультета 03.03.2008 и научно-методическим советом БГСХА 03.03.2008 (протокол №7).
Составили: В.И. ЖЕЛЯЗКО, доктор с.-х. наук, декан мелиоративно-строительного факультета; М.Г. ГОЛЧЕНКО, доктор техн. наук, профессор кафедры мелиорации и водного хозяйства; Т.Д. ЛАГУН, канд. техн. наук, председатель метод. комиссии; В.В. ВАСИЛЬЕВ, канд. техн. наук, зав. кафедрой строительства и эксплуатации ГМС.
Компьютерный набор и верстка Н. М. Тимошенко.
Ответственный за выпуск В.В. Васильев
СОДЕРЖАНИЕ
| 1. Область применения……………………………………………………………….
|
3
|
| 2. Общие положения………………………………………………………………….
|
3
|
| 3. Перечень нормативных документов, обязательных для использования при дипломном проектировании…………………………………………………………
|
6
|
| 4. Содержание дипломного проекта…………………………………………………
|
8
|
| 5. Организация дипломного проектирования………………………………………
|
11
|
| 6. Оформление расчетно-пояснительной записки проекта…………………………
Забиваем Сайты В ТОП КУВАЛДОЙ - Уникальные возможности от SeoHammer
Каждая ссылка анализируется по трем пакетам оценки: SEO, Трафик и SMM.
SeoHammer делает продвижение сайта прозрачным и простым занятием.
Ссылки, вечные ссылки, статьи, упоминания, пресс-релизы - используйте по максимуму потенциал SeoHammer для продвижения вашего сайта.
Что умеет делать SeoHammer
— Продвижение в один клик, интеллектуальный подбор запросов, покупка самых лучших ссылок с высокой степенью качества у лучших бирж ссылок.
— Регулярная проверка качества ссылок по более чем 100 показателям и ежедневный пересчет показателей качества проекта.
— Все известные форматы ссылок: арендные ссылки, вечные ссылки, публикации (упоминания, мнения, отзывы, статьи, пресс-релизы).
— SeoHammer покажет, где рост или падение, а также запросы, на которые нужно обратить внимание.
SeoHammer еще предоставляет технологию Буст, она ускоряет продвижение в десятки раз,
а первые результаты появляются уже в течение первых 7 дней.
Зарегистрироваться и Начать продвижение
|
13
|
| 7. Оформление графического материала……………………………………………
|
18
|
| 8. Приложения…………………………………………………………………………
|
23
|
| Приложения……………………………………………………………………………
|
27
|
УДК 711.3 (072) (079.2)
Правила построения, изложения и оформления дипломных проектов: м
етодические указания / Белорусская государственная сельскохозяйственная академия; сост. В.И. Желязко, М.Г. Голченко, Т.Д. Лагун, В.В. Васильев. Горки, 2008. 44 с.
Приводятся требования к структуре, содержанию, правилам построения, изложения и оформления дипломных проектов.
Для студентов специальности 1-74 05 01 – мелиорация и водное хозяйство.
Приложений 16.
Рецензенты: Е.К. ЗЮЗИН, первый заместитель ген. директора ОАО «Холдинг Могилевводстрой», руководитель филиала кафедры строительства и эксплуатации ГМС;
М.В. НЕСТЕРОВ, канд. техн. наук, зав. кафедрой гидротехнических сооружений и водоснабжения.
Ó Составление. В.И. Желязко, М.Г. Голченко,
Т.Д. Лагун, В.В. Васильев, 2008
Ó Учреждение образования
“Белорусская государственная
сельскохозяйственная академия”, 2008
1. ОБЛАСТЬ ПРИМЕНЕНИЯ
1.1 Итоговая государственная аттестация выпускника предназначена для определения теоретической и практической готовности его к выполнению социально-профессиональных задач, установленных образовательным стандартом первой ступени высшего образования по данной специальности. Она включает проведение государственного экзамена по специальности и защиту выпускной квалификационной работы (дипломного проекта).
Данное положение является документом, который определяет и регламентирует порядок проведения второго аттестационного испытания, входящего в состав итоговой государственной аттестации выпускника.
1.2 Дипломное проектирование является завершающим этапом обучения студента в вузе. В процессе дипломного проектирования студент должен показать уровень полученных знаний, проявить способность к самостоятельному решению инженерных задач, научному анализу и обобщению информации по инновационному развитию отрасли, умение работать с нормативной литературой, а также внедрять передовые ресурсосберегающие технологии в производство.
1.3 Настоящие правила разработаны на основе многолетнего анализа дипломного проектирования, а также предложений по улучшению качества дипломных проектов, разрабатываемых на мелиоративно-строительном факультете и вытекающих из отчетов председателей ГКК. Они устанавливают порядок разработки, написания и подготовки к защите дипломных проектов по специальности – мелиорация и водное хозяйство всех форм обучения.
Сервис онлайн-записи на собственном Telegram-боте
Попробуйте сервис онлайн-записи VisitTime на основе вашего собственного Telegram-бота:
— Разгрузит мастера, специалиста или компанию;
— Позволит гибко управлять расписанием и загрузкой;
— Разошлет оповещения о новых услугах или акциях;
— Позволит принять оплату на карту/кошелек/счет;
— Позволит записываться на групповые и персональные посещения;
— Поможет получить от клиента отзывы о визите к вам;
— Включает в себя сервис чаевых.
Для новых пользователей первый месяц бесплатно.
Зарегистрироваться в сервисе
1.4 Требования настоящих правил обязательны для всех участников дипломного проектирования: заведующих кафедрами, руководителей дипломного проектирования, консультантов, рецензентов и студентов-дипломников.
2. ОБЩИЕ ПОЛОЖЕНИЯ
2.1 Дипломные проекты выполняются на выпускающих и профилирующих кафедрах. Руководителями, консультантами и рецензентами проектов могут быть профессора, доценты, старшие. преподаватели, имеющие стаж работы в данной должности не менее 3 лет, а также опытные производственники из числа сотрудников филиалов кафедр.
2.2 Для повышения качества дипломного проекта, а одновременно с этим и уровня подготовки студентов, на основе глубокого и детального анализа материалов исходных данных рекомендуется сквозное проектирование, предусматривающее поэтапную разработку отдельных разделов дипломного проекта в ходе курсового проектирования.
2.3 Распределение студентов на дипломное проектирование производится деканатом факультета с учетом мнения студентов.
2.4 Тематика дипломных проектов должна быть актуальной, разнообразной и соответствовать современному состоянию и перспективам инновационного развития отрасли.
2.5 Тема дипломного проекта формулируется руководителем совместно со студентом-дипломником с учетом материалов производственной и преддипломной практик, результатов УИРС, материалов изысканий, проектно-сметной документации и заявок производства на проектирование конкретных объектов.
2.6 Утверждение темы дипломного проекта производится по результатам защиты ее на заседании кафедры с оформлением протокола. Окончательно тема дипломного проекта утверждается приказом ректора.
2.7 На основании анализа современного состояния и перспектив инновационного развития агропромышленного комплекса рекомендуется разработка дипломных проектов по следующим актуальным направлениям.
– реконструкция мелиоративных систем;
– ремонт мелиоративных систем;
– рекультивация нарушенных земель;
– производство работ по реконструкции мелиоративных систем;
– насосные станции на мелиоративных системах;
– защита сельскохозяйственных земель и объектов от стихийных бедствий;
– агромелиоративные мероприятия на мелиоративной системе;
– техническая эксплуатация мелиоративных и водохозяйственных систем;
– водохозяйственные объекты и комплексы;
– рыбохозяйственная гидротехника;
– восстановление и использование водоемов и водотоков.
2.8 Дипломный проект в основном должен выполняться на первичных материалах изысканий. В отдельных случаях, при соответствующем обосновании, может быть использована проектно-сметная документация, которая имеется в производственной организации и требует творческой переработки. В этом случае при формулировании темы должна быть оговорена детальная разработка конкретного технического решения.
2.9 Не допускается включение в название темы детальной разработки вопросов описательного характера, которые не требуют расчетов. По объему детальная разработка должна составлять не менее 40 % дипломного проекта и включать решение оригинальных задач, внедрение авторских разработок, защищенных охранными документами, результаты собственных научных исследований по итогам УИРС, расчет параметров не типовых сооружений и систем и т.д.
2.10 Основанием для дипломного проектирования является задание на проектирование, которое выдается руководителем перед началом проектирования, но не позднее чем в недельный срок после преддипломной практики студента.
Одновременно с заданием на проектирование студенту должен быть выдан план-проспект дипломного проекта, в котором необходимо четко сформулировать цель дипломного проектирования, ориентированную на конечный результат. Например, планируемая продуктивность мелиорируемых земель или прудового хозяйства, рациональное использование водных ресурсов, повышение производительности мелиоративной техники, урожайности с.-х. культур при реконструкции, сокращение сроков строительства и внедрение передовых технологий, мелиоративная и другая оценка природоохранных мероприятий и т.д. Задание и план-проспект проекта должны содержать вопросы применения энерго- и ресурсосберегающих технологий, четко отражать вопросы, чертежи и разделы дипломного проекта, которые будут разрабатываться углубленно. В нем также указываются вопросы, которые освещаются на основании строительных (рабочих) проектов. В этом случае часть дипломного проекта, разрабатываемая дипломником углубленно, должна составлять не менее 40% его объема.
2.11 Для оказания помощи при работе над проектом дипломнику могут быть назначены консультанты со смежных кафедр, а в отдельных случаях – и с производства. Объем данной работы руководитель согласовывает с консультантом за счет часов, отводимых на дипломный проект.
2.12 По разделам задания руководитель совместно с дипломником должны составить календарный план выполнения проекта. В календарном плане перечисляются все главы и основные вопросы проекта, а также чертежи с указанием сроков их выполнения. Выполнение календарного плана контролируется руководителем и консультантами по отдельным вопросам, о чем делается запись в задании на проектирование.
2.13 В задании необходимо выделить разделы, выполняемые по заданию производства, с использованием результатов УИРС и других нестандартных источников (изобретения, рацпредложения и т.п.). Объем задания должен быть реальным для выполнения проекта в период, установленный учебным планом, а работа распределена равномерно в течение всего периода проектирования с загрузкой дипломника на полный учебный день.
2.14 Задание на проектирование, темы, состав руководителей, и консультантов должны быть рассмотрены кафедрой и методической комиссией факультета. После чего задание на дипломное проектирование утверждает заведующий кафедрой.
2.15 В процессе проектирования должно быть проведено не менее двух аттестаций дипломников по графику, разработанному деканатом. Аттестация проводится комиссией, созданной распоряжением по факультету. В состав комиссии входят: представитель методической комиссии, заведующий кафедрой, на которой выполняется дипломный проект, и нормоконтролер.
2.16 Нормоконтролер назначается из числа наиболее опытных преподавателей распоряжением по факультету.
2.17 Законченный дипломный проект регистрируется в деканате за 10 дней до защиты. После этого он направляется на рецензию. Рецензентами дипломных проектов могут быть сотрудники из числа профессорско-преподавательского состава, а также высококвалифицированные работники филиалов кафедр.
2.18 Предварительная защита на кафедре назначается после получения рецензии, отзыва руководителя и является обязательной. По итогам предварительной защиты принимается решение о допуске проекта к защите, которое оформляется распоряжением по факультету.
2.19 Защита дипломных проектов производится публично перед ГКК в соответствии с графиком, составленным деканатом. Присутствие руководителей проекта на защите обязательно.
3. ПЕРЕЧЕНЬ НОРМАТИВНЫХ ДОКУМЕНТОВ,
ОБЯЗАТЕЛЬНЫХ ДЛЯ ИСПОЛЬЗОВАНИЯ ПРИ ДИПЛОМНОМ
ПРОЕКТИРОВАНИИ
3.1 В дипломном проекте в разделе «Список литературы» должны быть перечислены литературные источники, использованные при разработке проекта, на которые должны быть сделаны ссылки в соответствующих разделах проекта.
3.2 Ссылка на литературу производится путем указания арабскими цифрами порядкового номера данного источника в списке литературы и номера страницы. Номер источника указывается в квадратных скобках. Он присваивается источнику в порядке его упоминания в тексте расчетно-пояснительной записки.
3.3 Разработка дипломного проекта должна осуществляться по действующим нормативным техническим правовым актам. Применение устаревших нормативных документов, срок действия которых прекращен – не допускается.
3.4 При разработке дипломных проектов считать обязательным применение следующих ниже перечисленных нормативных документов:
ТКП 45-3.04-8-2005 Мелиоративные системы и сооружения. Нормы проектирования.
ТКП 45-3.03-19-2006 Автомобильные дороги. Нормы проектирования.
ТКП 45-4.01-29-2006 Сети водоснабжения и канализации из полимерных труб. Правила проектирования и монтажа.
ТКП 45-3.04 Ремонт мелиоративных систем. Правила проектирования1)
.
ТКП 45-3.04 Реконструкция осушительных систем. Правила проектирования1)
.
ТКП 45-3.04 Осушительно-увлажнительные системы. Правила проектирования1)
.
ТКП 45-3.04 Польдерные системы. Правила проектирования1)
.
ТКП 45-3.04 Оросительные системы. Правила проектирования1)
.
ГОСТ 19185-73 Гидротехника. Основные понятия. Термины и определения.
ГОСТ 26967-86 Гидромелиорация. Термины и определения.
ГОСТ 9.602-89 Единая система защиты от коррозии и старения. Сооружения подземные. Общие требования к защите от коррозии.
СТБ ИСО 1497-2004 Трубы стальные с внутренним цементно-песчаным покрытием. Технические условия.
СТБ ЕН 1452-2-2005 Трубопроводы пластмассовые для водоснабжения. Поливинилхлорид непластифицированный (PVC-U). Часть 2. Трубы.
СТБ ЕН 1452-3-2005 Трубопроводы пластмассовые для водоснабжения. Поливинилхлорид непластифицированный (PVC-U). Часть 2. Части фасонные.
СНБ 1.02.01-96 Инженерные изыскания для строительства.
СНБ 1.02.03-97 Порядок разработки, согласования, утверждения и состав обоснований инвестиций в строительство предприятий, зданий и сооружений.
СНБ 1.03.02-96 Состав, порядок разработки и согласования проектной документации в строительстве.
СНБ 3.03.01-98 Железные дороги и колеи 1520 мм.
СНБ 4.01.01-03 Водоснабжение питьевое. Общие положения и требования.
СНиП 2.03.11–85. Защита строительных конструкций от коррозии.
СНиП 2.04.02–84 Водоснабжение. Наружные сети и сооружения.
СНиП 2.04.12-86 Расчет на прочность стальных трубопроводов.
__________________________
1)
Находятся в разработке и вводятся в 2009 году.
Выше указанный перечень по мере необходимости может дополняться по каталогу технических нормативно-правовых актов (ТНПА), составленному по состоянию на 1 января текущего года и по соответствующим информационным указателям текущего года.
СНиП 2.06.05-84 Плотины из грунтовых материалов.
СНиП 2.06.07-84 Подпорные стены, судоходные шлюзы, рыбопропускные и рыбозащитные сооружения.
РСН 65-88 Проектирование высоконагружаемых полей фильтрации для глубокой очистки сточных вод в условиях Белорусской ССР.
П1-98 к СНиП 2.01.14-83 Определение расчетных гидрологических характеристик.
П1-98 к СНиП 2.06.03-85 Проектирование и возведение мелиоративных систем и сооружений.
4. СОДЕРЖАНИЕ ДИПЛОМНОГО ПРОЕКТА
4.1 Состав дипломного проекта определяется «Инструкцией по подготовке, оформлению и представлению к защите дипломных проектов в вузе», утвержденной Министерством образования Республики Беларусь 27 июня 1997 г.
4.2 Дипломный проект должен включать расчетно-пояснительную записку, графический материал (чертежи) и приложения.
4.3 Объем расчетно-пояснительной записки в зависимости от сложности и глубины проработки вопросов не должен превышать 100 – 120 страниц текста, включая таблицы, рисунки (схемы). Количество чертежей 6–8.
4.4 Расчетно-пояснительная записка должна включать следующие составные части, а порядок размещения их нижеследующий:
– титульный лист;
– задание на проектирование;
– реферат;
– технико-экономические показатели проекта;
– оглавление;
– введение;
– основная расчетная часть (главы);
– заключение;
– список литературы;
– приложения.
Экологический паспорт проекта представляется в разделе «Охрана окружающей среды».
4.5 Титульный лист должен быть оформлен в соответствии с приложением 1 настоящих правил. Титульный лист подписывают дипломник, руководитель, консультанты, нормоконтролер, заведующий кафедрой. Здесь же проставляется дата допуска проекта к защите.
4.6 Задание на проектирование оформляется в соответствии с приложением 2 настоящих правил. В нем руководитель заполняет все необходимые сведения. Задание подписывается руководителем, дипломником, консультантами и утверждается заведующим кафедрой.
4.7 Реферат представляет собой краткую информацию по проекту с указанием цели и задач проекта, особенностей проектных решений, сведений о внедрении результатов проектирования в производство, элементов УИРС. В реферате необходимо отразить количество страниц записки и чертежей, таблиц, рисунков, литературных источников, приложений. Объем реферата не более 1 страницы. Образец оформления приведен в приложении 3.
4.8 Оглавление должно содержать название всех составных частей расчетно-пояснительной записки с указанием страниц, на которых начинается изложение соответствующего материала. После оглавления помещают перечень чертежей.
4.9 Технико-экономические показатели проекта должны отражать основные технические и экономические показатели, вытекающие из проектных решений. По этой части оценивается масштабность проекта, основные объемы по видам работ, эффективность решений, представленных в проекте.
4.10 Введение. Во введении показывается роль проектируемого или реконструируемого объекта в решении хозяйственных задач. Здесь должны быть сформулированы цель и задачи, которые будут решены в дипломном проекте. Объем введения 2 – 3 страницы.
4.11 Основная расчетная часть. Она является разделом проекта, в котором должны быть приведены и обоснованы соответствующими расчетами основные проектные решения. Содержание этой части определяется спецификой тематики дипломного проекта, целью и задачами, которые решаются в процессе проектирования. При разработке основной расчетной части необходимо учитывать следующие требования.
Характеристика природных и агроэкономических условий должна быть краткой и лаконичной. Следует избегать формальной информации, носящей характер общеизвестных прописных истин. Например, «климат Беларуси умеренно-континентальный….»; «высота снежного покрова….»; «почвенный покров республики представлен…».
Здесь необходимо привести только те данные, которые необходимы для достижения цели проекта. Весь информационный табличный материал следует давать в приложениях, делая на них ссылки в тексте. Примерный объем этого раздела до 5 страниц.
Далее на основе анализа природных и агроэкономических условий, технического состояния существующих систем и сооружений приводятся основные проектные решения, обоснованные расчетами. Из материалов данного раздела должно быть видно насколько студент овладел методикой выполнения расчетов мелиоративных систем, водохозяйственных объектов и сооружений, умением работать с нормативно-правовыми актами, регламентирующими проектирование и последующее строительство данного объекта.
Виды и количество расчетного материала с учетом специфики темы определяет руководитель проекта совместно с дипломником. Здесь обязательными являются расчеты с использованием ПЭВМ, вариантность проектных решений, использование результатов НИР студента, внедрение новых конструктивных решений, применение ресурсо - и энергосберегающих технологий производства работ, передовых методов организации строительства.
При этом вопросы энергосбережения должны быть выделены в самостоятельный раздел.
В основную расчетную часть должны быть включены вопросы технологии и организации строительного производства, технической эксплуатации системы, комплекса или отдельного сооружения. При разработке технологии производства работ недопустимо применение устаревших машин, механизмов и технологий.
Неотъемлемой частью проекта должны быть вопросы охраны окружающей среды. Здесь необходимо выполнить оценку воздействия проектных решений на природные комплексы (ОВОС) и на основе этого запроектировать природоохранные мероприятия и технологии. В этом разделе следует также избегать формального подхода, а предлагать конкретные решения.
Вопросы охраны труда выделяются в самостоятельный раздел. Задание на разработку данного раздела студент получает на соответствующей кафедре академии. Там же ему назначается консультант.
В конце основной расчетной части должны быть приведены сметно-финансовые расчеты и экономическая эффективность проектных решений. Сметно-финансовые расчеты должны включать:
– сводный сметно-финансовый расчет;
– объектную и локальную сметы;
– расчет технико-экономических показателей.
Заключение является завершающим звеном основной расчетной части. В нем даются обобщенные выводы по результатам проектирования и указывается, достигнута ли цель, поставленная в проекте, решены ли намеченные задачи. Объем заключения должен быть 1,5…2 страницы.
В конце записки приводится список литературы в порядке упоминания в тексте, включающий Директивные документы и Государственные программы, нормативные правовые акты, научные издания, справочную литературу, рекомендации производству, учебники и учебные пособия. Ссылка на методические указания допускается в исключительных случаях. Количество литературных источников должно быть достаточным для обоснования всех проектных решений и определяется руководителем, но не менее 35…40 наименований. Образец составления списка литературы представлен в приложении 4.
4.12 Графическая часть дипломного проекта состоит из чертежей и иллюстрационного материала, выполненного на ватмане, синьках, миллиметровке и на другом материале. Главной задачей при выполнении чертежей является умение дипломника продемонстрировать свои способности в проектировании мелиоративных систем и сооружений, использовать типовые конструкции и устройства с привязкой их к конкретным условиям. Другая, не менее важная задача заключается во внесении дипломником усовершенствований в типовые сооружения, используя достижения науки и техники. Допускается собственная разработка конструкций, устройств сооружений и систем, которые также выносятся на защиту дипломного проекта. На защите в ГКК дипломник должен четко разграничить те чертежи, которые являются типовыми (стандартными), и те, в которые он внес новшества и разработал самостоятельно. Поэтому готовые проектные решения (из производственного рабочего проекта) на защите дипломного проекта можно представлять на синьках, а чертежи с элементами новинок – на ватмане. В таком случае может быть вывешено до 10 и более чертежей, включая до 5…6 с предложенными дипломником усовершенствованиями.
При выполнении пояснительной записки и чертежей следует руководствоваться действующими государственными документами, стандартами, ТКП, за что несет ответственность, прежде всего дипломник как автор проекта, а потом его руководитель, контролирующий и направляющий работу над дипломным проектом.
5. Организация дипломного проектирования
5.1 До начала дипломного проектирования кафедра должна обеспечить дипломников рабочими местами в аудитории, при этом следует использовать собственную учебную площадь, а также методические кабинеты.
5.2 В недельный срок каждый руководитель определяет потребность в дополнительных консультантах и согласовывает вопросы, по которым будут проводиться консультации. Это соглашение должно быть зафиксировано в задании на проектирование и подтверждено подписью консультанта.
5.3 График консультаций и проведения аттестаций дипломников, который составляется также в недельный срок, необходимо соблюдать неукоснительно.
5.4 На выполненный дипломный проект руководитель готовит письменный отзыв. В отзыве руководителя должны быть отражены:
– актуальность темы проекта;
– соответствие тематики проектирования требованиям квалификационной характеристики специалиста;
– личный вклад дипломника в разработку проекта;
– наличие элементов научных исследований;
– степень внедрения разработанных инженерных решений в производство;
– наличие в проекте вопросов энерго- и ресурсосбережения;
– уровень готовности дипломника к самостоятельной работе и возможность присвоения ему соответствующей квалификации.
Оценка проекта в отзыве не указывается.
5.5 На подготовленный дипломный проект должна быть получена рецензия, в которой необходимо отразить:
– актуальность темы;
– соответствие содержания записки заданию;
– использование нормативной, справочной и научной литературы для проектирования;
– наличие в проекте нестандартных технических решений, личных авторских разработок, результатов НИР;
– соблюдение действующих нормативно-правовых актов, стандартов, ГОСТов, касающихся методики расчетов и по оформлению расчетно-пояснительной записки и чертежей;
– возможность внедрения проекта или его частей в производство.
В рецензии должны быть отмечены и недостатки проекта. Они должны носить объективный характер, исключая формальный подход.
Рецензент дает заключение о соответствии дипломного проекта специальности, а также возможности присвоения автору соответствующей квалификации. Рецензент оценивает проект по десятибалльной шкале.
6. оформлениЕ расчетно-пояснительной
записки проекта
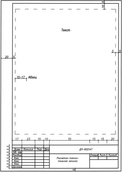
6.1 Расчетно-пояснительную записку выполняют на одной стороне листа белой бумаги формата А4 на компьютере шрифтом основного текста 13 – 14 либо от руки шариковой ручкой с фиолетовыми (синими) чернилами. При компьютерном наборе межстрочный интервал – одинарный. Поля: сверху 2 см, слева 3 см, справа 1 см, снизу 2 см.
По контуру листа: сверху, справа и снизу 5 мм, слева 20 мм вычерчивается рамка в соответствии с приложениями 5 и 6.
6.2 Все страницы текста, включая схемы и чертежи, нумеруют. Номера страниц проставляют в основных надписях. Общая нумерация страниц начинается с титульного листа. При этом номер страницы не ставится на титульном листе и задании на проектирование, но подразумевается.
6.3 Текст основной части расчетно-пояснительной записки делится на разделы (главы) и подразделы, которые нумеруют арабскими цифрами и записывают с абзацного отступа, который должен составлять 3 буквенных знака от левого края текста.
Разделы должны иметь порядковую нумерацию в пределах всего текста основной части пояснительной записки.
Номер подраздела включает номера раздела и подраздела, разделенные точкой.
Пример: 1.1; 1.2; 1.3
и т.д. или 1.1.1; 1.1.2; 1.2.1, 1.2.2
и т.д.
Количество номеров в нумерации элементов расчетно-пояснитель-ной записки не должно превышать трех. После номера раздела и подраздела точку не ставят, а отделяют от текста пробелом. При делении текста на разделы и подразделы необходимо, чтобы каждый раздел (подраздел) содержал законченную информацию с выводами и составлял его отдельное положение.
6.4 Название раздела (главы) печатается прописными буквами, а подразделов – строчными с заглавной прописной буквой. В обоих случаях используют полужирный шрифт.
Пробел между текстом и заголовками разделов (глав), пунктов принимается в 1 строку. Написание заголовков цветными буквами и их подчеркивание не допускается.
Заголовки должны четко и кратко отражать содержание соответствующих разделов, подразделов.
В заголовках не допускаются сокращения (за исключением общепризнанных аббревиатур, единиц величин и сокращений, входящих в условные обозначения продукции), а также перенос слов на следующую строку, применение римских цифр, математических знаков и греческих букв.
Если заголовок состоит из двух предложений, то их разделяют точкой.
6.5 Если в расчетно-пояснительной записке приведены перечисления, то их выделяют в тексте абзацным отступом. Перед каждой позицией перечисления ставят дефис.
Если необходимо в тексте сослаться на одно или несколько перечислений, то перед каждой позицией вместо дефиса ставят строчную букву в алфавитном порядке, а после нее – скобку.
Для дальнейшей детализации перечислений используют арабские цифры, после которых ставят скобку, приводя их со смещением вправо на два знака относительно перечислений, обозначенных буквами.
После каждого перечисления, кроме последнего, ставят точку с запятой.
6.6 Таблицы применяют для лучшей наглядности и удобства сравнения числовых значений показателей (параметров, размеров и т.п.).
Табличную форму целесообразно применять, если различные показатели могут быть сгруппированы по какому-либо общему признаку (например, физико-химические показатели), а каждый из показателей может иметь два (или более) значений.
Таблица оформляется в соответствии с рис. 6.1.

Рис. 6.1– Пример оформления таблицы.
Слева над таблицей размещают слово «Таблица» после него приводят номер таблицы и ставят точку, затем дефис и после него название таблицы. Переносы слов в наименовании таблицы не допускаются.
Таблицы следует нумеровать арабскими цифрами сквозной нумерацией в пределах раздела (главы). В этом случае номер таблицы состоит из номера раздела и порядкового номера таблицы, разделенных точкой.
Пример: Таблица 2.1
. –
На все таблицы дипломного проекта должны быть приведены ссылки в тексте. При этом пишут сокращенное слово «табл.», а затем указывают ее номер.
Заголовки граф и строк таблицы следует писать с прописной буквы, а подзаголовки граф – со строчной буквы, если они составляют одно предложение с заголовком, или с прописной буквы, если они имеют самостоятельное значение. В конце заголовков и подзаголовков граф и строк точки не ставят. Заголовки и подзаголовки граф указывают в единственном числе и оформляют уменьшенным размером шриф-та.
Заголовки граф, как правило, записывают параллельно строкам таблицы. При необходимости допускается располагать заголовки граф перпендикулярно строкам таблицы.
Таблицу в зависимости от ее размера помещают под текстом, в котором впервые дана на нее ссылка, или на следующей странице, а при необходимости – в приложении.
Таблицы, как правило, следует располагать на странице вертикально. Допускается помещать таблицы вдоль длинной стороны листа (горизонтально). При этом головка таблицы должна размещаться в левой части страницы, а обозначение и номер страницы проставляют в установленном порядке.
Если строки таблицы выходят за формат страницы, то таблицу делят на части и переносят на следующую страницу, при этом в каждой части таблицы помещают ее головку и боковик. Если за формат страницы выходят графы таблицы (головка), таблицу делят на части и помещают одну часть под другой или рядом.
При делении таблицы на части слово «Таблица», ее номер (обозначение) и наименование помещают только над первой частью таблицы, а над другими частями приводят слова «Продолжение таблицы» или «Окончание таблицы» с указанием номера (обозначения) таблицы в соответствии с рисунком 6.2.
Таблица ____
В миллиметрах
| Номинальный диаметр резьбы болта, винта, шпильки
|
Внутренний диаметр шайбы, d
|
Толщина шайбы
|
| легкой
|
нормальной
|
тяжелой
|
| а
|
в
|
а
|
в
|
а
|
в
|
| 2,0
|
2,1
|
0,5
|
0,8
|
0,5
|
0,5
|
–
|
–
|
| 3,0
|
3,1
|
0,8
|
1,0
|
0,8
|
0,8
|
1,0
|
1,2
|
Окончание таблицы ____
| Номинальный диаметр резьбы болта, винта, шпильки
|
Внутренний диаметр шайбы, d
|
Толщина шайбы
|
| легкой
|
нормальной
|
тяжелой
|
| а
|
в
|
а
|
в
|
а
|
в
|
| 4,0
|
4,1
|
4,0
|
1,2
|
1,0
|
1,2
|
1,2
|
1,6
|
| 42,0
|
42,5
|
–
|
–
|
9,0
|
9,0
|
–
|
–
|
| 45,0
|
45,0
|
–
|
–
|
9,5
|
9,5
|
–
|
–
|
Рис. 6.2– Пример оформления таблицы при разрыве.
Если в конце страницы таблица прерывается и ее продолжение будет на следующей странице, то в первой части таблицы нижнюю горизонтальную черту, ограничивающую таблицу, не проводят, за исключением линий, несущих смысловое значение.
При делении таблицы на части допускается головку (при ее большом размере) во второй части (и последующих частях) не повторять, заменяя ее соответствующими номерами граф, если это не затруднит понимание содержания таблицы. При этом графы нумеруют арабскими цифрами.
6.7 Графический материал (рисунок, расчетную схему, диаграмму и т.п.) помещают в пояснительной записке для иллюстрации отдельных свойств или характеристик объекта, а также для пояснения текста с целью его лучшего понимания.
Графический материал располагают непосредственно после текста, в котором о нем упоминается впервые, или на следующей странице, а при необходимости – в приложении.
Рисунки, схемы, диаграммы и т. п., помещаемые в записке дипломного проекта, должны отвечать требованиям соответствующих стандартов. Любой графический материал (чертеж, схема, диаграмма, рисунок и т.п.) обозначают словом «Рисунок».
Графический материал нумеруют арабскими цифрами, как правило, сквозной нумерацией, приводя эти номера после сокращенного слова «Рис.». Если рисунок один, то он обозначается «Рис. 1
».
Допускается нумерация графического материала в пределах раздела. В этом случае номер рисунка состоит из номера раздела и порядкового номера рисунка, разделенных точкой.
Пример: Рис. 2.1, Рис. 2.2
и т. д.
Графический материал каждого приложения обозначают отдельной нумерацией арабскими цифрами, добавляя перед каждым номером обозначение приложения и разделяя их точкой.
Пример: Рис. А.2
(рисунок 2 приложения А).
Сокращенное слово «Рис.» и его номер приводят под графическим материалом и оформляют полужирным уменьшенным размером шрифта. Далее должно быть приведено его тематическое наименование, отделенное тире.
Пример: Рис. 1 – Расчетная схема.
Перенос слов в наименовании графического материала не допускается.
При необходимости под графическим материалом помещают также поясняющие данные, которые оформляются уменьшенным размером шрифта и помещают после слова «Рис…» и наименования графического материала.
Графический материал и поясняющие данные к нему должны располагаться на одной странице.
На каждый графический материал дают ссылку в тексте пояснительной записки.
Пример: … показан на рис. 3. 1
.
Графики (аналитические и экспериментальные) выполняются на белой бумаге формата А4 или специальной диаграммной бумаге (миллиметровка, полулогарифмическая и др.) с соблюдением размеров полей. Изображение делается карандашом или гелевой ручкой.
Оси координат размечаются равномерной оцифровкой и штрихами, для них указываются символы условных обозначений и размерность величин. Масштабы изображения специально не выписываются. Они известны из оцифровки делений координатных сетей. Для разметки осей используют масштабы, кратные числам 1, 2, 5, 10 (0,01; 0,20; 5,0; 10; 25 и т. п.).
6.8 Как правило, в тексте расчетно-пояснительной записки могут быть приведены формулы, которые нумеруют сквозной нумерацией арабскими цифрами. Номер формулы записывают в круглых скобках на одном уровне с формулой справа от нее. Если в тексте приведена одна формула, ее обозначают (1)
.
Допускается нумерация формул в пределах раздела. В этом случае номер формулы состоит из номера раздела и порядкового номера формулы, разделенных точкой.
Пример: (5.1)
.
Совмещение в формулах буквенных обозначений латинского и греческого алфавитов с буквами русского алфавита не допускается.
Пояснения символов и числовых коэффициентов, входящих в формулу, приводят непосредственно под формулой. Пояснение каждого символа приводят с новой строки в той последовательности, в которой эти символы приведены в формуле. Первую строку пояснения начинают со слова «где» (без двоеточия).
Пример: Плотность каждого образца
r, кг/м3
, вычисляют по формуле
(1)
где m – масса образца, кг;
V – объем образца, м3
.
Формулы, следующие одна за другой и не разделенные текстом, отделяют запятой.
Пример:
(2)
(3)
Переносить формулы на следующую строку допускается только на знаках выполняемых математических операций, причем знак в начале следующей строки повторяют. При переносе формулы на знаке, символизирующем операцию умножения, применяют символ «×
».
При ссылке в тексте на формулы их порядковые номера (обозначения) приводят в скобках.
Пример: … по формуле (1
)
В проектах формулы допускается записывать вручную, чертежным шрифтом высотой не менее 3,0 мм.
Порядок изложения математических уравнений такой же, как и формул.
Обязательным является ссылка на литературный источник, откуда заимствована формула. Если это не статья, а крупная работа (монография), строительные нормы и технические условия, то помимо номера источника по списку литературы указывается страница или пункт. Например: ... расчет выполнен по формуле А.И. Ивицкого ([2], п. 6 – 8, с. 29)
. Число в квадратных скобках обозначает номер по списку литературы.
6.9 Расчеты должны приводиться так, чтобы их можно было легко проверить по всем промежуточным и окончательным результатам.
Расчет начинается со словесного, математического и графического описания физической модели. Далее приводятся исходные данные к расчету. Все промежуточные расчеты обосновываются конкретными ссылками на справочные материалы (картограммы, таблицы, графики).
6.10 По объему расчеты могут быть разовыми и с повторностью. Разовый расчет дает единственный результат по схеме: задан аргумент (или аргументы), найдено искомое значение функции. Такой расчет приводится в текстовом изложении. Расчеты с повторностью приводят к многозначным результатам, текстовое изложение которых занимает много места и не имеет необходимой наглядности. Такие расчеты целесообразно вести в табличной форме, сохраняя общую структуру описания. Обязательно выполнение примера подробного расчета для одного случая, а остальные приводятся в итоговой сводной таблице результатов всех расчетов. При необходимости остальные подробные расчеты приводятся в приложениях.
Результаты расчета обязательно анализируются; на этой основе делаются краткие содержательные выводы. При необходимости результаты расчетов представляются в графической форме.
7. ОФОРМЛЕНИЕ ГРАФИЧЕСКОГО МАТЕРИАЛА
7.1 В состав дипломного проекта могут входить схема запроектированных мероприятий, генплан, технологические карты, чертежи гидротехнических сооружений, их элементов, деталей и конструкций, продольных профилей водотоков, трубопроводов или других линейно-протяженных сооружений и графики. Количество графического материала и его содержание зависят от характера задач, которые решаются в дипломном проекте и определяются руководителем проекта.
7.2 Генплан является основным чертежом проекта. Основой для разработки генплана является топографическая съемка территории с условными изображениями существующих зданий и сооружений, элементов существующих мелиоративных систем, а также границ административного деления и землепользования. На эту основу наносятся проектируемые (реконструируемые) элементы мелиоративной системы, сооружения и другие проектные решения, а также границы пусковых частей комплекса. Решения генерального плана должны дать общее достаточно полное представление о технологической схеме комплекса и очередности ввода в эксплуатацию отдельных объектов. Данные топографической съемки на чертеже генплана должны быть достаточными для осуществления проектных решений.
7.3 На генеральном плане должна быть размещена обзорная карта (ситуационный план) района строительства с привязкой к крупным ориентирам (городам, районным центрам, дорогам и др.). Обзорная карта очерчивается прямоугольником, внутри которого делается надпись «Ситуационный план». На генеральном плане должны быть приведены условные обозначения, основные технико-экономические показатели и другие необходимые данные. Генплан мелиоративной системы выполняется в масштабе М 1:2000.
7.4 Карты, на которых изображены природные условия: геологические, гидрогеологические, геоботанические, почвенные, культуртехнические и другие данные, являющиеся основой для разработки проектно-сметной документации для строительства объектов мелиоративного и водохозяйственного назначения оформляются в виде приложений и помещаются в расчетно-пояснительной записке.
7.5 Продольные профили, линейные сооружения должны выполняться на листах формата, установленного ГОСТ. Форматы чертежей и масштабы некоторых профилей линейных сооружений, возводимых в простых условиях, рекомендуется принимать по табл. 7.1 (для рабочих проектов).
Таблица 7.1– Форматы чертежей и горизонтальные масштабы профилей
линейных сооружений, проектируемых в простых природных условиях
| № п/п
|
Сооружения
|
Формат
|
Масштаб для
|
| продольного профиля
|
поперечн. проф. при длине поперечника до 50 м
|
| 1
|
Водоприемники
|
А3 ´ 4
|
1:10000
|
1:100
|
| 2
|
Открытые каналы (коллекторы)
|
А3 ´ 4
|
1:10000
|
1:100
|
| 3
|
Закрытые коллекторы (дрены)
|
А3 ´ 5
|
1:2000
|
1:100
|
| 4
|
Трубопроводы
|
А3 ´ 4
|
1:2000
|
1:100
|
| 5
|
Земляная плотина
|
А3 ´ 3
|
1:500
|
1:100
|
| 6
|
Дамбы
|
А3 ´ 3
|
1:2000
|
1:100
|
| 7
|
Автомобильные дороги
|
А3 ´ 5
|
1:5000
|
1:100
|
Примечание. Вертикальный масштаб для всех сооружений принимается 1 : 100.
Порядок выполнения и требования к выполнению чертежей сооружений и их элементов изложены в руководствах по строительному черчению.
7.6 Чертежи выполняются на листах чертежной бумаги форматами, регламентируемыми ГОСТами и приведенными в табл. 7.2.
Если при выполнении чертежей нет возможности использовать основные форматы, применяют дополнительные форматы. Они образуются путем увеличения коротких сторон основного формата на величину, кратную их размерам.
Таблица 7.2– Основные форматы чертежей
| Обозначение
формата
|
А4
|
А3
|
А2
|
А1
|
А0
|
Размеры сторон формата, мм
|
210 ´ 297
|
297 ´ 420
|
420 ´ 594
|
594 ´ 841
|
841 ´ 1189
|
7.7 Чертежи на листе принятого формата оформляют рамкой. Расстояние от границ формата до рамки сверху, справа и снизу принимается равным 5 мм, слева – 20 мм (для брошюровки чертежа). Внутри рамки в правом нижнем углу помещается основная надпись (штамп). Форма надписи для строительных чертежей приведена в приложении 7.
Чертежи должны быть выразительными и легко читаемыми, для этого они оформляются линиями различной толщины и начертания. Виды линий приведены в приложении 8.
Наименования, заголовки, обозначения в основной надписи (штампе) выполняются без наклона. Высота букв и цифр на чертежах, выполненных тушью, должна быть не менее 2,5 мм, а выполненных в карандаше – не менее 3,5 мм.
7.8 Содержание текста надписей на чертежах должно быть кратким и точным. В надписях следует избегать сокращений слов, за исключением общепринятых. Текст надписи на поле чертежа следует располагать параллельно основной надписи чертежа (штампа).
Около изображений на полках линий-выносок наносят только краткие надписи, относящиеся непосредственно к изображению предмета, если они не внесены в таблицу. Линию-выноску, пересекающую контур изображения и не отводимую от какой-либо линии, заканчивают точкой. Линию-выноску, отводимую от линий видимого и невидимого контуров, а также от линий, обозначающих поверхности, заканчивают стрелкой. На конце линии-выноски, отводимой от всех других линий, не должно быть ни точки, ни стрелки. Линии-выноски не должны: пересекаться между собой, быть параллельными линиям штриховки, пересекать по возможности размерные линии и элементы изображения, к которым не относится помещенная на полке надпись. Надписи, относящиеся непосредственно к изображению, могут содержать не более двух строк, располагаемых над полкой линии-выноски и под ней.
7.9 Текстовую часть, помещенную на поле чертежа, располагают над основной надписью (штампом). При выполнении чертежа на двух и более листах текстовую часть помещают только на первом листе независимо от того, на каких листах находятся изображения, к которым относится указание, приведенное в текстовой части. Надписи, относящиеся к отдельным элементам предмета и наносимые на полках линий-выносок, помещают на тех листах чертежа, на которых они являются наиболее необходимыми для удобства чтения чертежа.
7.10 Масштаб изображения на чертеже, отличающийся от указанного в основной надписи, указывают непосредственно под надписью, относящейся к изображению, например: .
7.11 Таблицы, помещенные на чертеже, нумеруют в пределах чертежа при наличии ссылок на них в технических требованиях. При этом над таблицей справа ставят слова «Таблица» с порядковым номером (без знака №). Если на чертеже только одна таблица, то ее не нумеруют и слово «Таблица» не пишут.
7.12 Для нанесения на чертеже размеров следует применять выносные и размерные линии. Размерные линии с обоих концов ограничивают стрелками, если выполняются машиностроительные чертежи. Размер стрелок зависит от толщины линий видимого контура и должен быть одинаковым для всех размеров данного чертежа. Выносные линии должны выходить за концы стрелок размерной линии на 1...5 мм.
7.13 На строительных чертежах (генплан, план, гидротехнические сооружения, их детали, армирование и т. д.) вместо стрелок применяют засечки в виде короткой (2...4 мм) сплошной основной линии, проводимой с наклоном вправо под углом 45° к размерной линии. Засечки наносят на пересечении размерных и выносных линий. При этом размерные линии должны выступать за крайние выносные линии на 1...4 мм.
Расстояние размерной линии от контура изображения, осевой, выносной и других линий, а также расстояние между параллельными размерными линиями должны быть в пределах 6...10 мм, а для общих видов – не менее 10 мм от линии наружного контура. Размерные числа должны наноситься над размерными линиями возможно ближе к их середине.
7.14 Отметки высотного положения (уровней) сооружений и конструкций, бьефов необходимо обозначать стрелкой в виде прямого угла, опирающегося своей вершиной на выносную линию, с короткими сторонами (2...4 мм), проведенными основными линиями под углом 45° к выносной линии уровня. Вертикальный отрезок и горизонтальную полку выполняют тонкими линиями. На плане отметки наносят в прямоугольнике, например, 132,75 , а на разрезе 132,75 .
7.15 Генеральный план, карты, а также вспомогательный материал на чертежах (таблицы, схемы, графики и т. д.) выполняются тушью. Чертежи сооружений, конструкций, деталей, продольных профилей линейных сооружений выполняются карандашом. Проектируемая мелиоративная сеть и сооружения на ней, а также мероприятия по реконструкции, агромелиорация и др. наносятся на план красной тушью, а существующие – черной. Не допускается раскрашивание чертежей, если это не предусмотрено стандартами.
Графики (аналитические и экспериментальные) выполняются на белой бумаге формата А4 или специальной диаграммной бумаге (миллиметровка, полулогарифмическая и др. клетчатки) с соблюдением размеров полей. На белой бумаге производят разграфку сетки по всему полю или полосой в окрестностях линии графика и по осям. Изображение делается черной тушью или пастой.
Оси координат размечаются равномерной оцифровкой и штрихами, для них указываются символы условных обозначений и размерность величин. Масштабы изображения специально не выписываются. Они известны из оцифровки делений координатных сетей. Для разметки осей используют масштабы, кратные числам 1, 2, 5, 10 (0,01; 0,20; 5,0; 10; 25 и т.п.). Выбор масштабов производится с учетом следующих положений: хорда кривой должна иметь наклон 45...60° к оси абсцисс (исключение составляют графики колебательных функций), наименьшая цена деления на оси не должна быть меньше средней погрешности аргумента и функции.
На графике не должно быть свободных полей в координатном поле. Для этого следует перенести начало координат так, чтобы исключить появление таких полей слева и снизу. Верх оси ординат и правый конец оси абсцисс не должны выступать за крайние значения функции и аргумента более чем на 1,5 см. У этих концевых отрезков пишутся символические обозначения величин и их размерности.
Не допускается делать надписи координат точек линий у осей координат, имеющих разграфленную сетку.
Если на рисунке приведено несколько графиков, например, для нескольких экспериментов, то точки, принадлежащие к различным условиям, обозначаются разными знаками (окружность, круг, квадрат, треугольник, крестик и т. п.). На свободном участке координатного поля эти знаки дублируются и нумеруются арабскими цифрами. Расшифровка условий производится ниже подрисуночной надписи путем пояснения их содержания для каждой цифры. Несколько аналитических функций или линий эмпирических графиков в одном координатном поле обозначаются различными линиями (сплошная, пунктирная, штрихпунктирная) и нумеруются арабскими цифрами или обозначаются русскими строчными буквами (а, б, в...). В подрисуночной подписи раскрывается содержание этих обозначений.
На генеральных планах, планах, картах и других чертежах проектной документации, разрабатываемых на топографической подоснове, условные графические изображения существующих зданий и сооружений, а также природной ситуации (рельеф, растительность и т.п.), административных и других границ, территории и других знаков должны выполняться в соответствии с приложением 9.
Описание знаков приложения 9: 1 – изрытые места; 2 – торфоразработки; 3 – ЛЭП низкого напряжения на деревянных и металлических столбах; 4 – воздушные проводные линии связи и технических средств управления; 5 – железные дороги; 6 – то же, строящиеся; 7 – шоссе (Щ – материал покрытия); 8 – профилированные и улучшенные грунтовые дороги (Г – материал добавок); 9 – грунтовая дорога проселочная; 10 – грунтовая дорога полевая и лесная; 11 – тропа пешеходная; 12 – оборудованные пляжи; 13 – поросль леса (3 – средняя высота, 0,02 – толщина стволов); 14 – границы землепользователей и отводов; 15 – ограждение проволочное «электропастух»; 16 – ограждения другие (изгороди, плетни, трельяжи).
При оформлении плана горизонтали проводят коричневым цветом, реки, ручьи, озера и другие естественные водоемы – бледно-голубым. Полосы отчуждения дорог, выражаемые в масштабе, показывают зеленым цветом. Границы мелиорации земель, землепользований, участков выполняют черным цветом, осушения – красным, севооборотных участков – коричневым, контуры увлажнения (дождевания) – голубым.
7.16 Особенностью мелиоративных планов является большое количество водотоков, а также различных гидротехнических сооружений и дорог.
Всем водотокам присваивается определенный номер или индекс. Четные порядковые номера присваиваются водотокам (трубопроводам), впадающим в водотоки следующего (нижнего) порядка с правой стороны, а нечетные – с левой. Это правило должно выполняться и в том случае, если в принимающие водотоки впадает регулирующая сеть только с одной стороны.
Регулирующая сеть на водосборной площади относительно устья водотока, в который эта сеть впадает, называется системой. В пределах системы регулирующие элементы имеют самостоятельную нумерацию. Номер (без знака №) ставится над дреной (собирателем) в ее истоке, а под ней показывается длина. Если длина регулирующей сети в пределах системы одинаковая, достаточно длину поставить у первого водотока и у последнего. При разных длинах они проставляются под каждой дреной или другим регулирующим элементом. На каждой системе показывается ее площадь. Для этого в удобном месте вычерчивают круг диаметром 12...14 мм. В нем в числителе пишут номер системы, а в знаменателе – ее площадь в гектарах.
Аналогично регулирующей сети нумеруется проводящая (коллекторы или транспортирующие собиратели) и трубопроводы по каждому магистральному каналу или главному коллектору (трубопроводу). Однако их длина на плане не показывается, так как по ним строятся продольные профили. Если построение продольных профилей проводится с помощью ЭВМ, допускается сквозная нумерация коллекторов (трубопроводов) по всему объекту или отдельной его части (пусковому комплексу).
Перед номером коллекторов-увлажнителей проставляется буква «У», например – У-3
.
7.17 Магистральные каналы первого порядка обозначаются по первой букве названия водоприемника (водоисточника), куда он впадает. Рядом с ней ставят порядковый номер. Например, магистральный канал, впадающий в р. Птичь вторым с левой стороны, получает название П-3. Магистральные каналы второго порядка имеют индекс канала первого порядка и свой номер в зависимости от стороны впадения (например, П-3-4).
7.18 Оградительная сеть подчиняется общему правилу индексации, а ее назначение описывается в расчетно-пояснительной записке. Дополнительных знаков типа НК, ЛК и др. не ставят.
Обязательным является ссылка на литературный источник, откуда заимствована формула. Если это не статья, а крупная работа (монография), строительные нормы и технические условия, то помимо номера источника по списку литературы указывается страница или пункт. Например: ...расчет выполнен по формуле А. И. Ивицкого ([2], п. 6 – 8, с. 29). Число в квадратных скобках обозначает номер по списку литературы.
Расчеты должны приводиться так, чтобы их можно было легко проверить по всем промежуточным и окончательным результатам.
Расчет начинается со словесного, математического и графического описания физической модели. Далее приводятся исходные данные к расчету. Все промежуточные расчеты обосновываются конкретными ссылками на справочные материалы (картограммы, таблицы, графики).
По объему расчеты могут быть разовыми и с повторностью. Разовый расчет дает единственный результат по схеме: задан аргумент (или аргументы), найдено искомое значение функции. Такой расчет приводится в текстовом изложении. Расчеты с повторностью приводят к многозначным результатам, текстовое изложение которых занимает много места и не имеет необходимой наглядности. Такие расчеты целесообразно вести в табличной форме, сохраняя общую структуру описания согласно п. 6.6. Обязательно выполнение примера подробного расчета для одного случая, а остальные приводятся в итоговой сводной таблице результатов всех расчетов. При необходимости остальные подробные расчеты приводятся в приложениях.
Результаты расчета обязательно анализируются; на этой основе делаются краткие содержательные выводы. При необходимости результаты расчетов представляются в графической форме.
Условные графические обозначения сооружений мелиоративного и водохозяйственного назначения приведены в приложении 10.
Обозначения знаков приложения 10: 1 – магистральный канал проектируемый; 2 – то же, реконструируемый; 3 – то же, существующий; 4 – то же, ликвидируемый; 5 – распределительный канал; 6 – ороситель; 7 – временные оросители; 8 – лотковый канал; 9 – главный закрытый коллектор; 10 – открытая проводящая сеть; 11 – закрытая проводящая сеть (коллекторы); 12 – открытая регулирующая сеть; 13 –закрытая регулирующая сеть; 14 – временные дрены; 15 – ложбина стока; 16 – срезка бугра; 17 – засыпка понижения; 18 – полезащитная лесная полоса; 19 – дамбы обвалования, выражаемые не в масштабе; 20 – дамбы обвалования, выражаемые в масштабе; 21 – глубокое рыхление; 22 – выравнивание поверхности планировщиком; 23 – фильтрующая засыпка дренажных траншей; 24 – граница мелиорации участка; 25 – граница осушения; 26 – граница севооборотных участков; 27 – граница увлажнения (дождевания); 28 – границы участков, землепользований.
7.19 Сооружения на мелиоративной сети (мосты, шлюзы-регуляторы, трубы-регуляторы, смотровые колодцы и т. д.) должны иметь сквозную нумерацию по всему объекту. Нумерация производится произвольно, начиная, как правило, с сооружений на крупных водотоках. Около каждого сооружения проставляются общепринятые обозначения, поясняющие их назначение, и номер (например, КСО-5 – колодец смотровой открытый № 5). Дорогам добавляется буква «Д», например, Д-3 (дорога № 3).
Условные графические обозначения сооружений на сети мелиоративных систем приведены в приложении 11.
Обозначения знаков приложения 11: 1 – водовыпуск в оросительный канал существующий; 2 – то же, проектируемый; 3 – то же, реконструируемый; 4 – то же, ликвидируемый; 5 – водовыпуск из оросителя в чек (из чека в чек); 6 – водовыпуск в закрытую сеть; 7 – водовыпуск во временный ороситель; 8 – водовыпуск в сбросной канал; 9 – - перегораживающее сооружение: РТ – регулятор трубчатый, ШР – шлюз-регулятор и т.д.; 10 – перепад: с – ступенчатый; к – консольный; 11 – быстроток; 12 – ливнеспуск; 13 – акведук на канале; 14 – акведук через канал; 15 – дюкер на канале; 16 – дюкер под каналом; 17 – труба (труба-переезд) на канале; 18 – труба под каналом; 19 – мост: п – пешеходный; а – автодорожный; ж – железнодорожный; 20 – аварийный или концевой сброс; 21 – узел подключения дождевальной машины «Фрегат»; 22 – колодец: о – открытый, р – распределительный, ф – фильтрующий, пс – потайной смотровой и т.д.; 23 – гидрант: д – с дождевальным аппаратом, о – опорожнительный; 24 – воздушный клапан (вантуз); 25 – упоры на поворотах трубопроводов; 26 – впуск в коллектор; 27 – устье коллектора; 28 – насосная станция: с – стационарная, п – передвижная, пл – плавучая, в – для водоснабжения; 29 – гидроузел существующий; 30 – гидроузел проектируемый; 31 – гидроузел реконструируемый; 32 – водохранилище, пруд; 33 – водозабор бесплотинный; 34 – водозабор приплотинный; 35 – судоходное сооружение; 36 – воронка водосбросная; 37 – одерновка; 38 – скотоперегон через канал; 39 – знак для обозначения отметок.
7.20 По водоприемникам, магистральным каналам, главным коллекторам и трубопроводам разбивается пикетаж. Все другие водотоки, сооружения должны иметь плановую привязку.
Графические обозначения почв по механическому составу и строительных материалов в конструкциях гидротехнических сооружений приведены в приложениях 12, 13 и 14.
Единицы измерения физических величин согласно международной системе единиц (СИ) и их условные обозначения представлены в приложениях 15 и 16.
8. Приложения
8.1 Приложения являются продолжением материалов дипломного проекта и нумеруются как последующие страницы. В приложениях помещаются второстепенные или узкоспециальные материалы словесного описания, таблицы и графики, без которых можно обойтись в основной части.
8.2 При наличии нескольких приложений они нумеруются прописными буквами русского алфавита или цифрами. В правом верхнем углу помещается слово «Приложение» (без кавычек) и указывается его наименование. Пример: …Приложение А, приложение 1
.
8.3 Каждое приложение снабжают заголовком, раскрывающим его содержание. Если одно приложение (например, в виде таблицы) помещено на нескольких листах, то заголовок пишется на первом листе, а на последующих указывается продолжение таблицы (номер) или приложения (номер).
Приложение 1
Образец титульного листа
МИНИСТЕРСТВО СЕЛЬСКОГО ХОЗЯЙСТВА
И ПРОДОВОЛЬСТВИЯ РЕСПУБЛИКИ БЕЛАРУСЬ
• • • • • • • • • • •
УЧРЕЖДЕНИЕ ОБРАЗОВАНИЯ
«БЕЛОРУССКАЯ ГОСУДАРСТВЕННАЯ
СЕЛЬСКОХОЗЯЙСТВЕННАЯ АКАДЕМИЯ»
Мелиоративно-строительный факультет
Кафедра __________________________________________________________
Допустить к защите:
Зав. кафедрой __________________________
«____» _________________________ 200__ г.
РАСЧЕТНО-ПОЯСНИТЕЛЬНАЯ ЗАПИСКА
К ДИПЛОМНОМУ ПРОЕКТУ
на тему _____________________________________________________________________
_____________________________________________________________________
_____________________________________________________________________
_____________________________________________________________________
Дипломник ____________________________________
Руководитель ____________________________________
Консультанты: _____________________________________
по основным разделам _____________________________________
по охране труда _____________________________________
по экономическим вопросам _____________________________________
нормоконтроль _____________________________________
Горки 200 _
Приложение 2
Образец задания на дипломное проектирование
МИНИСТЕРСТВО СЕЛЬСКОГО ХОЗЯЙСТВА
И ПРОДОВОЛЬСТВИЯ РЕСПУБЛИКИ БЕЛАРУСЬ
Учреждение образования
«Белорусская государственная
сельскохозяйственная академия»
Мелиоративно-строительный факультет
Специальность 1-74 05 01 «Мелиорация и водное хозяйство»
Кафедра _____________________________ «Утверждаю»
_____________________________________ Зав. кафедрой
«____» ______________ 200 _ г.
З А Д А Н И Е
на дипломное проектирование
студенту ____________________________________________________________________
1. Тема проекта ______________________________________________________________
____________________________________________________________________________
____________________________________________________________________________
____________________________________________________________________________
(утверждена приказом по академии от «_____» ____________________ 200 _ г. № ____ )
2. Срок сдачи студентом законченного проекта ___________________________________
3. Исходные данные к проекту _________________________________________________
____________________________________________________________________________
____________________________________________________________________________
____________________________________________________________________________
4. Краткое содержание расчетно-пояснительной записки (перечень подлежащих разработке вопросов) ______________________________________________________________
____________________________________________________________________________
____________________________________________________________________________
____________________________________________________________________________
____________________________________________________________________________
____________________________________________________________________________
____________________________________________________________________________
____________________________________________________________________________
____________________________________________________________________________
____________________________________________________________________________
____________________________________________________________________________
____________________________________________________________________________
____________________________________________________________________________
____________________________________________________________________________
5. Перечень графического материала (с точным указанием обязательных чертежей) ____
____________________________________________________________________________
____________________________________________________________________________
____________________________________________________________________________
____________________________________________________________________________
____________________________________________________________________________
____________________________________________________________________________
____________________________________________________________________________
____________________________________________________________________________
____________________________________________________________________________
6. Консультанты по проекту (с указанием относящихся к ним разделом проекта)
____________________________________________________________________________
____________________________________________________________________________
____________________________________________________________________________
7. Дата выдачи задания ________________________________________________________
8. Календарный график работы над проектом
| Наименование раздела,
подраздела
|
Объем
работы, %
|
Дата
выполнения
|
Подпись руко-водителя или консультанта
|
Руководитель __________________________ _______________________________
(подпись) (Ф.И.О.)
Задание принял к исполнению «_____» _____________________________ 200 _ г.
____________________________________________
(подпись студента)
Приложение 3
РЕФЕРАТ
Реконструкция осушительной системы в СПК «Новополесский» Солигорского района с разработкой агромелиоративных мероприятий Расчетно-пояснительная записка / Михалевич М.А., Горки, 2006 137
с.; 6
рис.; 29
табл.;85
форм.; 30
источн.
Ключевые слова: методы и способы осушения, осушение открытой сетью; закрытый дренаж, гидрологические расчеты; параметры регулирующей сети; труба-регулятор; сооружения на системе; агромелиоративные мероприятия; экономическая эффективность.
Целью настоящего проекта явилось повышение продуктивности мелиорируемых земель за счет реконструкции существующей открытой осушительной системы, технический уровень которой не обеспечивал регулирование водного режима в оптимальных пределах. При этом были решены следующие задачи: разработан комплекс гидромелиоративных мероприятий по регулированию водного режима земель на площади 135 га путем замены отдельных элементов устаревшей системы на закрытую сеть с применением пластмассовых труб, а для оптимизации водного режима предусмотрено дополнительное увлажнение дождеванием; запроектирован комплекс культуртехнических работ, а также агромелиоративных мероприятий по восстановлению нарушенного плодородия почв и созданию условий для положительного баланса гумуса за счет внесения органических и минеральных удобрений.
Проект содержит анализ природно-климатических условий объекта, выбор методов и способов мелиорации земель, расчет параметров регулирующей сети, проектирование сети в плане и вертикальной плоскости. Для организации поверхностного стока применены колодцы-поглотители конструкции Института мелиорации НАН Беларуси, а также разработки кафедры мелиорации и водного хозяйства, испытанные нами в процессе УИРС. Приведен расчет трубы-регулятора. Разработаны рекомендации по строительству и эксплуатации объекта. Оценено воздействие объекта реконструкции на окружающую среду и запроектированы природоохранные мероприятия. Рассмотрены вопросы энергосбережения при строительстве. Выполнен сметно-финансовый расчет. Графический материал включает 7 листов.
Приложение 4
Образец оформления списка литературы
СПИСОК ЛИТЕРАТУРЫ
1. Афанасик Г.И. Сельскохозяйственные гидротехнические мелиорации: учеб. для с.-х. вузов / Г.И. Афанасик, М.Г. Голченко, А.П. Лихацевич, Г.И. Михайлов; под ред. А.П. Лихацевича. – Мн.: Тэхналогiя, 2000. – 436 с.
2. Антипенко В.И. Об итогах работы Департамента государственной инспекции труда и состояния травматизма на производстве на 2006 г. / В.И. Антипенко // Охрана труда и социальная защита. – 2007. №2.
3. Государственная программа возрождения и развития села на 2005 – 2010 годы. – Мн.: Беларусь, 2005. – 95 с.
4. Голченко М.Г. Научно-практические основы орошения сельскохозяйственных угодий на минеральных почвах Республики Беларусь: автореф. дис. / М.Г. Голченко; Ин-т мелиорации и луговодства Нац. акад. наук Беларуси. – Минск, 2005. – 49 с.
5. Технология производства культуртехнических работ: метод. указ. / сост. М.А. Шух, В.П. Орешников. Горки, 2003. – 48 с.
6. Ведомственные нормы и расценки на строительные, монтажные и ремонтно-строительные работы. Сборник В-12. Спец. работы в мелиоративном и водохозяйственном строительстве. Вып. 1–4. М.: Прейскурантиздат, 1987.
7. Гидравлический расчет регулирующих сооружений: учебное пособие / БСХА; Составители Нестеров М.В., Понасенко Л.В. – Горки, 1998. – 72 с.
8. Мелиорация и водное хозяйство. Т. 3. Осушение: справочник / под ред. Б.С. Маслова. – М.: Агропромиздат, 1985.
Приложение 5
Форма основной надписи на главном (первом) листе текстового документа

Приложение 6
Оформление листов текстовых документов

Приложение 7

Приложение 8
Названия линий и их обозначения
| № п.п.
|
Название линий и условия их применения
|
| 1
|
Сплошная толстая основная: линии видимого контура, линии перехода видимые, линии контура сечения (вынесенного и входящего в состав разреза)
|
| 2
|
Сплошная тонкая: линии контура наложенного сечения, линии размерные и выносные, линии штриховки, линии-выноски, полки линий-выносок, линии подчеркивания надписей, линии для изображения пограничных деталей («обстановка»), линии ограничения выносных элементов на видах, разрезах и сечениях, линии перехода воображаемые, оси проекции, следы плоскостей, линии построения
|
| 3
|
Сплошная волнистая: короткие линии обрыва, линии разграничения вида и разреза
|
| 4
|
Штриховая: линии невидимого контура, линии перехода невидимые
|
| 5
|
Штрихпунктирная тонкая: линии осевые и центровые, линии сечений, являющиеся осями симметрии для наложенных или вынесенных сечений
|
| 6
|
Штрихпунктирная утолщенная: линии, обозначающие поверхности, подле-жащие термообработке или покрытию, линии для изображения элементов, расположенных перед секущей плоскостью («наложенная проекция»)
|
| 7
|
Разомкнутая: линии сечений
|
| 8
|
Сплошная тонкая с изломами: длинные линии обрыва
|
| 9
|
Штрихпунктирная с двумя точками: линии сгиба на развертках, линии для изображения частей изделий в крайних или промежуточных положениях, линии для изображения развертки, совмещенной с видом
|
Примечание. Толщину основной линии S выбирают в пределах 0,5...1,4 мм в зависимости от величины и сложности изображения, формата и назначения чертежа.
Окончание приложения 8
Виды линий на чертежах

Приложение 9
Некоторые условные обозначения для планов, карт и других чертежей
проектов

Приложение 10
Условные обозначения мелиоративной сети

Приложение 11
Условные графические обозначения сооружений на сети мелиоративных систем

Приложение 12
Графические обозначения почв по механическому составу

Обозначения знаков: 1 – глина: л – легкая, с – средняя, т – тяжелая; 2 – суглинок: т – тяжелый, с – средний, л – легкий; 3 – супесь: т – связная, л – рыхлая; 4 – песок: м – мелкий, с – средний, к – крупный, п – пылеватый; 5 – торф: г – травянисто-гипновый, т – древесно-тростниковый; 6 – сапропель: о – органический, ом – органо-минеральный, м – минеральный; 7 – мергель; 8 – ил; 9 – коровое железо, рудяковые горизонты; 10 – вивианит; 11 – перегнойный горизонт; 12 – торфотуф.
Приложение 13
Графические обозначения строительных материалов в конструкциях
гидротехнических сооружений

Обозначения знаков: 1 – песчаные грунты; 2 – связные грунты; 3 – гравийно-галечниковые и гравийно-песчаные грунты; 4 – каменная наброска; 5, 6 – гидроизоляция: АБ – асфальтобетон, ПП – полимерная пленка, ГР – гидроизоляционные рулонные материалы (стеклопластик, металлопластик и др.), МГ – гидроизоляционные мастики – горячие (битумные, асфальтовые), MX – то же, холодные, РП – резиновые и пластмассовые.
Приложение 14
Условные графические обозначения сооружений на сети мелиоративных систем

Обозначения знаков: 1 – металлы и твердые сплавы; 2 – неметаллические материалы (волокнистые монолитные, плитные); 3 – кладки из кирпича строительного, клинкера, керамики, камня и т.д.; 4 – древесина; 5 –жидкости; 6 – грунт естественный; 7 – стекло и другие прозрачные материалы; 8 – бетон; 9 – засыпка; 10 – сетка.
Приложение 15
Единицы измерения физических величин
П.15 – МЕЖДУНАРОДНАЯ СИСТЕМА ЕДИНИЦ (СИ)
П.15.1 – Единицы величин в системе СИ
| Наименование величины
|
Единица
|
| Наименование
|
Обозначение
|
| международное
|
русское
|
| 1
|
2
|
3
|
4
|
| Основные единицы
|
| Длина
|
метр
|
m
|
м
|
| Масса
|
килограмм
|
kg
|
кг
|
| Время
|
секунда
|
s
|
с
|
| Сила электрического тока
|
ампер
|
A
|
А
|
| Термодинамическая температура
|
кельвин
|
K
|
К
|
| Количество вещества
|
моль
|
mol
|
моль
|
| Сила света
|
кандела
|
cd
|
кд
|
| Дополнительные единицы
|
| Плоский угол
|
радиан
|
rad
|
рад
|
| Телесный угол
|
стерадиан
|
sr
|
ср
|
| Производные единицы
|
| Частота
|
герц
|
Hz
|
Гц
|
| Окончание приложения 15
|
| 1
|
2
|
3
|
4
|
| Сила, вес
|
ньютон
|
N
|
Н
|
| Давление, механическое напряжение
|
паскаль
|
Pa
|
Па
|
| Энергия, работа, количество теплоты
|
джоуль
|
J
|
Дж
|
| Мощность, поток энергии
|
ватт
|
W
|
Вт
|
| Количество электричества
|
кулон
|
C
|
Кл
|
| Электрическое напряжение, электродвижущая сила
|
вольт
|
V
|
В
|
| Электрическая емкость
|
фарад
|
F
|
Ф
|
| Электрическое сопротивление
|
ом
|
Ω
|
Ом
|
| Электрическая проводимость
|
сименс
|
S
|
См
|
| Поток магнитной индукции
|
вебер
|
Wb
|
Вб
|
| Плотность магнитного потока
|
тесла
|
T
|
Тл
|
| Индуктивность
|
генри
|
H
|
Гн
|
| Световой поток
|
люмен
|
Im
|
лм
|
| Освещенность
|
люкс
|
lx
|
лк
|
| Поглощенная доза ионизирующего излучения
|
грей
|
Gy
|
Гр
|
| Эквивалентная доза излучения
|
зиверт
|
Sv
|
Зв
|
П.15.2 – Десятичные, кратные и дольные единицы СИ
| Множитель
|
Приставка
|
Обозначение
приставок
|
Множитель
|
Приставка
|
Обозначение
приставок
|
| междуна-родное
|
русское
|
международное
|
русское
|
| 1018
|
экса
|
Е
|
Э
|
10-1
|
деци
|
d
|
д
|
| 1015
|
пета
|
Р
|
П
|
10-2
|
санти
|
c
|
с
|
| 1012
|
тера
|
Т
|
Т
|
10-3
|
милли
|
m
|
м
|
| 109
|
гига
|
G
|
Г
|
10-6
|
микро
|
μ
|
мк
|
| 106
|
мега
|
M
|
М
|
10-9
|
нано
|
n
|
н
|
| 103
|
кило
|
k
|
к
|
10-12
|
пико
|
p
|
п
|
| 102
|
гекто
|
h
|
г
|
10-15
|
фемто
|
f
|
ф
|
| 101
|
дека
|
da
|
да
|
10-18
|
атто
|
a
|
а
|
П.15.3 – Единицы измерения величин
| Наименование
величин
|
Наименование
единицы СИ
|
Обозначение единиц
|
Соотношение с единицей, не входящей в СИ
|
| СИ, рекомендуемых кратных и дольных от нее
|
не входящих в СИ
|
| 1
|
2
|
3
|
4
|
5
|
| Длина, толщина, вы-
сота, ширина, диа-
метр, радиус, длина
волны, фокусное рас-
стояние
|
метр
|
м
см
мм
мкм
нм
км
|
миля
|
1852 м
|
| Продолжение приложения 15
|
| 1
|
2
|
3
|
4
|
5
|
| Площадь
|
квадратный
метр
|
м2
дм2
см2
мм2
км2
|
га
а
|
1·109
м2
1·102
м2
|
| Плоский угол
|
радиан
|
рад
м рад
мк рад
|
…о
…/
…//
|
1,74533·10-2
рад
2,90888·10-4
рад
4,84814·10-6
рад
|
| Кривизна
|
метр в минус первой степени
|
м-1
|
| Масса,
грузоподъемность
|
килограмм
|
кг
|
т
|
1·103
кг
|
| Скорость
|
метр в секунду
|
м/с
|
км/ч
|
0,27777 м/с
|
| Ускорение
|
метр на секунду в квадрате
|
м/с2
|
| Угловая скорость
|
радиан в секунду
|
рад/с
|
…о
/с
об/мин
|
0,017453 рад/с
0,104719 рад/с
|
| Угловое ускорение
|
радиан на секунду в квадрате
|
рад/с2
|
…о
/с2
об/мин2
|
0,017453 рад/с2
0,104719 рад/с2
|
| Сила
|
ньютон
|
Н
МН
кН
мН
мкН
|
кгс
тс
|
9,80655 Н
9,80655·103
Н
|
| Момент силы, пары
сил, крутящий мо-
мент
|
ньютон-метр
|
Н·м
МН·м
кН·м
мН·м
мкН·м
|
кгс·м
|
9,80655 Н·м
|
| Интенсивность рас-
пределения нагрузки, поверхностное
натяжение
|
ньютон на метр
|
Н/м
|
кгс/м
|
9,80655 Н/м
|
| Механические свой-
ства (напряжение, мо-
дуль упругости, пре-
дел текучести, плот-
ности, сопротивление
срезу, модуль сдвига,
объемного сжатия)
|
паскаль
|
Па
ГПа
МПа
кПа
Н/м2
|
кгс/мм2
|
9,80655·106
Па
|
| Момент инерции, ди-
намический момент
инерции
|
килограмм-метр в квадрате
|
кг·м2
|
г·см2
кг·м·с2
|
1·10-7
кг·м2
9,80655 кг·м2
|
| Производительность технологических ап-
паратов:
массовая
объемная
|
килограмм в секунду
кубический метр в секунду
|
кг/с
м3
/с
|
т/с
т/ч
л/ч
|
1·103
кг/с
0,27777 кг/с
0,27777·10-6
м3
/с
|
| Продолжение приложения 15
|
| 1
|
2
|
3
|
4
|
5
|
| Плотность потока
жидкости
|
килограмм на квадратный метр-секунду
|
кг/(м2
·с)
|
г/(см2
·с)
|
10,0 кг/(м2
·с)
|
| Мощность
|
ватт
|
Вт
ГВт
МВт
кВт
мВт
|
эрг/с
кгс·м/с
л.с.
|
1·10-7
Вт
9,80655 Вт
735,499 Вт
|
| Работа, энергия
|
джоуль
|
Дж
ТДж
ГДж
МДж
кДж
мДж
|
эрг
кгс·м
л.с.·ч
кВт·ч
|
1·10-7
Дж
9,80655 Дж
3,6·106
Дж
|
| Ударная вязкость
|
джоуль на квадратный метр
|
Дж/м2
|
эрг/см2
|
1·10-3
Дж/м2
|
| Объем, вместимость
|
кубический метр
|
м3
дм3
см3
мм3
|
л
|
1·10-3 м3
|
| Давление, вакуум
|
паскаль
|
Па
ГПа
МПа
кПа
гПа
даПа
мПа
мкПа
|
кгс/м2
мм вод. ст.
кгс/см2
кгс/мм2
атм
мм рт. ст.
дин/см2
бар
|
9,80665 Па
9,80665 Па
9,80665·104
Па
9,80665·106
Па
1,013255·106
Па
133,322 Па
0,1 Па
1·105
Па
|
| Кинематическая
вязкость
|
квадратный метр на секунду
|
м2
/с
|
м2
/ч
Ст
|
0,27777·10-3
м2
/с
1·10-4
м2
/с
|
| Динамическая
вязкость
|
паскаль-секунда
|
Па·с
|
П
кгс·с/м2
|
0,1 Па·с
9,80655 Па·с
|
| Плотность
|
килограмм на кубический метр
|
кг/м3
кг/дм3
|
г/см3
т/м3
|
1·103
кг/м3
1·103
кг/м3
|
| Температура, температурный интервал, разность температур
|
кельвин
|
К
|
о
С
|
1К
|
| Количество теплоты, термодинамический потенциал, энергия, энтальпия, теплота сгорания топлива
|
джоуль
|
Дж
ТДж
ГДж
МДж
кДж
мДж
|
кал
кал15
калтх
ккал
эрг
|
4,1868 Дж
4,1855 Дж
4,1840 Дж
4,1868·103
Дж
1·10-7
Дж
|
| Удельная теплоем-
кость, газовая посто-
янная
|
джоуль на килограмм-кельвин
|
Дж/(кг·К)
кДж/(кг·К)
|
эрг/(г·К)
кал/(г·о
С)
ккал/(кг·о
С)
|
1·10-7
Дж/(кг·К)
4,1868·103
Дж/(кг·К)
4,1868·103
Дж/(кг·К)
|
| Объемная теплоемкость
|
джоуль на кубический метр-кельвин
|
Дж/(м3
·К)
|
кал/(см3
·о
С)
ккал/(м3
·о
С)
|
4,1868·106
Дж/(м3
·К)
4,1868·103
Дж/(м3
·К)
|
| Окончание приложения 15
|
| 1
|
2
|
3
|
4
|
5
|
| Удельное количество
теплоты, удельный
термодинамический
потенциал, удельная
теплота
|
джоуль на килограмм
|
Дж/кг
МДж/кг
кДж/кг
|
кал/г
ккал/кг
эрг/г
|
4,1868·103
Дж/кг
4,1868·103
Дж/кг
1·10-4
Дж/кг
|
| Тепловой поток
|
ватт
|
Вт
кВт
мВт
|
эрг/с
кал/с
ккал/ч
|
1·10-7
Вт
4,1868 Вт
1,163 Вт
|
| Поверхностная плот-
ность теплового пото-
ка, излучательная спо-
собность
|
ватт на квадратный метр
|
Вт/м2
МВт/м2
кВт/м2
|
кал/(с·см2
)
ккал/(ч·м2
)
эрг/(с·см2
)
|
4,1868·104
Вт/м2
1,163 Вт/м2
1·10-3
Вт/м2
|
| Объемная плотность теплового потока
|
ватт на кубический метр
|
Вт/м3
|
кал/(с·см3
)
ккал/(ч·м3
)
|
4,1868·106
Вт/м3
1,163 Вт/м3
|
| Теплопроводность
|
ватт на метр-кельвин
|
Вт/(м·К)
|
эрг/(с·см·К)
кал/(с·см·о
С)
ккал/(ч·м·о
С)
|
1·10-5
Вт/(м·К)
4,1868·102
Вт/(м·К)
1,163 Вт/(м·К)
|
| Коэффициент тепло-
обмена, теплопереда-
чи
|
ватт на квадратный метр-кельвин
|
Вт/(м2
·К)
|
эрг/(с·см2
·К)
кал/(с·см2
·о
С)
ккал/(ч·м2
·о
С)
|
1·10-3
Вт/(м2
·К)
4,1868·104
Вт/(м2
·К)
1,163 Вт/(м2
·К)
|
| Удельный расход
топлива
|
килограмм на джоуль
|
кг/Дж
|
кг/кал
|
0,23885 кг/Дж
|
| Время, период
|
секунда
|
с
|
мин
ч
сут
|
60 с
3,6·103
с
8,64·104
с
|
| Частота вращения
|
секунда в минус первой степени
|
с-1
|
об/с
об/мин
|
1 с-1
0,01666 с-1
|
Приложение 16
Условные обозначения величин
| Величина
|
Обозначение
|
Величина
|
Обозначение
|
| 1
|
2
|
1
|
2
|
| Геометрические величины
|
Мощность
|
N
|
| Длина, пролет
|
l
|
Коэффициент полезного действия
|
η
|
| Расстояние, размер
|
a
|
Температура
|
t
|
| Ширина
|
b
|
Момент инерции
|
I
|
| Глубина
|
d
|
Величины в расчетах конструкции
|
| Высота
|
h
|
Нагрузка
|
F
|
| Толщина
|
t
|
Усилие
|
S
|
| Шаг
|
s
|
Сопротивление
|
R
|
| Радиус
|
r
|
Продольная сила
|
N
|
| Диаметр
|
d
|
Поперечная сила, сила сдвига
|
Q
|
| Длина пути (кривой)
|
S
|
Стрела прогиба, подъема
|
f
|
| Кривизна
|
ρ
|
Коэффициент Пуассона
|
v
|
| Площадь
|
A
|
Давление
|
p
|
| Объем
|
V
|
Нормальное напряжение
|
σ
|
| Уклон
|
i
|
Касательное напряжение
|
τ
|
| Окончание приложения 16
|
| 1
|
2
|
1
|
2
|
| Модуль
|
m
|
Модуль упругости
|
E
|
| Физико-механические величины
|
Модуль сдвига
|
G
|
| Время
|
t
|
Момент
|
M
|
| Скорость (линейная)
|
v
|
Крутящий момент
|
T
|
| Ускорение (линейное)
|
a
|
Статический момент сечения
|
S
|
| Ускорение силы тяжести
|
g
|
Момент инерции сечения
|
I
|
| Угловой путь
|
φ
|
Момент сопротивления сечения
|
W
|
| Угловая скорость
|
ω
|
Радиус инерции сечения
|
i
|
| Угловое ускорение
|
α
|
Эксцентриситет
|
e
|
| Период колебаний
|
T
|
Величины теплотехнические
|
| Частота колебаний
|
f
|
Тепловой поток
|
Q
|
| Частота вращения
|
n
|
Плотность теплового потока
|
q
|
| Масса
|
m
|
Теплоемкость
|
C
|
| Плотность
|
ρ
|
Удельная теплоемкость
|
c
|
| Сила
|
F
|
Коэффициент теплопроводности
|
λ
|
| Коэффициент трения
|
μ
|
Коэффициент теплопередачи
|
k
|
| Работа
|
W
|
Коэффициент теплоотдачи
|
α
|
| Энергия
|
E
|
|
Учебно-методическое издание
Владимир Иосифович Желязко
Михаил Герасимович Голченко
Тихон Данилович Лагун
Валентин Витальевич Васильев
правила построения, изложения и оформления
дипломных проектов
Методические указания по дипломному проектированию
Подписано в печать 7.04.08 г.
Формат 60´84 1
/16
. Бумага для множительных аппаратов.
Печать ризографическая. Гарнитура “Таймс”.
Усл. печ. л. 2,56. Уч.-изд. л. 2,38.
Тираж 100 экз. Заказ . Цена 3250 руб.
Отпечатано в отделе издания учебно-методической литературы, ризографии
и художественно-оформительской деятельности БГСХА
213407 г. Горки, ул. Мичурина, 5
|