| ФЕДЕРАЛЬНОЕ АГЕНСТВО ПО ОБРАЗОВАНИЮ
Государственное образовательное учреждение высшего профессионального образования
"Томский политехнический университет"
_____________________________________________________________
УТВЕРЖДАЮ
Зав. каф. ИКСУ
проф., д-р техн. наук
__________А.М. Малышенко
“___”__________2007 г.
УПРАВЛЕНИЕ ГИБКИМ ПРОИЗВОДСТВЕННЫМ МОДУЛЕМ
ФРЕЗЕРОВАНИЯ
Методические указания по выполнению лабораторной работы №2
по курсам “Гибкие производственные системы”,
“Технологическое оборудование с ЧПУ” для студентов
специальности 220401 “Мехатроника ”
Томск 2007
УДК 681.51:621.865.8
Управление гибким производственным модулем
фрезерования
: Методические указания по выполнению лабораторной работы №1 по курсам "Гибкие производственные системы", “Технологическое оборудование с ЧПУ” для студентов специальности 220401 “Мехатроника”. - Томск: Изд. ТПУ, 2007. - 30 с.
Составители: доц., канд. техн. наук В.Н. Шкляр,
доц., канд. техн. наук С.В. Леонов
Рецензент: доц. канд. техн. наук С.А. Гайворонский
Методические указания рассмотрены и рекомендованы к изданию
методическим семинаром кафедры ИКСУ “____”_______2007 г.
Зав. кафедрой ИКСУ
проф., д-р техн. наук А.М. Малышенко
Управление гибким производственным модулем фрезерования
1. Цель лабораторной работы
Целью лабораторной работы является изучение, программирование, отладка и экспериментальное исследование гибкого производственного модуля фрезерования. При выполнении лабораторной работы рассматриваются вопросы функционирования технологического обеспечения модуля, системы управления, разработки управляющих программ для изготовления изделий и их отладки на имитаторе.
2. Описание учебного гибкого производственного модуля
фрезерования
2.1. Назначение комплекса, его состав и характеристики
Общий вид учебного гибкого производственного модуля фрезерования изделий представлен на рисунке 1.

Рисунок 1. Общий вид станка (версия MF70-4Ф4): 1 – регулировочные винты оси Z;
2 – шаговый двигатель оси Z; 3 – фрезерная головка; 4 – цанговый патрон; 5 – рукоятка ручного перемещения привода X*; 6 – рукоятка ручного перемещения привода Y*; 7 – литая станина станка; 8 – регулировочные винты привода X; 9 – регулировочные винты привода Y; 10 – Т- образные продольные крепежные пазы;
Забиваем Сайты В ТОП КУВАЛДОЙ - Уникальные возможности от SeoHammer
Каждая ссылка анализируется по трем пакетам оценки: SEO, Трафик и SMM.
SeoHammer делает продвижение сайта прозрачным и простым занятием.
Ссылки, вечные ссылки, статьи, упоминания, пресс-релизы - используйте по максимуму потенциал SeoHammer для продвижения вашего сайта.
Что умеет делать SeoHammer
— Продвижение в один клик, интеллектуальный подбор запросов, покупка самых лучших ссылок с высокой степенью качества у лучших бирж ссылок.
— Регулярная проверка качества ссылок по более чем 100 показателям и ежедневный пересчет показателей качества проекта.
— Все известные форматы ссылок: арендные ссылки, вечные ссылки, публикации (упоминания, мнения, отзывы, статьи, пресс-релизы).
— SeoHammer покажет, где рост или падение, а также запросы, на которые нужно обратить внимание.
SeoHammer еще предоставляет технологию Буст, она ускоряет продвижение в десятки раз,
а первые результаты появляются уже в течение первых 7 дней.
Зарегистрироваться и Начать продвижение
11 – шаговый двигатель оси X; 12 – шаговый двигатель оси Y
Учебный минигабаритный фрезерный станок модели MF-3Ф4 с компьютерным управлением, выполненный на базе станка с ручным управлением, предназначен для обучения программированию фрезерных станков с ЧПУ, а также для отладки кадров программы и реализации не сложных деталей из дерева и пластмасс. Применение станка, дает знания и навыки в области станков с ЧПУ, инструмента, технологии, электроприводов, систем управления и современных информационных технологий. На станке можно выполнять сверление отверстий по заданным координатам, фрезерование и гравирование в ручном или автоматическом режимах 2-х мерных и 3-х мерных поверхностей.
Управление станком осуществляется от персонального компьютера, работающего под управлением операционной системы Windows. Управляющие программы для обработки деталей составляются с использованием стандартных функций. Компьютерные имитаторы станка и устройства числового программного управления позволяют имитировать обработку на станке (т.е. производить отладку программы путем воспроизведения виртуальной детали по созданной управляющей программе), а затем запускать лабораторный фрезерный станок на изготовление реальной детали.
Станок является бесконсольно-фрезерным и имеет крестовый стол (координаты X и Y). На стойке станка установлены направляющие, по которым перемещается шпиндельная головка (вертикальная координата Z). Автоматизированный координатный стол станка под управлением персонального компьютера позволяет выполнять точные работы по пластику и дереву. Кинематическая схема всех трех приводов подачи аналогична и состоит из следующих элементов: электродвигатель, муфта, винтовая передача с шагом 1 мм. Основные технические характеристики модуля фрезерования приведены в таблице 1.
Таблица 1
Технические характеристики модуля фрезерования
| №
|
Наименование
|
Величина
|
| 1
|
Напряжение питания, В
|
220
|
| 2
|
Потребляемая мощность, Вт
|
150
|
| 3
|
Предельные габариты заготовки (ш/д/в), мм
|
45/120/70
|
| 4
|
Пределы частот вращения инструмента, мин-1
|
5000¸20000
|
| 5
|
Диаметр инструмента, мм
|
1¸3
|
| 6
|
Тип системы управления
|
PCNC
|
| 7
|
Количество одновременно управляемых координат
|
3
|
| 8
|
Точность перемещений, мм
|
0,1
|
| 9
|
Интерфейс связи с управляющей ЭВМ
|
LPT
|
| 10
|
Габариты (ш/д/в), мм
|
320/380/420
|
| 11
|
Масса, кг
|
11
|
Приводы подач и главного движения обеспечивают бесступенчатое регулирование скорости в соответствии с заданным в управляющей программе значением. В качестве двигателей приводов подач используются шаговые электродвигатели, преобразующие электрические импульсы в дискретные механические перемещения. Применение шаговых электродвигателей в составе станков с ЧПУ обусловлено следующими достоинствами:
Сервис онлайн-записи на собственном Telegram-боте
Попробуйте сервис онлайн-записи VisitTime на основе вашего собственного Telegram-бота:
— Разгрузит мастера, специалиста или компанию;
— Позволит гибко управлять расписанием и загрузкой;
— Разошлет оповещения о новых услугах или акциях;
— Позволит принять оплату на карту/кошелек/счет;
— Позволит записываться на групповые и персональные посещения;
— Поможет получить от клиента отзывы о визите к вам;
— Включает в себя сервис чаевых.
Для новых пользователей первый месяц бесплатно.
Зарегистрироваться в сервисе
- угол поворота ротора определяется числом импульсов поданных на обмотку двигателя;
- прецизионное позиционирование и повторяемость с точностью 3-5% от величины шага;
- высокая надежность привода за счет бесконтактной коммутации катушек обмотки двигателя;
- широкий диапазон регулирования скорости с получением очень низких частот вращения вала двигателя без использования промежуточного редуктора.
2.2. Система управления станка
Система управления станка кроме устройств электроавтоматики и электропривода содержит устройство числового программного управления (УЧПУ). В УЧПУ нового поколения принято выделять системную платформу PC (Personal Computer) и прикладную компоненту NC (Numerical Control, т.е. ЧПУ), от которых происходит общее обозначение класса PCNC. В системе PCNC поддерживается:
- мобильность прикладных модулей (т.е. их переносимость на другие системные платформы);
- коммуникабельность модулей (т.е. их способность к взаимодействию через единую коммуникационную среду системной платформы);
- масштабируемость системы в целом (т.е. возможность изменять, при необходимости, как функциональность прикладной компоненты, так и вычислительные возможности системной компоненты).
В системную платформу PCNC входят: аппаратная часть, операционная система и средства поддержания межмодульной коммуникации.
В качестве операционной системы для однокомпьютерного варианта PCNC используется Windows NT с дополнительным расширением реального времени на уровне устройств (devices), к которым относятся контроллеры ввода-вывода. В двухкомпьютерном варианте PCNC применяют две разные операционные системы: Windows NT в терминале и одну из операционных систем реального времени в машине реального времени (UNIX, VxWorks или др.).
Модели УЧПУ оцениваются рядом характеристик, определяющих наличие у системы тех или иных эксплуатационных, функциональных и сервисных возможностей:
- число программируемых координат;
- тип системы;
- число одновременно управляемых координат;
- дискретность задания координат, мм;
- вид интерполяции (круговая, объемная, винтовая);
- смещение начала (нуля) отсчета (программируемое);
- индикация положения, функций и кадра;
- возможность управления от ЭВМ;
- наличие системы редактирования УП;
- максимальная скорость привода (быстрота перемещения), мм;
- предельная скорость рабочей подачи, мм/мин;
- системы диагностики и самодиагностики;
- наличие диалогового режима;
- тип управляемого привода;
- защитные функции.
УЧПУ обеспечивают режимы ручного и автоматического управления станком, режим редактирования управляющих программ и ввода параметров и корректоров.
Для управления станком М
F
70-4Ф4
(выполненном на базе станка Proxxon) применяется УЧПУ класса PCNC с программой STEPPER CNC
, имеющей интуитивно понятный интерфейс, способствующий быстрому обучению персонала, ранее работавшего в операционных системах Windows компании Microsoft.
Программа управляет всеми приводами станка в реальном режиме времени и обеспечивает поддержку общепромышленного стандарта программирования станков с ЧПУ GCODE
RS
-274
с базовым набором основных команд (включая спектр команд линейной и круговой интерполяции). STEPPER CNC
имеет в своем составе встроенный имитатор, позволяющий работать на компьютере без подключенного станка MF
70-4Ф4
, отлаживать и тестировать написанные учащимися программы на виртуальной трехмерной модели станка.
2.3. Программное обеспечение мехатронного модуля
Программное обеспечение мехатронного модуля фрезерования STEPPER CNC
содержит необходимые инструментальные средства для написания и отладки управляющих программ. Для разработки программ используется встроенный редактор текста, проверяющий наличие синтаксических ошибок и отладчик, позволяющий имитировать работу привода подач и главного движения.
Для нормального функционирования системы управления станком требуется использование IBM
совместимой современной вычислительной техники с поддержкой EPP
1.9
LPT
порта. При этом необходимо учитывать, что при работе с процессорами Intel Pentium-4 нужно отключить поддержку HT
(Hyper Threading).
Запускается программа с помощью ярлыка «STEP
CNC
» и после запуска работает в режиме ИМИТАТОР
, позволяющем не только проверять работоспособность новых текстов управляющих программ, но и выполнять управление станком в ручном режиме работы. Для автоматического выполнения управляющей программы необходимо осуществить выход в НОЛЬ
станка по всем координатам. На рисунке 2 приведено главное окно программы.

Рисунок 2. Главное окно программы
В главном окне имеются панели оперативного контроля и управления станком: панель статуса, панель инструментов, панель управления.
На панели статуса (рис.3) отображается текущий режим работы системы СТАНОК
или ИМИТАТОР
. В зависимости от текущего режима работы станка одна из двух кнопок подсвечивается зеленым цветом, показывая ее активное состояние.
Рисунок 3. Панель статуса
Панель инструментов содержит следующие функциональные кнопки, рисунок 4 (слева направо, сверху вниз):
- вызов диалога «Настройка оборудования»;
- вызов диалога настройки функции G500 (сообщения пользователя);
- вызов диалога настройки функции G92 (система координат детали);
- системные сообщения;
- определить фиксированную точку;
- текст управляющей программы;
- окно визуализации;
- поворот точки обзора вокруг горизонтальной и вертикальной осей (4 кнопки U, D, L, R);
- увеличение и уменьшение изображения (2 кнопки);
- изображение 100%;
- вид на плоскости OXY, OZX и OZY (3 кнопки);
- перемещение изображения в плоскости экрана (4 кнопки).

Рисунок 4. Панель инструментов
На панели управления, приведенной на рисунке 5, размещены основные функциональные кнопки для выполнения ручного и автоматического режима работы модуля фрезерования. В верхней части панели кнопки выполняются следующие действия:
- перемещение стола с заготовкой вдоль оси Y (2 кнопки: +Y и –Y);
- перемещение стола с заготовкой вдоль оси X (2 кнопки: +X и –X);
- перемещение инструмента вдоль оси Z (2 кнопки: +Z и –Z);
- вывод суппорта в НОЛЬ
станка (3 кнопки: X, Y, Z).
Также панель управления содержит командную строку, предназначенную для ввода и исполнения отдельных команд. Выполнение команды начинается после нажатия на клавишу «Enter» на клавиатуре управляющей ЭВМ. В нижней части панели управления производится установка и контроль скорости линейного перемещения привода подач по оси X, Y, Z.

Рисунок 5. Панель управления
Дополнительно к основным панелям в главном окне программы имеется панель координат (рис.6). Панель координат служит для отображения положения суппорта в системе координат станка (СКС) и в системе координат детали (СКД).
На панели координат также размещены индикаторы нулевого положения, предназначенные для отображения нулевого положения суппорта «ноль X», «ноль Y» и «ноль Z».
Для отображения информации о текущем корректоре инструмента и номере инструмента служит информационная панель главного окна программы, приведенная на рисунке 7.

Рисунок 6. Панель координат
Информационная панель дополнительно может отображать значение текущей скорости суппорта F и привода главного движения S.

Рисунок 7. Информационная панель
На рисунке 8 приведена панель автоматического режима работы. Данная панель предназначена для загрузки файла и выполнения управляющей программы в автоматическом режиме. Запуск управляющей программы производится нажатием на кнопку .

Рисунок 8. Панель автоматического режима
Необходимо отметить, что в режиме ИМИТАТОР
на фрезерном станке при выполнении управляющей программы можно ускорить визуализацию перемещений инструмента, установив флаг «Ускорение».
На панели автоматического режима имеется меню со следующими основными группами (для фрезерного станка):
- Файлы
(содержит пункты, относящиеся к работе файлами: «Загрузка управляющей программы», «Настройка программы» и «Выход»);
- Команды
(содержит команды, общие для токарного и фрезерного станков: «Станок», «Имитатор», «Фрезерный станок», «Системные сообщения», «Управляющая программа», «Графика»);
- Фрезерный
(содержит команды: «Видео», «Параметры», «Фиксированные точки», «Настройка оборудования», «Инициализация оборудования»);
- Диагностика
(содержит команды проверки правильности назначенных режимов резания, алгоритмы выявления ошибок и сбоев в работе устройства);
- Справка
(содержит краткую информацию о программном обеспечении, разработчиках и минимальных требованиях предъявляемых к управляющей ЭВМ).
Общий вид меню «Фрезерный» приведен на рисунке 9. Команда «Видео» позволяет подключить Веб-камеры для наблюдения за зоной резания или зоной обслуживания оборудования в составе гибкой производственной системы.

Рисунок 9. Общий вид меню «Фрезерный»
Команда «Параметры» открывает окно, приведенное на рисунке 10. В закладке «Общие» производится настройка точности имитации для выбора степени детализации элементов детали. Чем меньше размер элемента, тем точнее имитируется обработка, но при этом увеличиваются требования к вычислительной мощности ЭВМ. Функция «Цвет фона» позволяет выбрать необходимый фон в имитаторе фрезерного станка.

Рисунок 10. Настройка имитатора фрезерного станка
В закладке «Режущий инструмент» производится выбор типа инструмента: «Концевая фреза», «Торцевая фреза», «Дисковая фреза». А также задаются параметры инструмента (диаметр – d и длина фрезы – H) и цвет режущего инструмента в имитаторе фрезерного станка.
В закладке «Заготовка» указываются размеры заготовки по координатам X, Y, Z и выбирается цвет заготовки в имитаторе фрезерного станка.
В закладке «Слои» производится выбор цвета слоев, на которые разбивается заготовка. Каждый слой можно отображать своим цветом. Изменение цвета производится следующим образом:
1. Выберите слой с помощью движка «Слой»;
2. Нажмите кнопку ;
3. Выберите цвет.
Команда «Фиксированные точки» в подменю «Фрезерный» выводит окно, в котором напротив номера точки задаются координаты фиксированных точек, использующихся в программе. Допускается изменение значения фиксированной точки. Окно с группой Ехх показывает значения переменных Е0 – Е99.
На рисунке 11 приведено окно имитации процесса обработки заготовки.
Рисунок 11. Общий вид окна имитации процесса обработки
После нажатия правой клавиши мыши на данном окне вызывается подменю содержащее следующие команды:
- Каркас
(каркасное изображение детали и режущего инструмента);
- Поверхность
(изображение с отображением поверхностей заготовки);
- Траектория
(только траектория режущего инструмента);
- Показывать
(подменю детализации изображения с включением следующих элементов изображения: «Оси координат», «Сетка», «Траектория», «Заготовка», «Режущий инструмент»).
3. Программирование УЧПУ модуля фрезерования
3.1. Формат кадра, буквенные адреса, оси координат
Управляющая программа (УП) обработки детали состоит из последовательности кадров. Формат кадра (по ГОСТ 20999-76) имеет вид:
N04. G02.
Х
+053. Z+053. R+053. I+053. J+053 K+053. F023
F
05 Е034.
S
+04. Т04.
D
02. М02. Р08.
Q
08. Н04.
L
04.
Формат дополнительных буквенных адресов:
А+053. В+053. С+053.
U
+053.
V
+053.
W
+053.
Y
+053.
O
08
Назначение буквенных адресов:
N
- номер кадра;
G
- подготовительная функция, постоянный цикл;
X
,
Z
- геометрические данные по осям X и Z в абсолютных величинах или в приращениях;
U
,
W
- геометрические данные по осям X и Z в приращениях;
R
- радиус дуги;
I
, К
- координаты центра окружности; геометрические данные по осям X, Z; программирование может осуществляться на радиус и на диаметр;
S
- частота вращения шпинделя, скорость резания;
Н
- количество повторов управляющей программы;
Т
- функция инструмента, N инструмента, N корректора;
D
- номер корректора;
М
- вспомогательная функция;
L
- вызов управляющей программы (подпрограммы);
Р,
Q
- номер первого и последнего кадра некоторой части УП;
F
, Е
- функция подачи; шаг резьбы;
А, В, С,
J
,
V
,
Y
, О
- дополнительные параметры циклов и управляющих программ.
В одном кадре можно записать:
- F, Е - значение подачи (шага резьбы);
- множество G - функций из группы настроечных;
- функцию Т или функцию D;
- до шести М - функций, выполняемых до перемещения;
- S - функцию;
- одну G - функцию из группы основных (с учетом модальности);
- до четырех М - функций, выполняемых после движения;
- L - функцию (вызов подпрограммы) и после нее любые буквенные адреса в качестве параметров.
В общем случае L - функция делит кадр на две части: все буквенные адреса, записанные, в кадре после адреса L рассматриваются как параметры. Исключением является только адрес Н, который в любом месте кадра рассматривается, как число повторений подпрограммы.
Выполнение функций в кадрах управляющей программы производится именно в указанном порядке, несмотря на то, что записаны они могут быть в произвольном порядке.
Подготовительные функции G и постоянные циклы разбиты на две группы, (табл. 2).
Таблица 2
Подготовительные функции
| Код
функции
|
Описание
|
Группа
|
| G00
|
Позиционирование*
|
осн
|
| G01
|
Линейная интерполяция*
|
осн
|
| G02 G03
|
Круговая интерполяция по часовой стрелке и против*
|
осн
|
| G04
|
Выдержка времени
|
осн
|
| G25
|
Установка зоны запрета перемещений
|
осн
|
| G26
|
Отмена зоны запрета перемещений
|
осн
|
| G27
|
Однопроходный продольный цикл*
|
осн
|
| G28
|
Однопроходный цикл продольного резьбонарезания*
|
осн
|
| G29
|
Однопроходный поперечный цикл*
|
осн
|
| G33
|
Нарезание резьбы с постоянным шагом*
|
осн
|
| G39
|
Однопроходный цикл поперечного резьбонарезания*
|
осн
|
| G37
|
Выход в фиксированную точку
|
осн
|
| G38
|
Возврат из фиксированной точки
|
осн
|
| G53
|
Отмена линейного сдвига
|
настр
|
| G56
|
Линейный сдвиг
|
осн
|
| G60
|
Однопроходный чистовой цикл
|
осн
|
| G61
|
Многопроходный черновой продольный цикл
|
осн
|
| G62
|
Многопроходный черновой поперечный цикл
|
осн
|
| G65
|
Цикл нарезания канавок цилиндрических
|
осн
|
| G66
|
Многопроходный черновой цикл продольного
резьбонарезания
|
осн
|
| G67
|
Многопроходный черновой цикл поперечного
резьбонарезания
|
осн
|
| G68
|
Многопроходный черновой копировальный цикл
|
осн
|
| G69
|
Цикл нарезания торцовых канавок
|
осн
|
| G83
|
Цикл глубокого сверления
|
осн
|
| G84
|
Цикл нарезания резьбы метчиком или плашкой
|
осн
|
| G90
|
Абсолютный размер
|
настр
|
| G91
|
Размер в приращениях
|
настр
|
| G92
|
Установка абсолютных накопителей положения
|
осн
|
| G94
|
Подача в мм/мин
|
настр
|
| G95
|
Подача в 1/мин
|
настр
|
| G96
|
Постоянная скорость в м/мин
|
настр
|
| G97
|
Отмена постоянной скорости резания
|
настр
|
В первую группу входят настроечные G - функции, не требующие буквенных адресов в качестве параметров; во вторую - основные G - функции, требующие буквенных адресов в качестве параметров, в том числе, постоянные циклы.
Функции G, помеченные "*" (модальные) сохраняют свое значение до отмены их другой модальной G - функцией. Функция G00 является стартовой и активизируется при включении УЧПУ. Подготовительные функции G, в том числе циклы, имеют, как правило, параметры, задаваемые или в кадре УП с помощью буквенных адресов, или в режиме ввода параметров станка и УЧПУ. В обоих случаях, например, для задания направлений аварийного сбега для внешних и внутренних резьб в одной и той же УП, значение параметра желательно изменить, оперативно в процессе выполнения УП.
Вспомогательные М-функции делятся на две группы. В первую группу входят М-функции, выполняемые до перемещения, заданного в кадре, во вторую - после перемещения.
В таблице 3 приведены вспомогательные функции, обслуживающие электроавтоматику станка. Цифрами во главе таблицы обозначено: 1 – код вспомогательной функции, 2 – назначение вспомогательной функции, 3 – функция начинает действовать до начала перемещения, 4 – функция начинает действовать после выполнения перемещения, 5 – функция действует до отмены другой функции, 6 – функция действует только в одном кадре.
Таблица 3
Вспомогательные функции
| 1
|
2
|
3
|
4
|
5
|
6
|
| M00
|
Программируемый останов
|
–
|
+
|
–
|
+
|
| М01
|
Останов с подтверждением
|
–
|
+
|
–
|
+
|
| М02
|
Конец программы
|
–
|
+
|
–
|
+
|
| M03
|
Вращение шпинделя по часовой стрелке
|
+
|
–
|
+
|
–
|
| М04
|
Вращение шпинделя против часовой стрелки
|
+
|
–
|
+
|
–
|
| М05
|
Останов шпинделя
|
–
|
+
|
+
|
–
|
| М06
|
Смена инструмента
|
+
|
–
|
–
|
+
|
| М08
|
Включение охлаждения
|
+
|
–
|
+
|
–
|
| М09
|
Отключение охлаждения
|
–
|
+
|
+
|
–
|
| М12
|
Реверс главного привода
|
+
|
–
|
+
|
–
|
| М17
|
Конец управляющей программы
|
–
|
+
|
–
|
+
|
| М19
|
Ориентированный останов шпинделя
|
+
|
–
|
–
|
+
|
| М30
|
Конец УП с возвратом в начало
|
–
|
+
|
–
|
+
|
Под адресом L в кадре можно указать вызов управляющей программы, для этого предусмотрено до четырех цифр. Номера с 900 по 999 зарезервированы под постоянные, внешние по отношению к УП, подпрограммы. Номера с 1000 указывают на внутреннюю подпрограмму, хранящуюся и редактируемую как часть УП. В последнем случае, номер указывает номер кадра, с которого начинается подпрограмма. Заканчивается подпрограмма кодом М17. Число вложений подпрограмм не более трех.
Все адреса (кроме Н), записанные в кадре после адреса L, рассматриваются как параметры подпрограммы (параметрическое программирование), упаковываются в буфер и передаются подпрограмме.
Пример.
N80 1.1230 А12.3 В72.
– вызов подпрограммы;
Подпрограмма:
N1230 #101 = #1 + #2 – #101 будет равно 84.300;
N1235 #103 = #2 – #1 – #102 будет равно 59.700;
N1240 G00 X #101
N1250 G01 Х#102 М17
Формат адреса F при минутной подаче (G94) есть F05 при дискретности 1 мм/мин. Разрешается задание минутной подачи с точкой, причем, позиция точки соответствует м/мин.
Пример.
Подачу 5 м/мин можно задать, как F200 или как F.2.
Вызов на дисплей – всегда с точкой.
Формат адреса F при оборотной подаче (G95) есть F023 при дискретности 1 мм/об. Точка соответствует мм/об.
Пример.
F.3 задает подачу 0,3 мм/об, a F1.215 - 1,215 мм/об.
На рисунках 14 и 15 показано положение осей координат станка.
Рисунок 14. Положительные направления осей координат
Ноль системы координат станка определяется оператором (наладчиком). Оператор устанавливает положение плавающего нуля, от которого обеспечивается связь с нулем системы координат детали. Ноль системы координат детали назначает технолог, исходя из схемы размерного анализа. Относительно этого нуля и пишется управляющая программа для обработки детали.

Рисунок 15. Оси координат станка
3.2. Особенности использования функций в управляющей
программе
STEPPER CNC
Инструкция описывает правила задания систем координат станка и детали, а также особых точек в этих системах координат:
- учет в управляющей программе реальных условий обработки;
- состав G-функций и их назначение;
- состав буквенных параметров и параметров УЧПУ, необходимых для корректной отработки G-функций;
- геометрия отработки G-функций.
Система координат станка определяется местоположением начала координат станка – нулевой точки станка. В данном случае использована система плавающего нуля станка, т.е. любое положение крестового стола относительно инструмента может быть принято за нулевое.
УЧПУ ориентирована на правую систему координат (ГОСТ 20999-83), при которой взгляд наблюдателя (оператора станка, технолога-программиста УП) со стороны положительного направления оси Y на квадранты плоскости XZ видит отработку функции круговой интерполяции G02 "по часовой стрелке".
Может быть, при необходимости, осуществлена программная установка новой системы координат (детали), установка новой системы координат (детали) параметрическим образом; установка данных инструмента, установка необходимых технологических команд и линейного сдвига.
Установка новой системы координат детали осуществляется функцией:
,
где X, Z – координаты фиксированной точки N1 в системе координат детали, т.е. относительно начала системы координат детали – нуля детали;
U, W – составляющие вектора, проведенного из нуля детали в нуль станка.
Для записи кадра в программе STEPPER
CNC
каждый отдельный кадр должен соответствовать формату:
[Номер кадра] [Команда] [Параметры команды]
В одном кадре не должно быть одновременно М и G функций с одинаковыми параметрами, т.е. если М функция имеет параметр X Y Z, то в этой же строке не должно быть G функции с параметрами X Y Z. Составляющие кадра должны отделяться друг от друга одним пробелом. Основные команды приведены в таблице 4.
Таблица 4
Команды и их назначение
| N п/п
|
Адресная буква
|
Назначение
|
| 1
|
N
|
Порядковый номер кадра
|
| 2
|
G
|
Команда задания режима операции
|
| 3
|
X, Y, Z
|
Значения координат
|
| 4
|
I, J, K
|
Координаты центра дуги окружности
|
| 5
|
F
|
Скорость суппорта
|
| 6
|
S
|
Скорость вращения шпинделя
|
| 7
|
T
|
Номер корректора инструмента
|
| 8
|
M
|
Вспомогательная команда
|
| 9
|
R
|
Радиус дуги окружности
|
| 10
|
P
|
Длительность паузы, номер подпрограммы, номер фиксированной точки, параметр команды
|
| 11
|
Q
|
Параметр команды
|
4. Задание значений координат и параметров
Если значение координаты или радиуса задано с десятичной точкой, то значение принимается заданными в миллиметрах. Когда же значение задано без десятичной точки, то значение принимается заданным в дискретах, например:
X100 – 100 дискрет, Х100. – 100 миллиметров.
Параметрическое задание значений можно выполнить следующим образом:
N10 #2005 = @35.5 – Значение 35.5
Т10 #2005 = E10 – Из переменной Е10
Скорость суппорта и шпинделя задается в (мм/мин). Также существует возможность задать скорость суппорта с привязкой к скорости вращения шпинделя в миллиметрах на один оборот шпинделя.
Далее рассмотрим примеры составления кадра программы с использованием наиболее распространенных функций:
М – функции
Таблица 5
| обозначение
функции
|
Содержание функции
|
| M
02
|
Остановка выполнения программы, пример: N01 M02
|
| М03
|
Включение шпинделя против часовой стрелки
пример: N01 S1000 М03 - включение шпинделя на
1000 об/мин.
|
| М04
|
Включение шпинделя по часовой стрелке
пример: N01 S1000 М04 - включение шпинделя на
1000 об/мин.
|
| М05
|
Останов шпинделя пример: N01 М05
|
| M
10
Р
n
|
Зажим детали, где n – время зажима в секундах
пример: М10 Р10
|
| M
11 Р
n
|
Разжим детали, где n – время разжима в секундах
пример: М11 Р10
|
| М100
|
Установка координат фиксированной точки. Фиксированные точки используются для отвода в них стола. Пример: N01 М100 Xn Yn Zn P10 - Установка фиксированной точки № 10 с координатами Xn Yn Zn. Допустимо задание значения параметров X, Y и Z через переменные Е, например: N10 М100 ХЕ11 P4. Также допустимо задание значения параметров X, Y и Z из параметров 200n, 210n, 220n, например: N10 M102 Х#2005 Р4.
|
| M
101
|
Установка значения переменной Е,
пример: N01 M101 @_число_ En;
|
| М102
|
Установка значений вылетов инструмента,
пример: N01 M102 Xn Yn Zn Рm
Допустимо задание значения параметров X, Y и Z из параметров 200n, 210n, 220n, пример: N10 М102 Х#2005 Р4.
|
| M
103
|
Установка точности аппроксимирования дуги окружности, пример: N01 M103 Сn - Разбиение дуги окружности на n отрезков.
|
| М200
|
Сравнение параметра Е с числом: если Е<@ то действие, пример: N01 М200 En @_число_ G71 Р100 - Сравнение переменной En с числом, если Е<@ тогда выполнение функции G7I Р100
|
| М201
|
Сравнение параметра Е с числом: если Е>@ то действие, пример: N01 М201 En @_число_ G71 Р100. Сравнение переменной En с числом: если Е>@ тогда выполнение функции G71 Р100
|
| М202
|
Сравнение параметра Е с числом: если Е=@ то действие, пример: N01 М202 En @_число_ G71 Р100 Сравнение переменной En с числом: Если Е=@
тогда выполнение функции G71 Р100
|
| М203
|
Сравнение параметра Е с числом: если Е!=@ то действие, пример: N01 М203 En @_число_ G71 Р100 Сравнение переменной En с числом: Если Е!=@ тогда выполнение функции G71 Р100
ПРИМЕЧАНИЕ: _
действие_
является G-функцией
|
| М300
|
Сложение Е=Е+число, пример: N01 М300 En @_число_ - Сложение переменной En с числом и запись результата в переменную En
|
| М301
|
Вычитание Е=Е–число, пример: N01 М301 En @_число_ - Вычитание из переменной En числа и запись результата в переменную En
|
| М302
|
Умножение Е=Е*число, пример: N01 М302 En @_число_ - Умножение переменной En на число и запись результата в переменную En
|
| М303
|
Деление Е=Е/число, пример: N01 М303 En @_число_ - Деление переменной En на число и запись результата в переменную En
|
| М305
|
Сохранить переменные Е в файл evariables.dat
|
| М306
|
Загрузить переменные Е из файла evariables.dat
|
| G
00
|
Позиционирование (холостое перемещение) в заданную точку на максимальной скорости, пример:
N01 G00 Xn Yn Zn
|
| G
01
|
Линейная интерполяция, пример: N01 G01 Xn Yn Zn
|
| G
02
|
Круговая интерполяция (по часовой стрелке), пример: N15 G02 U-10. V-10. I-10. К0. F150 – Дуга окружности, конечная точка которой находится со смещением U-10. V-10. от начальной точки, центр окружности находится со смещением I-10. К0, где: I – относительное смещение центра окружности относительно начальной точки по координате Х; К – относительное смещение центра окружности относительно начальной точки по координате Y или Z.
Другой вариант задания дуги – с помощью радиуса дуги окружности, например: N10 G02 X-40. Z-20. R50 F100
Проконтролировать дугу можно через файл Test.prg – в него записывается аппроксимирующая подпрограмма с использованием функции G01.
|
| G
03
|
Круговая интерполяция (против часовой стрелки)
|
| G
04
|
Пауза, пример: N01 G04 P10 – Пауза 10 секунд
|
| G
25
|
Включение контроля зон запрета перемещений
|
| G
26
|
Отмена контроля зон запрета
|
| G
32
|
Сканирование поверхности детали на фрезерном станке с компьютерным управлением
|
| G
37
|
Выход в фиксированную точку, пример: N01 G37 Pn – Выход в точку, заданную параметров n
|
| G
70
|
Возврат из подпрограммы, пример:
N01 G70 – Последний кадр программы
|
| G
71
|
Вызов подпрограммы, пример: N01 G71 Р200 – Вызов подпрограммы, которая начинается с кадра N200
|
| G
72
|
Безусловный переход на заданный кадр, пример:
N01 G72 Р150 – Переход к кадру N150
|
| G
7
3
|
Высокоскоростной цикл прерывистого сверления.
Работает аналогично циклу G83. Разница заключается в том, что сверло для удаления стружки выводится из отверстия не полностью. Последнее позволяет уменьшить время обработки детали.
|
5. Примеры программ
Примеры программ находятся в каталоге Examples. Работа в режиме ИМИТАТОР
имеет следующие настройки: режущий инструмент – концевая фреза d = 1 мм, L = 20 мм.; размер заготовки - 40х60х20 мм.
Перед запуском программы выведите фрезу на середину заготовки. Определите ноль станка и для ускорения выполнения программ установите флаг «Ускоренное» на панели управления.
ПРИМЕР №1
; Включаем шпиндель на 1000 об/мин.
N01 S1000 M03
; Выполняем какие-либо перемещения
; Останавливаем шпиндель
N100 M05
; Завершаем выполнение программы
N200 M02
ПРИМЕР №2
Линейная интерполяция (файл – Example2.prg)
; Включаем шпиндель на 1000 об/мин.
N01 S1000 M03
; Выполняем перемещения
G01 Z-2. F100
G01 X-10. Y-10. F200
G01 X10.
G01 Y10.
G01 X-10.
G01 X0. Y0.
G00 Z0.
; Останавливаем шпиндель
M05
; Завершаем выполнение программы
М02
Рисунок 16. Результат работы программы «ПРИМЕР 2»
ПРИМЕР №3
Круговая интерполяция (файл – Example3.prg)
; Включаем шпиндель на 1000 об/мин.
N01 S1000 M03
; Выполняем перемещения
G01 Z-3. F100
; Устанавливаем точность дуги равной 40 секторов
М103 С40
; Выполняем движение по дуге окружности
; в точку X-20. Y-30. по радиусу R30
G02 X-20. Y-30. R30. F200
; Выполняем движение по дуге окружности
; в точку X0. Y0. по радиусу R30
G02 X0. Y0. R30. F200
G00 Z0.
; Останавливаем шпиндель
M05
; Завершаем выполнение программы
М02
Рисунок 17. Результат работы программы «ПРИМЕР 3»
6. Запуск системы
Последовательность работы со станком изложена в инструкции по эксплуатации станка и является обязательной для исполнения и использования при работе с данным оборудованием. Не соблюдение этих правил может привести к неправильной работе или даже выходу оборудования из строя.
Запуск системы производится в следующей последовательности:
- Первоначально необходимо убедиться, что электропитание станка выключено. Индикатор питания на передней панели корпуса блока управления должен быть погашен.
- Включить питание ЭВМ. После загрузки операционной системы Windows необходимо запустить программу управления станком.
- При запуске программа управления автоматически переходит в режим работы ИМИТАТОР
, в котором можно отлаживать программу, проводить ее диагностику.
- После подготовки и отладки программы следует: включить питание станка (кнопка на блоке управления) и перейти в режим СТАНОК
.
- После завершения работы на станке необходимо выключить питание станка и произвести закрытие управляющей программы.
7. Программа работы
1. Ознакомиться с устройством модуля фрезерования изделий, устройством минигабаритного фрезерного станка и его характеристиками.
2. Изучить работу с программой управления станком. В режиме ИМИТАТОР изучить работу в главном окне программы. Освоить операции задания нуля станка, приведения изображения имитатора в соответствие обработке на станке в режиме СТАНОК, запуска и останова управляющей программы, включения работы с реальным станком, настройки минимальной ширины управляющих импульсов шаговых приводов станка.
3. Изучить содержание меню главного окна и освоить работу с его опциями.
4. Изучить содержание меню «Фрезерный», освоить работу с его опциями.
5. Разработать технологический процесс изготовления детали из заготовки.
6. Разработать управляющую программу для изготовления деталей из заготовки, пользуясь приведенными в таблицах ВВВ M и G - функциями.
7. Провести технологическое диагностирование управляющей программы по скорости резания и подаче, скорректировать управляющую программу.
8. Включить станок, перейти в режим СТАНОК и отработать управляющую программу (без заготовки).
9. Изготовить деталь из заготовки
10. Выполнить анализ результатов и выводы по работе.
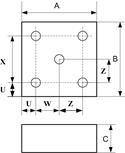
8. Варианты заданий
| Деталь
|
Заготовка, мм
|
Материал
|
Параметр
|
Вариант, мм
|
| № вар-та
|
А
|
В
|
С
|
1
|
2
|
3
|
4
|
|
|
1
|
60
|
60
|
20
|
1.Древесина
2.Пластмасса
3. Алюминий
4.Медь
|
X
|
40
|
20
|
30
|
35
|
| 2
|
40
|
40
|
25
|
U
|
10
|
10
|
20
|
10
|
| 3
|
70
|
70
|
30
|
W
|
25
|
10
|
20
|
20
|
| 4
|
55
|
55
|
35
|
Z
|
15
|
10
|
10
|
15
|
9. Содержание отчета
1. Цель работы
2. Схема, характеристики станка, краткое описание режимов его работы.
3. Чертежи заготовки и выполненной из нее детали.
4. Технологическая карта изготовления детали.
5. Полученные настройки параметров управляющей программы, рисунок главного окна программы.
6. Управляющая программа для изготовления детали. Рисунок панели автоматического режима.
7. Результаты технологического диагностирования программы. Рисунок окна «Диагностика».
8. Результаты отладки и проверки управляющей программы.
9. Готовая деталь (по указанию преподавателя).
10. Выводы по работе
10. Литература
1. Минигабаритный фрезерный станок модели MF70-4Ф4 с компьютерным управлением (для ГПС-1): учебное пособие / П.Г. Мазеин, С.С. Панов, С.В. Шереметьев и др. – Челябинск: Изд-во ЮУрГУ, 2007. – 144с.
2. Соломенцев Ю.М., Сосонкин В.Л., Мартинов Г.М. Построение персональных систем ЧПУ (PCNC) по принципу открытых систем.-Информационные технологии и вычислительные системы. 1997, №3, с. 68-75.
УПРАВЛЕНИЕ ГИБКИМ ПРОИЗВОДСТВЕННЫМ
МОДУЛЕМ ФРЕЗЕРОВАНИЯ
Методические указания по выполнению лабораторной работы №2 по курсам “Гибкие производственные системы”, “Технологическое оборудование с ЧПУ” для студентов специальности 220401 «Мехатроника».
Составители: Шкляр Виктор Николаевич,
Леонов Сергей Владимирович
Подписано к печати «___» ________2007 г.
Формат 60х84/16. Бумага «Классика». Печать RISO.
Усл. печ. л. Уч.-изд. л.
Заказ Тираж
|