| УТВЕРЖДАЮ
ОКП 42 1198
Директор ООО НПК
«Приборист»
.........................
Блинов Л. Н
.
« ____ » ___________ 2009г.
ИЗМЕРИТЕЛЬ ТЕМПЕРАТУРЫ
МНОГОКАНАЛЬНЫЙ ПРОГРАММИРУЕМЫЙ
МИТ-40
Технические условия
ТУ 4211-005-31846771-2002
2009г
СОДЕРЖАНИЕ
| 1. Введение...............................................................................……………..
|
3
|
| 2. Технические требования......................................................……. ……...
|
4
|
| 3. Требования безопасности...................................................……………..
|
10
|
| 4. Правила приемки.................................................................……………..
|
10
|
| 6. Методы контроля................................................................………………
|
15
|
| 7. Транспортирование и хранение ………............................…………….
|
24
|
| 8. Указания по эксплуатации..................................................……………..
|
24
|
| 9. Гарантии изготовителя........................................................…………….
|
25
|
| 10. Приложения:
|
| Приложение 1
. Перечень документов, на которые даны ссылки в ТУ...
|
26
|
| Приложение 2.
Перечень средств измерения и оборудования, используемого для проведения испытаний ……………………………..
|
27
|
| Приложение 3.
Габаритные и присоединительные размеры …………
|
28
|
| Приложение 4.
Схемы внешних соединений при
проведении испытаний и схемы соединительных кабелей ……………
|
29
|
ВВЕДЕНИЕ
Настоящие технические условия распространяются на измеритель температуры многоканальный программируемый МИТ-40 (в дальнейшем - прибор или МИТ-40) предназначенный для измерения температуры по 8, 24 или 40 каналам, записи и хранения измеренных значений в электронной энергонезависимой памяти, передачи накопленной в памяти информации в ЭВМ, работы в единой последовательной информационной системе с несколькими приборами, индикации результатов измерения температуры, уставок, номера канала, номера прибора, накопленной в памяти информации и вспомогательной информации, сигнализации и выдачи управляющих сигналов при выходе измеренных значений температуры за установленные (заданные) пределы.
Список сокращений, принятых в ТУ:
· МИТ-40 (или прибор) - многоканальный программируемый измеритель температуры МИТ-40;
Забиваем Сайты В ТОП КУВАЛДОЙ - Уникальные возможности от SeoHammer
Каждая ссылка анализируется по трем пакетам оценки: SEO, Трафик и SMM.
SeoHammer делает продвижение сайта прозрачным и простым занятием.
Ссылки, вечные ссылки, статьи, упоминания, пресс-релизы - используйте по максимуму потенциал SeoHammer для продвижения вашего сайта.
Что умеет делать SeoHammer
— Продвижение в один клик, интеллектуальный подбор запросов, покупка самых лучших ссылок с высокой степенью качества у лучших бирж ссылок.
— Регулярная проверка качества ссылок по более чем 100 показателям и ежедневный пересчет показателей качества проекта.
— Все известные форматы ссылок: арендные ссылки, вечные ссылки, публикации (упоминания, мнения, отзывы, статьи, пресс-релизы).
— SeoHammer покажет, где рост или падение, а также запросы, на которые нужно обратить внимание.
SeoHammer еще предоставляет технологию Буст, она ускоряет продвижение в десятки раз,
а первые результаты появляются уже в течение первых 7 дней.
Зарегистрироваться и Начать продвижение
· ПЭВМ- персональная электронная вычислительная машина;
· ТС - термопреобразователь сопротивления;
· ТП - преобразователь термоэлектрический;
· НСХ – номинальная статическая характеристика преобразования
Перечень документов, на которые даны ссылки в настоящих технических условиях, приведен в приложении 1.
1. ТЕХНИЧЕСКИЕ ТРЕБОВАНИЯ
1.1. Общие требования.
1.1.1. Прибор должен соответствовать требованиям настоящих ТУ и комплекта конструкторской документации.
1.1.2. Покупные комплектующие изделия должны соответствовать требованиям установленных на них стандартов или технических условий.
1.2. Основные параметры и размеры.
1.2.1 Прибор МИТ-40 должен изготавливаться в трёх модификациях, отличающихся количеством измерительных каналов, т.е. прибор может иметь 40 измерительных каналов, 24 или 16.
1.2.2 Каналы прибора должен иметь возможность программироваться для работы совместно со следующими первичными преобразователями:
· Термометрами сопротивления типа ТСМ и ТСП с номинальной статической характеристикой (НСХ) преобразования 50М, 100М, 50П, 100П, 500П, Pt50, Pt100, Pt500 по ГОСТ Р 8.625 и термопреобразователями сопротивления типа ТСМ и ТСП с номинальной статической характеристикой (НСХ) преобразования 50М, 100М, Cu50, Cu100, 50П, 100П, 500П, Pt50, Pt100, Pt500 по ГОСТ Р6651
· термоэлектрическими преобразователями (термопарами) типов K, L, R, S и T соответствующих ГОСТ Р50342 с НСХ по ГОСТ Р 8.585.
Примечание:
По заявке заказчика должна быть предусмотрена возможность программирования каналов для работы с другими типами термопар соответствующих ГОСТ Р50342 с НСХ по ГОСТ Р 8.585м.
1.2.3. Прибор МИТ- 40 должен иметь:
1.2.3.1 Дисплей для цифровой индикации результатов измерения температуры, величины уставки, номера прибора, номера канала и вспомогательной информации.
1.2.3.2 Возможность задания независимых уставок - аварийную и предупредительную на каждом канале. Каждая уставка программируется на срабатывание при превышении или занижении установленной температуры.
1.2.3.3 Электронную энергонезависимую память не менее 32 Кб для хранения результатов измерений и для записи значений уставок и коэффициентов калибровки прибора.
Периодичность записи результатов измерений в память должна быть в диапазоне ≈11мин (655,36с) – ≈0,7мин(40,96с).
1.2.3.4 Последовательный интерфейс RS485 для связи с ЭВМ и объединения нескольких приборов в последовательную информационную сеть.
1.2.3.5 Два выхода управления типа «сухой контакт», срабатывающие на замыкание и размыкание.
Сервис онлайн-записи на собственном Telegram-боте
Попробуйте сервис онлайн-записи VisitTime на основе вашего собственного Telegram-бота:
— Разгрузит мастера, специалиста или компанию;
— Позволит гибко управлять расписанием и загрузкой;
— Разошлет оповещения о новых услугах или акциях;
— Позволит принять оплату на карту/кошелек/счет;
— Позволит записываться на групповые и персональные посещения;
— Поможет получить от клиента отзывы о визите к вам;
— Включает в себя сервис чаевых.
Для новых пользователей первый месяц бесплатно.
Зарегистрироваться в сервисе
1.2.3.6 Выход типа «сухой контакт», срабатывающий на замыкание и размыкание для контроля работоспособности прибора.
1.2.4 Прибор должен обеспечивать три режима работы:
- основной режим
– автоматический;
- вспомогательный режим
– для быстрого просмотра каналов, проверки уставок, номера прибора, записанной в память информации;
- режим программирования
– для настройки прибора и задания уставок.
1.2.4.1. В автоматическом (основном) режиме измерения проводятся по всем включенным каналам, а на индикатор выводится результат измерения температуры и номер одного, выбранного канала.
1.2.4.2. Во вспомогательном режиме, измерение температуры и контроль уставки должны проводиться по одному каналу.
Через две минуты после окончания работы во вспомогательном режиме, прибор автоматически должен переключаться в основной режим.
1.2.4.3. Режим программирования предназначен для задания уставок, калибровки прибора, отключения уставок и каналов, задания сетевого номера прибора, программирования выходных транзисторов и изменения временного периода записи информации в энергонезависимую память.
1.2.5 По защищенности от воздействия окружающей среды приборы соответствуют обыкновенному исполнению по ГОСТ 12997.
1.2.6 По устойчивости к воздействию температуры и влажности окружающего воздуха прибор соответствует группе исполнения В4 по ГОСТ12997, но в диапазоне температур от 0 до 50ºС. В транспортной таре прибор должен быть прочным к воздействию температуры от минус50 до +50ºС и относительной влажности (95±3)% при температуре 35ºС.
1.2.7 По устойчивости к механическим воздействиям прибор соответствует группе F3 по ГОСТ 12997.
1.2.8 По устойчивости к воздействию атмосферного давления прибор соответствует группе исполнения P1 по ГОСТ 12997.
1.2.9 Приборы в транспортной таре должны выдерживать:
· вибрации по группе F3 согласно ГОСТ 12997,
· удары при значении пикового ударного ускорения 98 м/с с длительностью ударного импульса 16мс с числом ударов не менее 1000,
· удары при свободном падении с высоты 100 мм,
· воздействие температуры от минус 50 до плюс 50 С, а также относительной влажности 98 % при температуре 35 С.
1.2.10 Электрическая прочность изоляции:
· цепи питания МИТ-40 относительно клеммы заземления должна вы- держивать в течение 1 минуты действие испытательного напряжения 1500В практически синусоидальной формы частотой 50 Гц при нормальных климатических условиях;
· сигнальных цепей МИТ-40 относительно клеммы заземления должна выдерживать в течение 1 минуты действие испытательного напряжения 500В при нормальных условиях.
1.2.11. Электрическое сопротивление изоляции:
· цепи питания МИТ-40 относительно клеммы заземления должно быть не менее 10 МОм при нормальных условиях:
· сигнальных цепей МИТ относительно клеммы заземления должно быть не менее 100 МОм при нормальных условиях.
1.2.12 Габаритные размеры прибора должны быть не более указанных в приложении 3.
1.2.13 Масса прибора без крепежных угольников и запасных частей должна быть (2,20 ±0,05) кг.
1.2.14 Нормальные условия эксплуатации:
| - температура окружающего воздуха
|
(20±5) °С;
|
| - относительная влажность
|
(30 … 80) %;
|
| - атмосферное давление
|
(86 … 106,7) кПа;
|
| - напряжение питания
|
220В ± 5%
|
| - механические вибрации, внешние
электрические и магнитные поля
|
отсутствуют;
|
1.2.15 Рабочие условия эксплуатации:
| - температура окружающего воздуха
|
от 0 до 50 °С;
|
| - относительная влажность
|
(30 … 80) %;
|
| - атмосферное давление
|
(86-106,7) кПа;
|
| - напряжение питания регулятора
|
220В ± 10%
|
| - внешнее электромагнитное поле создаваемое переменным током частотой питающей сети
|
до 400 А/м
|
1.2.16 Питание прибора должно осуществляться от сети переменного тока напряжением 220 В ±10%, частотой (47 … 52)Гц или (57 … 63 Гц.
1.2.17 Мощность, потребляемая прибором от сети при номинальном напряжении питания должна быть не более 5 ВA.
1.3. Характеристики.
1.3.1. Диапазоны измеряемых температур и пределы основной допускаемой приведенной погрешности в зависимости от типа и НСХ преобразования применяемых первичных преобразователей должны соответствовать табл.1.
таблица 1
| Тип и НСХ первичного преобразователя
|
Диапазон измерений
МИТ-40
|
Пределы основной допускаемой приведенной погрешности (g)*
|
| Термометры сопротивления по ГОСТ Р 8.625
Термопреобразователи сопротивления по ГОСТ Р6651 **)
|
| ТСМ:
50М (α=0,00428 ºС-1
),
100М (α=0,00428 ºС-1
),
CU 50 (α=0,00426 ºС-1
) **
,
CU 100 (α=0,00426 ºС-1
) **
.
|
От минус 200 до 200ºС
От минус 50 до 200ºС
|
± 0,1%
|
| ТСП:
50П (α=0,00391 ºС-1
),
100П (α=0,00391 ºС-1
).
|
От минус 200 до 1100ºС
|
± 0,1%
|
| Pt 50 (α=0,00385 ºС-1
),
Pt 100 (α=0,00385 ºС-1
).
|
От минус 200 до 850ºС
|
| Тип и НСХ первичного преобразователя
|
Диапазон измерений
МИТ-40
|
Пределы основной допускаемой приведенной погрешности (g)*
|
| ТХА К
|
От минус 200 до 1100ºС
|
± 0,15%
|
| ТХК L
|
От минус 200 до 600ºС
|
± 0,15%
|
| ТПП S
|
От минус 50 до 1100ºС
|
± 0,5%
|
| ТМК Т
|
От минус 200 до 400ºС
|
± 0,2%
|
*)
За нормирующее значение принимается разность верхнего и нижнего значений диапазона измерения.
**)
Приборы, работающие с термопреобразователями сопротивления с НСХ по ГОСТ 6651-94, предназначены для поставок на экспорт.
1.3.2 Разрешающая способность прибора:
- в диапазоне температур от минус 200 до 999,9 °С — 0,1 °С,
- в диапазоне от 1000°С до 1100 °С — 1 °С
1.3.3 Время измерения по одному каналу при использовании на всех каналах прибора ТС одного типа не должно превышать 0,07с.
1.3.4 Время измерения по одному каналу при использовании на всех каналах прибора ТП одного типа не должно превышать 0,12с.
1.3.5 Измерительный ток в цепи ТС не более 2мА
1.3.6 Время установления рабочего режима не должно превышать 30с.
1.3.7 Число уставок (заданных значений) температуры – 2 на каждый канал.
1.3.8 Дискретность изменения уставок (заданных значений) температуры — 0,1°С.
1.3.9 Пределы допускаемой дополнительной погрешности:
· 0,25×g — при изменении температуры окружающей среды от 0 до 15°С и от 25 до 50°С на каждые 10°С;
· 0,5×g — при воздействии электромагнитных полей напряженностью 400А/м, создаваемых переменным током частотой питающей сети;
· 0,25×g — при изменении напряжения питания от 209 до 198В и от 231 до 242В.
1.3.10 Показатели надежности прибора:
1.3.10.1 Вероятность безотказной работы МИТ-40 должна быть не менее 0,97 за 2000ч наработки.
1.3.10.2 Критерием отказа является несоответствие прибора пп.1.3.1 … 1.3.6.
1.3.10.3 Среднее время восстановления работоспособного состояния – не более 6 ч.
1.3.10.4 Средний срок службы прибора не менее 10 лет.
1.4. Комплектность.
1.4.1. Комплект поставки должен соответствовать комплекту, указанному в таблице 2.
Таблица 2
| Наименование и условное
обозначение
|
К-во шт.
|
Примечание
|
| 1
|
2
|
3
|
Измеритель температуры многоканальный
программируемый МИТ-40.
|
1
|
Измеритель температуры многоканальный
программируемый МИТ-40. Паспорт
|
1
|
| Розетка РС4ТВ
|
1
|
| Вилка DB37M
|
2 - 5
|
1 на 8 каналов
|
| Розетка DB9F
|
1
|
| Вилка DB9M
|
1
|
| Вилка DHS15M
|
1
|
Вставка плавкая ВП-1 – 0,25А
|
1
|
| Угольник с прижимом
|
2
|
Монтажные
детали
|
| Винт М3-6 х10.36.013
|
4
|
Шайба 3.65Г.019
|
4
|
| Шайба 3.04.019
|
4
|
1.5. Маркировка.
1.5.1. На каждый прибор должно быть нанесено:
– условное наименование прибора;
– количество каналов;
– наименование предприятия-изготовителя;
– заводской номер;
– год выпуска;
– знак утверждения типа
1.5.2. Возле клавиш управления должны быть нанесены надписи, указывающие назначение клавиш.
1.5.3. Возле разъемов должно быть нанесено позиционное обозначение разъемов согласно схем приведенных в Приложении 4 и в паспорте.
1.5.4. Внешний зажим, подлежащий заземлению, должен иметь
обозначение по ГОСТ 21130.
1.5.5. Транспортная маркировка приборов должна соответствовать ГОСТ 14192. Основные, дополнительные и информационные надписи должны располагаться в центре одной из боковых стенок ящика на ярлыке; манипуляционные знаки «Верх, не кантовать», «Осторожно, хрупкое», «Боится сырости» должны располагаться в левом верхнем углу на двух соседних стенках ящика. Наименование грузополучателя и пункта назначения допускается наносить от руки четко и разборчиво. Ярлык должен крепиться к транспортной таре гвоздями, шурупами, клеем.
1.6. Упаковка.
1.6.1. Упаковывание следует производить в закрытых вентилируемых помещениях при температуре окружающего воздуха от плюс 15 до плюс 40°С и относительной влажности до 80% при отсутствии в окружающей среде агрессивных примесей. Перед упаковкой прибор должен быть подвергнут консервации. Срок защиты прибора без переконсервации 12 месяцев.
Прибор относится к категории условий хранения в части воздействия климатических факторов – 1 по ГОСТ 15150.
1.6.2. Способ упаковки, подготовка к упаковке должны соответствовать требованиям конструкторской документации. Упаковочный лист и эксплуатационные документы уложить в пакет из полиэтиленовой пленки и заварить. Пакет уложить под крышкой ящика на верхний слой упаковочного материала. Упаковочный лист должен содержать дату упаковки, подпись ответственного за упаковку и штамп ОТК.
Прибор поставляется потребителю упакованным в тару. Масса брутто не более 5 Кг.
2. ТРЕБОВАНИЯ БЕЗОПАСНОСТИ
2.1. По способу защиты человека от поражения электрическим током МИТ-40 должен соответствовать классу 01 по ГОСТ 12.2.007.0.
2.2. К работе по монтажу, установке и обслуживанию прибора должны допускаются лица, имеющие квалификационную группу по технике безопасности не ниже группы II в соответствии с «Правилами техники безопасности при эксплуатации электроустановок потребителей», и изучившие правила эксплуатации приведенные в паспорте на прибор.
2.3 Электрическое сопротивление между клеммой заземления и корпусом разъема сетевого питания прибора должно быть не более 0,1Ом
3. ПРАВИЛА ПРИЕМКИ
3.1. Виды испытаний.
3.1.1. Приборы должны подвергаться следующим испытаниям:
– приемо-сдаточным;
– периодическим;
– контрольным испытаниям на надежность;
– типовым;
3.1.2. Объем и последовательность проведения приемо-сдаточных и периодических испытаний указаны в табл.3.
Таблица 3
Наименование испытаний
|
Номер пункта ТУ
|
Вид испытаний
|
| технических
требований
|
Методов
испытаний
|
приемо-сдатоные
|
Периодические
|
| 1. Проверка на соответствие комплекту документации, комплектности, маркировки и упаковки.
|
1.1.1, 1.4, 1.5, 1.6
|
4.3
|
да
|
да
|
| 2. Проверка габаритных размеров и массы,
|
1.2.12, 1.2.13
|
4.4
|
нет
|
да
|
| 3. Проверка разрешающей способности прибора и выводимой на индикаторное табло информации.
|
1.2.3.1,
1.3.2
|
4.5
|
да
|
да
|
| 4. Проверка диапазона измерений и определение значения основной погрешности.
|
1.3.1,
|
4.6
|
да
|
да
|
| 5. Определение значения дополнительной погрешности прибора.
|
1.3.9
|
4.7
|
да
|
да
|
| 6. Проверка времени измерения прибора по одному каналу.
|
1.3.3,
1.3.4
|
4.8
|
нет
|
да
|
| 7. Проверка времени установления рабочего режима.
|
1.3.6
|
4.9
|
нет
|
да
|
Наименование испытаний
|
Номер пункта ТУ
|
Вид испытаний
|
| технических
требований
|
Методов
испытаний
|
приемо-сдаточные
|
Периодические
|
| 8. Проверка функционирования и дискретности задания уставок предельных (заданных) значений температуры, энергонезависимой памяти для записи уставок и программируемых выходов управления.
|
1.2.3.2, 1.2.3.3, 1.2.3.5, 1.3.8,
|
4.10
|
нет
|
да
|
| 9. Испытание приборов в транспортной таре на воздействие температуры окружающего воздуха.
|
1.2.6
|
4.11
|
нет
|
да
|
| 10. Испытания приборов в транспортной таре на воздействие относительной влажности
|
1.2.6
|
4.12
|
нет
|
да
|
| 11. Испытания приборов на устойчивость к механическим воздействиям и на воздействие механико-динами- ческих нагрузок на прибор в транспортной таре
|
1.2.7,
1.2.9
|
4.13
|
нет
|
да
|
| 12. Проверка работоспособности прибора при повышенном (пониженном) напряжении питания
|
1.2.16
|
4.14
|
да
|
да
|
| 13. Проверка функционирования записи информации в энергонезависимую память
|
1.2.3.3
|
4.15
|
да
|
да
|
| 14. Проверка работы интерфейса RS485
|
1.2.3.4
|
4.16
|
да
|
да
|
| 16. Контроль потребляемой прибором мощности.
|
1.2.17
|
4.18
|
нет
|
да
|
| 17. Проверка электрической прочности изоляции и электрического сопротивления изоляции.
|
1.2.10,
1.2.11
|
4.19
|
да
|
да
|
Примечание.
Допускается изменять последовательность проведения испытаний и совмещать отдельные испытания.
3.2. Приемо-сдаточные испытания.
3.2.1. Приемо-сдаточные испытания проводятся отделом технического контроля (ОТК) предприятия-изготовителя.
3.2.2. Приборы, не выдержавшие испытания, бракуют и возвращают в производство для устранения дефектов.
3.2.3. После устранения неисправностей, приборы должны быть повторно подвергнуты приемо-сдаточным испытаниям. Допускается проводить испытания только по требованиям, по которым были получены неудовлетворительные результаты и по требованиям, по которым испытания не проводились. Результат повторных испытаний считается окончательным.
3.2.4. Результаты испытаний оформляются протоколом, утверждаемым руководителем предприятия – изготовителя. Приборы не выдержавшие повторные испытания подлежат разборке.
На приборы, прошедшие приемо-сдаточные испытания заполняется паспорт, в котором ставится клеймо ОТК.
3.3. Периодические испытания.
3.3.1 Приборы должны подвергаться периодическим испытаниям не реже одного раза в год не менее чем на двух изделиях, выдержавших приемо-сдаточные испытания.
3.3.2 Приборы при периодических испытаниях должны проверяться на соответствие всем требованиям настоящих технических условий.
3.3.3 Если в процессе испытаний не обнаружено несоответствие предъявляемым требованиям ни у одного из испытуемых приборов, то результаты считаются удовлетворительными.
При несоответствии любого из испытуемых приборов хотя бы одному из требований настоящих технических условий проводится анализ и устранение причины дефекта, после чего испытания продолжаются для проверки соответствия остальным требованиям технических условий. При невозможности устранения дефекта на испытуемом приборе, последний заменяется новым, после чего испытания повторяются на удвоенном количестве приборов.
Результаты испытаний удвоенного количества считаются окончательными. Допускается удвоенное количество приборов испытывать только по пунктам несоответствия. До окончания этих испытаний отгрузку ранее принятых приборов разрешается производить только при 100 % их проверке по пунктам несоответствия.
Если в процессе испытаний удвоенного количества приборов будет обнаружено несоответствие предъявляемым требованиям хотя бы у одного прибора, то отгрузка готовых приборов временно прекращается.
Допускается отгрузка ранее принятых ОТК и находящихся на складе приборов при обязательной проверке их по пунктам несоответствия.
3.3.4 После выявления и устранения причин несоответствия приборов требованиям технических условий проводятся повторные периодические испытания.
Допускается повторные испытания проводить в сокращенном объеме, но обязательно по пунктам несоответствия.
3.3.5 При положительных результатах повторных испытаний приемка приборов возобновляется в объеме приемо-сдаточных испытаний.
3.3.6 При единичных выходах из строя в процессе периодических испытаний элементов электронной техники (интегральных микросхем, полупроводниковых приборов, конденсаторов, резисторов и т. п.), используемых в режимах, установленных в стандартах и технических условиях на них, испытания повторяют по прерванному пункту и продолжают по следующим пунктам испытаний после устранения причин отказов.
3.3.7 Результаты периодических испытаний должны быть оформлены актом, утвержденным руководителем предприятия-изготовителя.
3.4. Контрольные испытания на надежность.
3.4.1. Контрольные испытания на безотказность (п.1.3.10.1) проводятся один раз на установочной серии по программе, утвержденной руководителем предприятия-разработчика, одноступенчатым методом с ограниченной продолжительностью испытаний по ОСТ 25 1240. Формирование выборки методом случайных чисел осуществляется по ГОСТ 18321.
3.4.2. Контрольные испытания на надежность должны проводиться не менее чем на трех приборах, из числа принятых ОТК, по программе, утвержденной руководителем предприятия-разработчика. Объем партии, из которой должен осуществляться отбор приборов на контрольные испытания на надежность, должен не менее чем вдвое превышать объем выборки.
3.4.3 Исходные данные для планирования испытаний по ГОСТ 27.410:
Приемочное значение вероятности безотказной работы прибора Рa принимается равным 0,97 за 2000ч наработки.
Браковочное значение вероятности безотказной работы прибора Рb принимается равным 0,80 за 2000 ч.
Риск изготовителя a=0,2; риск потребителя b=0,2.
Количество опытов n=16.
Приемочное число отказов регулятора С=1.
Продолжительность испытаний tи
=2000 ч.
3.4.4 Прибор соответствует требованиям п. 1.3.10.1, если число отказов при испытаниях d меньше или равно приемочному числу отказов С.
3.4.5. Контроль среднего срока службы (п.1.3.10.4) проводить путем сбора и обработки статистических данных, полученных в условиях эксплуатации, в соответствии с ГОСТ 27.502.
Обработка результатов по ГОСТ 27.503.
3.5. Типовые испытания.
3.5.1. Типовые испытания приборов проводит предприятие- изготовитель при изменении конструкции или технологии их изготовления, влияющих на технические и метрологические характеристики, указанные в настоящих ТУ.
3.5.2. Типовым испытаниям подвергаются приборы, прошедшие приемо-сдаточные испытания.
3.5.3. Типовые испытания проводят по программе, утвержденной руководителем или главным инженером предприятия-изготовителя и согласованной с разработчиком конструкторской документации.
3.5.4. Количество приборов, необходимых для проведения испытаний, устанавливается предприятием – изготовителем.
3.5.5. По результатам типовых испытаний составляется акт. Акт утверждается руководителем или главным инженером предприятия-изготовителя.
4. МЕТОДЫ КОНТРОЛЯ
4.1. Все испытания на соответствие техническим требованиям, за исключением особо оговоренных случаев, проводить при нормальных условиях эксплуатации согласно п.1.2.14 настоящих ТУ.
4.2. Перечень оборудования, необходимого для проведения испытаний, приведен в приложении 2.
4.3. Проверка соответствия прибора требованиям настоящих ТУ и комплекта конструкторской документации (п.1.1.1), комплекта поставки (п.1.4), маркировки (п.1.5) и упаковки (п.1.6) проводить внешним осмотром и сличением с чертежами.
Прибор считается выдержавшим испытание, если выполняются требования настоящих ТУ и расхождений с конструкторской документацией не обнаружено.
4.4. Проверку габаритных размеров прибора (п.1.2.12 и приложение 3) проводить металлической линейкой с ц.д. 1мм.
Проверку массы (п.1.2.13) проводить взвешиванием на технических весах с абсолютной погрешностью не более ±10г.
Прибор считается выдержавшим испытания, если габаритные размеры и масса не превышают значений указанных в приложении 2 и п.1.2.13.
4.5. Проверка разрешающей способности прибора и выводимой на индикаторное табло информации (п. 1.2.3.1, 1.3.2).
Для проверки подключить к входу любого канала прибора, руководствуясь а. схемами приведенными в приложении 4, вместо первичного преобразователя магазин сопротивлений или источник постоянного напряжения (mV), в зависимости от калибровки проверяемого канала.
С помощью магазина сопротивлений (R) или источника постоянного напряжения (mV), в зависимости от градуировки испытуемого канала, имитировать на входе канала сигнал соответствующий диапазону измерений.
Увеличивая небольшими ступенями сигнал на входе прибора (сопротивление или напряжение), добиться увеличения показаний прибора на единицу младшего разряда.
Допускается проверку разрешающей способности прибора проводить для одного, произвольно выбранного канала или совмещать это испытание с проверкой диапазона измерений и определением значения основной погрешности.
Прибор считается выдержавшим испытания, если удается изменить показания прибора на единицу младшего разряда.
4.6 Проверка диапазона измерений и определение значения основной погрешности (п.п.1.3.1).
4.6.1. Для проверки диапазона измерений подключить к входу любого канала прибора (см. п. 4.5) магазин сопротивлений или источник постоянного напряжения, в зависимости от калибровки проверяемого канала.
С помощью магазина сопротивлений или источника постоянного напряжения, в зависимости от градуировки испытуемого канала, имитировать на входе канала сигнал соответствующий нижнему, а затем верхнему диапазону измерений и зафиксировать результат измерения по индикатору прибора.
Руководствуясь методикой, приведенной в Паспорте, перепрограммировать канал на другой тип датчика (см. п. 1.3.1 табл.1) и повторить указанную выше операцию для проверки всех указанных в п.1.3.1 диапазонов измерения.
Допускается проверку диапазонов измерения совмещать с определением значения основной погрешности.
4.6.2 Значение основной абсолютной погрешности следует определять в 5 контрольных точках
равномерно распределенных по всему диапазону измерения, включая начало и конец диапазона, для всех типов ТС и ТП согласно п.1.3.1 настоящего ТУ.
Определение значения основной приведенной погрешности при использовании в качестве первичных преобразователей (датчиков) ТС.
А) Запрограммируйте все каналы (40, 20 или 8 в зависимости от модификации прибора) для работы с конкретным типом и НСХ ТС (из указанных в п. 1.3.1).
НСХ преобразования термопреобразователей сопротивления ГОСТ 6651
Подключите к входу одного (любого) канала, руководствуясь эл. схемами приведенными в приложении 4, магазин сопротивлений и установите на нем сопротивление соответствующее температуре (Т0
) в контрольной точке с учетом НСХ преобразования запрограммированного типа ТС. Зафиксируйте по показаниям индикатора результат измерения (ТИЗМ
). Определите значение приведенной погрешности (gt
) по формуле:
gt
= [(ТИЗМ
– Т0
)/Д]×100%,°С , (1)
где Д — разность верхнего и нижнего значений диапазона измерения.
Определите значение приведенной погрешности (gt
) на этом канале по ф.(1) в каждой из 5 контрольных точках.
Повторите указанную выше операцию на остальных каналах прибора в одной контрольной точке.
б) Повторите операции указанные в п. а) со всеми типами ТС, указанными в п. 1.3.1 настоящего ТУ.
Определение значения основной приведенной погрешности при использовании в качестве датчиков ТП.
А) Запрограммируйте все каналы (40, 20 или 8 в зависимости от модификации прибора) для работы с конкретным типом и НСХ ТП (из указанных в п. 1.3.1)
НСХ преобразования термоэлектрических преобразователей по ГОСТ Р50431
Подключите к входу одного (любого) канала компаратор напряжений Р3003 или калибратор напряжения типа П320 и подайте с него на вход канала напряжение (мВ) постоянного тока соответствующее температуре (Т0
) в контрольной точке с учетом НСХ преобразования запрограммированного типа ТП. Зафиксируйте по показаниям индикатора результат измерения (ТИЗМ
). Определите значение абсолютной погрешности (Dt
) по формуле 1.
Определите значение приведенной погрешности (gt
) на этом канале по ф.(1) в каждой из 5 контрольных точках.
Повторите указанную выше операцию на остальных каналах прибора в одной контрольной точке.
б) Повторите операции указанные в п. а) со всеми типами ТП, указанными в п. 1.3.1.
Результат испытаний считать положительным, если для всех ТС и ТП, из числа указанных в п. 1.3.1, в каждой контрольной точке проверяемых каналов значение приведенной погрешности не превышает значения указанного в п. 1.3.1. настоящих ТУ и диапазон измерения соответствует указанному в п. 1 3 1.
4.7. Определение значения дополнительной погрешности (п.1.3.9).
4.7.1 Проверку дополнительной погрешности прибора вызванной изменением температуры окружающей среды проводить в камере тепла (холода) в следующей последовательности:
- на любом канале испытуемого прибора выбрать и запрограммировать тип и НСХ первичного преобразователя согласно табл.1;
- в зависимости от выбранного типа и НСХ преобразования датчика подать на вход канала сигнал аналогично п. 4.6 соответствующий диапазону измерения и поместить прибор в климатическую камеру;
- испытания провести при значениях температуры в камере (0±1)ºС, (15 ±1)ºС, (25 ±1)ºС и (50 ±1)ºС, при этом предварительная выдержка прибора при каждом значении окружающей температуры не мене 0,5ч;
- при каждом значении окружающей температуры (0±1)ºС, (15±1)ºС, (25±1)ºС и (50±1)ºС зафиксировать показания на индикаторном табло (Т0
, Т15
, Т25
и Т50
) при сигнале на входе соответствующем одной контрольной точке диапазона измерения согласно п.1.3.1;
- рассчитать значение дополнительной приведенной погрешности по формулам:
gДОП(1)
= [(Т0
– Т15
)/Д]×100%; gДОП(2)
= [(Т50
– Т25
)/Д]×100%, (2)
где: Т0
, Т15
, Т25
и Т50
– результаты измерения при окружающей температуре (0 ±1)ºС, (15 ±1)ºС, (25 ±1)ºС и (50 ±1)ºС,
Д — разность верхнего и нижнего значений диапазона измерения.
Результат испытания считать положительным, если значения дополнительной погрешности gДОП(1)
и gДОП(2)
не превышают значения, указанного в п. 1.3.9.
4.7.2 Проверку дополнительной погрешности прибора вызванной воздействием электромагнитных полей напряженностью 400А/м, создаваемых переменным током с частотой питающей сети, проводить в следующей последовательности:
- прибор МИТ-40 поместить в центре катушки, создающей равномерное переменное магнитное поле. Средний диаметр кольца катушки должен быть не менее, чем в 2,5 раза больше габаритных размеров МИТ-40. Напряженность магнитного поля и внутри катушки в А/м определять по формуле:
H = 1.44IW/D, (3)
где: I – сила тока, протекающего через обмотку, А;
W – число витков обмотки каждого из колец;
D – средний диаметр кольца, м.
- на любом канале испытуемого прибора выбрать (запрограммировать) тип и НСХ первичного преобразователя согласно табл.1;
- в зависимости от выбранного типа и НСХ датчика подать на вход канала сигнал аналогично п. 4.6 соответствующий диапазону измерения канала;
- испытуемый прибор поместить в магнитное поле в двух взаимно перпендикулярных положениях так, чтобы силовые линии магнитного поля проходили перпендикулярно передней панели, затем перпендикулярно боковым стенкам и при каждом положении зафиксировать показания индикаторного табло при отсутствии электромагнитного поля Т0
и при воздействии электромагнитного поля ТИ
. Рассчитать дополнительную погрешность при обоих положениях прибора по формуле:
gДОП
= [(ТИ
– Т0
)/Д]×100%, (3)
где: ТИ
— результат измерения при воздействии электромагнитного поля, ºС;
Т0
— результат измерения без воздействия электромагнитного поля, ºС;
Д — разность верхнего и нижнего значений диапазона измерения
Результат испытания считать положительным, если дополнительная погрешность не превышает значения, указанного в п. 1.3.9.
4.7.3 Проверку дополнительной погрешности прибора от изменения напряжения питания выполнить по методике определения основной погрешности (п. 4.6), но при напряжениях питания 198В, 209В, 231В и 242В. Проверку выполнить на одном (произвольно выбранном) канале и с одним типом первичного преобразователя в 5 контрольных точках равномерно распределенных по всему диапазону измерения. Зафиксировать показания на индикаторном табло (в каждой контрольной точке) при напряжении питания 209В, 198В, 231В и 242В и рассчитать значения дополнительной приведенной погрешности по формулам:
gДОП (1)
= [(Т209
– Т198
)/Д]×100% ;
gДОП (2)
= [(Т242
– Т231
)/Д]×100% , (4)
где: Т198
, Т209
, Т231
, Т242
— результаты измерения при напряжении питания 198В, 209В, 231В и 242В,
Д — разность верхнего и нижнего значений диапазона измерения
Результат испытания считать положительным, если значения дополнительной погрешности gДОП
(1)
и gДОП
(2)
не превышает значения, указанного в п. 1.3.9.
4.8 Проверку времени измерения по одному каналу (пп.1.3.3, 1.3.4) проводить в автоматическом режиме работы прибора при наличии сигнала на входе канала методом измерения длительности измерительного тока в входной цепи канала при помощи запоминающего осциллографа.
Измерения необходимо проводить в автоматическом режиме работы прибора отдельно для каналов, настроенных для работы с термопреобразователями сопротивления и термопарами.
Допускается проверку времени измерения проводить для одного, произвольно выбранного канала, если все каналы прибора настроены для работы только с термопреобразователями сопротивления или только с термопарами и для двух каналов, если прибор настроен для работы с термопарами и термопреобразователями сопротивления.
Прибор считается выдержавшим испытания, если длительность импульса тока не превышает указанного в пп. 1.3.3, 1.3.4.
4.9 Проверка времени установления рабочего режима (п.1.3.6).
Для проверки времени установления рабочего режима подключить прибор руководствуясь схемами приведенными в приложении 4 и используя, в зависимости от калибровки канала (т.е. типа и НСХ преобразования датчика), в качестве ТС магазин сопротивлений R , а в качестве ТП источник постоянного напряжения (mV).
С помощью магазина сопротивлений (R) или источника постоянного напряжения (mV), в зависимости от градуировки испытуемого канала, подать на вход канала сигнал соответствующий диапазону измерений согласно табл.1.
Включив одновременно сетевое питание прибора и секундомер, зафиксировать время в момент появления показания на индикаторном табло прибора.
Допускается проверку времени установления рабочего режима проводить для одного, произвольно выбранного канала.
Результат испытания считать положительным, если время установления рабочего режима соответствует п.1.3.6.
4.10. Проверку функционирования уставок предельных значений температуры (пп. 1.2.3.2, 1.2.3.3, 1.2.3.5, 1.3.8), диапазона изменения уставок, дискретности изменения уставок, энергонезависимой памяти для записи уставок и программируемых выходов управления проводить подключив прибор, аналогично п. 4.6.
Проверку уставок проводить для четырех предельных значений температуры: 0,0; 100,0; 100,1 и 1000°С. (Проверка 1000 °С производится для каналов, диапазон измерения которых включает точку 1000°С, для каналов с верхней точкой диапазона измерения ниже 1000°С, четвёртую точку проверки уставок брать равной верхней границе диапазона измерения).
Для проверки необходимо:
выбрать нужный канал;
запрограммировать необходимые уставки, руководствуясь методикой изложенной в паспорте);
установить на входе канала сигнал, соответствующий температуры ниже значения уставки (если уставка запрограммирована на “превышение”), или выше (если уставка запрограммирована на “занижение”);
плавно изменяя сигнал на входе прибора и следовательно показания прибора в сторону уставки, добиться совпадения показаний прибора со значением уставки;
при этом должны начать мигать сигнальная лампочка и индикатор номера канала, информирующие о превышении/занижении значения уставки.
Операцию проверки необходимо повторить для всех приведённых выше предельных значений для каждой уставки, допускается при проверке первую и вторую уставки программировать одновременно на разные величины приведённых выше предельных значений, но одна должна срабатывать на превышение другая на занижение так, чтобы диапазоны их срабатывания не пересекались.
Проверку функционирования уставок предельных значений температуры, диапазона изменения уставок предельных значений температуры, дискретности изменения уставок предельных значений температуры, энергонезависимой памяти для записи уставок и программируемых выходов управления допускается проводить для двух произвольно выбранных каналов.
Результат испытания считать положительным, если удалось установить все уставки (предельные значения температуры) и при сигнале на входе канала соответствующем уставке срабатывает сигнализация.
4.11 Проверка приборов в упаковке на воздействие температуры окружающего воздуха, соответствующей условиям транспортирования (п.1.2.6), производится по методике ГОСТ 12997. После выдержки в климатической камере в течение 1ч. приборы подвергаются естественному нагреву (охлаждению) до нормальной температуры, указанной в п. 1.2.14, и выдерживаются при этих условиях не менее 6 ч, а затем проверяются на соответствие требованиям п.1.2.11 и п.1.3.1, при этом испытание на соответствие п. 1.3.1 проводится на одном произвольно выбранном канале и в одной контрольной точке по методике п. 4.6.
Результат испытания считать положительным, если прибор соответствует требованиям п.п. 1.2.11 и 1.3.1.
4.12 Испытания приборов в транспортной таре на воздействие верхнего значения относительной влажности, соответствующей условиям транспортирования (п.1.2.6), производится в климатической камере по методике ГОСТ 12997. После испытаний приборы распаковать и выдержать при нормальной температуре, указанной в п. 1.2.14, не менее 6 ч, а затем приборы проверяются на соответствие требованиям п. 1.2.11 и п. 1.3.1, при этом испытание по п. 1.3.1 проводится на одном произвольно выбранном канале и в одной контрольной точке по методике п. 4.6.
Допускается испытания проводить без транспортной упаковки, при этом прибор должен быть упакован в чехол из полиэтиленовой пленки.
Результат испытания считать положительным, если отсутствуют следы коррозии и прибор соответствует требованиям п.п. 1.2.11 и 1.3.1.
4.13 Испытания приборов на устойчивость к механическим воздействиям и на воздействие механико-динамических нагрузок на прибор в транспортной таре.
4.13.1 Испытания на виброустойчивость (п.1.2.7) проводить на вибростенде, у которого отклонения параметров вибрации от номинального значения не должны превышать:
± (15%S + 0,05) мм - по амплитуде;
± (10%f +2) Гц - по частоте, где
S – амплитуда перемещений, мм;
f – частота вибрации, Гц.
После испытания прибора по методике п.4.6 (определение основной погрешности в нормальных условиях) прибор закрепить к столу вибростенда в эксплуатационном положении и вновь включить.
Установить частоту вибрации вибростенда, соответствующую нижнему значению диапазона (10 Гц) и плавно изменять ее до верхнего значения диапазона (500 Гц). Скорость прохождения диапазона частот должна обеспечивать общую продолжительность воздействия вибрационных нагрузок не менее 60мин. При воздействии вибрации определить значение абсолютной погрешности по методике п.4.6 во всех контрольных точках одного произвольно выбранного канала.
По окончании испытаний провести внешний осмотр с целью выявления механических повреждений и ослабления крепления.
Результат испытания считать положительным, если отсутствуют механические повреждения и значение основной приведенной погрешности прибора не превышает значений указанных в п. 1.3.1.
4.13.2 Испытания на воздействие механико-динамических нагрузок на прибор в транспортной таре.
Испытания прибора в транспортной таре проводить на ударном стенде в направлении, обозначенном на таре манипуляционным знаком «Верх не кантовать», воздействием ударных нагрузок в течение 1 ч с числом ударов не менее 1000 при пиковом ударном ускорении 98 м/с2
и длительностью ударного импульса 16 мс.
Результат испытания считать положительным, если отсутствуют механические повреждения и прибор соответствует требованиям п.п. 1.2.11 и 1.3.1, при этом испытание на соответствие п. 1.3.1 проводится на одном произвольно выбранном канале и в одной контрольной точке по методике п. 4.6.
4.14 Проверку работоспособности прибора при повышенном (пониженном) напряжении питания проводить по методике п.4.6 на одном произвольно выбранном канале и в одной контрольной точке при напряжении питания: 209, 220 и 231В.
Примечание.
Допускается это испытание совмещать с определением дополнительной погрешности при повышенном (пониженном) напряжении питания по п.4.7.3.
Результат испытания считать положительным, если значение основной приведенной погрешности прибора не превышает значений указанных в п. 1.3.1.
4.15 Проверка функционирования записи информации в энергонезависимую память (п.1.2.3.3).
Проверку проводить, подключив прибор аналогично п. 4.6.
Для проверки выберите любой канал, подайте на вход канала сигнал, соответствующий температуре в диапазоне измерения выбранного канала, запомните (занесите в буфер) показания и выждите 10 минут. Измените значение сигнала на входе канала и запомните (занесите в буфер) новые показания прибора и снова выждите 10 минут.
Проверьте информацию, занесенную в буфер памяти для данного канала.
Допускается проверку информации, заносимой в энергонезависимую память проводить для одного произвольно выбранного канала.
Прибор считается выдержавшим испытания, если при просмотре буфера сначала появляются показания (одно или несколько) соответствующие измерениям последнего значения температуры, затем соответствующие измеренииям предыдущего значения температуры.
4.16. Проверка работы интерфейса RS485 (п. 1.2.3.4).
Включите прибор (приборы) по схеме, приведенной в приложении 4, включите персональный компьютер. Запустите программу, считывающую показания прибора, установив в ней сетевой номер соответствующий сетевому номеру проверяемого прибора.
Сравните показания прибора с информацией на экране персонального компьютера.
Прибор считается выдержавшим испытания, если показания прибора и значения на экране персонального компьютера для одинакового номера канала совпадают.
4.18. Контроль мощности, потребляемой прибором от сети, (п.1.2.17) проводить по схеме приложения 4 ваттметром PW.
Допускается проверку мощности, потребляемой прибором от сети, проводить при помощи амперметра и вольтметра, включенных в цепь питания прибора.
Прибор считается выдержавшим испытания, если потребляемая мощность не более указанной в п.1.2.17.
4.19 Проверка электрической прочности изоляции (п. 1.2.10) и электрического сопротивления изоляции (п. 1.2.11).
4.19.1 Проверку электрической прочности изоляции цепи питания прибора относительно клеммы заземления проводить на универсальной пробойной установке УПУ-10 при условиях п.1.2.14.
Выход переменного напряжения пробойной установки подключить между замкнутыми накоротко клеммами питания и клеммой заземления прибора.
Включить установку, напряжение плавно поднять в течение 5-10 с от 0 до заданного в п.п. 1.2.10 значения, и выдержать в течение 1 мин., после чего плавно снять напряжение и выключить установку.
Прибор считается выдержавшим испытания, если во время испытания не обнаружено пробоя или поверхностного разряда.
4.19.2 Проверку электрического сопротивления изоляции (п.1.2.11) цепи питания и сигнальных цепей прибора относительно клеммы заземления проводить в нормальных условиях (п.1.2.14) мегаомметром с номинальным напряжением 100 В.
Отсчет показаний по мегаомметру проводить по истечении 1 мин. После приложения напряжения между:
1) замкнутыми накоротко клеммами питания и клеммой заземления прибора;
2) замкнутыми накоротко сигнальными клеммами и клеммой заземле- ния прибора.
Прибор считается выдержавшим испытания, если сопротивление изоляции соответствует указанным в п. 1.2.11 значениям.
5. ТРАНСПОРТИРОВАНИЕ И ХРАНЕНИЕ
5.1. Транспортирование упакованного прибора должно производится любым видом транспорта при температуре окружающей среды от –25°С до +50°С и относительной влажности воздуха до 95 % при температуре +35°С. При транспортировании должна быть предусмотрена защита от попадания атмосферных осадков и пыли.
5.2 Во время погрузо-разгрузочных работ и транспортирования ящики не должны подвергаться резким ударам и воздействию атмосферных осадков. Способ укладки ящиков на транспортное средство должен исключать их перемещение.
5.3 После транспортирования при отрицательных температурах использование прибора допускается после выдержки в отапливаемом помещении в течение 24 часов.
5.4 Прибор должен храниться в чистых сухих помещениях с температурой окружающей среды от 10 до 35 °С и относительной влажностью не более 80 %. Воздух в помещении не должен содержать пыли, паров кислот и щелочей, а также газов, вызывающих коррозию.
6. УКАЗАНИЯ ПО ЭКСПЛУАТАЦИИ
6.1. Указания по установке и эксплуатации прибора МИТ-40 приведены
в документе «Многоканальный измеритель температуры МИТ-40. Паспорт».
6.2. К работе с прибором допускаются лица, прошедшие обучение и проверку знаний действующих на предприятии инструкций по технике безопасности, обслуживанию оборудования и изучившие правила эксплуатации и методику настройки прибора, приведенные в поставляемом с прибором паспорте.
7. ГАРАНТИИ ИЗГОТОВИТЕЛЯ
7.1. Изготовитель гарантирует соответствие прибора требованиям настоящих технических условий при соблюдении потребителем условий транспортирования, хранения, монтажа и эксплуатации.
7.2. Гарантийный срок эксплуатации – 2 года с момента продажи
7.3. Прибор, у которого во время гарантийного срока будет обнаружено несоответствие технических характеристик, возникшее по вине изготовителя, заменяется другим или ремонтируется изготовителем.
Приложение 1.
ПЕРЕЧЕНЬ ДОКУМЕНТОВ НА КОТОРЫ ДАНЫ ССЫЛКИ В НАСТОЯЩЕМ ТУ
| Обозначение
|
Наименование
|
Номер
пункта ТУ
|
| ГОСТ 12997-84
|
Изделия ГСП. Общие технические условия.
|
1.2.5… 1.2.9,
4.11, 4.12
|
| ГОСТ 15150-69
|
Машины, приборы и другие технические изделия. Исполнения для различных климатических районов. Категории, условия эксплуатации, хранения и транспортирования в части воздействия климатических факторов внешней среды.
|
1.6.1
|
| ГОСТ Р 8.625-2006
|
Термометры сопротивления из платины, меди и никеля.
|
1.2.2
|
| ГОСТ Р 8.585-2001
|
ГСИ. Термопары. Номинальные статические характеристики преобразования
|
1.2.2
|
| ГОСТ Р 6651-94
|
Термопреобразователи сопротивления.
Общие технические требования и методы испытаний.
|
1.2.2
|
| ГОСТ Р 50342-92
|
Преобразователи термоэлектрические.
Общие технические условия
|
1.2.2
|
| ГОСТ 27.502-83
|
Надежность в технике. Система сбора и обработки информации. Планирование наблюдений
|
3.4.5
|
| ГОСТ 27.503-81
|
Надежность в технике. Система сбора и обработки информации. Методы оценки показателей надежности.
|
3.4.5
|
| ГОСТ 21130-75
|
Изделия электротехнические. Зажимы заземляющие и знаки заземления. Конструкция и размеры.
|
1.5.4
|
| ГОСТ 14192-96
|
Маркировка грузов.
|
1.5.5
|
| ГОСТ 27.410-87
|
Надежность в технике. Методы контроля показателей надежности и планы контрольных испытаний на надежность.
|
3.4.3
|
Продолжение приложения 1.
| Обозначение
|
Наименование
|
Номер
пункта ТУ
|
| ГОСТ 18321-73
|
Статистический контроль качества. Методы случайного отбора выборок штучной продукции.
|
3.4.1
|
| ОСТ 25 1240-86
|
Приборы и средства автоматизации ГСП. Надежность. Методы контрольных испытаний.
|
3.4.1
|
Приложение 2.
ПЕРЕЧЕНЬ СРЕДСТВ ИЗМЕРЕНИЯ И ОБОРУДОВАНИЯ,
НЕОБХОДИМОГО ДЛЯ ПРОВЕДЕНИЯ ИСПЫТАНИЙ
1. Психрометр аспирационный. Диапазон измерений от 30 до 80 % (например, МВ-4М).
2. Барометр. Диапазон измерений от 86 до 106,7 кПа (например, БК-5).
3. Термометр ТЛ-6, (0 … 55)°С, ц.д. 0,5°С
4. Магазин сопротивлений регулируемый Р4831. Класс точности 0,02/2×10-6
.
5. Калибратор напряжения П320. Предел 100 мВ. d = ±0,015 %.
6. Климатическая камера PSL-4GM, (-70…+100), +
0.50
С
7. Вибростенд ВЭДС-200А частота (5 … 5000)Гц, ускорение 400/40 м/с2
, амплитуда ±8мм.
8. Осциллограф двухканальный цифровой запоминающий С8-23. Кразв
: 10нс/дел ¸2000с/дел. Коткл.
:1мВ/дел ¸10В/дел.
9. Автотрансформатор регулировочный РНО-250-2А (Т1). Максимальное напряжение 250 В, ток до 2 А.
10. Ваттметр переменного тока, Д5020. Класс точности 0,5, рабочее напряжение не менее 250 В, шкала 0-15 ВА.
11. Вольтметр переменного тока Э 365 (PV1). Класс точности 1,5; шкала 0-250 В.
12. Стенд для испытаний на воздействие транспортной тряски. От 80 до 120 ударов в минуту (например, СИТ-М).
13. Мегаомметр для определения электрического сопротивления изоляции Ф4102/1. Класс точности 1,5; напряжение от 100 В до 500 В ().
14. Катушка индуктивности. Напряженность магнитного поля 400 А/м, частота (50±1) Гц.
16. Универсальная пробойная установка УПУ-1М, Мощность 0,25 кВА, напряжение 0-10 кВ.
17. Весы РН-10Ц-13У, (0,1¸10) кг ±0,5 г.
18. Линейка измерительная ( ГОСТ 427-75 ). (0…300)мм ц.д. 1 мм
19. Секундомер СДСпр-1-4.
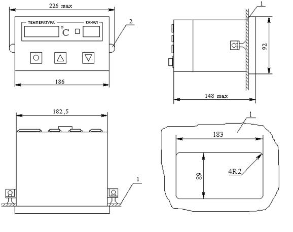
Приложение 3
Габаритные и установочные размеры.

1 – монтажный щит, 2 – монтажные детали.
Приложение 4
СХМЫ ВНЕШНИХ СОЕДИНЕНИЙ И СХЕМЫ СОЕДИНИТЕЛЬНЫХ КАБЕЛЕЙ
X1 X2 X3 X4
X5 X6
X7 X8
      X9
Пр.
Вид прибора со стороны задней панели
В 24 канальной модификации разъёмы Х7 и Х8 отсутствуют.
В 8 канальной модификации разъёмы Х5, Х6, Х7,Х8 отсутствуют.
Схемы кабелей для подключения прибора:

Кабель № 1
Питание прибора.
Продолжение приложения 4
.

Кабель №2а
Подключение термопреобразователей сопротивления.
Продолжение приложения 4.

Кабель №2б
Подключение термопар.
Продолжение приложения
4
.

Кабель №2в
Пример подключения старшего номера разъёма при применении термопар.
Продолжение приложения 4.

Кабель№3
Подключение устройств управления и сигнализации.

Вилка DB-9M Розетка DB-9F
Вид со стороны монтажа Вид со стороны монтажа
Кабель №4.
Cвязь между приборами по каналу RS485.
Продолжение приложения 4.
Кабель №5.
Cвязь между прибором и конвертором КС-1.
Розетка DB-9F Розетка DB-9F
Вид со стороны монтажа Вид со стороны монтажа
Кабель № 6
Cвязь между конвертором КС-1 и компьютером.
Продолжение приложения 4.
Заглушка.
Устанавливается на последнем в линии приборе.
Продолжение приложения 4.

Схема подключения приборов МИТ-40 к ЭВМ.
|