| Министерство образования и науки Республики Казахстан
Павлодарский государственный университет
им. С.Торайгырова
Факультет архитектура и строительства
Кафедра архитектура и дизайн
АРХИТЕКТУРНЫЕ ОБМЕРЫ
Методические указания по учебной обмерной практике для студентов специальностей Архитектура и Дизайн
Павлодар
УДК 72.021(07)
ББК 85.11я7
Д 87
Рекомендовано Учёным советом ПГУ им. С. Торайгырова
Рецензент
:
кандидат технических наук, доцент Никифорова В. Г.
Составитель
У.И. Каирбеков
Д23 Архитектурные обмеры: методические указания по учебной обмерной практике для специальностей 05420 – «Архитектура» и 06420 – «Дизайн» / сост. У.И.Каирбеков. – Павлодар, 2006. – 31 с.
В методическом указании приводится рекомендации и правила проведения обмерных работ по учебной практике обмеров исторических архитектурных сооружении. Показаны цели и задачи обмерной практики, ее место в учебном процессе.
Методическое указание разработано в соответствии с ГОСО РК 3.08.051 -2004 и 3.08.052 -2004 г., от 07.08.2004 г., №671.
Рекомендуется студентам 1-го курса специальности архитектуры и дизайн.
УКД 72.021(07)
ББК 85.11я7
©Каирбеков У.У., 2006
©Павлодарский государственный университет
им. С. Торайгырова, 2006
Содержание
Введение………………………………………………………… 2
1 Цели и задачи обмерной практики……………………………… 5
2 Материалы и инструменты........................................................... 6
3 Рисунок........................................................................................... 7
4 Рекомендации по производству обмеров..................................... 6
5 Порядок производства обмеров.................................................... 9
6 Обмеры планов…………………………………………………... 12
6.1 Обмер внутренних контуров…………………………………… 12
6.1.1 Способ засечек ………………………………………………… 12
6.1.2 Полярный способ……………………………………………….. 13
6.1.3 Способ (триангуляционный) координат……………………….. 13
6.1.4 Обмеры помещении со столбами………………………………. 14
6.1.5 Способ треугольник ……………………………………………. 15
6.1.6 Обмеры нескольких помещений, связанных в одно целое…… 16
6.1.7 Обмеры помещений, разделенных глухой стеной……………. 17
6.1.8 Обмеры кривых линий………………………………………….. 19
7 Обмеры внешних контуров ……………………………………. 19
7.1 Способ засечек………………………………………………… 19
8 Высотные обмеры……………………………………………….. 20
8.1 Обмеры фасадов………………………………………………… 20
8.2 Обмер разреза................................................................................ 22
Забиваем Сайты В ТОП КУВАЛДОЙ - Уникальные возможности от SeoHammer
Каждая ссылка анализируется по трем пакетам оценки: SEO, Трафик и SMM.
SeoHammer делает продвижение сайта прозрачным и простым занятием.
Ссылки, вечные ссылки, статьи, упоминания, пресс-релизы - используйте по максимуму потенциал SeoHammer для продвижения вашего сайта.
Что умеет делать SeoHammer
— Продвижение в один клик, интеллектуальный подбор запросов, покупка самых лучших ссылок с высокой степенью качества у лучших бирж ссылок.
— Регулярная проверка качества ссылок по более чем 100 показателям и ежедневный пересчет показателей качества проекта.
— Все известные форматы ссылок: арендные ссылки, вечные ссылки, публикации (упоминания, мнения, отзывы, статьи, пресс-релизы).
— SeoHammer покажет, где рост или падение, а также запросы, на которые нужно обратить внимание.
SeoHammer еще предоставляет технологию Буст, она ускоряет продвижение в десятки раз,
а первые результаты появляются уже в течение первых 7 дней.
Зарегистрироваться и Начать продвижение
8.3 Обмеры деталей ............................................................................ 24
9 Содержание практики................................................................... 24
Словарь терминов……………………………………………… 26
Литература……………………………………………………….. 27
Приложение А …………………………………………………...28
Приложение Б).................................................................................29
Приложение В..................................................................................30
Приложение Г..................................................................................31
Введение
Производство архитектурных обмеров практикуется с давних времен, но особенное развитие они получили в эпоху Возрождения, когда многие архитекторы Италии занимались обмерами сохранившихся античных сооружений, использовали в дальнейшем обмерные данные в своей практической деятельности и для теоретических обобщений. В результате этих обмеров ряд известных архитекторов, занимавшихся разработкой теоретических вопросов, создали системы архитектурных ордеров и правила их построения, что оказало большое влияние на последующее развитие мировой архитектуры.
Изучение архитектурных памятников помогает современным архитекторам и дизайнерам не только раскрыть творческие приемы выдающихся мастеров, но и постичь особенности архитектурных стилей различных эпох. Рассматривая архитектурный объект, трудно «на глаз» определить его точные размеры. Для выполнения чертежей этого объекта или его элементов нужны обмеры.
Обмер – это работа, выполняемая с помощью измерительных инструментов, для определения точных размеров объекта. Объектом обмера могут быть любые предметы материальной среды. Выполнение чертежей сооружения по его обмерам – самый точный и верный метод изображения. При работе над обмерами невольно приходится обращать внимание на первоначальный облик объекта обмера, на материалы, на методы производства работ, на пропорции. Можно обнаружить наличие математических закономерностей, взаимосвязь отдельных частей и целого и т. п. Такого рода наблюдения дают возможность полнее проанализировать обмеряемый объект и понять его художественную ценность. Степень точности обмеров бывает различной и зависит: от тех возможностей, какие имеются на месте; от времени, которым распологает исполнитель обмеров; от преследуемых целей и от особенностей объекта.
Сервис онлайн-записи на собственном Telegram-боте
Попробуйте сервис онлайн-записи VisitTime на основе вашего собственного Telegram-бота:
— Разгрузит мастера, специалиста или компанию;
— Позволит гибко управлять расписанием и загрузкой;
— Разошлет оповещения о новых услугах или акциях;
— Позволит принять оплату на карту/кошелек/счет;
— Позволит записываться на групповые и персональные посещения;
— Поможет получить от клиента отзывы о визите к вам;
— Включает в себя сервис чаевых.
Для новых пользователей первый месяц бесплатно.
Зарегистрироваться в сервисе
Учебная обмерная практика является составной частью дисциплины «Архитектурная графика и композиция 1,2 » и «Архитектурная графика и макетирование ». Приобретение профессиональных навыков по обмеру зданий и сооружений необходимо архитекторам и дизайнерам при составлении инвентаризационных чертежей, для подсчета объемов кубатуры зданий и площадей отдельных помещений, для составления смет на ремонтные работы, для оценки зданий и т.д.
Обмеры необходимы при сооружений рядом с существующими, когда необходимо учитывать архитектурные особенности существующих зданий для изготовления чертежей при перестройке и
перепланировке зданий, а особенно для составления чертежей планов, фасадов, разрезов, деталей архитектурных памятников, имеющих архитектурное или художественное значение.
1 Цели и задачи обмерной практики
Целью обмерной практики является обучение студентов – архитекторов и дизайнеров практическим навыкам и приемам графической фиксации современного состояния (на момент обмера) зданий и сооружений путем обмера их в натуре. Многие замечательные архитектурные сооружения прошлого с течением времени оказались полностью или частично разрушенными или перестроенными таким образом, что совершенно утеряли свой первоначальный облик.
Наличие своевременно сделанных обмерных чертежей дает возможность изучения этих сооружений, их восстановления и реставрации. Архитектурные увражи являются основой при изучении памятников архитектуры, их художественном анализе, раскрытии закономерностей их композиционных приемов и пропорции. Обмерная практика дает возможность непосредственного конкретного знакомства с архитектурным сооружением, его элементами и структурой. Для начинающих обучаться основам архитектуры чрезвычайно полезно также ощутить истинные, натуральные размеры архитектурных форм.
В результате изучения методов и приемов архитектурных обмеров студенты должны знать:
- виды обмерных работ (которые отличаются по степени точности в зависимости от целей), для которых производится обмер здания;
- уметь пользоваться основными инструментами, которые применяются для обмеров зданий и сооружений;
- уметь правильно графически выполнить чертежи планов, фасадов, разрезов, деталей архитектурных памятников по размерам («крокам»).
Для прохождения обмерной практики необходимо усвоить следующие дисциплины:
- история мировой культуры;
- архитектурная графика и композиция I, и II;
- архитектурная графика и макетирование (линейная и тональная графика);
- геодезия;
- рисунок.
2 Материалы и инструменты
Инструменты, которые используют при обмерах, можно подразделить на основные и вспомогательные. К основным обязательным инструментам относится: рулетка, отвес и уровень и теодолит или электронный тахеометр, к вспомогательным – компас, шнурки и проволка.
Рулетка необходима для измерения длины и высоты. Рулетку лучше использовать стальную длиной от 3 до 10 метров.Для измерения больших высот применяется шесть к концу которого прикрепляется рулетка. Если для обмеров используются несколько рулеток, то все они должны быть сверены по длине. Удобно и деревянные рейки с нанесенными на них делениями. Наиболее практичны рейки длиной 3-4 метра, шириной 3-5 см и толщиной 1,5-2 см. Прямизна рейки-главное условие правильного измерения.
Отвес – самый простой из всех применяемых инструментов для проверки вертикальности элементов сооружения легко может бвть сделан на месте работы. Тяжелый предмет, привязанный к нити, леске, шнуру и т. д.
Уровень необходим для проверки горизонтальности линий и поверхностей. Удобно использовать для проверки горизонтальности теодолит или нивелир, но это сложные инструменты и не всем доступнны. Если под руками не оказались профессионального уровня можно использовать для его изготовления бутылку, в которую наливать воду так, чтобы в ней осталось немного воздуха, и плотно закрывают прбку.
Компас служит для определения ориентации объекта по сторонам света.
Шнуры и проволка служат для изготовления причалок. Причалка – это шнур или проволка натянутая строго горизонтально на одном уровне с нулевой линией. Если длина причалки большая, то для него выполняют промежуточные опоры. Причалки используют при обмерах методом зачесек, при проверке горизонтальности и вертикальности стен.
3 Рисунок
Архитектурный рисунок, т. е. изображение средствами графики, при помощи глазомера и от руки архитектурных объектов и их частей и деталей, имеет болшое и разнобразное применение в деятельности архитектора и дизайнера.
Архитектурный рисунок является также средством изображения архитектурных сооружений и их деталей при производстве обмеров. Так, например, первоначальные изображения архитектурных частей в ортогональных проекциях, выполняемые при обмерах для указания размеров, делаются методом рисунка. Так называемые кроки, сделанные непосредственно на натуре, являются ценными первичными материалами архитектурных обмеров.
4 Рекомендации по производству обмеров
Фиксация памятников архитектуры осуществляется как путем их изображения в целом или частях на рисунках и акварелях или подробного фотографирования, так и путем снятия прорисей и эстампажей с отдельных элементов и, главным образом, с помощью обмеров с последующим изготовлением по ним чертежей. Во всех этих случиях важна предельно возможная точность осуществляемых работ.При выполнении рисунков следует заботиться об их ясности и правдивости, о передаче особенностей здания.
Фотография позволяет получить документальные изображение здания не только в минимальный срок, но и с большой точностью и часто с достаточной полнотой. Но при этом не допустимо фотографирование сооружений в сильном ракурсе, создающем неверное представление о пропорциях. Кроме того, при фотографировании желательно помещать рядом со снимаемым объектов рейку или тесьму с делением на дециметры или сантиметры в зависимости от размера фотографируемого предмета. При фотографировании здания не следует ограничиваться съемкой только внешних и внутренних видов здания и его деталей. Надо фотографировать все что говорит о состоянии здания и производившихся в нем переделках. Фиксировать следует те древние части здания и остатки его декоративной обработки, которые сохранились на чердаках внутри позднейших пристроек и т. п., а так же и те места, где видны какие – либо переделки и искажения, или строительный материал, или деформации и разрушения отдельных элементов.
Самый точный, дающей наибольшее количество данных для суждений обо всех особенностях здания и об его состояний, является фиксация памятников архитектуры посредством обмеров и выполнения по ним чертежей.
В зависимости от поставленной цели и, соответственно, точности, предъявляемой к обмерам, они разделяются на обмеры схематические, архитектурные и архитектурно – археологические.
Когда к обмерам предъявляются не слишком завышенные требования, например, для возможности использования их в проектно – технической документации по текущему ремонту памятников архитектуры, то обычно ограничиваются производством архитектурного обмера.
При таких обмерах все линии и углы здания, кажущиеся прямыми принимаются за такие, и правильность их не проверяется дополнительными промерами. Те части здания, которые по смыслу его композиции должны быть равными (например, оконные проемы, простенки), измеряются лишь в одном случае, как и повторяющиеся детали. Кривые линии планов, разрезов и фасадов также обмеряются упрощенно, фиксируя заческами или по координатам положение пят и шелыги арок, сводов, апсид.
Архитектурные обмеры в отдельных случаях могут быть основанием и для некоторых видов реставрационных работ, в особенности по зданиям позднейших сроков.
В начале архитектурных обмеров, по натуре должны быть произведены глазомерные зарисовки всех его частей, подлежащих обмеру – составление обмерные схемы (кроки) планов, фасадов, разрезов, фундаментов и т. д.
Изучение объека, начатое в процессе обмеров, продолжается и в процессе выполнения чертежей по обмерам. Тогда особенно ясными становятся несоответствие или, наоборот полная согласованность отдельных элементов, что способствует получению новых данных об архитектуре здания и о возможностях для его реставрации. Так, например, в чертежах замечается разница в толщине стен в разных местах здания и т. д. При этом иногда удается установить различное время постройки разных частей здания или наличие поздних пристроек к наружным стенам более древней части здания. Позволяет осмыслить причины, заставившие строителей сделать некоторые из стен более толстыми и т. д.
На чертежах легче, чем в натуре, понять и такие переделки, как заложение оконных проемов, превращенных в нищи после закладки. На чертёже, исходя из композиции плана можно обнаружить древнюю часть здания6 или точнее, древнее здание, оказавшееся частью нового, образованного пристройками. Все это помогает архитектору – реставратору сделать свою дальнейшую работу более целеустремленной. Первые соображения о первоначальном виде здания рождающиеся в процессе обмеров и выполнения чертёжей, подсказывают, где и какие нужно провести дополнительные исследования для получения новых данных. Ценные сведения для суждения о первоначальном виде здания и направлении дальнейших поисков может дать сопоставление разрезов и фасадов здания. Оно сразу показывает несоответствие внутренних высот, например, вида сводов, покрывающих здание, внешней композиции верха последнего, что в свою очередь дает возможность понять характер произведенных переделок.
5 Порядок производства обмеров
Предворительно изучается здание для выявления в нем прямых линий с целью обмера их простейшими способами (натягивания шнура возле горизонтальных линий и опусканием отвеса возле вертикальных). После этого производятся черновые зарисовки планов, фасадов, разрезов и деталей (с возможно большей тщательностью); отбивка по уровню горизонтальных линий; обмеры и вычерчивание. Вести работы по обмерам не только маленьких, но больших объектов может и один человек. Для этого при измерениях приходится закреплять один конец рулетки. Но темп работы при этом невысок. Поэтому, для производства обмеров, лучше работать втроем: один держит конец рулетки, другой делает отчет, третий записывает результаты обмеров. При необходимости произведения обмеров в короткий срок следует вести работу несколькому группами.
Прежде чем приступить к обмерам, нужно запомнить несколько правил и использовать их в работе. Вот они:
- обмерять объект начинают с плана, затем переходят к высотам, далее к деталям;
- планировку и благоустройство территории обмеряет отдельно;
- при обмерах следует индивидуально подходить к различным частям объекта и действовать в зависимости от характера и степени их художественной ценности;
- все измерения лучше вести от реальных точек (углов, проемов, колонн и т. д.), положение которых зафиксировано независимо от прямизны стен;
- измерения следует начинать с нулевой отметки рулетки и на всю ее длину, а не по частям;
- обмеры лучше вести все время в одну сторону, чтобы погрешности накапливались лишь в одну сторону;
- при простых обмерах те линии, которые визуально кажутся прямыми, вертикальными и горизонтальными, за таковые и принимаются. Если углы кажутся прямыми, их следует принимать за таковые;
- там, где требуется большая точность измерений, производят проверку углов путем измерения диагоналей;
- тесьму рулетки следует натягивать как можно ближе к стене, для того чтобы ставить отметку, которой измеряется расстояние;
- по мере выполнения обмеров следует тут же выполнять и чертежи по ним, чтобы сразу выявить отсутствие какого-либо измерения или неувязок. Наиболее употребительными для планов, фасадов и разрезов являются масштабы 1:50 – 1:100, для деталей – 1:2 – 1:10.
Прежде чем начать производить обмеры следует провести как внутри, так и снаружи горизонтальную нулевую линию, от которой в последствии ведется измерение. Ее проводят по всему периметру обмеряемого объекта, по колоннам, отдельно стоящим деталям, если таковые имеются. Расстояние от пола или земли до этой линии должно быть таким, чтобы было удобно делать от нее измерения. Проводить такую линию на стенах следует чем-либо оставляющим заметные , но легко стирающиеся следы (мел, цветной карандаш, уголь ). В зданиях, имеющих богатую отделку, вместо нулевой линии делаются нулевые отметки на углах помещений, проемов, пилястр и т.д. Если архитектурная обработка не позволяет сделать и это, то между двумя точками натягивается шнур.
При упрощенном методе обмеров, когда не задаются целью фиксировать все неправильности кладки и деформации, можно принять за нулевую линию какое-либо из горизонтальных членений.
Далее следует проверить перпендикулярность горизонтальных и вертикальных линий. Для этого можно использовать принцип « египетского» треугольника (рис.1).
Рисунок -1
Египетский треугольник
Если катеты треугольника имеют величину три и четыре, а гипотенуза – пять, то катеты взаимно перпендикулярны. Для проверки прямизны стен пользуются следующим способом: натягивают шнур вдоль стены и измеряют расстояние от стены до шнура с помощью линейки (рис.2).
Рисунок -2
Измерение с помощью шнура
При простых обмерах толщина стен принимается за постоянную величину на всем ее протяжении, и внешний контур получают путем прибавления этой величины к внутренней части. В более точных обмерах стены измеряются от условных прямых, положение которых связывается с какими-либо точками внутри объекта.
В простых обмерах длины, широты и высоты основных частей объекта измеряются лишь по одному разу, повторяющиеся элементы обмеряются полностью в одном месте, а для остальных фиксируется только их положение. В сложных обмерах все элементы обмеряются отдельно и до мельчайших подробностей.
Кривые линии измеряются по ряду точек. Чем больше точек взято на кривой, тем точнее она будет построена на чертеже.
6 Обмеры планов
6.1 Обмер внутренних контуров
6.1.1
Способ засечек
Обмеры планов – наиболее простые обмеры, так как для них, как правило, не нужны подмости и лестницы. Обмер плана можно вести несколькими способами, которые описаны ниже.
Этот способ обмеров носит еще и название триангуляционного. При нем все точки связывают между собой промерами, разбивающими весь план на треугольники. В простейшем случае сначала измеряют расстояние между двумя точками А и В и принимают эту величину за основу (базис). Далее измеряют расстояние от концов
этого отрезка до любой из точек плана (рис.3). Таким образом, на чертеже положение любой из точек может быть получено при помощи засечек, проведенных из обоих концов базиса радиусами, равными расстояниями от точки до каждого из этих концов
Чем больше берется таких точек на контуре плана, тем точнее будут обмеры. В то же время нужно следить за тем, чтобы линии, соединяющие каждую из точек с концами базисов, не пересекались между собой под очень острыми или очень тупыми углами. Иначе пересечение будет неточным. Лучше, если линии будут образовывать угол в 30 – 150.
Два вышеописанных способа обмеров должны дополнять друг друга. В случае расхождения показаний между ними следует отдавать предпочтение промерам по координатам.
Рисунок - 3
Способ засечек
6.1.2
Полярный способ
Этот способ обмеров похож на вышеописанный, но расстояния измеряются не от двух точек, а от одной. В этом случае план разбивается на треугольники, образуемые прямыми линиями, проведенными от исходной точки (полюса) до всех определяющих план точек (рис. 4).

Рисунок - 4
Полярный способ
При выполнении чертёжей сначала откладывают расстояние между одной из точек и полюсом, затем, при помощи засечек от них до второй точки плана, определяют положение третьей, и, продолжая работу тем же порядком, получают весь план, приставая один треугольник к другому. Этот способ дает возможность объединить в одно целое обмеры засечками с обмерами вдоль стен, но он неудобен тем, что при ошибке в одном измерении и неправильном размещении на чертёже одной из точек плана, положение всех остальных точек также будет неверным. Поэтому при полярном способе обмеров необходимо делать и контрольные измерения между точками, более или менее удаленными друг у друга.
6.1.3 Способ
(триангуляционный)
координат
Для проведения обмеров таким способом следует использовать причалку. Ее располагают в непосредственной близости от стены и от нее на обмеряемую поверхность опускают перпендикуляры, положение которых фиксируется. Длина перпендикуляров замеряется (рис.5). Этот способ обмеров очень прост.
Рисунок - 5
Способы координат
6.1.4 Обмеры помещении со столбами
Обмеры помещений, имеющих внутренние столбы начинают с того, что измеряют расстояния (прямые и диагональные) между столбами и полученную фигуру принимают за то, что в геодезии называется базисной сеткой. От каждой ее стороны , как от базиса , обмеряют противолежащие части стен. Теперь уже эти точки становятся базисами и от них обмеряются внешние углы столбов. От внешних углов столбов обмеряют части стен, которые были недоступны для обмеров из углов базисной сетки (рис.6 )
Рисунок - 6
План со столбами
Большая или меньшая сложность плана влияет лишь на трудоемкость работы, сам же принцип обмеров остается неизменным. Каждая пара точек , положение которых удается зафиксировать от какого-либо базиса, рассматривается как новый базис, служащий для обмеров от него других точек, недоступных от первого базиса.
6.1.5 Способ треугольник
При реконструкции существующих зданий, исполнительные чертёжи которых, как правило, отсутствуют, приходится обмеры здания и составлять общие архитектурно – строительные чертёжи.
Прежде чем производят тщательный осмотр здания, определяют материал основных несущих конструкций и других конструктивных элементов, знакомятся с планировкой помещений по этажам и начинают один или несколько разрезов здания и фасады.
После такого ознакомления составляют на бумаге в клетку эскиз плана первого этажа в глазомерном масштабе, сохраняя по возможности пропорции его элементов.
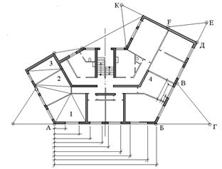
На рис. 7 изображен эскиз плана первого этажа многоквартирного жилого дома сложной конфигурации. Чтобы построить затем по эскизу на чертеже контур такого плана в масштабе, необходимо знать не только длины сторон многоугольника, но и дополнительные размеры, позволяющие строить углы, образованные смежными сторонами. Так, например, чтобы определить положение стороны БД по отношению к горизонтальной стороне АБ многоугольника , следует в натуре продолжить сторону АБ и отложить на ней при помощи рулетки или стальной ленты отрезок БГ длиною, примерно, 5 м. На стороне БД также следует отложить отрезок БВ, равный 4 – 5 м. Точки В и Г закрепляют на месте колышками или вешками и измеряют расстояние между ними. При построении плана на чертеже поступают аналогично: продолжают горизонтальную линию АБ, откладывают на ней в принятом масштабе длину отрезка БГ и строят при помощи отрезков БВ и ВГ в том же масштабе треугольник БВГ. Сторону треугольника БВ продолжают и откладывают на ней длину БД (в масштабе).
Проверку прямого угла при вершине Д многоугольника можно сделать при помощи треугольника ЕДF со сторонами, равными соответственно 3,4 и 5 м. На продолжении стороны ВД многоугольника отложим отрезок ДЕ=3м, а по стороне ДК – отрезок ДF = 4м. Закрепим колышками в натуре точки Е и F и замерим длину стороны ЕF треугольника ЕД . Если длина Е равна 5м, то угол при вершине Д – прямой, так как в прямоугольном треугольнике по теореме Пифагора сумма квадратов катетов равна квадрату гипотенузы – 3+4 = 5. Если же сторона треугольника ЕF не равна 5м, то и угол при вершине Д не прямой. Но и в этом случае треугольник ЕДF , построенный на чертеже в принятом масштабе, определит направление стороны ДК многоугольника.
После определения описанным способом углов многоугольника производят обмер наружных стен с проемами с внешней стороны здания и внутри отдельных помещений. Для большей точности обмеры рекомендуется производить от одной точки, как указано на рис. 7 Для стены АВ и внутри комнаты 4.
Толщину наружных стен измеряют обычно в оконном или дверном проеме, а толщину внутренних стен и перегородок – в дверных проемах.
При определении конфигурации и размеров отдельных комнат, их разбивают на треугольники (рис.7, комнаты 1,2 и 3) и измеряют длины сторон таких треугольников.
В такой же последовательности снимают эскизы и производят обмер других этажей здания.
Рисунок - 7
Способ треугольник
6.1.6 Обмеры нескольких помещений, связанных в одно
целое
При наличии центрального помещения и связанных в одно целое с ним широкими проемами боковых помещений, следует сначала обмерить центральное, а затем, рассматривая ширины проемов в его стенах как базисы, обмерить от каждого из таких базисов прилежащее к нему боковое помещение. В большинстве случаев приходится предварительно обмерять планы самих проемов, измеряя их стороны и диагонали, а затем уже от их внешних сторон обмерять и примыкающие к ним боковые помещения (рисунок - 8 ).
Рисунок – 8
При наличии ряда помещений, связанных между собой небольшими проемами, ход работы определяется размещением последних. При анфиладном размещении помещений с проемами, расположенными на одной оси, прежде всего, следует провести через низ во всю длину анфилады прямую линию, которую можно назвать магистралью. Отдельные части этой магистрали в пределах каждого помещения принимаются за базисы, от которых и производится обмер (рис.9 ). Если помещения соединены между собой ассиметрично располо-
Рисунок – 9
женными проемами, можно связывать их обмеры попарно короткими магистралями. Или, обмерив одно помещение, связать какие-то две точки его обмера с двумя точками в соседнем помещении и, рассматривая их как концы базиса, обмерить от него второе, что, однако, не гарантирует такой точности, как при обмерах от магистралей (рис.10 ).
Рисунок – 10
6.1.7 Обмеры помещений, разделенных глухой стеной
Если помещение разделяет глухая стена, но проемы в них выходят на один фасад, то обмеры этих помещений можно связать в одно целое при помощи причалки, установленной перед ними. Причалка натягивается горизонтально на одном уровне с нулевой линией, на высоте который обмеряется план. Перед каждым помещением на причалке берутся две точки, и от них измеряются расстояния до двух других точек внутри, положение которых фиксируется внутренним обме
ром (рис. 11 ). Точки на причалах можно отметить цветными нитками или кусочками воска, или пластилина.
Измерения, связывающие между собой эти точки должны образовать неизменяемые фигуры (треугольник).
Если проемы в соседних помещениях выходят на смежные или противоположные фасады, то внутренние обмеры каждого из этих помещений следует связать способом, указанным выше, с двумя точками на причалке, находящейся против каждого фасада и точно измерить угол между причалками (рисунок - 12 ).
Рисунок 11 Рисунок 12
Для того чтобы зафиксировать величину угла, образуемого причалками, нужно измерить длины отрезков, на каждой из них и расстояние между их концами, образующее третью сторону треугольника.
6.1.8 Обмеры кривых линий
На кривой линии берется ряд точек и от ближайшего базиса измеряется расстояние до каждой из них (13).
Количество точек на кривой зависит от ее размеров и точности проводимых обмеров. Лучше всего собрать эти точки на углах проемов, пилястр и пр., с тем, чтобы одновременно зафиксировать и кривизну стены, и положение этих деталей.
Рисунок - 13
7 Обмеры внешних контуров
7.1 Способ засечек
При достаточным количестве проемов и равномерной толщине стены, измеренная в проеме толщина стены прибавляется к внутреннему контуру.
Обмеры внешних контуров планов ведутся от причалок способом зачесек или координат.
Первый способ удобен там, где причалки далеки от стен и, следовательно, возможно от одного базиса обмерить значительную часть стены ( на рис. 14, причалка АБ). При меньших расстояниях от стен до
Рисунок - 1
причалок приходится на каждой из них брать по несколько базисов и обмерять от каждого только часть фасада. Наконец, когда это расстояние совсем мало, всю длину причалки разбивают на ряд коротеньких базисов, следующих один за другим, и замеряют от каждого из них положение одной какой – нибудь точки на противоположной стене ( см.причалки ГВ,АГ и БВ).
Обмеры по координатам более удобны там, где причалка натянута в непосредственной близости от стены, или когда приходится обмерять выпуклые кривые (см. рис. 5б.).
8
Высотные обмеры
8.1 Обмеры фасадов
При обмерах фасадов и разрезов одна горизонтальных линий,
принятых для обмеров планов, принимаются за «нулевую», и от нее делаются промеры вверх и вниз. При этом как снаружи, так и внутри проводят горизонтальную нулевую линию, от которой впоследствии и ведется измерение. Ее проводят по всему периметру обмеряемого объекта, на столбах и отдельно стоящих элементах, если таковые имеются. Расстояние от пола или земли до нее должно быть таким, чтобы удобно было делать измерения. Желательно, чтобы нулевая линия внутри и снаружи была проведена на одном уровне и якобы она не совпадала с каким – либо горизонтальным членением.
Все кажущиеся вертикальными углы и поверхности следует проверять, опуская рядом с ними отвес. В случае отклонения их от вертикали фиксировать это путем измерений расстояния между шнуром отвеса и измеряемой поверхностью на разных высотах
Лучше всего обмеры фасадов и разрезов выполнять способом засечек, разбивая их на треугольники так, чтобы у некоторых из них одна из сторон совпадала с нулевой горизонтальной линией ( рисунок -15 и 16).
Рисунок – 15 Рисунок – 16
Но осуществить такой обмер удается лишь в тех случаях, когда у фасада есть подмости или лестницы, позволяющие подойти вплотную к любой точке.
Обмеры недосягаемых снизу высот можно вести с помощью шеста с поперечной планкой, к которой прикреплена рулетка. Таким же шестом можно измерять и ширину проемов и деталей, находящихся на большой высоте. Для этого к поперечной планке прикрепляют какую – нибудь меру с делениями или наносят деления непосредственно на планку.
Для обмеров внутренних высот можно применять воздушный шарик, запускаемый на длинной и очень тонкой нитке к тем точкам потолков или сводов, до которых делаются измерения, а затем измерить длину нити до пола и вертикальный диаметр шарика.
В кирпичных зданиях с обнаженной кладкой определять высоту можно по рядам кладки. Для этого в нескольких местах замеряют высоту определенного числа рядов кирпича с таким же числом швов. На основе этих замеров выводят среднюю величину высоты одного ряда со швом, который и пользуются как единицей измерения. С большой точностью можно измерить недоступную высоту с помощью теодолита, электронного тахеометра пантометра (рис.17 и 18 ).
Рисунок - 17
При недоступности
горизонтального измерения
Рисунок – 18
При недоступности
горизонтального измерения
При менее точных обмерах для измерения высот можно использовать тень, падающую от здания на землю. При этом измеряется расстояние от конца тени до проекции на землю той точки, от которой падает тень. Одновременно с этим измеряют длину тени от какой – либо невысокой точки и высоту от земли до нее же.
Зная эти размеры, можно по правилу подобия треугольников вычислить и высоту до первой точки. Здесь необходимо только, чтобы поверхности земли была горизонтальной.
Кривые, выпуклые и вогнутые линии измеряются так же, как и планах: засечками из двух точек или по координатам, причем применение последнего способа здесь более удобно, чем при обмерах планов. Перпендикуляр, опускаемый на горизонтальную нулевую линию или перпендикуляр от горизонтальной линии на кривую, не может быть не вертикальным. При измерении кривых засечками от двух точек лучше всего брать эти точки на нулевой линии. Хотя при большом расстоянии между линией и кривой приходится поступать по иному: намечать эти точки возле кривой и связывать их с нулевой линией (рис.16).
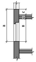
8.2 Обмер разреза
На разрезах зданий необходимо указать высоты этажей, высоты оконных и дверных проемов, расстояния от пола до подоконника, высоту цоколя, высоту здания (от уровня земли до крыши) и высоту крыши, а также толщины перекрытий( рисунок-19,20).
Рисунок -19 Рисунок -20
Обмер разреза Определение
толщины перекрытий
Толщину междуэтажного перекрытия е можно определить обмером трех величин: а – расстояния между подоконниками двух смежных этажей (рис. 17 ); b – расстояния от подоконника до потолка в нижележащем этаже; с – расстояния от пола до подоконника вышележащего этажа, так как: е = а – b – с.
Кроме этого, на разрезах проставляют выносы карниза, балкона, козырька над входом и других выступающих архитектурных элементов и высоты их. Размеры эти определяются обычными обмерами.
Если требуется составить обмерочный чертеж фасада здания, то предварительно составляют эскиз фасада, при этом длину фасадной
стены берут такой же длины, какой она изображена на эскизе плана. Это дает возможность быстро перенести с эскиза плана оконные проемы и простенки на эскиз фасада по их ширине.
Размеры на обмерочных чертежах фасадов не проставляют. Если на фасаде здания имеются мелкие архитектурные детали и украшения, то обычно составляют отдельно их эскизы, на которых и проставляют размеры после их обмера.
При составлении по эскизам обмерочных чертежей здания сначала определяют количество его изображений (поэтажных планов, разрезов и фасадов) и выбирают масштаб. Если план, разрез и фасад здания будут начерчены в одном масштабе и на одном листе, то располагают их в проекционной связи – фасад над планом и разрез рядом с фасадом (справа от него). Обмерочные чертежи графически оформляют также, как и обычные проектные чертежи здания.
Составление эскизов промышленных зданий и инженерных сооружений, обмер их и составление обмерочных чертежей, производят в такой же последовательности, какая была рассмотрена выше.
8.3 Обмеры деталей
На черновых зарисовках планов, фасадов и разрезов детали изображаются схематически; указываются их общие габариты и промеры, связывающие их положение с общими размерами. Для полных обмеров делаются зарисовки в крупном масштабе (рис. 21).

Рисунок - 21
Обмер профиля
На зарисовках следует показать строительный материал (каменную или кирпичную кладку), размеры отдельных камней и кирпичей (обыкновенные и фасонные), отделять цветным карандашом более поздние переделки и наслоения на древних частях здания.
Сложные или неправильной формы детали замеряются от причалок (при обмерах в плане) или шнура отвеса (при вертикальных обмерах) координатами, либо засечками от двух точек. Для проверки перпендикулярности координат пользуются обыкновенными чертежным треугольником и линейкой.
9 Содержание практики
Для проведения обмерных работ выбирается не большое архитектурное сооружение где не требовались бы специального возведения строительных лесов. Сооружение должно быть доступно для проведения обмеров с уровня земли и можно было бы использовать не высокие приставные лестницы.
Учебная обмерная практика проводится после 2 семестра 1-го курса. Руководит практикой преподаватели кафедры “Основы архитектурного проектирования”, по одному преподавателю на бригаду студентов-практикантов в количестве 12-15 человек. Объем практики – 90 часов (3 недели).
До начала практических работ проводится 2-х часовая вводная лекция, призванная сформировать теоретическую базу по методам и приемам производства архитектурных обмеров.
Кроме того, учебная обмерная практика должна начинаться с общего ознакомления с намеченными объектами в натуре и сопровождаться изучением литературных, графических и фотоматериалов, имеющихся по данному сооружению. Далее практических занятий, на которых предусматривается выполнение глазомерных зарисовок всех частей архитектурного здания – памятника, подлежащих обмеру, составление обмерных схем (“кроков”) планов, разрезов, фасадов, деталей и т.д.
Завершается учебная обмерная практика контрольной обработкой обмерных материалов, выполнением обмерных чертежей, графической подачей, выставкой и сдачей всех материалов по обмерной практике.
В конце практики студент сдает отчет по практике комиссии, в состав которой входят руководитель практики, преподаватель ведущий предмет. По итогам практики студент получает оценку по пятибалльной системе.
Оценка работы проводится следующим образом: на отлично оценивается работа выполненная в полном объеме в соответствии с поставленными учебными задачами; на хорошо оценивается работа в которой есть незначительные графические недароботки; на удовлетворительно оценивается работа в которой не представлен полный требуемый объем и есть графические недороботки.
Оцениваются работы в последний день практики, а затем материалы хранятся в методическом фонде кафедры.
План проведения практики
| Вид работ
|
К-во часов
|
| 1 Вводная лекция (включая инструктаж по ТБ) по мето
дам и приемам производства архитектурных обмеров
|
2
|
| 2 Общие ознакомления с намеченным объектом в натуре и
изучение литературных, графических и фотоматериалов,
имеющихся по данному сооружению
|
2
|
| 3 Предварительное изучение и выполнение рисунков
обмеряемого объекта с натуры и фотографирования
|
6
|
| 4 Выполнение черновой зарисовки планов, фасадов,
размеров и детали
|
6
|
| 5 Обмер внутренних контуров. Составление обмерных
схем («кроков»)
|
14
|
| 6 Обмер внешних контуров и планов
|
10
|
| 7 Обмер фасадов и разрезов
|
14
|
| 8 Обмер детали
|
16
|
| 9 Камеральная обработка обмерных материалов, выполне-
ние обмерных чертежей, графическая подача, выставка и сдача всех материалов обмерной практики
|
20
|
| ВСЕГО
|
90
|
Примерный состав альбома:
- титульный лист (приложение А);
- обмерные чертежи: фасад и план объекта;
- обмерный чертеж: укрупненный фасад с цветовым решением;
- обмерный чертеж детали;
- композиционный анализ;
- разработка деталей.
Словарь терминов
Кроки
[фр.crogus] - набросок чертежа, рисунка.
Увраж
[фр. ouvrage работа, труд; произведение] - роскошное издание большого формата, обычно состоящее из гравюр.
Полярный
[ср. – лат.polaris < gr. ]) – относящийся к полюсу, ось – постоянная проходящая через полюс и служащая в системе полярных координат для определения положения точки на плоскости.
Эстампаш
[ фр.- estampa] – оттиск, отпечаток с гравюры
Координат
[ лат. Со(n) с, вместе + ordinatus упорядоченный ] – прямоугольные координаты – система, в которой положение точки определяется её расстояниями от двух прямых (на плоскости) или трёх плоскостей (в пространстве), пересекающихся под прямым углом; точка пересечения этих прямых (или плоскостей) называется началом, а прямая – осями координат.
Триангуляция
[<
лат.triangulum треугольник]- 1) геод.точный метод измерений, применяющийся при геодезических работах; измеряемая местность покрывается сетью треугольников, некоторые стороны которых (базисы) и углы измеряются непосредственно, а остальные стороны находятся путем вычислений.
Литература
1 Архитектурный обмер. Методические указания по обмерной практике. Ленинград: ЛИСИ, 1974 г.
2 Дюрнбаум С. и др. Краткий справочник архитектора. М.: 1952 – 530 с.
3 Кириллов А.Ф. Чертёжи строительные. М.: Стройиздат, 1978. – 230с.
4 Максимов П.Н., Топорков С.А. Архитектурные обмеры. Академия архитектуры СССР, 1949. – 147 с.
5 Новикова Г.А. Программа по учебной практике обмеров архитектурных сооружений для специальности 0620- «Архитектура, Алматы, 1998 г.
6 Покрышкин П.П. Краткие советы для производства точных обмеров в деревянных зданиях. С-П.: 1910 г.
7 Розенберг Г.И. Черчение: Учебное пособие.- Алматы, 2001. – 166с.
Приложение А
(справочное)
Пример оформления титульного листа альбома по обмерной практике
Министерство образования и науки Республики Казахстан
Павлодарский государственный университет
имени С, Торайгырова
Архитектурные обмеры здания по ул. Ленина, 153 в г. Павлодаре
Выполнили
студенты группы А11:
Ахметов Азамат
Петров Василий
Проверил: КаирбековУ.И.
Павлодар
Приложение Б
(
справочное)
Пример выполнения главного фасада обмеряемого архитектурного памятника
Пример выполнения черновых зарисовок (кроки)
Приложение В
(
справочное)
Пример выполнения рисунков
Приложение Г
(
справочное)
Размеры кирпича
Старинный и современный кирпич
| Наименование кирпича
|
Длина, ширина и толщина
|
| В мерах, приведенных в источниках
|
В мм
|
| 1 Киевский (XII в.) . . .
2 Из стен Московского Кремля (циклопический) . . .
3 Из стен Московского Китай – города (XVI в.)
4 Кирилло – Белозерского монастыря (XV – XVI в.)
5 Руский облицовочный (XV-XVI вв.)
6 Старинный среднеазиатский:
- из мавзолея Исмаила в Бухаре. . . .
- из мавзолея в узгене распространенного размера . . . .
7 Руский (прежный)
8 Современный (СССР)
|
7х5х1 верш.
72х6,5х3,5 верш.
7,5х4,5х3,4 верш.
-
-
-
-
6х3х1,5 верш.
-
-
|
308х220х44
550х286х154
319х187х104
320х160х110
470х380х90
630х630х60
260х260х45
270х130х65
250х120х65
|
Примечание: вершок = 46445 см.
|