|
СОО
МЕТОДИЧЕСКИЕ РЕКОМЕНДАЦИИ
по приспособлению, созданию, оснащению объектов коммунально - бытового назначения на станции обеззараживания одежды (СОО)
1.
Общие положения
1. При применении противником ядерного, химического и бактериологического оружия одежда, обувь и индивидуальные средства противохимической защиты могут быть заражены радиоактивными и отравляющими веществами, болезнетворными микроорганизмами и токсинами, а также насекомыми и клещами, являющимися возбудителями заболеваний людей и животных.
2. Одежда, обувь, средства индивидуальной защиты, подвергшиеся заражению, могут служить источниками поражения людей и подлежат дезактивации, дегазации и дезинфекции. Обеззараживание одежды может быть частичное и полное.
3. Существует много разнообразных способов дезактивации, дегазации и дезинфекции одежды. Однако не все они равноценны. При выборе способе полного обеззараживания руководствуются не только общим условиям, наличием средств и времени, но и учитывают характер и степень заражения, а также особенности и качество материалов, из которых изготовлена одежда.
Поэтому предпочтение всегда отдают наиболее надежным способам, которые позволяют достигать лучших результатов обеззараживания, более просты при выполнении и не оказывают вредного разрушающего действия на обрабатываемую одежду.
Дезактивацией
называется удаление радиоактивных веществ с зараженных предметов.
Дегазацией
называется обезвреживание зараженных предметов путем разрушения (нейтрализации) или удаления отравляющих веществ.
Дезинфекцией
называется уничтожение болезнетворных микроорганизмов и разрушение токсинов.
Дезинсекцией
называется уничтожение насекомых и клещей.
Лучшей полноты дезактивации, дегазации, дезинфекции и дезинсекции достигают, применяя способы стирки, кипячения, замачивания.
Дезактивация стиркой - возможна для многих видов одежды. Она обеспечивает наиболее полное удаление радиоактивных веществ.
Дегазацию одежды применяют способом кипячения и стиркой.
Дезинфекцию и дезинсекцию одежды, средств защиты можно осуществлять специальными способами кипячения и замачивания в растворах веществ, обладающих щелочными свойствами, и растворах дезинфицирующих веществ.
Забиваем Сайты В ТОП КУВАЛДОЙ - Уникальные возможности от SeoHammer
Каждая ссылка анализируется по трем пакетам оценки: SEO, Трафик и SMM.
SeoHammer делает продвижение сайта прозрачным и простым занятием.
Ссылки, вечные ссылки, статьи, упоминания, пресс-релизы - используйте по максимуму потенциал SeoHammer для продвижения вашего сайта.
Что умеет делать SeoHammer
— Продвижение в один клик, интеллектуальный подбор запросов, покупка самых лучших ссылок с высокой степенью качества у лучших бирж ссылок.
— Регулярная проверка качества ссылок по более чем 100 показателям и ежедневный пересчет показателей качества проекта.
— Все известные форматы ссылок: арендные ссылки, вечные ссылки, публикации (упоминания, мнения, отзывы, статьи, пресс-релизы).
— SeoHammer покажет, где рост или падение, а также запросы, на которые нужно обратить внимание.
SeoHammer еще предоставляет технологию Буст, она ускоряет продвижение в десятки раз,
а первые результаты появляются уже в течение первых 7 дней.
Зарегистрироваться и Начать продвижение
Эти способы лучше всего выполняют при помощи стиральных машин, центрифуг, с применением сушильного оборудования, для чего весьма удобны и производительны механические прачечные. При подготовке этих прачечных к обработке одежды главное внимание следует обращать на соблюдение последовательности и поточности обработки, зараженных и чистых вещей, а также мер безопасности: максимального исключения операций ручной обработки вещей, уменьшения облучения людей, вентиляции помещений.
Полное обеззараживание одежды осуществляют формирования гражданской обороны на временно развертываемых площадках или стационарных станциях обеззараживания одежды (СОО), создаваемых на базе механических прачечных, дезинфекционных учреждений, бань имеющих дегазационные камеры, лечебных и других учреждений.
На СОО направляют, как правило, одежду и средства защиты с высокой степенью зараженности, не подающиеся обеззараживанию имеющимися средствами на площадках временного типа.
Одежду доставляют на СОО в мешках из прорезиненной ткани.
Одежда, подлежащая обеззараживанию в механических прачечных, сортируется по виду заражения, по видам и цвету, ткани по ассортименту и маркируется в сортировочном отделении прачечной.
Рассортированная одежда поступает в стиральный цех, где обеззараживается по соответствующему режиму.
Продезактированные одежда и средства противохимической защиты поступают на дозиметрический пост для определения остаточной зараженности. Продегазированное и продезинфицированное имущество контролю не подвергается. Полнота дегазации и дезинфекции обеспечивается строгим соблюдением режимов.
Обеззараженное имущество поступает на склад чистой одежды или на раздачу.
По окончанию работы в прачечной производится обеззараживание оборудования и помещений. Внутренние поверхности машин и центрифуг обеззараживаются путем стирки в них ветоши в дезактивирующих, дегазирующих или дезинфицирующих растворах. Помещение и наружные поверхности оборудования обеззараживаются путем протирания щетками, смоченными обеззараживающими растворами. Радиоактивная пыль может также смываться струей воды.
Личный состав СОО после обеззараживания оборудования и помещений проходит санитарную обработку.
При подготовке к работе прачечных, предприятий химических чисток в режиме СОО обязательно выполнение требований СНиП 2.01.57-85 "Приспособление объектов коммунально-бытового назначения для санитарной обработки людей, специальной обработки и подвижного состава автотранспорта".
Сервис онлайн-записи на собственном Telegram-боте
Попробуйте сервис онлайн-записи VisitTime на основе вашего собственного Telegram-бота:
— Разгрузит мастера, специалиста или компанию;
— Позволит гибко управлять расписанием и загрузкой;
— Разошлет оповещения о новых услугах или акциях;
— Позволит принять оплату на карту/кошелек/счет;
— Позволит записываться на групповые и персональные посещения;
— Поможет получить от клиента отзывы о визите к вам;
— Включает в себя сервис чаевых.
Для новых пользователей первый месяц бесплатно.
Зарегистрироваться в сервисе
Мероприятия по приспособлению прачечных, предприятий химических чисток к работе в режиме СОО следует планировать в два этапа:
предварительные мероприятия
, которые выполняются в ходе строительства новых, реконструкции, расширений, а также при ремонтных действующих прачечных, предприятий химических чисток с учётом требований СНиП 2.01.57-85;
заключительные мероприятия
, выполняемые по специальному указанию органов ГО по заранее разработанному плану перевода прачечных, предприятий химических чисток в режим работы СОО.
1. В ходе выполнения предварительных мероприятий необходимо:
подготовить паспорт на станцию обеззараживания одежды;
выбрать место площадки для проведения частичной санитарной обработки одежды с учётом господствующих ветров;
определить размеры обменного фонда белья, одежды, обуви, СИЗ,;
подать заявку на получение обменного фонда одежды;
определить размеры помещений для хранения обменного фонда;
определить конкретное назначение помещений прачечных, предприятий химических чисток при работе в режиме СОО, выполнить чертежи по их переоборудованию;
провести расчёт инвентаря, необходимого для бесперебойной работы СОО: объем резервных баков, количество дополнительных транспортных тележек для перевозок внутри СОО, бачков для обеззараживающих растворов;
разработать мероприятия по пополнению воды в резервных баках, на случай выхода из строя водопроводной сети;
провести расчёт ёмкостей (отстойников) для приема воды (после помыва) с повышенной степенью радиоактивной зараженности, не допускаемой для сброса в хозяйственно-бытовую канализацию. Сделать привязку отстойников на местности.
2. На все материалы, средства, обменный фонд одежды, необходимые для бесперебойной работы СОО, а также на людей, необходимых для доукомплектования формирования должны быть составлены заявки органам ГО в соответствующие службы ГО.
3. Заключительные мероприятия выполняются по специальному указанию органов ГО.
В ходе их выполнения необходимо:
реализовать все требования СНиП 2.01.57-85 и плана перевода прачечных, предприятий химических чисток в режим СОО;
провести отладку и обеспечить бесперебойную работу водопроводной и энергетической систем;
при необходимости увеличить объем резервных баков;
проверить исправность канализационной сети;
подготовить емкости для приема воды с повышенной степенью радиоактивной зараженности;
подготовить площадки для частичной дезактивации одежды;
провести разделение бани на "чистую" и "грязную" зоны;
проверить работу вентиляционных систем;
уточнить численность формирования, необходимого для бесперебойной работы данного СОО, и при необходимости, по согласованию со штабом ГО и вышестоящими организациями произвести доукомплектование;
произвести доукомплектование необходимыми медикаментами, приборами, средствами защиты;
завести на склады необходимое количество моющих и обеззараживающих средств;
укомплектовать вещевым имуществом обменный фонд.
2. ПРИСПОСОБЛЕНИЕ ПРАЧЕЧНЫХ ДЛЯ ОБЕЗЗАРАЖИВАНИЯ ОДЕЖДЫ
Для обеззараживания одежды следует приспосабливать прачечные производительностью 500 кг сухого белья в смену и более. Помещения прачечной при ее работе в режиме обеззараживания одежды следует использовать согласно табл. 3. При этом к «грязной» зоне необходимо относить: цех приемки и сортировки зараженного белья и одежды, склад зараженного белья и одежды, цех обеззараживания (стиральный цех), а также соответствующие помещения, предназначенные для санитарной обработки обслуживающего персонала.
Остальные помещения следует выделять в «чистую» зону.
Производительность прачечных при работе в режиме обеззараживания одежды следует принимать в соответствии с прил.1.
| Назначение помещений при работе прачечной
|
| стирки белья
|
обеззараживания одежды
|
| Цех приемки и сортировки грязного белья
|
Цех приемки и сортировки зара женного белья и одежды, посты
|
| |
дозиметрического и химического контроля
|
| Склад материального обеспечения
|
Склад зараженного белья и одежды
|
| Стиральный цех
|
Цех обеззараживания, участок приготовления растворов для обеззараживания
|
| Помещения хранения стиральных материалов
|
Склад моющих и обеззараживающих средств
|
| Сушильно-гладильный цех
|
Цех окончательной дезинфекции и отделки
|
| Цех разборки, починки и упаковки белья:
|
Цех разборки и упаковки обеззараженной одежды:
|
| помещение разборки белья
|
участок подборки обеззараженного белья и одежды
|
| помещение хранения белья
|
склад обеззараженного белья и одежды
|
| Вспомогательные и бытовые помещения прачечных
|
Комната отдыха обслуживающего
персонала, кладовая обменного фонда белья,
|
| |
одежды, обуви и индивидуальных средств защиты санитарный пропускник
|
Размещение приспосабливаемых помещений должно соответствовать принципу поточности обработки:
зараженная одежда от участка сортировки подается на склад, оборудование которого должно предусматривав возможность раздельного хранения одежды по видам заражения, затем подается на обеззараживание и далее в «чистую» зону на глажение, отделку и отправку.
Технологические потоки внутри производственнных помещений следует размещать с учетом зонирования .При одноэтажной планировке производственных цехов «грязная» и «чистая» зоны должны находиться с разных сторон здания и разделяться перегородкой, в которой следует предусматривать ворота (двери) для проезда внутрицехового транспорта.
При многоэтажной планировке цехов «грязная» зона должна располагаться на первом или втором этаже, «чистая» зона - на последующих этажах.
Помещения приготовления растворов и хранения стиральных материалов, помещения для ремонта электрооборудования и ремонтно-механических мастерских целесообразно располагать в «чистой» зоне.
Немеханизированные склады зараженного и обеззараженного белья и одежды следует оснащать металлическими стеллажами. Допускается применение на складе обеззараженного белья деревянных стеллажей, которые должны быть окрашены масляной краской за два раза.
Цех приемки и сортировки зараженного белья и склад зараженного белья должны быть ограждены от остального помещения стирального цеха сплошными перегородками. В перегородках следует предусматривать ворота для проезда внутрицехового транспорта. Проход через указанные помещения лиц, не занятых непосредственно разборкой, сортировкой и хранением зараженного белья, не допускается.
При проектировании новых и модернизации существующих стиральных цехов рекомендуется применять:
-поточные линии обработки белья на базе проходных тоннельных установок, карусельных установок ПК-6-III и стирально-отжимных машин;
-сушильно-растрясывающие машины проходного типа.
Сушильно-растрясывающие машины должны быть вмонтированы в перегородку между стиральным и сушильно-гладильньгм цехом так, чтобы загрузочное отверстие машины находилось в «грязной» зоне, а отверстие выгрузки - в «чистой» зоне
При подаче белья из стирального цеха в гладильный ленточными транспортерами ветвь транспортера, идущая на прием обеззараженного белья или одежды, должна подвергаться предварительному обеззараживанию.
Между двумя смежными цикличными машинами, выполняющими операции стирки или отжима, на трубопроводах горячей и холодной воды следует устанавливать смесители со штуцерами для обеззараживания крышек загрузочных люков и прилегающих к ним участков корпуса машины перед выгрузкой белья из последней.
При использовании в качестве внутрицехового транспорта бельевых тележек следует предусматривать приямки, заполненные раствором для обеззараживания колес тележек при переходе последних из «грязной» зоны в «чистую».Приямки следует предусматривать: в воротах на границе «грязной» и «чистой» зон - при одноэтажной планировке производственных помещений, у грузовых лифтов - при многоэтажной планировке.В период работы прачечной в режиме стирки белья приямки следует закрывать настилами.
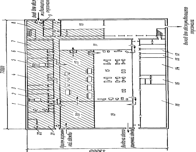
Примерная схема приспособления прачечной для работы в режиме обеззараживания одежды приведена на рис. 3.

Рис. 3. Примерная схема
прачечной, приспособленной под пункт обеззараживания одежды
/ — ожидсльная; 2 — прием зараженного белья и одежды; 3 — пост дозиметрического контроля- 4 — участок сортировки и хранения зараженного белья и одежды- 5—цех обеззараживания; 6—цех окончательной дезинфекции и отделки- 7 — склад обеззараженного белья и одежды; 8 — выдача обеззараженного белья и одежды; 9 — склад обеззараживающих средств; 10 — склад обменного фонда; 11 — вентиляционная камера; 12 — электрощитовая; 13 — участок приготовления моющих и обеззараживающих растворов; 14 — кладовая стиральных материалов; 15 — склад обеззараживающих средств; 16 — тепловой узел; 17 — механическая мастерская; 18—женский гардероб-санпропускник;
19 — мужской гардероб-санпропускник; 20 — компрессорная;
21 — насосная
Вспомогательные помещения, в том числе и душевые прачечной, должны приспосабливаться для санитарной обработки персонала, обслуживающего объект, а при необходимости - и лиц, обеспечивающих доставку в прачечную зараженной одежды.
Число потоков санитарной обработки, число душевых сеток в каждом из них должны определяться из расчета проведения санитарной обработки работающих в наиболее многочисленной смене не более чем за 2 ч.
В составе санитарного пропускника должны предусматриваться помещения, указанные в табл. 4;
Таблица 4
| Помещения санитарного пропускника
|
| основные
|
вспомогательные
|
| Раздевальная
|
Помещение (или участок) сбора зараженной одежды и обуви, санитарный узел
|
| Смотровая
|
Пост дозиметрического контроля, пункт медицинского осмотра пункт выдачи средств обеззараживания, мыла, мочалок
|
| Душевая
|
Душевая
|
| Ожидальная
|
Пост дозиметрического контроля, пункт медицинского осмотра, санитарный узел
|
| Одевальная
|
Склад белья, верхней и домашней одежды, обуви и индивидуальных средств защиты, гардероб уличной, домашней и рабочей одежды и индивидуальных средств защиты
|
Основные помещения санитарного пропускника следует располагать в последовательности, указанной на рис. 4. Вспомогательные помещения санитарного пропускника целесообразно располагать смежно по отношению к соответствующим основным помещениям. Изолированные вспомогательные помещения следует располагать в той же («грязной» или «чистой») зоне, что и соответствующее основное помещение. Устройство вспомогательных помещений смежными допускается в исключительных случаях.
В гардеробных помещениях следует предусматривать: хранение уличной одежды открытым способом;
домашней и рабочей одежды, белья, обуви, а также индивидуальных средств защиты в закрытых одинарных шкафчиках.
Умывальники и душевые следует располагать в помещениях, смежных с туалетами или гардеробными, и предусматривать из расчета1 умывальник на 25 чел, 1 туалет в каждой («грязной» и «чистой») зоне,1 душевая сетка на 8 чел., но не менее 2 сеток.
| Отправка одежды на пункт обеззараживания
|
| Путь следования людей к санитарному пропускнику
|
Рис. 4. Примерная схема санитарного пропускника / — участок сбора зараженного имущества: 2 — участок
сортировки и упаковки зараженного имущества; 3 — кладовая зараженной одежды; 4 — санитарный узел:
5
— раздевальная; 6 — пост дозиметрического контроля; 7 — смотровая:
8 — пункт выдачи мыла, мочалок и дезинфицирующего раствора; 9 — пункт медицинского осмотра: 10 — душевая; 11 — ожидальная; 12 — одевальная;13
—• склад мыла. мочалок.. обеззараживающих средств: 14 — склад обменного фонда одежды и обуви; 15 — гардероб обслуживающего персонала (хранение домашней, обеззараженной рабочей одежды и средств индивидуальной защиты);
III
— гардероб уличной одежды обслуживающего персонала: 17 — склад материалов для обеззараживания; 18 —- комната отдыха обслуживающего персонала
Для бесперебойной работы прачечной производительностью 3 т белья в
смену и более в режиме обеззараживания одежды должны предусматриваться
баки для хранения запаса воды в соответствии с главой СниП по проектированию
предприятий бытового обслуживания населения.
5. ПРИСПОСОБЛЕНИЕ ФАБРИК ХИМИЧЕСКОЙ ЧИСТКИ И КРАШЕНИЯ ДЛЯ ОБЕЗЗАРАЖИВАНИЯ ОДЕЖДЫ
Назначение помещений фабрик химической чистки и крашения при работе их в режиме обеззараживания одежды следует принимать согласно табл. 5.
| Назначение помещений фабрики химической чистки
|
| и крашения одежды в режиме
|
| химической «истки и крашения
|
обеззараживания одежды
|
| Отделение первичной сортировки, отделение обработки ковров
|
Отделение сортировки зараженной одежды
|
| Отделение обработки в водных растворах
|
Отделение обеззараживания стиркой
|
| Красильное отделение
|
Отделение обеззараживания бучением и стиркой
|
| Сушильный участок
|
Сушильный участок
|
| Отделение обработки меховых изделий
|
Отделение обеззараживания меховых изделий экстракцией
|
| Отделение обезжиривания
|
Отделение обеззараживания химической чисткой
|
| Гладильное отделение
|
Гладильное отделение
|
| Помещение экспедиции
|
Помещение экспедиции
|
| Гардероб, бытовые помещения
|
Санитарный пропускник
|
Примерная схема приспособления фабрики химической чистки и крашения в режиме обеззараживания одежды приведена на рис. 5.
^
В состав «грязной» зоны необходимо включать следующие отделения: сортировки зараженной одежды, обеззараживания ее различными методами, сушильный участок. К «чистой» зоне следует относить: гладильное отделение, склад обеззараженной одежды, помещение экспедиции.
Отделение сортировки зараженной одежды должно быть оборудовано столами с металлическим или пластиковым покрытием.
Для обеззараживания одежды стиркой в водных растворах следует использовать стиральные машины, машины для химической чистки на хлористых растворителях и машины для обезжиривания. В качестве бучильников следует использовать красильные барки.
Для обеззараживания одежды химической чисткой следует использовать машины и применять хлористые и фтористые растворители, а также уайт-спирит.
При расположении оборудования, с помощью которого производится обеззараживание одежды, двумя параллельными рядами смесители со штуцерами для обеззараживания устанавливаются с одной стороны ряда.
Производительность работы фабрики химической чистки и крашения в режиме обеззараживания одежды должна определяться согласно прил. 1.
С введением общей готовности
станции обеззараживания одежды обозначается указателями.
Места с СОО обозначаются:
1. Приемная
2. Сортировочная
3. Склад зараженной одежды
4. Стиральный цех
5. Дозиметрическая
6. Сушильно-гладильное помещение
7. Отделение для разборки чистой одежды
8. Санпропускник
Кроме указанных мест на СОО оборудуются комнаты:
отдыха личного состава СОО
приготовления растворов.
В прачечной (СОО) оборудуется приточно-вытяжная вентиляция.
ОПИСЬ ИМУЩЕСТВА И ИНВЕНТАРЯ СОО
| №
п/п
|
Наименование имущества,
инвентаря
|
Положено
|
Имеется
|
Где получается недостающее имущество
|
| 1. Имущество ГО
|
| 1.
|
Фильтрующий противогаз
|
20 шт.
|
|
|
| 2.
|
Легкий защитный костюм Л-1
|
20 шт.
|
|
|
| 3.
|
Радиометр-рентгенометр ДП-5 (ИМД-5)
|
2 шт.
|
|
|
| 4.
|
Войсковой прибор химической разведки
|
2 шт.
|
|
|
| 5.
|
Комплект индивидуальных дозиметров ИД-1
|
1 компл.
|
|
|
| 6.
|
Аптечка индивидуальная АИ-2
|
20 шт.
|
|
|
| 7.
|
Индивидуальный противохимический пакет ИПП-8 (10)
|
20 шт.
|
|
|
| 8.
|
Индивидуальный перевязочный пакет
|
20 шт.
|
|
|
| 9.
|
Респиратор Р-2
|
20 шт.
|
|
|
| 10.
|
Нарукавные повязки
|
20 шт.
|
|
|
| 11.
|
Медицинская сумка с укладкой
|
1 шт.
|
|
|
| П. Хозяйственное имущество
|
| 1.
|
Ёмкости для растворов
|
|
|
|
| 2.
|
Мыло
|
60 кг
|
|
|
| 3.
|
Сода
|
60 кг
|
|
|
| 4.
|
Сульфонол
|
50 кг
|
|
|
| 5.
|
ОП-7 или ОП-10
|
10 кг
|
|
|
| 6.
|
Тринатрийфосфат
|
20 кг
|
|
|
| 7.
|
Гексаметафосфат
|
20 кг
|
|
|
| 8.
|
Препарат "Новость" или сульфанол
|
60 кг
|
|
|
| 9.
|
Сернистый натрий
|
30 кг
|
|
|
| 10.
|
Препарат СФ-2
|
60 кг
|
|
|
| 11.
|
Фенол (лизол, нафтолизол, формальдегид)
|
60 кг
|
|
|
| 12.
|
Монохлорамин
|
30 кг
|
|
|
| 13.
|
Гашеная известь (гидрат окиси кальция)
|
50 кг
|
|
|
| 14.
|
Бучильник (котел) для кипячения
|
2 шт.
|
|
|
| 15.
|
Ванна для замочки
|
2 шт.
|
|
|
| 16.
|
Ветошь для проведения обеззараживания машин после работа
|
100 кг.
|
|
|
| 17.
|
Щетки с длинными ручками
|
10 шт.
|
|
|
| 18.
|
Шланги резиновые для смыва водой радиоактивной пыли со стен и потолков длиной 10 м
|
4 шт.
|
|
|
| 19.
|
Мочалки
|
80 шт.
|
|
|
| Ш. Указатели
|
| 20.
|
Указатели на помещения и емкости для растворов изготовляются размером 40х20 см на ДВП
|
|
|
|
Р А С Ч Ё Т
времени на приведение СОО в готовность
(примерный)
| №
п/п
|
Наименование мероприятий
|
Время выполнения
|
Исполнители
|
| в рабочее время
|
в не рабочее время
|
| 1.
|
Сбор личного состава СОО
|
30 мин.
|
1 час
|
командир СОО
|
| 2.
|
Постановка задачи на приведение СОО в готовность и доукомплектование его личным составом до полного штата
|
25 мин.
|
25 мин.
|
начальник ГО ОЭ
|
| 3.
|
Уточнение обязанностей и инструктаж личного состава СОО по мерам безопасности при выполнении работ по обеззараживанию одежды и средств защиты
|
10 мин.
|
10 мин.
|
командир СОО
|
| 4.
|
Выдача личному составу средств индивидуальной защиты, приборов и другого имущества (согласно плану выдачи)
|
25 мин.
|
25 мин.
|
командир СОО
|
| 5.
|
Выполнение работ по дооборудованию помещений прачечной под СОО
|
120 мин.
|
120 мин.
|
командиры звеньев СОО
|
| 6.
|
Герметизация производственных помещений и выполнение мероприятий по светомаскировке
|
60 мин.
|
60 мин.
|
личный состав СОО
|
| 7.
|
Уточнение наличия моющих, дегазирующих и дезинфицирующих средств
|
5 мин.
|
5 мин.
|
командир звена приготовления растворов
|
| 8.
|
Доклад командира СОО и готовности к работе
|
через
4 часа
25 мин.
|
через
5 час.
5 мин.
|
командир СОО
|
| 9.
|
Получение недостающего количества моющих, дегазирующих и дезинфицирующих средств на пунктах снабжения
|
в соответ-ствии с планом
|
|
командир звена приготовления растворов
|
П А С П О Р Т
на станцию обеззараживания одежды
1. Адрес сооружения (город, район, улица, номер дома или сооружения).
2. Наименование учреждения, на базе которого развернута СОО и её ведомственная принадлежность.
3. Год постройки СОО (прачечной).
4.Этажность здания и его краткая характеристика (кирпичное, деревянное и т.д.)
5. Время приведения в готовность к работе ______ час.
6. Производительность за 10 часов работы:
для дегазации _______________кг.
для дезактивации ____________кг.
7. Характеристика помещений СОО (прачечной)
| №
п/п
|
Наименование помещений
|
Коли-чество
|
Пло-щадь, м2
|
Отделка помещений
|
При-меча-ние
|
| стены
|
пол
|
потолок
|
| 1.
|
Приемная зараженного имущества
|
1
|
|
|
|
|
|
| 2.
|
Сортировочная
|
1
|
|
|
|
|
|
| 3.
|
Дозиметрическая
|
1
|
|
|
|
|
|
| 4.
|
Склад зараженного имущества
|
1
|
|
|
|
|
|
| 5.
|
Стиральный цех
|
1
|
|
|
|
|
|
| 6.
|
Сушильно-гладильное помещение
|
1
|
|
|
|
|
|
| 7.
|
Помещение для разборки чистой одежды
|
1
|
|
|
|
|
|
| 8.
|
Склад обеззараженного имущества
|
1
|
|
|
|
|
|
| 9.
|
Помещение для приготовления растворов
|
1
|
|
|
|
|
|
| 10.
|
Санпропускник
|
1
|
|
|
|
|
|
| 11.
|
Комната отдыха
|
1
|
|
|
|
|
|
8. Характеристика отопления __________________________________
9. Характеристика водоснабжения:
источник поступления холодной воды _____________________________
______________________________________________________________
источник поступления горячей воды ______________________________
______________________________________________________________
котлы для получения горячей воды________________________________
бойлеры и аккумуляторы для горячей воды (емкость м3
)
______________________________________________________________
запасные баки для хранения воды (м3
) ____________________________
10. Характеристика канализации (смывная, самотеком)
______________________________________________________________
11. Характеристика вентиляции:
вытяжная - кратность воздухообмена, производительность вентилятора,
тип и мощность мотора _________________________________________
______________________________________________________________
приточная - в какие помещения подается воздух, тип и производительность вентилятора________________________________________
______________________________________________________________
12. Характеристика дезинфекционных камер, стиральных машин (тип и мощность)_______________________________________________________________________________________________________________________________
13. Отопление (водяное, электрическое, печное) ___________________
______________________________________________________________
14. Электроснабжение (источник получения электроэнергии) ____________________________________________________________________
15. Аварийное освещение (указать какое) _________________________
____________________________________________________________________
16. Производство дополнительных работ по приспособлению сооружения (прачечной)
| №
п/п
|
Виды работ
|
Стоимость. руб.
|
Время необходимое для выполнения работ
|
Примеча-ние
|
| |
|
|
|
|
| |
|
|
|
|
| |
|
|
|
|
17. Результаты осмотров и меры для устранения обнаруженных недостатков
| №
п/п
|
Кем осматривался
|
Дата
|
Результаты осмотра
|
Когда устранены обнаруженные недостатки
|
Приме-чание
|
| |
|
|
|
|
|
| |
|
|
|
|
|
| |
|
|
|
|
|
| |
|
|
|
|
|
18. Схема сооружения (на отдельном листе с наименованием помещений).
19. Дата заполнения паспорта.
Начальник учреждения (объекта)
Представили комиссии
|