ЧЕЛЯБИНСКИЙ ГОСУДАРСТВЕННЫЙ КОЛЛЕДЖ ИНДУСТРИИ ПИТАНИЯ И ТОРГОВЛИ
Отчёт
Практика для получения первичных профессиональных умений и навыков (учебная)
По специальности: 260502.51 «Технология продукции общественного питания»
(базовый уровень среднего профессионального образования)
Выполнил
студент гр.123
ЧГКИПиТ
Беляев Дмитрий
Челябинск 2010 г.
Предприятие: кафе «
Mc
Burger
», ул. Богдана Хмельницкого, 14
Специализация: блюда быстрого и несложного приготовления (
fast
food
), горячие и холодные напитки, десерты.
Предприятие доготовочное, среднее по мощности, постоянно действующее, стационарное.
Раздел 1. МЕХАНИЧЕСКАЯ КУЛИНАРНАЯ ОБРАБОТКА СЫРЬЯ И ПРИГОТОВЛЕНИЕ ПОЛУФАБРИКАТОВ
Тема 1.1. Обработка овощей, грибов
№1.
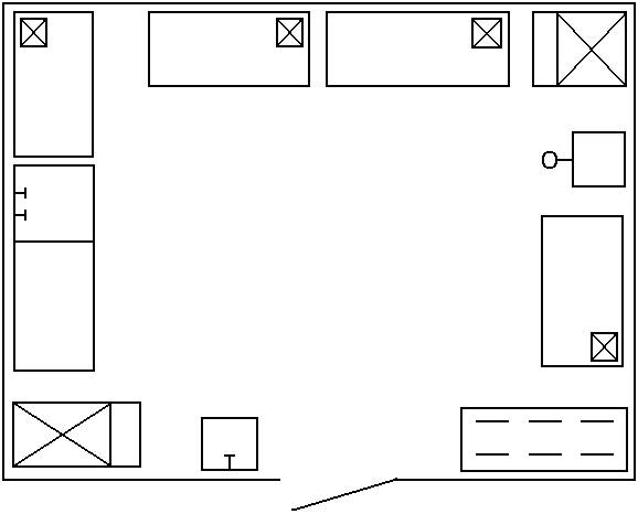
Площадь овощного цеха определяется в зависимости от типа предприятия и количества мест в торговом зале. Размещают овощной цех так, чтобы удобно было транспортировать сырьё из склада овощей, минуя общие производственные коридоры.
При обработке овощей потребляется значительное количество воды, которая, испаряясь, повышает влажность и понижает температуру воздуха в помещении. Поэтому в овощном цехе необходимо иметь отопительные приборы для поддержания температуры не ниже 15°С. В цехе должны быть краны холодной и горячей воды, а также трапы для удаления сточных вод.
Так как сортировка занимает много производственной площади и значительно загрязняет помещение, её рекомендуется производить в овощехранилищах, а в овощной цех направлять только отсортированные овощи. В крупных овощных заготовочных цехах выделяются следующие самостоятельные технологические линии по обработке овощей:
-линия обработки картофеля и корнеплодов;
-линия обработки капустных и луковых овощей, томатов, зелени и т. д.;
-линия обработки квашеных, солёных и маринованных овощей.
В средних и мелких овощных цехах нет такого чёткого разделения производственного процесса на отдельные поточные линии.
Механизация производственного процесса в овощном цехе достигается при помощи сортировочных машин, овощемоек, картофелечисток, овощерезок и т.д.
В соответствии с принятыми линиями обработки организуются рабочие места, и устанавливается оборудование. На линии обработки картофеля и корнеплодов устанавливаются закром, затем моечно-очистительные машины различной производительности. После очистки картофель и корнеплоды поступают для временного хранения в ванну, а затем на стол доочистки. Иногда на небольших предприятиях овощи моют вручную в ваннах, при выгрузке используют сетчатые черпаки.
Забиваем Сайты В ТОП КУВАЛДОЙ - Уникальные возможности от SeoHammer
Каждая ссылка анализируется по трем пакетам оценки: SEO, Трафик и SMM.
SeoHammer делает продвижение сайта прозрачным и простым занятием.
Ссылки, вечные ссылки, статьи, упоминания, пресс-релизы - используйте по максимуму потенциал SeoHammer для продвижения вашего сайта.
Что умеет делать SeoHammer
— Продвижение в один клик, интеллектуальный подбор запросов, покупка самых лучших ссылок с высокой степенью качества у лучших бирж ссылок.
— Регулярная проверка качества ссылок по более чем 100 показателям и ежедневный пересчет показателей качества проекта.
— Все известные форматы ссылок: арендные ссылки, вечные ссылки, публикации (упоминания, мнения, отзывы, статьи, пресс-релизы).
— SeoHammer покажет, где рост или падение, а также запросы, на которые нужно обратить внимание.
SeoHammer еще предоставляет технологию Буст, она ускоряет продвижение в десятки раз,
а первые результаты появляются уже в течение первых 7 дней.
Зарегистрироваться и Начать продвижение
Доочистка клубней картофеля производится вручную на специальных столах. Стол может быть рассчитан на одного, двух и большее количество рабочих мест. В центре стола имеется желоб, в котором помещается картофель для доочистки.
Кроме этого, каждое рабочее место имеет два отверстия: одно для отходов, другое для очищенных овощей. Под каждым отверстием устанавливается тара, куда поступают овощи и отходы. Доочистку корнеплодов и картофеля производится специальными ножами. Очищенный картофель помещают в ванну с водой (желательно передвижную). Очищенный картофель и корнеплоды, в зависимости от назначения, направляют на тепловую обработку в целом виде, или нарезанными. Нарезку осуществляют на специальных столах вручную или на машинах. Овощерезательные машины можно устанавливать в горячем цехе.
На линии нарезки капусты и зелени устанавливают производственные столы и ванны. Нарезку производят в овощном или горячем цехе.
При обработке лука, чеснока, хрена в больших количествах организуется отдельное рабочее место. Оно оборудовано вытяжным шкафом для предотвращения раздражающего действия эфирных масел, выделяющихся при обработке этого сырья. Для транспортировки полуфабрикатов в горячий цех используется передвижные ванны ёмкостью 80-100кг. Нарезка и шинковка овощей производится на разделочных досках ОС.
№2
№3, 4
| Наименование сырья |
Вес брутто, кг |
Вес нетто |
Вес отходов |
% отходов (факт.) |
% отходов (теор.) |
Норма выполнения |
| Картофель |
15 |
9,5 |
5,5 |
37 |
40 |
соотв. |
| Морковь |
10 |
7,8 |
2,2 |
22 |
25 |
соотв. |
| Свёкла |
12 |
9,25 |
2,75 |
23 |
25 |
соотв. |
№5
I. Перед началом работы:
1. Надеть спецодежду, волосы убрать под головной убор, рукава должны быть застёгнуты на кисти рук, надеть удобную обувь.
2. Привести в порядок рабочее место, не заграждать проходы.
3. Осмотреть инвентарь, оборудование и убедиться в его исправности.
4. При осмотре оборудования проверьте:
а) правильность сборки;
б) надёжность крепления машин;
в) наличие и исправность заземления;
г) исправность пускорегулирующего устройства;
д) наличие и исправность ограждения.
5. Ремонт машины могут производить только квалифицированные рабочие. Самому ремонт производить запрещено.
II. Во время работы:
1. Не допускать к работе на машине лиц, не ознакомленных с правилами её эксплуатации.
2. Не производить пуск и остановку электродвигателя при загрузке продуктов в сменный механизм.
3. Не оставлять работающую машину или сменный механизм без присмотра.
4. Все работающие механизмы и машины в нерабочее время должны быть отключены от электросети.
Сервис онлайн-записи на собственном Telegram-боте
Попробуйте сервис онлайн-записи VisitTime на основе вашего собственного Telegram-бота:
— Разгрузит мастера, специалиста или компанию;
— Позволит гибко управлять расписанием и загрузкой;
— Разошлет оповещения о новых услугах или акциях;
— Позволит принять оплату на карту/кошелек/счет;
— Позволит записываться на групповые и персональные посещения;
— Поможет получить от клиента отзывы о визите к вам;
— Включает в себя сервис чаевых.
Для новых пользователей первый месяц бесплатно.
Зарегистрироваться в сервисе
5. Запрещается работать на машине со снятой загрузочной воронкой.
6. Посуду с продуктами после их обработки поставить на удобную, устойчивую подставку.
7. Установлены следующие нормы переноски грузов: для женщин – 20 кг, для мужчин – 50 кг.
№6
Оборудование, инвентарь, тара, инструменты должны быть отдельными и иметь соответствующую маркировку.
Раковины для мытья рук должны быть оборудованы смесителем с горячей и холодной водой.
Раковины должны быть обеспечены мылом, электрополотенцами, бумажными рулонными полотенцами или индивидуальными салфетками.
В овощном цехе полы следует мыть не реже 2 раз в смену горячей водой с добавлением 1-2% раствора кальцинированной соды или других моющих средств, а в конце смены 1% раствором хлорной извести. Стены ежедневно протирают ветошью, смоченной в растворе кальцинированной соды.
Персонал предприятия общественного питания обязан соблюдать следующие правила личной гигиены:
- приходить на работу в чистой одежде и обуви;
- оставлять верхнюю одежду, головной убор, личные вещи в гардеробной;
- коротко стричь ногти;
- перед началом работы тщательно мыть руки с мылом, надевать чистую санитарную одежду и сменную обувь, подбирать волосы под колпак или косынку или надевать специальную сеточку для волос;
- при посещении туалета снимать санитарную одежду в специально отведенном месте, после посещения тщательно мыть руки с мылом, желательно дезинфицирующим;
- при появлении признаков простудного заболевания или кишечной дисфункции, а также нагноений, порезов, ожогов сообщать администрации и обращаться в медицинское учреждение для лечения.
Тема 1.2. Обработка рыбы и нерыбного водного сырья, приготовление полуфабрикатов
№1
В рыбный цех поступает рыба живая, охлаждённая, мороженная и солёная, нерыбные продукты моря.
Обработку рыбы частиковых пород и приготовление из неё полуфабрикатов, осуществляют по технологической схеме, включающей следующие операции: удаление голов, плавников, хвостов; промывание, приготовление п/ф.
В крупных рыбных цехах создают две технологические линии – обработки рыбы частиковых пород; обработки рыбы осетровых пород.
Очистку рыбы осуществляют ручным (ножами, тёрками, скребками) или механическим способом с использованием рыбоочистителя на специальных производственных столах с бортиками.
Потрошение рыбы производят на специальных столах с отверстием для сбора отходов в центре. Это исключает загрязнение тушек непищевыми отходами. Отходы сортируют на пищевые и непищевые. Плавники удаляют с помощью плавникорезки или ножом. В крупных цехах процесс удаления голов и хвостов механизирован.
Тушки рыбы и пищевые отходы интенсивно промывают в ваннах с двумя отделениями при помощи щёток. Для уменьшения потерь сока и сокращения микрофлоры разделанную рыбу погружают на 5-6 мин. в 15% раствор поваренной соли при температуре 4-6 С.
№2

№3, 4
| Наименование сырья |
Масса сырья брутто, кг |
Отходы и потери при холодной обработке, % (теор.) |
Отходы и потери при холодной обработке, % (факт.) |
Масса нетто, кг |
| Мойва (неразделанная) |
5 |
2 |
2 |
4,9 |
| Корюшка (потрошёная с головой) |
8
|
15
|
14
|
6,9
|
| Лосось (потр. без головы) |
10 |
31 |
30 |
7 |
| Горбуша спец. разделки |
6 |
11 |
10 |
5,4 |
| Кальмар мороженный разделанный (тушка) |
4
|
23
|
20
|
3,2
|
№5
Все работающие должны знать правила техники безопасности, производственной санитарии. К работе допускаются лица, сдавшие экзамены по технике безопасности и зачёт по санитарии перед поступлением на работу и вводный инструктаж непосредственно на рабочем месте, а затем периодический, не реже 1 раза в год.
При монтаже, эксплуатации, ремонте электрического, механического и холодильного оборудования необходимо соблюдение правил технической эксплуатации и безопасности обслуживания.
Всё оборудование должно содержаться в исправном техническом и санитарном состоянии. Провода и кабели переносного электрического оборудования не должны касаться влажных и горячих поверхностей.
На предприятиях общественного питания случаи травматизма связаны с процессом приготовления пищи, к травматизму относят: ожоги, порезы при измельчении продуктов, травмы при работе на неисправном оборудовании.
I. Перед началом работы:
1. Надеть спецодежду, волосы убрать под головной убор, рукава должны быть застёгнуты на кисти рук, надеть удобную обувь.
2. Привести в порядок рабочее место, не заграждать проходы.
3. Осмотреть инвентарь, оборудование и убедиться в его исправности.
4. При осмотре оборудования проверьте:
а) правильность сборки;
б) надёжность крепления машин;
в) наличие и исправность заземления;
г) исправность пускорегулирующего устройства;
д) наличие и исправность ограждения.
5. Ремонт машины могут производить только квалифицированные рабочие. Самому ремонт производить запрещено.
II. Во время работы:
1. Не допускать к работе на машине лиц, не ознакомленных с правилами её эксплуатации.
2. Не производить пуск и остановку электродвигателя при загрузке продуктов в сменный механизм.
3. Не оставлять работающую машину или сменный механизм без присмотра.
4. Все работающие механизмы и машины в нерабочее время должны быть отключены от электросети.
5. Запрещается работать на машине со снятой загрузочной воронкой.
6. Посуду с продуктами после их обработки поставить на удобную, устойчивую подставку.
7. Установлены следующие нормы переноски грузов: для женщин – 20 кг, для мужчин – 50 кг.
Оборудование, инвентарь, тара, инструменты должны быть отдельными и иметь соответствующую маркировку.
Раковины для мытья рук должны быть оборудованы смесителем с горячей и холодной водой.
Раковины должны быть обеспечены мылом, электрополотенцами, бумажными рулонными полотенцами или индивидуальными салфетками.
В рыбном цехе полы следует мыть не реже 2 раз в смену горячей водой с добавлением 1-2% раствора кальцинированной соды или других моющих средств, а в конце смены 1% раствором хлорной извести. Стены ежедневно протирают ветошью, смоченной в растворе кальцинированной соды.
Тема 1.3. Обработка мяса, птицы, дичи, кролика, приготовление полуфабрикатов
№1
Мясной цех предназначен для первичной обработки мяса и приготовления полуфабрикатов.
Линии мясного цеха:
-линия первичной обработки мяса;
-линия по приготовлению крупнокусковых п/ф;
- линия по приготовлению порционных п/ф;
- линия по приготовлению мелкокусковых п/ф;
- линия по приготовлению рубленой котлетной массы и п/ф из неё.
Процесс обработки мяса включает в себя следующие операции: приёмка, сортировка, оттаивание, промывание, обсушивание, разруб, обвалка и сортировка по кулинарному назначению.
Оттаивание осуществляется в производственных ваннах, на столах, стеллажах. Промывание – в ванне под холодной проточной водой. Обсушивание – на воздухе, при необходимости используются салфетки.
Разруб осуществляется ножом-рубаком, мясницким топором на разрубочном стуле. Обвалка производится специальными обвалочными ножами на Т-образном столе с бортиками. При обвалке на левую руку надевается металлическая кольчужная перчатка во избежание порезов.
№2
№3,4
| Наименование сырья |
Масса сырья брутто, кг |
Отходы и потери при холодной обработке, % (теор.) |
Отходы и потери при холодной обработке, % (факт.) |
Масса нетто, кг |
| Говядина I кат. |
100 |
26,4 |
25,7 |
74,3 |
| Свинина обрезная |
70 |
16,6 |
15,9 |
58,87 |
| Баранина II кат. |
40 |
35,4 |
35 |
26 |
| Цыплята полупотрош. I кат. |
10 |
28,2 |
27,6 |
7,24 |
| Рябчики |
6 |
34 |
34 |
3,96 |
№5
Все работающие должны знать правила техники безопасности, производственной санитарии. К работе допускаются лица, сдавшие экзамены по технике безопасности и зачёт по санитарии перед поступлением на работу и вводный инструктаж непосредственно на рабочем месте, а затем периодический, не реже 1 раза в год.
При монтаже, эксплуатации, ремонте электрического, механического и холодильного оборудования необходимо соблюдение правил технической эксплуатации и безопасности обслуживания.
Всё оборудование должно содержаться в исправном техническом и санитарном состоянии. Провода и кабели переносного электрического оборудования не должны касаться влажных и горячих поверхностей.
На предприятиях общественного питания случаи травматизма связаны с процессом приготовления пищи, к травматизму относят: ожоги, порезы при измельчении продуктов, травмы при работе на неисправном оборудовании.
I. Перед началом работы:
1. Надеть спецодежду, волосы убрать под головной убор, рукава должны быть застёгнуты на кисти рук, надеть удобную обувь.
2. Привести в порядок рабочее место, не заграждать проходы.
3. Осмотреть инвентарь, оборудование и убедиться в его исправности.
4. При осмотре оборудования проверьте:
а) правильность сборки;
б) надёжность крепления машин;
в) наличие и исправность заземления;
г) исправность пускорегулирующего устройства;
д) наличие и исправность ограждения.
5. Ремонт машины могут производить только квалифицированные рабочие. Самому ремонт производить запрещено.
II. Во время работы:
1. Не допускать к работе на машине лиц, не ознакомленных с правилами её эксплуатации.
2. Не производить пуск и остановку электродвигателя при загрузке продуктов в сменный механизм.
3. Не оставлять работающую машину или сменный механизм без присмотра.
4. Все работающие механизмы и машины в нерабочее время должны быть отключены от электросети.
5. Запрещается работать на машине со снятой загрузочной воронкой.
6. Посуду с продуктами после их обработки поставить на удобную, устойчивую подставку.
7. Установлены следующие нормы переноски грузов: для женщин – 20 кг, для мужчин – 50 кг.
Оборудование, инвентарь, тара, инструменты должны быть отдельными и иметь соответствующую маркировку.
Раковины для мытья рук должны быть оборудованы смесителем с горячей и холодной водой.
Раковины должны быть обеспечены мылом, электрополотенцами, бумажными рулонными полотенцами или индивидуальными салфетками.
В мясном цехе полы следует мыть не реже 2 раз в смену горячей водой с добавлением 1-2% раствора кальцинированной соды или других моющих средств, а в конце смены 1% раствором хлорной извести. Стены ежедневно протирают ветошью, смоченной в растворе кальцинированной соды.
Раздел 2. ПРИГОТОВЛЕНИЕ И ОТПУСК КУЛИНАРНОЙ ПРОДУКЦИИ
Тема 2.1. Приготовление супов
№1
Для приготовления первых блюд используются заранее вымеренная тара, предназначенная для различных продуктов и полуфабрикатов (картофель, капуста, морковь и т.д.).
На рабочем столе должны быть: настольная доска, нож и горка - металлическая стойка с несколькими полочками, на которых размещается посуда со специями и приправами. Ассортимент горки зависит в основном от типа предприятия. На горке обычно хранят подготовленные солёные огурцы, лук и корнеплоды для пассеровки, рубленую зелень, томат, лавровый лист, перец горошек, соль и т.д. Наличие горки облегчает работу повара, ускоряет оформление и отпуск блюд, а также развивает у повара чувство ответственности за их качество.
№2
№3
Суп-харчо
| Сырьё |
Б\1 п. |
Н\1 п. |
Б\20 п. |
Н\20 п. |
Б\50 п. |
Н\50 п. |
| Крупа рисовая |
70 |
70 |
1400 |
1400 |
3500 |
3500 |
| Лук репчатый |
95 |
80 |
1900 |
1600 |
4750 |
4000 |
| Маргарин столовый |
40 |
40 |
800 |
800 |
2000 |
2000 |
| Томатное пюре |
30 |
30 |
600 |
600 |
1500 |
1500 |
| Соус ткемали |
30 |
30 |
600 |
600 |
1500 |
1500 |
| Чеснок |
8 |
6 |
160 |
120 |
400 |
300 |
| Кинза, петрушка (зелень) |
41 |
30 |
820 |
600 |
2050 |
1500 |
| Хмели-сунели |
1 |
1 |
20 |
20 |
50 |
50 |
| Специи |
- |
- |
- |
- |
- |
- |
| Вода |
1000 |
1000 |
20000 |
20000 |
50000 |
50000 |
| Выход
|
- |
1000 |
- |
20000 |
- |
50000 |
Тема 2.2. Приготовление вторых блюд, горячих закусок, сладких блюд и напитков
Тема 2.2.1. Приготовление блюд из овощей, круп, бобовых и макаронных изделий
№1
| № п/п |
Наименование продукта (изделия) |
Органолептическая оценка (отлично, хорошо, удовлетворительно, брак) |
Температура изделия |
Ф.И.О. изготовителя |
Замечания (исправлено, отобрано на анализ, снято с реализации, кг, шт.) |
| 1 |
Суп-харчо |
отлично |
75 |
Иванов И.И. |
- |
| 2 |
Крокеты из моркови с изюмом |
хорошо |
60 |
Петров П.П. |
- |
| 3 |
Капуста тушённая |
удовлетворительно |
50 |
Юрьев Ю.Ю. |
исправлено |
| 4 |
Форшмак картофельный с сельдью |
брак |
10 |
Сидоров С.С. |
снято с реализации 1 шт. |
№2
Крокеты из моркови с изюмом
| Сырьё |
Б\1 п. |
Н\1 п. |
| Морковь |
237 |
190\175 |
Масло сливочное
или маргарин
|
5 |
5 |
| Изюм |
10 |
10 |
| Сахар |
5 |
5 |
| Крупа манная |
15 |
15 |
| Яйца |
1\5 шт. |
8 |
| Мука пшеничная |
10 |
10 |
| Масса полуфабриката
|
- |
230 |
| Маргарин |
10 |
10 |
| Масса жареных крокет
|
- |
200 |
| Мёд |
10 |
10 |
| Выход
|
- |
225 |
№3
Капуста тушённая
| Сырьё |
Б\1 п. |
Н\1 п. |
Б\20 п. |
Н\20 п. |
Б\100 п. |
Н\100 п. |
Капуста свежая
или квашеная
|
250
243
|
200
170
|
5000
4860
|
4000
3400
|
25000
24300
|
20000
17000
|
| Уксус 3% |
6 |
6 |
120 |
120 |
600 |
600 |
Кулинарный жир
или шпик
или грудинка копчёная
|
12
16
32
|
12
15
25
|
240
300
640
|
240
300
500
|
1200
1600
3200
|
1200
1500
2500
|
| Томатное пюре |
20 |
20 |
400 |
400 |
2000 |
2000 |
| Морковь |
13 |
10 |
260 |
200 |
1300 |
1000 |
| Петрушка (корень) |
7 |
5 |
140 |
100 |
700 |
500 |
| Лук репчатый |
18 |
15 |
360 |
300 |
1800 |
1500 |
| Лавровый лист |
0,02 |
0,02 |
0,4 |
0,4 |
2 |
2 |
| Перец |
0,05 |
0,05 |
1 |
1 |
5 |
5 |
| Мука пшеничная |
4 |
4 |
80 |
80 |
400 |
400 |
| Сахар |
5 |
5 |
100 |
100 |
500 |
500 |
| Выход
|
- |
200 |
- |
4000 |
- |
20000 |
Тема 2.2.2. Приготовление блюд из рыбы
№1
Мясо-рыбный цех предназначен для производства мясных, рыбных, куриных полуфабрикатов.
В мясо-рыбном цехе предусматривается организация отдельных участков для обработки мяса, птицы и рыбы. В соответствии с технологическим процессом в цехе организованы следующие рабочие места:
1. Для оттаивания, промывания мяса, приготовления порционных и мелкокусковых полуфабрикатов.
На рабочем месте установлен производственный стол (для размораживания) со встроенной моечной ванной (для обмывания). После обсушивания мясо поступает на разрубочный стул, а затем на производственный стол, где производится обвалка, зачистка мяса и выделение крупнокусковых полуфабрикатов, для приготовления порционных и мелкокусковых полуфабрикатов на столе находится разделочная доска, с левой стороны от нее лоток с сырьем, а справа с полуфабрикатами.
2. Для приготовления рубленых полуфабрикатов из мяса.
На рабочем месте по приготовлению рубленых полуфабрикатов установлен производственный стол с лотками для котлетной массы и панировки, функциональные емкости для замачивания хлеба и мясорубка.
3. Для размораживания и потрошения рыбы, приготовления порционных полуфабрикатов.
На рабочем месте размещен производственный стол со встроенной моечной ванной для дефростации, вымачивания соленой рыбы и очистки и потрошения рыбы, производственный стол с весами, разделочными досками, ящиками со специями и ножи поварской тройки для приготовления порционных полуфабрикатов.
№2
-производственные столы из нержавеющей стали с бортами
-производственные ванны
-универсальный привод, напольные мясорубки
-холодильные шкафы, морозильные камеры
-инструмент, тара, разделочные доски, маркированные для обработки рыбы и мяса
-комплект ножей поварской тройки
-весы
№3
Форшмак картофельный с сельдью
| Сырьё |
Б\1 п. |
Н\1 п. |
Б\40 п. |
Н\40 п. |
Б\100 п. |
Н\100 п. |
| Картофель |
619 |
450 |
24760 |
18000 |
61900 |
45000 |
| Сельдь |
438 |
210 |
17520 |
8400 |
43800 |
21000 |
| Лук репчатый |
119 |
100 |
4760 |
4000 |
11900 |
10000 |
| Петрушка (зелень) |
54 |
40 |
2160 |
1600 |
5400 |
4000 |
| Масло раст. |
100 |
100 |
4000 |
4000 |
10000 |
10000 |
| Майонез |
50 |
50 |
2000 |
2000 |
5000 |
5000 |
| Масса готового форшмака
|
- |
930 |
- |
37200 |
- |
93000 |
| Яйца |
1 шт. |
40 |
40 шт. |
1600 |
100 шт. |
4000 |
| Петрушка (зелень) |
41 |
30 |
1640 |
1200 |
4100 |
3000 |
| Выход
|
- |
1000 |
- |
40000 |
- |
100000 |
Тема 2.2.3. Приготовление блюд из мяса, птицы, пернатой дичи и кролика
№1
Для разделки мяса: нож-рубак, мясницкий топор, ленточная циркулярная пила, обвалочные ножи.
Для хранения: холодильное оборудование, морозильные камеры (в т.ч. камеры шоковой заморозки).
№2
Для обработки мяса и птицы – «СМ» (мясо сырое)
Для обработки рыбы – «СР» (рыба сырая)
№3
Курица, тушённая с орехами и чесноком
| Сырьё |
Б\1 п. |
Н\1 п. |
Б\30 п. |
Н\30 п. |
Б\80 п. |
Н\80 п. |
| Курица |
276 |
181 |
8280 |
5430 |
22080 |
14480 |
| Маргарин |
5 |
5 |
150 |
150 |
400 |
400 |
| Масса готовых кур
|
- |
125 |
- |
3750 |
- |
10000 |
| Лук репчатый |
60 |
50 |
1800 |
1500 |
4800 |
4000 |
| Маргарин |
15 |
15 |
450 |
450 |
1200 |
1200 |
| Орехи грецкие |
89 |
40 |
2670 |
1200 |
7120 |
3200 |
| Чеснок |
13 |
10 |
390 |
300 |
1040 |
800 |
| Петрушка (зелень) |
4 |
3 |
120 |
90 |
320 |
240 |
| Чабер (зелень) |
1 |
1 |
30 |
30 |
80 |
80 |
| Вода |
60 |
60 |
1800 |
1800 |
4800 |
4800 |
| Соус:
|
| Сметана |
40 |
40 |
1200 |
1200 |
3200 |
3200 |
| Мука пшеничная |
3 |
3 |
90 |
90 |
240 |
240 |
| Маргарин |
3 |
3 |
90 |
90 |
240 |
240 |
| Масса соуса
|
- |
40 |
- |
1600 |
- |
1600 |
| Выход
|
- |
240 |
- |
7200 |
- |
19200 |
Тема 2.2.4. Приготовление блюд из яиц и творога
№1
№2
На данное предприятие поступают яйца 1 сорта и отборка.
№3
Запеканка из творога
| Сырьё |
Б\1 п. |
Н\1 п. |
Б\20 п. |
Н\20 п. |
Б\50 п. |
Н\50 п. |
| Творог |
136 |
135 |
2720 |
2700 |
6800 |
6750 |
Крупа манная
или мука пшеничная
|
10
12
|
10
12
|
200
240
|
200
240
|
500
600
|
500
600
|
| Сахар |
15 |
15 |
300 |
300 |
750 |
750 |
| Яйца |
1\10 шт. |
4 |
2 шт. |
80 |
5 шт. |
200 |
| Маргарин столовый |
5 |
5 |
100 |
100 |
250 |
250 |
| Сухари |
5 |
5 |
100 |
100 |
250 |
250 |
| Сметана |
5 |
5 |
100 |
100 |
250 |
250 |
| Масса готовой запеканки
|
- |
150 |
- |
3000 |
- |
7500 |
| Сметана |
30 |
30 |
600 |
600 |
1500 |
1500 |
| Выход со сметаной
|
- |
180 |
- |
3600 |
- |
9000 |
Тема 2.2.5. Приготовление горячих закусок
№1
Блюда на данном предприятии готовятся по мере их спроса.
№2
Метод контроля – органолептический (проводится бракераж, данные заносятся в бракеражный журнал)
№3
Голубцы с мясом и рисом
| Сырьё |
Б\1 п. |
Н\1 п. |
Б\15 п. |
Н\15 п. |
Б\30 п. |
Н\30 п. |
| Капуста свежая |
163 |
130\120 |
2445 |
1950\1800 |
4890 |
3900\3600 |
| Говядина (котлетное мясо) |
110
|
81
|
1650
|
1215
|
3300
|
2430
|
| Крупа рисовая |
11 |
30 |
165 |
450 |
330 |
900 |
| Лук репчатый |
21 |
18 |
315 |
270 |
630 |
540 |
| Маргарин столовый |
5 |
5 |
75 |
75 |
150 |
150 |
| Масса пассерованного лука с жиром
|
-
|
12
|
-
|
180
|
-
|
360
|
| Масса фарша
|
- |
120 |
- |
1800 |
- |
3600 |
| Масса полуфабриката
|
- |
240 |
- |
3600 |
- |
7200 |
| Масса обжаренных голубцов
|
-
|
216
|
-
|
3240
|
-
|
6480
|
| Соус № 586, 587 |
- |
100 |
- |
1500 |
- |
3000 |
| Выход
|
- |
316 |
- |
4740 |
- |
9480 |
Тема 2.2.6. Приготовление горячих сладких блюд и напитков
№4
Суфле шоколадное
| Сырьё |
Б\1 п. |
Н\1 п. |
Б\35 п. |
Н\35 п. |
Б\100 п. |
Н\100 п. |
| Яйца |
2 шт. |
80 |
70 шт. |
2800 |
200 шт. |
8000 |
| Сахар |
40 |
40 |
1400 |
1400 |
4000 |
4000 |
| Молоко |
40 |
40 |
1400 |
1400 |
4000 |
4000 |
| Мука пшеничная в.с. |
8 |
8 |
280 |
280 |
800 |
800 |
| Масло сливочное |
2 |
2 |
70 |
70 |
200 |
200 |
| Шоколад |
5 |
5 |
175 |
175 |
500 |
500 |
| Масса суфле
|
- |
145 |
- |
5075 |
- |
14500 |
| Рафинадная пудра |
5 |
5 |
175 |
175 |
500 |
500 |
Молоко
или сливки
|
158
150
|
150
150
|
5530
5250
|
5250
5250
|
15800
15000
|
15000
15000
|
| Выход
|
- |
300 |
- |
10500 |
- |
30000 |
Тема 2.3. Приготовление холодных блюд и закусок
№1
Снабжение предприятия сырьём осуществляется по мере истощения запасов сырья на складе. Если на складе заканчивается какой-либо продукт – производится звонок поставщикам этого продукта, и через некоторое время на предприятие привозят следующую партию.
№2
Оборудование, инвентарь, тара, инструменты должны быть отдельными и иметь соответствующую маркировку.
Раковины для мытья рук должны быть оборудованы смесителем с горячей и холодной водой.
Раковины должны быть обеспечены мылом, электрополотенцами, бумажными рулонными полотенцами или индивидуальными салфетками.
В холодном цехе полы следует мыть не реже 2 раз в смену горячей водой с добавлением 1-2% раствора кальцинированной соды или других моющих средств, а в конце смены 1% раствором хлорной извести. Стены ежедневно протирают ветошью, смоченной в растворе кальцинированной соды.
Персонал предприятия общественного питания обязан соблюдать следующие правила личной гигиены:
- приходить на работу в чистой одежде и обуви;
- оставлять верхнюю одежду, головной убор, личные вещи в гардеробной;
- коротко стричь ногти;
- перед началом работы тщательно мыть руки с мылом, надевать чистую санитарную одежду и сменную обувь, подбирать волосы под колпак или косынку или надевать специальную сеточку для волос;
- при посещении туалета снимать санитарную одежду в специально отведенном месте, после посещения тщательно мыть руки с мылом, желательно дезинфицирующим;
- при появлении признаков простудного заболевания или кишечной дисфункции, а также нагноений, порезов, ожогов сообщать администрации и обращаться в медицинское учреждение для лечения.
№3
Салат «Осенний» из свежих овощей с рыбой
| Сырьё |
Б\1 п. |
Н\1 п. |
Б\25 п. |
Н\25 п. |
Б\50 п. |
Н\50 п. |
| Капуста белокочанная свежая |
375 |
300 |
9375 |
7500 |
18750 |
15000 |
| Капуста брюссельская свежая (кочанчики) |
169
|
110
|
4225
|
2750
|
8450
|
5500
|
| Редис белый обрезной |
123 |
80 |
3075 |
2000 |
6150 |
4000 |
| Морковь |
100 |
80 |
2500 |
2000 |
5000 |
4000 |
| Яблоки свежие |
114 |
80 |
2850 |
2000 |
5700 |
4000 |
Окунь морской горячего копчения
или треска горячего копчения
|
240
277
|
180
180
|
6000
6925
|
4500
4500
|
12000
13850
|
9000
9000
|
| Лимон |
119 |
50 |
2975 |
1250 |
5950 |
2500 |
| Майонез |
100 |
100 |
2500 |
2500 |
5000 |
5000 |
| Петрушка (зелень) |
41 |
30 |
1025 |
750 |
2050 |
1500 |
| Выход
|
- |
1000 |
- |
25000 |
- |
50000 |
Тема 2.4. Приготовление холодных сладких блюд и напитков
№1
На рабочем месте для приготовления салатов и винегретов устанавливают стол со встроенной ванной для обработки свежих огурцов, помидоров и зелени. На столе находится разделочная доска с маркировкой ОС для нарезания сырых овощей. На отдельном столе со встроенным холодильным шкафом находятся овощерезки и доска с маркировкой ОВ для нарезания вареных овощей. Кроме того, используют универсальный привод, устанавливаемый в холодных цехах, в состав которого входят овощерезки для измельчения сырых и вареных овощей и механизм для перемешивания салатов и винегретов. Вручную перемешивание осуществляют в лотках или котлах с помощью весёлки. Порционирование салатов и винегретов осуществляют на том же столе, на котором нарезают овощи. Весы для взвешивания порций салата располагают перед работником, справа помещают лоток для заправленного салата и мерный инвентарь, слева столовую посуду. Продукты для оформления блюд готовят на этом же рабочем месте заранее и хранят их в охлаждаемой горке.
На рабочем месте для приготовления блюд из гастрономических продуктов и для бутербродов устанавливают стол, оснащенный средствами малой механизации и стол с охлаждением, машину для нарезания гастрономических продуктов, маслоделитель, весы. Для нарезания продуктов используют разделочную доску, ножи для сыра, гастрономические, карбовочные, яйцерезки, скребки для масла и т. п.
На рабочем месте для приготовления заливных блюд целесообразно установить стол с охлаждением и холодильный шкаф. Для нарезания мясных и рыбных продуктов используют разделочную доску с маркировкой МВ и РВ, ножи поварской тройки. Порции взвешивают на весах и укладывают в лотки или формы. На этом же столе заранее подготавливают украшения из вареных овощей, яиц и зелени. При этом используют фигурные выемки и карбовочный нож. При отпуске блюда делят на части и укладывают с помощью лопатки на тарелки.
Рабочее место для приготовления холодных супов должно быть расположено рядом с рабочим местом по приготовлению салатов и винегретов, а в небольших предприятиях может быть совмещено с ним. Для таких холодных супов, как окрошка, ботвинья, свекольник, вареные и сырые овощи нарезают на овощерезках, входящих в состав универсального привода для холодных цехов. Для нарезания зеленого лука используют устройство для нарезания зелени. Супы заправляют в наплитных котлах. Продукты, входящие в состав холодных супов, варят заранее в горячем цехе. Холодные супы отпускают в суповых мисках или глубоких тарелках. Рабочее место для приготовления сладких блюд и холодных сладких супов оснащают столом с ванной и столом с охлаждением. Это рабочее место желательно располагать рядом с рабочим местом по приготовлению салатов и винегретов.
Поступающие в цех ягоды и фрукты тщательно промывают, обсушивают и отпускают в натуральном виде, со сливками, с сахаром или используют для приготовления компотов, киселей, фруктовых отваров. При переработке большого количества фруктов их моют в овощном цехе. При приготовлении желированных сладких блюд из фруктов и ягод отжимают сок с помощью соковыжималки. Приготовленный для желе сироп разливают по формам и лоткам. Сироп для мусса взбивают, а затем разливают по формам. Сладкие блюда охлаждают в холодном цехе, оснащенном холодильными шкафами. При порционировании сладких блюд используют мерный инвентарь и весы.
№2
№3
«СО» - сырые овощи, «ВМ» - вареное мясо, «ВР» - вареная рыба, «ВО» - вареные овощи, «МГ» - мясная гастрономия, «Зелень», «КО» - квашеные овощи, «Сельдь», «РГ» - рыбная гастрономия.
№4
Мороженое «Сюрприз»
| Сырьё |
Б\1 п. |
Н\1 п. |
Б\35 п. |
Н\35 п. |
Б\100 п. |
Н\100 п. |
| Пломбир |
100 |
100 |
3500 |
3500 |
10000 |
10000 |
| Яйца (белки) |
2 шт. |
48 |
70 шт. |
1680 |
200 шт. |
4800 |
| Рафинадная пудра |
40 |
40 |
1400 |
1400 |
4000 |
4000 |
| Бисквит |
50 |
50 |
1750 |
1750 |
5000 |
5000 |
| Плоды консервированные (яблоки или груши) |
50
|
50
|
1750
|
1750
|
5000
|
5000
|
| Рафинадная пудра |
5 |
5 |
175 |
175 |
500 |
500 |
| Сироп консервированного компота |
25
|
25
|
875
|
875
|
2500
|
2500
|
| Выход
|
- |
300 |
- |
10500 |
- |
30000 |
Тема 2.5. Оформление и отпуск готовой продукции
№1
Между кухней и раздачей (кассой) находится мармит, разделённый на ячейки. Каждая ячейка предназначена для одного конкретного блюда. С кухни блюда через мармит поступают на раздачу (кассу), где распределяются по заказам и отпускаются. Горячие, холодные напитки и часть продукции (коктейли, мягкое мороженое) готовятся на раздаче (кассе).
№2
1 - прилавок для подносов; 2 - прилавок для холодных и сладких блюд; 3 - прилавок-мармит для первых блюд; 4 - прилавок-мармит для вторых блюд; 5 - прилавок для горячих напитков; 6 - прилавок для столовых приборов; 7 - прилавок-касса.
№3
I. До работы:
1. Обеспечить наличие свободных проходов.
2. Проверить устойчивость прилавка, стеллажа, оборудования.
3. Убедиться в наличии и исправности применяемого инвентаря, приспособлений и инструментов.
4. Удобно и устойчиво разместить запасы напитков, товаров, инструмент, инвентарь, упаковочные материалы.
5. Проверить исправность электрооборудования (заземление, проводка)
II. Во время работы:
1. Содержать рабочее место, оборудование, инвентарь в чистоте.
2. Не загромождать рабочее место, проходы, пути эвакуации.
3.Оборудование, инструменты использовать только по назначению.
4. В процессе работы кофеварки следить за уровнем воды и давлением в бойлере, помпе, температурой воды при приготовлении напитка.
5. Разогрев продуктов в СВЧ-печи производить только в предназначенной для этого посуде.
|