по дисциплине
Выполнил:.
Шифр
Группа:
Факультет транспорта и строительства
Проверил:
СОДЕРЖАНИЕ
1 Общие указания и задание 3
2 Расчеты и конструирование. 9
2.1 Монолитное железобетонное перекрытие. 9
2.1.1 Компоновка перекрытия. 9
2.1.2 Расчет и конструирование плиты. 11
2.1.3 Расчет и конструирование второстепенной балки 13
2.2 Сборные железобетонные конструкции. 19
2.2.1 Компоновка перекрытия. 19
2.2.2 Расчет панели перекрытия. 20
2.2.3 Расчет и конструирование ригеля 23
2.2.4 Расчет и конструирование колонны 27
2.2.5 Расчет и конструирование фундамента колонны 30
2.3 Расчет простенка первого этажа 32
3 Графическая часть курсового проекта № 1 33
4 Оформление курсового проекта № 1 35
Литература 36
Приложение А
Целью выполнения курсового проекта является овладение основами расчета и проектирования железобетонных конструкций, изучение метода расчета сечений железобетонных конструкций по предельным состояниям (несущей способности, деформациям, образованию и раскрытию трещин).
Задание
Выполнить рабочий проект несущих конструкций многоэтажного гражданского здания с полным каркасом, включающий расчет и конструирование следующих конструкций:
- сборной панели перекрытия с напрягаемой арматурой;
- сборной колонны первого этажа;
- однопролетного ригеля.
Исходные данные для выполнения проекта:
1 Размер здания в плане L1 x L2 = 16,2 x 76 м.
2 Сетка колонн l1 x l2 = 5,4 x 7,6 м.
3 Число этажей n = 4.
4 Временная нагрузка на междуэтажное перекрытие P = 4 кН/м2.
5 Высота этажа H = 3,2 м.
6 Район строительства - г. Москва.
7 Марки материалов для железобетонных элементов с напрягаемой арматурой(плита): бетон класса В30, напрягаемая арматура из стали класса A-VI, ненапрягаемая арматура из стали класса AIII.
8 Марки материалов для железобетонных элементов с ненапрягаемой арматурой (колонна): бетон класса В15, ненапрягаемая арматура из стали класса АIII.

Рисунок 1- Схема расположения конструктивных элементов здания

Рисунок 2 - Разрез здания
2 Расчет и конструирование многопустотной предварительно напряженной плиты перекрытия при временной нагрузке 4,2 кН/м2
2.1 Исходные данные
Таблица 1 - Нагрузки на 1 м2 перекрытия
| Вид нагрузки
|
Нормативная нагрузка,
кН/м2
|
Коэффициент надежности
по нагрузке 
|
Расчетная нагрузка,
кН/м2
|
| 1
|
2
|
3
|
4
|
| Линолеум на мастике
Цементно-песчаная стяжка d=20 мм, r=1800 кг/м3
Забиваем Сайты В ТОП КУВАЛДОЙ - Уникальные возможности от SeoHammer
Каждая ссылка анализируется по трем пакетам оценки: SEO, Трафик и SMM.
SeoHammer делает продвижение сайта прозрачным и простым занятием.
Ссылки, вечные ссылки, статьи, упоминания, пресс-релизы - используйте по максимуму потенциал SeoHammer для продвижения вашего сайта.
Что умеет делать SeoHammer
— Продвижение в один клик, интеллектуальный подбор запросов, покупка самых лучших ссылок с высокой степенью качества у лучших бирж ссылок.
— Регулярная проверка качества ссылок по более чем 100 показателям и ежедневный пересчет показателей качества проекта.
— Все известные форматы ссылок: арендные ссылки, вечные ссылки, публикации (упоминания, мнения, отзывы, статьи, пресс-релизы).
— SeoHammer покажет, где рост или падение, а также запросы, на которые нужно обратить внимание.
SeoHammer еще предоставляет технологию Буст, она ускоряет продвижение в десятки раз,
а первые результаты появляются уже в течение первых 7 дней.
Зарегистрироваться и Начать продвижение
Многопустотная плита перекрытия с омоноличиванием швов d=220 мм
|
0,070

3,4
|
1,3
1,3
1,1
|
0,091
0,468
3,74
|
| Постоянная нагрузка g
|
3,83
|
-
|
4,3
|
| Временная нагрузка , в том числе:
кратковременная 
длительная 
|
4
2,8
1,2
|
1,3
1,3
1,3
|
5,2
3,64
1,56
|
| Полная нагрузка 
|
7,83
|
-
|
9,5
|
Нагрузка на 1 п.м. длины плиты при номинальной её ширине 1.0 м с учетом коэффициента надежности по назначению здания (II класс ответственности) :
- расчетная постоянная кН/м;
- расчетная полная кН/м;
- нормативная постоянная кН/м;
- нормативная полная кН/м;
- нормативная постоянная и длительная кН/м.
Расчетные характеристики материалов для плиты:
Бетон – тяжелый класса по прочности на сжатие В30. МПа, МПа (таблица А.1); МПа, МПа (таблица А.2); коэффициент условий работы бетона (табл. 15[1]). Плита подвергается тепловой обработке при атмосферном давлении. Начальный модуль упругости Мпа (таблица А.3).
К трещиностойкости плиты предъявляются требования 3-ей категории. Технология изготовления плиты – агрегатно-поточная. Натяжение напрягаемой арматуры осуществляется электротермическим способом.
Арматура:
- продольная напрягаемая класса A-VI. МПа, МПа, МПа (таблица А.4).
- поперечная ненапрягаемая класса А-III, МПа, МПа, МПа (таблица А.4).
-
1.2 Расчет плиты по предельным состояниям первой группы
Определение внутренних усилий
Расчетный пролет плиты равен: м,
где 0,4м - ширина ригеля; 0,2м – площадка опирания плиты; 0,02м – конструктивный зазор между плитой и ригелем.
Поперечное конструктивное сечение плиты заменяется эквивалентным двутавровым сечением. Круглое очертание пустот заменим эквивалентным квадратным со стороной см. Размеры расчетного двутаврового сечения:
мм; мм; мм; мм; мм; b=96 – 0,9Ч15,9Ч5=24,45 см.

Рисунок 3 – Сечения плиты
Плита рассчитывается как однопролетная шарнирно-опертая балка, загруженная равномерно-распределенной нагрузкой.
Усилия от расчетной полной нагрузки:
- изгибающий момент в середине пролета
кН×м;
- поперечная сила на опорах кН.
Усилия от нормативной нагрузки:
- полной: кН×м;
- постоянной и длительной: кН×м.
Рисунок 4 - Расчетная схема плиты и эпюры усилий
Расчет по прочности сечения, нормального к продольной оси плиты
При расчете по прочности расчетное поперечное сечение плиты принимается тавровым с полкой в сжатой зоне (свесы полок в растянутой зоне не учитываются).
При расчете принимается вся ширина верхней полки мм, так как:
мм см,
где конструктивный размер плиты.
Положение границы сжатой зоны определяется согласно (3.30) [1]:
Сервис онлайн-записи на собственном Telegram-боте
Попробуйте сервис онлайн-записи VisitTime на основе вашего собственного Telegram-бота:
— Разгрузит мастера, специалиста или компанию;
— Позволит гибко управлять расписанием и загрузкой;
— Разошлет оповещения о новых услугах или акциях;
— Позволит принять оплату на карту/кошелек/счет;
— Позволит записываться на групповые и персональные посещения;
— Поможет получить от клиента отзывы о визите к вам;
— Включает в себя сервис чаевых.
Для новых пользователей первый месяц бесплатно.
Зарегистрироваться в сервисе
;
59,79Ч106 ≤ 0,9Ч17,0Ч960Ч38,45Ч(190-0,5Ч38,45)=96,4Ч106 Н*мм
Следовательно, граница сжатой зоны проходит в полке, и расчет плиты ведется как прямоугольного сечения с размерами и .
Коэффициент .
По прил. 5 методических указаний при αm=0,112 ξ=0,12 ς=0,94.
Граничная относительная высота сжатой зоны определяется по формуле (25) [1]:
, где
- характеристика сжатой зоны бетона, определяемая по формуле: ;
- коэффициент, принимаемый равным для тяжелого бетона ;
- напряжение в арматуре, МПа, принимаемое для арматуры класса A-IV
;
- напряжение, принимаемое при коэффициенте ;
- потери напряжения, равные при неавтоматизированном электротермическом способе натяжения нулю;
- предельное напряжение в арматуре сжатой зоны, принимаемое для конструкций из тяжелого бетона с учетом действующих нагрузок МПа.
;
Величина должна удовлетворять условию (1) [1]: и .
При электротермическом способе натяжения МПа, где - длина натягиваемого стержня (расстояние между наружными гранями упоров), м.
При выполнении условия (1) [1] получим МПа. Значение вводится в расчет с коэффициентом точности натяжения , определяемым по формуле (6) [1]: .
При электротермическом способе натяжения величина вычисляется по формуле (7) [1]:
, где
- число стержней напрягаемой арматуры в сечении элемента.
Число напрягаемых стержней предварительно принимаем равным числу ребер в многопустотной плите, т.е. . Тогда
.
При благоприятном влиянии предварительного напряжения . Предварительное напряжение с учетом точности натяжения составит: МПа.
При условии, что полные потери составляют примерно 30% начального предварительного напряжения, последнее с учетом полных потерь будет равно: МПа.
По формуле (70) [1]:
МПа, где
принимается при коэффициенте с учетом потерь по поз. 3…5 табл.5 [1]. При электротермическом способе натяжения, как уже отмечено выше, потери равны нулю, поэтому МПа.
МПа.
С учетом всего вышеизложенного:
.
Так как , то площадь сечения растянутой арматуры определяется по формуле (3.15) [2]:
, где
- коэффициент условий работы арматуры, учитывающий сопротивление напрягаемой арматуры выше условного предела текучести. По формуле (27) [1]:
.
Для арматуры класса A-VI . С учетом этого получим:
. Поэтому принимаем . Тогда площадь сечения арматуры будет равна:
мм2 = 3,41 см2.
Принимаем по сортаменту (таблица А.10) 3Æ12 A-VI с см2, что больше требуемой площади сечения. Вариант удовлетворяет поставленным условиям, и принимаем данную комбинация к дальнейшему расчету.
Расчет по прочности сечения, наклонного к продольной оси плиты
Расчет прочности наклонных сечений выполняется согласно п.3.29…3.31 [1]. Поперечная сила кН.
Предварительно приопорные участки плиты заармируем в соответствии с конструктивными требованиями п.5.27 [1]. Для этого с каждой стороны плиты устанавливаем по четыре каркаса длиной с поперечными стержнями 2Æ8 В500, шаг которых см. (по п.5.27 [1] мм).
По формуле (72) [1] проверяем условие обеспечения прочности по наклонной полосе между наклонными трещинами:
, где
- коэффициент, учитывающий влияние хомутов, нормальных к продольной оси элемента;
- коэффициент, учитывающий класс и вид бетона.
, но не более 1,3; где и .
; При см2 (2Æ8 В500) коэффициент поперечного армирования . Отсюда => φw1=1+5·5,85·0,0041=1,12<1,16.
Коэффициент , где для тяжелого бетона.
Делаем проверку: ;
Q=32,8 кН≤0,3Ч1,12Ч0,9Ч0,9Ч17,0Ч24,45Ч19Ч100=214934 Н = 214,93 кН
Следовательно, размеры поперечного сечения плиты достаточны для восприятия нагрузки.
Проверяем необходимость постановки расчетной поперечной арматуры исходя из условия:
, где
- коэффициент, принимаемый для тяжелого бетона.
Коэффициент, учитывающий влияние сжатых полок в двутавровых элементах, равен:
;
При этом принимается, что . С учетом этого получаем:

Коэффициент, учитывающий влияние продольной силы обжатия равен:
, где
(значение силы обжатия см. ниже) принимается с учетом коэффициента :
;
Принимаем . Тогда .
Q .
Следовательно, условие удовлетворяется, поперечная арматура ставится по конструктивным требованиям.
2.3 Расчет плиты по предельным состояниям второй группы
Геометрические характеристики приведенного сечения
Размеры расчетного двутаврового сечения определены ранее, см. п. 2.2:
- толщина полок см;
- ширина ребра см;
- ширина полок см, см.
При площадь приведенного сечения составит:
см2.
Статический момент приведенного сечения относительно нижней грани равен:

Расстояние от нижней грани до центра тяжести приведенного сечения равно:
см.
Момент инерции приведенного сечения относительно его центра тяжести равен:

Момент сопротивления приведенного сечения по нижней зоне равен:
см3;
то же, по верхней зоне:
см3.
Расстояние от центра тяжести приведенного сечения до ядровой точки, наиболее удаленной от растянутой зоны, согласно формуле (132) [1]:
.
Максимальное напряжение в сжатом бетоне от внешней нагрузки и усилия предварительного напряжения составит:
, где
- изгибающий момент от полной нормативной нагрузки,
;
- усилие обжатия с учетом всех потерь (см. расчет потерь),
Н.
Эксцентриситет усилия обжатия равен: см.
;
, принимаем . см.
Расстояние от центра тяжести приведенного сечения до ядровой точки, наименее удаленной от растянутой зоны, составляет:
см.
Упругопластический момент сопротивления по растянутой зоне, определяемый по формуле (7.37) [2]:
.
Для симметричных двутавровых сечений при .
Тогда см3; см3.
Потери предварительного натяжения арматуры
При расчете потерь коэффициент точности натяжения арматуры .
Первые потери определяются по п. 1…6 табл.5 [1] с учетом указаний п. 1.25 [1].
Потери от релаксации напряжений в арматуре при электротермическом способе натяжения стержневой арматуры равны:
МПа.
Потери от температурного перепада между натянутой арматурой и упорами , так как при агрегатно-поточной технологии форма с упорами нагревается вместе с изделием.
Потери от деформации анкеров и формы при электротермическом способе натяжения равны 0.
Потери от трения арматуры об огибающие приспособления , поскольку напрягаемая арматура не отгибается.
Потери от быстронатекающей ползучести определяются в зависимости от соотношения .
По табл. 7 [1] . Из этого условия устанавливается передаточная прочность .
Усилие обжатия с учетом потерь вычисляется по формуле (8)[1]:
Н.
Напряжение в бетоне при обжатии:

Передаточная прочность бетона МПа.
Согласно требованиям п.2.6 [1] МПа; МПа.
Окончательно принимаем МПа, тогда  .
Сжимающие напряжения в бетоне на уровне центра тяжести напрягаемой арматуры от усилия обжатия (без учета изгибающего момента от собственной массы плиты):
;
.
Так как , то потери от быстро натекающей ползучести равны:
МПа.
Первые потери МПа.
Вторые потери определяются по п. 7…11 табл.5[1]. Потери от усадки бетона МПа.
Потери от ползучести бетона вычисляются в зависимости от соотношения , где находится с учетом первых потерь.
Н.

При и  МПа.
Вторые потери МПа.
Полные потери МПа.
Так как , окончательно принимаем МПа.
Н.
Расчет по образованию трещин, нормальных к продольной оси
Для элементов, к трещинностойкости которых предъявляются требования 3-ей категории, коэффициент надежности по нагрузке . Расчет производится из условия (124) [1]:
.
Нормативный момент от полной нагрузки .
Момент образования трещин по способу ядровых моментов определяется по формуле (125) [1]:
, где
ядровый момент усилия обжатия
.
Так как , то в растянутой зоне от эксплуатационных нагрузок образование трещин не происходит.
Расчет прогиба плиты
Предельно допустимый прогиб для рассчитываемой плиты с учетом эстетических требований согласно нормам принимается равным:
см.
Определение прогиба производится только на действие постоянных и длительных нагрузок при коэффициенте надежности по нагрузке по формуле на стр. 142 [3]:
, где
для свободно опертой балки коэффициент равен:
- при равномерно распределенной нагрузке;
- при двух равных моментах по концам балки от силы обжатия.
Полная кривизна плиты на участках без трещин в растянутой зоне определяется по формулам (155 … 159) п.4.24[1].
Кривизна от постоянной и длительной нагрузки:
, где
- момент от соответствующей внешней нагрузки относительно оси, нормальной к плоскости действия изгибающего момента и проходящей через центр тяжести приведенного сечения;
- коэффициент, учитывающий влияние длительной ползучести тяжелого бетона при влажности более 40%;
- коэффициент, учитывающий влияние кратковременной ползучести тяжелого бетона;
Кривизна от кратковременного выгиба при действии усилия предварительного обжатия с учетом :
.
Поскольку напряжение обжатия бетона верхнего волокна
,
т.е. верхнее волокно растянуто, то в формуле при вычислении кривизны , обусловленной выгибом плиты вследствие усадки и ползучести бетона от усилия предварительного обжатия, принимаем относительные деформации крайнего сжатого волокна . Тогда согласно формулам (158, 159) [1]:
, где .
Прогиб от постоянной и длительной нагрузок составит:
см.
Вывод: Прогиб не превышает предельную величину:

1.4 Конструирование плиты
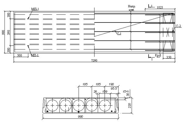
Основной рабочей арматурой плиты является предварительно напрягаемая арматура 3 Æ12 из стали класса А-VI, определяемая расчетом по нормальным сечениям и укладываемая в растянутой от действия эксплуатационных нагрузок зоне плиты.
Верхняя полка плиты армируется сеткой С-1 из проволоки класса B500. Поперечные ребра армируются каркасами Кр-1 в приопорных участках на длине l/4; в состав каркаса Кр-1 входят продольные рабочие стержни ш4 B500 и поперечные стержни

Рисунок 5- К расчету плиты: опалубка и схема армирования
4шBp-I с шагом 100мм(обеспечивающие прочность по наклонному сечению). Для усиления бетона опорной зоны плиты укладывают сетки С-2 из проволоки класса B500.
2 Расчет и конструирование колонны
Для колонн применяют бетон классов по прочности на сжатие не ниже В15, для сильно загруженных не ниже В25. Колонны армируют продольными стержнями диаметром 12-40 мм, преимущественно из горячекатаной стали класса A400 и поперечными стержнями из горячекатаной стали классов A400, A300, A240.
2.1. Исходные данные
Нагрузки на 1 м2 перекрытия принимается такой же, как и в предыдущих расчетах, нагрузка на 1 м2 покрытия приводится в табл.2.
Место строительства – г. Москва, III снеговой район.
Таблица 2
| Вид нагрузки
|
Нормативная нагрузка,
кН/м2
|
Коэффициент надежности
по нагрузке 
|
Расчетная нагрузка,
кН/м2
|
| 1
|
2
|
3
|
4
|
| Гидроизоляционный ковер 4 слоя
Армированная цементная стяжка d=40 мм, r=22 кН/м3
Пеностекло d=120 мм, r=300 кг/м3
Керамзит по уклону d=100 мм, r=1200 кг/м3
Пароизоляция 1 слой
Многопустотная плита перекрытия с омоноличиванием швов d=220 мм
|
0,190

0,36
1,2
0,05
3,4
|
1,3
1,3
1,3
1,3
1,3
1,1
|
0,247
1,144
0,468
1,560
0,065
3,74
|
| Постоянная нагрузка groof
|
6,08
|
-
|
7,22
|
| Временная нагрузка – снеговая
в том числе:
длительная[1]

|
1,26
0,37
|
1,8
0,54
|
| Полная нагрузка 
|
7,34
|
-
|
9,02
|
Материалы для колонны:
Бетон – тяжелый класса по прочности на сжатие В15. МПа, МПа (таблица А.2); коэффициент условий работы бетона (табл. 15[1]).
Арматура:
- продольная рабочая класса A400, (диаметр 12-40 мм) Мпа = 36,5 кН/см2, МПа (таблица А.4).
Принимаем размер сечения колонны см.
2.2 Определение усилий в колонне
Грузовая площадь средней колонны м2.
Постоянная нагрузка от перекрытия одного этажа с учетом коэффициента надежности по назначению здания :
,
где 4,3 кН/м2 – расчетная постоянная нагрузка на перекрытие здания (таблица 1)
Нагрузка от ригеля: , где
3,5 кН/м – погонная нагрузка от собственного веса ригеля;
5,6 м – длина ригеля при расстоянии между осями колонн 5,9 м.
Нагрузка от собственного веса колонны типового этажа:

,
где b, h – размеры сечения колонны, lэт – высота этажа, gb – объемный вес железобетона, gn - коэффициент надежности по назначению здания, gf – коэффициент надежности по нагрузке.
Нагрузка от собственного веса колонны подвального этажа:
.
Постоянная нагрузка на колонну типового этажа с одного этажа:
167,65+19,6+13,38=200,6 кН.
Постоянная нагрузка от покрытия, приходящаяся на колонну:
.
Общая постоянная нагрузка на колонну от покрытия с учетом веса ригеля:
281,5+19,6=301,1 кН.
Временная нагрузка, приходящаяся на колонну с одного этажа:
.
Временная нагрузка, приходящаяся на колонну с покрытия:
.
Коэффициент снижения временных нагрузок в многоэтажных зданиях:
, где
- число перекрытий, от которых учитывается нагрузка. Для здания, имеющего 5 этажей и подвал, имеем:
.
Нормальная сила в средней колонне на уровне подвала составит:
кН.
2.3. Расчет прочности колонны
Расчет прочности сжатых элементов из тяжелого бетона классов В15…В40 на действие продольной силы, приложенной со случайным эксцентриситетом, при допускается производить из условия:
, где
- коэффициент, определяемый по формуле: .
- коэффициенты, принимаемые по таблице А.6 и А.7 в зависимости от .
,где
- площадь всей арматуры в сечении элемента;
- для арматуры классов A240, A300, A400.
При можно принимать .
В первом приближении принимаем:
;
см2;
см2;
.
Свободная длина колонны подвала м, м (размер сечения колонны),
.
- длительно действующая нагрузка на колонну. Временная длительно действующая нагрузка на перекрытие 1,56 кН/м2, кратковременно действующая 3,9 кН/м2 (см. табл. 1), временная длительно действующая нагрузка на покрытие 0,54 кН/м2, кратковременно действующая 1,26 Н/м2.
Временная кратковременно действующая нагрузка на колонну с одного этажа:
.
Временная кратковременно действующая нагрузка на колонну с покрытия:
.
Временная кратковременно действующая нагрузка на колонну:
.
Остальная нагрузка на колонну – длительно действующая:
кН.
.
По таблицам А.6 и А.7 приложения определяем коэффициенты и : , .
.
Соответственно площадь арматуры составит:
.
т.к. Аs= - 2.0, то подбор арматуры по расчету не нужен, принимаю конструктивно, что обеспечивает процент армирования.
Окончательно принимаем 4Æ18 A400 ( см2).
, , что больше .
Следовательно, оставляем принятую арматуру с Æ18 мм.

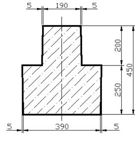
Рисунок 6 – К расчету плиты: опалубка, схема армирования, сечение колонны
3 Расчет и конструирование однопролетного ригел
я
Для опирания пустотных панелей задаемся сечением ригеля высотой см. Ригель выполняется без предварительного напряжения арматуры.
Высота сечения обычного ригеля .
3.1. Исходные данные

Нормативные и расчетные нагрузки на 1 м2 перекрытия принимаются те же, что и при расчете панели перекрытия. Ригель шарнирно оперт на консоли колонн, см. Расчетный пролет:
,
где
- пролет ригеля в осях; - размер сечения колонны;
20- зазор между колонной и торцом ригеля;
140- размер площадки опирания.
Расчетная нагрузка на 1 м длины ригеля определяется с грузовой полосы, равной шагу рам, в данном случае шаг рам 5.4 м.
Постоянная нагрузка :
-от перекрытия с учетом коэффициента надежности по назначению здания 
;
-от веса ригеля
,
где 2500 кг/м3 – плотность железобетона.
С учетом коэффициентов надежности по нагрузке и по назначению здания :
кН/м.
Итого: кН/м.
Временная нагрузка с учетом коэффициента надежности по назначению здания и коэффициента снижения временной нагрузки в зависимости от грузовой площади:
, где
м2 [5]; м2 – грузовая площадь.
.
Окончательно .
Полная нагрузка: кН/м.
3.2. Определение усилий в ригеле
Расчетная схема ригеля – однопролетная шарнирно опертая балка пролетом . Вычисляем значения максимального изгибающего момента М и максимальной поперечной силы Q от полной расчетной нагрузки:
кНм; кН.
Характеристики материалов ригеля:
Бетон – тяжелый класса по прочности на сжатие В15. МПа, МПа (табл. 13[1]); коэффициент условий работы бетона (табл. 15[1]). Начальный модуль упругости МПа (табл. 18[1]).
Арматура:
- продольная ненапрягаемая класса A-III Æ10-40 мм, МПа, МПа (табл. 19*, 22*, 29* [1]).
- поперечная ненапрягаемая класса А-III Æ6-8 мм, МПа, МПа, МПа (табл. 29* [1]).
3.3. Расчет прочности ригеля по сечению, нормальному к продольной оси
Определяем высоту сжатой зоны , где
см – рабочая высота сечения ригеля;
- относительная высота сжатой зоны, определяемая по .
Коэффициент .
По прил. 10 методических указаний при .
Высота сжатой зоны см. Граница сжатой зоны не проходит в узкой части сечения, и поэтому расчетным будет тавровое сечение.
;
;
;

;
;
;
;
;
;
;
;
;

Принимаем по прил.12 мет. указаний 4Æ20 A-III с см2. Общая площадь арматуры составляет см2, что больше требуемой.
3.4. Расчет прочности ригеля по сечению, наклонному к продольной оси
Расчет прочности ригеля по сечению, наклонному к продольной оси, выполняется согласно п.п. 3.29…3.33 [1].
Расчет производится рядом с подрезкой в месте изменения сечения ригеля.
Поперечная сила на грани подрезки на расстоянии 10 см от торца площадки опирания
кН.
Проверяем условие обеспечения прочности по наклонной полосе между наклонными трещинами по формуле (72) [1]:
, где
, но не более 1,3; где и .
; Ориентировочно принимаем коэффициент поперечного армирования . Отсюда .
Коэффициент , где для тяжелого бетона.
Делаем проверку: ; .
Следовательно, размеры поперечного сечения ригеля достаточны для восприятия нагрузки.
Проверяем необходимость постановки расчетной поперечной арматуры исходя из условия:
, где
- коэффициент, принимаемый для тяжелого бетона.
, т.к. рассматривается ригель прямоугольного сечения без предварительно напряженной арматуры;
.
Вывод: Условие не удовлетворяется, конструктивного армирования недостаточно. Поперечная арматура необходима по расчету.
Расчет для обеспечения прочности по наклонной трещине производится по наиболее опасному наклонному сечению из условия:
.
Поперечное усилие, воспринимаемое бетоном, равно ;
Для тяжелого бетона .
Определяем максимальную длину проекции опасного наклонного сечения на продольную ось ригеля :
см.
Поперечное усилие, воспринимаемое хомутами, составляет
кН.
Приняв усилия в хомутах на единицу длины ригеля равны:
Н/см.
При этом должно выполняться условие:
Н/см.
Так как , принимаем . Определяем длину проекции опасной наклонной трещины на продольную ось ригеля:
см.
Поскольку .
Уточняем величину , исходя из условия, что при 
кН.
При этом Н/см. Окончательно принимаем и тогда см.
Из условия сварки с продольной арматурой (dmax=20 мм) принимаем поперечную арматуру Æ6 A-III.
При двух каркасах см2. Шаг поперечных стержней на приопорных участках
см.
Из условия обеспечения прочности наклонного сечения в пределах участка между хомутами максимально возможный шаг поперечных стержней:
см.
Кроме того, по конструктивным требованиям согласно п.5.27 [1] поперечная арматура устанавливается:
- на приопорных участках, равных 1/4 пролета, при мм:
см и см;
- на остальной части пролета при см с шагом:
см. см.
Окончательно принимаем шаг поперечных стержней:
- на приопорных участках длиной ј пролета 1,5 м s=15 см;
- на приопорных участках в подрезке s=7,5 см;
- на остальной части пролета s= 30 см.
3.5. Построение эпюры материалов
Продольная рабочая арматура в пролете 4Æ20 A-III с см2. Площадь этой арматуры определена из расчета на действие максимального изгибающего момента в середине пролета. В целях экономии арматуры по мере уменьшения изгибающего момента к опорам два стержня обрываются в пролете, а два других доводятся до опор. Если продольная рабочая арматура разного диаметра, то до опор доводят два стержня большего диаметра.
Место теоретического обрыва верхних стержней определяется построением «эпюры материалов», которую можно считать эпюрой несущей способности ригеля при фактически применяемой арматуре.
Площадь рабочей арматуры AS(4Æ20)=12,56 см2.
Определяем изгибающий момент, воспринимаемый ригелем с полной запроектированной арматурой 4Æ20 A-III с см2:
, где см.
Из условия равновесия где :
. По прил. 10 м/у .
М(4Æ20)=365Î100Î12,56Î0,635Î40=11644376 НÎсм=116,4 кНÎм.
Изгибающий момент, воспринимаемый сечением, больше изгибающего момента, действующего в сечении:
116,4 кНÎм>27,9 кНÎм.
До опоры доводятся 2Æ20 A-III с см2.
Вычисляем изгибающий момент, воспринимаемый сечением ригеля с арматурой 2Æ20 A-III.
, где см.
. По прил. 10 м/у .
М(2Æ20)=365Î6,28Î0,82Î42Î100=7894336 НÎсм=78,9 кНÎм.
Графически по эпюре моментов определяем место теоретического обрыва стержней 2Æ20 A-III . Эпюра моментов для этого должна быть построена точно с определением значений изгибающих моментов в пролета.
Изгибающий момент в пролета равен:
.
Изгибающий момент в пролета равен:
.
Изгибающий момент в пролета равен:
.
Откладываем на этой эпюре М(2Æ20)=78,9 кНÎм в масштабе. Точка пересечения прямой с эпюрой называется местом теоретического обрыва арматуры.
Момент, воспринимаемый сечением ригеля с арматурой 4Æ20 A-III, также откладывается в масштабе на эпюре М.
Длина анкеровки обрываемых стержней определяется по следующей зависимости:
.
Поперечная сила Q определяется графически в месте теоретического обрыва, в данном случае Q=41,63 кН.
Поперечные стержни Æ6 A-III (из условия свариваемости с продольными стрежнями диаметром 20 мм) с см2 в месте теоретического обрыва имеют шаг 15 см.
;
см см.
Принимаем см. Шаг хомутов в приопорной зоне принимается равным на участке длиной 0,5 м.
Место теоретического обрыва арматуры можно определить аналитически. Для этого общее выражение для изгибающего момента нужно приравнять к моменту, воспринимаемому сечением ригеля с арматурой 2Æ20 A-III М(2Æ20)=78,9 кНÎм.
; ;
; ; ;
; - это точки теоретического обрыва арматуры.
Длина обрываемого стержня будет равна м.
Окончательно принимаем длину обрываемых стержней 2Æ20 А-III 3,6 м.
ЛИТЕРАТУРА
1. СНиП 2.03.01-84*. Бетонные и железобетонные конструкции / Госстрой России, ГУП ЦПП, 1996.
2. СНиП 52-01-2003. Бетонные и ж/бетонные конструкции / Минстрой России. - М.: ГУП НИИЖБ, 2004. – 26 с.
3. СНиП 2.01.07-85**. Нагрузки и воздействия / Минстрой России. - М.: 1996. – 44 с.
4. СП 52-101-03 Бетонные железобетонные конструкции без предварительного напряжения арматуры/ Госстрой России,2003. – 84 с.
[1]
Длительно действующая часть снегового покрова для III района берется 30% от общей снеговой нагрузки, для IV – 50%, для V-VI – 60 %, а для I-II она равна 0.
|