СОДЕРЖАНИЕ
Введение 2
1 Применение методов продажи в розничной торговле 4
1.1 Понятие терминов: форма и метод продажи 4
1.2 Отличительные особенности методов торговли, используемых
в розничном торговом предприятии 6
1.3 Технология продажи товаров 11
1.4 Состояние развития розничной торговли на современном этапе 18
2 Анализ методов продажи в действующем торговом предприятии 20
2.1 Общая характеристика предприятия 20
2.2 Организация продажи товаров в магазине «Продукты» 21
2.3 Планировка магазина 26
2.4 Прогрессивные методы продажи 28
Заключение 31
ВВЕДЕНИЕ
В процессе коммерциализации российской экономики особую значимость приобретает такая важная форма реализации товаров как, розничная торговля.
Розничная торговля - это завершающая форма продажи товаров конечному потребителю в небольших объемах через магазины, павильоны, лотки, палатки и другие пункты сети розничной торговли. Коммерческая работа по продаже в розничных торговых предприятиях в отличии от оптовых предприятий имеет свои особенности. Розничные торговые предприятия реализуют товары непосредственно населению, то есть физическим лицам, применяя свои, специфические способы и методы розничной продажи, окончательно завершают обращение от изготовителя продукции.
Торговое обслуживание населения предполагает наличие специально устроенных и оборудованных помещений, приспособленных для наилучшего обслуживания покупателей, подбора и формирования торгового ассортимента и возможности его оперативного изменения в соответствии с изменившимся спросом населения, постоянного изучения и учета потребительских запросов покупателей, умения предложить и продать товар каждому конкретному человеку.
Развитие розничной торговли нуждается в создании специальных служб по изучению и прогнозированию потребительского спроса, формированию оптимального ассортимента товаров, анализу и определению прогрессивных форм и методов розничной торговли на уровне региона, края, области, района при неукоснительной поддержке государственных и муниципальных органов власти в целях контроля за ходом розничной торговли, разработки новых видов изделий и товаров.
Правильная организация коммерческой работы в рамках розничной торговли способствует роста товарооборота, достаточно полному удовлетворению совокупного спроса населения и получению коммерческого успеха.
Среди новых методов продажи, включающих совокупность приемов и способов реализации товаров, на первый план выступают самообслуживание, обслуживание через прилавок, по образцам с открытой выкладкой и по предварительным заказам.
Процесс торговли, то есть процесс купли-продажи товаров является функцией торгового предприятия, которое осуществляет свою деятельность на основе полного хозяйственного расчета. Розничные торговые предприятия в условиях функционирования рыночной экономики представляют собой самостоятельное звено торговлей и сферой услуг.
Торговая сеть обеспечивает возможность быстро, удобно, с минимальной затратой сил и временем приобретать нужные товары и услуги в условиях свободного выбора и широкого ассортимента, недалеко от места работы и жилья в удобном и нужном количестве.
Целью курсовой работы является - рассмотрение методов розничной продажи товаров и выявление их связи с коммерческой деятельностью.
Задачи данной работы:
- дать понятие терминам форма и метод продажи
- охарактеризовать методы торговли, используемые в розничном торговом предприятии
- рассмотреть технологию продажи товаров
- проанализировать состояние розничной торговли на современном этапе
- сделать анализ методов продажи на примере действующего торгового предприятия
Объектом курсовой работы является магазин Продукты (ООО «Савинных»).
1 ПРИМЕНЕНИЕ МЕТОДОВ ПРОДАЖИ В РОЗНИЧНОЙ ТОРГОВЛЕ
1.1
Понятие терминов: форма и метод продажи
Продажа товаров является важнейшим заключительным этапом коммерческой деятельности торговых организаций и предприятий. От того, насколько успешно выполнены коммерческие операции, связанные с продажей товаров, зависит эффективность их работы, а также бесперебойность снабжения розничной торговой сети товарами .
Все операции технологического процесса в магазине, в том числе продажа, взаимосвязаны, выполняются в четкой последовательности и оказывают непосредственное влияние на конечный результат работы магазина.
Согласно ГОСТ Р 51303-99 «Торговля. Термины и определения» - форма продажи товаров - организационный прием доведения товаров до покупателей. Различают магазинные и внемагазинные формы продажи товаров. Методы продажи товаров - совокупность приемов и способов, с помощью которых осуществляется процесс продажи товаров.
Забиваем Сайты В ТОП КУВАЛДОЙ - Уникальные возможности от SeoHammer
Каждая ссылка анализируется по трем пакетам оценки: SEO, Трафик и SMM.
SeoHammer делает продвижение сайта прозрачным и простым занятием.
Ссылки, вечные ссылки, статьи, упоминания, пресс-релизы - используйте по максимуму потенциал SeoHammer для продвижения вашего сайта.
Что умеет делать SeoHammer
— Продвижение в один клик, интеллектуальный подбор запросов, покупка самых лучших ссылок с высокой степенью качества у лучших бирж ссылок.
— Регулярная проверка качества ссылок по более чем 100 показателям и ежедневный пересчет показателей качества проекта.
— Все известные форматы ссылок: арендные ссылки, вечные ссылки, публикации (упоминания, мнения, отзывы, статьи, пресс-релизы).
— SeoHammer покажет, где рост или падение, а также запросы, на которые нужно обратить внимание.
SeoHammer еще предоставляет технологию Буст, она ускоряет продвижение в десятки раз,
а первые результаты появляются уже в течение первых 7 дней.
Зарегистрироваться и Начать продвижение
Фopмы poзничнoй тopгoвли paзличaютcя:
- в зaвиcимocти oт cтeпeни "пpивязки" к cтaциoнapнoмy пoмeщeнию (тopгoвля чepeз poзничныe мaгaзины, внeмaгaзиннaя тopгoвля);
- в зaвиcимocти oт шиpoты и глyбины пpeдлaгaeмoгo accopтимeнтa (yзкocпeциaлизиpoвaнныe, yнивepcaльныe мaгaзины);
- в зaвиcимocти oт paзмepoв poзничнoгo мaгaзинa (кpyпныe, cpeдниe, мeлкиe);
- в зaвиcимocти oт пoлитики цeн (тopгyющиe пo oбычным цeнaм, пo cнижeнным цeнaм);
- в зaвиcимocти oт cтeпeни кoнцeнтpaции мaгaзинoв (pacпoлoжeнныe в цeнтpaльнoм дeлoвoм paйoнe, тopгoвыe цeнтpы микpopaйoнoв) и т.д.
При продаже товаров на торговом объекте используются различные методы обслуживания покупателей, в числе которых следующие : Метод самообслуживания — покупатели имеют открытый доступ к товарам, расположенным на торговом оборудовании, позволяющем покупателям самостоятельно производить выборку товаров. Оплата за товары производится в едином кассовом центре торгового объекта.
Метод обслуживания через прилавок — покупатели не имеют непосредственного доступа к товарам — доступ ограничен прилавком и произвести выборку товара покупатели могут только посредством обслуживающего персонала. Расчет производится либо в едином кассовом центре (товар выдается на основании кассового чека), либо непосредственно
у прилавка.
Метод открытой выкладки — товары выкладываются непосредственно на прилавках, прилавках-холодильниках, корзинах, пр. и покупатель имеет возможность осуществить выборку товаров с помощью продавца, который производит завес (если товар весовой) и оформление покупки. К числу методов обслуживания покупателей относится и продажа товаров по образцам. Принцип данного метода представляет собой предложение товаров посредством их образцов и заключение купли-продажи на основе ознакомления покупателя с образцами.
Методы и формы продажи являются главными факторами, определяющими содержание и последовательность операций технологического процесса. От этого зависят количество и характер операций, схема размещения функциональных помещений и потребность в площадях и торгово-технологическом оборудовании.
Внедрение прогрессивных методов доставки и продажи товаров обуславливает особые требования как к организации технологического процесса в магазине, так и к его устройству: планировке и компоновке технологических зон, разгрузочных площадок, дебаркадеров, прочности покрытий пола и другим конструктивным элементам.
Внедрение современных технологических решений в розничных торговых предприятиях обеспечивает интенсификацию всего торгового процесса.
Выбор форм и методов продажи товаров зависит от многих факторов. При этом учитываются ассортимент товаров, тип и размер магазина, объем товарооборота, возможность бесперебойного снабжения магазина, количество звеньев товародвижения, скорость товарооборачиваемости и др.
Основными задачами применения прогрессивных форм и методов розничной продажи являются:
Сервис онлайн-записи на собственном Telegram-боте
Попробуйте сервис онлайн-записи VisitTime на основе вашего собственного Telegram-бота:
— Разгрузит мастера, специалиста или компанию;
— Позволит гибко управлять расписанием и загрузкой;
— Разошлет оповещения о новых услугах или акциях;
— Позволит принять оплату на карту/кошелек/счет;
— Позволит записываться на групповые и персональные посещения;
— Поможет получить от клиента отзывы о визите к вам;
— Включает в себя сервис чаевых.
Для новых пользователей первый месяц бесплатно.
Зарегистрироваться в сервисе
1) разработка рациональной схемы планировки магазинов и их торговых залов;
2) повышение технического оснащения;
3) обеспечение бесперебойного снабжения магазинов максимально подготовленными к продаже товарами;
4) рациональное размещение и выкладка товаров;
5) совершенствование работы узлов расчета и др.
Цели внедрения прогрессивных форм и методов розничной продажи: увеличение пропускной способности магазинов, снижение затрат времени на обслуживание потребителей, увеличение производительности труда торгового персонала, улучшение использования материально-технической базы, снижение издержек обращения.
1.2 Отличительные особенности методов торговли, используемых в розничном торговом предприятии
Любая торговая услуга должна быть удобной для покупателей и прибыльной для тех, кто ее оказывает. Только тогда она получит массовое распространение. Преставление широкого круга качественных услуг в магазинах способствует росту товарооборачиваемости, а, следовательно, положительно влияет на прибыльность предприятий
Отметим, что, набор и качество услуг зависят от типа специализации, месторасположения магазина, условий для оказания качественных услуг, квалификации работников.
В современных условиях развитие всех видов услуг должно быть выгодно предпринимателям и удобно для потребителей. При этом все виды услуг, способствующих росту товарооборота, оборачиваемости, доходности, получают соответствующее развитие при росте доходов населения. Появляются торговые услуги, ранее не известные нашему потребителю, например: прием заказов по телефону и Интернету на доставку продуктов и горячих закусок в любое время.
Прогрессивные явления в торговле вызванные к жизни активизацией рыночных процессов, ростом требований покупателей к культуре и качеству
обслуживания становятся все более заметными.
В розничной торговле оказание услуг осуществляется главным образом в форме организации и применении современных методов торгового обслуживании. В настоящее время на предприятиях розничной торговли применяют следующие методы продажи товаров:
- торговля методом самообслуживания
-торговля через прилавок
- торговля по образцам
- торговля с открытой выкладкой и свободным доступом покупателей к товарам
- торговля по предварительным заказам
Рассмотрим эти методы более подробно:
1. Продажа товаров на основе самообслуживания стало одним из самых удобных для покупателей методов продажи товаров. Самообслуживание позволяет ускорить операции по продаже товаров, увеличить пропускную способность магазинов, расширить объем реализации товаров.
Этот метод предусматривает свободный доступ покупателей к выложенным в торговом зале товарам, возможность самостоятельно осматривать и отбирать их без помощи продавца, что позволяет более рационально распределять функции между работниками магазина. Отобранные товары оплачиваются в узлах расчета, обслуживаемых контролерами-кассирами.
При самообслуживании изменяются технологическая планировка торгового зала и других помещений магазина, организация материальной ответственности, товароснабжение, а также функции работников магазина. Этот метод применяется при продаже большинства продовольственных и непродовольственных товаров. Исключение составляют бытовые электроприборы и машины, холодильники, ковры и ковровые изделия, сервизы и хрусталь, велосипеды, мотоциклы, моторы, лодки, палатки, радио- и телевизионная аппаратура, радиодетали, ювелирные изделия, часы, сувениры и некоторые другие товары, требующие других методов продажи. В магазинах самообслуживания работники торгового зала в основном к консультируют покупателей, выкладывают товары и контролируют их сохранность, выполняют расчетные операции.
2. В отличие от метода самообслуживания продажа товаров через прилавок обслуживания включает выполнение следующих операций: встреча покупателя и выявление его намерения; предложение и показ товаров; помощь в выборе товаров и консультация; предложение сопутствующих и новых товаров; проведение технологических операций, связанных с нарезкой, взвешиванием, отмериванием; расчетные операции; упаковка и выдача покупок.
На выполнение технологических операций, связанных с нарезкой, взвешиванием, отмериванием, затрачивается много труда и времени. На качество их выполнения, а, следовательно, и на уровень обслуживания покупателей существенно влияет квалификация торгового персонала, а также организация и обслуживание рабочего места продавца.
3. Одной из современных форм продажи товаров в магазинах является продажа по образцам. Одним из важнейших преимуществ данного вида торговли, в сравнении с остальными методами продажи является рациональное использование торговой площади; возможность разместить в торговом зале весь имеющийся в магазине ассортимент товаров для широкого обозрения. Кроме того, покупатели самостоятельно и быстро знакомятся с товарами, продавцы тратят меньше времени на подбор и показ товаров и, следовательно, могут больше внимания уделить консультации покупателей, лучше изучать спрос.
Значительная роль при продаже товаров по образцам отводится продавцам-консультантам. Они должны хорошо знать свойства, назначение и условия эксплуатации товаров, давать исчерпывающую информацию покупателям и активно помогать им в выборе товара.
Продажа товаров по образцам предусматривает выкладку образцов в торговом зале и самостоятельное (или с помощью продавца) ознакомление с ними потребителей. Выставленные в торговом зале образцы товаров должны быть снабжены четко оформленными ярлыками, в которых указывают наименование товара, артикул, сорт, наименование изготовителя, цену. В случае необходимости продавцы оказывают покупателям консультативную помощь
4. Продажа товаров с открытой выкладкой более удобна по сравнению с традиционными методами, так как многие покупатели имеют возможность одновременно знакомиться с выложенными образцами товаров, не отвлекая при этом продавцов на выполнение функций, связанных с показом товаров и информацией об их ассортименте.
Применение этого метода позволяет ускорить операции по продаже товаров, увеличить пропускную способность магазина и повысить производительность труда продавцов. Как правило, этот метод применяется при продаже тех товаров, реализация которых в магазинах самообслуживания осуществляется через прилавки обслуживания. Покупатели имеют возможность самостоятельно или с помощью продавца-консультанта ознакомиться с моделями, размерами, цветом, проконсультироваться с продавцом-консультантом и сделать окончательный выбор. 5. Торговля по предварительным заказам удобна для покупателей, так как позволяет им экономить время на приобретение товаров. По предварительным заказам продают преимущественно продовольственные товары, а также непродовольственные товары сложного ассортимента. Заказы могут быть приняты в магазине, автомагазине, по месту работы или на дому покупателей. Они могут быть поданы в устной или письменной форме. Расчет осуществляется путем предварительной оплаты в кассе магазина или посредством почтового перевода (при продаже топлива и строительных материалов), а также путем оплаты стоимости товаров в момент их получения. Предварительно заказанные товары могут быть доставлены на дом или вручены покупателю в магазине.
Помимо рассмотренных нами методов розничной продажи товаров в последнее время получили распространение и другие, достаточно эффективные методы продажи товаров.
1. Тенденция приближения розничного обслуживания к потребителю нашла свое выражение в торговле через автоматы.
2. Торговля по почте – особая форма универсальной торговли без магазина. 3. Электронная коммерция (виртуальная торговля). В последние годы появился новый вид безмагазинной торговли, имеющей много общего с почтовой, - «электронная», под которой понимается осуществление покупок на дому с помощью персональных компьютеров. Оплата за купленный товар также осуществляется через компьютер при помощи специальных кредитных карточек. Перспектива этой торговли обусловлена прогрессирующим развитием в стране Интернета, а также достаточно высокой подготовленностью многих корпоративных и индивидуальных пользователей к применению информационно-телекоммуникационных технологий в коммерции. Дальнейшее развитие и совершенствование информационно-технологического и организационно-правового обеспечения значительно расширит возможности применения электронной торговли компаний с потребителями (физическими лицами), т. е. по формуле «бизнес-потребитель». Независимо от применяемого метода продажи товаров работники магазинов должны строго соблюдать правила торговли, содержащиеся в основных правилах работы магазина, правилах розничной торговли отдельными продовольственными и непродовольственными товарами и в других документах (санитарных правилах для продовольственных магазинов, правилах пользования мерами и измерительными приборами и т. д.). Из всего вышесказанного необходимо сделать вывод о том, что основной задачей торгового обслуживания – высокое качество функционирования торговли по возможно более полному удовлетворению спроса покупателей на необходимые им товары при высокой культуре обслуживания. Таким образом, высокая культура торгового обслуживания способствует увеличению товарооборачиваемости, выполнению плана товарооборота, снижению издержек обращения, увеличению суммы валового дохода, повышению прибыли торговых предприятий.
1.3 Технология продажи товаров
Различают следующие этапы продажи:
- прием и установление контакта
- выявление потребности и выслушивание
- аргументация и показ товара
- ответ на возражения
-осуществление продажи
Технология процесса продажи при различных формах продажи товаров:
а) характеристика продажи товаров через прилавок обслуживания
Продажа товаров через прилавок обслуживания включает выполнение следующих операций: встреча покупателя и выявление его намерения; предложение и показ товаров; помощь в выборе товаров и консультация; предложение сопутствующих и новых товаров; проведение технологических операций, связанных с нарезкой, взвешиванием, отмериванием; расчетные операции; упаковка и выдача покупок.
Пришедший в магазин покупатель должен встретить приветливое отношение со стороны торгового персонала. При этом благоприятное впечатление оставляют опрятный внешний вид работников магазина, порядок и чистота в торговом зале. Выявление намерения покупателей заключается в определении их отношения к моделям, фасонам и другим признакам товаров. Эта операция должна выполняться торговым персоналом ненавязчиво, в вежливой форме.
После выявления намерения покупателя продавец показывает соответствующие товары. При этом он обращает внимание на особенности отдельных товаров, предлагает взамен отсутствующих другие однородные товары. Если потребуется, продавец обязан дать квалифицированную консультацию покупателю, которая может включать сведения о назначении товаров и способах их эксплуатации, нормах потребления, соответствии предлагаемых товаров современной моде и т. д. Консультация должна способствовать пропаганде новых товаров, воспитанию у потребителей эстетических вкусов. Для проведения консультаций в крупных магазинах приглашают специалистов промышленных предприятий, производящих товары народного потребления, модельеров, врачей-косметологов и других специалистов. В обязанности продавца входит и предложение покупателю сопутствующих товаров.
На выполнение технологических операций, связанных с нарезкой, взвешиванием, отмериванием, затрачивается много труда и времени. На качество их выполнения, а следовательно, и на уровень обслуживания покупателей существенно влияет квалификация торгового персонала, а также огранизация и обслуживание рабочего места продавца.
Завершается продажа товаров расчетом с покупателями и выдачей им покупок. Эти операции могут выполняться на рабочем месте продавца или контролера-кассира. При продаже технически сложных товаров с гарантийным сроком службы, кроме перечисленных операций, продавец обязан сделать отметку в паспорте на изделие, выписать товарный чек и его копию вручить покупателю. б) характеристика формы продажи товаров самообслуживания
Продажа товаров на основе самообслуживания - один из самых удобных для покупателей методов продажи товаров. Самообслуживание позволяет ускорить операции по продаже товаров, увеличить пропускную способность магазинов, расширить объем реализации товаров. Этот метод предусматривает свободный доступ покупателей к выложенным в торговом зале товарам, возможность самостоятельно осматривать и отбирать их без помощи продавца, что позволяет более рационально распределять функции между работниками магазина. Оплата за отобранные товары осуществляется в узлах расчета, обслуживаемых контроллерами-кассирами.
При самообслуживании изменяются технологическая планировка торгового зала и других помещений магазина, организация материальной ответственности, товароснабжение, а также функции работников магазина.
Этот метод применяется при продаже большинства продовольственных и непродовольственных товаров. Исключение составляют бытовые электроприборы и машины, холодильники, ковры и ковровые изделия, сервизы и хрусталь, велосипеды, мотоциклы, моторы, лодки, палатки, радио- и телевизионная аппаратура, радиодетали, ювелирные изделия, часы, сувениры и некоторые другие товары, требующие других методов продажи, так как при выборе указанных товаров покупателям, как правило, необходимы индивидуальная помощь и консультация со стороны продавцов. Товары, требующие нарезки, упаковки и т. д., продают в магазинах самообслуживания через прилавок индивидуального обслуживания. В магазинах самообслуживания функции работников торгового зала сводятся в основном к консультированию покупателей, выкладке товаров и контролю за их сохранностью, выполнению расчетных операций. Процесс продажи здесь состоит из следующих основных операций:
- встреча покупателя и предоставление ему необходимой информации о реализуемых товарах, оказываемых услугах и т. д.;
- получение покупателем инвентарной корзины или тележки для отбора товаров; - самостоятельный отбор товаров покупателем и доставка их в узел расчета; - подсчет стоимости отобранных товаров и получение чека;
- оплата купленных товаров;
- упаковка приобретенных товаров и укладка их в сумку покупателя; - возврат инвентарной корзины или тележки для отбора товаров на место их концентрации. Перечень этих операций может быть расширен при продаже технически сложных товаров, когда требуется помощь продавца-консультанта (его консультация, проверка исправности товаров и т. д.).
Торговый персонал должен обеспечивать строгое соблюдение установленных правил торговли. Так, не разрешается требовать от покупателей, входящих в торговый зал магазина самообслуживания, предъявления приобретенных ими в других магазинах товаров, ставить на них штампы или какие-либо отметки, а также обязывать оставлять личные вещи. При желании покупатель может оставить у входа в торговый зал хозяйственную сумку, портфель и т.д., при этом магазин обязан обеспечить их сохранность.
Отобранные товары покупатели укладывают в инвентарную корзину или тележку и доставляют в узел расчета. Здесь происходит расчет как за товары, отобранные покупателем, так и за товары, отпущенные ему через прилавок обслуживания (в магазинах, где не все товары продают по методу самообслуживания). В узле расчета покупателю вручают кассовые чеки, служащие подтверждением правильности расчетов, и в случае необходимости, основанием для обмена товаров. Запрещено устраивать двойной контроль при расчетах с покупателями. Администрация магазина имеет право проводить лишь выборочную проверку правильности оплаты и контролировать работу кассира.
Для того, чтобы ускорить расчетные операции с покупателями, в магазине рекомендуется оборудовать единый узел расчета. Напряженность работы контролеров-кассиров в часы "пик" следует регулировать. Для расчетов с покупателями, совершившими мелкие покупки (1-2 предмета), выделяют "экспресс-кассы". Ускорению расчетов с покупателями способствует также применение быстродействующих и автоматизированных кассовых машин, а также механизированных расчетных узлов с механизмом для автоматической выдачи сдачи, конвейером для перемещения товаров и другими устройствами, облегчающими и ускоряющими расчетные операции с покупателями. Несмотря на существенные преимущества метода самообслуживания, в период перехода к рыночным отношениям годами создававшаяся сеть магазинов самообслуживания оказалась практически полностью разрушенной. Если до начала перестройки в городах магазинов самообслуживания было более половины от общего числа, то в период перестройки осталось 5-7 процентов. Основной причиной такого сокращения этих магазинов явилась боязнь владельцами риска хищений товаров. в) правила продажи товаров по заказам на дому у покупателей
Продажа по предварительным заказам удобна для покупателей, так как позволяет им экономить время на приобретение товаров. По предварительным заказам продают преимущественно продовольственные товары, а также непродовольственные товары сложного ассортимента. Заказы могут быть приняты в магазине, автомагазине, по месту работы или на дому покупателей. Они могут быть поданы в устной или письменной форме. Расчет осуществляется путем предварительной оплаты в кассе магазина или посредством почтового перевода (при продаже топлива и строительных материалов), а также путем оплаты стоимости товаров в момент их получения. Предварительно заказанные товары могут быть доставлены на дом или вручены покупателю в магазине. Заказы на продовольственные товары должны быть выполнены в течение 4-8 час. По непродовольственным товарам срок выполнения заказа устанавливается в зависимости от вида товаров и возможностей его исполнения. Особенно удобен этот метод продажи товаров для жителей небольших населенных пунктов, которые через магазины "Товары повседневного спроса" или автомагазины могут заказать технически сложные товары или другие товары длительного пользования, не теряя при этом время на поездки в другие населенные пункты для их приобретения.
г) Продажа товаров по образцам предусматривает выкладку образцов в торговом зале и самостоятельное (или с помощью продавца) ознакомление с ними потребителей. Выставленные в торговом зале образцы товаров должны быть снабжены четко оформленными ярлыками, в которых указывают наименование товара, артикул, сорт, наименование изготовителя, цену. В случае необходимости продавцы оказывают покупателям консультативную помощь
После выбора товаров и оплаты покупки продавец вручает покупателю товары, соответствующие образцам. При этом методе продажи рабочие запасы размещают отдельно от образцов. Данный метод удобен тем, что на сравнительно небольшой площади торгового зала можно выставить образцы достаточно широкого ассортимента товаров. Как правило этот метод применяется при продаже технически сложных и крупногабаритных товаров, а также тех товаров, которые требуют перед их отпуском покупателю их отмеривания и нарезки.
Продажу крупногабаритных товаров по образцам сочетают с доставкой их покупателям на дом со складов магазина, оптовых баз или промышленных предприятий - изготовителей. Это позволяет сократить потребность розничных торговых предприятий в складских помещениях, уменьшить совокупные транспортные расходы и избавить покупателей от хлопот, связанных с доставкой приобретенных товаров.
д) Продажа товаров с открытой выкладкой заключается в том, что запасы товаров открыто выкладываются на рабочем месте продавца, на пристенном или островном оборудовании. Покупатели имеют возможность самостоятельно ознакомиться и отобрать выложенные товары. Функции продавца при этом сводятся к консультированию покупателей, взвешиванию, упаковке и отпуску отобранных ими товаров. Расчетные операции могут осуществляться в кассах, установленных в торговом зале или на рабочем месте продавца. Продажа товаров с открытой выкладкой более удобна по сравнению с традиционными методами, так как многие покупатели имеют возможность одновременно ознакомиться с открыто выложенными образцами товаров, не отвлекая при этом продавца на выполнение функций, связанных с показом товаров и информацией об их ассортименте. Применение этого метода позволяет ускорить операции по продаже товаров, увеличить пропускную способность магазинов и повысить производительность труда продавцов. При продаже товаров по этому методу особое внимание должно быть уделено размещению и выкладке их на рабочем месте продавца. Товары должны быть снабжены ярлыками-ценниками, прикрепленными к ячейкам кассет специальными зажимами.
Наибольшее распространение такой метод продажи получил при реализации плодоовощных товаров. За рубежом этим методом реализуются одежда и обувь со скидками, бельевые, чулочно-носочные изделия, текстильная галантерея.
Помимо рассмотренных выше методов розничной продажи товаров в зарубежной практике получили и другие, достаточно эффективные методы продажи товаров. Растущая тенденция на Западе - приближение розничного обслуживания к потребителю - нашла свое выражение в торговле через автоматы. Наибольшее распространение она получила в США, где через автоматы ежегодно реализуется свыше 1,5% розничного товарооборота. Здесь с помощью автоматов продаются, кроме табачных и кондитерских изделий, книги, аптекарские и косметические товары, канцелярские принадлежности и предметы домашнего обихода. Имеются полностью автоматизированные магазины, где торговля производится круглосуточно. В последние годы появляется новый вид безмагазинной торговли, имеющей много общего с почтовой, - "электронная" торговля через Интернет-магазины. Под "электронной" торговлей понимается осуществление покупок на дому с помощью персональных компьютеров. Здесь же при помощи специальных кредитных карточек производится оплата за купленный товар.
1.4
Состояние развития розничной торговли на современном этапе
Развитие торговли России в 2010 году:
В январе-марте 2010 года сектор розничной торговли продемонстрировал рост относительно аналогичного периода предыдущего года. По итогам трех месяцев текущего года оборот розничной торговли составил 3607,6 млрд. рублей, увеличившись на 1,3% по отношению к соответствующему периоду 2009 года.
В структуре оборота розничной торговли удельный вес пищевых продуктов, включая напитки, и табачных изделий в марте 2010 года также как и в марте 2009 года составил 49%, непродовольственных товаров – 51%.
Начавшееся восстановление покупательского спроса оказало влияние на динамику продаж продовольственных товаров, в результате чего оборот розничной торговли пищевыми продуктами, включая напитки, и табачными изделиями по итогам I квартала 2010 года вырос на 3,9% к I кварталу 2009 года. В то же время оборот розничной торговли непродовольственными товарами за данный период сократился на 1,1% к I кварталу 2009 года.
В разрезе форматов торговли в марте 2010 года торгующие организации и индивидуальные предприниматели, осуществляющие деятельность вне рынка, формировали 87,4% оборота розничной торговли, а розничные рынки и ярмарки – 12,6% (справочно: в марте 2009 года – 87,1% и 12,9% соответственно).
В современных условиях на передний план выдвигаются вопросы совершенствования розничной торговли, рационализации товароснабжения магазинов, а также расширения ассортимента предлагаемых товаров и повышения их качества.
В сфере организации торговли положение дел пока неудовлетворительно. Достаточно привести такой пример: лишь чуть более 8% продовольственных товаров в России реализуется через супермаркеты и гипермаркеты, которые, как известно, обеспечивают наиболее высокий уровень торговых услуг. Поэтому сейчас приоритетным направлением является открытие современных магазинов, объединенных в торговые сети. С ростом объемов розничной торговли усиливается потребность в современных распределительных центрах. В России делаются только первые шаги в этом направлении. Между тем для рационального физического распределения товаров по территории страны огромное значение имеет развитие транспортно-логистического сервиса на основе создания крупных региональных распределительных центров. Зарубежный опыт показывает, что применение логистических схем доставки товаров через распределительные центры обеспечивает экономию до 40 процентов совокупных затрат по всей цепочке перемещения товаров от производителя до конечного потребителя продукции.
Еще одной важной сферой совершенствования торговли является создание современной инфраструктуры товародвижения, что возможно лишь при скоординированном взаимодействии множества ее элементов - транспорта, складского хозяйства, сервисного обслуживания, логистики. Для успешного развития современных форм организации розничной торговли необходимы усилия как со стороны бизнеса, так и со стороны государства. Ключевой проблемой, требующей решения, являются целенаправленные усилия государства по созданию равных конкурентных
условий для всех субъектов розничного рынка.
2.
АНАЛИЗ МЕТОДОВ ПРОДАЖИ В ДЕЙСТВУЮЩЕМ ТОРГОВОМ ПРЕДПРИЯТИИ
2.1
Общая характеристика предприятия
Магазин «Продукты» расположен по адресу город Хабаровск, ул. Серышева, 22. Это небольшой магазин с достаточно широким ассортиментом продовольственных товаров. Здание построено по типовому проекту, расположение - во встроенном помещении жилого дома.
Средний размер торговой площади магазина около 50 квадратных метров. Режим работы: ежедневно с 9.00 до 23.00.
Магазин «Продукты» зарегистрирован Инспекцией Федеральной налоговой службы по Центральному району г. Хабаровска 24 апреля 2008 года, поставлено на учет в государственной налоговой инспекции в г. Хабаровске 30 сентября 2005 года (ИНН 2721130313, КПП 272101001). (Прил.1, 2)
Магазин «Продукты» имеет расчетный счет по основной деятельности, круглую печать, другие штампы и печати, иные реквизиты.
Основной целью магазина является извлечение прибыли и удовлетворение общественных потребностей. Основными видами деятельности являются: приобретение и реализация товаров народного потребления, организация торговли и другие виды деятельности, определенные в Уставе.
Высшим руководящим органом магазина является директор. Директору непосредственно подчиняются: главный бухгалтер, начальник отдела кадров, продавцы. Отношения между участниками фирмы и трудовым коллективом регулируются коллективным договором. Каждая служба и работники действуют на основании положений об отделах и должностных инструкций работников, согласно которым определяются место, роль в системе управления, основные задачи, обязанности, права, ответственность за выполняемую работу.
Магазин расположен в довольно удачном месте. Его покупателями являются и жильцы и работники «Дома Ветеранов», а так же жители стоящих рядом домов
Товарный профиль магазина «Продукты» - это продовольственные товары. Специализация магазина организована по товарному признаку, т.е. предусматривается ограничение деятельности магазина торговлей отдельными видами или группами товаров при одновременном расширении внутригруппового ассортимента.
Товарный профиль (тип) и специализация магазина определены его Уставом. В магазине «Продукты» применяют следующий метод продажи товаров – через прилавок обслуживания.
Торговый зал магазина не очень просторный, но и поток покупателей относительно небольшой. В магазине стабильно поддерживается чистота и порядок. Продукты постоянно докладываются, то есть покупателю не приходится ждать, когда продукт вынесут со склада.
В качестве оснащения магазина используется современная торговая мебель и торгово-техническое оборудование. Включенные в его систему холодильные прилавки, прилавки-витрины требуют для хладоснабжения меньших затрат электроэнергии, не создают шума в зале, не выделяют при эксплуатации тепла, проще в обслуживании.
В целом, магазин «Продукты» можно охарактеризовать как обычный продуктовый магазин со стандартным ассортиментом.
Экономические показатели деятельности магазина
| Показатель
|
За 2008 г.
|
За 2009 г.
|
| Товарооборот |
21,0 |
45,4 |
| Валовый доход |
62,2 |
105,3 |
| Издержки |
18,6 |
39,6 |
| Результат от реализации |
46,6 |
64,7 |
| Балансовая прибыль |
46,6 |
94,4 |
| Чистая прибыль |
28,5 |
67,0 |
| Доход от внереализ. деятельности |
- |
31,7 |
Таблица 1 Сравнительная таблица важнейших финансовых показателей магазина «Продукты» за 2008- 2009 гг.
В прошедшем 2009 г. товарооборот магазина «Продукты» составил 45044 млн. руб. и увеличился почти в 2 раза по сравнению с 2008 г. (табл.1).
Валовый доход также увеличился в 1,5 раза и составил 105,3 млн. руб. В первой половине 2008 г. объем товарооборота универмага на 48% превышает соответствующий показатель первого полугодия предыдущего года. Показатель балансовой прибыли в 2009 году увеличился Чистая прибыль за январь-июнь на 7% меньше прибыли, полученной за 1 полугодие 2008г. Дебиторская задолженность компании увеличилась почти в полтора раза, причем почти 16% ее объема приходится на долги покупателей и заказчиков.
2.2
Организация продажи товаров в магазине «Продукты»
Торгово-технологический процесс в магазине представляет собой комплекс взаимосвязанные торговых и технологических операций и является завершающей стадией всего торгово-технологического процесса товародвижения. Структура торгово-технологического процесса, последовательность различных операций зависит от степени хозяйственной самостоятельности торгового предприятия, применяемого метода продажи товаров, типа, размера магазина и других факторов.
Рассмотрим все эти операции подробнее, на примере магазина.
1. Операции с товарами до предложения их покупателям.
Приемка товаров по количеству и качеству в магазине осуществляется в соответствии с правилами, установленными в инструкциях «О порядке приемки продукции производственно-технического назначения и товаров народного потребления по количеству» и «О порядке приемки продукции производственно-технического назначения и товаров народного потребления по качеству». Приемка товаров по количеству заключается в сверке массы, числа мест, единиц фактически поступивших товаров с показателями товаросопроводительных документов. Если в процессе приемки выявляется недостача, то приемка не приостанавливается. В этом случае делается соответствующая запись в накладной и составляется акт «Об установленном расхождении по количеству и качеству при приемке товарно-материальных ценностей». По результатам окончательной приемки товаров составляют акт. В нем указывают количество недостающих товаров, их стоимость и другие сведения. К нему прилагают копии сопроводительных документов. Приемка товаров по качеству предполагает выявление качества и комплектности товаров, а также соответствие тары, упаковки и маркировки товаров установленным требованиям. Качество товаров должно соответствовать требованиям стандартов, технических условий, а также требованиям договора. Если при приемке обнаруживаю недоброкачественные или некомплектные товары, то составляется акт. По результатам конечной приемки составляется акт приемки по качеству. Процесс хранения товаров в магазине предусматривает их правильное размещение и укладку, создание оптимального режима, наблюдение и текущий уход за товарами.
Все камеры, также как и холодильные витрины в торговом зале имеют индикаторы температуры.
В помещениях для хранения строго соблюдаются санитарные правила.
Товары в зависимости от вида хранят в ящиках напольно, на поддонах и подтоварниках на стеллажах. Часть товарных запасов хранится на складе, часть в торговом зале, куда товар поступает после подготовки к продаже.
Торговый зал является основным торговым помещением и занимает большую долю в общей площади магазина.В торговом зале магазина используется различное торгово-технологическое оборудование:
1. Торговая мебель: стеллажи; прилавки-витрины; контрольно-кассовый узел; столы для фасовки;
2. торговое холодильное оборудование: холодильные шкафы; закрытые морозильные лари; холодильные витрины-прилавки
3. весоизмерительное оборудование: электронные весы
Размещая товары в зале и выкладывая их на торговом оборудовании, учитывают методы их продажи, особенности их хранения, упаковку.
Все товары выкладывают на оборудовании этикетками и рисунками на упаковке в сторону, обращенную к покупателям. Товары снабжаются ценниками, закрепляемыми на полках. Ценники соответствуют правилам продажи, на них указывается наименование товара, его магазинный код, цена, вес, сорт, дата.
2. Операции непосредственного обслуживания покупателей
К данным операциям относятся операции по продаже товаров. Характер и структура операций по продаже товаров зависят в первую очередь от ассортимента реализуемых товаров и методов их продажи. Как было изложено выше в магазине применяют такой метод продажи как обслуживание через прилавок.
Этот метод включает выполнение следующих операций:
· встреча покупателей, выявление его намерений;
· предложение и показ товаров;
· помощь в выборе товаров и консультация;
· проведение технологических операций, связанных с нарезкой,
взвешиванием;
· упаковка и выдача покупок.
После окончания работы на контрольно-кассовом узле, все оборудование выключается и закрывается. Ключи передаются предпринимателю. Сумма выручки ежедневно учитывается в кассовом отчете и периодически отражается в товарном отчете.
В магазине «Продукты» как и в любом другом торговом предприятии неизбежно возникают потери. Основными причинами потерь являются: истечение срока годности товаров; воровство в торговом зале; естественная убыль; предреализационные потери.
3. Соблюдение прав потребителей в магазине «Продукты»
В магазине стараются строго соблюдать права потребителей. Магазин обеспечивает изготовление продукции в соответствии с установленными требованиями к ее качеству; ·представляет продукцию на сертификацию; разрабатывает специальные правила использования продукции; устанавливает срок службы (годности) продукции; обеспечивает разработку и доведение до потребителя необходимой информации; в установленных случаях приостанавливает реализацию продукции либо снимает ее с производства, принимает меры по изъятию из оборота и у потребителей опасной продукции; в установленных случаях возмещает в полном объеме причиненный ущерб.
Продавцы по желанию потребителей дают полную характеристику товарам, рассказывают о способах их использования и употребления, кассиры оперативно обслуживают покупателей на кассовых узлах.
В торговом зале представлена вся необходимая информация для потребителей на информационном стенде, а именно:
· Лицензия на продажу алкогольной продукции.
· Санитарно-эпидемиологическое заключение.
· Ассортиментный перечень.
· Книга отзывов и предложений.
· Санитарно-эпидемиологические требования к организациям торговли и обороту в них продовольственного сырья и пищевых продуктов.
· Закон о защите прав потребителей.
· Правила поведения в магазине «Продукты».
За время работы магазина серьезных конфликтов с потребителями не было.
2.3 Планировка магазина
Планировка помещений магазина «Продукты» обеспечивает нормальные условия работы персонала, высокий уровень производительности труда работников. Устройство и размещение помещений подчинены требованиям сохранности товарно-материальных ценностей на торговом предприятии.
Совокупность помещений магазина составляет его технологическую планировку:
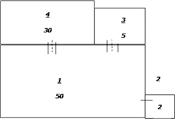
Площадь магазина составляет 85 м2
: из них 50 м2
занимают торговое помещение, 5 м2
– административно-бытовые, подсобные помещения и 30 м2
- помещения для приемки и хранения товаров.
К административно-бытовым помещениям относят, комнаты отдыха, , здравпункт, гардеробные и т. п.
     
Рис. 2. Схема помещений магазина «Продукты». вход
1 – торговый зал;
2 – центральный вход;
3 – подсобные помещения; административно-бытовые помещения
4 –помещения для приемки и хранения товаров
Торговые помещения и склад магазина «Продукты» расположены на одном уровне, они связаны между собой небольшим коридором, что позволяет оперативно пополнять товарные запасы.
Рис.3. Схема планировки в торговых залах магазина «Продукты».
  


Стеллажи - 5
Морозильные лари –3
 Холодильные витрины-прилавки - 2
Холодильные шкафы - 2
Прилавок - 1
Столы - 1
Нами проведен анализ эффективности использования торговой площади магазина «Продукты», для чего были рассчитаны коэффициент установочной и демонстрационной площади (рис. 3).
Коэффициент установочной площади (Куст
) равен отношению установочной площади к общей торговой площади.
Установочная площадь – это площадь торгового зала, занятая под размещенным торговым оборудованием и крупногабаритным товаром.
Куст =
S
уст
=10,55
= 0,21
S
тз 50 50
Таким образом, коэффициент установочной площади в магазине «Продукты» несколько меньше, чем установочный коэффициент, соответствующий стандартам (Куст
= 0,17). Это, возможно, связано с несоблюдением ширины проходов или нерациональным размещением торгового оборудования.
Коэффициент демонстрационной площади (Кдем
) равен отношению площади выкладки товаров к общей площади торгового зала.
Площадь выкладки (демонстрационная) исчисляется как сумма площадей всех элементов оборудования (полок, корзин, кассет, перфорированных щитов, панелей), на которых могут быть выложены товары. Сюда же включается и площадь, занятая под установку крупногабаритных товаров.
Кдем =
S
выкл
= 21
= 0,4
S
тз 50
Таким образом, коэффициент демонстрационной площади в магазине «Продукты» соответствует современным стандартам (Кдем
= 0,4).
2.4 Совершенствование технологической планировки с изменением метода продажи
Для создания более комфортных условий для покупателей в перспективе в магазине «Продукты» планируется использовать прогрессивный метод продажи, т.е. самообслуживание, т.к. площадь торгового зала позволяет внедрить метод самообслуживания и все необходимое оборудование имеется в магазине «Продукты».
Рассмотрим преимущества метода самообслуживания над традиционным, таблицу 2.
Таблица 2.Технолгические показатели магазина «Продукты»:
| Показатели |
Метод продажи товаров |
| а) традиционный |
б) самообслуживания |
1. Технологические
1) Количество разновидностей реализуемых товаров.
2) Коэффициент устойчивости ассортимента, k уст.
2. Социальные
1) Среднее время, затрачиваемое на покупку, мин.
2)Коэффициент завершенности покупок, k зт.
|
878
0,81
7
0,91
|
1231
0,87
4
0,98
|
Преимущество метода самообслуживания выражается социальной и экономической эффективностью. Покупатели в магазине «Продукты» затрачивают времени на покупку товара на 3 мин. меньше, чем при индивидуальном обслуживании через прилавок. Это характеризует социальный эффект самообслуживания (т.е. экономия времени на приобретение товаров). В магазине самообслуживания могут осматривать и отбирать товар практически все покупатели, которые находятся в торговом зале, что позволит ликвидировать очереди в ожидании обслуживания. Увеличение установочной и экспозиционной площадей в магазине самообслуживания, позволит расширить в торговом зале ассортимент предлагаемых товаров и тем самым увеличить комплексность покупок. Следовательно, экономический эффект при самообслуживании достигается за счет увеличения пропускной способности магазина, роста его экономических показателей (товарооборота, валового дохода, прибыли), сокращения численности торговых работников и повышения производительности, снижения уровня издержек обращения.
Несомненно, для повышения качества торгового обслуживания в магазине «Продукты» необходимо внедрить метод самообслуживания. Он позволит в полной степени удовлетворить потребности покупателей. Кроме того, этот метод обслуживания положительно повлияет на хозяйственную деятельность торгового предприятия и повысит качество торгового обслуживания.
ЗАКЛЮЧЕНИЕ
Итак, в системе обслуживания населения торговля занимает особое место. Она призвана обеспечивать повседневные потребности населения в продуктах питания, одежде, предметов домашнего обихода и других товарах. Задача торговли состоит в том, чтобы формировать ассортимент товаров, соответствующий спросу населения, рекламировать новые товары. Торговля связана также с денежным обращением и финансовой системой. От правильной организации торговли, удовлетворения спроса покупателей зависит регулярное поступление денежных средств в бюджет страны.
На современном этапе определяются основные задачи, которые призвана выполнять торговля:
- укрепление материально-технической базы торговли,
- расширение розничной торговой сети за счет строительства новых магазинов,
- увеличение числа фирменных магазинов,
- повышение уровня торгового обслуживания населения,
- развитие и внедрение различных методов торговли,
- совершенствование продажи товаров по методу самообслуживания, по предварительным заказам, расширение посылочной торговли,
- расширение работы по изучению спроса,
- совершенствование хозяйственных связей между предприятиями промышленности и торговли,
- внедрение новых достижений технологии транспортирования, хранения, переработки товаров,
- оснащение магазинов современным торговым оборудованием. Правильная организация коммерческой работы в рамках розничной торговли способствует росту товарооборота, достаточно полному удовлетворению совокупного спроса населения и получению коммерческого успеха.
СПИСОК ЛИТЕРАТУРЫ:
1. Абрютина, М.А. Экономический анализ торговой деятельности: учебник. 2-е изд. перераб. и доп. М.: Издательство «Дело и Сервис», 2005. - 648 с.
2. Абчук В.А. Коммерция: Учебник – СПб: Изд-во Михайлова В.А., 2000.- 475 с.
3. Валевич Р.П., Давыдова Г.А. Экономика торгового предприятия. -Мн.: Высшая школа, 1996. - 367 с.
4. Виноградова С. Н. Коммерческая деятельность : Учеб. пособие. –Минск: Выш. шк. ,1998. – 176 с.
5. Грузинов В.П., Грибов В.Д. Экономика предприятия: Учебное пособие. - М.: Финансы и статистика, 1997. - 208 с.
6. Гуз Р.З. Коммерческая работа в розничной торговле. 3-е изд. перераб. и доп. - М.: Дело и сервис, 2009. - 210 с.
7. Дашков Л.П. Коммерция и технология торговли: учеб. для вузов. – М.: Дашков и К, 2007 – 700 с.
8. Дашков Л.П., Памбухчинянц В.К. Коммерция и технология торговли: Учеб. для ВУЗов. – М.: Маркетинг,1999.- 445 с.
9. Дион, Джим. Розничная торговля: Как открыть собственный магазин: пер. с англ. – М.: Альпина Бизнес Букс, 2007 – 211 с.
10. Дородников В.Н. Русалева Л.Ю. Основы коммерческой деятельности. - Н.: НГАЭиУ, 1996.
11. Егоров В.Е. Организация торговли: учеб. для вузов. – СПб.: Питер, 2006 – 352 с.
12. Каплина С.А. Организация коммерческой деятельности. Учебное пособие. - Ростов-н/Д: Феникс, 2002. - 416 с.
13. Ипатова М.И., Постникова В.И., Захаровой М.К. Организация и планирование производства. - М.: Высшая школа, 1998.
14. Кожекин Г. Я., Синица Л. М. Организация производства. - Мн: ИП Экоперспектива, 1998.
15. Минько Э.В. Основы коммерции: учеб. пособие для вузов. – М.: ЮНИТИ-ДАНА, 2007 – 512 с.
16. Осипова Л. В., Синяева И. М. Основы коммерческой деятельности. : Учеб. для вузов.- М: ЮНИТИ-ДАНА, 2000. - 623 с.
17. Памбухчиянц О. В. Организация и технология коммерческой деятельности: Учеб. для средних спец. учеб. заведений. -М: «Дашков и К», 2007.-672 с.
18. Панкратов Ф. Г. Коммерческая деятельность: Учеб.- М.: Дашков и К, 2005. -504 с.
19. Платонов В. Н. Организация торговли: Учеб. пособие для вузов. - Мн.: БГЭУ, 2002
20. Половцева Ф.П. Коммерческая деятельность: Учебник – М.;ИНФА-М, 2003.-248 с.
21. Савицкая Т.В. Анализ хозяйственной деятельности предприятия. - Мн.: Экоперспектива, 1998.
22. Синоцкий Б.И. Основы коммерческой деятельности. – М.: Финансы и статистика, 2000. – 456 с.
23. Синяева И.М. Коммерческая деятельность в сфере товарного обращения.: учеб. для вузов. – М.: ЮНИТИ-ДАНА, 2005 – 368 с.
24. Экономика коммерческого предприятия: учеб. пособие для вузов. / А.У. Альбеков, С.А. Согомонян. – Ростов-н/Д: Феникс, 2002. – 448 с.
25. ФЗ "О защите прав потребителей" (с изменениями и дополнениями) от 17.12.1999. ФЗ-212 с последующими изменениями и дополнениями.
26. Экономика предприятия /Под ред. В. Я. Горфинкеля.- М.: Банки и биржи ЮНИТИ, 1998.- 742 с.
27. Яшин В.А. Организация производства. - М., Прогресс, 2000.
|