КУРСОВОЙ ПРОЕКТ
По дисциплине:
«Маркетинг»
На тему:
«Анализ рыночных возможностей услуги»
2010
Содержание.
Введение
. 3
Глава 1.
Теоретические основы анализа рыночных возможностей. 6
1.1. Задачи маркетинга в анализе рыночных возможностей. 6
1.2. Направления анализа рыночных возможностей. 9
Глава 2.
Анализ комплекса маркетинга ресторана «Портер Хаус». 12
2.1. Общая характеристика организации. 12
2.2. Анализ товарной политики. 16
2.3. Анализ ценовой политики. 18
2.4. Анализ сбытовой политики. 19
2.5. Анализ политики продвижения. 26
Глава 3.
Мероприятия по улучшению деятельности компании. 29
Заключение
. 34
Список использованных источников и литературы
.. 37
В
ведение.
В основу концепции ресторанного маркетинга положены идеи удовлетворения нужд потребителей. Появление данной концепции связано с затруднениями в сбытовой деятельности, когда кризис перепроизводства товаров потребовал исследования конъюнктуры рынка.
В начале XX в. существовало коммерческое понимание маркетинга — как метода сбыта, его цель — найти покупателя для продукции, которую производитель в состоянии выпускать.
Используя в управлении теорию маркетинга, ресторанные предприятия строят свою деятельность в соответствии с ее ключевым принципом: производить то, что продается, а не продавать то, что производится.
С 50-х годов XX в. в странах с развитой рыночной экономикой маркетинг рассматривается как ведущая функция управления, основанная на изучении потребительского спроса. В настоящее время маркетинг в сфере ресторанного бизнеса — это система организации всей деятельности турфирмы на основе комплексного изучения рынка и реальных запросов потребителей с целью получения прибыли.
Сердцем ресторанного предприятия в рыночной экономике становится отдел маркетинга — специальное управленческое звено, объединяющее действия в области сбыта, рекламы, цены и качества услуги.
Небольшие ресторанные предприятия предпочитают вид маркетинга, ориентированный на потребителя. Но здесь тоже существует риск, так как если есть потребитель, но нет нужного продукта, то в этом случае работа сделана только наполовину. Необходимо изучать запросы потребителей только из первых рук, встречаясь со своими клиентами; Этот вид деятельности должен включать разговоры с людьми посещение выставок, конференций, презентаций, а также привлечение на работу людей знающих и профессионально подготовленных.
Забиваем Сайты В ТОП КУВАЛДОЙ - Уникальные возможности от SeoHammer
Каждая ссылка анализируется по трем пакетам оценки: SEO, Трафик и SMM.
SeoHammer делает продвижение сайта прозрачным и простым занятием.
Ссылки, вечные ссылки, статьи, упоминания, пресс-релизы - используйте по максимуму потенциал SeoHammer для продвижения вашего сайта.
Что умеет делать SeoHammer
— Продвижение в один клик, интеллектуальный подбор запросов, покупка самых лучших ссылок с высокой степенью качества у лучших бирж ссылок.
— Регулярная проверка качества ссылок по более чем 100 показателям и ежедневный пересчет показателей качества проекта.
— Все известные форматы ссылок: арендные ссылки, вечные ссылки, публикации (упоминания, мнения, отзывы, статьи, пресс-релизы).
— SeoHammer покажет, где рост или падение, а также запросы, на которые нужно обратить внимание.
SeoHammer еще предоставляет технологию Буст, она ускоряет продвижение в десятки раз,
а первые результаты появляются уже в течение первых 7 дней.
Зарегистрироваться и Начать продвижение
Маркетинг как концепция управления и как вид деятельности является определяющим для развития и выживания ресторанных предприятий. Маркетинговая концепция означает, что вся деятельность предприятия гостеприимства строится на трех базовых принципах: ориентация на потребителя, на цели, на системный подход.
Актуальность темы исследования. В последние годы в связи с переходом экономики страны к рыночным отношениям, использование маркетинговых исследований в деятельности предприятий общественного питания является важнейшим условием их успешного функционирования.
Сегодня очевидно, что в стране произошла переориентация с промышленного производства на сферу услуг, и общепит приносит в бюджет немалые деньги, становясь важной частью экономики. В связи с этим сфера общественного питания является одним из наиболее привлекательных объектов маркетинговых исследований, а изучение рынка ресторанного бизнеса в качестве основы принятия решений предприятиями питания представляет собой актуальность исследования.
Объектом исследования является ресторан «Портер Хаус».
Предметом исследования является анализ рыночных возможностей ресторана «Портер Хаус».
Целью данной работы является разработка рекомендаций по улучшению деятельности ресторана «Портер Хаус».
Для достижения указанной цели необходимо решить следующие задачи:
· Рассмотреть задачи маркетинга в анализе рыночных возможностей
· Рассмотреть направления анализа рыночных возможностей
· Дать общую характеристику организации
· Провести анализ товарной политики
· Провести анализ ценовой политики
· Провести анализ сбытовой политики
· Провести анализ политики продвижения
· Разработать мероприятия по улучшению деятельности компании
Информационной базой исследования послужила информация с сайта, бухгалтерская и статистичкская отчетность ресорана «Портер Хаус».
Глава 1. Теоретические основы анализа рыночных возможностей
услуги.
1.1 Задачи маркетинга в анализе рыночных возможностей
.
Задачи маркетинга определяют его основные функции:
- комплексное изучение рынка и направлений маркетинговой деятельности;
- планирование ассортимента товаров и услуг;
- формирование спроса, организация рекламы и мероприятий по стимулированию сбыта;
Сервис онлайн-записи на собственном Telegram-боте
Попробуйте сервис онлайн-записи VisitTime на основе вашего собственного Telegram-бота:
— Разгрузит мастера, специалиста или компанию;
— Позволит гибко управлять расписанием и загрузкой;
— Разошлет оповещения о новых услугах или акциях;
— Позволит принять оплату на карту/кошелек/счет;
— Позволит записываться на групповые и персональные посещения;
— Поможет получить от клиента отзывы о визите к вам;
— Включает в себя сервис чаевых.
Для новых пользователей первый месяц бесплатно.
Зарегистрироваться в сервисе
- планирование сбытовых операций;
- управление товародвижением;
- организация до- и послепродажного обслуживания потребителей;
- формирование ценовой политики предприятия.
В принципе все имеющиеся функции могут быть сведены к двум группам функций: аналитической (информационной) и управленческой. Первая предполагает проведение маркетинговых исследований. Вторая охватывает планирование и практическое осуществление маркетинговой деятельности.
Среди зарубежных исследователей вторая функция называется принципом «Четырех Пи» или marketing-mix — комплекс маркетинга[1]
.
Потребность в рыночной концепции управления в маркетинге особенно ощущается в настоящее время в связи с обострением конкурентной борьбы в странах с рыночной экономикой. Маркетинг повышает обоснованность принимаемых решений по различным вопросам производственной, научно-производственной, финансовой и сбытовой деятельности, распространяя планомерность на сферу рыночных связей. Это находит отражение в рационализации процесса товародвижения, совершенствовании практики учета и прогнозирования рыночной ситуации в процессе внутрифирменного планирования. Маркетинг позволяет найти средство смягчения и устранения кризисов перепроизводства, обеспечить соответствие спроса и предложения.
Задачи и функции маркетинга не остаются неизменными. Классик американского маркетинга Ф. Котлер отмечал: «Маркетинг — это сфера быстрого устаревания задач, политических установок, стратегий и программ». Каждая фирма должна периодически переоценивать свой общий подход к рынку, пользуясь для этого приемом, известным под названием ревизии маркетинга.
Если в индустриальную эпоху маркетинг ориентировался на массовый спрос, на рынки массового производства, где конкуренция строилась вокруг цен и издержек производства, то в информационную эпоху производитель должен выпускать прежде всего то, чего еще нет на рынке. При этом конкурентоспособность все более определяется не только возможностями предприятий обновлять ассортимент продукции и услуг, но и умением создавать для себя новый рынок. Поэтому в настоящее время стратегии маркетинга должны опираться на долгосрочный прогноз, а тактика — отражать конъюнктуру и принципы формирования рынка.
Маркетинг как рыночная концепция управления декларирует свою генеральную цель (миссию) как удовлетворение человеческих потребностей. Конкретизируя эту позицию, следует выделить, что истинные цели системы маркетинга отражают четыре альтернативных варианта:
1. достижение максимально высокого потребления;
2. достижение максимальной потребительской удовлетворенности;
3. предоставление максимально широкого выбора;
4. максимальное повышение качества жизни.
Основную обобщенную цель и задачу ресторанного предприятия, применяющего маркетинг как концепцию управления, Ф. Котлер сформулировал так: «Работа компании = ожидание клиентуры».
На более низком уровне обобщения можно говорить о более четких и конкретных количественных и качественных маркетинговых целях предприятия индустрии гостеприимства.
Качественные цели предприятия гостеприимства: из них важны те, которые ведут к росту престижа предприятия и усиливают ее социальный вес. Это:
- экономические достижения как в собственной стране, так и на зарубежных рынках;
- положительное влияние на занятость и состояние рынка труда;
- поддержка образовательных, культурных, спортивных и других социальных программ.
Количественные цели предприятия гостеприимства:
- объем прибыли;
- объем продаж в денежном и натуральном выражении;
- производительность труда на одного работающего;
- увеличение доли рынков, занимаемых фирмой (по странам, продукту или сегментам рынка).
В современных коммерческих кругах принято упрощать выбор и ранжирование количественных целей. На этой основе сложился афоризм, что «выбор цели фирмы — это выбор между высокой нормой прибыли сегодня и высокой долей рынка завтра». Безусловно, что данное утверждение не лишено логического и экономического смысла, но оно слишком упрощает проблему.
Практический маркетинг нацелен на решение следующих задач:
- обоснование необходимости производства товаров или услуг путем выявления существующего или потенциального спроса на них;
- организация научно-исследовательских и опытно-конструкторских работ по созданию проектных образцов продукции (услуг), отвечающих потребностям;
- координация и планирование производственной, сбытовой и финансовой деятельности;
- совершенствование методов сбыта и продвижения на рынке;
- регулирование и направление всей деятельности фирмы для достижения генеральных целей в области производства и сбыта.
Анализируя вышеизложенное, можно утверждать, что цель фирмы — это то, что она хочет в конечном счете достигнуть, а задачи — это то, что нужно сделать фирме для достижения целей.
В результате маркетинговых исследований рынка ресторанных услуг нужно получить:
- информацию для принятия стратегических решений (стоит ли выходить на рынок?);
- информацию для принятия тактических решений (планирование объемов продаж);
- информацию для обеспечения банка данных, находящихся в распоряжении предприятий.
1.2 Направления анализа рыночных возможностей
.
Направлениями анализа рыночных возможностей являются:
1. изучение конъюнктуры и динамики спроса на ресторанные услуги;
2. анализ изменения цен на ресторанные услуги и их заменители;
3. прогноз роста доходов потребителей и их потребностей в данных услугах;
4. использование рекламы как главного инструмента неценовой борьбы с конкурирующими фирмами;
5. стимулирование сбыта услуг (привлечение покупателей посредством предоставления льгот, расширение гарантированных прав потребителя, организация лотереи, выставок-продаж и др.);
6. планирование ассортимента товаров и услуг с учетом социально-психологических установок потребителей (общественного мнения о престижности покупки данной услуги, колебаний моды);
7. специальная организация обслуживания потребителя, основанная на принципе: услуга ищет потенциального потребителя[2]
.
Некоторые авторы вкладывают в понятие ресторанного маркетинга более глобальное содержание, как, например, это имеет место у швейцарского специалиста Е. Криппендорфа: «Ресторанный маркетинг — это систематическое изменение и координация деятельности ресторанных предприятий, а также частной и государственной политики в области гостеприимства, осуществляемой по региональным, национальным или международным планам. Цель таких изменений в том, чтобы наиболее полно удовлетворять потребности определенных групп потребителей, учитывая при этом возможности получения соответствующей прибыли».
Достаточно простое и в то же время емкое определение дает Д. К. Исмаев: «Маркетинг есть система торгово-производственной деятельности, направленная на удовлетворение индивидуальных потребностей каждого потребителя на основе выявления и изучения потребительского спроса и в целях получения максимальной прибыли».
Немецкие специалисты В. Ригер, П. Рот, А. Шранд определяют маркетинг как рыночно-ориентированное управление, направленное на достижение целей предприятия путем более эффективного, чем у конкурентов, удовлетворения потребностей клиентов. При этом подчеркивается, что маркетинг может использоваться как на уровне отдельного ресторанного предприятия, так и в деятельности ресторанных организаций, объединений на местном, региональном и национальном уровнях.
Маркетинг в ресторане следует рассматривать на разных уровнях:
-маркетинг на уровне высшего руководства — это разработка единой концепции развития всей ресторанной дестинации, включая элементы: рекреационные ресурсы, инфраструктуру сервиса, исторические и культурные ценности. Эта деятельность предполагает формирование социально-экономической стратегии страны, региона, предприятия ресторанной индустрии и позволяет создать такую комбинацию услуг, которая представляла бы собой истинную ценность для потребителя;
- маркетинг на уровне среднего звена — это разработка и внедрение комплекса маркетинговых мероприятий, включая формирование спроса, разработку набора услуг, ценовой политики, формирование каналов сбыта, информационных систем, проведение комплексных исследований и др[3]
.
Постепенно стали создаваться благоприятные условия для возникновения и деятельности самостоятельного предпринимательства, вот почему изучение и практическое применение системы маркетинга для российских ресторанов являются веянием времени.
Необходимо добавить, что широкое и успешное применение маркетинга возможно при наличии соответствующего правового обеспечения, т.е. совокупности законов и нормативных актов, создающих благоприятные условия для реализации следующих принципов:
• свободы выбора формы предпринимательства, условий производства, вида товара или услуги и др.;
• права частной собственности на средства производства и результаты труда;
• соблюдения договоров и партнерских обязательств.
Глава 2. Анализ комплекса маркетинга ресторана «Портер Хаус»
.
2.1 Общая характеристика организации
.
ООО «Портер Хаус» является юридическим лицом (Свидетельство о регистрации № 002.023.132 от 8 декабря 2002 года), имеет в собственности обособленное имущество, учитываемое на самостоятельном балансе, может от своего имени приобретать и осуществлять имущественные и личные неимущественные права, нести обязанности, быть истцом и ответчиком в суде.
Основной целью
своей деятельности, являясь коммерческой организацией, ресторан преследует извлечение прибыли.
Предметом деятельности
ООО «Портер Хаус» является:
- Организация общественного питания, создание, содержание и эксплуатация основных типов предприятий массового питания (ресторан, столовая, кафе, бар и т.д.);
- Деятельность по производству, выпуску, реализации и организации потребления продукции общественного питания, пищевой продукции и полуфабрикатов, в т.ч. колбасных изделий и копченостей, обеденной продукции, горячих, холодных, десертных блюд, закусок и напитков; а также реализация продовольственных товаров, не подлежащих длительному хранению, икры осетровых и лососевых рыб, готовой деликатесной продукции, и т.п.;
- Организация и эксплуатация хлебопекарен и кондитерских производств, выпечка и реализация хлебобулочных и иных мучных и кондитерских изделий;
- Розничная торговля пивом, прохладительными напитками, сухими и креплёными винами, водочными, коньячными изделиями (ликёром, ромом, бренди), другими алкогольными, а также табачными изделиями и шоколадом в установленном законодательством порядке;
- Организация досуга людей, создание, содержание и эксплуатация бильярдных залов, игорных комплексов и автоматов, проведение лотерей, а также работа по другим направлениям индустрии развлечений;
- Проведение банкетов, обслуживание свадеб, юбилеев, торжеств и ритуалов;
- Оказание сервисных услуг по заказам населения;
- Создание собственной производственной инфраструктуры, включая производственные и перерабатывающие мощности, складские и другие вспомогательные объекты, транспорт и сбытовую сеть (оптовую/розничную) и управление ими;
- Осуществление внедрения новых технологий приготовления, расширения ассортимента и повышения качества продукции общественного питания.
Ресторан «Портер Хаус» расположен в старом районе Москвы в районе метро Чистые Пруды. Основной зал ресторана, площадью 399м2
способен вместить 180 человек, банкетный зал рассчитан на 25 мест (36м2
), а также имеется VIP-комната, рассчитанная на 6 человек, две стены которой занимают окна.
Ресторан предлагает самые разнообразные услуги, в том числе организация детских праздников с приглашением артистов театров и цирков, самые изысканные блюда европейской и русской кухни, торты от лучших кондитеров. Стараниями одиннадцати мастеров-поваров, под руководством шеф-повара - лауреата Всемирной Берлинской олимпиады кулинарного искусства, будут удовлетворены любые потребности.
Организационная структура ресторана выглядит следующим образом:
Рис. 1. Организационная структура ресторана.
Ниже показаны три основных структурных элемента, относимых непосредственно к маркетингу в ресторане «Портер Хаус».
Функции отдела маркетинга на предприятии «Портер Хаус»
1. Аналитический отдел
Цель: Обеспечение потребности организации в информации о внешней среде Задачи: - разработка плана маркетинга;
- разработка стандартов проведения маркетинговых исследований на уровне фирмы;
- разработка бюджета, организация и проведение маркетинговых исследований;
- консультирование различных служб предприятия по вопросам продаж нового товара, планирования объема реализации.
- работа в области анализа внутриорганизационных показателей (ценообразование, эффективность продвижения продуктов и услуг, оценкой эффективности рекламы, и т.п.)
- прогнозирование объемов сбыта;
- выработка предложений по стратегии организации.
2. Отдел развития
Цель: Определение и развитие целевых сегментов, развитие продукции предприятия
Задачи: - определение потенциальных покупателей;
- разработка маркетинговых программ по определенным рынкам или продуктам;
- анализ тенденций в изменении потребительских предпочтений; - контакты с текущими и потенциальными клиентами с целью определения перспективных направлений развития производства;
- организация разработок новых продуктов и услуг, усовершенствования старых товаров;
- анализ товаров и услуг конкурентов;
- разработка бюджетов на маркетинговых программ;
3. Отдел рекламы и PR
Цель: Осуществление коммуникаций с потенциальными потребителями.
Задачи: - разработка стандартов ведения рекламных кампаний на внешнем уровне и внутри организации;
- разработка медиапланов;
- организация проведения и контроль качества рекламных кампаний;
- оценка эффективности рекламных кампаний;
- организация работ по созданию фирменного стиля и имиджа компании;
- оценка отношения внешней среды к компании;
- организация пресс-конференций, выставок, ярмарок и т.п.; - подготовка и редактирование внутрифирменных публикаций и прочих информационных материалов;
- создание и поддержание корпоративного духа внутри коллектива;
- переговоры с подрядчиками по вопросам цены и качества оказываемых услуг;
- определение рекламных расценок для организаций и частных лиц, желающих разместить рекламу на производственных и информационных площадях фирмы, или используя ее продукты и услуги;
- организация разработки печатных, аудио и видео рекламных материалов собственными силами сторонних организаций;
- обучение специалистов отдела сбыта по технике работы с рекламными материалами.
2.2 Анализ товарной политики
.
При изучении товарной политики следует выделять три составляющие: характеристику качества приготовления блюд (вкусовые свойства и внешний вид блюда), продолжительность обслуживания, а также собственно качество работ, выполняемых при обслуживании посетителей.
Ресторан предлагает своим клиентам широкий ассортимент блюд.
Таблица 1.
МЕНЮ
Фирменных и порционных блюд
ресторана
| выход, г.
|
наименование
|
цена
|
| 20 |
Масло сливочное |
6-00 |
| 50 |
Сыр |
20-00 |
| 50 |
Икра кетовая |
160-00 |
| 25 |
Икра зернистая |
490-00 |
| 75/14 |
Семга с лимоном |
135-0 |
| 25/25/15 |
Ассорти рыбное |
170-00 |
| 50 |
Сельдь с гарниром |
45-00 |
| 75 |
Осетрина отварная |
275-00 |
| 50 |
Колбаса в/к |
25-00 |
| 75/125 |
Заливная осетрина |
235-00 |
| 75/100 |
Ветчина заливная по-российски |
70-00 |
| 75 |
Креветки под майонезом |
85-00 |
| 75 |
Ростбиф |
150-00 |
| 75 |
Шейка свиная жареная |
85-00 |
| 75 |
Вырезка фаршированная |
140-00 |
| 75 |
Филе из птицы |
115-00 |
| 50 |
Колбаса с/к |
55-00 |
| 100/100 |
Сациви из кур |
80-00 |
| 150 |
Салат «Столичный» |
70-00 |
| 100 |
Огурцы свежие |
70-00 |
| 100 |
Помидоры свежие |
25-00 |
| 100 |
Маслины . |
50-00 |
| 100 |
Оливки |
65-00 |
| 80/10/10 |
Грибы маринованные с луком |
65-00 |
| 100 |
Соленья (огурцы, капуста) |
20-00 |
| 75 |
Язык отварной |
125-00 |
| ГОРЯЧИЕ БЛЮДА И ЗАКУСКИ
|
| 75 |
Грибы в сметанном соусе |
65-00 |
| 150/10 |
Блины с маслом |
20-00 |
| ПЕРВЫЕ БЛЮДА
|
| 45/300 |
Борщ московский |
50-00 |
| 45/300 |
Солянка мясная сборная |
70-00 |
| 25/45/300 |
Суп-лапша с грибами, курицей |
65-00 |
| 45/300 |
Бульон с гренками и курицей |
65-00 |
| 60/300 |
Солянка рыбная |
205-00 |
| ВТОРЫЕ БЛЮДА
|
| 125/40 |
Поджарка из осетрины |
480-00 |
| 380 |
Осетрина по-московски |
520-00 |
| 125/50 |
Осетрина жареная «Фри» |
380-00 |
| 100 |
Вырезка аппетитная филе |
220-00 |
| 100/40 |
Бифштекс по-деревенски |
195-00 |
| 125 |
Шашлык из вырезки |
230-00 |
| 100 |
Шашлык из осетрины |
410-00 |
| 100 |
Шашлык из свинины |
165-00 |
| 100 |
Поджарка из свинины |
110-00 |
| 75/200 |
Мясо тушеное по-русски |
145-00 |
| 100 |
Эскалоп из свинины |
155-00 |
| 200/75 |
Пельмени по-славянски |
95-00 |
| 128 |
Котлета из кур «Киевская» |
120-00 |
| 100 |
Бризоль из кур |
100-00 |
| 130 |
Шницель из кур по-столичному |
120-00 |
| 100 |
Бефстроганов с гарниром |
145-00 |
| СЛАДКИЕ БЛЮДА
|
| 130 |
Яблоко фаршированное в шоколадном соусе |
65-00 |
| 150 |
Яблоко «Золотой улей» |
65-00 |
| 200/20 |
Коктейль фруктовый |
65-00 |
| 100/30 |
Желе слоеное с сиропом |
20-00 |
| 165 |
Мороженое «Космос» |
30-00 |
| 150/30 |
Мороженое с джемом |
25-00 |
| ГОРЯЧИЕ И ХОЛОДНЫЕ НАПИТКИ
|
| 200 |
Чай с сахаром |
5-00 |
| 100 |
Кофе |
15-00 |
| 200 |
Молоко |
15-00 |
| 15 |
Сахар |
1-00 |
| 30 |
Джем |
10-00 |
| 200 |
Морс |
10-00 |
| 200 |
Сок |
20-00 |
| 50 |
Пирожное |
10-00 |
| 50 |
Хлеб пшеничный |
5-00 |
| 70 |
Хлеб ржаной |
6-00 |
2.3 Анализ ценовой политики
.
Ресторан «Портер Хаус» - это идеальное место для корпоративных мероприятий, фуршетов, банкетов. В ресторане также предлагаются шведский стол и комплексные обеды, оплаченные по безналичному расчёту. К примеру, стоимость питания по безналичному расчёту такова:
- Завтрак (шведский стол) – 210 руб.
- Завтрак (континентальный) – 180 руб.
- Обед – 300 руб.
- Ужин – 300 руб.
2.4 Анализ сбытовой политики
.
Клиентов ресторана (гостей) встречает у входа швейцар, который приветствует их и открывает перед ними дверь. Его напарник, дежурящий в вестибюле ресторана, провожает гостей в гардероб.
В обеденном зале клиентуру встречает метрдотель (администратор зала). Во время его отсутствия или когда он занят с другими посетителями, его обязанности выполняет старший официант.
Метрдотель или официант, заменяющий его, встретив гостей, здоровается с ними, спрашивает, сколько человек будет присутствовать, в какой части зала они хотели бы занять столик и т. д. Учитывая пожелание посетителей, он предлагает им один или несколько столиков на выбор. Получив согласие, приглашает их пройти к столу. Показывая наиболее удобный путь в проходах между столами, метрдотель идет чуть впереди.
Подойдя к столу, метрдотель может посоветовать, кому и где лучше сесть. Если в это время официант занят обслуживанием других посетителей или отсутствует в зале, меню гостям подает метрдотель. Когда официант свободен и находится около стола, то он вместе с метрдотелем помогает гостям.
Вначале меню подается женщине (или старшей из них), старшему по возрасту, юбиляру и т. п. Если же метрдотель или официант установил, что заказ будет исходить от определенного лица, то ему предлагается меню. На рабочем месте официанта должно быть несколько экземпляров меню, т. к. некоторые посетители с ним знакомятся подробно, что занимает определенное время. Подав меню, гостям предлагают прохладительные напитки, наливая их в фужеры.
Прием заказа осуществляется после обсуждения гостями меню. Официант обязан пояснить особенности блюд, ответить на вопросы. Рекомендуя какое-либо блюдо или налиток, следует разъяснить их особенности, упомянуть о соусе и гарнире. Принимая заказ, надо уточнить, когда можно подавать горячие блюда и т. п.
Кратко и четко официант вносит пометки в рабочий блокнот, стоя у стола не облокачиваясь и не опираясь на что-либо. Расчет с клиентами осуществляется после подачи всех заказанных блюд.
Подача холодных закусок (угощений) и напитков — начало процесса ознакомления гостей с продукцией ресторана. Официантам следует обращать внимание на состав продуктов и их качество, аккуратность оформления блюд и закусок и чистоту посуды.
Поднос с принесенными в зал закусками официант ставит на рабочий столик, сервант или переносной столик и затем подает гостям.
Салатники, икорницы, соусники ставят на тарелки соответствующего размера. Соусник ставят на стол ручкой в левую сторону. Если его подают на стол поставленным на тарелку, то и ложку для соуса кладут на нее, а не в соус.
Прежде чем приступить к расстановке закусок, официант должен продумать, где что лучше поставить. Не разрешается ставить закуски на тарелку, поставленную перед гостем, или на место, предназначенное для нее, подавать их через стол или непосредственно в руки гостям. Расставляя закуски и блюда, соблюдают определенную последовательность. Следует избегать расстановки одних блюд и закусок через другие, уже поставленные на стол. Если за столом сидят 2-4 человека одной компанией, то закуски, которые принято есть ранее других, рекомендуется ставить ближе к заказчику, для того чтобы он мог предложить их своим гостям.
Поставив закуски, официант берет бутылки со спиртными напитками и просит разрешения наполнить рюмки или фужеры.
При розливе напитков официантом необходимо соблюдать следующие правила:
— на 0,5 см до краев не доливают напитки в водочные, мадерные, рейнвейнские рюмки;
— только на 2/3 заполняют лафитные рюмки и бокалы для шампанского;
— наполовину заполняются фужеры.
Вновь наполняются только полностью освободившиеся рюмки, бокалы, фужеры. Доливание не выпитых до конца напитков производится только с согласия гостей.
Бутылки с налитками должны быть чистыми, без осколков и трещин, с ненарушенной заводской укупоркой и этикеткой. Температура напитков, соблюдение правил хранения во многом определяют их вкусовые качества, поэтому следует обращать на это серьезное внимание. Так, начало порчи белого столового вина, пива, фруктовых вод, прозрачных соков и т. п. определяется равномерным помутнением, признаком более сильной испорченности этих напитков является выпавший на дно бутылки осадок.
Подготовка стола к подаче очередного блюда заключается в следующем: надо убрать все использованные пустые и ненужные блюда, салатники, вазы, тарелки, бутылки и т. п., смести со скатерти крошки и дополнить сервировку,
Оставшиеся холодные закуски убирают со стола с согласия заказчика. Масло, овощи и салаты из них, соленья и маринады убирают лишь перед подачей десерта, так как они хорошо сочетаются с большинством горячих блюд.
Ресторанная продукция переносится в зал на подносах. Но один кувшин или графин, а также одну-две бутылки можно перенести и без подноса, поставив их на салфетку или ручник в ладонь согнутой левой руки и держа на уровне локтя.
Если заказаны сигареты, папиросы, спички, их подают гостям на пирожковой тарелке или подносе. Переносить буфетную продукцию в стеклянной посуде (в бутылках, графинах, рюмках, вазах), как и пустую посуду из стекла (рюмки, фужеры, бокалы), на одном подносе вместе с продукцией кухни запрещено.
Супы подаются в мисках или супницах. Официанты разливают их в глубокие столовые тарелки разливной ложкой на переносном столике или на серванте, на виду у посетителей. К некоторым супам подается сметана. Она может быть подана отдельно в соуснике или ее кладут в суп на раздаче при отпуске.
Прежде чем подать очередное блюдо, на стол кладут приборы для него. Если заранее не была положена ложка, при подаче супа ее кладут на борт подстановочной тарелки, а поставив на стол суп, тут же перекладывают и ложку к тарелке.
Прозрачные (бульоны) и пюреобразные супы подаются в бульонных чашках. В них можно подавать и заправочные супы при условии, если продукты будут нашинкованы более мелко, чем обычно, а норма выхода на одну порцию соответственно изменена.
Как правило, горячие порционные вторые блюда отпускаются в металлической посуде на блюдах, в баранчиках, сковородках. Гарниры и соусы могут отпускаться отдельно от основного продукта, причем горячие гарниры и соусы следует подавать в металлической посуде, а холодные в фарфоровой. Несколько порций одноименных блюд по одному заказу гарнируются и отпускаются в общей многопорционной посуде.
Подача десерта, точнее время его подачи, так же, как и горячих блюд, в обязательном порядке согласуется с клиентом.
До того как подать десерт, со стола убирается вся использованная и ненужная посуда, приборы и с разрешения заказчика оставшаяся закуска, хлеб, сметаются крошки со скатерти.
Практика показывает, что большинство посетителей заказывает десертные блюда, которые можно подавать в креманках. Это мороженое натуральное и с различными наполнителями, компоты, салаты из фруктов, желе, муссы, свежие ягоды и т. д. Их ставят на десертную или пирожковую тарелку, на которую кладут десертную или чайную ложку ручкой вправо и затем ставят на стол перед посетителем.
В меню ресторанов, особенно высшего разряда, должны быть и такие десертные блюда, которые готовятся только по заказу посетителей: омлет сюрприз, суфле, кремы и т.д. Такие блюда чаще всего заказывают по несколько порций и подают в той же посуде, в которой они готовились. При подаче их обычно ставят на стол, предоставив посетителям возможность самим раскладывать блюда по тарелкам. Можно разложить их в тарелки на переносном столике или на серванте и затем подать гостям. Если к десертному блюду полагается соус, его подают отдельно в соуснике, а молоко или сливки — в молочнике.
Если на столе имеются фрукты, их едят после десерта, а при отсутствии его после горячего блюда к ним подают десертные или закусочные тарелки и фруктовые приборы.
Подача шампанского довольно часто сочетается с подачей фруктов и десертных блюд.
Шампанское подается охлажденным, и если оно принесено на стол до подачи десерта, бутылку помещают в ведерко, а для охлаждения обкладывают льдом и покрывают салфеткой, оставляя снаружи лишь верхнюю часть бутылки.
Подав десерт, с разрешения заказчика откупоривают бутылку и наполняют шампанским бокалы. Откупоривая бутылку, горлышко ее накрывают салфеткой и прижимают пробку большим пальцем левой руки (поверх салфетки). Правой рукой раскручивают замок проволочной оплетки и освобождают от нее пробку. Затем, удерживая пробку левой рукой, берут бутылку в правую руку (под салфеткой) и, держа ее с небольшим наклоном, левой рукой осторожно извлекают пробку, поворачивая ее в горлышке бутылки и постепенно выпуская выделяющийся углекислый газ.
Подача горячих напитков, как правило, завершает прием пищи. Это может быть чай или кофе.
Перейдем к описанию внешнего вида ресторана и его планировки. Зал красиво и качественно отделан. Оборудование, инвентарь находится в хорошем состоянии, отвечает эстетическим вкусам и пропускной способности зала. Комфорту посетителей служит соответствующая звукоизоляция, освещение, воздухообмен.
Чистота зала обеспечивается тщательной подготовкой зала к обслуживанию посетителей. Выполняются следующие работы: уборка зала, расстановка мебели, подготовка предметов сервировки и столового белья, сервировка столов.
Уборка зала выполняется ежедневно специальным персоналом до и после закрытия зала. При необходимости в течение дня осуществляется текущая уборка.
Расстановка мебели в зале сводится к расстановке столов, стульев (для посетителей), сервантов и подсобных столов (для официантов). Мебель должна соответствовать своему назначению, быть удобной.
Расстановка мебели в зале зависит от ряда факторов. Имеет значение площадь зала, его конфигурация, расположение окон, дверей и удобство сообщения с производственными помещениями. Должны быть учтены основные направления движения персонала и посетителей. Необходимо строго соблюдать правила техники безопасности и рационально организовывать маршруты движения официанта.
Столы в зале расставляют рядами, по диагонали, в шахматном или в свободном порядке, а также сочетанием различных вариантов расстановки. Порядок расположения мебели в зале подчеркивает планировочные достоинства зала, особенности его интерьера, а также служит наиболее эффективному использованию площади зала.
В залах есть основные и дополнительные проходы. Основной проход воспринимает первоначальный поток посетителей, который затем разделяется на меньшие. Основной проход более широкий, чем дополнительные.
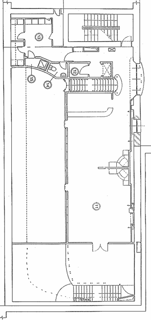
Приведем планировку ресторана «Портер Хаус».
           
Рис. 2. Схема зоны обслуживания, кухни и помещение для размещения персонала и кабинета директора в ресторане.
1 – барная стойка
2 – туалет
3 – кухня
4 – комната персонала
5 – зал 1
5а – зал 2
6 – кабинет директора
2.5 Анализ политики продвижения
.
Среди мероприятий по продвижению наибольшей популярностью у ресторана «Портер Хаус» пользуется реклама, т.к. обеспечивает создание образа предприятия и долгосрочное влияние на потребителя.
Стимулирование сбыта, в свою очередь, используется очень слабо. Например, ресторан не предоставляет скидки на праздники и торжества. Формированию привлекательного образа фирмы в глазах общественности, т.е. public relations, также не уделяется должное внимание: из традиционных методов PR можно выделить лишь выставки кулинарных искусств, рекламные проспекты. Но использование Интернет позволяет значительно дополнить традиционные приемы и снизить затраты. Рестораном применяются следующие средства Интернет: размещение на Web-сайте выпуска новостей, информации о новинках, фотографий блюд и полученных наград, и др.
Наиболее распространенным средством рекламы являются ресурсы Интернет - 44%потребителей ресторана узнали о нем из интернет. Однако, просуммировав значения, полученные посредством распространения рекламы на щитах и растяжках в городе, можно сделать вывод, что почти половина людей (41%) узнают об услугах ресторана из наружной рекламы.
По словам специалиста по рекламе, ресторан также оповещает о себе в журналах «Мир русского отдыха», «Ресторанная лоция», «Fit For Fun». Однако, учитывая, что подобный вид рекламы имеет относительно высокую стоимость и длительный временной разрыв между датой сдачи рекламных материалов и датой начала продаж, это средство распространения используется ограниченно. К примеру, в табл. 2. приводятся расценки на размещение рекламы 2003 г. в журнале «Fit For Fun» и баннерообменной сети LBN
– одного из лидеров рекламного рынка Рунета.
Таблица 2
Расценки на рекламу ведущих лидеров
| Лидеры рекламного рынка
|
Период
|
расценки в зависимости от формата, $
|
| 1/32 |
1/16 |
1/8 |
1/4 |
1/3 |
1/2 |
1/1 |
1-й разворот |
Журнал
«Fit For Fun»
|
1 полугодие
2003
|
175 |
360 |
700 |
1400 |
1900 |
3200 |
5500 |
12600 |
2 полугодие
2003
|
140 |
280 |
560 |
1120 |
- |
2240 |
3920 |
3920 |
| Баннерная сеть LBN
|
За 2003 год |
100 Respect
|
120 Respect
|
Respect
|
100 Best
|
120 Best
|
Best
|
100 Elite
|
Elite
|
| 0,7 |
0,7 |
1 |
2 |
2 |
3 |
3,5 |
5 |
Приведем данные в виде диаграммы:

Рис.3. Соотношение стоимости Интернет-рекламы и рекламы в прессе
Таким образом, размещение рекламы в Интернете обходится гораздо дешевле, причем периодичность журнала - ежемесячно тираж 150 000 экземпляров, а в сети - ежедневно более 25 млн. показов рекламных баннеров (картинок размером 468х60 мм), на различных сайтах. Более того, рекламодателям гораздо легче измерить эффективность рекламной кампании в Интернет: отношение количества кликов на баннер к числу его показов. И, наконец, поскольку большинство респондентов узнали о предоставляемых услугах посредством глобальной сети, имеет смысл увеличить расходы именно на интерактивную рекламу. Тем более, что в исследуемом ресторанном комплексе не всегда на рекламу отводится достаточно средств.
Так в I
декаде 2003 года, когда ООО «Портер Хаус» только начинало свою деятельность, расходы на рекламу и вовсе отсутствовали. Поэтому достаточно очевидный вывод состоит в том, что баннер должен занять одно из центральных мест в рекламной кампании ресторана, а размещение и обновление сайтов уже возложено на аналитика маркетинговой службы ООО «Портер Хаус».
Глава 3. Мероприятия по улучшению деятельности компании
.
К совершенствованию и разработке новых услуг для ресторана «Портер Хаус» необходимо подходить крайне осторожно, поскольку необходимо соблюсти баланс между сохранением привлекательности ресторана для постоянных клиентов, созданием для них дополнительной привлекательности и привлечением новых посетителей.
Выделим несколько видов изменений, которые следует провести в ресторане:
Первые касаются улучшения качества обслуживания - это в первую очередь вопросы технического характера и профессионализма всех звеньев в цепи обслуживания клиентов. За счет замены оборудования, повышения контроля за качеством обслуживания, улучшения используемых ингредиентов блюд, корректировка меню и т. п.
Так, предлагается расширить карту вин ресторана, а также расширить меню десертов и напитков.
Вторая группа - мероприятия маркетингового характера, направленные на привлечение дополнительных клиентов и удержание постоянных.
К ним рекомендуется отнести:
проведение презентаций;
организацию новогодних банкетов, специальных культурно - досуговых мероприятий к другим праздникам; в такие дни можно предлагать специально разработанное меню.
постоянным посетителям, или сделавшим большой заказ выдается (или продается) карточка постоянного клиента, иначе - клубная карта, дающая возможность посещать ресторан со скидкой на основное меню или на определенные мероприятия, организуемые рестораном; карты можно ранжировать в зависимости от количества посещений данного ресторана или от общей суммы сделанных заказов;
организация специальных концертных программ, выступлений популярных музыкальных коллективов и т.п.
создать систему подарков и скидок в праздничные дни.
Помимо всего прочего можно организовывать дни национальных кухонь, специальные детские программы и пр.
Однако, нужно заметить, что предложения специальных блюд, которых не было в ассортиментном перечне ресторана по существующим правовым положениям не предусматривается. Поэтому этот вопрос необходимо продумать заранее.
Как усовершенствовать работу ресторана, зависит от его индивидуальных особенностей:
· направления кухни,
· ценовой политики,
· дизайна торговых залов,
· месторасположения,
· качеством обслуживания и рядом других факторов.
От того насколько комфортными в сознании потребителей представляются вышеперечисленные факторы, зависит посещаемость, количество постоянных клиентов и, в конечном итоге, объем продаж ресторанных услуг.
К различным средствам продвижения прибегают и вновь открывающиеся рестораны, и успешные рестораны, проработавшие некоторое время на рынке. Просто методы продвижения у них различны, как и затраты на продвижение.
Ситуация на рынке постоянно меняется. Меняется мода и предпочтения людей, появляется новое оборудование, открывающее новые возможности в приготовлении блюд, новые марки вин. Все это заставляет каждого ресторатора "держать руку на пульсе", подстраиваться и предвосхищать изменения и постоянно заниматься продвижением своего ресторана.
Наиболее успешные рестораны регулярно обновляют меню, вносят изменения в оформление зала, изменяют систему обслуживания. Все меняется, меняются и рестораны. Нужно привлекать новых клиентов, удерживать старых. Для этого необходимо выстраивать грамотную систему продвижения услуг ресторана.
Скидки. Использование системы скидок не всегда приводит к ожидаемым результатам. Для начала Вам необходимо увеличить поток посетителей настолько, чтобы окупить сами скидки, а уж потом попытаться извлечь дополнительный доход от их использования. В этом смысле лучше работают завуалированные скидки (комплексные обеды, бизнес-ланчи, блюдо дня и т.п.). Целесообразно дать скидку на большую компанию, посетившую Ваш ресторан или постоянным клиентам, приходящим не менее одного-двух раз в неделю, использовать систему клубных карт.
Реклама. Интернет - при грамотной организации и "раскрутке" сайта Интернет может быть весьма эффективным средством в привлечении потенциальных клиентов в Ваш ресторан. Особенно если сайт регулярно обновляется и содержит свежую информацию об изменениях в меню, о ближайших концертных программах, промоушен-акциях, публикациях. Хорошо если сайт предполагает некий интерактив, например, возможность задать вопрос и получить ответ, а также возможность резервирования столиков.
Наружная реклама - Каждый ресторан должен иметь вывеску (уже хотя бы потому, что это является обязательным требованием муниципальных властей). Дополнительно, для удобства нахождения ресторана можно разместить панель - кронштейны, штендеры, зазывал (например многие рестораны выставляют на улицу пластиковые фигуры людей, животных и т.п.). Любой элемент наружной рекламы должен быть надлежащим образом зарегистрирован и иметь так называемый паспорт рекламного места. Оплата за размещение рекламы (в бюджет) дифференцированная и зависит от местонахождения ресторана.
Реклама внутри ресторана - к ней можно отнести буклеты, листовки о ресторане, если в ресторане периодически проходят выступления музыкальных коллективов - то можно разместить информацию о таких событиях.
Почтовая рассылка. Этот элемент рекламы можно эффективно использовать в тех случаях, когда Вы примерно представляете, кто является основными клиентами Вашего ресторана. Если он рассчитан на посещения жителями из ближайших домов, или для служащих близрасположенных офисных зданий, то целесобразно известить их об этом. Кроме того, если ресторан имеет определенную направленность (например вы предполагаете, что он будет интересен для встреч бизнесменов), то нужно ориентировать рассылку именно на эту целевую аудиторию.
Реклама в средствах массовой информации - может быть эффективна при соблюдении определенных условий. Основное из них - четкое представление о том, чем ресторан «Портер Хаус» отличается от многих других. Что именно может заставить ваших клиентов приехать именно к вам, например с другого конца города. После чего эти преимущества необходимо соответствующим образом отразить в рекламном объявлении.
Сувенирная продукция - фирменные спички, зажигалки, бокалы и пр. - лишь бы они соответствовали стилю вашего ресторана. Естественно, на каждом предмете должен быть размещен фирменный знак заведения.
PR (паблик рилейшнз). PR - это технология позволяющая создать благоприятное/соответствующее мнение о Вашем ресторане у значимого для Вашего бизнеса окружения, в которое могут входить как клиенты, так и представители власти и другие заинтересованные группы. PR включает в свой арсенал различные методы: от публикаций в прессе до прямого лоббирования заведения и организации промоушен-акций.
Таким образом, совершенствование маркетинговой деятельности предприятия позволит повысить устойчивость ООО «Портер Хаус», работать по маркетинговой стратегии, соответствующей сложившейся ситуации и возможностям ресторана.
Наличие квалифицированного и хорошо обученного персонала одна из важнейших составляющих успешности ресторанного бизнеса.
Персонал - это один из ключевых элементов в структуре продаж ресторанных услуг. От слаженности и оперативности взаимодействия всех сотрудников, от их способности создать соответствующую атмосферу для посетителей напрямую зависят объемы продаж ресторана.
В системе продаж участвует весь персонал ресторана. Тем не менее, есть ключевые фигуры, способные в значительной степени влиять на поведение остальных сотрудников, создавать благоприятную рабочую атмосферу, формировать слаженную команду единомышленников. Через них происходит внедрение соответствующей корпоративной культуры во все структуры ресторана.
В качестве положительных результатов применения системы обучения персонала ресторана, можно привести следующее:
- обучение работников помогло организации успешно решить проблемы, связанные с появлением новых направлений деятельности;
- более полное использование предприятием знаний, навыков и умений работников, полученных в результате их обучения, позволило достаточно быстро окупать инвестиции, направленные на эти цели;
- с помощью обучения персонала руководство регулярно оказывает помощь сотрудникам в адаптации к изменяющимся социально-экономическим условиям, все более жестким требованиям рынка. Таким образом, повышается ценность находящихся в распоряжении предприятия человеческих ресурсов;
- и самое главное, данная система обучения позволяет не только сохранять, но и распространять среди сотрудников основные ценности и приоритеты компании.
З
аключение.
В результате анализа рыночных возможностей рынка ресторанных услуг нужно получить:
- информацию для принятия стратегических решений (стоит ли выходить на рынок?);
- информацию для принятия тактических решений (планирование объемов продаж);
- информацию для обеспечения банка данных, находящихся в распоряжении предприятий.
В систему маркетинга входят:
1. изучение конъюнктуры и динамики спроса на ресторанные услуги;
2. анализ изменения цен на ресторанные услуги и их заменители;
3. прогноз роста доходов потребителей и их потребностей в данных услугах;
4. использование рекламы как главного инструмента неценовой борьбы с конкурирующими фирмами;
5. стимулирование сбыта услуг (привлечение покупателей посредством предоставления льгот, расширение гарантированных прав потребителя, организация лотереи, выставок-продаж и др.);
6. планирование ассортимента товаров и услуг с учетом социально-психологических установок потребителей (общественного мнения о престижности покупки данной услуги, колебаний моды);
7. специальная организация обслуживания потребителя, основанная на принципе: услуга ищет потенциального потребителя.
В практической части работы были проанадизированы рыночные возможности ресторана «Портер Хаус».
Необходимо отметить, что для повышения уровня маркетинга на данном предприятии, а, следовательно, и увеличения эффективности деятельности организации в целом, необходимо в первую очередь постоянно совершенствовать уровень квалификации высшего управленческого персонала.
Среди маркетинговых мероприятий наибольшей популярностью у ресторана «Портер Хаус» пользуется реклама, т.к. обеспечивает создание образа предприятия и долгосрочное влияние на потребителя.
Чтобы превзойти в конкурентной борьбе, привлечь и удержать клиента, важно точно знать потребности посетителей, в соответствии с которыми формировать предложение, а для этого необходимо регулярно проводить маркетинговые исследования.
Проведение маркетингового исследования является сложным многоступенчатым процессом, от точности и своевременности результатов которого во многом зависит успешное функционирование всего предприятия.
Необходимым условием успешного проведения маркетингового исследования является четкое определение целей и направлений исследования.
Как показали проведенные исследования, удачное расположение ресторана «Портер Хаус», его благоприятный имидж и ожидаемый рост числа клиентов являются хорошим потенциалом для развития ресторана.
Основные проблемы ресторана заключаются в следующем:
1. Снижение размера чистой прибыли к концу года и показателя рентабельности продукции. Что, в свою очередь, неблагоприятно влияют на конкурентоспособность и успех предприятия.
2. Существенной проблемой отдела маркетинга является сложность прогнозирования спроса. Например, обычно в летний период повышается спрос на туристические услуги, что, соответственно, влияет на объем товарооборота ресторанов, расположенных в гостиницах. Однако результаты анализа показывают, что объем реализации ресторанов имеет достаточно большие колебания продаж, и можно предположить, что происходит это не только в зависимости от времени года, но и от ряда других факторов, выявить которые поможет исследование, направленное на изучение потребителей.
3. Ассортимент продукции сильно влияет на объем её реализации, поэтому необходимо исследовать меню и найти конкретные маркетинговые меры, способные увеличить спрос, а следовательно, и обеспечить эффективный сбыт, например, оптимизация номенклатуры изделий дает предприятию относительно стабильные условия обеспечения объемов реализации, покрытия расходов и уровня прибылей.
Рекомендации по закреплению сильных сторон и ликвидации слабых мест позволят ресторану получить преимущества в конкурентной борьбе и увеличить свою долю рынка.
С
писок использованных источников и литературы.
1. Азбука ресторатора: Все, что нужно знать, чтобы преуспеть в ресторанном бизнесе. – М., 2009
2. Азоев Г.Л. Конкуренция: анализ, стратегия и практика. - М.: Центр экономики и маркетинга, 2009
3. Айгистова О.В., Забаев Ю.В., Сеселкин А.И. Введение в ресторанно-гостиничный бизнес. Учебно-методическое пособие. М.: РМАТ, 1996.
4. Ансофф И. Стратегическое управление / Пер. с англ. - М.: Экономика, 1989
5. Багиев Г.Л. и др. Маркетинг: Учебник для вузов. - М.: ОАО "Изд-во "Экономика", 2009. – С.223
6. Багиев Г.Л., Тарасевич В.М., Анн X. Маркетинг: Учебник / Под ред. Г.Л. Багиева. - М.: Экономика, 2009
7. Березин И.С. Маркетинг и исследования рынков. - М.: Русская Деловая Литература, 2009. -416 с.
8. Волкова И. В. Ресторанный бизнес в России: с чего начать и как преуспеть. М., 2009
9. Голубков Е.П. Маркетинговые исследования: теория, практика и методология. - М.: Изд-во «Финпресс», 2009. - 416 с.
10. Денисов Д. И. Как открыть кофейню. – М., 2009
11. Дурович А.П. Маркетинг предпринимательской деятельности. -Минск: НПЖ «Финансы, учет, аудит»., 2009. С. 148.
12. Котлер Ф. Маркетинг-менеджмент / Пер. с англ. - 9-е международное изд. - Спб.: Питер Ком., 1998
13. Котлер Ф. Основы маркетинга. - М.: Прогресс, 1990. - 736 с.
14. Кретов И.И. Маркетинг на предприятии. - М.: Финстатинформ, 2009
15. Моррис Р. Маркетинг: ситуации и примеры / Пер. с англ. - М.: Изд-во «Банки и биржи», 1999.
16. Немых В. А., Технология приготовления пищи. СПб. 1998г.
17. Организация работы предприятий общественного питания. Под ред. Омельченко Г.В. М.,1999 г.
18. Эванс Дж:., Берман Б. Маркетинг / Пер. с англ. - М., Экономика, 1990
19. Белогур Н. Лукин Ю. «Кофемания будет расти».//Журнал Ресторанные ведомости № 1, 2009 с. 40-41
20. Зимин А. «Модель оценки рисков предприятия по степени зависимости от персонала» // Журнал Ресторанные ведомости. № 1, 2009 с. 24-27
21. Кафе-кондитерские: модная или перспективная ниша? // Журнал Ресторанный бизнес № 7, сентябрь, 2009 с. 16-17
22. Смирнова Е. психология потребностей – основа существования сервисной деятельности. // Журнал Ресторанные ведомости. Январь, 2009. с. 111-113
23. Тарэн Е. «Рестораны». //Журнал Ресторанный бизнес № 9, ноябрь, 2009 с. 17-18
24. Хохлов Р. Мец А. «Беспокойное хозяйство: технологии и оборудование в ресторане TretyakovLoung. // Журнал Ресторанные ведомости № 1, 2009 с. 68-73
25. http://www.beer-house.ru/
[1]
Волкова И. В. Ресторанный бизнес в России: с чего начать и как преуспеть. М., 2009 С. 88
[2]
Эванс Дж:., Берман Б. Маркетинг / Пер. с англ. - М., Экономика, 2009
[3]
Березин И.С. Маркетинг и исследования рынков. - М.: Русская Деловая Литература, 2009. – с. 95
|