МИНИСТЕРСТВО ОБРАЗОВАНИЯ РФ
МАГНИТОГОРСКИЙ ГОСУДАРСТВЕННЫЙ УНИВЕРСИТЕТ
Кафедра общетехнических дисциплин
Курсовая работа
По дисциплине
«Основы современного промышленного производства»
На тему:
«Производство настольных светильников»
Магнитогорск 2008
Содержание
Введение
1. Классификация светильников
2. Категории светильников
3. Виды вариантов светильника
4. Окончательный выбор конструкции светильника
5. Технология светильника
6. Сборочный чертёж светильника
6.1 Чертёж лицевой стенки светильника
6.2 Чертёж боковой стенки светильника
6.3 Основание светильника
6.4 Основание плафона
6.5 Стойка светильника
7. Проектирование промышленной зоны
8. Технологическая карта. Изготовление светильника
9. Расчёт материала и экономическое обоснование изготовления светильника
10.Эргономическое обоснование изготовления светильника
Заключение
Список литературы
Введение
Выбор для разработки светильника, послужил тот факт, что подобные изделия, очень востребуем в обществе, и являются как средством украшения интерьера, так и непосредственно вещью для его прямого назначения. Настольные светильники предназначены для обеспечения местного освещения рабочей зоны. Различные варианты исполнения, оригинальный современный дизайн и широкие функциональные возможности обеспечивают любые запросы потребителей.
Свет – это лучистая энергия, делающая внешний мир видимым. Без него невозможна жизнь – не удивительно, что во многих странах поклонялись Светилу. Никто не знает, кто первый додумался освещать свое жилище и сказал историческую фразу, изменившую ход цивилизации: «Я могу продлить день!», но сегодня в каждом доме есть небольшое воплощение великого Ра, и не одно, а целые гирлянды маленьких солнц.
Существует старая теория, что свет – это проблема сугубо инженерная, и занимаются этим исключительно электрики. В том смысле, что специалисты должны решить множество технических вопросов: рассчитать площадь сечения электропроводки, разработать схему подключения всех осветительных приборов и т.п. А потом все это смонтировать. О возможности светодизайна при этом скромно умалчивают, оставляя после себя одинокую (без какого-либо оборудования) сиротливо свисающую вниз лампочку накаливания…
Забиваем Сайты В ТОП КУВАЛДОЙ - Уникальные возможности от SeoHammer
Каждая ссылка анализируется по трем пакетам оценки: SEO, Трафик и SMM.
SeoHammer делает продвижение сайта прозрачным и простым занятием.
Ссылки, вечные ссылки, статьи, упоминания, пресс-релизы - используйте по максимуму потенциал SeoHammer для продвижения вашего сайта.
Что умеет делать SeoHammer
— Продвижение в один клик, интеллектуальный подбор запросов, покупка самых лучших ссылок с высокой степенью качества у лучших бирж ссылок.
— Регулярная проверка качества ссылок по более чем 100 показателям и ежедневный пересчет показателей качества проекта.
— Все известные форматы ссылок: арендные ссылки, вечные ссылки, публикации (упоминания, мнения, отзывы, статьи, пресс-релизы).
— SeoHammer покажет, где рост или падение, а также запросы, на которые нужно обратить внимание.
SeoHammer еще предоставляет технологию Буст, она ускоряет продвижение в десятки раз,
а первые результаты появляются уже в течение первых 7 дней.
Зарегистрироваться и Начать продвижение
На самом же деле, при всей своей рациональности, свет несет в себе немалую долю эстетической и эмоциональной нагрузки. Причем эстетическое решение сегодня большей, частью предшествует техническому. Дизайнер или хозяин «объекта» разрабатывает схему будущего освещения и передаёт её специалистам-электрикам для воплощения в жизнь.
1. Классификация светильников
По основным параметрам
| 1 |
2 |
3 |
4 |
5 |
6 |
7 |
8 |
Буква, обозна-чающая
источник света
|
Буква, обозна-чающая
способ установ-ки светиль-ников
|
Буква, обознача-ющая
основное назначе-ние светильника
|
Двузнач-ное число
(01–99), обознач-ающее
№ серии
|
Цифра, обознача-ющая количест-во ламп в светиль-нике |
Число, обознача-ющее
мощность ламп, Вт
|
Трехзнач-ное число
(001–999), обознача-ющее № модифи-кации
|
Буква и цифра, обознача-ющие климати-ческое исполнение и категорию размещения светильника |
Классификация по типу применяемого источника света (первая буква)
| Тип источника света (лампа) |
Символ (буква) в обозначении типа светильника |
| Накаливания общего назначения |
Н |
| Лампы-светильники (рефлекторные и диффузные) |
С |
| Кварцевые галогенные (накаливания) |
И |
| Линейные люминесцентные |
Л |
| Фигурные люминесцентные |
Ф |
| Эритемные люминесцентные |
Э |
| Ртутные типа ДРЛ |
Р |
| Ртутные типа ДРИ, ДРИШ |
Г |
| Натриевые типа ДНаТ |
Ж |
| Бактерицидные |
Б |
| Ксеноновые трубчатые |
К |
Классификация по способу установки (вторая буква)
| Способ установки светильника |
Символ (буква) в обозначении типа светильника |
| Подвесные |
С |
| Потолочные |
П |
| Встраиваемые |
В |
| Пристраиваемые |
Д |
| Настенные |
Б |
| Настольные, опорные |
Н |
| Напольные, венчающие |
Т |
| Консольные, торцевые |
К |
| Ручные |
Р |
| Головные |
Г |
Классификация по основному назначению светильника (третья буква)
| Назначение светильника |
Символ (буква) в обозначении типа светильника |
| Для промышленных и производственных зданий |
П |
| Для общественных зданий |
О |
| Для жилых (бытовых) помещений |
Б |
| Для наружного освещения |
У |
| Для рудников и шахт |
Р |
| Для кинематографических и телевизионных студий |
Т |
2. Категории светильников
Металлогалогеновые светильники– светильники, предназначенные для использования с металлогалогеновой лампой. Такой светильник, при небольших габаритах, дает очень яркий свет и при этом отличается великолепной цветопередачей и наилучшей для своих габаритных размеров светоотдачей.
Люминесцентные светильники– наиболее экономичные, наилучшие по светоотдаче и продолжительности жизни лампы светильники. Наиболее подходящий вариант светильников для общего освещения. Недостатками являются большие габаритные размеры и недостаточно высокая цветопередача люминесцентных ламп. Этот недостаток следует преодолевать, используя комбинированное освещение, сочетая общее освещение люминесцентными лампами и местное освещение другими типами светильников.
Прожекторы – светильники, оборудованные системой линз или зеркальных отражателей, с целью фокусировки пучка света в зависимости от поставленных задач. Могут применяться для освещения больших открытых пространств, подсветки зданий и сооружений и других аналогичных задач.
Люстрысветильники для небольших помещений. Выполняют декоративные функции и функции потолочных светильников общего освещения. Применяются в сочетании со светильниками местного освещения. В качестве источника света обычно применяются лампы накаливания или компактные энергосберегающие лампы.
Торшеры напольные светильники местного освещения, выполняют декоративную функцию.
Настольные лампы используются для освещения рабочего места.
3. Виды вариантов светильника
На рис. 1, представлены варианты настольных светильников.
Сервис онлайн-записи на собственном Telegram-боте
Попробуйте сервис онлайн-записи VisitTime на основе вашего собственного Telegram-бота:
— Разгрузит мастера, специалиста или компанию;
— Позволит гибко управлять расписанием и загрузкой;
— Разошлет оповещения о новых услугах или акциях;
— Позволит принять оплату на карту/кошелек/счет;
— Позволит записываться на групповые и персональные посещения;
— Поможет получить от клиента отзывы о визите к вам;
— Включает в себя сервис чаевых.
Для новых пользователей первый месяц бесплатно.
Зарегистрироваться в сервисе
а). Светильник, изготовленный из точёной стойки и выпиленных стенок в качестве абажура.
б). Светильник, склеенный из кусков бруска.
в). Очень простой светильник, так же и прост в изготовлении.
г). Светильник с точёной стойкой и готовым стеклянным плафоном.

Рис. 1
4
. Окончательный выбор конструкции светильника
| Вариант |
Потребное оборудование и инструменты |
Время изготовления, Час |
Материалы и комплектующие детали |
| А |
Токарный станок по дереву, стамески (реерный, плоский, фасонный), электролобзик и набор пилок. |
7 |
Заготовка из древесины (сосна), фанерки, ОРК стекло, клей ПВА. |
| Б |
Электролобзик, набор пилок, фрезерная машинка, фрезы, дрель, крестовая отвёртка. |
5 |
Доска (тридцатка), саморезы, клей ПВА, рифлёное стекло. |
| В |
Токарный станок по дереву, стамеска плоская, электролобзик и набор пилок. |
4 |
Доска (двадцатка и тридцатка), клей ПВА, обычное стекло. |
| Г |
Токарный станок по дереву, резцы (реерный, плоский, фасонный). |
2 |
Заготовка из древесины (сосна). |
5. Технология светильника
Процесс изготовления светильника протекает в 6 стадий.
Стадии изготовления светильника:
1. Выбор варианта с габаритными размерами, по чертёжу.
2. Подготовка материалов для изготовления деталей с учётом размеров и припусков для распилки и шлифовки.
3. Распилка фанеры по заданным параметрам чертежа и отшлифовка деталей наждачной бумагой.
4. Вытачивание стойки на токарном станке.
5. Подготовка и скрепление деталей, будущего, светильника.
6. Нанесение лака или морилки на деревянные части светильника.
6. Сборочный чертёж светильника

6.1 Чертёж лицевой стенки светильника

6.2 Чертёж боковой стенки светильника

6.3 Основание светильника
6.4 Основание плафона
6.5 Стойка светильника
7. Проектирование промышленной зоны

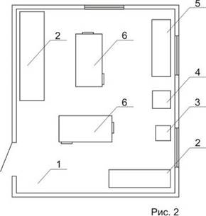
Производство светильников будет осуществляться в небольшой частной мастерской, площадь которого будет составлять, около, 20 м2
. Примерный проект промышленной зоны мастерской, с расположением необходимого оборудования и инвентаря представлен на рис. 2, где:
1. мастерское помещение;
2. шкафы и стеллажи;
3. наждачный станок;
4. сверлильный станок;
5. токарный станок по дереву;
6. столярные верстаки.
Число работников в такой мастерской не должно превышать более четырёх человек. Оптимальным вариантом для изготовления изделий, считается – двое работников. При производстве каждый работник выполняет свою работу, не мешая другому работнику. Такое разделение труда позволит качественно, быстро и конвеерно производить изготовляемую продукцию.
Непосредственное изготовление, представленного в проекте, светильников будет осуществляться серийным производством. При этом будет меняться, лишь, дизайнерское решение в изготовлении светильников. А также некоторые изделия, будут выполняться по индивидуальным предпочтениям клиентов.
Несомненно, основная сфера деятельности предприятия это – производство и сбыт световых приборов общего и специального назначения. Предприятие будет предлагать потребителям уникальное сочетание высокого качества продукцию и широкий ассортимент выпускаемой продукции. Однако возможности данной мастерской не будут ограничиваться, лишь, производством светотехнического оборудования.
8. Технологическая карта. Изготовление светильника
| Деталь |
Операции |
Наименован. операций |
Эскиз заготовки |
Оборудование и инструменты |
| №1 |
Выпиливание из фанеры два одинаковых деталей лицевых стенки. |
Выпиливание лицевых стенок светильника. |
 |
Электрический или ручной лобзик, набор пилок. |
| №2 |
Выпиливание из фанеры два одинаковых деталей боковых стенки. |
Выпиливание боковых стенок светильника. |
 |
Электрический или ручной лобзик, набор пилок. |
| №3 |
Выпиливание из фанеры оснований светильника. |
Выпиливание оснований светильника. |
 |
Электрический или ручной лобзик, набор пилок. |
| №4 |
Выпиливание из фанеры основания плафона. |
Выпиливание основания плафона. |
 |
Электрический или ручной лобзик, набор пилок. |
| №5 |
Точение стойки светильника и сверление в её центре отверстие под электрический провод. |
Точение стойки светильника. |
 |
Токарный станок по дереву, стамески (реерный, плоский, фасонный), сверла. |
| №6 |
Сборка и закрепление всех деталей светильника. |
Сборка светильника. |
 |
Клей ПВА. |
| №7 |
Нанесение лакокрасочного материала (лак, морилка, пропитка или масленая краска). |
Покраска. |
 |
Лакокрасочный материал, кисточка или пуливизатор. |
| №8 |
Выпиливание и вставка ОРК стекла. |
Остекление. |
 |
Электрический или ручной лобзик, клей ПВА. |
| №9 |
Установка проводки, патрона под лампу, включателя и вилки. |
Электрифи-кация. |
 |
Пассатижи, отвёртка. |
9. Расчёт материала и экономическое обоснование изготовления светильника
В среднем возьмём изготовление 20 светильников и рассчитаем затраты и себестоимость продукции. Потому как это количество будет, является наиболее экономически выгодным, причём использование материала будет безотходным. Т.е. из цельных кусков, используемых при изготовлении, материалов выходит следующее количество деталей: из фанеры – 11 светильников, бруса – 20 светильников, ОРК стекла – 15 светильников.
Затраты для изготовления одного светильника составят – 160 руб., для 20 – (3400) руб.
Расчёт для изготовления одного светильника:
· кусок фанеры, размером 580х360 мм (из одного листа фанеры, размером 1500х1500 мм, цена которого 400 руб., можно изготовить одиннадцать светильников);
· кусок бруса, размером 130х40 мм (с цельного бруса, размером 3000х40 мм, стоимостью 150 руб., выйдет двадцать стоек для светильника);
· ОРК стекло, размером 220х170 мм (из одного листа размером 1000х1000 мм, цена которого 300 руб., можно вырезать стекла на пятнадцать светильников);
· электрический провод, длинной ~ 1000 мм, ценой 30 руб.;
· патрон для лампы, ценой ~ 20 руб.;
· вилка, ценой ~ 12 руб.;
· включатель, ценой ~ 20 руб.;
· лампа освещения, ценой от 6 до 500 руб.
Затрата электроэнергии на работу за токарным станком по дереву, непосредственно при изготовлении стойки светильника, а так же работа с электролобзиком, при выпиливании деталей плафона и основания светильника, по расчёту будет составлять ~ 8 рублей.
Себестоимость одного светильника будет составлять примерно 160–190 руб. Конечная стоимость светильника, с учётом потраченной энергии и сил столяра, а так же оригинальное исполнение и художественная образность изделия, будет составлять от 400 до 500 рублей. При таком расчёте прибыль с одного светильника будет составлять 240-300 руб.
Объём капитальных затрат для приобретения оборудования и необходимых материалов (на первое время), составит около 30000 руб. Расчёт был подсчитан с условием того, что некоторые оборудования будут б/у, либо самодельного (кустарного) изготовления.
Фонд заработной платы будет составлять в первое время 5000–6000 руб. в месяц. Мастерская будет специализироваться не только на производстве и сбыте осветительных приборов. В производстве будут так же присутствовать изготовление корпусной мебели – журнальные столики, цветочницы, полочки и многое другое, в общем, всё то, что служит для облагораживания домашнего интерьера. К концу года такая мастерская, несомненно, при «беспроблемном» сбыте товара, должна окупиться, и впоследствии работать только на чистый доход. Такая мастерская будет расположена на окраине города и в основном рассчитана на средний и богатый контингент потребителя. Организацией снабжения и сбыта готовой продукции будет, так же, заниматься сама мастерская. В последующие года возможен рост и расширение промышленной зоны, оборудования и рабочих мест. И всё это приведёт к увеличению капитала и уважению к выпускаемой продукции.
10. Эргономическое обоснование изготовления светильника

Наши отношения с предметным миром не могут быть ограничены любованием эстетическими достоинствами внешней формы. Практическое назначение предметов, обращение с ними требуют своего осмысления. Вопросами проектирования удобных орудий труда, быта, а в целом – созданием комфортной предметно-пространственной среды для самых различных процессов жизнедеятельности человека занимается эргономика.
В её задачи входит всестороннее изучение функциональных особенностей и возможностей человека в процессе его деятельности и взаимодействии с окружающими предметами.
Человек соизмерял создаваемый им предметный мир со своими физическими параметрами и физиологическими возможностями своего организма.
Непосредственно моё изделие – «Настольный светильник», несёт в себе следующие эргономические задачи:
· удобная форма стойки светильника для захвата кистью руки, которая позволяет переносить светильник, удерживая его в одной руке;
· распределённая тяжесть изделия, что позволяет быть устойчивым светильнику;
· стилевое решение светильника, его внешний дизайн, который может украсить любой стол, в, не зависимости офисный ли это стол, или журнальный в гостиной или спальной комнате;
· освещение непосредственно рабочей зоны, причем, используя матовый свет стекла абажура светильника, свет лампочки не будет бить в глаза читателю.
Список литературы
1. Балашов К.А., Кобелева И.В. Экономика предприятия и основных отраслей народного хозяйства (задания для практических и самостоятельных работ студентов стационара и ОЗО технологического факультета). Магнитогорск: МаГУ, 2001. – 36 с.
2. Кряков М.В., Гулин В.С., Берелин А.В. Современное производство мебели. – М.: Лесная промышленность, 1986. – 65 с.
3. Подласый И.П. Педагогика. Новый курс: Учебник для студ. пед. вузов: В 2 кн. – М.: Гуманит. Изд. центр Владос, 1999. Кн. 1: Общие основы. Процесс обучения. – 127 стр.
4. Фицула М.М. Педагогика: Научное пособие для студентов высших педагогических учебных заведений. – К.: Издательский центр «Академия», 2002. – 456 с.
|