КУРСОВОЙ ПРОЕКТ
на тему:
«Нормирование точности соединений деталей машин»
Содержание
Задание
1. Гладкие сопряжения и калибры
1.1 Гладкие сопряжения
1.2 Калибры
2. Шероховатость, отклонение формы и расположения поверхностей
3. Резьбовые соединения
4. Подшипники качения
5. Шпоночные и шлицевые соединения
6. Размерные цепи
6.1 Составление схемы размерной цепи
6.2 Расчёт подетальной размерной цепи методом максимума и минимума
6.3 Сложение и вычитание размеров и предельных отклонений
6.4 Расчёт подетальной размерной цепи методом максимума-минимума. Проектная задача
6.5 Расчёт подетальной размерной цепи вероятностным методом. Проектная задача
6.6 Замена размеров в размерной цепи
7. Зубчатые передачи
Приложние
Литература
1. Гладкие сопряжения и калибры
1.1 Гладкие сопряжения
Исходные данные для варианта №50:
| Ø67 H7/e8 |
| Ø55 Н8/r6 |
| Ø28 H7/m6 |
| Ø13 D9/h8 |
| Ø38 T7/h7 |
| Ø19 E9/e9 |
Задана посадка Ø67 H7/e8. Предельное отклонение отверстия Ø67 H7: верхнее ES=30мкм; нижнее EJ=0мкм. Предельное отклонение вала: верхнее es=-66мкм; нижнее ei=-106мкм.
Предельные размеры отверстия и вала:
 ,
 ,
 ,
 .
Допуски размеров отверстия и вала:
 ,
 .
Параметры посадки с зазором:
 ,
 ,
 .
Проверка: , 
Изобразим схему посадки Ø67 H7/e8 на Рисунке 1.1.

Рисунок 1.1
Задана посадка Ø55 H8/r6. Предельное отклонение отверстия Ø55 H8: верхнее ES=46мкм; нижнее EJ=0мкм. Предельное отклонение вала: верхнее es=60мкм; нижнее ei=41мкм.
Предельные размеры отверстия и вала:
 ,
 ,
 ,
 .
Допуски размеров отверстия и вала:
 ,
 .
Параметры переходной посадки:
 ,
 ,
 .
Проверка: , 
Изобразим схему посадки Ø55 H8/r6 на Рисунке 1.2.

Рисунок 1.2
Задана посадка Ø28 H7/m6. Предельное отклонение отверстия Ø28 H7: верхнее ES=21мкм; нижнее EJ=0мкм. Предельное отклонение вала: верхнее es=21мкм; нижнее ei=8мкм.
Предельные размеры отверстия и вала:
 ,
 ,
 ,
 .
Допуски размеров отверстия и вала:
 ,
 .
Параметры переходной посадки:
 ,
 ,
 .
Проверка: , 
Изобразим схему посадки Ø28 H7/m6 на Рисунке 1.3.

Рисунок 1.3
Задана посадка Ø13 D9/h8. Предельное отклонение отверстия Ø13 D9: верхнее ES=93мкм; нижнее EJ=50мкм. Предельное отклонение вала: верхнее es=0мкм; нижнее ei=-27мкм.
Предельные размеры отверстия и вала:
 ,
 ,
 ,
 .
Допуски размеров отверстия и вала:
Забиваем Сайты В ТОП КУВАЛДОЙ - Уникальные возможности от SeoHammer
Каждая ссылка анализируется по трем пакетам оценки: SEO, Трафик и SMM.
SeoHammer делает продвижение сайта прозрачным и простым занятием.
Ссылки, вечные ссылки, статьи, упоминания, пресс-релизы - используйте по максимуму потенциал SeoHammer для продвижения вашего сайта.
Что умеет делать SeoHammer
— Продвижение в один клик, интеллектуальный подбор запросов, покупка самых лучших ссылок с высокой степенью качества у лучших бирж ссылок.
— Регулярная проверка качества ссылок по более чем 100 показателям и ежедневный пересчет показателей качества проекта.
— Все известные форматы ссылок: арендные ссылки, вечные ссылки, публикации (упоминания, мнения, отзывы, статьи, пресс-релизы).
— SeoHammer покажет, где рост или падение, а также запросы, на которые нужно обратить внимание.
SeoHammer еще предоставляет технологию Буст, она ускоряет продвижение в десятки раз,
а первые результаты появляются уже в течение первых 7 дней.
Зарегистрироваться и Начать продвижение
 ,
 .
Параметры переходной посадки:
 ,
 ,
 .
Проверка: , 
Изобразим схему посадки Ø13 D9/h8 на Рисунке 1.4.

Рисунок 1.4
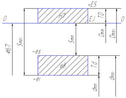
Задана посадка Ø38 T7/h7. Предельное отклонение отверстия Ø38 T7: верхнее ES=-39мкм; нижнее EJ=-64мкм. Предельное отклонение вала: верхнее es=0мкм; нижнее ei=-25мкм.
Предельные размеры отверстия и вала:
 ,
 ,
 ,
 .
Допуски размеров отверстия и вала:
 ,
 .
Параметры переходной посадки:
 ,
 ,
 .
Проверка: , 
Изобразим схему посадки Ø38 T7/h7 на Рисунке 1.5.

Рисунок 1.5
Задана посадка Ø19 E9/e9. Предельное отклонение отверстия Ø19 E9: верхнее ES=92мкм; нижнее EJ=40мкм. Предельное отклонение вала: верхнее es=-40мкм; нижнее ei=-92мкм.
Предельные размеры отверстия и вала:
 ,
 ,
 ,
 .
Допуски размеров отверстия и вала:
 ,
 .
Параметры переходной посадки:
 ,
 ,
 .
Проверка: , 
Изобразим схему посадки Ø19 E9/e9 на Рисунке 1.6.

Рисунок 1.6
Таблица 1.1 Размера отверстий.
Обозначение
посадки
|
Поле
Допуска отверстия
|
Предельные
отклонения
|
Предельные
размеры
|
Допуск
Отверстия
,мм
|
Верхнее
ES,мм
|
Нижнее
EJ,мм
|
наибольшее
,мм
|
наименьшее
,мм
|
| Ø67 H7/e8 |
Ø67 H7 |
0,030 |
0 |
67,03 |
67 |
0,03 |
| Ø55 Н8/r6 |
Ø55 Н8 |
0,046 |
0 |
55,046 |
55 |
0,046 |
| Ø28 H7/m6 |
Ø28 H7 |
0,021 |
0 |
28,021 |
28 |
0,021 |
| Ø13 D9/h8 |
Ø13 D9 |
0,093 |
0,050 |
13,093 |
13,050 |
0,043 |
| Ø38 T7/h7 |
Ø38 T7 |
-0,039 |
-0,064 |
37,961 |
37,936 |
0,025 |
| Ø19 E9/e9 |
Ø19 E9 |
0,092 |
0,040 |
19,092 |
19,040 |
0,052 |
Таблица 2.2 Размера валов.
Обозначение
посадки
|
Поле
Допуска отверстия
|
Предельные
отклонения
|
Предельные
размеры
|
Допуск
Отверстия
,мм
|
Верхнее
es,мм
|
Нижнее
si,мм
|
наибольшее
,мм
|
наименьшее
,мм
|
| Ø67 H7/e8 |
Ø67 e8 |
-0,066 |
-0,106 |
66,934 |
66,894 |
0,04 |
| Ø55 Н8/r6 |
Ø55 r6 |
0,060 |
0,041 |
55,060 |
55,041 |
0,019 |
| Ø28 H7/m6 |
Ø28 m6 |
0,021 |
0,008 |
28,021 |
28,008 |
0,013 |
| Ø13 D9/h8 |
Ø13 h8 |
0 |
-0,027 |
13 |
12,973 |
0,027 |
| Ø38 T7/h7 |
Ø38 h7 |
0 |
-0,025 |
38 |
37,975 |
0,025 |
| Ø19 E9/e9 |
Ø19 E9 |
-0,040 |
-0,092 |
18,96 |
18,908 |
0,052 |
Таблица 2.3 Типы и параметры посадок.
| Обозначение посадки |
Предельные размеры |
Параметры посадок |
Группа посадок
|
Допуск посадки
|
| отверстия |
вала |
зазор |
натяг |

мм
|

мм
|

мм
|

мм
|

мм
|

мм
|
мм |

мм
|
| Ø67 H7/e8 |
67,03 |
67 |
66,934 |
66,894 |
0,136 |
0,066 |
- |
- |
с зазор. |
0,07 |
| Ø55 Н8/r6 |
55,046 |
55 |
55,060 |
55,041 |
0,005 |
- |
0,060 |
- |
перех. |
0,065 |
| Ø28 H7/m6 |
28,021 |
28 |
28,021 |
28,008 |
0,013 |
- |
0,021 |
- |
перех. |
0,034 |
| Ø13 D9/h8 |
13,093 |
13,050 |
13 |
12,973 |
0,12 |
0,05 |
- |
- |
с зазор. |
0,07 |
| Ø38 T7/h7 |
37,961 |
37,936 |
38 |
37,975 |
- |
- |
0,064 |
0,014 |
с натяг. |
0,05 |
| Ø19 E9/e9 |
19,092 |
19,040 |
18,96 |
18,908 |
0,184 |
0,08 |
- |
- |
с зазор. |
0,104 |
1.2 Калибры
Для контроля деталей сопряжения Ø38 T7/h7разработаем предварительные калибры.
Устанавливаем допуски на изготовление предельных калибров:
Для отверстия допуск на изготовление  , - сдвиг поля допуска проходной стороны  , координата границы износа -  ; сдвиг поля допуска непроходной стороны - 0 ; для вала:  ,  ,  ,  .
Исполнительный размер проходной стороны калибра-пробки:
 .
Размер на чертеже Ø 37,9415 – 0,004 мм.
Исполнительный размер проходной стороны калибра-пробки:
 .
Размер на чертеже Ø 37,963 – 0,004 мм.
Исполнительный размер проходной стороны калибра-скобы:
 .
Размер на чертеже Ø 37,9945 + 0,004 мм.
Исполнительный размер непроходной стороны калибра-скобы:
 .
Размер на чертеже Ø 37,973 + 0,004 мм.
Исполнительный размер контрольного калибра
 .
Размер на чертеже Ø 38,00375 - 0,0015 мм.
Исполнительный размер контрольного калибра :
 .
Размер на чертеже Ø 37,99725 - 0,0015 мм.
Исполнительный размер контрольного калибра :
 .
Размер на чертеже Ø 37,97575 - 0,0015 мм.
Изображение схемы расположения полей допусков для калибра-скобы показано на Рисунке 1.6, для калибра-пробки показано на Рисунке 1.7.
Сервис онлайн-записи на собственном Telegram-боте
Попробуйте сервис онлайн-записи VisitTime на основе вашего собственного Telegram-бота:
— Разгрузит мастера, специалиста или компанию;
— Позволит гибко управлять расписанием и загрузкой;
— Разошлет оповещения о новых услугах или акциях;
— Позволит принять оплату на карту/кошелек/счет;
— Позволит записываться на групповые и персональные посещения;
— Поможет получить от клиента отзывы о визите к вам;
— Включает в себя сервис чаевых.
Для новых пользователей первый месяц бесплатно.
Зарегистрироваться в сервисе
Шероховатость рабочих поверхностей калибров с допусками размеров 4мкм и высокой геометрической точностью поверхностей.
;
 , принимаем для робки.  , принимаем для скобы.

Рисунок 1.7

Рисунок 1.8
2. Шероховатость, отклонение формы и расположения поверхностей
Исходные данные:
| I= Ø35к6 |
IX=10h9 |
| II= Ø48n7 |
X= Ø72h8 |
| III= Ø35к6 |
XI= Ø62H7 |
| IV= Ø30r6 |
XII= Ø92±0,3 |
| V= Ø42-0,2 |
XIII= Ø10+0,5 |
| VI= Ø48-0,3 |
XIV=12-0,2 |
| VII=15-0,03 |
XV=22h8 |
| VIII=10h15 |
Шероховатости отмеченных поверхностей находим сообразно назначению этих поверхностей и допуску их размера. Так, поверхности Ø35к6, Ø48n8, Ø35K6 согласно полям допусков их размеров являются ответственными поверхностями, образующими с сопрягаемыми поверхностями других деталей определённые посадки. В общем случае выделенные поверхности можно считать поверхностями нормальной геометрической точности, для которых параметр шероховатости 
Для поверхности Ø35к6, где  ,  ,
принимаем из табл.0  .
Для поверхности Ø48n7, где  ,  ,
принимаем из табл.0  .
Для поверхности Ø30r6, где  ,  ,
принимаем из табл.0  .
Для поверхности Ø72h8, где  ,  ,
принимаем из табл.0  .
Для поверхности Ø62H7, где  ,  ,
принимаем из табл.0  .
Для поверхности Ø10+0,5, где  ,  ,
принимаем из табл.0  .
К точности обработки, и следовательно, к шероховатости поверхностей Ø42-0,2, Ø48-0,3, Ø95±0,3, Ø10+0,5 не предъявляются столь высокие требования.
Для поверхности Ø42-0,2,  ,
принимаем из табл.0  .
Для поверхности Ø48-0,3,  ,
принимаем из табл.0  .
Для поверхности Ø92±0,3,  ,
принимаем из табл.0  .
Для поверхности Ø10+0,5,  ,
принимаем из табл.0  .
Шероховатость поверхностей шпоночного паза принимается обычно в пределах  , причём большее значение соответствует дну паза.
Допуски на отклонение формы и расположения поверхностей также определим приближённым методом. Допуски на отклонение от круглости и цилиндричности поверхностей Ø35к6, Ø48n7, Ø30r6, Ø72h8, Ø62H7можно рассчитать следующим образом:
Для поверхности Ø35к6
 (принимаем 4 );
 (принимаем 4 );
Для поверхности Ø62H7
 (принимаем 8 );
 (принимаем 8 );
Для поверхности Ø48n7
 (принимаем  );
Для поверхности Ø30r6
 (принимаем 3 );
Для поверхности Ø72h8
 (принимаем  );
Допуски на радиальное биение поверхностей Ø48n8, Ø30r6 относительно поверхности АБ (поверхности Ø35к6) приближённо могут быть найдены:
Для поверхности Ø48n8
 (принимаем допуск, равным 0,03мм)
Для поверхности Ø30r6
 (принимаем допуск, равным 0,012мм)
Допуски на радиальное биение поверхности Ø72h8 относительно поверхности А (поверхности Ø62H7) приближённо могут быть найдены следующим образом: (принимаем 0,04мм)
Допуск на отклонение от ┴ торца поверхности Ø42-0,2 для фиксации подшипника зависит от допуска размера на ширину подшипника. Поэтому
 (принимаем 0,008мм),
для поверхности Ø48-0,3
 (принимаем 0,016мм),
для поверхности Ø92±0,3
 (принимаем 0,016мм),
для поверхности Ø72h8
 (принимаем 0,025мм),
Допуск на отклонение от симметричного расположения шпоночного паза:
 (принимаем 0,12мм).
Для отверстий допуск равен:
Ø ,
где мм
Ø мм (принимаем 0,5мм).
3. Резьбовые соединения
Задано резьбовое соединение: и отклонения  ,  , , , , .
По условию записи резьбового соединения устанавливаем:
резьба метрическая, номинальный диаметр ; резьба однозаходная, шаг резьбы мелкий и равен 2,5мм, направление навивки – правое; поля допусков на диаметры гайки и - 5Н; диаметры и болта имеют поля допусков 5g и 6g соответственно; длинна свинчивания, не выходит за пределы нормальной; впадины резьбы выполнены без закруглений.
Определяем по формулам размеры сопрягаемых параметров резьбы:
мм;
мм;
мм.
По справочнику согласно указанным полям допусков устанавливаем предельные отклонения для нормируемых параметров болта и гайки:
На средний диаметр , , , ;
На наружный диаметр , , , ;
На внутренний диаметр , , , ;
Определяем предельные размеры сопрягаемых параметров соответственно гайки и болта:
 ;
 ;
,
Так как не нормируется, то записываем не менее 52,000 ;
 ;
 ;
 ;
 ;
 ;
 ;
 ;
 ;
,
Так как в не нормируется, то записываем не более 49,294 .
Находим допуски на сопряжённые размеры резьбового соединения:
 ;
- не нормируемый;
 ;
 ;
 ;
- не нормируемый;
Определяем зазоры по сопряженным поверхностям резьбового соединения:
по среднему диаметру:
 ;
 ;
по наружному диаметру:
 ;
 ;
Данные расчётов заносим в Таблицу 3.1, а по их результатам строим схему заданного резьбового соединения (Рисунок 3.1)
Таблица 3.1 Данные расчёта
| Обозначение диаметров резьбового соединения |
Номин.
р-ры
|
Гайка |
Болт |
Допуски размеров |
Пред-е
откл.
мм
|
Предельные
д-ры
|
Пред-е
откл.
мм
|
Предельные
д-ры
|
Гайки
|
Болта
|
| max |
min |
max |
min |
Наружный
d(D)
|
52,000 |
не норм. |
не менее 52,000 |
52,000
|
 |
51,952
|
51,577
|
не норм. |
0,375
|
 |
 |
Средний
d2(D2)
|
50,381 |
 |
50,681
|
50,381
|
 |
50,333
|
50,163
|
0,3
|
0,17
|
 |
 |
Внутренний
d1(D1)
|
49,294 |
 |
49,594
|
49,294
|
 |
49,246
|
не более 49,294 |
0,3
|
не норм. |
 |
не норм. |

Рисунок 3.1
Находим компенсационные поправки, обусловленные наличием указанных в задании дополнительных неточностей в шаге и угла профиля болта и гайки:
суммарная погрешность накопленного шага
 ;
суммарная погрешность правой половины профиля резьбы
;
суммарная погрешность левой половины профиля резьбы
;
суммарная погрешность угла профиля резьбы
;
поправка для расчёта зазоров, вносимая наличием погрешностей в шаге и угле профиля:
 .
Поскольку ошибка, вносимая в соединение погрешностями в шаге и угле профиля, не превышает ( , так как ), то для получения гарантированного зазора в резьбовом соединении с указанными погрешностями изготовления можно считать, что коррекция посадки выполнена правильно.
4. Подшипники качения
Исходные данные: радиальная сила ; внутренний диаметр подшипника ; в соединении вращающимся является вал.
1. Для данного соединения можно применить радиальный подшипник средней серии шестого класса точности, например 207, со следующими параметрами: , , , .
В рассматриваемом узле вращающимся кольцом является внутреннее, поэтому его посадку на вал производим с натягом, а наружное кольцо устанавливаем в корпус с зазором.
2. Приняв коэффициент k для средней серии подшипника равным 2,3, определим минимальный потребный натяг для внутренней обоймы подшипника:
 
3. Находим максимальный допустимый натяг для внутреннего кольца подшипника:
 
4. По значению подбираем из числа рекомендуемых, посадку для внутреннего кольца подшипника, например Ø35H0/m6, для которой предельные отклонения размеров: для отверстия  ,  , для вала  , .
5. Определим минимальный и максимальный натяги в рассматриваемом соединении:
 ;
 
Так как ( ) и ( ), можно заключить, что посадка внутреннего кольца подшипника выполнена правильно.
6. Выбираем посадку для наружного кольца подшипника, например Ø72Н7/h0, для которой предельные отклонения размеров равны: для отверстия  ;  ; для вала:  ;  .
Для выбранной посадки максимальный зазор  ; минимальный зазор ,
что свидетельствует о том, что посадка относится к посаде с зазором.
Строим схему полей допусков выбранных посадок для колец подшипника качения Рисунок 4.1.

Рисунок 4.1
8. Чертим условные рабочие чертежи посадочных мест подшипников с указанием требований Рисунок 4.2.
9. Чертим условные рабочие чертежи сборочных узлов с указанием требуемых размеров, обозначений Рисунок 4.3.
 
Рисунок 4.2

Рисунок 4.3
5. Шпоночные и шлицевые соединения
В задании указаны диаметр вала и втулки  , длина соединения  , тип соединения 3.
По СТ СЭВ 189-78 выбираем основные размеры соединения:  ,  , интервал длин от  , до  ,  ,  .
Записываем условное обозначение шпонки: Шпонка СТ СЭВ 189-78. Для заданного вида соединения назначаем поля допусков для деталей шпоночного соединения, пользуясь СТ СЭВ 189-78, для ширины шпонки b – h9; для высоты шпонки h – h11; для длины шпонки l – h14; для ширины паза на валу - N9; для ширины паза во втулке - Js9.
Определяем предельные отклонения пользуясь СТ СЭВ 144-88 на гладкие соединения:
Диаметр вала – 35m6 
Диаметр втулки – 35H7 
Ширина шпонки – 10h9 
Высота шпонки – 8h11 
Длина шпонки – 42h14 
Ширина паза на валу – 10P9 
Ширина паза во втулке – 10P9 
Глубина паза на валу – 
Глубина паза во втулке – 
Строим схемы расположения полей допусков Рисунок 5.1.

Рисунок 5.1
В задании указаны параметры эвольвентного соединения: номинальный диаметр  ; модуль  . Вид центрирования по наружному диаметру. По ГОСТ 6033-70 выбираем недостающие параметры - . Находим диаметр делительной окружности:
 
По СТ СЭВ 259-68 назначаем поля допусков втулки и вала из рекомендуемых посадок. Выбираем по наружному центрирующему диаметру для втулки ; для вала , посадка по ; для ширины впадин втулки (толщина зуба S) – для ширины впадины , для толщины зуба посадка ; поле допуска втулки и вала по центрирующему диаметру при плоской форме дна впадин для втулки , для вала , посадка - .
Величины придельных отклонений диаметров определяем, пользуясь стандартом СЭВ 144-88. Величины придельных отклонений по боковым сторонам зубьев определяем, пользуясь стандартом СЭВ 259-88.
Для втулки СТ СЭВ 259-88 центрирующий диаметр ; ширина впадин , ;  ; .
Для вала : центрирующий диаметр  , толщина зуба ,  ;  ; .
Условное обозначение соединения СТ СЭВ 259-88.
Пользуясь величинами предельных отклонений, строим схему расположения полей допусков Рисунок 5.2.
 
Рисунок 5.2
В задании указаны параметры прямобочного шлицевого соединения . Вид центрирования по . По ГОСТ 1139-80 выбираем недостающие данные -  , .
По ГОСТ1139-80 назначаем поля допусков втулки и вала из рекомендуемых посадок, выбираем по наружному центрирующему диаметру
для втулки - , для вала , посадка по - ; для ширины шлица (вала) для втулки - , для вала - , посадка по - , поле допуска втулки по нецентрирующему диаметру - , предельное отклонение вала по нецентрирующему диаметру - не менее  .
Величины придельных отклонений определяем, пользуясь стандартом СЭВ 144-88 на гладкие сопряжения.
Для втулки :
Центрирующий диаметр 
Не центрирующий диаметр - 
Ширина паза 
Для вала :
Центрирующий диаметр 
Не центрирующий диаметр - 
Ширина зуба 
Условно обозначение: .
Пользуясь величинами придельных отклонений, строим схему расположения полей допусков Рисунок 5.3.
 
Рисунок 5.3
6. Размерные цепи
6.1 Составление схемы размерной цепи
Из приложения 2 выбираем вариант задания:

Рисунок 6.1
Составим и поясним схему заданной размерной цепи:

Рисунок 6.2
Замыкающий размер в трехзвенной цепи (Рисунок 6.1) зависит от размера , называемого увеличивающим (чем больше этот размер, тем больше значение ), и размера , называемого уменьшающим (при его увеличении уменьшается). Замыкающее звено может быть положительным, отрицательным или равным нулю. Размерную цепь можно условно изображать в виде схемы (Рисунок 6.2). По схеме удобно выявлять увеличивающие и уменьшающие звенья. Над буквенными обозначениями звеньев принято изображать стрелку, направленную вправо, для увеличивающих звеньев и влево — для уменьшающих.
6.2 Расчёт подетальной размерной цепи методом максимума и минимума
Проверочная задача
Таблица 6.1 Исходные данные
 |
15 |
  |
25 |
  |
15 |
 |
-0,15 |
 |
0 |
 |
+0,15 |
 |
-0,25 |
 |
-0,15 |
 |
+0,05 |
 |
2 |
 |
8 |
 |
-0,05 |
 |
+0,24 |
 |
-0,15 |
 |
0 |
 
Эскиз детали Схема размерной цепи
Рисунок 6.3
Параметры составляющих звеньев: передаточное отношение

Номинальный размер и предельные отклонения Допуски:
; ;
; .
;
Координата середины полей допусков:
; ;
; .
;
Расчёт номинального размера замыкающего звена:
 
Расчёт допуска замыкающего звена:

Расчёт предельных отклонений замыкающего звена:
 
 
Расчёт координаты середины поля допуска, замыкающего звена:
 
 .
Схема расположения поля допуска замыкающего звена показана на Рисунке 6.4.

Рисунок 6.4
6.3 Сложение и вычитание размеров и предельных отклонений
Исходные данные:
Таблица 6.2 Размеры и предельные отклонения
| 55-0,1 |
+20-0,1 |
-35+0,1 |
+15±0,2 |
-20±0,2 |
 |

Подготовим уравнение к сложению и вычитанию придельных отклонений:

6.4 Расчёт подетальной размерной цепи методом максимума-минимума. Проектная задача.
Исходные данные:
 
Эскиз детали Схема размерной цепи
Рисунок 6.5
Передаточные отношения составляющих звеньев:
.
Требования к замыкающему звену:
; ; ;
.
Звенья с известными допусками в размерной цепи отсутствуют .
В качестве корректирующего звена можно принять звено с размером 15мм, так как положение внутренней торцовой поверхности не будет влиять на служебное назначение детали.
Расчёт производится методом максимума-минимума. Связь между допусками замыкающего звена и допусками составляющих звеньев устанавливается способом одинакового квалитета.
Расчёт количества единиц допуска производится по следующей формуле:

- принимаем из таблицы П.7.1 и записываем в таблицу 6.3.
Назначаем квалитет по таблице П.7.2 в зависимости от стандартного , ближайшего к расчётному . Принимаем 12-й квалитет.
Назначаем стандартный допуск по таблице П.7.3 в зависимости от номинального размера и принятого 12-го квалитета. Допуски составляющих звеньев, кроме , записаны в таблице 6.3.
Расчёт допуска корректирующего звена из условия формулы:
.
Назначенные предельные отклонения составляющих звеньев записаны в таблице 6.3.
Расчёт координат, середины поля допуска составляющих звеньев проводим по формуле , а результаты записываем в табл.6.1.
Таблица 6.3 Сведения о размерной цепи, рассчитанной методом максимума-минимума
Расчёт координаты середины поля допуска, корректирующего звена по формуле:

Расчёт предельных отклонений корректирующего звена:
;
.
Решение проверочной задачи способом сложения и вычитания номинального размера и предельных отклонений.

Подготовим уравнение для сложения и вычитания:

6.5 Расчёт подетальной размерной цепи вероятностным методом. Проектная задача
Метод расчёта – вероятностный, способ – одинакового квалитета .
Расчёт количества единиц допуска:

Назначаем квалитет по таблице П.7.2 в зависимости от стандартного , ближайшего к расчётному . Принимаем 13-й квалитет.
Допуски звеньев устанавливаем по 13-му квалитету, а допуск звена по 14-му квалитету. Допуски записаны в таблице 6.4.
Расчёт допуска корректирующего звена из условия следующей формулы:
, тогда
, откуда
 .
Назначение предельных составляющих звеньев:

Расчёт координаты середины поля допуска:

Расчёт предельных отклонений корректирующего звена;
;
.
Допуск замыкающего звена:
 
Координата середины поля допуска:
 
Предельные отклонения замыкающего звена:
 
 
Таблица 6.4 Сведения о размерной цепи, рассчитанной теоретико-вероятностным методом
| Символ звена |
Номин. размер |
 |
 |
 |
 |
 |
 |
 |
 |
 |
 |
Исполн.
размер
|
 |
15 |
+1 |
1,08 |
1,17 |
270 |
72900 |
135 |
18225 |
+270 |
0 |
135 |
 |
 |
35 |
+1 |
1,56 |
2,43 |
390 |
152100 |
195 |
38025 |
+390 |
0 |
195 |
 |
 |
20 |
+1 |
1,31 |
1,72 |
520 |
270400 |
260 |
67600 |
+520 |
0 |
260 |
 |
 |
25 |
+1 |
1,31 |
1,72 |
330 |
108900 |
165 |
27225 |
+165 |
-165 |
0 |
 |
 |
15 |
-1 |
1,08 |
1,17 |
644 |
415800 |
322 |
103950 |
+617 |
-27 |
295 |
 |
Заключение Сравнение допусков (табл.6.3 и табл.6.4) на изготовление составляющих звеньев одной и той же размерной цепи показывает, что величину допуска можно рассчитать в 1,6-2,6 раза точней, если распределение погрешностей изготовления подчиняется закону нормального распределения.
6.6 Замена размеров в размерной цепи
Исходные данные:

Рисунок 6.6
Первый вариант замены. Вместо размера С указать на чертеже размер X:
Запишем уравнение расчёта и подставим в него предельные значения размеров C и D. ; , откуда
; , т.е. 
Это указывает на то, что замена размера С размером X без уменьшения допуска размера С невозможна рисунок 6.7.

Рисунок 6.7
Второй вариант замены. Вместо размера D указать на чертеже размер X:
Запишем уравнение ; .
; , откуда
; ,
Следовательно 
Схема замены показана на рисунке 6.8.

Рисунок 6.8
Сумма допусков размеров D и X после замены должна быть равна допуску заменяемого размера мм. Поверхность I получают, как правило, чистовым точением. Поэтому обеспечить точность размеров D и X с суммарным допуском 0,3мм практически возможно.
7. Зубчатые передачи
Исходные данные:
Обозначение точности колеса: 10 – 8 – 6 – А.
Модуль:  .
Число зубьев: 
Коэффициент смещения исходного контура колеса: .
Расшифруем условное обозначение передачи: 10 – 8 – 6 – А
10 – степень точности по норме кинематической точности;
8 – степень точности по норме плавности работы;
6 – степень точности по норме контакта зубьев;
А – вид сопряжения, ограничивающего боковой зазор.
Так как вид допуска на боковой зазор не указан, то он совпадает с видом сопряжения, то есть, обозначен символом “А”.
Устанавливаем комплекс контроля по ГОСТ 1643-81
Выписываем нормируемые погрешности:
- наибольшая кинематическая погрешность зубчатого колеса (по норме кинематической точности),
- местная кинематическая погрешность (по норме плавности работы),
- погрешность направления зуба (по норме контакта),
- наименьшее отклонение толщины зуба и допуск на толщину зуба (по норме бокового зазора).
Назначаем допуски на погрешности:
Допуск определи по следующей формуле 
где: - допуск на накопленную погрешность зубчатого колеса
- допуск на погрешность профиля зуба колеса
; ; 
Допуск - определяем в зависимости от степени точности по норме плавности – 8, модуля m=4мм, делительного диаметра :

Допуск определяем с учётом степени точности по норме контакта – 6, модуля m=4мм, ширины венца 
где: - коэффициент ширины зуба колеса,
для цилиндрических прямозубых колёс
Принимаем ,
,
.
Наименьшее отклонение толщины зуба исходя из вида сопряжения А, степени точности по нормам плавности – 8, делительному диаметру :

Допуск на толщину зуба выбираем в зависимости от допуска на радиальное биение зубчатого венца и вида сопряжения А. В свою очередь выбирается в зависимости от степени точности по нормам кинематической точности–10,модуля m=4мм, делительного диаметра :
, 
Определяем размеры, необходимые для оформления чертежа зубчатого колеса.
Высота головки зуба до постоянной хорды и кинематическая толщина зуба колеса без смещения по постоянной хорде , определяем по формулам:
; .
Определяем параметры точности формы, расположения и шероховатости отдельных поверхностей.
На ширину венца назначаем из конструктивных и технологических соображений поле допуска по h11…h14.

Поле допуска диаметра выступов принимаем по h. Диаметр окружности выступов: .
Допуск на диаметр выступа рассчитываем по формуле: .
Так как окружность выступов используется как измерительная база для измерения толщины зуба принимаем и округляем его до стандартного , что соответствует допуску h9
.
Допуск на радиальное биение диаметра выступов назначаем в зависимости от допуска на радиальное биение зубчатого венца:
, тогда . Округляем значение допуска до стандартного .
Допуск биения торцев колеса назначаем в зависимости от допуска на направление зуба , ширины венца b и диаметра выступов : , округляем до стандартного .
Шероховатость рабочих эвольвентных поверхностей берём в зависимости от допуска отклонения профиля : , принимаем .
Увязываем посадку отверстия с точностью зубчатой передачи, в частности, с той нормой точности, которая является основой в оценке работоспособности передачи. Степень точности – 6 по норме контакта зубьев предполагает высоконагруженную передачу с посадкой H7/t6 колеса на вал (без шпонок). Соответственно отверстие по H7.
Диаметр отверстия выбираем конструктивно, учитывая, что минимальная толщина обода должна быть не менее 3m, чтобы обеспечить равнопрочность обода и зубьев. Принимаем отверстие:
.
Шероховатость отверстия назначаем следующим образом:
, где: - допуск соответствующего размера. При .
Шероховатости торцев и окружности вершин колеса рассчитываем по формулам: ; , ; .
Шероховатость торцев колеса: . Принимаем .
Шероховатость окружности вершин колеса: .
Принимаем .
Выбор средств измерения:
Первый из измеряемых параметров, выбранного колеса – кинематическая погрешность зубчатого колеса , допуск . Выбираем прибор БВ-5094. Проверяем, соответствуют ли размеры нашего колеса размерам измеряемых на приборе.
Второй измеряемый параметр – кинематическая погрешность , допуск . Выбираем прибор БВ-5058.
Третий измеряемый параметр – погрешность направления зуба , допуск . Выбираем прибор по БВ-5055 ЧЗИП.
Толщину зуба (наименьшее отклонение и допуск на толщину ) проверяем зубомером ЗИМ-16.
Литература
Единая система допусков и посадок СЭВ в машиностроении и приборостроении: справочник в двух томах – М: изд. стандартов, 1989-том 1-263 с., том.2: Контроль деталей 208с.
Якушев А.И. Взаимозаменяемость, стандартизация и технические измерения: учебник – 6-е издание - М.: М-е, 1986-352с.
Берестнёв О.В. Самоустанавливающиеся зубчатые колёса – Мн.: Наука и техника, 1983-312с.
|