Міністерство освіти і науки України
Сумський Державний університет
КАФЕДРА ЕКОНОМІКИ
ДИПЛОМНА РОБОТА
Індивідуальна тема: «ЕФЕКТИВНІСТЬ ГОСПОДАРСЬКОФІНАНСОВОЇ ДІЯЛЬНОСТІ ПІДПРИЄМСТВА ТА ШЛЯХИ ЇЇ ПІДВИЩЕННЯ» (на прикладі ТОВ «Металоіндустрія Плюс»)
Суми 2008
ЗМІСТ
ВСТУП
РОЗДІЛ 1 ТеоретиЧНІ основи визначення результативності та ефективності діяльності підприємства
1.1 Теоретичні аспекти визначення результативності та ефективності діяльності суб’єкта господарювання
1.2 Методичні аспекти до визначення результативності та ефективності функціонування підприємства
РОЗДІЛ 2 Аналітична оцінка ЕФЕКТИВНОСТІ діяльності ТОВ «МЕТАЛОІНДУСТРІЯ ПЛЮС»
2.1 Характеристика господарської діяльності ТОВ «Металоіндустрія Плюс»
2.2 Діагностика ефективності та результативності господарювання ТОВ «Металоіндустрія Плюс»
2.2.1 Аналіз динаміки складу і структури активів та пасивів балансу
2.2.2 Аналіз фінансової стійкості та платоспроможності підприємства
2.2.3 Показники ділової активності та ефективності господарювання
РОЗДІЛ 3 Формування стратегії підвищення ефективності та результативності діяльності ТОВ «МЕТАЛОІНДУСТРІЯ ПЛЮС»
3.1 Підходи до формування стратегії підвищення результативності та ефективності діяльності підприємства
3.2 Формування стратегії підвищення результативності діяльності ТОВ «Металоіндустрія Плюс»
РОЗДІЛ 4 ОХОРОНА ПРАЦІ
4.1 Характеристика приміщення
4.2 Аналіз стану охорони праці в приміщенні
4.3 Розробка заходів по охороні праці
ВИСНОВКИ
СПИСОК ВИКОРИСТАНОЇ ЛІТЕРАТУРИ
ДОДАТКИ
РЕФЕРАТ
Кваліфікаційна робота складається з 52 стор.тексту, 4 розділів, 14 рис., 6 табл., списку використаної літератури з 77 джерел та 5 додатків на 32 стор..
Мета кваліфікаційної роботи – ідентифікація поточного економічного стану підприємства та пошук шляхів оптимізації управління результативністю та ефективністю діяльності підприємства.
Об’єкт дослідження – підприємство виготовлення та монтажа металоконструкцій в будівельній галузі ТОВ «Металоіндустрія Плюс» (м.Дніпропетровськ).
Предмет дослідження виробнича та комерційна діяльність підприємства й способи аналізу і поліпшення її результативності та ефективності.
Методи дослідження – аналіз балансу та фінансової звітності підприємства, аналіз фінансових коефіцієнтів, комп’ютерне моделювання прогнозів результатів діяльності підприємства.
Забиваем Сайты В ТОП КУВАЛДОЙ - Уникальные возможности от SeoHammer
Каждая ссылка анализируется по трем пакетам оценки: SEO, Трафик и SMM.
SeoHammer делает продвижение сайта прозрачным и простым занятием.
Ссылки, вечные ссылки, статьи, упоминания, пресс-релизы - используйте по максимуму потенциал SeoHammer для продвижения вашего сайта.
Что умеет делать SeoHammer
— Продвижение в один клик, интеллектуальный подбор запросов, покупка самых лучших ссылок с высокой степенью качества у лучших бирж ссылок.
— Регулярная проверка качества ссылок по более чем 100 показателям и ежедневный пересчет показателей качества проекта.
— Все известные форматы ссылок: арендные ссылки, вечные ссылки, публикации (упоминания, мнения, отзывы, статьи, пресс-релизы).
— SeoHammer покажет, где рост или падение, а также запросы, на которые нужно обратить внимание.
SeoHammer еще предоставляет технологию Буст, она ускоряет продвижение в десятки раз,
а первые результаты появляются уже в течение первых 7 дней.
Зарегистрироваться и Начать продвижение
В першому розділі роботи „Теоретикометодичні основи визначення результативності та ефективності діяльності підприємства” проведений аналіз наукової, учбової та методичної літератури по теоретичним та методичним підходам до визначення параметрів оцінки ефективності та результативності діяльності підприємства.
В другому розділі роботи „Аналітична оцінка ефективності діяльності ТОВ „Металоіндустрія Плюс” проведена економічна діагностика ефективності і результативності господарювання ТОВ «Металоіндустрія Плюс» за 2005 2008 роки.
В третьому розділі роботи „Формування стратегії підвищення ефективності та результативності діяльності ТОВ „Металоіндустрія Плюс” запропоновані та обґрунтована стратегія подолання виявлених негативних тенденцій в діяльності та забезпечення підвищення рівня ефективності та результативності діяльності.
В четвертому розділі роботи „Охорона праці” проведений аналіз фактичного рівня умов забезпечення охорони праці в бухгалтерії підприємства та запропоновані заходи по росту рівня санітарнокліматичних та протипожежних умов діяльності.
Ключові слова: РЕЗУЛЬТАТИВНІСТЬ, ЕФЕКТИВНІСТЬ, ЛІКВІДНІСТЬ, РЕНТАБЕЛЬНІСТЬ, ДІЛОВА АКТИВНІСТЬ, ФІНАНСОВА СТІЙКІСТЬ.
ВСТУП
Сучасний менеджмент для оцінки підприємницького бізнесу оперує такими поняттями, як результативність і ефективність. Згідно стандартам[1]
, результативність – це ступінь реалізації запланованої діяльності і досягнення запланованих результатів. Ефективність – це взаємовідношення між досягнутим результатом і використаними ресурсами. Дослідження ефективності виробництва дозволяє визначити шляхи зростання продуктивності праці і зниження зарплатомісткості продукції (економія затрат живої праці), зниження фондомісткості та матеріаломісткості виробництва (економія затрат уречевленої праці), а також раціонального використання природних ресурсів (економія затрат суспільної праці).
Таким чином, результативність – це характеристика системи, обумовлена як її здатність виконувати функції, а ефективність, – це характеристика, обернено пропорційна витратам, що поглинаються бізнес-системою.
Іншими словами, для оцінки результативності й ефективності бізнес-системи підприємства необхідно визначити співвідношення між функціями, що виконуються в бізнес-системі, і витратами на їхнє виконання.
З погляду керування бізнес-системою підприємства актуальність теми кваліфікаційного дипломного дослідження полягає в пошуку шляхів забезпечення одночасного підвищення результативності й ефективності діяльності підприємства.
Сервис онлайн-записи на собственном Telegram-боте
Попробуйте сервис онлайн-записи VisitTime на основе вашего собственного Telegram-бота:
— Разгрузит мастера, специалиста или компанию;
— Позволит гибко управлять расписанием и загрузкой;
— Разошлет оповещения о новых услугах или акциях;
— Позволит принять оплату на карту/кошелек/счет;
— Позволит записываться на групповые и персональные посещения;
— Поможет получить от клиента отзывы о визите к вам;
— Включает в себя сервис чаевых.
Для новых пользователей первый месяц бесплатно.
Зарегистрироваться в сервисе
Мета кваліфікаційної роботи – ідентифікація поточного економічного стану підприємства та пошук шляхів оптимізації управління результативністю та ефективністю діяльності підприємства.
Об’єкт дослідження – підприємство виготовлення та монтажа металоконструкцій в будівельній галузі ТОВ «Металоіндустрія Плюс» (м.Дніпропетровськ).
Предмет дослідження виробнича та комерційна діяльність підприємства й способи аналізу і поліпшення її результативності та ефективності.
Методи дослідження – горизонтальний (індекснохронологічний) та вертикальний (структурнохронологічний) аналіз балансу та фінансової звітності підприємствва, аналіз фінансових коефіцієнтів, комп’ютерне моделювання прогнозів результатів діяльності підприємства при впровадженні змін в стратегії забезпечення зростання рівнів ефективності та результативності діяльності.
В першому розділі роботи „Теоретикометодичні основи визначення результативності та ефективності діяльності підприємства” проведений аналіз наукової, учбової та методичної літератури по теоретичним та методичним підходам до визначення параметрів оцінки ефективності та результативності діяльності виробничого підприємства.
В другому розділі роботи „Аналітична оцінка ефективності діяльності ТОВ „Металоіндустрія Плюс” виконаний аналіз господарської діяльності та економічна діагностика ефективності та результативності господарювання ТОВ «Металоіндустрія Плюс» за 2005 2008 роки.
В третьому розділі роботи „Формування стратегії підвищення ефективності та результативності діяльності ТОВ „Металоіндустрія Плюс” запропоновані та обґрунтовані заходи по формуванню стратегії подолання виявлених при аналізі негативних тенденцій в діяльності підприємства та забезпечення підвищення рівня ефективності та результативності діяльності.
В четвертому розділі роботи „Охорона праці” проведений аналіз фактичного рівня умов забезпечення охорони праці в бухгалтерії підприємства та запропоновані заходи по забезпеченню нормативного рівня санітарно-кліматичних та протипожежних умов діяльності.
Інформаційно-методологічна база досліджень — фінансово-статистичні щорічні документи ТОВ «Металоіндустрія Плюс»» за 2005 2008 роки.
Практична цінність отриманих результатів кваліфікаційної роботи полягає в наданні керівництву ТОВ „Металоіндустрія Плюс” об’єктивних даних аналізу поточного економічного стану підприємства та основних негативних тенденцій в його діяльності, а також обґрунтування доцільності запропонованих заходів по подоланню негативних тенденцій та підвищенню рівня результативності та ефективності діяльності підприємства.
РОЗДІЛ 1
ТеоретиЧНІ основи визначення результативності та ефективності діяльності підприємства
1.1 Теоретичні аспекти визначення результативності та ефективності діяльності суб’єкта господарювання
Відповідні види результативності діяльності фірм виділяються переважно за різноманітністю отриманих результатів (ефектів) їх діяльності. Перш за все, результат діяльності буває економічним або соціальним. Економічний ефект відображає різні вартісні показники, що характеризують проміжні і кінцеві результати діяльності фірми. До таких показників відносяться обсяг товарної продукції, чистої або реалізованої продукції, величина отриманого прибутку, економія тих чи інших видів ресурсів або загальна економія від зниження собівартості продукції [75].
Соціальний ефект зводиться до скорочення тривалості робочого тижня, збільшення нових робочих місць і рівня зайнятості людей, покращання умов праці та побуту, стану навколишнього середовища, загальної безпеки життя тощо.
При виділенні показників оцінки соціально-економічної діяльності фірми на рівні фірми модифікованою формою єдиного критерію ефективності (результативності) її діяльності може бути максимізація прибутку за умови економічно обґрунтованої побудови систем цін на продукцію, що виробляється, та оплати праці залежно від кінцевих результатів виробництва. Кількісна визначеність і зміст критерію знаходять найбільш повне відображення в конкретних показниках ефективності фірми.
При формуванні системи показників соціально-економічної ефективності фірми бажано дотримуватись певних принципів [74]:
1) забезпечення взаємозв’язку критерію і системи конкретних показників ефективності фірми;
2) відображення ефективності використання усіх видів ресурсів, що застосовуються у виробництві;
3) можливість застосування показників ефективності в управлінні різними ланками виробництва у фірмі;
4) виконання найбільш важливими показниками стимулюючої функції у процесі використання наявних резервів зростання ефективності фірми.
Система показників ефективності фірми, що побудована з урахуванням зазначених принципів, повинна включати декілька груп:
1) узагальнюючі;
2) показники ефективності використання праці (персоналу);
3) показники ефективності використання виробничих основних фондів і оборотних коштів;
4) показники ефективності використання фінансових коштів (оборотних коштів і капітальних вкладень).
Кожна з цих груп охоплює певну кількість конкретних абсолютних чи відносних показників, що характеризують загальну ефективність фірми або ефективність використання окремих видів ресурсів (що застосовують та споживаються).
Для всебічної оцінки рівня і динаміки абсолютної економічної ефективності фірми, результатів виробничо-господарської і комерційної діяльності, поряд з наведеними основними показниками, слід також використовувати специфічні показники, що відбивають ступінь використання кадрового потенціалу, виробничих потужностей, устаткування, окремих видів матеріальних ресурсів.
При вимірюванні економічної ефективності конкретні види ефективності можуть розрізнятись не лише за видами результатів (ефектів) діяльності фірми, що отримуються, але й залежно від того, які ресурси (що застосовуються чи споживаються) беруться для розрахунків. Ресурси, що застосовуються – це сукупність живої та уречевленої праці, а ті, що споживаються, є поточними витратами на виробництво продукції. У зв’язку з цим у практиці господарювання варто виділяти також ефективність ресурсів, що застосовуються і споживаються, як специфічні форми прояву загальної ефективності фірми [25].
У зарубіжній практиці як синонім терміна “результативність господарювання” зазвичай застосовується термін “продуктивність системи виробництва та обслуговування”, коли під продуктивністю розуміють ефективне використання ресурсів (праці, капіталу, землі, матеріалів, енергії, інформації) за виробництва різноманітних товарів і послуг.
Не варто забувати також, що загальна продуктивність системи є поняттям набагато ширшим, ніж продуктивність праці та прибутковість виробництва.
Родовою ознакою ефективності (продуктивності) може бути необхідність досягнення мети виробничо-господарської діяльності підприємства (організації) з найменшими витратами суспільної праці або часу.
У кінцевому підсумку змістове тлумачення ефективності (продуктивності) як економічної категорії визначається об’єктивно діючим законом економії робочого часу, що є основоположною субстанцією багатства й мірою витрат, необхідних для його нагромадження та використання суспільством. Саме тому підвищення ефективності виробництва треба вважати конкретною формою вияву цього закону.
Математично (у формалізованому виразі) закон економії робочого часу, який відображає механізм зниження сукупних витрат на виробництво продукції або надання послуг, має такий вигляд [26]:
ВС
= (ВУП
+ ВЖП
+ ВМП
) / ЕСК
® min (1.1)
де ВС
– сукупні витрати на виробництво продукції (надання послуг)
протягом життєвого циклу товару;
ВУП
– затрати минулої (уречевленої) праці на виробництво і
споживання товару;
ВЖП
– затрати живої праці, тобто заробітна плата всіх працівників, що
припадає на даний товар на тій чи тій стадії його життєвого циклу,
плюс прибуток на цій стадії (необхідна й додаткова праця);
ВМП
– затрати майбутньої праці в процесі споживання (експлуатації)
товару;
ЕСК
– сумарний корисний ефект (віддача) товару для споживача за
нормативний строк служби.
Процес формування результатів та ефективності виробництва (продуктивності системи) показано на рис. 1.1.
Сутнісна характеристика ефективності виробництва (продуктивності системи) знаходить відображення в загальній методології її визначення, формалізована форма якої має вигляд:
Ефективність (продуктивність) = Результати / Ресурси (витрати)
(1.2)
Результативність виробництва як найважливіший компонент для визначення його ефективності не варто тлумачити однозначно. Необхідно розрізняти:
1) кінцевий результат процесу виробництва;
2) кінцевий народногосподарський результат роботи підприємства або іншої інтеграційної структури як первинної автономної ланки економіки.
Перший відбиває матеріалізований результат процесу виробництва, що вимірюється обсягом продукції в натуральній і вартісній формах; другий включає не тільки кількість виготовленої продукції, а також її споживну вартість. Кінцевим результатом процесу виробництва (виробничо-господарської діяльності підприємства) за певний період часу є чиста продукція, тобто новостворена вартість, а фінансовим результатом комерційної діяльності – прибуток (прибутковість).
Відмітимо, що необхідні для одержання певного результату виробництва (діяльності) ресурси розподіляються на одноразові (інвестиційні) та поточні, які витрачаються щоденно.
Слід зазначити, що процес вимірювання очікуваного чи досягнутого рівня ефективності діяльності підприємства (організації) методологічно пов’язаний передовсім із визначенням належного критерію і формуванням відповідної системи показників.
Критерій – це головна відмітна ознака й визначальна міра вірогідності пізнання суті ефективності виробництва (діяльності), відповідно до якого здійснюється кількісна оцінка рівня цієї ефективності. Правильно сформульований критерій має якнайповніше характеризувати суть ефективності як економічної категорії і бути єдиним для всіх ланок суспільного виробництва чи господарської діяльності.
Суть проблеми підвищення ефективності виробництва (діяльності) полягає в тім, щоб на кожну одиницю ресурсів (витрат) – трудових, матеріальних і фінансових – досягати максимально можливого збільшення обсягу виробництва (доходу, прибутку). Виходячи з цього, єдиним макроекономічним критерієм ефективності виробництва (діяльності) стає зростання продуктивності суспільної (живої та уречевленої) праці. Кількісна визначеність і зміст критерію відображаються в конкретних показниках ефективності виробничо-господарської та іншої діяльності суб’єктів господарювання.
Формуючи систему показників ефективності діяльності суб’єктів господарювання, доцільно дотримуватися певних принципів, а саме [28]:
− забезпечення органічного взаємозв’язку критерію та системи конкретних показників ефективності діяльності;
− відображення ефективності використання всіх видів застосовуваних ресурсів;
− можливості застосування показників ефективності до управління різними ланками виробництва на підприємстві (діяльності в організації);
− виконання провідними показниками стимулюючої функції в процесі використання наявних резервів зростання ефективності виробництва (діяльності).
Система показників ефективності виробництва (діяльності), що її побудовано на підставі зазначених принципів, має включати кілька груп:
1) узагальнюючі показники ефективності виробництва (діяльності);
2) показники ефективності використання праці (персоналу);
3) показники ефективності використання виробничих (основних та оборотних) фондів;
4) показники ефективності використання фінансових коштів (оборотних коштів та інвестицій).
Кожна з цих груп включає певну кількість конкретних абсолютних чи відносних показників, що характеризують загальну ефективність господарювання або ефективність використання окремих видів ресурсів (табл. 1.1).
Таблиця 1.1
Система показників ефективності виробництва (діяльності) первинних суб’єктів господарювання [29]
| Узагальнюючі показники |
Показники ефективності використання |
| праці (персоналу) |
виробничих фондів |
фінансових коштів |
· Рівень задоволення потреб ринку
· Виробництво чистої продукції на одиницю витрат ресурсів
· Прибуток на одиницю загальних витрат
· Рентабельність виробництва
· Витрати на одиницю товарної продукції
· Частка приросту продукції за рахунок інтенсифікації виробництва
· Народногосподарський ефект використання одиниці продукції
|
· Темпи зростання продуктивності праці
· Частка приросту продукції за рахунок зростання продуктивності праці
· Відносне вивільнення працівників
· Коефіцієнт використання корисного фонду робочого часу
· Трудомісткість одиниці продукції
· Зарплатомісткість одиниці продукції
|
· Загальна фондовіддача (за обсягом продукції)
· Фондовіддача активної частини основних фондів
· Рентабельність основних фондів
· Фондомісткість одиниці продукції
· Матеріаломісткість одиниці продукції
· Коефіцієнт використання найважливіших видів сировини й матеріалів
|
· Оборотність оборотних коштів
· Рентабельність оборотних коштів
· Відносне вивільнення оборотних коштів
· Питомі капітальні вкладення (на одиницю приросту потужності або продукції)
· Рентабельність інвестицій
· Строк окупності вкладених інвестицій
|
Для всебічної оцінки рівня й динаміки абсолютної економічної ефективності виробництва, результатів виробничо-господарської та комерційної діяльності підприємства (організації) поряд із наведеними основними варто використовувати також і специфічні показники, що відбивають ступінь використання кадрового потенціалу, виробничих потужностей, устаткування, окремих видів матеріальних ресурсів тощо.
1.2 Методичні аспекти до визначення результативності та ефективності функціонування підприємства
Конкретні види ефективності можуть виокремлюватися не лише за різноманітністю результатів (ефектів) діяльності підприємства (організації), а й залежно від того, які ресурси (застосовувані чи споживані) беруться для розрахунків.
Застосовувані ресурси – це сукупність живої та уречевленої праці, а споживані – це поточні витрати на виробництво продукції (надання послуг). У зв’язку з цим у практиці господарювання варто виокремлювати також ефективність застосовуваних і споживаних ресурсів як специфічні форми прояву загальної ефективності виробництва (діяльності). У даному разі йдеться про так звані ресурсні та витратні підходи до визначення ефективності із застосуванням відповідних типів показників [31].
Узагальнюючий показник ефективності застосовуваних ресурсів підприємства (організації) можна розрахувати, користуючись формулою [27]:
ЕЗР
= VЧП
/ (ЧП
+ (ФОС
+ ФОБ
) / kПВП
), (1.3)
де ЕЗР
– ефективність застосовуваних ресурсів, тобто рівень продуктивності
суспільної (живої та уречевленої) праці;
VЧП
– обсяг чистої продукції підприємства;
ЧП
– чисельність працівників підприємства;
ФОС
– середньорічний обсяг основних фондів за відновною вартістю;
ФОБ
– вартість оборотних фондів підприємства;
kПВП
– коефіцієнт повних витрат праці, що визначається на макрорівні як відношення чисельності працівників у сфері матеріального виробництва до обсягу утвореного за розрахунковий рік національного доходу і застосовується для перерахунку уречевленої у виробничих фондах праці в середньорічну чисельність працівників.
Узагальнюючим показником ефективності споживаних ресурсів може бути показник витрат на одиницю товарної продукції, що характеризує рівень поточних витрат па виробництво і збут виробів (рівень собівартості).
Як відомо, до собівартості продукції споживані ресурси включаються у вигляді оплати праці (персонал), амортизаційних відрахувань (основні фонди і нематеріальні активи) і матеріальних витрат (оборотні фонди).
За допомогою узагальнюючих показників ефективності виробництва (діяльності) того чи того первинного суб’єкта господарювання виокремлюють насамперед відносний рівень задоволення потреб ринку. Він визначається як відношення очікуваного або фактичного обсягу продажу товарів (надання послуг) суб’єктом господарювання до виявленого попиту споживачів.
До важливих узагальнюючих показників ефективності виробництва (діяльності) належить також частка приросту продукції за рахунок інтенсифікації виробництва. Це зумовлюється тим, що за ринкових умов господарювання вигіднішим економічно й соціальне є не екстенсивний (через збільшення застосовуваних ресурсів), а саме інтенсивний (за рахунок ліпшого використання наявних ресурсів) розвиток виробництва.
Визначення частки приросту продукції за рахунок інтенсифікації виробництва здійснюється за формулою [30]:
ЧІНТ
= 100 ´ (1 – DРЗ
/ DVВ
), (1.4)
де ЧІНТ
– частка приросту обсягу продукції, зумовлена інтенсифікацією
виробництва;
DРЗ
– приріст застосовуваних ресурсів за певний період (розрахунковий
рік), %;
DVВ
– приріст обсягу виробництва продукції за той самий період (рік), %.
Народногосподарський ефект використання одиниці продукції як узагальнюючий показник ефективності того чи того виробництва обчислюється як приріст чистого прибутку (доходу), тобто як приріст загального ефекту (збільшення прибутку внаслідок зростання обсягу виробництва і продуктивності праці, економії експлуатаційних витрат та інвестиційних ресурсів тощо) за відрахуванням вартості придбаної (купленої) продукції виробничо-технічного призначення.
Щодо решти системи показників, диференційованих за видами ресурсів та наведених у табл. 1.1, то вони використовуються відповідно до заздалегідь визначеної цілі вимірювання ефективності та способів використання результатів такого вимірювання.
Існує дві загальні і постійно існуючі цілі [32]:
1) виявлення, оцінка та узагальнення відносної ефективності виробничих підрозділів і діяльності функціональних ланок з наступним пошуком пріоритетних напрямів мотивації та реальних механізмів впливу на її позитивну динаміку у майбутньому;
2) порівняння ступеня ефективності, досягнутого даною фірмою і його конкурентами на ринку, для недопущення зниження престижу і конкурентоспроможності у сфері бізнесу.
Планування результативності діяльності підприємства можна здійснювати, використовуючи такі три головні його системи [38]:
1) прогнозування рівня результативності діяльності підприємства та його використання;
2) поточне планування рівня результативності діяльності підприємства та його використання;
3) оперативне планування рівня результативності діяльності підприємства та його використання.
Оцінка розробленої політики регулювання результативності діяльності підприємства має провадитися за такими головними параметрами:
1) ступінь узгодженості політики із зовнішнім середовищем (у процесі оцінки визначається, наскільки розроблена політика регулювання результативності діяльності підприємства відповідає прогнозованому розвиткові економіки країни та змінам кон'юнктури товарного і фінансового ринків);
2) рівень внутрішньої збалансованості політики (при цьому визначається, наскільки вона узгоджується із загальною фінансовою стратегією підприємства, наскільки узгоджуються між собою окремі цілі й цільові показники політики регулювання результативності діяльності підприємства, наскільки ефективні й узгоджені між собою заходи щодо забезпечення її реалізації);
3) можливість реалізації політики з урахуванням наявного ресурсного потенціалу підприємства (виробничого, фінансового, інноваційного, кадрового тощо);
4) прийнятність рівня ризиків, пов'язаних із реалізацією політики (позаяк рівень результативності діяльності підприємства тісно пов'язаний із рівнем ризиків, то у процесі оцінки необхідно визначити, наскільки рівень господарських ризиків допустимий для діяльності підприємства з позицій можливого розміру фінансових втрат);
5) очікувані результати реалізації політики. Окрім того, можна оцінити зростання ділової репутації підприємства, підвищення рівня керованості його структурними підрозділами, поліпшення умов роботи і побуту працівників, підвищення рівня матеріальної і соціальної задоволеності персоналу тощо.
Розроблення політики регулювання результативності діяльності підприємства дає змогу вживати ефективних управлінських заходів з усіх головних аспектів формування її рівня та використання у процесі поточного планування.
Система поточного планування формування і використання рівня результативності діяльності підприємства (друга із зазначених трьох систем планування) базується на політиці її регулювання і полягає у розробленні конкретних видів планів.
Вихідними показниками для таких поточних планів є: цільові показники, розроблені у процесі формування політики регулювання результативності діяльності підприємства; заплановані обсяги операційної, інвестиційної і фінансової діяльності підприємства; системи розроблених на підприємстві норм і нормативів затрат окремих видів ресурсів; наявна система ставок податкових платежів; дані аналізу результативності діяльності підприємства за попередній період.
Оскільки низка вихідних передумов розроблення поточних планів має імовірнісний характер і розсіювання їхніх параметрів в умовах сучасної економічної нестабільності країни досить високе, поточні плани бажано розробляти у кількох можливих варіантах — "оптимістичному", "ймовірному", "песимістичному".
Головним видом поточного плану, пов'язаного з результативністю діяльності підприємства, є план доходів і витрат із діяльності підприємства. Узагальнена форма цього плану тісно пов'язана з формою бухгалтерського обліку "Звіт про фінансові результати" [5]. Класифікація доходів і витрат за видами діяльності й функціями співвідноситься із цим звітом.
Система оперативного планування формування та використання рівня результативності діяльності підприємства (третя із зазначених трьох систем планування) полягає у розробленні системи бюджетів (бюджетуванні). Бюджет являє собою оперативний фінансовий план короткострокового періоду (зазвичай місячний чи квартальний), який відображає витрати і надходження коштів у процесі здійснення конкретних видів господарської діяльності. Він деталізує показники поточних планів і є головним документом, який доводиться до центрів відповідальності усіх типів.
Сучасними методологічними аспектами визначення результативності функціонування підприємства є впровадження концепції контролінгу.
Контролінг – це синтетична дисципліна, яка розвивається на основі даних маркетингу, менеджменту, планування, обліку, аналізу та контролю. Метою контролінгу є отримання даних, обробка і трансформація в інформацію для управління та прийняття рішень, яка є нестандартною і призначається для виявлення тенденцій та закономірностей явищ і процесів у діяльності підприємства, допомагає розробити заходи, які забезпечують його життєдіяльність [37].
Контролінг є системою інформації, яка сприяє забезпеченню тривалого існування підприємства та спрямована на майбутнє.
Функції контролінгу досить різноманітні і включають такі основні напрями: нормування витрат; розробку заходів щодо покращання роботи на підставі інформації про відхилення від норм; прогнозування ціноутворення; аналіз тенденцій розвитку підприємства; передбачення господарської і комерційної діяльності залежно від зміни умов роботи; координацію мети різних рівнів управління для досягнення загальної мети фірми; відстеження фінансового стану фірми.
РОЗДІЛ 2
Аналітична оцінка ЕФЕКТИВНОСТІ діяльності ТОВ «МЕТАЛОІНДУСТРІЯ ПЛЮС»
2.1 Характеристика господарської діяльності ТОВ «Металоіндустрія Плюс»
Товариство з обмеженою відповідальністю „Металоіндустрія Плюс” є виробничо-монтажним будівельним підприємством та виконує роботи в наступному сегменті будівництва [77]:
- виготовлення та монтаж швидкомонтуємих будівель МИ+;
виготовлення металоконструкцій різного ступеня важкості;
розробка проектно-кошторисної документації (ліцензія № АБ105538);
спорудження фундаментів;
спорудження несучих та огороджуючих конструкцій;
монтаж металоконструкцій;
доставка металоконструкцій на строй-майданчик.
Обсяги виробництва металоконструкций:
двутаврова балка для каркасних будівель – 700 тон в місяць;.
нестандартні металоконструкції 200 тон в місяць.
У складі обладнання підприємства є наступні типи:
універсальний збірний стан для виробництва двутаврової балки,
машина термічного різання листового метала "Кристалл ТМ2,5М"
ленточнопильний станок,
ножиці гильотинні (3 шт.) до 25 х 3150мм,
стругальний станок,
радиально-сверлильний станок (2 шт.),
заточний станок,
відрізний станок,
вальци листогібочні (до 12 х 2000мм),
машина листоправильна,
напівавтомати газової різки «Смена»,
ручне газорізальне обладнання,
станкопости ручного електрозварювання,
станкопости напівавтоматичного зварювання в середовищі захисних газів,
обладнання для очистки та окраски металоконструкцій,
шість мостових кранів грузоподйомністю від 5 до 12 тон,
Рядом с цехом відкритий склад металопрокату с козловими кранами грузопідйомністю 25 и 32 тон, під’їзні авто та залізничні шляхи.
Підприємство ТОВ „Металоіндустрія Плюс” самостійно виконує весь цикл: проектування, виготовлення та монтажу (табл.2.1, 2.2).
Підприємством ТОВ „Металоіндустрія Плюс” побудовані наступні об’єкти:
Кондитерська фабрика «АВК» (виготовлення металоконструкцій);
Мережа супермаркетів «АТБ» (Виготовлення та монтаж металоконструкцій);
будинок по вул. Барикандой д.1 (Дніпропетровськ, Виготовлення металоконструкцій);
виробничий цех м’ясокомбіната «Алан» (Дніпропетровськ робіт);
виробничий цех “Procter & Gamble” (Бориспіль, Виготовлення металоконструкцій);
виготовлення та монтаж металоконструкцій мансардного поверху будівлі по вул. Миронова 5 (Дніпропетровськ);
магазин Будапешт (Донецьк, комплекс робіт);
виробничий цех Українського завода СКГШ (м. Дніпропетровськ, монтаж огорожуючих конструкцій);
стадіон «Металург» ФК «Днепр» (Дніпропетровськ, виготовлення та монтаж металоконструкцій).
Таблиця 2.1
Основна продукція, пропонуєма ТОВ „Металоіндустрія Плюс” [77]

Таблиця 2.2
Основні послуги, пропонуємі ТОВ „Металоіндустрія Плюс” [77]
| РЕАЛІЗУЄМА ПРОДУКЦІЯ |
| Ангари з легких металоконструкцій |
| Будівлі з легких металоконструкцій |
| Металоконструкції |
| Металоконструкції будівельні |
| Балки стальні |
| Металопрокат |
| Профілі конструкційні для швидкомонтуємих будівель |
| Сендвіч Сендвіч-панелі |
| ПОСЛУГИ |
| Виготовлення металоконструкцій |
| Виготовлення металоконструкцій під замовлення |
| Монтаж металоконструкцій |
| Поставка та будівництво швидкомонтуємих будинків |
| Поставка металоконструкцій любого ступеня важкості |
| Поставка металоконструкцій на будівельну площадку |
2.2 Діагностика ефективності та результативності господарювання ТОВ «Металоіндустрія Плюс»
2.2.1 Аналіз динаміки складу і структури активів та пасивів балансу
Для виконання аналітичних досліджень динаміки складу і структури активів та пасивів балансу підприємства проводять відповідне группування статей балансу та їх структурний аналіз. Мета структурного аналізу – вивчення структури й динаміки коштів підприємства та джерел їх формування для ознайомлення із загальною картиною фінансового стану [71].
Схеми порівняльного аналізу охоплюють велику кількість показників, які характеризують статику й динаміку фінансового стану. При проведенні горизонтального аналізу визначаються абсолютні й відносні зміни величин різних статей балансу за певний період. При вертикальному аналізі обчислюється питома вага кожної з окремих груп статей у валюті балансу.
Аналіз динаміки і структури майна (активів) підприємства дозволяє встановити розмір абсолютного і відносного приросту або зменшення всього майна підприємства або його видів. Стабільність фінансового стану підприємства залежить від правильності та доцільності вкладення фінансових ресурсів у активи, тому для його оцінки необхідно вивчити передусім склад, структуру майна та джерел його утворення, а також причини зміни складу майна та джерел його утворення.
В табл. Г.1 додатку Г наведені результати горизонтального та вертикального аналізу складу і структури майна підприємства ТОВ „Металоіндустрія Плюс” у 2005 –2008 роках (обробка даних фінансових звітів Додаток А). Як показує аналіз даних табл.Г.1 додатку Г та графіків рис.В.1 В.4 додатку В, склад та структура майна ТОВ „Металоіндустрія Плюс” у 2005 –2008 роках характеризується наступними показниками:
абсолютна валюта балансу підприємства зросла з рівня 223,9 тис.грн. у 2005 році до рівня 1 942,8 тис.грн. у 2 кварталі 2008 році, але динаміка її росту має тенденцію до зниження темпів нарощування:
а) значний ланцюговий приріст +214,0% у 2006 році;
б) значний позитивний ланцюговий приріст +113,7% у 2007 році;
в) невеликий ланцюговий приріст +14,8% у 1 кварталі 2008 року;
г) невеликий ланцюговий приріст +13,53% у 2 кварталі 2008 року;
Важливим етапом аналізу фінансового стану підприємства є зіставлення темпів приросту активів з темпами приросту фінансових результатів виторгу або прибутку від реалізації продукції (див.табл.Г.2 додатку Г).
Так система стійкого розвитку підприємства (у світовій практиці “золоте правило економіки підприємства”) оцінюється співвідношенням темпів росту абсолютних рівнів балансового прибутку (ТРБ
), обсягу реалізації продукції (ТN
) та суми активів балансу (ТВ
) [14]:
ТРБ
>TN
>TB
>100% (2.1)
На аналізованому підприємстві ТОВ „Металоіндустрія Плюс” у 2005 –2008 роках співвідношення “золотого правила” становлять (табл.Г.2 додатку Г):
а) 2006 рік
1458,0% > 199,9% > 214,0% > 100% незначно не виконується 1 умова
б) 2007 рік
419,8% > 372,7% > 113,5% > 100% виконуються всі умови
в) 2008 рік
202,8% > 30,7% > 29,5% > 100% виконуються всі умова
Тобто, умови “золотого правила економіки підприємства” на ТОВ „Металоіндустрія Плюс” у 2005 – 2008 роках практично виконуються.
У табл. Г.3 додатку Г наведений аналіз стану основних засобів в ТОВ „Металоіндустрія Плюс” у 2005 –2008 роках. Як показує аналіз результатів, наведених в табл.Г.3 додатку Г, на підприємстві ТОВ «Металоіндустрія Плюс» у 2005 –2008 роках підтримується коефіцієнт придатності основних засобів на рівні 96,0 – 99,0 % за рахунок своєчасного оновлення основних засобів.
2.2.2 Аналіз фінансової стійкості, ліквідності та платоспроможності підприємства
У першу чергу фінансовий стан підприємства оцінюється його фінансовою стійкістю та платоспроможністю. Платоспроможність відображає здатність підприємства платити за своїми боргами та зобов’язаннями за конкретний період часу. Умови достатності дотримуються тоді, коли підприємство платоспроможне у часі, тобто має стійку здатність відповідати за своїми боргами у будь-який момент часу [15]. Під фінансовою стійкістю слід розуміти його платоспроможність у часів дотриманням умови фінансової рівноваги між власними та позиковими коштами. Фінансова рівновага являє собою таке співвідношення власних і позикових коштів, коли за рахунок власних коштів повністю погашаються колишні і нові борги. Фінансова рівновага у часі забезпечується ліквідністю балансу, яка визначається як ступінь покриття зобов’язань підприємства його активами, строк перетворення яких на гроші відповідає строкові погашення зобов’язань.
Узагальнюючим показником фінансової стійкості є надлишок (нестача) джерел засобів для формування запасів. Як джерела для формування запасів розглядаються: власний капітал і резерви; довгострокові зобов'язання; короткострокові кредити [22].
Результати розрахунків показників платоспроможність та ліквідності підприємства ТОВ «Металоіндустрія Плюс» наведені в табл. Ж.1 – Ж.4 Додатку Ж та на графіках рис.В.5 В.9 додатку В. Як показує аналіз даних табл. Ж.1 –Ж.4 Додатку Ж, діяльність підприємства ТОВ “Металоіндустрія Плюс» у 2005 – 2008 роках характеризується наступним:
- підприємство є низько платоспроможним та неліквідним, маючи недостатній запас ліквідності та відсутність запасу стійкості по забезпеченню запасів та оборотного капіталу власними коштами;
- підприємство має недостатній рівень автономії (0,3 замість 0,5) за рахунок низького рівня власного капіталу та високого рівня використання позикових коштів комерційних кредитів та авансів.
2.2.3 Показники ділової активності та ефективності господарювання
Результативність та економічна доцільність функціонування підприємства оцінюється як абсолютними, так і відносними показниками до яких відносяться показники ділової активності та рентабельності [13].
Як показує аналіз даних табл. К.1 – К.6 додатку К, в ТОВ «Металоіндустрія Плюс» у 2005 –2008 роках характерні наступні параметри процесів ділової активності:
фондовіддача основних фондів знаходиться практично на одному рівні, тобто нарощування обсягів основних фондів відповідає нарощуванню обсягів виконаних робіт;
забезпечується стабільність рівня зносу основних фондів на рівні не нижче 0,96 постійним оновленням та придбанням основних фондів;
ресурсовіддача активів у чисту виручку від реалізації з рівня 4,64 у 2005 році зросла до рівня 11,0 11,7 у 2008 році, тобто частка активів стала використовуватися з нарощуванням ефективності.
Аналіз оборотності агрегатів оборотних активів також показує, що на протязі 20062007 років період обороту агрегатів оборотних активів різко знизився, що свідчить про зростання темпу ділової активності підприємства. Таким чином, підтверджується, що частка зростаючих робочих активів стала використовуватися дуже ефективно.
Аналіз рентабельності роботи ТОВ «Металоіндустрія Плюс» у 2005 –2008 роках показує, що рентабельність роботи всіх характерних агрегатів балансу підприємства зростає , але це стало дуже помітно у 2007 році. При цьому:
рентабельність власного капіталу по чистому прибутку знаходиться на рівні 67 125% річних, тобто значно вище альтернативної депозитної ставки в комерційних банках (14 16% річних), тобто підприємство для його засновників становиться інвестиційно привабливим.
Одночасно показник схильності до банкрутства по Альтману (Додаток Д) ідентифікує незначний рівень ймовірності банкрутства ТОВ “Металоіндустрія Плюс», в основному за високого рівня ресурсовіддачі активів у обсяги реалізованої продукції.
Таким чином, економічна діагностика ефективності та результативності діяльності підприємства ТОВ “Металоіндустрія Плюс» у 2005 – 2008 роках показала:
- підприємство є низько платоспроможним та неліквідним, маючи недостатній запас ліквідності та відсутність запасу стійкості по забезпеченню запасів та оборотного капіталу власними коштами;
- підприємство має недостатній рівень автономії (0,3 замість 0,5) за рахунок низького рівня власного капіталу та високого рівня використання позикових коштів комерційних кредитів та авансів;
- підприємство розвивається циклами, маючи тенденцію до підвищення валюти балансу за рахунок нарощення дебіторсько-кредиторської заборгованості та прибутку у власному капіталі;
- ресурсовіддача активів та основних засобів підприємства при зростанні валюти балансів не знижується, що свідчить про ефективність політики оновлення основних засобів на нових технологічних принципах та суттєвого підняття частки активних основних фондів нового покоління;
- рентабельність роботи підприємства та доходність пайових часток у 2006 2008 році значно підвищилась, що привело до появи інвестиційного інтересу по вкладанню коштів інвесторів в підприємство;
- у 2007 році різко зріс рівень ділової активності підприємства, про що свідчить зменшення періоду оборотності оборотних коштів та дебіторсько-кредиторської заборгованості до 22 30 днів, що значно перевищує стандарті норми оборотності (не більше 120 днів на оборот).
Тобто, підприємство знаходиться в сегменті зростання життєвого циклу розвитку підприємства і повинно терміново розробити стратегію розвитку підвищення рівнів ліквідності та платоспроможності підприємства.
РОЗДІЛ 3
Формування стратегії підвищення ефективності та результативності діяльності ТОВ «МЕТАЛОІНДУСТРІЯ ПЛЮС»
3.1 Підходи до формування стратегії підвищення результативності та ефективності діяльності підприємства
Рівень економічної і соціальної ефективності виробництва залежить від багатьох чинників, що її визначають. У зв’язку з цим для практичного розв’язання завдань управління ефективністю важливого значення набуває класифікація чинників її зростання.
Класифікація великої різноманітності чинників зростання ефективності (продуктивності) може здійснюватись за трьома ознаками [12]:
1) видами витрат і ресурсів (джерелами підвищення);
2) напрямами розвитку та удосконалення виробництва;
3) місцем реалізації у системі управління виробництвом.
Групування чинників за першою ознакою робить можливим досить чітке визначення джерел підвищення ефективності: зростання продуктивності праці (економія витрат живої праці), зниження фондоємності (капіталоємності) і матеріалоємності продукції. Покращання використання зазначених джерел підвищення ефективності виробництва передбачає здійснення комплексу заходів, які за своїм змістом характеризують основні напрями розвитку та удосконалення виробництва (друга ознака групування чинників). Визначальними напрямами є, перш за все, прискорення темпів науково-технічного та організаційного прогресу (створення нових і удосконалення існуючих технологій, конструкційних матеріалів, засобів праці і кінцевої продукції; механізація та автоматизація виробничих процесів; запровадження прогресивних методів і форм організації виробництва і праці; побудова та регулювання ринкового механізму господарювання).
Найбільш важливою у практичному значенні слід вважати класифікацію чинників ефективності за місцем реалізації у системі управління виробництвом (третя ознака групування чинників), особливо відокремлення з них двох категорій чинників – внутрішньовиробничих і зовнішніх (народногосподарських), а також поділ сукупності внутрішніх чинників на так звані “тверді” і “м’які” чинники.
Класифікаційні ознаки чинників зростання ефективності виробництва зображені на рис. 3.1.

Рис. 3.1 Класифікаційні ознаки чинників ефективності виробництва [11]
Поділ внутрішніх чинників на “тверді” і “м’які” є досить умовним і незвичним, але широко відомим і таким, що використовується на підприємствах зарубіжних країн. “Твердими” чинниками є ті, які можна виміряти і які мають фізичні параметри, а “м’які” – ті, які не можна фізично відчути, проте вони мають неабияке значення для економічного управління виробництвом (наприклад, інформація, знання і кваліфікація кадрів, методи та системи організації різних процесів тощо).
“Тверді” чинники зростання ефективності діяльності [8]:
1. Технологія – технологічні нововведення, особливо сучасні форми автоматизації та інформаційні технології, що справляють чи не найбільший вплив на рівень і динаміку ефективності виробництва.
2. Устаткування – зростанню продуктивності діючого устаткування сприяють належна організація ремонтно-технічного обслуговування, оптимальні строки експлуатації, забезпечення необхідної пропорційності в пропускній спроможності технологічно пов’язаних груп, чітке планування завантаження у часі, підвищення змінності роботи, скорочення внутрішньо змінних витрат робочого часу тощо.
3. Матеріали та енергія – проблема економії і зменшення споживання сировини, матеріалів, енергії повинна знаходитись під постійним контролем відповідних спеціалістів фірми (має позитивно розв’язуватись завдання ресурсозбереження).
4. Вироби – передові підприємства постійно контролюють втілення своєї технічної переваги у конкретних виробах, що користуються великим попитом на ринку.
“М’які” чинники зростання ефективності діяльності [8]:
1. Працівники – основне джерело і визначальний чинник зростання ефективності виробництва. Продуктивність їх праці багато в чому визначається методами, технікою, особистими вміннями, знаннями, ставленням до праці та здібністю виконувати ту чи іншу роботу.
2. Організація і системи – система повинна бути динамічною і гнучкою, періодично неорганізованою відповідно до нових завдань, що постають перед фірмою при зміні ситуації.
3. Методи роботи – більш досконалі методи роботи в умовах переважання працеємних процесів стають достатньо перспективними для зростання продуктивності.
4. Стилі управління – загальна ефективність діяльності фірми залежить від того, коли, де, як і щодо кого застосовується відповідний стиль управління.
Під резервами розуміють невикористані можливості зниження поточних і авансових витрат матеріальних, трудових та фінансових ресурсів при даному рівні розвитку виробничих сил і виробничих відносин.
Резерви у повному обсязі можна виміряти в плані досягнутого рівня використання ресурсів і можливого, виходячи з накопиченого виробництвом, потенціалу фірми.
З позиції фірми розрізняють зовнішні і внутрішні (внутрішньовиробничі) резерви. Під зовнішніми резервами розуміють загальні народногосподарські, а також галузеві і регіональні резерви. Їх використання відображається на рівні економічних показників фірми, але головним джерелом економії, як правило, є внутрішньовиробничі резерви.
Класифікація внутрішніх резервів підвищення ефективності діяльності фірми [6]:
1. За факторами та умовами інтенсифікації і підвищення ефективності господарської діяльності.
1.1. Науково-технічний рівень виробництва продукції:
підвищення прогресивності і якості продукції та техніки, що застосовується;
рівень механізації й автоматизації виробництва;
технічна та енергетична озброєність праці;
прискорення впровадження нової техніки та заходів науково-технічного розвитку.
1.2. Структура та організація виробництва і праці:
підвищення рівня концентрації, спеціалізації, кооперування;
зменшення часу виробничого циклу;
забезпечення ритмічності та принципів наукової організації виробництва;
скорочення і повна ліквідація виробничого браку;
забезпечення принципів наукової організації праці;
підвищення кваліфікації робочої сили та її відповідності технічному рівню виробництва.
1.3. Підвищення рівня управління і методів господарювання:
удосконалення виробничої структури фірми та структури органів управління;
підвищення рівня планової та обліково-контрольної роботи;
впровадження і розвиток господарського обліку в усіх підрозділах (виробничих та управлінських);
покращання соціальних умов праці і життя трудового колективу;
раціональне використання природних ресурсів;
удосконалення зовнішньоекономічних зв’язків фірми.
2. За кінцевими підсумками, на які ці резерви впливають.
2.1. Підвищення обсягу продукції, вдосконалення асортименту виробів.
2.2. Покращання якості.
2.3. Зниження собівартості продукції:
за елементами витрат; за статтями витрат; за центрами відповідальності.
2.4. Резерви підвищення прибутковості продукції.
2.5. Резерви зміцнення фінансового стану.
2.6. Резерви підвищення рівня рентабельності.
3.Групування резервів.
3.1. За стадіями процесу відтворення:
постачання; виробництво; збут продукції.
3.2. За стадіями створення та експлуатації виробів:
передвиробнича стадія – конструкторсько-технологічна підготовка;
виробнича стадія – освоєння нових виробів і нових технологій;
експлуатаційна стадія – споживання виробів.
4. За строками використання.
4.1. Поточні – реалізуються протягом даного року.
4.2. Перспективні – можна реалізувати в перспективі, наприклад, у 5річному плані розвитку.
5. За способами виявлення.
5.1. Явні – наприклад, ліквідація чергових втрат і перевитрат.
5.2. Приховані – можуть виявлятися шляхом глибокого економічного аналізу.3.2 Формування стратегії підвищення результативності діяльності ТОВ «Металоіндустрія Плюс»
В якості основної стратегії розвитку підприємства найбільш реальним шляхом є використання високих показників рентабельності капіталу підприємства (ROE =67 – 125 % річних), виявлених на стадії економічної діагностики, для залучення зовнішнього інвестування в статутний капітал підприємства. Залучення зовнішнього інвестиційного капіталу в статутний капітал підприємства доцільно провести за рахунок реорганізації товариства з обмеженою відповідальністю ТОВ „Металоіндустрія Плюс” в форму закритого акціонерного товариства (ЗАТ) чи відкритого акціонерного товариства (ВАТ) з емісією акцій на умовах:
засновники ТОВ „Металоіндустрія Плюс” отримують акції на суму пайових долів в існуючому статутному капіталі 29 тис.грн. та на зароблену суму нерозподіленого прибутку 518,8 тис.грн. за час діяльності підприємства (занулення прибутку нового підприємства при реорганізації) на загальну суму 550 тис.грн.;
зовнішні інвестори вносять в новий статутний фонд ЗАТ чи ВАТ розміром 1250 тис.грн. додаткові кошти на суму 700 тис.грн. відповідно розподілу при підписці на акції;
розрахункова прогнозна рентабельність акцій повинна становити не менше 40% річних, що в 2,5 рази вище альтернативної депозитної доходності капіталу, вкладеного в комерційні банки у 2008 році.
Результати комп’ютерного моделювання прогнозів зміни фінансових показників діяльності ТОВ – ВАТ „Металоіндустрія Плюс” наведені в додатку К та на графіках рис.3.23.6.
Як показує аналіз результатів прогнозування (рис.3.2 3.6) за рахунок додаткового росту власного капіталу підприємства на 700 тис.грн. за рахунок додаткової емісії акцій при реорганізації із форми ТОВ в форму акціонерного товариства:
1. Коефіцієнт абсолютної ліквідності з рівня 0,043 0,127 у 2007 2008 роках зростає до рівня 0,272, що відповідає нормативно стійкому діапазону 0,2 – 0,35 [71].
2. Коефіцієнт строкової ліквідності з рівня 0,4 – 0,6 у 2007 – 2008 роках зростає до рівня 0,967, що відповідає нормативно стійкому діапазону 0,7 – 0,8 [71].
3. Коефіцієнт загальної ліквідності з рівня 0,99 – 0,167 у 2007 – 2008 роках зростає до рівня 1,874, що відповідає нормативно стійкому діапазону 1,5 – 2,0 [71].
4. Коефіцієнт автономності джерел активів з рівня 0,21 – 0,3 у 2007 – 2008 роках зростає до рівня 0,556, що відповідає нормативно стійкому діапазону > 0,5[71].
5. Показник фінансової стійкості по покриттю запасів з рівня “Кризовий стан” (нестача власних та залучених коштів для покриття виробничих запасів) у 2007 – 2008 роках змінюється до рівня „Абсолютно стійкий фінансовий стан” ( для покриття виробничих запасів достатньо власного оборотного капіталу) [71].
6. Прогнозний рівень рентабельності власного капіталу, який зросте з рівня 582 тис.грн. (2008 рік) до рівня 1 705 тис.грн. (прогноз початку 2009 року), знизиться з рівня 67 125 % у 2007 2008 роках і становитиме 40,6%, що відповідає умовам залучення коштів інвесторів при додатковій емісії акцій.

Рис.3.2 Динаміка прогнозного зростання валюти балансу та частки власного капіталу для ТОВ „Металоіндустрія Плюс” при впровадженні у 2009 році пропозицій дипломного дослідження

Рис.3.3 Динаміка прогнозного зростання рівней ліквідності балансу до зони нормативної стійкості для ТОВ „Металоіндустрія Плюс” при впровадженні у 2009 році пропозицій дипломного дослідження

Рис.3.4 Динаміка прогнозного зростання рівня автономності (рівня незалежності джерел в валюти пасивів балансу) до зони нормативної стійкості для ТОВ „Металоіндустрія Плюс” при впровадженні у 2009 році пропозицій дипломного дослідження

Рис.3.5 Динаміка прогнозного зростання фінансової стійкості по покриттю запасів із кризової зони до зони абсолютної стійкості для ТОВ „Металоіндустрія Плюс” при впровадженні у 2009 році пропозицій дипломного дослідження

Рис.3.6 Динаміка прогнозного зміни рівня рентабельності власного капіталу після додаткової емісії акцій для ТОВ „Металоіндустрія Плюс” при впровадженні у 2009 році пропозицій дипломного дослідження
РОЗДІЛ 4
ОХОРОНА ПРАЦІ
Питання підвищення продуктивності праці, зменшення кількості помилок у роботі багато в чому залежать від безпечних і нешкідливих умов праці. Тому важливим завданням студента дипломника є розроблення організаційно-технічних та санітарно-гігієнічних заходів, здійснення яких виключає можливість виробничого травматизму, професійних захворювань, отруєнь, вибухів і пожеж, негативних екологічних наслідків.
4.1 Характеристика приміщення
За об'єкт дослідження було взято приміщення бухгалтерії ТОВ «Металоіндустрія Плюс», у якому відбувалася робота над дипломним проектом. У вибраному приміщенні 5 робочих місця. Це приміщення розташоване у цегляній будівлі на 2 поверсі 2поверхового будинку. Загальна площа приміщення 20,88 м ( довжина 5,80м; ширина 3,60м), висота2,80м. Розрахуємо площу приміщення, що припадає на одного працюючого, оцінимо ці значення відповідно до СниП 2.09.0487 [54], за якими встановлено, що на кожного працюючого повинно припадати в управлінських приміщеннях не менше ніж 4 м2
робочої площі. Визначаємо площу приміщення, яка припадає на 1 працюючого.
20,88 / 5 = 4,16 м2
.
Отже, дане приміщення придатне для працювання 5 осіб управлінського апарату. Висота приміщення повинна бути від підлоги до стелі не менше 2,50м [54]. Висота об'єкта дослідження складає 2,80м.
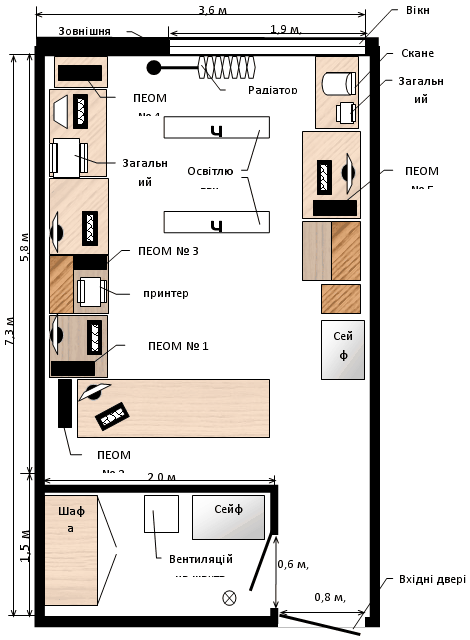
Для повної характеристики приміщення наведемо план приміщення (рис. 4.1). У приміщенні розташовано 5 комп’ютерів. Напруга джерела живлення комп’ютерів у приміщенні 220 В. У приміщенні є 1 склопластикове вікно,розміщені 4 письмових стола, 3 шафи для зберігання документів, 1 шафа для одягу, 2 сейфи.

Рис.4.1 Схема приміщення бухгалтерії ТОВ «Металоіндустрія Плюс»
За небезпекою ураження електричним струмом приміщення бухгалтерії належить до приміщень без підвищеної небезпеки ураження електричним струмом [19 ].
4.2 Аналіз стану охорони праці в приміщенні
В аналізі стану охорони праці необхідно зазначити місця, де можливий вплив на працюючих небезпечних або шкідливих виробничих факторів, їх джерела.
Головними потенційними небезпеками можуть бути (згідно ГОСТ 12.0.00374 [19]): небезпека ураження електричним струмом при короткому замиканні проводки; небезпека пожежі у приміщенні, бо в приміщенні знаходиться безліч паперу.
У даному приміщенні не виникали нещасні випадки за останній рік. Проведемо аналіз санітарно-гігієнічних умов у досліджуваному приміщенні.
Дослідимо достатність природного освітлення. Складемо розрахункову схему та зобразимо на ній (рис.4.2, 4.3):
- габаритні розміри приміщення (5,80м*3,60м*2,80м)
- розміри вікон (1,90м* 1,40м*1шт – металопластик на 2 половинки без фіранки, розташоване прямо під потолок (2 см від потолка));
- розміщення вікон за висотою приміщення (висота від підлоги до підвіконня 0,90м, Відносно рівня робочої поверхні + 0,10м)
- відстань від вікна до розрахункової точки – 4 м.
-

Рис.4.2 Розрахункова схема розташування вікна (кімната в розрізі)

Рис. 4.3 – Схема розрахунку природного освітлення (аксонометрія)
Нормативне значення коефіцієнта природного освітлення (КПО) для четвертого світлового поясу, в якому розташована Україна, визначається у відсотках за формулою [17]:
 (4.1)
де нормоване значення КПО для 3го світлового поясу, яке визначається за СниП 11479 [55]. Для більшості адміністративно-управлінських приміщень, у яких виконуються роботи третього розряду (середньої точності) для бокового освітлення складає 1,5%; [18]
m коефіцієнт світлового клімату (для України m = 0,9);
с коефіцієнт сонячності. Для географічної широти м. Дніпропетровська розташоване в межах 0,751,0. Візьмемо с = 0,88.
= 1,5*0,9*0,88 = 1,19 (%)
, (4.2)
де Sвікон
— площа всіх вікон у приміщенні, м2
;
Sвікон
= 1,9 *1,4*1 = 2,66 (м2
)
Sпідлоги
площа підлоги приміщення, м2
;
Sпідлоги
=20,88 м2
t0
загальний коефіцієнт світлопроникності віконного прорізу. Для віконних прорізів адміністративно-управлінських будівель, які не обладнані сонцезахисними пристроями t0
0,5%;
світлова характеристика вікна, береться із таблиці [44];
Кзатемн_буд
=1, коефіцієнт, що враховує затемнення вікон іншими будинками, якщо будинків немає, то Кзатемн_буд
= 1.
Кзапас
коефіцієнт запасу, береться у межах Кзапас
=1,31,5, візьмемо Кзапас
= 1,4 [44].
r1
коефіцієнт, який враховує відбиття світла від внутрішніх поверхонь приміщення. Його значення залежить від розмірів приміщення (довжини і ширини), глибини приміщення (відстані від вікна до протилежної йому стінки ззовні), висоти від верху вікна до рівня робочої поверхні, відстані розрахункової точки від вікна, середньозваженого коефіцієнта відбиття світла від стелі, стін, підлоги, який дорівнює 0,5 (для світлих приміщень з світлими меблями) [44].
Знайдемо наступні розміри даного приміщення:
глибина приміщення складає 5,80 м
відстань від рівня умовної робочої поверхні до верху вікна 0,1+1,9=2,0 м
відношення глибини приміщення до висоти від рівня умовної
робочої поверхні до верху вікна 5,80/2,0=2,9
відношення відстані розрахункової точки від зовнішньої стіни до глибини приміщення 4,00/5,80=0,69
відношення довжини приміщення до його глибини 5,80/3,60=1,61
З таблиці методичної вказівки [44] знаходимо r1
=1,90
Знайдемо . Для цього необхідно мати наступні розміри приміщення:
відношення довжини приміщення до його глибини 5,80/3,60=1,61 м
відношення глибини приміщення до висоти від рівня умовної робочої поверхні до верху вікна 5,80/2,0=2,9
Знайдемо . З таблиці методичної вказівки [44], використовуючи метод екстраполяції, бачимо наступне: 
Повертаючись до формули будемо мати наступне

Порівнюючи значення нормативного коефіцієнта природного освітлення і фактичного можна зробити висновок, що фактичне значення КПО майже в 1,9 рази не відповідає нормативному значенню (еф
<ен
), тобто у досліджуваному приміщенні катастрофічно недостатньо природне освітлення на робочих місцях, віддалених від вікна. Тому навіть у денну пору у приміщенні горять лампи штучного освітлення.
Дослідимо достатність штучного освітлення та порівняємо фактичне значення освітлення, яке створюється наявними у приміщенні джерелами з нормативним.
Нормативне значення освітлення для адміністративно-управлінських приміщень при загальному освітленні за СніП 11479 складає при використанні ламп розжарювання 200 люкс [55].
Ен
=200 люкс
Значення фактичного освітлення Еф у приміщенні можна знайти використовуючи метод коефіцієнта використання світового потоку за формулою (4.3) [44]:
, (4.3)
де F світловий потік лампи. Лампа потужністю 100 Вт створює світловий потік у 1450 лм (F = 1450 лм );
S площа приміщення, м2
;
Z коефіцієнт нерівномірності освітлення, для ламп розжарювання складає 1,15;
N кількість світильників, шт (N = 2);
n кількість ламп у світильнику, шт (n = 3);
К коефіцієнт запасу, К = 1,52;
= 0,5, це коефіцієнт використання світлового потоку.
Для світильників, які традиційно використовуються в адміністративних будівлях, для традиційних розмірів приміщення і кольорового оформлення коефіцієнт використання може набувати значень у межах 0,4 0,6.

Порівнюючи нормативне значення освітлення з фактичним, можна зробити висновок про неефективність штучного освітлення (Еф < Ен) і про необхідність додаткових заходів щодо поліпшення штучного освітлення у досліджуваному приміщенні.
Дослідимо достатність вентиляції у приміщенні. Відповідно до СніП 2.09.0487 об'єм виробничого приміщення, що припадає на кожного працюючого, повинен складати не менше 40 м3
[54].
Розрахуємо об'єм приміщення, що припадає на кожного працюючого:
V(1 працівника) = (Sпідлоги
* H) /N= (3,60*5,80*2,80): 5 = 11,70 м3
.
 Це не відповідає СНіП 2.09.0487 [54]. Тому для нормальної роботи у приміщенні необхідно забезпечити постійний повітрообмін за допомогою вентиляції не менше ніж I1
= 30 м3
/год на кожного працюючого.Ln = I1
*n = 30*5 = 150 (м3
/час) (4.4)
 
h = 2,0

h1
= 2,0 – h2 >
h1
= 0,053* h2
1,053* h2
= 2,0 > h2
= 1,90 > h1
= 0,10
Фактичний повітрообмін, враховуючи, що від ј до 1/2 робочого часу по черзі відкриті то половинку вікна, то вхідні двері в коридор, можна розрахувати за формулою [44]:
 , (4.5)
де = 0,55 коефіцієнт витрати повітря;
F площа відкриваємого вікна або вихідного отвору двері в коридор, через який буде виходити повітря;
F= 1,4 *1,9*0,5=1,33 м2
Формула, за якою можна розрахувати швидкість виходу повітря через половинку вікна, або через відкриті двері (вентиляційний канал), м/с.
(4.6)
де g прискорення вільного падіння, g=9,8 м/с2
;
Н2
тепловий напір, під дією якого буде здійснюватися вихід повітря з кватирки або через вентиляційний канал;
) (4.7)
де h2
висота від площини однакових тисків до центра відкриваємої половинки вікна. Відстань від площини однакових тисків до центрів верхнього і нижнього прорізів обернено пропорційна квадратам площ цих прорізів;
Теплий період:
= ,
об’ємна вага повітря ззовні приміщення, кгс/см3
;
= ,
об’ємна вага повітря зсередини приміщення, кгс/см3
;
h2
= 0.665 = 0,665 * ( 1,17 – 1,16 ) = 0,00665

Iфакт_тепл
= 1,33*0,55*0,3352*3600 /2= 441,35 (м3
/год)
Холодний період:
= ,
об’ємна вага повітря ззовні приміщення, кгс/см3
;
= ,
об’ємна вага повітря зсередини приміщення, кгс/см3
;
= 0,665 * ( 1,33 – 1,20 ) = 0,0865

Iфакт_хол
= 1,33*0,55*1,187*3600/10 = 312,6 (м3
/год)
Порівнюючи значення фактичного повітрообміну і необхідного визначимо (без врахування тепловиділення комп’ютерної техніки):
у холодний період року (половинка вікна відкрита на 10%, двері закриті) вентиляція занадто ефективна Іфакт_хол > Інорм(312,6>150)
у теплий період року (половинка вікна відкрита на 50% та відкриті двері) вентиляція також занадто ефективна Іфакт_тепл > Інорм(441,35>150)
Оскільки повітрообмін в приміщенні організований з організацією штучних протягів, слід запропонувати заходи щодо її поліпшення. Оцінимо метеорологічні умови на робочих місцях.
Порівняймо фактичні дані нормованих параметрів мікроклімату з нормованими за ГОСТ 12.1.00588, які відображені в таблиці 4.1 [18].
Таблиця 4.1
Оцінка метеорологічних умов на робочих місцях
| Параметри мікроклімату |
Фактичне значення |
Оптимальне
значення за ГОСТ 12.1.00588
|
Допустиме
значення за ГОСТ 12.1.00588
|
Для холодного періоду:
Температура, С
Відносна вологість, %
Швидкість переміщення повітря, м/с
|
22 24
50
1,18
|
2124
4060
0,1
|
2025
4060
не більше 0,2
|
Для теплого періоду:
Температура, С
Відносна вологість, %
Швидкість переміщення повітря, м/с
|
28 30
50
0,335
|
22 – 25
40 – 60
не більше 0,2
|
21 – 28
не більше 60
0,1 – 03
|
Таблиця 4.2
Підсумкова таблиця санітарно-гігієнічних умов праці
| № |
Параметр |
Значення параметру |
Нормативні документи |
| Факт |
Норма |
| 1 |
Освітлення, лк |
120,77 |
200 |
СНіП ІІ479 |
| 2 |
Значення КЕО, % |
0,69 |
1,19 |
СНіП ІІ479 |
| 3 |
Загазованість, мг/м3 |
– |
– |
ГОСТ 12.1.005.88 |
| 4 |
Запилення, мг/м3 |
– |
– |
ГОСТ 12.1.005.88 |
| 5 |
Температура, °С:
взимку
влітку
|
22 24
28 – 30
|
2025
2128
|
ГОСТ 12.1.005.88
ГОСТ 12.1.005.88
|
| 6 |
Відносна вологість, % |
50 |
4060 |
ГОСТ 12.1.005.88 |
| 7 |
Швидкість руху повітря, м/с |
0,335 1,18 |
0,10,2 |
ГОСТ 12.1.005.88 |
| 8 |
Шум, дБА |
50 |
60 |
ГОСТ 12.1.009.83 |
Таким чином, проведений аналіз показує, що в приміщенні бухгалтерії підприємства не виконуються вимоги інструктивних документів по охороні праці в частинах:
- поганої організації природної вентиляції в приміщенні, яка організується за рахунок відкриття половинки металопластикового вікна та вхідної двері в приміщення, оскільки в приміщені немає системи воздуховодів витяжної вентиляції. Це створює протяги та підвищену захворюваність і психологічні конфлікти між співробітниками, які сидять біля вікна на проході. При поганій організації природної вентиляції в приміщенні відсутня штучна вентиляція та охолодження зовнішнього повітря, що приводить до підвищених температур влітку;
- недостатнього рівня природного освітлення в приміщенні та недостатній рівень штучного освітлення для столів, які розташовані якнайдальше від вікна.
Що стосується пожежної безпеки в даному приміщенні, то необхідно зазначити, що згідно з ОНТП 2486 [46] воно відноситься до категорії В, оскільки в ньому знаходяться: дерев'яні меблі, паперова документація, що є потенційними факторами виникнення пожежі. За Сніп 2.01.02.85 [58] будівля, де знаходиться дане приміщення відноситься до другого ступеню вогнестійкості. Треба зазначити, що не розроблено план евакуації з даного приміщення у випадку пожежі.
4.3 Розробка заходів по охороні праці
І. Неефективність штучного освітлення.
Для освітлення даного приміщення використовуються лампи розжарювання потужністю 100 Вт, кількість можливо використовуваних ламп у світильнику складає 3 шт., а використовуються лише 2. Для поліпшення штучного освітлення в даному приміщенні пропонуємо замінити світильники та використовувати люмінесцентні лампи з світловим потоком 2000лм у кількості, що складає 8( по 4 лампи у 2х світильниках) [44].

Отже, у такому разі штучне освітлення буде ефективним, що доведено відповідними розрахунками.
2. Неефективність вентиляції (аерації) в теплий та холодний періоди року.
Для покращення природної вентиляції пропонуємо впровадження кондиціонерів (спліт систем) з системою як охолодження , так і підігріву повітря.
Split (англ.) – роздільний. Спліт-системи складаються з двох частин: внутрішній блок, що знаходиться в приміщенні, і зовнішній блок, що монтується назовні. Такі системи сьогодні є лідерами продажів. Переваги:
блоки з'єднуються шлангами, трубками та електричними дротами, які можна легко приховати естетичним коробом, або вмонтувати у стіну
монтаж внутрішнього блока можна здійснювати у будь-якому зручному місці кімнати
найбільш шумний вузол – компресор, знаходиться у зовнішньому блоці, отож шум від спліт-системи значно нижчий, ніж від віконного кондиціонеру. Внутрішній блок працює майже безшумно
великій вибір внутрішніх блоків (вони можуть монтуватися: на стіну, на підлогу, на стелю, у вигляді окремої колони, у підвісну стелю, тощо) дозволяє влучно інтегрувати кондиціонер до дизайну та призначення приміщення
повітря можна спрямовувати у необхідному напрямку і з необхідною силою
Потужність по “виробництву холоду “кондиціонером прийнято вимірювати в BTU. Це британська теплова одиниця, 1 BTU = 0.293 Вт.
Для визначення необхідної для охолодження приміщення потужності кондиціонера слід розрахувати сумарне надходження тепла до приміщення, приблизно враховуючи тепло від сонячних променів, освітлення, людей, оргтехніки, тощо. Обрана модель кондиціонера повинна давати таку саму, або навіть дещо вищу потужність. У великому приміщенні можна встановлювати декілька внутрішніх блоків.
В результаті розрахунків надлишкової тепловіддачі в приміщенні бухгалтерії ТОВ «Металоіндустрія Плюс» на 2 поверсі 2 поверхового будинку, виконані калькулятором фірми по продажу кондиціонерів за допомогою Інтернетмережі, вибраний 1 кондіціонер (Рис.4.6).

Рис.4.6 Вибрані для установки потолочні спліт-системи кондиціонеру Fuji RC54R Потужність (кВт): 3,9 5,4
На рис.4.6 показані вибраний тип кондиціонеру для зняття надлишкового тепла у приміщенні:
- довжина 5,8 м, ширина 3,6 м (площа 20,9 м2)
- висота стель – 2,8 м (об”єм приміщення – 58,5 м3)
в приміщенні розташовані 5 комп’ютерних комплекса , 1 ксерокс, 2 мережевих принтера та 2 прилади забезпечення безперебійного електричного живлення
- 1 вікно приміщення виходить не на сонячну сторону будинку
- в кімнаті встановлене штучне освітлення газорозрядними лампами з мінімальним нагрівом на стелях та 5 настільних ламп з лампами накалювання на робочих місцях (5 *75 вт)
Процедура розрахунків надходження тепла в операційний зал управління виглядає таким чином [18]:
, ккал/год (4.8)
де Qобор – виділення тепла від устаткування:
Qобор = 860*n*P*k1*k2. , ккал/год (4.9)
де n = 5, середня працююча кількість устаткування
Р= 0,25 квт – середня теплова потужність одиниці обладнання
к1 = 0,8 – коефіцієнт використання установленої потужності
к2 = 0,5 – коефіцієнт одночасної роботи устаткування
860 – коефіцієнт відношення між потужністю обладнання і кількістю виділеного тепла при переході електричної енергії в теплову (1 квт = 860 ккал/год)
Підставляємо чисельні значення у формулу (4.2):
Qобор = 860*5*0,25*0,8*0,5 = 430 ккал /год
Qлюд – надходження тепла, зумовлене працюючими людьми:
Qлюд = N*q (4.10)
де N = 5 чоловік, які одночасно знаходяться в операційному залі банку;
q = 125 ккал/год – середня кількість тепла, що виділяється однією людиною;
Підставляємо чисельні значення в формулу (4.3):
Qлюд = 5*125 = 625 ккал/год
Qосвітл – надходження тепла від приладів освітлення
Qосвітл = 860* N1 * к4 (4.11)
Де N1 = 0,075*5 = 0,375 квт – сумарна потужність ламп накалювання (кількість ламп помножених на їх потужність)
к4 = 0,8 – коефіцієнт одночасного використання
Підставляємо чисельні значення в формулу (4.11):
Qосвітл = 860*0,375 * 0,8 = 258 ккал/год
Qрад = 135 ккал/год – надходження тепла через зовнішні огородження конструкцій від сонячної радіації (значення для західної півкулі 50широти).
Таким чином, сумарний поток тепловиділення буде становити:
Qнадх = 430 + 625 + 258 + 135 = 1448 ккал/год (або 1448/860 = 1,7 квт)
Зробимо розрахунок необхідного повітрообміну за надлишком тепла в приміщенні бухгалтерії за формулою:
, м3/час (4.12)
де С = 0,24 ккал/кг*град – питома теплоємність повітря;
ρ = 1,3 кг/м3 – щільність повітря
tвід – температура повітря, що видаляється
tприпл – температура припливного повітря ( на 8 градусів нижче)
Результати розрахунку по формулі (4.12):

Що відповідає зробленим вище розрахункам по ефективності повітрообміну в приміщення за рахунок відкритого вікна.
Таким чином, для підтримки встановлених параметрів мікроклімату в операційному залі управління необхідно 1 потолочних спліт-кондиціонера Fuji RC54R Потужність (кВт): 1,9 3,0 з регульованою продуктивністю від 80 до 500 м3/год.
4.Подамо розроблений план евакуації з даного приміщення на випадок виникнення в ньому пожежі.
Оцінка пожежної безпеки.
Відповідно до ОНТП 2486 [46] бухгалтерія по вибуховій і пожежній безпеці відноситься до категорії В (робота з непальними речовинами і матеріалами в холодному стані). Можлива причина пожежі в приміщенні – порушення правил техніки безпеки, несправність електроприладів. Існує охоронно-пожежна сигналізація. У випадку пожежі можна також зв'язатися з пожежною охороною.
ВИСНОВКИ
Економічна діагностика ефективності та результативності діяльності підприємства ТОВ “Металоіндустрія Плюс» у 2005 – 2008 роках показала:
- валюта балансу підприємства за 3 роки діяльності зросту практично в 9 разів, що свідчить про позитивну тенденцію росту підприємства;
- підприємство є низько платоспроможним та слабо-ліквідним, маючи недостатній запас ліквідності та відсутність запасу стійкості по забезпеченню запасів та оборотного капіталу власними коштами;
- підприємство має недостатній рівень автономії (0,3 замість 0,5) за рахунок низького рівня власного капіталу та високого рівня використання позикових коштів комерційних кредитів та авансів;
- підприємство розвивається циклами, маючи тенденцію до підвищення валюти балансу за рахунок нарощення дебіторсько-кредиторської заборгованості та прибутку у власному капіталі;
- ресурсовіддача активів та основних засобів підприємства при зростанні валюти балансів не знижується, що свідчить про ефективність політики оновлення основних засобів на нових технологічних принципах та суттєвого підняття частки активних основних фондів нового покоління;
- високий рівень рентабельності роботи підприємства значно підвищив доходність пайових часток у 2006 2008 році, що привело до появи інвестиційного інтересу по вкладанню коштів інвесторів в підприємство;
- у 2007 році різко зріс рівень ділової активності підприємства, про що свідчить зменшення періоду оборотності оборотних коштів та дебіторсько-кредиторської заборгованості до 22 30 днів, це значно перевищує стандарті норми оборотності (не більше 120 днів на оборот).
Тобто, підприємство знаходиться в сегменті зростання життєвого циклу розвитку підприємства і повинно терміново розробити стратегію розвитку підвищення рівнів ліквідності та платоспроможності підприємства.
В якості основної стратегії розвитку підприємства найбільш реальним шляхом є використання високих показників рентабельності капіталу підприємства (ROE =67 – 125 % річних), виявлених на стадії економічної діагностики, для залучення зовнішнього інвестування в статутний капітал підприємства. Залучення зовнішнього інвестиційного капіталу в статутний капітал підприємства доцільно провести за рахунок реорганізації товариства з обмеженою відповідальністю ТОВ „Металоіндустрія Плюс” в форму закритого акціонерного товариства (ЗАТ) чи відкритого акціонерного товариства (ВАТ) з емісією акцій на умовах:
засновники ТОВ „Металоіндустрія Плюс” отримують акції на суму пайових долей в існуючому статутному капіталі 29 тис.грн. та на зароблену суму нерозподіленого прибутку 518,8 тис.грн. за час діяльності підприємства (занулення прибутку нового підприємства при реорганізації) на загальну суму 550 тис.грн.;
зовнішні інвестори вносять в новий статутний фонд ЗАТ чи ВАТ розміром 1250 тис.грн. додаткові кошти на суму 700 тис.грн. відповідно розподілу при підписці на акції;
розрахункова прогнозна рентабельність акцій повинна становити не менше 40% річних, що в 2,5 раза вище альтернативної депозитної доходності капіталу, вкладеного в комерційні банки у 2008 році.
Як показали результати комп’ютерного моделювання прогнозів зміни фінансових показників діяльності ТОВ – ВАТ „Металоіндустрія Плюс”, за рахунок додаткового росту власного капіталу підприємства на 700 тис.грн. при додатковій емісії акцій та реорганізації із форми товариста з обмеженою відповідальністю в форму акціонерного товариства:
1. Коефіцієнт абсолютної ліквідності з рівня 0,043 0,127 у 2007 2008 роках зростає до рівня 0,272, що відповідає нормативно стійкому діапазону 0,2 – 0,35.
2. Коефіцієнт строкової ліквідності з рівня 0,4 – 0,6 у 2007 – 2008 роках зростає до рівня 0,967, що відповідає нормативно стійкому діапазону 0,7 – 0,8.
3. Коефіцієнт загальної ліквідності з рівня 0,99 – 0,167 у 2007 – 2008 роках зростає до рівня 1,874, що відповідає нормативно стійкому діапазону 1,5 – 2,0.
4. Коефіцієнт автономності джерел активів з рівня 0,21 – 0,3 у 2007 – 2008 роках зростає до рівня 0,556, що відповідає нормативно стійкому діапазону > 0,5.
5. Показник фінансової стійкості по покриттю запасів з рівня “Кризовий стан” (нестача власних та залучених коштів для покриття виробничих запасів) у 2007 – 2008 роках змінюється до рівня „Абсолютно стійкий фінансовий стан” ( для покриття виробничих запасів достатньо власного оборотного капіталу).
6. Прогнозний рівень рентабельності власного капіталу, який зросте з рівня 582 тис.грн. (2008 рік) до рівня 1 705 тис.грн. (прогноз початку 2009 року), знизиться з рівня 67 125 % у 2007 2008 роках і становитиме 40,6%, що відповідає
умовам залучення коштів інвесторів при додатковій емісії акцій.
Практична цінність отриманих результатів кваліфікаційної роботи полягає в наданні керівництву ТОВ „Металоіндустрія Плюс” об’єктивних даних аналізу поточного економічного стану підприємства та основних негативних тенденцій в його діяльності, а також обґрунтування доцільності запропонованих заходів по подоланню негативних тенденцій та підвищенню рівня результативності та ефективності діяльності підприємства.
СПИСОК ВИКОРИСТАНОЇ ЛІТЕРАТУРИ
1. Господарський кодекс України від 16 січня 2003 року N 436IV(діє з 01.01.2004) // Із змінами і доповненнями, внесеними Законами України від 9 січня 2007 року N 549V, ОВУ, 2007 р., N 8, ст. 276
2. ЗАКОН УКРАЇНИ «Про господарські товариства» // від 19 вересня 1991 року N 1576XII (Із змінами і доповненнями, внесеними Законами України станом на 19 лютого 2004 року N 1519IV)
3. Положення (стандарт) бухгалтерського обліку 1 "Загальні вимоги до фінансової звітності", Наказ Мінфіна України № 87 від 31.03.1999 + № 304 від 30.11.2000.
4. Положення (стандарт) бухгалтерського обліку 2 "Баланс", Наказ Мінфіна України № 87 від 31.03.1999 + № 304 від 30.11.2000.
5. Положення (стандарт) бухгалтерського обліку 3 " Звіт про фінансові результати «, Наказ Мінфіна України № 87 від 31.03.1999 + № 304 від 30.11.2000.
6. Андрєєва Г.І. Економічний аналіз: навч.метод. посібник / Г. І. Андрєєва. – К.: Знання, 2008. – 263 с.
7. Безпека праці: ергономічні та естетичні основи: навч. посібник / С. О. Апостолюк [та ін.]. – 2ге вид., стер. – К.: Знання, 2007. – 215 с.
8. Бланк И.А. Управление прибылью / И.А. Бланк. – изд. 3е, перераб. и доп. – К.: НикаЦентр, 2007. – 768 с.
9. Бланк И.А. Финансовая стратегия предприятия: учебный курс / И. А. Бланк. К.: НикаЦентр, 2006. 518 с.
10.Богатко А.Н. Основы экономического анализа хозяйствующего субъекта. М.: Финансы и статистика, 2000. 208 с.
11. Бойко В.В. Економіка підприємств України. – Дніпропетровськ, НГАУ, 2002. – 535 с.
12. Бойчик І.М. Економіка підприємства: навч. посіб. / І. М. Бойчик. – Вид. 2ге, доповн. і переробл. – К.: Атіка, 2007. – 528 с.
13. Грещак М.Г., Гребешкова О.М.,Коцюба О.С. Внутрішній економічний механізм підприємства: Навч.посібник. – К.: КНЕУ,2001 – 228 с.
14. Гетьман О.О., Шаповал В.М. Економіка підприємства: навчальний посібник для студентів вищих навчальних закладів. Київ, Центр навчальної літератури, 2006. – 488 с.
15. Гетьман О.О. Економічна діагностика: навч. посіб. / О.О. Гетьман, В. М. Шаповал; Мво освіти і науки України, Український державний хімікотехнологічний унт, Дніпропетровський унт економіки та права. – К.: Центр навчальної літератури, 2007. – 307 с.
16. Герасимова С.В. Управління інвестиційною діяльністю акціонерних товариств: [монографія] / С. В. Герасимова. – К.: Знання, 2006. – 407 с.
17. Гигиеническое нормирование факторов производственной среды и трудового процесса / Под ред. Измерова Н.Ф., Каспарова А.А. АМН СССР. М.: Медицина, 1986. – 128 с.
18. Гогіташвілі Г.Г. Основи охорони праці: навч. посібник / Г.Г. Гогіташвілі, В. М. Лапін. – 4те вид., виправл. і доповн. – К.: Знання, 2008. – 302 с.
19. ГОСТ 12.0.00374. Опасные и вредные производственные факторы. Классификация.
20. Денисенко Г.Ф. Охрана труда: Учебное пособие для инженерно экономических специальностей вузов. М.: Высшая школа. 1985. – 205 с.
21. ДСН 3.3.6.04299. Санітарні норми мікроклімату виробничих приміщень.
22. Економіка підприємства: Підручник/ Ред. С.Ф. Покропивний. 3тє вид., без змін. К.: КНЕУ, 2006. 528 с.
23. Економіка підприємства: Навч. посібник/ Ред. А.В. Калина. К.: МАУП, 2006. 351 с
24. Економіка підприємства: навч. посібник / за ред. А. В. Шегди ; Київський нац. унт ім. Тараса Шевченка. – 2ге вид., стер. – К.: ЗнанняПрес, 2002. – 335 с.
25. Економіка підприємства: Підручник/ Ред. А.В. Шегда. К.: Знання, 2006. 614 с
26. Економіка підприємства: опорний конспект лекцій / Н.М. Ушакова, Л.О. Лігоненко, М.М.Скотнікова – К., КНТЕУ, 2002. – 187 с.
27. Економіка підприємства: Навч.метод. посібник для самост. вивч. дисц./ І.О. Швиданенко, С.Ф. Покропивний, С.М. Клименко та ін. К.: КНЕУ, 2000 248 с
28. Економіка виробничого підприємства: Навчальний посібник / За ред. І. М. Петровича. – К.: Знання, 2001. – 405 с.
29. Економіка підприємств: Навчальний посібник / Ред. П.С. Харів. – Тернопіль: Економічна думка, 2000. – 500 с.
30. Захарчин Г.М. Основи підприємництва: навч. посібник / Г.М. Захарчин. – К.: Знання, 2008. – 438 с.
31. Ізмайлова К.В. Фінансовий аналіз: Навч.посібник. К: МАУП,2000. – 152 c.
32. Кармазін В.А. Економічний аналіз: практикум / В.А. Кармазін, О. М. Савицька. – К.: Знання, 2007. – 255 с.
33. Кобевник В.Ф. Охрана труда – К.: Выща школа, 1990. – 286 с.
34. Ковалев В.В. Введение в финансовый менеджмент. М.: «Финансы и статистика», 2001. 276 с.
35. Коробов М.Я. Фінансово-економічний аналіз діяльності підприємств.Київ:Знання,2002.294 с.
36. Коніщева Н., Балашова Р., Гураль В. Аналітичні підходи до оцінки ефективності діяльності підприємств // Економіст. – 2000. – №12. – с. 4447.
37. Контролінг: навчальний посібник/ Г. О. Швиданенко [та ін.] ; Мво освіти і науки України, Держ. вищ. навч. заклад "Київський нац. екон. унт ім. В. Гетьмана". – К.: КНЕУ, 2008. – 257 с.
38. Крайник О.П., Клепикова З.В. Фінансовий менеджмент. К. Львів: “Дакор”, “Інтелект”, 2001. 207 c.
39. Крамаренко Г.О., Чорна О.Є. Фінансовий менеджмент. Киів: Центр навчальної літератури, 2006. –520 с.
40. Крамаренко Г.О. Фінансовий аналіз та планування. – Дніпропетровськ: Видавництво ДАУБП, 2001. – 224 с.
41. Куденко Н.В. Маркетингові стратегії фірми – Київ, КНЕУ, 2002. – 245 с.
42. Лахтіонова Л.А. Фінансовий аналіз суб'єктів господарювання. Київ: КНЕУ,2001.387 с.
43. Митрофанов Г.В., Кравченко Г.О., Барабаш Н.С. Фінансовий аналіз. Київ: Київ. нац.торг.екон.унт,2002.301 с.
44. МЕТОДИЧНІ ВКАЗІВКИ до написання розділу "Охорона праці" в дипломних роботах для студентів економічних спеціальностей усіх форм навчання // Укладач А.Ф. Денисенко. Суми: Видво СумДУ, 2008. – 39 с.
45. Наливайко А.П. Теорія стратегії підприємства. Сучасний стан та напрямки розвитку: Монографія. — К.: КНЕУ, 2001. — 227 с.
46. ОНТП 2486 (общесоюзные нормы технологического проектирования). Определение категорий помещений по взрывной и пожарной опасности.
47. Оценка бизнеса: Учебник / Под.ред. А.Г. Грязновой, М.А. Федотовой. М.: Финансы и статистика, 2003. 512 с.
48. Павловська О.В., Притуляк Н.М., Невмержицька Н.Ю.Фінансовий аналіз.Київ:КНЕУ,2002.388 с.
49. Подольська В.О. Фінансовий аналіз: навч. посіб. / В.О. Подольська, О.В. Яріш ; Мво освіти і науки України, Полтавський унт споживчої кооперації України. – К.: Центр навчальної літератури, 2007. – 488 с.
50. Попович П.Я. Економічний аналіз діяльності суб'єктів господарювання. Тернопіль: Економічна думка,2001.454 с.
51. Примак Т.О. Економіка підприємства: Навчальний посібник. – К.: Вікар, 2001. – 178 с.
52. Савчук В.П. Финансовый менеджмент предприятий – К.: Издательский дом «Максимум», 2001. – 600 с.
53. Савицька Г.В. Економічний аналіз діяльності підприємства. Київ: Знання,2005.662 с.
54. СНиП 2.09.0487. Административные и бытовые здания // переизданием СНиП 2.09.0487 с изменением № 1, 2, утвержденными соответственнопостановлениями Госстроя России от 31.03.94 № 1823 и Минстроя России от 24.02.95 № 1821, введенными в действие с 1 июля 1994 г. и 1 марта 1995 г.
55. СНиП ІІ479. Естественное и искусственное освещение // Утверждены постановлением Государственного комитета СССР по делам строительства
от 27 июня 1979 г. № 100
56. СНиП 2.04.0591. Отопление, вентиляция и кондиционирование воздуха.
57. СНиП 2.09.0285. Производственные здания промышленных предприятий. Нормы проектирования.
58. СНиП 2.01.0285. Противопожарные нормы проектирования зданий и сооружений.
59. Слав’юк Р.А. Фінанси підприємств: Навч. посібник. – Київ: ЦУЛ, 2002. – 460 с.
60. Таркуцяк А.О. Фінансовий аналіз та управлінські рішення (на прикладі роботи вищого навчального закладу).Київ: Вид-во Європ. унту,2001.201 с.
61. Терещенко О.О. Фінансова санація та банкрутство підприємств: Навч.посібник. – К.: КНЕУ, 2000. – 412 с.
62. Філімоненков О.С. Фінанси підприємств: навч. посібник / О.С. Філімоненков. – вид., 2ге переробл. і доповн. – К.: Кондор, 2007. – 400 с.
63. Філіна Г.І. Фінансова діяльність суб’єктів господарювання: навч. посібник для студ. вищих навч. закладів / Г. І. Філіна. – К.: Центр учбової літератури, 2007. – 320 с.
64. Фінанси підприємств: Підручник / Кол. авт. під кер. проф. А. М. Поддєрьогіна. – К.: КНЕУ, 2004. 546 с.
65. Фінансовий менеджмент: Підручник/Кер. кол. авт. і наук. ред проф.А.М.Поддєрьогін. К.: КНЕУ, 2005. 536 с.
66. Фомин Я.А. Диагностика кризисного состояния предприятия: Учеб.Пособие для вузов. – М.: ЮНИТИДАНА, 2003. – 349 с.
67. Цигилик І.І., Кропельницька С.О.,Мозіль О.І Економічний аналіз господарської діяльності підприємства.Київ:ЦУЛ,2004.123 с.
68. Шеремет О.О. Фінансовий аналіз.Київ:Кондор,2005.196 с.
69. Шеремет А.Д. Комплексный анализ хозяйственной деятельности: учебник/ А. Д. Шеремет. – Изд. доп. и испр. – М.: ИНФРАМ, 2008. – 416 с.
70. Швиданенко Г.О. Управління капіталом підприємства: навч. Посібник / Г. О. Швиданенко, Н. В. Шевчук ; Мво освіти і науки України, Держ. вищ. навч. заклад "Київський нац. екон. унт ім. В. Гетьмана". – К.: КНЕУ, 2007. – 436 с.
71. Швиданенко Г.О. Бізнесдіагностика підприємства / Г. О. Швиданенко, А. І. Дмитренко, О.І. Олексюк ; Мво освіти і науки України, Держ. вищ. навч. заклад "Київський нац. екон. унт ім. В. Гетьмана". – К., 2008. – 340 с.
72. Шиян Д.В., Строченко Н.І. Фінансовий аналіз.Київ: А.С.К.,2005.240 с.
73. Шморгун Н.П. Фінансовий аналіз: навч. посібник для студ. вищих навчальних закладів / Н.М. Шморгун, І.В. Головко ; Мво освіти і науки України, Київський нац. унт ім. Т. Шевченка. – К.: Центр навчальної літератури, 2006. – 525 с.
74. Шубіна С.В. Економічний аналіз: практикум / С.В. Шубіна, Ж.І. Торяник. – К.: Знання, 2007. – 230 с.
75. Экономика предприятия (фирмы): учебник/ под ред. О.И. Волкова, О.В. Девяткина. – 3е изд., перераб. и доп. – М.: ИНФРАМ, 2007. – 601 с.
76. http://www.smida.gov.ua Офіційний сайт фінансової звітності ВАТ Державної комісії по цінним паперам та фондовому ринку України
77. http://www.miplus.com.ua Офіційний сайт ТОВ «Металоіндустрія Плюс», 2008
ДОДАТКИ
Додаток А
Таблиця А.1
Балансові звіти ТОВ „Металоіндустрія Плюс” за 2005 2008 роки

Продовження табл.А.1

Додаток Б
Таблиця Б.1
Звіти про фінансові результати ТОВ „Металоіндустрія Плюс” за 2005 2008 роки

Додаток В

Рис.В.1. Динаміка обсягів валюти і характерних агрегатів активів та пасивів балансу ТОВ „Металоіндустрія Плюс” у 2005 –2008 роках

Рис.В.2. Динаміка обсягів доходів, витрат та чистого прибутку ТОВ „Металоіндустрія Плюс” у 2005 –2008 роках

Рис.В.3. Динаміка структури характерних агрегатів активів балансу ТОВ „Металоіндустрія Плюс” у 2005 –2008 роках

Рис.В.4. Динаміка структури характерних агрегатів пасивів балансу ТОВ „Металоіндустрія Плюс” у 2005 –2008 роках

Рис.В.5. Динаміка показників ліквідності балансу ТОВ „Металоіндустрія Плюс” у 2005 –2008 роках

Рис.В.6. Динаміка показника співвідношення дебіторської та кредиторської заборгованостей в балансі ТОВ „Металоіндустрія Плюс” у 2005 –2008 роках

Рис.В.7. Динаміка коефіцієнтів фінансової незалежності (автономії) та забезпечення оборотних коштів в балансі ТОВ „Металоіндустрія Плюс” у 2005 –2008 роках

Рис.В.8. Динаміка показників ресурсовіддачі активів та фондовіддачі основних засобів в ТОВ „Металоіндустрія Плюс” у 2005 –2008 роках

Рис.В.9. Динаміка показників фінансової стійкості по покриттю запасів усіма видами ресурсних джерел в ТОВ „Металоіндустрія Плюс” у 2005 –2008 роках

Рис.В.10 Динаміка показників ділової активності (строку оборотності агрегатів активів) в ТОВ „Металоіндустрія Плюс” у 2005 –2008 роках

Рис.В.11 Динаміка показників рентабельності активів та власного капіталу по чистому доходу від реалізації в ТОВ „Металоіндустрія Плюс” у 2005 –2008 роках

Рис.В.12 Динаміка показників рентабельності активів та власного капіталу по чистому прибутку після оподаткування в ТОВ „Металоіндустрія Плюс” у 2005 –2008 роках
Додаток Г
Таблиця Г.1
Аналіз динаміки складу та структури майна підприємства ТОВ «Металоіндустрія Плюс» за 2005 2008 роки

Продовження табл.Г.1

Таблиця Г.2
Аналіз динаміки активів і фінансових результатів підприємства ТОВ «Металоіндустрія Плюс» за 2005 2008 роки

Таблиця Г.3
Характеристика основних засобів підприємства ТОВ «Металоіндустрія Плюс» за 2005 2008 роки

Додаток Д
Таблиця Д.1
Динаміка стійкості ТОВ «Металоіндустрія Плюс» до банкрутства

Додаток Ж
Таблиця Ж.1
Аналіз динаміки показників фінансової стійкості по покриттю запасів підприємства ТОВ «Металоіндустрія Плюс» за 2005 2008 роки

Таблиця Ж.2
Аналіз показників фінансової стійкості та платоспроможності підприємства ТОВ «Металоіндустрія Плюс»
за 2005 2008 роки

Продовження табл.Ж.2

Таблиця Ж.3
Аналіз динаміки показників ліквідності балансу підприємства ТОВ «Металоіндустрія Плюс» за 2005 2008 роки

Додаток К
Таблиця К.1
Аналіз динаміки показників рентабельності підприємства ТОВ «Металоіндустрія Плюс» за 2005 2008 роки

Таблиця К.2
Аналіз динаміки оборотності оборотних коштів підприємства ТОВ «Металоіндустрія Плюс» за 2005 2008 роки

Таблиця К.3
Аналіз динаміки оборотності джерел коштів підприємства ТОВ «Металоіндустрія Плюс» за 2005 2008 роки

Таблиця К.4
Аналіз динаміки прибутку підприємства ТОВ «Металоіндустрія Плюс» за 2005 2008 роки

Додаток Л
Результати прогнозування показників балансового звіту реорганізованого ВАТ „Металоіндустрія Плюс” у 2009 році
Таблиця Л.1

Продовження табл.Л.1

Таблиця Л.2
Результати прогнозування показників звіту про фінансові результати реорганізованого ВАТ „Металоіндустрія Плюс” у 2009 році

[1]
ГОСТ Р ИСО 90002001. Системы менеджмента качества. Основные положения исловарь. Госстандарт России. 2001.
|