Мобильная Тепловая Станция - это универсальный источник тепла, может работать в круглосуточном режиме и устанавливаться вне помещения. Важнейшими преимуществами МТС являются:
-компактность станции;
-возможность использования сыпучего и кускового топлива вперемешку по мере накопления;
-высокая производительность и экономичность при малом энергопотреблении;
-не требует помещения;
-легкость монтажа и перевозки.
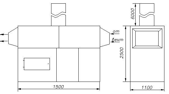
Схема МТС

Таблица
Технические характеристики МТС
| Мощность МТС, кВт |
200 |
Количество топлива в сутки:
-дрова, м3
;
-опилки, торф, тонн;
-каменный уголь, тонн;
|
3,0
1,25
0,78
|
| Масса установки, тонн |
2,8 |
Габаритные размеры, м
-длина
-ширина
-высота
|
1,5
1,1
2,5
|
Радиальный вентилятор
ВЦ - 14-46-5 №5, мощность, кВт
|
18,5
|
3.2.1 Компоновка распределителя
Компоновка распределителя сводится к определению его габаритных размеров. Габаритные размеры распределителя будем определять исходя из его площади.
Определим площадь распределителя.
V
F= _____
(3.7)
u
где V - объемный расход воздуха, м3
/ч;
u-скорость агента сушки, м/с.
Скорость агента сушки в распределителе принимаем равной 5 м/с.
Тогда
10000*5
F= ____________
= 0,5 м2
3600
-Определим размеры сторон распределителя:
F= а*в (3.8)
где а и в - соответственно размеры сторон распределителя, м.
а = 1м; в = 0,5м.
Принцип работы распределителя заключается в следующем:
Распределитель предназначен для изменения направления агента сушки в рулоне. Изменение в рулоне направления движения теплоносителя в данной установке регулируется при помощи клапанов 2, установленных в распределителе 1. Крайнее левое положение клапанов обеспечивает подвод теплоносителя со стороны вершин, крайнее правое положение обеспечивает подвод теплоносителя со стороны комлей. Воздух в распределитель подается мобильной тепловой станцией УТПУ - 200А.
3.5 Аэродинамический расчет
Аэродинамический расчет включает в себя определение потерь давления в циркуляционном кольце движения агента сушки внутри сушилки.
-Определим потери давления в воздуховоде на нагнетание (рис. ):
Рнач
общ1
= DP1
+ DP2
+ DPр
(3.21)
Участок 1.
1.Скорость воздушного потока u1
= 11м/с;
2.Принимаем диаметр воздуховода d1
= 0,355м;
3. По u1
и d1
находим R1
и Pg1
. [15]:
R1
= 3,5 Па п *
м
u1
2
112
Pg1
= _____
* r = _____
*1,2 = 72,6 Па
2 2
|
|
4.Местные сопротивления:
-Два отвода под a= 900
;ч/d = 3; G = 0.24.
-Диффузор F0
/F1
= 0,8 G = 0,04
Забиваем Сайты В ТОП КУВАЛДОЙ - Уникальные возможности от SeoHammer
Каждая ссылка анализируется по трем пакетам оценки: SEO, Трафик и SMM.
SeoHammer делает продвижение сайта прозрачным и простым занятием.
Ссылки, вечные ссылки, статьи, упоминания, пресс-релизы - используйте по максимуму потенциал SeoHammer для продвижения вашего сайта.
Что умеет делать SeoHammer
— Продвижение в один клик, интеллектуальный подбор запросов, покупка самых лучших ссылок с высокой степенью качества у лучших бирж ссылок.
— Регулярная проверка качества ссылок по более чем 100 показателям и ежедневный пересчет показателей качества проекта.
— Все известные форматы ссылок: арендные ссылки, вечные ссылки, публикации (упоминания, мнения, отзывы, статьи, пресс-релизы).
— SeoHammer покажет, где рост или падение, а также запросы, на которые нужно обратить внимание.
SeoHammer еще предоставляет технологию Буст, она ускоряет продвижение в десятки раз,
а первые результаты появляются уже в течение первых 7 дней.
Зарегистрироваться и Начать продвижение
5. DP1
= R1
l1
+ Pg1
åg (3.22)
Участок2.
1. Принимаем а2
= 1м, в2
= 0,3м.
2. Определяем площадь сечения воздуховода:
F2
= 1 * 0,3 = 0,3м2
.
3. Определяем скорость на выходе воздуховода:
где V - объемный расход воздуха, м3
/ч
F-площадь сечения воздуховода, м2
.
10000 * 0.3
u2
= ________________
= 9 м/с
3600
|
|
4. Определим d 2
экв
:
5. По u2
и d2
находим R2
и Pg2
.
6. R2
= 1,7 Па п *
м
7.
Находим потери давления на преодоление силы трения, Па:
R1
+ R2
3,5 + 1.7
R ср
= ------------- = ----------------- = 2.6 Па п*
м
2 2
|
|
Количество окон n = 4 отверстия.
1. Определим количество воздуха, выходящего из каждого окна:
V 10000
Vок
= ______
= __________
= 2500 м3
/ч
n 4
Vок
2500 *0,057
uок
= ----- = ---------------- = 12м/с
Fок
3600
|
|
9. Определим потери давления на преодоление местных сопротивлений: -дроссельный клапан, при a = 450
g = 140
DP2
= Rср
* l2
+ Pg2
(åg) (3.23)
DP2
= 2,6*8 + 48,6*14 = 701,2 Па
Потери давления в распределителе принимаем DPр
= 100 Па.
Рнач
общ1
=33,2 + 701,2 + 100 = 834,4Па
-Определим потери давления в воздуховоде на всасывание (рис.3.)
(3.24)
-Определим сопротивление слоя высушивающего материала DPм
[14]
DPм
= 9,81*10-6
(700 + 2,7 W1
)*Рс
2,465
*uм
1,18
*h*1,3 (3.25)
где - W1
- начальная влажность рулона, %;
Рс
- плотность рулона, кг/м3
;
h - высота рулона, м.
DPм
= 9,81*10-6
(700 + 2,7*30)*1212,465
*0,81,18
*1,1*1,3 = 1146,4 Па
-
Определим потери давления на участке 3
DP3
= R3
l3
+ Pg3
åg (3.26)
1. Принимаем а3
= 1м, в3
= 0,3м.
2. Определяем площадь сечения воздуховода:
F3
= 1 * 0,3 = 0,3м2
.
3. Определяем скорость на выходе воздуховода:
4. Определим d 3
экв
:
5.
По u3
и d3
находим R3
и Pg3
.R3
= 1,7 Па п *
м
Pg3
= 48,6 Па
Количество окон n = 4.
6. Определим потери давления на преодоление местных сопротивлений:
-выход из меньшего сечения в большее
F0
/F1
= 0,8 G = 0,04
DP3
= 1,7*8 + 48,6*0,04 = 15,5Па
-Определим потери давления на участке 4:
DP4
= R4
l4
+ Pg4
åg (3.27)
1. Скорость воздушного потока u4
= 11м\с
2. Принимаем диаметр воздуховода d4
= 0,355м.
3. По u4
и d4
находим R4
и Pg4
.
R4
= 3,5 Па п*м, Pg4
= 72,6 Па
4. Местные сопротивления:
диффузор F0
/F1
= 0,8G = 0,04
DP4
= 3,5*1,5 + 72,6*0,04 = 8,2 Па
Потери давления в распределителе принимаем DPр
= 100Па
Полученные и известные величины подставляем в формулу (3.24):
Р2
вс
общ
= 1,146 + 15,5 + 8,2 + 100 = 1270,1 Па
Сервис онлайн-записи на собственном Telegram-боте
Попробуйте сервис онлайн-записи VisitTime на основе вашего собственного Telegram-бота:
— Разгрузит мастера, специалиста или компанию;
— Позволит гибко управлять расписанием и загрузкой;
— Разошлет оповещения о новых услугах или акциях;
— Позволит принять оплату на карту/кошелек/счет;
— Позволит записываться на групповые и персональные посещения;
— Поможет получить от клиента отзывы о визите к вам;
— Включает в себя сервис чаевых.
Для новых пользователей первый месяц бесплатно.
Зарегистрироваться в сервисе
-Определим общие потери давления в сушильной установке:
Рс.у.
= Робщ1
нач
+ Робщ2
вс
(3.28)
Рс.у.
= 834,4 + 1270,1 = 2104,5 Па.
1. Проверяем на преодоление сопротивлений вентилятор теплогенератора УТПУ 200 А.
Сопротивление, которое должен преодолеть вентилятор теплогенератора равно (рис )
Рт
= DPр
+ DP3
+ DP4
+DPт
(3.29)
где DPр
- потери давления в распределителе, Па;
DP3
- потери давления на 3 участке СУ,Па;
DP4
- потери давления на 4 участке СУ,Па;
DPт
- потери давления в теплогенераторе, Па.
Движение агента сушки осуществляется через рулон сверху вниз
Рт
= DPт
+ DPр
+ DP1
+DP2
(3.30)
где DP1
- потери давления на 1 участке, Па;
DP2
- потери давления на 2 участке, Па;
Принимаем DPт
= 500Па по данным СКБТМ.
Рт
= 500 + 100 + 33,2 + 701,2 = 1334,4 Па
Принимаем к вентилятору большее давление Рт
= 1334,4 Па.
Окончательное давление вентилятора на преодоление сопротивления
теплогенератора УТПУ - 200А равно :
Рb
= 1,1 * Рт
= 1,1 * 1334,4 = 1467,8 Па.
Объёмный расход воздуха будет равен :
Vb
= 1,1*V = 1.1*10000 = 11000 м3
/г
Используя значения Рb
и Vb
из аэродинамических характеристик центробежного вентилятора ВЦ 14-46 №5 (работает с УТПУ -200 А), выясняем, что он преодолевает данное сопротивление при данном расходе.
2.Подбор вентилятора для отсоса агента сушки V = 11000м3
/ г, должен преодолеть сопротивление равное (рис. 3)
Ротс
= DPм
+ DP2
+ DP1
+DPр
(3.31)
где DPм
- потери давления через материал, Па;
DP2
- потери давления на 2 участке СУ,Па;
DP1
- потери давления на 1 участке СУ Па.
DPр
- потери давления в распределителе, Па;
Ротс
= 1146,4 + 701,2 + 33,2 + 100 = 1980,8 Па
Движение агента сушки осуществляется через рулон сверху вниз.
Ротс
= DPм
+ DP3
+ DP4
+DPр
(3.32)
Ротс
= 1146,4 + 15,5 + 8,2 + 100 = 1270,1 Па
Принимаем к вентилятору большее давление Ротс
= 1980,8 Па
Окончательное давление вентилятора равно:
Ротс
в
= 1,1* Ротс
= 1,1*1980,8 = 2178 Па
Объемный расход воздуха будет равен:
Vв
= 1,1*V = 1,1*10000 = 11000 м3
/г.
По Ротс
в
и Vв
подбираем вентилятор марки: ВР-45-6,3
-расчет мощностей потребляемой вентиляторами, Nв
, кВт [14]:
Рв
* Vв
Nв
=__________
hв
|
|
(3.33 )
где Рв
- давление, создаваемое вентилятором с десятипроцентным запасом , Па;
Vв
- расход воздуха, м3
/с;
hв
- коэффициент полезного действия вентилятора [15], принимаем hв
=0,46.
3*2178
Nв
=__________
= 14,2 кВт
0,46
|
|
-определим необходимую мощность электродвигателя Ngb
, кВт [14]:
Nв
* Кп
Ngb
=__________
hпер
|
|
(3.34)
где Кп
- коэффициент запаса мощности на пусковой момент. Кп
= 1,1 при Nb
> 5,0 кВт.
hпер
- коэффициент полезного действия передачи,
hпер
= 0,95 клиноременная передачи.
14,2* 1,1
Ngb
=__________
= 16,2 кВт
0,95
|
|
Принимаем к вентилятору ВР-45-6,3 электродвигатель марки 4А 160 М4 с Ngb
= 18,5 кВт и частотой вращения wgb
= 1465 мин -1
[16].
-расчет мощности Nb
, кВт [14]:
Рв
* Vв
Nв
=__________
hв
|
|
где hв
= 0,71 [16]; wb
= 1720 мин -1
1467,8*3
Nв
=__________
= 6,2 кВт
0,71
|
|
-необходимая мощность электродвигателя Ngb
,
кВт [14]:
Принимаем к вентилятору ВЦ-14-46 №5 электродвигатель марки 4А132М6 с Ngb
= 7,5 кВт и частотой вращения wgb
= 970 мин -1
. [16].
5.1.Расчет рыночной цены сушильной машины на стадии разработки
5.1.1Расчет цены затратным методом.
Рыночная цена проектируемой сушильной машины на стадии разработки будет вычисляться по следующей формуле:
Ц = с/с + Пр, руб (5.1)
где с/с - себестоимость материалов и комплектующих, руб;
Пр - прибыль от продажи машины, руб.
Прибыль (Пр) вычисляется исходя из необходимого уровня рентабельности.
Пр = с/с * Rпр
/100 (5.2)
где Rпр
- уровень рентабельности (рекомендуется принимать в пределах от 15 до 40 %)
5.1.2.Расчет себестоимости сушильной машины
Материальные затраты представлены в таблице 5.1., в которой содержатся материалы и комплектующие сушильной машины, а также их количество и стоимость за единицу.
ТАБЛИЦА 5.1.
Стоимость материалов и комплектующих изделий.
№
п/п
|
Наименование материалов и
комплектующих изделий
|
кол-
во
|
Цена за еди -ницу материалов, руб. |
Стоимость,
руб.
|
| 1. |
Железо листовое 1,5 мм. |
72 лист. |
200 |
14400 |
| 2. |
Уголок металл. № 10 |
55 м. |
78,7 |
4328,5 |
| 3. |
Уголок металл. № 4 |
20 м. |
14,4 |
288 |
| 4. |
Болт М 8 ГОСТ 7805 - 70 |
15 кг. |
29 |
435 |
| 5. |
Болт М 16 ГОСТ 7805 - 70 |
10 кг. |
29 |
290 |
| 6. |
Болт М 20 ГОСТ 7805 - 70 |
5 кг. |
29 |
145 |
| 7. |
Гайка М 8 ГОСТ 5808 - 79 |
15 кг. |
29 |
435 |
| 8. |
Гайка М 16 ГОСТ 5808 - 79 |
10 кг. |
29 |
290 |
| 9. |
Гайка М 20 ГОСТ 5808 - 79 |
5 кг. |
29 |
145 |
| 10. |
Шайба - 8 ГОСТ 7519 - 78 |
15 кг. |
29 |
435 |
| 11. |
Шайба - 16 ГОСТ 7519 - 78 |
10 кг. |
29 |
290 |
| ИТОГО : |
21481,5 |
Транспортные расходы принимаем в размере 15% от стоимости материалов и комплектующих из табл. 5.1.
Тр = 15%*Смат
(5.3)
где Тр - транспортные расходы, руб;
Смат
- стоимость материалов и комплектующих, руб.
Тр = 15*21481,5/100 = 3222,22 руб.
5.2 Расчет затрат на оплату труда основным производственным рабочим
ТАБЛИЦА 5.2.
Заработная плата основных производственных рабочих.
| Профессия |
Числен -
ность,
чел.
|
Часовая
тарифная
ставка
руб./час.
|
Затраты рабо-чего времени на
1 машину,
час.
|
Заработная плата
по тарифу,
руб.
|
| Изготовление |
| 1.Слесарь 6 разр. |
4 |
16 |
160 |
10240 |
| 2.Сварщик 4 разр. |
1 |
17 |
160 |
2720 |
| Монтаж |
| 1.Слесарь 6 разр. |
4 |
16 |
70 |
4480 |
| Итого : |
17440 |
Премии принимаем 30% от з/п по тарифу.
П = 30%*з/п т
, руб (5.4)
П = 30 * 17440/100 = 5232 руб
Дополнительная з/п = 10% от основной з/п.
Дз/п = 10%*22672,2 руб = 2267,2 руб.
Затраты на оплату труда = Осн з/п + Д з/п
Затраты на оплату труда = 22672 + 2267,2 = 24939,2 руб.
5.3 расчет единого социального налога по основным производственным рабочим
СН = з/п * (СтСН/100), руб (5.5)
Социальный налог по основным производственным рабочим 35,6% плюс 4,2% - класс профессионального риска (металлургическое машиностроение 18 класс); [Федеральный закон «О страховых тарифах на обязательное социальное страхование от несчастных случаев на производстве и профессиональных заболеваний на 2001 г»], [Постановление от 27 мая 2000 г № 415 «О внесении дополнения в постановлении правительства РФ от 31 августа 1999 г №979»].
СН = 39,8 * 24939,2/100 = 9925,8 руб.
5.4 Расчет накладных расходов.
Накладные расходы берем 800 % от заработной платы основных производственных рабочих.
800*з/п
НР =__________
руб
100
|
|
800*24939,2
НР =_________________
руб = 199513,6 руб
100
|
|
С/с = Смат
+ Тр + з/п + СН + НР (5.7)
с/с = 21481,5 + 24939,2 + 9925,8 + 199513,6 = 259082,32 руб
Rпр
= 30%
Пр = 259082,32*30/100 = 77724,696 руб
Полученные и известные величины подставляем в формулу (5.1):
Ц = 259082,32 + 77724,696 = 336807,01 руб.
|