| Министерство науки и образования Украины
Сумской государственный университет
Кафедра прикладной гидроаэромеханики
Практическая работа
Тема: «Разработка технологического процесса механической обработки детали»
Сумы 2009
Допустим, что производство отливок будет носить массовый характер, тогда для производства отливок будем использовать метод литья в керамические формы с выплавляемыми моделями согласно ГОСТ 26645-85 для данного способа литья и заданных габаритных размеров будем иметь:
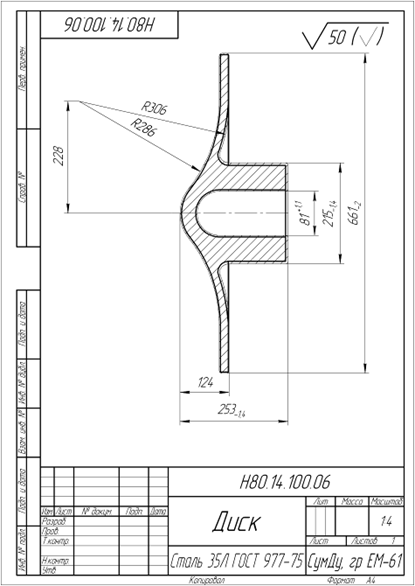
7 класс точности размеров и масс отливка.
2 ряд припусков.
Из таблицы о допусках размеров отливок находим:
– Для Ø 205 мм допуск размера 1,4 мм
– Для Ø 651 мм допуск размера 2,0 мм
– Для Ø 90 мм допуск размера 1,1 мм
– Для Ø 243 мм допуск размера 1,4 мм
Граничные отклонения сдвига для размеров Ø 205 мм, Ø 90 мм, 243 мм будут составлять ± 0,5 мм, а для размера Ø 651 мм ± 0,6 мм.
Основные припуски:
– Для Ø 205 мм 4,6 мм,
– Для Ø 651 мм 5,0 мм,
– Для Ø 90 мм 4,2 мм,
– Для Ø 243 мм 4,6 мм.
Дополнительные припуски для всех остальных размеров отливка 0,4 мм.
Размеры отливка и предельные отклонения определим основываясь на выше указанных данных и первоначальных размеров:
– Для размера Ø 90 мм:
Ø (90 – 2 · 4,2) – 1,1 = 81,6 – 1,1 или Ø 81+1,1
– Для размера Ø 90 мм:
Ø (651 + 2 · 5,0) + 2,0 = 661 + 2,0 или Ø 661-2,0
– Для размера Ø 90 мм:
Ø (205 + 2 · 4,6) + 1,4 = 214,2 + 1,4 или Ø 215-1,4
– Для размера Ø 90 мм:
Ø (243 + 2 · 4,2) + 1,4 = 252,2 + 1,4 или Ø 253-1,4
Находим коэффициент расхода материала (к)
тд
=60 кг
Vзаготовки
= 10310,5 мм3
ρ
ст 35л
= 7836
тзаготовки
=
0,0103 · 7836 = 76 кг

0,79>0,75
условие выполнено, заготовка рассчитана правильно.

Сварные заготовки широко распространены в машиностроении, что объясняется значительными преимуществами сварки по сравнению с другими способами соединения заготовок. Экономия материалов, снижение стоимости продукции, высокая производительность оборудования и качество продукции – далеко не все преимущества, которые обеспечивает использование сварки в машиностроительном производстве. Использование сварных заготовок позволяет упростить конструкцию исходных заготовок, уменьшить толщину стенок и массу заготовок, использовать разные профили сортового и специального проката.
Забиваем Сайты В ТОП КУВАЛДОЙ - Уникальные возможности от SeoHammer
Каждая ссылка анализируется по трем пакетам оценки: SEO, Трафик и SMM.
SeoHammer делает продвижение сайта прозрачным и простым занятием.
Ссылки, вечные ссылки, статьи, упоминания, пресс-релизы - используйте по максимуму потенциал SeoHammer для продвижения вашего сайта.
Что умеет делать SeoHammer
— Продвижение в один клик, интеллектуальный подбор запросов, покупка самых лучших ссылок с высокой степенью качества у лучших бирж ссылок.
— Регулярная проверка качества ссылок по более чем 100 показателям и ежедневный пересчет показателей качества проекта.
— Все известные форматы ссылок: арендные ссылки, вечные ссылки, публикации (упоминания, мнения, отзывы, статьи, пресс-релизы).
— SeoHammer покажет, где рост или падение, а также запросы, на которые нужно обратить внимание.
SeoHammer еще предоставляет технологию Буст, она ускоряет продвижение в десятки раз,
а первые результаты появляются уже в течение первых 7 дней.
Зарегистрироваться и Начать продвижение
По сравнению с отливками и поковками сварные заготовки благоприятствуют экономии металлов (40…60%), экономии капитальных затрат производства, уменьшают трудоёмкость изготовления и стоимость заготовок, сокращают сроки их изготовления.
К недостаткам сварных заготовок относят наличие в них внутренних напряжений, которые часто приводят к потере точности формы и размеров поверхностей; сложные по форме заготовки по сравнению с отливками имеют большую трудоёмкость изготовления и меньшую производительность труда; не все материалы отличаются достаточной свариваемостью.
Под свариваемостью понимают способность материалов в результате сварки создавать надёжное их соединение.
Технологичность сварных заготовок обеспечивается рациональным выбором материалов их составных частей, способов их получения, конструкцией сварных элементов и режимом сварки.
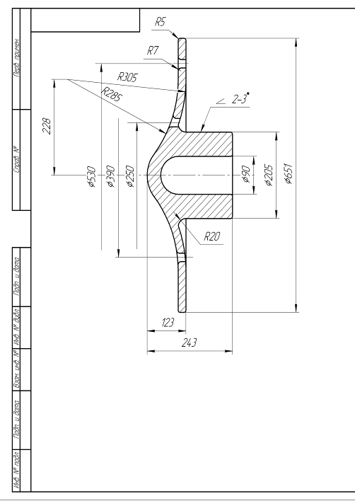
Спроектируем сварную заготовку для детали на рисунке 2.
Оптимальным способом сварки в данном случае может служить механизированная дуговая сварка.
Дуговая сварка (ручная, полуавтоматическая и автоматическая) является наиболее распространенным способом сварки. Ручная сварка применяется для сварки швов небольшого размера; за один проход без предварительной разделки кромок она позволяет сваривать детали толщиной 4... 8 мм.
Автоматическая сварка может вестись одним или несколькими электродами под слоем флюса, в среде защитных газов (аргона, гелия, углекислого газа) или самозащитой проволокой. При этом резко повышается толщина свариваемых деталей (до 15 м без разделки кромок) и производительность сварки (в 6...8 раз по сравнению с ручной сваркой). Сварка в углекислом газе углеродистых и низколегированных сталей характеризуется стабильностью режима сварки, хорошим формированием сварного шва, высоким качеством соединения. Производительность полуавтоматической сварки примерно в 2…4 раза выше, чем ручной.
С учетом технологических соображений выбираем полуавтоматическую аргонно-дуговую сварку сварочной проволокой, выбираем тип сварного шва (СВ.), обеспечивающий провар сварного соединения при односторонней многопроходной сварке. Зная конфигурацию и размеры исходных частей заготовки, оформляем ее чертеж.
Сваривание материалов заключается в соединении отдельных частей заготовки за счет межмолекулярных и межатомных сил, которые возникают как результат местного нагревания свариваемых материалов до жидкого или пластичного состояния и приложения механического усилия.
Сервис онлайн-записи на собственном Telegram-боте
Попробуйте сервис онлайн-записи VisitTime на основе вашего собственного Telegram-бота:
— Разгрузит мастера, специалиста или компанию;
— Позволит гибко управлять расписанием и загрузкой;
— Разошлет оповещения о новых услугах или акциях;
— Позволит принять оплату на карту/кошелек/счет;
— Позволит записываться на групповые и персональные посещения;
— Поможет получить от клиента отзывы о визите к вам;
— Включает в себя сервис чаевых.
Для новых пользователей первый месяц бесплатно.
Зарегистрироваться в сервисе
Для данной заготовки мы выбираем стыковое соединение со скосом одной кромки одностороннее, условное обозначение С8 (по ГОСТ 5264-80)
Форма поперечного сечения подготовленных кромок сварного шва


Токарная черновая операция
Исполняется на станках токарной группы. Со всех обрабатываемых поверхностей снимается приблизительно две третьих припуска на механическую обработку.
Обтачивают:
1. цилиндрическую поверхность Ø 215-1,4,
2. цилиндрическую поверхность Ø 81+1,1
3. торцевую поверхность Ø 215-1,4.
4. цилиндрическую поверхность Ø 661
5. поверхности R286, R306
6. отверстия в диске
Токарная чистовая операция
Исполняется на станках токарной группы, более точных по сравнению с токарной черновой обработкой, при более высоких скоростях резания, и при малой подачи. На данном этапе обработки:
1. убираются оставшиеся припуска на механическую обработку.
2. в отверстиях диска делается округление R7
3. на цилиндрической поверхности Ø 651 делается округление R5
4. вытачивается конусность 2-3о
на поверхности Ø 205.
Балансировка диска. Диск балансируют статически. Согласно чертежу допустимый дисбаланс не более 0,2 кгм.
Контрольная операция.
Контролируют размеры и положение поверхностей детали согласно чертежу, шероховатость поверхностей.



Список использованной литературы
1. ГОСТ 26645-85 Отливки из металлов и сплавов. Допуски размеров, массы и припуски на механическую обработку
2. Боженко Л.І. Технология машинобудування. Проектування та виробництво заготованок. – Львів: Видавництво «Світ», 1996 г
3. Корсаков В.С. Основы технологии Машиностроения. – Москва «Высшая школа» 1977 г
5. ГОСТ 5264-80 Ручная дуговая сварка. Соединения сварные. Основные типы конструктивные элементы и размеры
|