| Содержание
Задание
1. Общая часть
1.1 Район строительства
2. Конструктивная характеристика основных элементов здания
2.1 Фундаменты. Отмостка
2.2 Стены
2.3 Перекрытия и полы
2.4 Перегородки
2.5 Окна и двери
2.6 Крыша и кровля
2.7 Лестницы
2.8 Наружная и внутренняя отделка здания
2.9 Сантехническое и специальное оборудование
3. Теплотехнический расчет наружной стены
6. Список литературы
Приложение
Район строительства: г. Москва.
Уровень грунтовых вод: 2,1м.
Тип крыши: 4-х скатная.
Количество этажей: 3
Предусмотреть балконы.
Номенклатура квартир: 1-3-3-1.
Проектируемое здание будет строиться в г. Москва, который находится в строительно-климатическом районе IIВ и характеризуется следующими климатическими данными: температура наружного воздуха средняя по месяцам: январь - 9,4˚C, февраль - 8,5˚C, март - 3,6˚C, апрель +4,9˚C, май +12,9˚C, июнь +17,0˚C, июль +19,3˚C, август +17,4˚C, сентябрь +11,7˚C, октябрь +5˚C, ноябрь - 4,6˚C, декабрь - 6,9˚C. Средняя температура наиболее холодных суток = - 32˚C и наиболее холодной пятидневки = - 25˚C; зона влажности и наружного климата В
. Средняя скорость ветра в январе месяце составляет 4,9 м/сек.
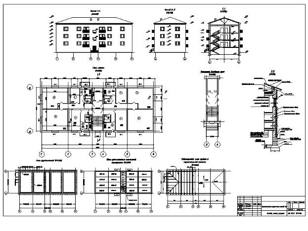
1.2 Общая характеристика проектируемого здания.
Проектируемое здание - 2 подъездный 3 этажный кирпичный жилой дом на 12 квартир. Класс здания - 2, степень долговечности и огнестойкости - 2, (срок службы не менее 50 лет).
По конструктивной схеме здание бескаркасное, с несущими наружными и внутренними поперечными стенами.
Объемно-планировочное решение - здание имеет прямоугольную форму в плане с размерами в осях: ширина 12м., длина 30,6м., высота этажа 3,0м., высота здания от уровня земли до конька кровли 14,4м.
Фундаменты под стенами приняты ленточные сборные железобетонные с опорной подушкой шириной 1,2м и толщиной 300мм.
Глубина заложения фундаментов принята по расчету и составляет 1,2 м.
Отмостка предусмотрена по всему периметру здания и решена в виде асфальтированной полосы на щебеночном основании шириной 100см, с уклоном от стены равным 2%.
Наружные стены предусмотрены из пустотелого рядового керамического кирпича с утеплителем и принята по расчету толщиной 590 мм. Внутренние стены выполнены из керамического кирпича толщиной 380мм.
Забиваем Сайты В ТОП КУВАЛДОЙ - Уникальные возможности от SeoHammer
Каждая ссылка анализируется по трем пакетам оценки: SEO, Трафик и SMM.
SeoHammer делает продвижение сайта прозрачным и простым занятием.
Ссылки, вечные ссылки, статьи, упоминания, пресс-релизы - используйте по максимуму потенциал SeoHammer для продвижения вашего сайта.
Что умеет делать SeoHammer
— Продвижение в один клик, интеллектуальный подбор запросов, покупка самых лучших ссылок с высокой степенью качества у лучших бирж ссылок.
— Регулярная проверка качества ссылок по более чем 100 показателям и ежедневный пересчет показателей качества проекта.
— Все известные форматы ссылок: арендные ссылки, вечные ссылки, публикации (упоминания, мнения, отзывы, статьи, пресс-релизы).
— SeoHammer покажет, где рост или падение, а также запросы, на которые нужно обратить внимание.
SeoHammer еще предоставляет технологию Буст, она ускоряет продвижение в десятки раз,
а первые результаты появляются уже в течение первых 7 дней.
Зарегистрироваться и Начать продвижение
Кладка ведется по многорядной системе привязки швов и кирпича марки 150 на цементно-песчаном растворе марки 100
Гидроизоляция стены предусмотрена из двух слоёв рубероида на битумной мастике уложенных по верхнему обрезу фундамента.
Фундаментные блоки с наружной стороны обмазываются горячим битумом за два раза.
Несущая часть перекрытий принята в виде сборочных ж/б панелей с круглыми пустотами толщиной 220мм опирающихся на наружные и внутренние поперечные несущие стены.
Стыки между плитами заделываются цементным раствором марки 150.
Пространственная жесткость здания обеспечивается за счет связи плит между собой и с несущими стенами при помощи стальных анкеров.
В проекте приняты три типа полов: в жилых комнатах - дощатые, в кухнях и в прихожей из линолеума, в санузлах из керамических плиток.
Конструкции полов приведены в таблице:
| Конструкция пола
|
Тип покрытия, материал
|
Толщина слоев
|
| 
|
Доски шпунтовочные
Лаги 80 х 40 через 500
Прокладка из ДВП
Плита перекрытия
|
29
40
11
220
|
| 
|
Керамическая плитка на цементно-песчаном растворе
Гидроизоляция на битумной мастике
Бетонная стяжка
Плита перекрытия
|
15
5
40
220
|
Перегородки - из легкого бетона высотой на комнату. Межкомнатные перегородки 80 мм, межквартирные перегородки - двухслойные с воздушной прослойкой толщиной 240 мм.
Перегородки опираются на плиты перекрытия через слой цементного раствора и крепятся к стенам и перекрытиям ершами и скобами.
Санузлы располагаются в отдельных сантехнических кабинах совмещенного типа.
Окна приняты с раздельными деревянными пролётами, остекление двойное.
Двери приняты одно - и двухпольные, наружные - деревянные, внутренние с щитовыми дверными полотнами, глухие.
Оконные створки и деревянные полотна крепятся соответствующими коробками при помощи навесов. Крепление оконных и дверных блоков в проёмах осуществляется при помощи ершей или гвоздей на двух уровнях с каждой стороны проёма.
Крыша - деревянная стропильная система. Кровля здания четырёх скатная, уклон кровли равен i=20. Толщина утеплителя принята 200мм.
Основные лестницы приняты сборные ж/б, двухмаршевые, состоящие из целых маршей с полнотелыми ступенями и цельных площадок.
Лестничные площадки опираются на боковые стены лестничной клетки, лестничные марши - на выступы площадок и крепится к ним. Ограждение лестницы высотой 0,9 м предусмотрено в виде стальной решётки с деревянными поручнями, стойки ограждения крепятся к стальным закладным деталям сбоку марша.
Сервис онлайн-записи на собственном Telegram-боте
Попробуйте сервис онлайн-записи VisitTime на основе вашего собственного Telegram-бота:
— Разгрузит мастера, специалиста или компанию;
— Позволит гибко управлять расписанием и загрузкой;
— Разошлет оповещения о новых услугах или акциях;
— Позволит принять оплату на карту/кошелек/счет;
— Позволит записываться на групповые и персональные посещения;
— Поможет получить от клиента отзывы о визите к вам;
— Включает в себя сервис чаевых.
Для новых пользователей первый месяц бесплатно.
Зарегистрироваться в сервисе
Вход на чердак предусмотрен с площадки третьего этажа по стальной стремянке шириной 0,6 м через люк размером 0,6 х 0,8 м, закрытый огнестойкой крышкой.
Вход с улицы на лестничную клетку решен в виде крыльца. Крыльцо запроектировано в виде ж/б плиты опирающейся на бетонную подготовку.
Наружная отделка из отборного керамического кирпича под расшивку, цоколь отделывается терразитовой штукатуркой. Оконные перелёты и дверные полотна покрываются масленой краской, подоконные сливы покрываются кровельной сталью, ограждения балконов отделывается асбестоцементными экранами.
Внутренняя отделка: стены и перегородки жилых комнат и передней оклеиваются обоями. Стены кухонь, санузлов и ванных комнат покрываются масленой краской на высоту 1,8м и местами облицовываются керамической плиткой. Стены лестничных клеток покрываются масленой краской за два раза, потолки белятся.
Водопровод - хозяйственно питьевой от городской сети.
Канализация - хозяйственно-фекальная в городскую сеть, с установкой унитазов, ванн, умывальников, раковин и моек.
Отопление центральное, водяное, система однотрубная. Нагревательные приборы - чугунные радиаторы.
Вентиляция естественная.
Газоснабжение от городской сети с установкой кухонных газовых плит и водонагревателей.
Электроснабжение от городской сети с установкой скрытой проводки (II категории).
Электроосвещение лампами накаливания от сети 220/380В без установки кухонных электроплит.
Устройство связи - радиотрансляция, коллективные телеантенны, телефонные вводы.
Исходные данные:
· Место строительства - г. Москва.
· Температура наиболее холодной пятидневки обеспеченностью 0,92: 
· Температура наиболее холодных суток обеспеченностью 0,92: 
· Период со средней суточной температурой воздуха 
· Средняя температура периода со средней суточной температурой воздуха 
1.
Градусосутки отопительного периода:

- расчетная температура внутреннего воздуха, применяемого согласно ГОСТ 12.1.005-08

- средняя температура периода со средней суточной температурой воздуха (СНиП 23.01-99)

- продолжительность периода со средней суточной температурой воздуха (СНиП 23.01-99)


2.
Требуемое сопротивление теплопередаче, исходя из санитарно - гигиенических условий и условий комфортности
:

n - коэффициент, принимаемый в зависимости от положения наружной поверхности ограждающей конструкции к наружному воздуху (СНиП II-3-79*, т.3)
n=1

- расчетная зимняя температура наружного воздуха, равная средней температуре наиболее холодной пятидневки обеспеченностью 0,92

- нормативный температурный перепад между температурой внутреннего воздуха и температурой внутренней поверхности ограждающей конструкции (т.2, СНиП II-3-79*)

- коэффициент теплоотдачи внутренней поверхности ограждающих конструкций (т.4, СНиП II-3-79*)


Однако, исходя из рекомендаций СНиП II-3-79*, сопротивление теплопередаче ограждающих конструкций принимаем из таб.1б, исходя из условий энергосбережения.
Для жилых помещений с градусосутками отопительного периода , приведенное сопротивление теплопередаче ограждающих конструкций (для стен) будет равно (после интерполяции):

Все дальнейшие расчеты ведем по наименьшему значению , т.е. по

Назначаем конструкцию наружной стены:

Состав ограждающей конструкции.
| Наименования слоя
|

|

|

|

|

|
| 1. Цементно-песчаный р-р.
|
1800
|
0,015
|
0,93
|
11,09
|
0,016
|
| 2. Кирпичная кладка
|
1800
|
0,380
|
0,81
|
10,12
|
0,469
|
| 3. Утеплитель - пенополиуретан (ТУ 67-87-75)
|
40
|

|
0,04
|
0,42
|
|
| 4. Кирпичная кладка
|
1800
|
0,130
|
0,81
|
10,12
|
0,16
|
| 5. Цементно-песчаный р-р.
|
1800
|
0,030
|
0,93
|
11,09
|
0,032
|
3.
Сопротивление теплопередаче ограждающей конструкции равно:

- коэффициент теплоотдачи внутренней поверхности ограждающей поверхности:

-термическое сопротивление ограждающей конструкции:

- коэффициент теплоотдачи (для зимних условий) наружной поверхности (т.6. СНиП II-3-79*)

Термическое сопротивление слоя многослойной ограждающей конструкции:

- толщина слоя, м
- расчетный коэффициент теплопроводности материала соя, принимаемый по прил.3 СНиП II-3-79*
Таким оброзом, термическое сопротивление конструкции равно:

Термическое сопротивление конструкций как сумма термических сопротивлений слоев:

Этим выражение необходимо найти неизвестное значение (толщина утеплителя):



Тогда общая толщина стены:

Без учета штукатурки 
4.
Определение глубины заложения ленточных фундаментов.
Исходные данные: , , здание имеет подвал полы устраиваются по утепленному цокольному перекрытию , т.к. грунты в основание фундамента неоднородного сложения определяется как средневзвешенное , УГВ
Сумма абсолютных значений среднемесячных отрицательных температур воздуха:

Нормативная глубина сезонного промерзания крупных песков:

Расчетная глубина промерзания грунта у фундамента:

Расстояние от промерзшего грунта до грунтовых вод:

С учетом того, что грунты в основании представлены глинами и суглинками глубина заложения фундамента должно быть не менее расчетной глубины промерзания грунта. Проектом принимается граница заложения фундамента 1,2 м.
5.
Расчет лестницы.
Исходные данные: лестница двухмаршевая, высота этажа , ширина марша , уклон i=1: 2, размеры ступеней: высота подступёнка , ширина проступи b-300мм.
Решение:
1.
Высота лестничного марша: 
2.
Число подступёнков в марше: 
3.
Число подступней в марше: 
4.
Длина горизонтальной проекции марша: d=9*300=2700мм
5.
Ширина лестничной клетки: В = а+400+а=1200+300+1200=2,7м.
6.
Длина лестничной клетки: , где С1=1,3м - ширина этажей, С2=1,3 - ширина промежуточной площадки.
1. И.А. Шерешевский "Конструирование гражданских зданий" Стройиздат, 1981г.
2. СНиП II-3-79* "Строительная теплотехника". М., 1999г.
3. СНиП 2.01.99г. "Строительная климатология геофизика"
4. СНиП 2.02.83г. "Основы зданий и сооружений"
5. ГОСТ 21.103-73 "Общие требования к текстовым документам"
6. ГОСТ 21.101-79 "Основные требования к чертежам".

|