Контрольна робота
з дисципліни
«Діловодство і документація»
Зміст
1. Контроль виконання документів
2. Формуляр-зразок організаційно-розпорядчих документів, його реквізити і правила оформлення
3. Дати загальну характеристику документаційного забезпечення руху особового складу
4. Складіть проект договору про ви наймання житлового приміщення
5. Складіть заяву про прийняття на роботу з візами і резолюцією
Список літератури
1. Контроль виконання документів
Контроль за виконанням документів є важливим напрямом управлінської діяльності, що виконується з метою сприяння своєчасному та правильному виконанню рішень, завдань і доручень керівництва, забезпечення одержання інформації, необхідної для оцінки діяльності підрозділів та виконавців.
Контроль за виконанням документів включає:
· постановку документа на контроль, перевірку своєчасного доведення документа до виконавця, попередню перевірку та регулювання ходу виконання документів;
· облік і узагальнення результатів контролю виконання документів, інформування керівника.
Встановлення контролю за виконанням документів має забезпечувати:
· обов'язковий і точний облік документів, одержаних для виконання робіт;
· систематизацію нагляду за виконанням документів;
· вжиття заходів, що сприяють виконанню документів, усуненню перешкод та окремих невідповідностей;
· підвищення трудової дисципліни виконавців.
Щоденно за картотекою та журналом реєстрації робиться вибірка документів, виконання яких наближається до кінця та не виконаних у строк. Про останні доповідають безпосередньо керівнику. У випадку подовження терміну виконання, у контрольній картці проставляється відповідна відмітка.
Контроль може здійснюватись у формах:
· суцільного контролю - за виконанням усіх документів;
· спеціального контролю - за виконанням документів органів влади, вищих органів підприємства, запитів депутатів, скарг, заяв, звернень громадян, наказів та інших найбільш важливих документів щодо боротьби з порушеннями податкового законодавства.
Комп'ютеризація документаціного забезпечення переорієнтовує його більше на одержання оперативної інформації та її оперативного аналізу з подальшим використанням для прогнозування господарської та іншої діяльності. Хоч комп'ютерний облік, контроль, аудит, аналіз і регулювання повинні функціонувати як частка єдиної інформаційної системи об'єкта (оскільки є ефективнішими в поєднанні з комп'ютерним прогнозуванням та плануванням), самі по собі вони функціонально створюють тісну інформаційну систему з властивими для них системними принципами.
Забиваем Сайты В ТОП КУВАЛДОЙ - Уникальные возможности от SeoHammer
Каждая ссылка анализируется по трем пакетам оценки: SEO, Трафик и SMM.
SeoHammer делает продвижение сайта прозрачным и простым занятием.
Ссылки, вечные ссылки, статьи, упоминания, пресс-релизы - используйте по максимуму потенциал SeoHammer для продвижения вашего сайта.
Что умеет делать SeoHammer
— Продвижение в один клик, интеллектуальный подбор запросов, покупка самых лучших ссылок с высокой степенью качества у лучших бирж ссылок.
— Регулярная проверка качества ссылок по более чем 100 показателям и ежедневный пересчет показателей качества проекта.
— Все известные форматы ссылок: арендные ссылки, вечные ссылки, публикации (упоминания, мнения, отзывы, статьи, пресс-релизы).
— SeoHammer покажет, где рост или падение, а также запросы, на которые нужно обратить внимание.
SeoHammer еще предоставляет технологию Буст, она ускоряет продвижение в десятки раз,
а первые результаты появляются уже в течение первых 7 дней.
Зарегистрироваться и Начать продвижение
Вони мусять базуватися на таких принципах, як:
· єдина система класифікації і кодування;
· автоматизація збору, реєстрації і передавання інформації;
· уніфікація, спрощення і типізація документації;
· автоматизація одержання бухгалтерських регістрів, звітів та аналітичних форм тощо.
На комп'ютерній основі можуть розв'язуватись і багато інших задач, особливо з контролю і аналізу господарської діяльності (контроль і аналіз виконання виробничих програм, формування собівартості продукції, прибутку і рентабельності виробництва тощо). Контроль дотримання законодавчих і методологічних положень здійснюється вирішенням комплексу аудиторських задач, до переліку яких практично входить аудиторський контроль усіх операцій перелічених щойно облікових задач. Серед задач маркетингової діяльності необхідно виділити формування і аналіз даних про продукцію конкурентів, визначення номенклатури і обсягів конкурентоспроможної власної продукції, ціновий моніторинг ринку товарів, прогнозування прибутку і ін.
Важливим в рамках забезпечення документообороту підприємства є визначення точності, попередження заздалегідь та поточного попередження. Дані параметри системи документаційного забезпечення описують якісні критерії функціонування системи та визначають вимоги до неї.
Для всіх документів, що циркулюють в апаратах управління, встановлюються строки виконання, які можуть бути типовими або індивідуальними. Індивідуальні строки виконання встановлюються керівництвом з фіксуванням їх у резолюціях. Технічним засобом контролю є картотеки. Для організації контролю за виконанням документа на нього складається контрольна картка у момент реєстрації документа.
Документ вважається виконаним, коли всі поставлені питання розв'язані та автору чи відповідному органу надіслана відповідь. Лише у цьому випадку документ знімається з контролю, про що у контрольній картці робиться відповідна відмітка:
· відправлення документів охоплює операції з реєстрації документів у журналі обліку вихідних документів, написання на конверті (тексті) адреси, вкладання документів у пакети, заклеювання, проставлення вартості відправлення, складання реєстру та здачу кореспонденції у відділення зв'язку;
Сервис онлайн-записи на собственном Telegram-боте
Попробуйте сервис онлайн-записи VisitTime на основе вашего собственного Telegram-бота:
— Разгрузит мастера, специалиста или компанию;
— Позволит гибко управлять расписанием и загрузкой;
— Разошлет оповещения о новых услугах или акциях;
— Позволит принять оплату на карту/кошелек/счет;
— Позволит записываться на групповые и персональные посещения;
— Поможет получить от клиента отзывы о визите к вам;
— Включает в себя сервис чаевых.
Для новых пользователей первый месяц бесплатно.
Зарегистрироваться в сервисе
· збереження документів - завершальна стадія діловодства, завданням якої є систематизація, забезпечення збереження та можливості використовувати їх повторно у процесі управління.
2. Формуляр-зразок організаційно-розпорядчих документів, його реквізити і правила оформлення
Формуляр-зразок організаційно-розпорядчих документів
Важливе значення у діловодстві мають правила оформлення документів.
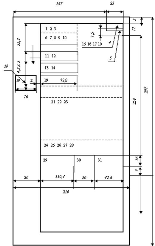
При документуванні управлінської діяльності органами державної податкової служби України організаційно-розпорядчі документи (ОРД) оформляються на папері формату А4 (297 х 210 мм) та А5 (210 х 146 мм). Інколи використовується папір формату А3 (420 х 297 мм).
Кожний документ складається з окремих елементів – реквізитів.
Документи з використанням реквізитів оформляють відповідно до формуляра-зразка, який є моделлю побудови комплексу організаційно-розпорядчих документів.
При оформленні ОРД використовується такий склад реквізитів:
1 – Державний герб України;
2 – емблема підприємства, організації, установи;
3 – зображення нагород;
4 – код підприємства, організації, установи;
5 – код форми документа;
6 – назва міністерства, іншого центрального органу виконавчої влади;
7 – назва підприємства, установи, організації;
8 – назва структурного підрозділу;
9 – індекс підприємства зв’язку, поштова, телеграфна адреса, номер телетайпу, номер телефону, факсу, номер рахунка в банку;
10 – назва виду документа;
11 – дата;
12 – індекс (вихідний номер документа);
13 – посилання на індекс і дату вхідного документа;
14 – місце складання чи видання;
15 – гриф обмеження доступу до документа;
16 – адресат;
17 – гриф затвердження;
18 – резолюція;
19 – заголовок до тексту;
20 – позначка про контроль;
21 – текст;
22 – позначка про наявність додатку;
23 – підпис;
24 – гриф погодження;
25 – візи;
26 – печатка;
27 – позначка про засвідчення копії;
28 – прізвище виконавця та номер його телефону;
29 – позначка про виконання документа та направлення його до справи;
30 – відмітка про перенесення даних на машинний носій;
31 – відмітка про надходження.
На документах реквізити повинні розташовуватися відповідно до формуляра-зразка, з дотриманням полів, встановлених ГОСТом 6.38 – 90: ліве поле – 20 мм, верхнє поле – не менше 10 мм; праве і нижнє – не менше ніж 8 мм (схематичне розташування реквізитів див. на стор. 9).
Оформлення бланків документів
Бланк документа – це аркуш паперу відповідного формату, на який заздалегідь нанесені постійні реквізити і залишене місце для змінної інформації, що вноситься під час оформлення (виготовлення) конкретного документа.
Є два види бланків ОРД:
– для службових листів;
– загальний бланк.
При виготовленні бланків для листів на них обов’язково зазначаються реквізити 1–3, 6–9, а також вказується місце для реквізитів 11–13.
Загальні бланки (для наказів, розпоряджень, протоколів та інших ОРД) повинні мати реквізити 1–3, 6–8, а також визначені місця для реквізитів 10–12, 14.
В управлінській діяльності ОДПС практикується виготовлення на основі загального бланка спеціальних бланків для окремих видів документів – найчастіше наказів, а також розпоряджень, протоколів, довідок тощо.
Розташування постійних реквізитів на бланках може бути поздовжнім або кутовим, центрованим чи прапоровим.
Схематичне розташування реквізитів на папері формату А4

Вимоги до текстів документів
Текст – центральний реквізит будь-якого документа. Це та структурна його частина, що несе найбільше інформаційне навантаження. Правильно побудований текст, вдалі формулювання визначають ефективність впливу документа на адресата.
У структурі тексту можна вичленувати декілька логічних елементів, що сприяють правильній послідовності викладення змісту:
1) вступ, в якому зазначаються причини складання документа, характеризується соціальна ситуація або умови написання; у цій частині тексту можуть робитися посилання на розпорядчі документи вищих органів або організацій, що зумовили оформлення документа;
2) основна частина, де викладається суть питання, аналізуються факти, цифри, докази, аргументи;
3) закінчення (заключна частина) містить суть документа (пропозицію, прохання, рішення тощо).
Вираженням композиційної будови документа виступає рубрикація – виділення окремих частин тексту, об’єднаних змістом, логічно завершених – графічне, з допомогою заголовків тощо.
Універсальним засобом рубрикації є абзац – відступ від початку рядка на п’ять знаків, а також частина тексту між двома такими відступами. Структурно абзац представляє собою окрему закінчену думку.
Абзаци для кращого членування тексту можуть доповнюватись нумерацією його частин.
У практиці ведення документації використовуються дві системи нумерації:
1) буквено-цифрова (традиційна);
2) цифрова (порівняно нова).
Буквено-цифрова нумерація базується на використанні різних графічних знаків – цифр (римських, арабських), літер. Розрізнювальне значення мають також розділові знаки після цифр і літер (крапка, дужка).
Схематично цей спосіб нумерації можна зобразити таким чином:
А. Б. В. Г. ...
І ІІ ІІІ IV ...
1) 2) 3) 4) ....
а) б) в) г) ...1
Однак на практиці великі літери майже не використовуються. Найзначніші частини документа нумеруються римськими літерами, після яких не ставляться крапки.
Структурні частини наступного порядку позначаються арабськими цифрами з крапкою (речення після них завжди починається з великої літери). Дрібніші підрозділи позначаються арабськими цифрами з дужкою (крапка після дужки не ставиться; фраза пишеться з малої літери). Найменші структурні частини нумеруються малими літерами українського алфавіту з дужкою після них.
Для важливих за значенням і значних за обсягом частин тексту використовуються спеціальні найменування – “частина”, “розділ”, “глава”, “параграф” тощо, які також нумеруються.
Слід пам’ятати, що нумерація рубрик можлива тоді, коли є хоча б два однорідних елементи перерахування; однотипні засоби виділення (слова, цифри, літери) можуть застосовуватися лише до однорідних частин тексту.
Останнім часом в умовах переважання машинної обробки інформації набуває поширення цифрова система нумерації, за якою використовуються лише арабські цифри, після яких ставляться крапки, словесний текст пишеться з великої літери. Номери найбільших за обсягом частин тексту складаються з однієї цифри. На другому ступені поділу складові частини мають номери з двох цифр (наприклад, 1.1.; 1.2.; 1.3. і т.д.); на третьому – із трьох (1.1.1.; 1.1.2.; 1.1.3. і т.д.)
Таким чином, номер кожної складової частини включає номери частин вищих ступенів поділу. Кількість цифр у номері частини вказує на кількість рівнів або ступенів поділу.
На відміну від попереднього, традиційного способу нумерації, цифровий не має обмежень щодо глибини поділу тексту. В окремих випадках можуть використовуватися і заголовки до частин документа.
Специфіка мовного оформлення документа визначається багатьма чинниками:
1) сферою спілкування (документи використовуються в офіційній сфері зі стійкими ієрархічними відносинами, що регулюються правовими нормами);
2) авторством документів (незалежно від безпосереднього укладача, автором виступає організація, установа, підприємство в цілому. Хоча діловий папір підписує одна особа, його автор – “колектив”, посадова особа-укладач виступає від імені юридичної особи);
3) повторюваність управлінських дій і ситуацій, що зумовлює повторюваність управлінської інформації, а отже – використання одних і тих самих мовних засобів;
4) тематичною обмеженістю кола питань, які знаходять відображення в певних видах документів.
У процесі багаторічного використання пройшов відбір найбільш відповідних мовних засобів, що сприяють ефективності документів.
Обов’язковою вимогою до оформлення будь-якого документа є відповідність нормам офіційно-ділового стилю.
Офіційно-діловий стиль – це система мовних засобів (слів, словосполучень, речень), способів їх поєднання, що використовуються в офіційному спілкуванні.
Особливості офіційно-ділового стилю:
– нейтральний, коректний тон викладення думки, що не допускає суб’єктивізму, надмірної емоційності;
– точність, однозначність і зрозумілість формулювань;
– лаконічність, стислість;
– уніфікованість, стандартизованість мовних засобів;
– використання термінів, спеціальних слів.
Перед автором кожного документа звичайно постає відразу декілька завдань:
– якомога точніше й повніше подати інформацію;
– досягти найбільшого впливу на адресата;
– сформулювати позитивне враження про авторів документа.
Зміст і оформлення документів повинні свідчити про мовну майстерність, високу культуру діловодства, управлінської діяльності. Тому потрібно ретельно вибирати папір, шрифт, колір друку. Пам’ятаючи про вимоги до оформлення сторінки, варто також прагнути до пропорційного, естетичного розміщення на папері структурних частин тексту, виділення абзаців.
Виконанню документом усіх функцій сприятиме також дотримання рекомендацій про використання мовних засобів:
1. Оскільки документ призначається широкому колу адресатів, з якими відсутній безпосередній контакт, краще віддавати перевагу простим реченням – доступним, зрозумілим, однозначним. Проте в окремих випадках не варто відмовлятися і від складних речень, найчастіше складнопідрядних. Вони сприяють переконливості, аргументованості формулювань, дають можливість пом’якшити наказ, претензію, відмову тощо.
2. Для точності і чіткості формулювань у простих реченнях офіційно-ділового стилю використовують прямий порядок слів: підмет ставиться перед присудком, узгоджене означення перед означуваним словом, неузгоджене означення – після означуваного слова, обставини – перед дієсловом-присудком.
3. У діловому мовленні надзвичайно активно використовуються конструкції “дієслово + іменник”:
– надати допомогу замість допомогти;
– здійснити ремонт замість відремонтувати;
– справити враження замість вразити та ін.
Словосполучення, на відміну від дієслів, точніше передають значення – називають і дію, і предмет цієї дії.
4. Для текстів документів характерне використання вставних слів і словосполучень, які виконують різні функції: служать для зв’язку частин тексту, вказують на джерело інформації, передають ставлення автора до висловленої думки, пом’якшують категоричність висловлень.
Найпоширеніші вставні слова і словосполучення безперечно, без сумніву, очевидно, головним чином, у першу чергу, звичайно, звісно, здається, можливо, навпаки, на жаль, на наш погляд, на нашу думку, наприклад, нарешті, очевидно, отже, по-перше, по-друге, як видно, як свідчать.., за даними та ін.
Вставні конструкції на письмі завжди виділяються комами.
5. Стислість, зрозумілість, доступність текстів досягається використанням стійких (шаблонних, стандартних) словосполучень – готових мовних конструкцій. Їх наявність у діловому мовленні є результатом регламентованості службових стосунків, повторюваності управлінських ситуацій і тематичної обмеженості ділового спілкування. Мовні формули виникають у результаті уніфікації мовних засобів. Інколи вони є елементами, що визначають видову приналежність документа.
3. Дати загальну характеристику документаційного забезпечення руху особового складу
Найважливішою функцією відділу кадрів є документування процесу руху кадрів на підприємстві. З цією метою розроблена інструкцію, яка визначає порядок оформлення при прийомі на роботу, перекладі, звільненні і обліку працівників підприємства, а також порядок видання, обліку і розсилки наказів по особовому складу.
Відділ кадрів підприємства готує проекти наказів, тільки по особовому складу. Для внесення необхідних даних до облікових документів і особистих справ працівників виписки з наказів по основній діяльності представляються у відділ кадрів канцелярією.
Прийом на роботу може проводитися керівником, який наділений правом найму на роботу. Трудовий договір полягає у письмовій формі.
При прийомі на роботу адміністрація птицефабрики вимагає від того, що поступає по мимо письмової заяви пред'явлення:
а) трудової книжки, а якщо дана особа поступає на роботу вперше, - довідки про останнє заняття виданої за місцем проживання;
б) паспорти.
При прийомі на роботу, що вимагає спеціальних знань адміністрація має право зажадати від працівника пред'явлення диплом або іншого документа про здобуту освіту і професійну підготовку.
Наказ керівника підприємства оголошується працівникові під розписку. При цьому працівник переконується в правильності оформлення укладеного трудового договору.
При укладенні трудового договору може встановлюватися і випробувальний термін, тривалість якого не може перевищувати трьох місяців, а в окремих випадках за узгодженням з відповідними виборними комітетами, профспілки - шести місяців.
Умова про випробування повинна бути вказане в наказі про прийом на роботу. Якщо ця вимога не виконана, вважається що випробування не встановлене і працівник остаточно прийнятий з першого дня його роботи.
При незадоволеному результаті випробування звільнення працівника проводиться без узгодження з виборним профспілковим органом і без вихідної допомоги.
При прийомі на роботу або перекладі працівника в установленому порядку на іншу роботу адміністрація зобов'язана:
а) ознайомити працівника з роботою, що доручається, умовами праці, його правами і обов'язками (посадовою інструкцією);
б) ознайомити його з правилами внутрішнього трудового розпорядку і колективним договором підприємства;
в) провести інструктаж по техніці безпеки, виробничій санітарії, гігієні праці, протипожежній охороні і іншими правилами по охороні праці.
На осіб, що поступають на роботу вперше, заповнюється трудова книжка з дня прийому на роботу. Трудові книжки ведуться на всіх працівників на підприємстві, що працюють понад 5 днів.
На осіб, що поступають на роботу відділ кадрів підприємства оформляє особиста справа.
Бланк трудового контракту заповнюється і підписується в двох екземплярах, один з яких зберігатися у відділі кадрів, в особистій справі працівника, а інший екземпляр видається працівникові на руки.
Підписаний і завірений контракт служить підставою виникнення трудових відносин. Після висновку і належного оформлення контракту видається наказ про прийом на роботу, який оголошується працівникові під розписку.
Загальний порядок передбачає ознайомлення працівника з правилами внутрішнього розпорядку, колективним договором, правилами охорони праці і іншими необхідними відомостями і обов'язками.
Питання оплати, умов праці і відпочинку, пенсійного забезпечення, медичного обслуговування і так далі, що є загальними для всіх категорій працівників підприємства, повинні відбиватися і регулюватися умовами трудового договору, ув'язненого між адміністрацією і трудовим колективом.
При складанні контракту, у разі вимог сторін, можна вказати конкретні трудові обов'язки працівників.
При висновку контрактів з випробувальним терміном роботи терміни випробування не повинні перевищувати обумовлених законодавством.
Облік працівників по своєму призначенню розділяється на персональний, штатно-посадовий і статистичний.
На всіх осіб, що працюють на підприємстві, складаються і зводяться в картотеку, що діє, особисті картки по встановленій формі № Т-2.
Персональний облік науковців ведеться по обліковій картці науковця, форма № Т-4.
Особисті картки звільнених постійно зберігаються в алфавітному порядку, окремо від картотеки, що діє, з вказівкою в картці дати, номери наказу і причини звільнення працівника.
На працівників, удостоєних державних нагород, почесних звань, нагороджених галузевими видами нагород, складаються і ведуться облікові картки нагороджених, які зводяться в картотеку. Облік може вестися і в журналі обліку нагороджених.
Особисті справи складаються і ведуться на працівників, перелік яких визначається спеціально створеною керівником підприємства комісією.
Кількість екземплярів особистої справи визначається необхідністю. Справжній екземпляр особистої справи ведеться за місцем роботи працівника. Вищестоящу інстанцію, яка затверджує працівників на деяких посадах, висилається копії документів, завірена відділом кадрів підприємства і що скріпляють друком.
У особисту справу включаються документи в наступному порядку:
опис документів, наявних в особистій справі;
особистий листок по обліку кадрів з наклеєною на нього фотографією розміром 4х6 (фотографії оновлюються досягши віку 25 і 45 років);
автобіографія;
копії документів про освіту, привласнення вченому ступеню, вченого звання.
Далі в особистій справі у міру надходження в хронологічному порядку розташовуються характеристики, атестації, уявлення про призначення, звільнення, звільнення, переклад, направляння на навчання, копії нагородних листів і уявлень до привласнення почесних звань і інші документи характеризують працівника. Документи особистої справи нумеруються.
Доповіді, заяви і інші необхідні довідкові матеріали розташовуються в другому розділі особистого у міру їх надходження.
На додаток до особистого листка по обліку кадрів відносяться на основі відповідних документів зміни в облікових даних працівників, що відбулися після заповнення ним особистого листка.
Особистий листок по обліку кадрів заповнюється працівником власноручно, чорнилом, розбірливо, без спотворень і скорочень найменування підприємств, установ і організацій. При заповненні відомостей про трудову діяльність указується час вступу до кожної посади і відходу на підставі наказів по особовому складу або записів трудової книжки.
Автобіографія пишеться в довільній формі, в якій окрім відомостей про себе, і своїй діяльності указуються відомості про родичів і інші відомості, що мають принципове важливе значення при рішенні питання про правильніше і доцільніше використання працівника на посаді.
Про всіх подальших змінах в анкетно- біографічних даних і інших облікових ознаках (освіта і так далі) працівники зобов'язані повідомляти у відділ кадрів за місцем роботи для внесення цих змін у всіх їх облікові документи.
Підставою для внесення змін повинні служити офіційні документи.
Вилучення документів з особистих справ проводитися з дозволу начальника відділу кадрів, про що робиться відмітка в описі документів в особистій справі, а справжній екземпляр документа замінюється його копією.
До документів штатно-посадового обліку відносяться штатно посадова книга і посадова картотека, складена з посадових карток.
Штатно-посадова книга ведеться відділом кадрів підприємства і є документом обліку укомплектованості кадрами відповідно до штатного розкладу, що діє.
Статичний облік ведеться з метою отримання необхідних узагальнених цифрових даних, що відображають якісний і кількісний стан кадрів.
На підставі цих даних розробляються заходи щодо планування підготовки кадрів і забезпечення підприємства фахівцями.
Облікові документи на працівників зберігаються в спеціально обладнаних шафах, картотечних ящиках. На час припинення роботи приміщення, де зберігаються облікові документи, опечатуються або здаються під охорону.
Особисті справи розміщуються в шафах, що не згорають, в порядку номерів, проставлених на корінцях і лицьовій стороні особистої справи. Для швидкого знаходження конкретно особистої справи ведеться алфавітна картотека, що складається з алфавітних карток.
Алфавітні книги і алфавітні картки є документами постійного зберігання.
Для забезпечення контролю за видачею особистих справ складаються контрольні картки, які зберігаються в особистих справах.
Відповідно до трудового законодавства розрізняють три види перекладу на іншу роботу:
а) переклад на іншу роботу на тому ж підприємстві;
б) переклад на роботу на інше підприємство;
в) переклад на роботу в іншу місцевість.
Ці види перекладу допускаються тільки з відома працівника. Згода повинна бути отримане заздалегідь, до видання наказу про переклад, після ознайомлення зі всіма умовами тієї роботи, на яку конкретно передбачається переклад працівника.
Перекладом на іншу роботу, що вимагає згоду працівника, слід рахувати доручення йому роботи по відповідній спеціальності, кваліфікації, посади або роботи, при виконанні якої змінюються розмір заробітної плати, пільги, переваги і інші істотні умови праці, обумовлені при прийомі на роботу (укладенні трудового договору).
Не допускається переклад працівника на іншу роботу в період його відсутності на підприємстві (відпустка, хвороба, відрядження).
Оформлення перекладу працівника на інше підприємство проводиться в наступному порядку (дозвіл на переклад дає керівник, що має право найму на роботу і звільнення):
а) працівник, що дав згоду на переклад або порушив клопотання про переклад, подає письмову заяву на ймення свій безпосередній керівник з викладом мотивів перекладу і вказівкою підприємства, в якому він бажає працювати;
б) його безпосередній керівник розглядає заяву і при згоді на переклад відділ кадрів оформляє відповідні документи - уявлення на переклад в двох екземплярах, заява працівника, характеристика;
в) керівник приймаючого підприємства після отримання документів вирішує питання про прийом працівника на роботу і дає відповідь керівникові підприємства, від якого отримані документи на переклад;
г) при отриманні згоди на переклад колишній керівник видає наказ про звільнення працівника від посади.
Переклад працівника на іншу роботу на тому ж підприємстві може бути оформлений запискою про переклад.
Припинення трудових відносин може мати місце лише по підставах, передбаченим Трудовим кодексом.
Звільнення працівників оформляється наказом керівника підприємства.
Звільнення працівників всіх категорій проводиться наказом по особовому складу підприємства (Форма № П-8), а також запискою про звільнення, що має силу наказу.
Підставами припинення трудового договору є:
1) угода сторін;
2) закінчення терміну трудового договору, за винятком випадків коли трудові відносини фактично продовжуються і не одна із сторін не зажадала їх припинення;
3) розірвання трудового договору за ініціативою працівника;
4) розірвання трудового договору за ініціативою працедавця;
5) переклад працівника на його прохання або з його згоди на роботу до іншого працедавця або перехід на виборну роботу (посада);
6) відмова працівника від продовження роботи у зв'язку із зміною власника майна організації, зміною підвідомчості (підлеглості) організації або її реорганізації;
7) відмова працівника від продовження роботи у зв'язку із зміною істотних умов трудового договору;
8) відмова працівника від перекладу на іншу роботу в наслідок стану здоров'я відповідно до медичного висновку;
9) відмова працівника від перекладу у зв'язку з переміщенням працедавця в іншу місцевість;
10) обставини, не залежні від волі сторін;
11) порушення встановлених справжнім Кодексом або іншим федеральним законом правил укладення трудового договору, якщо це порушення виключає можливість продовження роботи
Трудовий договір може бути припинений і по інших підставах, передбаченим Кодексом і іншими федеральними законами.
У всіх випадках вдень звільнення працівника є останній день його роботи.
Накази по особовому складу є основними документами, що визначають службове положення працівників, і служать підставою для внесення відповідних записів в їх облікові документи.
Наказами по особовому складу оформляється прийом на роботу або призначення на посаду, переміщення по службі, звільнення з посади або звільнення, виключення із списків по особистому складу, оформлення відпустки, оголошення заохочень або стягнень. Наказ по особовому складу оголошується зацікавленому працівникові під розписку. Працівник після ознайомлення з наказом ставить свій підпис на його справжньому екземплярі поряд з підписами керівників, що візували проект наказу, і указує дату. У разі відмови працівника від підпису факт ознайомлення упевняється підписом начальника відділу кадрів і безпосереднього начальника працівника.
Накази по особовому складу друкуються на спеціальних бланка. Зберігаються накази в теці по особовому складу у відділі кадрів, по черговості їх номерів. Сторінки в теці наказів нумеруються.
Проекти наказів по особовому складу складаються працівниками відділу кадрів підприємства на підставі представлень керівників структурних підрозділів. Проекти наказів про заохочення і стягнення готують керівники тих підрозділів, які вносять пропозицію про заохочення або покарання працівників, що знаходяться в їх безпосередньому підпорядкуванні.
Проекти наказів по особовому складу повинні складатися на основі ретельного всебічного вивчення причин видання наказів, відповідності кандидатів, що представляються, і дотримання вимог законодавства про працю.
Формулювання наказу повинне відповідати чинному законодавству.
Прізвище, ім'я, по батькові в наказі по особовому складу указуються повністю, а найменування посади повинне відповідати найменуванню, даному в штатному розкладі, без скорочення найменування підрозділу підприємства.
Круг працівників, яким надається право візування проектів наказів по особовому складу, визначається керівником підприємства.
За дорученням керівника підприємства накази по особовому складу на певну категорію працівників можуть підписувати їх заступники і керівники підрозділи, пользующие правами прийому і звільнення.
У відсутності основного керівника накази по особовому складу підписує особа, виконуюча його обов'язки.
Відмінити або змінити наказ по особовому складу може тільки особа, що підписала цей наказ, а також керівник вищестоящої організації. При цьому зміна окремих пунктів наказу завіряється його підписом.
Наказ по особовому складу виданий вищестоящою організацією, оголошується наказом керівника підприємства з вказівкою дати вступу працівника в посаду або відходу з неї.
Копії наказів по особовому складу або виписки з них завіряються начальником відділу кадрів або особою, що його заміщає і розсилаються у відповідні структурні підрозділи, а у разі потреби у вищестоящу або зацікавлену організацію.
Крім того відділом кадрів підприємства для видання наказів застосовуються типові міжвідомчі форми наказів про прийом на роботу (форма № П-1), про переклад на іншу роботу (форма №П-5), про припинення трудового договору (форма № П-8) .Ці накази заповнюються працівниками відділу кадрів в одному екземплярі на всіх працівників, що приймаються, переводяться і звільняються, в межах даного підприємства. На працівників, стосовно яких видаються накази вищестоящою організацією (Про призначення на посаду. Перекладі в підлегле підприємство або звільненні з нього), після отримання виписки з наказу відділ кадрів підприємства заповнює наказ по типовій формі з визначенням дати вступу до посади, встановлення окладу і різних надбавок або дати звільнення працівника.
Копії наказів, завірені працівником відділом кадрів, передаються в бухгалтерію підприємства для відкриття особового рахунку на виплату заробітної плати, перерахунку її при зміні посаді або повного розрахунку при звільненні.
Заповнений наказ про прийом на роботу одночасно служить напрямом на переговори і пропуском на ознайомлення на місці з умовами роботи. Керівник структурного підрозділу дає висновок про можливість прийому на роботу і указує умови роботи. Після проходження медичного огляду наказ підписується керівником підприємства або його заступником, що має таке має рацію. Працівник відділу кадрів проставляє номер наказу і дату. Наказ оголошується працівникові під розписку до початку роботи з метою перевірки ним правильності оформлення умов укладеного трудового договору і отримання його згоди зі всіма положеннями наказу.
На підставі наказу про прийом на роботу відділ кадрів заповнює особисту картку (форма № П-2) і робить запис в трудовій книжці.
Наказ про переклад на іншу роботу складається при перекладі як за ініціативою адміністрації, так і на прохання самого працівника, в основному при перекладі усередині підприємства. Згода працівника на переклад оформляється його підписом на наказі, який ставитися після того, як наказ підписаний колишнім і новим керівниками структурних підрозділів, обумовлені умови роботи і наказ підписаний керівником підприємства.
Наказ про припинення трудового договору заповнюється при звільненні працівником. На підставі даного наказу робиться запис в трудовій книжці і особистій картці працівника.
4. Складіть проект договору про наймання житлового приміщення
ДОГОВІР
оренди квартири у приватної особи
м. Суми "10" листопада 2008 р.
ОРЕНДОДАВЕЦЬ: Маленко Іван Федорович,
(П.І.Б.)
з одного боку, і
ОРЕНДАР: ТОВ «Витязь»в особі директора Іванова Петра Івановича, що діє на підставі Статуту‚ з іншого боку‚
уклали Даний Договір про наступне:
1. ПРЕДМЕТ ДОГОВОРУ
ОРЕНДОДАВЕЦЬ передає‚ а ОРЕНДАР бере у тимчасове володіння та користування квартиру:
1.1. Адреса: м. Суми, вул.. Шевченко, буд. 2, кв. 15.
1.2. Корисна площа: 56 кв.м.
1.3. Поверх: перший.
1.4. Кількість кімнат: дві.
Недоліки квартири‚ що орендується‚ на момент передачі: не має.
1.6. Наявність телефону: тел. № 62-15-21.
1.7. Квартира належить ОРЕНДОДАВЦЮ на праві власності згідно свідоцтва про право власності № 1236478 від 12.10.1999 р. виданого Сумською міською радою.
1.8. ОРЕНДОДАВЕЦЬ також передає в оренду майно‚ що знаходиться у квартирі‚ згідно з Додатком № 1.
2. МЕТА ОРЕНДИ
Квартира надається ОРЕНДАРЕВІ для проживання співробітника останнього.
3. ПОРЯДОК ПЕРЕДАЧІ КВАРТИРИ ТА МАЙНА В ОРЕНДУ
3.1. Квартира та майно повинні бути передані ОРЕНДОДАВЦЕМ та прийняті ОРЕНДАРЕМ протягом десяти днів з моменту укладення Даного Договору.
3.2. Протягом терміну за п.3.1 Даного Договору ОРЕНДОДАВЕЦЬ зобов’язаний виїхати з квартири та підготувати її для передачі ОРЕНДАРЕВІ.
3.3. Передача квартири в оренду оформлюється актом здачі-приймання.
3.4. Квартира та майно вважаються фактично переданими в оренду з моменту підписання акту здачі-приймання.
3.5. У момент підписання акту приймання ОРЕНДОДАВЕЦЬ передає ОРЕНДАРЕВІ ключі від квартири та від кімнат.
4. ТЕРМІН ОРЕНДИ
4.1. Термін оренди складає два роки з моменту прийняття квартири за актом приймання.
4.2. Термін оренди може бути скорочений лише за згодою сторін.
4.3. ОРЕНДАР має право відмовитися від Даного Договору‚ попередивши ОРЕНДОДАВЦЯ в термін два місяці. При цьому сплачена наперед орендна плата ОРЕНДАРЕВІ не повертається.
5. ОРЕНДНА ПЛАТА ТА ПОРЯДОК РОЗРАХУНКІВ
5.1. Орендна плата за користування майном складає 500 грн. на місяць.
5.2. Орендна плата сплачується готівкою через касу ОРЕНДАРЯ або за заявою ОРЕНДОДАВЦЯ в безготівковому порядку на особовий рахунок останнього в установі Ощадбанку не пізніше 30 числа кожного місяця.
5.3. ОРЕНДАР зобов’язаний протягом трьох днів з моменту початку місяця перерахувати орендну плату за термін наступного місяця авансом.
5.4. Розмір орендної плати підлягає перегляду у випадку зміни мінімального розміру заробітної плати в наступному порядку: згідно законодавства.
6. ВИТРАТИ НА КОМУНАЛЬНІ ПОСЛУГИ
6.1. Комунальні послуги оплачуються ОРЕНДАРЕМ самостійно на підставі рахунків відповідних організацій.
6.2. Усі витрати за користування телефонами оплачуються ОРЕНДАРЕМ самостійно згідно з рахунками телефонної станції.
7. ПРАВА ТА ОБОВ’ЯЗКИ ОРЕНДОДАВЦЯ
7.1. ОРЕНДОДАВЕЦЬ має право 1 (один) раз на квартал здійснювати перевірку порядку використання ОРЕНДАРЕМ квартири та стану квартири і майна‚ що орендуються.
8. ПРАВА ТА ОБОВ’ЯЗКИ ОРЕНДАРЯ
8.1. ОРЕНДАР зобов’язується:
– використовувати приміщення‚ що орендуються‚ виключно за їхнім цільовим призначенням у відповідності до п. 2 Даного Договору;
– своєчасно здійснювати орендні платежі;
– утримувати приміщення‚ що орендуються‚ в чистоті та справності;
– дбайливо ставитися до майна‚ що знаходиться в квартирі;
– усувати наслідки аварій‚ що сталися в квартирі;
– дотримуватися протипожежних правил;
– здійснювати поточний ремонт квартири в термін зазначений в Додатку 2 до даного Договору;
– не здійснювати перебудову та перепланування квартири‚ що орендується;
– дотримуватися правил проживання в будинку‚ в якому знаходиться квартира;
– безперешкодно допускати ОРЕНДОДАВЦЯ до квартири з метою перевірки її використання у відповідності до Даного Договору.
8.2. ОРЕНДАР має право:
– обладнати та оформити квартиру на власний розсуд;
– міняти замки вхідних дверей та кімнат‚ укріплювати вхідні двері;
– здавати квартиру в суборенду за згодою ОРЕНДОДАВЦЯ (за винятком передачі квартири в користування своїм співробітникам);
– самостійно визначати порядок‚ умови та терміни проживання в квартирі конкретних осіб із числа своїх співробітників;
– установлювати сигналізацію та інші системи охорони квартири.
9. ПОРЯДОК ПОВЕРНЕННЯ КВАРТИРИ ОРЕНДОДАВЦЮ
9.1. Після закінчення терміну оренди ОРЕНДАР зобов’язаний передати ОРЕНДОДАВЦЮ квартиру та майно‚ що орендується‚ протягом десяти днів з моменту закінчення терміну оренди за актом передачі.
9.2. Протягом терміну за п.9.1 Даного Договору ОРЕНДАР зобов’язаний виїхати з квартири та підготувати її до передачі ОРЕНДОДАВЦЮ.
9.3. Квартира та майно вважаються фактично переданими ОРЕНДОДАВЦЮ з моменту підписання акту здачі-приймання.
9.4. У момент підписання акту приймання ОРЕНДАР передає ОРЕНДОДАВЦЮ ключі від квартири та кімнат.
9.5. Квартира та майно повинні бути передані ОРЕНДОДАВЦЮ у тому ж стані‚ в якому вони були передані в оренду з урахуванням нормального зносу.
9.6. Невідокремлювані покращення‚ здійснені в квартирі ОРЕНДАРЕМ‚ переходять до ОРЕНДОДАВЦЯ без відшкодування здійснених витрат.
10. ВІДПОВІДАЛЬНІСТЬ СТОРІН
10.1. ОРЕНДАР несе наступну відповідальність за Даним Договором:
– у випадку прострочення у прийнятті квартири в оренду пеня в розмірі 10 грн. за кожен день прострочення;
– у випадку прострочення по сплаті орендних платежів пеня в розмірі 0,2% від суми боргу за кожен день прострочення;
– у випадку нецільового використання квартири штраф у розмірі 0,5% від суми фактично сплачених орендних платежів;
– за передачу квартири або кімнат у суборенду без згоди ОРЕНДОДАВЦЯ штраф у розмірі 0,5% від суми фактично сплачених орендних платежів.
10.2. ОРЕНДОДАВЕЦЬ несе наступну відповідальність за Даним Договором:
– у випадку прострочення по передачі квартири ОРЕНДАРЕВІ пеня в розмірі 10 грн. за кожен день прострочення.
11. ПІДСТАВИ ДОСТРОКОВОГО РОЗІРВАННЯ ДАНОГО ДОГОВОРУ
11.1. Даний Договір розірванню в односторонньому порядку не підлягає за винятком випадків‚ коли одна із сторін систематично порушує умови договору і свої зобов’язання.
11.2. Інші підстави: відсутні.
12. ОСОБЛИВІ УМОВИ ДАНОГО ДОГОВОРУ
Відсутні.
13. ІНШІ УМОВИ
13.1. Даний Договір укладено у двох оригінальних примірниках, по одному для кожної із сторін.
13.2. У випадках, не передбачених Даним Договором, сторони керуються чинним цивільним законодавством.
13.3. Усі виправлення за текстом Даного Договору мають юридичну силу лише при взаємному їх посвідченні представниками сторін у кожному окремому випадку.
14. АДРЕСИ ТА РЕКВІЗИТИ СТОРІН
14.1. ОРЕНДОДАВЕЦЬ:
Поштова адреса та індекс: м.Суми, вул..Павлова, 1.
Дані паспорту: серія МА № 065333 виданий "10" червня 1994 р. Сумським РВВС.
14.2. ОРЕНДАР:
Поштова адреса та індекс: м. Суми, вул.. Кірова, 115.
Телефон 25-44-11.
Розрахунковий рахунок № 25101111556 в банку Приватбанк.
МФО 837014‚ КОД 08255447.
15. ДОДАТКИ ДО ДАНОГО ДОГОВОРУ
15.1. До Даного Договору додається:
Додаток № 1 – Перелік майна‚ що знаходиться в квартирі.
Додаток № 2 – Перелік робіт при поточному ремонті квартири.
15.2. Додатки до Даного Договору складають його невід’ємну частину.
ОРЕНДОДАВЕЦЬ ОРЕНДАР
___________________ ___________________
М.П.
5. Складіть заяву про прийняття на роботу з візами і резолюцією
Директорові ВО
"Томак"
панові Засенку
М.М.
Черемних Ніни Миколаївни, що мешкає за адресою: 254071, Київ-71,
Костянтинівська
вул. 12, кв. 17 тел. 416-15-60
Заява
Прошу прийняти мене на роботу до загального відділу на посаду провідного інженера.
Додаток:
1) копія диплома про вищу освіту на 1 арк., в 1 прим.
2) трудова книжка
3) особистий листок з обліку кадрів на 3 арк., в 1 прим.
20.07.2008
Черемних
Начальнику відділу кадрів
В наказ.
Підпис
Дата
Начальнику загального відділу
Організувати приймання посади,
Ознайомити з обов`язками.
Підпис
Дата
Список літератури
1. Законом України «Про Національний архівний фонд і архівні установи».
2. Закон України «Про інформацію» // Відомості Верховної Ради України. — 1992. — № 48. — Ст. 650.
3. Глущик С.В., Дияк О.В., Шевчук С.В. Сучасні ділові папері. - К.: А.С.К., 2002 - 400 с.
4. Головач А.С. Зразки оформлення документів: Для підприємств і громадян. - Донецьк.: Сталкер, 1997р. - 352 с.
5. Гутгарц Р.Д. Документирование управленческой деятельности: Курс лекций: Навчальне видання.- М.: Инфра-М, 2001.- 185 c.
6. Діденко А.Н. Сучасне діловодство: Навчальний посібник: Навчальне видання.- К.: Либідь, 1998.- 256 c.
|